Abstract
Museums play a vital role in preserving heritage and facilitating learning through exhibits. However, fostering meaningful visitor engagement remains a challenge. This study aims to analyze visitor interactions and behaviors at the National Museum of Bahrain to understand how exhibit design influences engagement. The research objectives include identifying spatial and exhibit-related factors affecting visitor interaction and proposing strategies to enhance engagement. A case study approach was employed, utilizing an online survey, visitor tracking, interviews, and spatial observations as they provide comprehensive insights into visitor behavior, spatial engagement, and exhibit effectiveness. Tracking recorded movement patterns, time spent at exhibits, and engagement levels, identifying areas of high and low interaction. Observations analyzed spatial configurations, while interviews provided insights into visitor experiences and preferences. Findings indicate that exhibit layout, accessibility, and content relevance significantly influence engagement, with certain exhibits attracting more interaction due to strategic positioning. The study identifies key design elements that enhance visitor exploration and proposes recommendations for optimizing exhibit arrangements to create immersive and educational experiences. These insights help museum authorities identify spatial and exhibit-related shortcomings. The study offers recommendations to curators to refine the designs of the exhibits and the layouts, promoting more meaningful connections with the exhibits and thereby improving the experiences of the visitors to demonstrate the importance of visitor-focused designs in museums.
1. Introduction
Museums aim to educate, inform, and entertain people. Therefore, it becomes crucial that their interior spaces are attractive, have exhibits arranged meaningfully and engagingly, and provide an appropriate ambiance. Given this, curators must understand how visitors interact with exhibits and whether they truly connect with their content. Achieving this is a challenge for many museums worldwide, while successful museums effectively foster visitor engagement [].
Today, the National Museum of Bahrain, like many other museums, faces the challenge of ensuring a high level of interaction of the visitors with the exhibits. In fact, the authorities at the National Museum have recently noted that there is a tremendous drop in the flow of visitors to the museum, partly promoted by the COVID-19 pandemic. The visitor statistics of the Bahrain Open Data Portal indicate a drastic decrease in the flow of visitors to the museum (Figure 1). Moreover, data from a survey conducted among the residents of Bahrain to seek their perspectives on museums, in general, and the National Museum of Bahrain, specifically, also support this observation. The responses indicate a strong feeling of dissatisfaction towards the static nature of the museum displays that inhibits their desire to visit the museum more than once. This is not surprising given the fact that the interior design of the museum has not undergone any changes since its inception in 1988.

Figure 1.
Statistics of visitors at National Museum of Bahrain [] [No copyright].
Several explanations can be offered for this situation. Currently, the museum lacks formulated strategies or studies to assess visitor satisfaction and engagement. There are no systematic methods for measuring how visitors interact with exhibits or whether these interactions translate into meaningful learning experiences []. As museum spaces evolve globally, integrating new technologies, participatory approaches, and behavior-based design strategies has become crucial []. Recent studies emphasize the role of digital and interactive elements in modern museums to enhance visitor experiences []. Recognizing this, the authorities at the National Museum of Bahrain have called for research into visitor behaviors to identify strategies for enhancing engagement.
In response, the authors have undertaken a study to examine the interior of the National Museum of Bahrain. Research employing behavior mapping, tracking, and timing visitor engagement can provide valuable insights into the effectiveness of museum design, assisting curators and designers in refining exhibits to enhance learning experiences and visitor engagement [].
This study specifically investigates visitor interactions with exhibits and their behavior within the museum spaces. The aim is to derive insights into how visitors engage with the exhibits and behave in the museum environment. The intention is to offer recommendations that can inform the design of a more interactive, engaging, and effective museum environment at the Bahrain National Museum. As Falk and Dierking [] point out, visitor data can guide exhibit redesign decisions to improve understanding and visitor interest.
Its objectives are as follows:
- To ascertain the ways in which the visitors engage in the hall and gallery spaces at the National Museum of Bahrain.
- To identify exhibits that effectively capture visitor attention in these spaces.
- To identify the areas that experience low engagement.
- To provide actionable recommendations for the redesign of the interior and enhanced visitor experiences at the Bahrain National Museum.
The methods employed include mainly tracking visitors, Interviews and space observations inside the museum. Tracking visitor movement provides insights into how people navigate museum spaces, which exhibits capture their attention, and how long they engage with displays. It helps to identify high-traffic areas and underutilized spaces. These data enable curators to optimize exhibit placement, improve accessibility, and enhance visitor flow for a more engaging experience. Interviews with visitors offer qualitative insights into visitor experiences, perceptions, and motivations. Unlike tracking, which provides movement data, interviews reveal how visitors interpret exhibits, what they find engaging or confusing, and how displays impact their understanding. This feedback helps museums assess the effectiveness of their exhibits and refine content to be more interactive and accessible. Observing visitor behavior in museum spaces helps analyze how spatial design, exhibit arrangement, and interactive elements influence engagement. Watching how visitors interact with displays provides insights into exhibit effectiveness. Observations also reveal patterns in interactions, helping museums design environments that encourage learning, exploration, and deeper visitor engagement.
2. Theoretical Framework
This research employs concepts and notions, such as museums, exhibits, visitors, and engagement, that are unique to the happenings within the spaces being examined. To begin with, its setting is what is known as a museum. According to the International Council of Museums [], a museum is “a permanent institution in the service of society that researches, collects, conserves, interprets, and exhibits tangible and intangible heritage for education, study, and enjoyment”. Falk and Dierking [] emphasize museums as learning environments that offer structured yet informal educational experiences. Thus, museums are places to which people ‘visit’ from time to time, with specific expectations of unique experiences. For that reason, those who visit museums are often referred to as ‘visitors’. The meaning of this idea is unique and differs from the meaning ascribed to people who happen to be at a place while not being a regular attendee. In fact, Falk [] defines museum visitors as individuals who engage with exhibits based on personal identities, motivations, and prior knowledge. Serrell [] goes further and categorizes visitors based on their behaviors, such as focused, browsing, and with uneven attention, which are traits considered to influence their level of engagement and learning outcomes within those ‘visits’.
Museums are thus places displaying exhibits to which visitors arrive and spend some time moving through spaces and looking at what is being exhibited. This activity is often referred to as interaction because it goes beyond the simple, one-sided looking at things. Therefore, the interactions in museum spaces refer to the ways in which visitors engage with the exhibits, spaces, and other visitors. Hein [] argues that interactions are fundamental to learning, as museums provide opportunities for active explorations. Falk and Dierking [] explore this idea further and say that there are different kinds of interactions. They point out that social and physical interactions contribute to the experiences in museums that lead to the acquisition and retention of knowledge by the visitors.
Indeed, at the heart of this lies the exhibits. They are curated displays designed to communicate information and prompt the engagement of the viewers. Bitgood [] states that exhibit placement, signage, and visibility significantly impact visitor movement and attention. Falk and Storksdieck [] argue that well-designed exhibits enhance learning outcomes by catering to diverse cognitive styles.
Finally, when talking about people in places, whether museums or otherwise, people do things: they perform acts such as moving or standing and carry out activities such as observing, reading, or inquiring. The totality of such acts and activities is referred to as behavior, particularly with reference to the ways in which such activities are carried out. According to Canter [], people’s behaviors are manifestations of complex transactions between external stimuli; internal psychological processes; as well as intentions, memories, and a person’s purpose of being in a place. Visitor behavior in museums is influenced by personal interests, motivations, and exhibit design. In this connection, Falk [] suggests that visitors’ behavioral patterns align with their identity-related motivations, affecting their levels of engagement. Bitgood [] highlights that attention, movement, and decision-making within museum spaces shape the overall visitor experience.
It is well known that museums serve as interactive learning environments that rely on effective visitor engagement, interactions, and exhibit design to create meaningful experiences. The relationship among these elements is dynamic and interdependent. Museums function as dynamic learning environments where visitors interact with the exhibits to create meaningful experiences. As discussed, visitor behavior is influenced by the motivations [] and exhibit design [], determining how the individuals engage with the museum contents. Effective exhibit design and spatial arrangements [] guide visitor interactions, while social and physical engagements [] impact the retention of knowledge. Understanding visitor behavior, interactions, and movement patterns allows museums to optimize their spaces for enhanced learning, exploration, and visitor satisfaction.
By understanding the relationships between visitors, interactions, exhibits, and behavior, museums can enhance accessibility and engagement for diverse audiences. This allows for the introduction of interactive experiences to improve learning outcomes [] and strategic spatial arrangements that guide movement and optimize engagement []. Behavioral insights can also refine exhibit placement, creating a more immersive and effective visitor experience [].
This framework is particularly relevant to the National Museum of Bahrain, where visitor engagement challenges necessitate rethinking museum design and exhibit strategies to align with contemporary visitor expectations.
3. Literature Review
3.1. Visitor Behavior in Museum Spaces
A lot of research has examined the behaviors of visitors in museum spaces in many different contexts. It is understood that they are essential for enhancing visitor engagement and improving the design of exhibits. Previous research often focuses on how spatial design, exhibit types, and technological innovations influence visitor interactions, learning outcomes, and overall experiences. They note that museum layouts and the spatial arrangements of exhibits significantly impact how visitors move through and engage with the space. Bitgood [], for example, demonstrates that physical factors such as the placement of exhibits, signage, and sightlines affect the flow of visitors, as people are naturally drawn to areas that are easily accessible and visually engaging. Falk [] adds that the physical arrangement of the exhibits is the major influencing factor on the visitors’ engagement and behavior. According to him, careful exhibit designs can enhance visitor satisfaction, interaction, and learning.
Bitgood [] also points out that confusion caused by inadequate signage or tight pathways can result in missed opportunities for learning and engagement, as visitors may skip key displays in favor of navigating spaces more quickly. According to him, such negative experiences can diminish the overall value of a museum visit and discourage repeat attendance. Bitgood [] thus argues that effective wayfinding systems not only help visitors move efficiently through the spaces but also encourage further exploration by offering hints about what lies ahead, such as upcoming exhibits or themed sections. As Bitgood [] notes, when museums are designed with the visitor’s movement in mind, it enhances both the engagement with the exhibits and overall satisfaction, making the museum experience more enjoyable and fulfilling. Falk [] adds by demonstrating that, in addition to navigation, eye-catching and visible exhibits attract the visitors’ attention and behavior. He talks about grouping the themed exhibits and advises avoiding the cluttered exhibits that cause cognitive overloads.
In contrast, Robinson [] points out the layout of the exhibits and the signage that impact the visitors’ behavior and learning are important. The American Association of Museums [] also emphasizes that museums should create environments that facilitate movement and interaction, allowing the visitors to engage with exhibits at their own pace. Therefore, open designs contribute to a more relaxed atmosphere, promoting a positive museum experience while reducing the likelihood of visitor frustration. At the same time, the psychological effects of visibility and openness in museum spaces cannot be overlooked. According to Kaplan and Kaplan [], environments that provide a sense of openness and visibility can reduce stress and anxiety, allowing the visitors to feel more relaxed and engaged. As they point out, this is particularly important in educational contexts, where reducing anxiety can enhance learning outcomes.
The nature of museum exhibits—whether static or interactive—also plays a crucial role in visitor engagement. Falk and Dierking [] emphasize the importance of creating participatory and immersive experiences, noting that interactive exhibits foster deeper engagement and promote active learning. According to Hein [], traditional static displays, while being informative, often struggle to capture the attention of the younger visitors, who tend to prefer more hands-on, dynamic learning experiences. Falk et al. [] also show that when visitors can manipulate objects or engage with digital interfaces, they are more likely to retain information and develop a personal connection to the content. This shift in preferences highlights the growing demand for integrating technology to enhance visitor participation. Adding to this, Falk and Dierking [] stress that interactive elements—such as touch screens, simulations, and hands-on activities—promote exploration and discovery, allowing the visitors to learn by doing.
Recent studies show that incorporating digital and interactive technologies, such as augmented reality (AR) and virtual reality (VR), can also significantly enhance visitor experiences. According to Wojciechowski et al. [], digital technology not only engages visitors by making exhibits more interactive but also provides personalized learning opportunities. Interactive screens, digital guides, and immersive technologies, therefore, can adapt content based on visitor behavior, allowing for a more tailored experience. In this connection, Bitgood [] examines the role of simulated immersion in exhibitions, highlighting how immersive environments enhance visitor engagement and learning. Bitgood [] further discusses how simulated immersions—through the use of realistic settings, sensory elements, and interactive technologies—can captivate visitors and create memorable, emotionally resonant experiences.
As seen, there is a common acceptance that visitor behavior in museums is closely linked to learning outcomes. For example, Falk and Storksdieck [] point out that visitors who engage more actively with exhibits tend to retain more information and report higher satisfaction levels. This means that museums designed with a balance of interactive and traditional displays tend to cater to diverse learning preferences, promoting both individual and group engagement. Similarly, it is well known that museums are inherently social spaces and visitor behavior is often shaped by social interactions. In this connection, Leinhardt et al. [] highlight that social learning—where visitors frequently discuss exhibits with companions, sharing insights and experiences—enhances engagement, understanding of the exhibits, and reflection. Museums that provide spaces for group discussions or encourage collaborative exploration through interactive exhibits, therefore, tend to foster richer visitor experiences. Robinson [] also supports the above by using the term ‘social dynamics’ in improving the learning at museums.
Moreover, many studies indicate that visitor preferences vary widely based on age, education level, and cultural background. For example, Hooper-Greenhill [] showed that younger people are more likely to favor interactive and participatory exhibits, while the older visitors may prefer more traditional, text-based displays. Understanding these demographic differences is crucial for museums to design inclusive and engaging spaces for a broad audience. The latest study by Olesen and Holdgaard [] on how play has been applied in museums indicates that playful museum initiatives result in engagement, learning, and/or enjoyment for not only children but other age groups as well.
Adding to these, Serrell (2015) [] discusses several other reasons that may influence the learning behavior at the museums. According to her, if visitors come in large groups, they may rush or face distractions, and if they come in small groups or solo, they can manage their own pace. She also emphasizes that the level of prior knowledge of the visitors regarding the contents of the exhibits can decide his/her deep or shallow engagement with the exhibits. Here, she also emphasizes the individual interest of the visitor as a factor to be considered. Robinson (1928) [] adds the age of the visitors and the variability in the group type (e.g., family group, school group) as an influence to stay in the museums. However, Serrell [] clearly outlines that strategic exhibits and placement are key to optimizing user engagement; otherwise, the exhibits will be ignored due to selective engagement and limited time for the visitors. For attention allocation, what is important is the visual appeal and interactivity of the exhibits.
Elaborating on the aspect of visitors’ attention, Serrell [] mentions that the role of exhibits in the informal and social setting of museums is very significant. If the exhibition does not promptly provide enjoyable, thought-provoking, or personally meaningful experiences, visitors are likely to shift their attention elsewhere. She argues that if the exhibit challenges are not matched to the skills of the visitors, they will not pay attention or get involved.
On the contrary, Chiozzi and Andreotti [] draw attention to the misconceived perception that the longer the visiting time, the better the engagement and learning happening at the museums. According to them, the visiting time does not give a clear idea about the actual use of the exhibits. Visitor behavior and time utilization are two important aspects to be considered while investigating visitors and exhibitions. They point out that studying the flow pattern of visitors, along with the duration of their stay and interaction with exhibits, is crucial when evaluating spaces like museums. According to Bitgood & Shettel [], however, time allocated to a task is one of the most useful predictors of educational or training effectiveness, and it has been used for this purpose in countless studies. The places where visitors often stop are also frequently mentioned as most memorable. They highlight, largely, the communication techniques used in the museum spaces. Serrell [] divides the behavior of visitors into focused behavior, browsing behavior, and uneven attention behavior. Robinson [] adds cognitive engagement to the list of types.
Serrell (2015) [], as a continuation of the above discussion, mentions that the amount of time spent and the number of stops taken by visitors during their museum journey can be systematic measures to indicate learning. She also speaks about the Sweep Rate Index (SRI) and Diligent Visitors Index (%DV) as important factors for measuring the effectiveness of the exhibitions. Serrell [] writes that visitors’ attention and time spent can be increased by making exhibit elements more social, interactive, and intergenerational. She advises creating exhibitions that can encourage more people to become diligent visitors, who are defined as ‘the proportion of visitors who use the exhibition fully’. The percentage of diligent visitors is derived by counting the number of visitors who stopped at more than half of the exhibit elements in the exhibition and dividing that number by the number of visitors in the sample.
These studies on visitors’ behavior in museum spaces underscore the importance of studying them to evaluate the museum experience for visitors and gauge the success of the mission of a museum, i.e., to educate and entertain the audience. Indeed, such behavioral studies indicate the need for museums to design spaces that facilitate movement, encourage interaction, and cater to diverse learning styles. By responding to those needs, museums can enhance the visitor experience and foster deeper engagement with the exhibits.
3.2. Tracking and Timing of Visitors at the Museum
As Serrell [] says, regardless of who they are, why they came, how many times they have been to the exhibition before, or whom they are with, the essential and simplest data that can be collected about visitors is the time they spend paying attention to the exhibits during that visit. In fact, the easily measured quality being thoroughly used is an accessible tool for museum practitioners in almost any museum. This information can help an exhibit development team make more realistic decisions about exhibit size and more informed choices about the different kinds of media and experiences we may better match to visitors’ expectations and the museum’s objectives. At the present time, there are no systematic, shared methods to judge impact and no agreed-upon standards against which to measure our success []. Ticket sales and head counts are used to judge popularity and marketing effectiveness; exit interviews and comment books are the primary means used to survey visitors’ likes and dislikes, but these do not give clear evidence of educational impact. Cognitive pre- and post-tests similar to testing in traditional school settings have been used to measure an exhibit’s educational effectiveness with visitors, yet these kinds of tests seem inappropriate for museum visitors who are under no obligation whatsoever to learn anything. We are still searching for better ways to assess impact, such as ones that are appropriate and adequate for the casual nature of informal learning in exhibitions [].
Historically, tracking in museums initially focused on visitor circulation, as pioneered by Robinson [] and Melton [,]. They measured where visitors went within an institution or exhibition. For instance, Melton identified patterns like the “right-turn bias”, which remains a subject of contemporary research []. Early methods were rudimentary, even tracking wear patterns on carpets to infer movement. Over time, tracking evolved to include detailed recordings of not only where visitors go but also their actions within exhibitions, providing both quantitative data on stay times and qualitative insights into behavioral patterns []. It can provide quantitative and qualitative data in relation to stay times as well as other behavioral data.
However, visitor tracking can be conducted unobtrusively, without the visitors’ awareness, or through cued methods, where visitors consent to be observed. According to Falk [], unobtrusive methods are often preferred to avoid influencing natural behaviors, though interviews can complement these methods to understand the motivations behind observed actions [,]. There are also various other ways to observe visitors in museums.
Timing and tracking methodologies are diverse, but their utility often depends on the unit of analysis. Typically, they are employed for analyzing visitor behavior across an entire exhibition rather than at individual exhibit components [,]. This broader scope enables museum professionals to assess exhibition flow, identify popular areas, and ensure exhibits engage visitors as intended [].
Advances in technologies, such as video recording, have enhanced the accuracy of tracking studies. Video technology allows for detailed observation but may be appropriate for a single exhibit or gallery, as argued by Yalowitz and Bronnenkant []. Hence, many institutions still rely on traditional paper-and-pencil methods for tracking movement across larger spaces.
Needless to say, tracking and observation studies are essential tools for understanding visitor behavior in cultural institutions. As mentioned by the Australian Museum Audience Research Centre [], tracking provides data for reporting program outcomes, making improvements, comparing exhibitions, and conducting trend analyses across time and programs. The fundamental aim of tracking includes tracking total time spent, visitor pathways, demographic data (like gender and age), and evaluating the effectiveness of key messages. Specific goals focus on assessing exhibit coverage, attraction, and holding power; user interaction; and design feedback. Loomis (1987) [] highlights the significance of visitor engagement in the evaluation process, stressing that understanding how visitors interact with exhibits and programs can inform improvements.
Behavior mapping is the systematic observation of people using their environments. It enables the real-time recording of patterns of people’s use of public space and its infrastructure. The technique can reveal what people do in these spaces, how users’ activities relate to each other spatially, and how the space supports or hinders people’s activities []. It is a critical tool in museum studies, offering detailed insights into how visitors interact with the exhibits and navigate museum spaces. By systematically observing and recording visitors’ movements, pauses, and interactions, behavior mapping helps identify patterns of engagement and preferences, which are essential for improving the overall museum experience. It is also crucial for understanding dwell time—the duration visitors spend at each exhibit—which serves as a key indicator of interest and engagement.
It also reveals the high-traffic zones that can be mentioned as “hot spots” and exhibits where they overlook called “cold Spots”. By analyzing these patterns, museum professionals can tailor experiences to match visitor preferences, such as introducing more participatory or narrative-driven displays []. Moreover, this technique is invaluable for crowd management, optimizing space usage, and ensuring a comfortable flow of visitors, especially during peak hours.
According to Yalowitz and Bronnenkant [], timing and tracking have become one of the most consistently used methods in exhibition evaluations because it is able to indicate the extent to which visitors are behaving in the expected and intended manner. Tracking and timing methodologies, in particular, offer detailed data on the duration of interactions with specific exhibits and the flow of visitor traffic throughout the museum. Falk and Dierking [] highlight that the information achieved through tracking the visitors enables the curators and designers to assess which exhibits are most effective in capturing attention and which may need redesigning to boost engagement. Yalowitz and Bronnenkant [] point out that the tracking of visitors can be performed by using traditional paper and pencil-based techniques or the most recent technologies like motion sensors and real-time data analytics, which have significantly improved the accuracy and efficiency of these observations. They show that no matter what the method used for tracking is, manual or digital timing, a tracking study provides a wealth of information about the target exhibition, which is also valuable in designing future exhibitions [].
At the same time, Lee et al. [] demonstrate how tracking visitor paths and dwell times can inform the strategic placement of interactive elements, thereby increasing visitor interaction and satisfaction. Kim and Lee [] comment on the benefit of the method that timing data helps in understanding peak visiting hours and managing crowd control, ensuring a more comfortable and engaging environment for all visitors. Smith and Jones [] conclude that these methodologies not only improve visitor engagement but also support the museum’s educational and cultural missions by creating more meaningful and immersive experiences. By systematically recording visitor movements and behaviors, including stops, browsing, and reading activities, museums can identify areas with high engagement and those requiring redesign or enhanced signage. Such data also serve as a foundation for longitudinal studies, allowing for trend analysis across different exhibitions and over time. Kelly and Gordon [] mention that combining tracking with other research methods, such as surveys and interviews, enhances the depth of insights, shedding light on visitor learning outcomes and overall experiences.
Qualitative reflections on tracking studies underline their value. Museum visitors often come to the museums with certain goals and expectations. When observers who want to study the behavior of those visitors perform detailed studies by tracking and timing them or mapping them in their environment, they often find surprising results during analysis. These results are very different from the preconceived visitor behavior pattern expected by the museum designers and curators. In support of this, Kelly and Gordon [] write that the photographic expressions or verbal reactions may not indicate the deeper engagement of visitors with the contents of the exhibits, and this disconnection may lead to the lost opportunity for learning.
Ultimately, timing and tracking studies provide cultural institutions like museums with a detailed understanding of visitors’ behavior. This enables the designers and curators to create engaging, educational, and inclusive museum environments. They underscore museums’ need to go beyond counting visitor numbers and focus on meaningful engagement and transformative learning outcomes.
This information enhances knowledge of visitor experiences, supplements other research methods, and guides improvements in exhibit design, refurbishment, signage, and interactive features. However, while conducting these studies, preparation is critical, which involves using clear and accurate floor plans, quality timing tools, and visual aids like photographs to support the findings. Ethical considerations, such as privacy and clear communication, are equally important. Moreover, the authors advocate using timing and tracking in combination with other methods like interviews. Timing and tracking may not give enough information on why people are behaving the way they do; hence, using interviews also helps to focus on the relationship between what a visitor does and the intended outcomes of the exhibition.
4. Materials and Methods
This research employed case study as a method. National Museum of Bahrain was the case study, and within it, the ‘Hall of Customs and Traditions’ and the ‘Hall of Trades and Crafts’ were investigated. It employed a mixed-methods approach in gathering data, combining qualitative and quantitative techniques. Data triangulation is achieved by using those four methods explained here. All the visitors who visited the museum during the study period were tracked since the number of visitors was not very high and could be managed during manual tracking process. Consent was obtained from participants for their participation in interview. So, those who offered consent were recorded in the study.
Online Survey: A survey was conducted online, and 73 responses were collected. The respondents were from the age group 15–50 years and mostly included Bahraini females. The survey was designed to seek opinions of people in Bahrain on their museum experience, especially at the National Museum of Bahrain. The data received from the survey became the basis for initiating further investigations into the study of visitors at the museum.
Behavior Mapping and Timing Tracking Activities: We systematically observed and recorded the number of visitors, visitor movements, directions, dwell times, and interactions at each exhibit using a pen-and-paper method. This included their directions of movement, the number of stoppings at the displays, and the length of stopping. A total of 86 visitors who visited during the study were tracked, and their behavior was observed and mapped. These visitors were observed on one weekday and one weekend in the morning hours (9:00 a.m.–11:00 a.m.) and afternoon hours (1:00 p.m.–3:00 p.m.) in the summer month of July 2024.
Interviews: Interviews were conducted with selected visitors, raising questions related to their motivations, satisfaction levels, and perceptions of the exhibits. It identified which displays captivated the audiences and which displays failed to hold the attention of the visitors during their museum visits. A total of 19 visitors were interviewed. This was helpful since tracking the behavior without speaking to them is insufficient and misleading to make concluding remarks on their satisfaction with the museum visit. The visitors interviewed included 3 family—local, 3 family—foreigners, 4 group—foreigners, 3 group—local, 5 individual—foreigners, 1 individual—local, etc. (Table 1).

Table 1.
Details of visitors tracked during the study [source: the authors].
The visitors interviewed were selected based on their consent. The number of visitors interviewed was 19, which is 22% of the total number of visitors tracked during the study. The interviews were performed on the same day and time while their tracking was performed as mentioned above. The duration of interview ranged from 1 min to 24 min. A total of 9 interviews were performed at the end of the entire journey, 7 interviews were conducted at the end of the ground floor journey, and 3 were interviewed during the journey on ground floor. A total of 12 respondents were foreigners, and remaining 7 were local Bahrainis. Moreover, 6 respondents came as individuals, 6 came with family, and 7 respondents came in group.
Table 2 indicates the details of the respondents who participated in interview during their visit. The span of interview was, on average, 3–4 min (ranging from less than a minute to 10 min maximum). Majority preferred to speak about their experience at the end of their journey, whereas few opted to converse during their journey.

Table 2.
Details of respondents who participated in interview [source: the authors].
Observations of Spaces: Observed the planning arrangements of spaces and onsite characteristics while noting down comments on the observations based on the researchers’ understanding of interior architecture. This was performed during the same period of the tracking study. The data are time-specific and situation-specific and cannot be generalized.
Some keywords that were coined during the study are mentioned in Table 3 below:

Table 3.
List of keywords used in the study [source: the authors].
These keywords are explained to set the understanding of readers as intended by the authors of the study. This was important since some descriptions are set only for this study and may not match with any other museum study.
The Case Study: National Museum of Bahrain
The National Museum of Bahrain, inaugurated in 1988, is one of the oldest public museums in the Gulf region and an essential cultural institution in the capital city of Manama. The museum provides a comprehensive overview of the rich history of Bahrain, spanning over 6000 years and encompassing its archaeological, cultural, and social heritage. Designed by the Danish architectural firm KHR Arkitekter, the museum stands as a significant example of modernist architecture while incorporating traditional Bahraini elements. Its design features clean lines, open spaces, and extensive use of natural light, reflecting a balance between contemporary aesthetics and local cultural expressions. The use of locally sourced materials and climate-responsive strategies ensures the functional and cultural resonance of the building.
The diverse exhibits of the museum cover a wide range of the history of Bahrain. Its archaeological collection includes artifacts from ancient Dilmun, one of the earliest civilizations in the region, alongside relics from various other significant periods of Bahraini history. Notable pieces include pottery, tools, and the famous Dilmun seals. The ethnographic displays offer a glimpse into traditional Bahraini life, including dioramas depicting daily activities such as pearl diving, fishing, and domestic life. The Islamic Art section showcases manuscripts, ceramics, and textiles, highlighting the influence of Islam on Bahraini culture. Additionally, the museum features a gallery for contemporary Bahraini artists, fostering modern artistic expressions and offering a platform for emerging talent (Figure 2).

Figure 2.
Displays showing Bahraini arts, crafts, and cultural heritage at the National Museum of Bahrain [source: the authors].
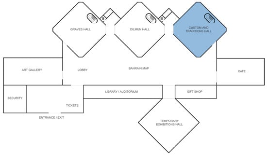
Figure 3 and Figure 4 are the schematic plans for the Ground Floor and the First Floor of the museum. The highlighted part is the Exhibition block taken for the study, with the Ground floor identified as the ‘Hall of Customs and Traditions’ and the upper floor identified as the ‘Hall of Trades and Crafts’. The exhibits display the Bahraini culture, customs, and traditions and vary in size and display methods. The displays are designed by the curators for the purpose of serving educational and entertainment goals to the community.

Figure 3.
Ground floor plan of the museum [source: the authors].

Figure 4.
First-floor plan of the museum [source: the authors].
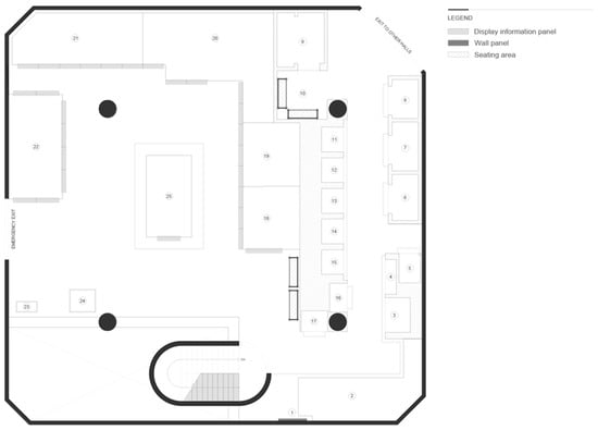
The Exhibition block on the ground floor has 32 displays related to Bahraini Customs and traditions (Figure 5) and 25 displays for Bahraini trades and crafts on the First Floor (Figure 6). Both floors are internally connected with a central staircase.

Figure 5.
Hall of Customs and Traditions plan (ground floor) [source: the authors].

Figure 6.
Hall of Trades and Crafts plan (first floor) [source: the authors].
Table 4 and Table 5 below give details of displays on the ground floor and the first floor, respectively. The details include the description of displayed items, along with details of size, technology integration, and type. For the ground floor, 32 displays are described with details, and for the first floor, the details of 25 displays are written under 9 headings. During the study, Displays 1–17 are treated as one large display since all the displays from 1 till 17 exhibit a common topic, i.e., craft shops in Bahrain. These tables give a clear idea of distribution of displays with details on both the floors of the museum gallery selected during the study. It helps to understand the size and nature of displays, along with the interaction mode applied to each display.

Table 4.
Display descriptions on ground floor [source: the authors].

Table 5.
Display descriptions for first floor [source: the authors].
Beyond its exhibits, the National Museum of Bahrain plays an important educational and cultural role, regularly hosting workshops, lectures, and other programs designed to engage both local and international audiences. These initiatives aim to promote a deeper understanding of the cultural heritage of Bahrain while encouraging cultural exchange. However, critiques suggest that there is room for innovation in visitor engagement, particularly through the use of interactive technologies and expanding the museum’s digital presence to attract younger audiences.
As Bahrain continues its rapid modernization, the museum faces the challenge of remaining relevant while balancing the preservation of traditional heritage with the needs of contemporary society. The museum has the opportunity to expand its digital initiatives, collaborate with international institutions, and further strengthen its role as a center for cultural dialog in the region. The National Museum of Bahrain remains a vital institution dedicated to preserving the country’s history and culture. If it embraces modern technologies and global partnerships, it can continue to shape the cultural identity of future generations while serving as an important cultural hub in the Gulf region.
Figure 7 shows the research design at a glance, focusing on the methodology adopted during the study, as explained above.

Figure 7.
Research design framework [source: the authors].
5. Results
5.1. Findings from Online Survey
A total of 90% of the respondents mentioned their interest in visiting the museum but indicated that they prefer to go once a year and that too with their families and friends. They said that their aim behind the visit was to gain educational and entertainment outcomes. 78% of them agreed that the museum in Bahrain is the conventional type with no changes applied for a long time. They expressed their satisfaction with the interior environmental quality of the space but, at the same time, articulated their dissatisfaction with the formal, static, and fixed nature of the display exhibits, which lack the integration of technology.
5.2. Findings from Tracking of Visitors
The total number of visitors tracked during the study was 86. They were categorized into seven types based on their demographic details: family—local, family—foreigner, individual—local, individual—foreigner, group—local, group—foreigner, and group tourists.
Table 1 shows the division as individuals—Bahraini, non-Bahrainis, groups—tourists, groups—Bahrainis, and groups—non-Bahrainis. The total number of visitors observed was 86, with the maximum number of visitors being the tourists group (44.2%) followed by the foreign family groups (17.4%). Understanding the visitor demographics is crucial for tailoring the museum experience to different audience segments. The number of visitors was the largest (52 out of a total of 86) on weekdays during the morning hours, and the low number of visitors was seen on weekends during the morning and afternoon hours. On weekdays, most of the visitors were individual foreigners and groups and the tourist groups and weekends were preferred by local Bahraini families (Table 2).
About 23.2% of visitors were Bahraini individuals and families. The tracking study showed how museum visitors interact with the displays and the exhibit spaces. Starting and ending points, favorite travel paths, popular/frequent hotspots, areas of congestion, etc., were easily observed and recorded from the visitor flow pattern.
The displays in the gallery were divided into four categories for this study only, based on their physical sizes (Table 4 and Table 5). For 3D exhibits, the size was considered small for displays of 2 sqm or less, medium for displays between 2 sqm and 6 sqm, large for displays between 6 sqm and 12 sqm, and very large for displays larger than 12 sqm. For 2D Panels, the size was considered small if the panel length is 2.5 m or less, medium if the panel length is between 2.5 and 5 m, and large if it exceeds 5 m length. Based on this, approximately half of the displays (51.5%) were found to be small, 12% were medium, and 36% were large and very large category displays.
Table 4 and Table 5 show that all the displays in the museum are educational type, with more than 50% of displays that are added with entertainment features. Table 4 and Table 5 illustrate that out of all displays in the gallery, 41.5% of displays are read-only, including text and images. These included Displays 1, 3, 5, 7, 9, etc., which are displayed as informative text panels. A total of 51.5% of displays are designed to engage the visitors with an emphasis on the visual senses. These include displays like 2, 4, 12, 13, etc. Only 7.3% of displays are multisensorial, for example, Displays 6, 8, and 18. The tracking study showed that the multisensorial displays attracted 95% of visitors and could retain them engaged for 2–3 min.
Another important observation noted was regarding the integration of technology in the displays. Only 7.3% of displays were found to be integrated with technology, leaving 92.7% of displays without technology (Table 4 and Table 5).
Four (4) random visitors from the total eighty-six visitors were selected to mark their route during the tracking. These visitors were from different demographic categories. Table 6 shows the tracking details, including the start and end points of their journey, the number of displays visited, and the number of displays skipped/ignored during their journey. Visitors 1 and 4 showed a regular flow pattern during their journey by visiting almost 90% displays, whereas Visitors 2 and 3 showed an irregular flow pattern during their journey, visiting as little as 20% of the total displays. Even the guided tour showed that some displays were skipped during their journey. Path route of non-local individuals was found to be very regular, who visited almost all the displays in the gallery (30 out of 32 on the ground floor and 8 out of 9 on the first floor). Display 1 on the first floor was a part of sets 1–17 but was found to be left out of the journeys of all visitors.

Table 6.
Description of visitor route details [source: the authors].
These routes are presented diagrammatically in Figure 8a,b.

Figure 8.
Visitor routes: (a) ground floor, (b) first floor [source: the authors].
Most of the visitors followed a path starting with the entrance point and moving right, which is a more logical route on the ground floor. Some visitors were seen taking a left turn after seeing the visitors crowded in the right-side area. However, the same visitors took a left turn after ascending the staircase to move into the gallery on the first floor, which had an option to take a right turn. The path patterns showed how the visitors were influenced by the gallery design, group dynamics, and exhibit engagement. Foreign individual visitors who had no time constraints were found exploring almost all the exhibits and panels. Their mode of unstructured exploration allowed in-depth engagement with the displays. The tourist groups were found following a structured path, which ensured their consistent exposure to almost all displays. But this was found with limited personal exploration. Families prioritized visually interactive displays, such as Exhibits 32 and 25, while bypassing textual panels, highlighting the need for child-friendly, multi-sensory elements to sustain their engagement. In some instances, it was observed that crowding and unconventional entry points disrupted the flow, leading to reversed or incomplete exploration of displays on both floors. Visitors descending from the first floor often exited prematurely due to the staircase and exit’s location, missing parts of the exhibition.
Figure 9a,b indicate the frequency of the visits to the displays on the ground floor and first floor, respectively. The most visited displays are colored red as ‘Hot Zones’, and the least visited, including those that were neglected, are marked blue as ‘Cold Zones’. In between, there are stages with intermediate frequencies of visits. Displays 2, 4, 6, 32, and 18 were highly visited, and Displays 1 and 9 were the lowest visited on the ground floor (Figure 9a). Displays 6, 7, 8, 9, 10, 20, and 22 were highly visited, and Display 1 was the lowest visited display on the first floor (Figure 9b). Interaction hotspots were identified in areas with interactive and engaging exhibits. Display 18 (Figure 10a) and Display 32 (Figure 10b) on the ground floor and Displays 1–17 related to various crafts, and Display 25 (Figure 10c), which is the diving display on the first floor, were found to be more crowd-pulling. These displays were noted as multiple visited displays by the visitors during their tracking. Display 6 is an educational, large-size display that showed one revisit.

Figure 9.
Visiting frequency (a) in Hall of Customs and Traditions [ground floor] and (b) Hall of Trades and Crafts [first floor] [source: the authors].

Figure 10.
(a) Display 18 (ground floor), (b) Display 32 (ground floor), and (c) Display 25 (first floor) [source: the authors].
The dwell time/stop time varied significantly across all displays, ranging from less than a minute to 5 min. The average time spent at the exhibits in both galleries is approx. 45 min. This dwell time includes stopping, looking, reading, glancing, and interacting with the exhibit. Individuals who came to explore the galleries took almost 15–20 min to complete their tour. Groups that came with a guide could finish their viewing in approximately 30 min. All the tourists had to move at the same pace to keep aligned with their group. Some locals were observed taking only 10 min to complete their tour. Families, especially with kids, took 5–10 min more to complete their journey since the kids tended to linger more with some displays. In all categories, foreigners took approximately 5–10 min more than locals to complete their tours.
Figure 11a and Figure 11b are drawn to visualize the number of stoppings in front of the various displays on the ground floor and first floor, respectively. Each dot indicated in the figures represents an observed individual/group out of a total 21 who stopped in front of the displays.

Figure 11.
(a) Stoppings in front of the displays (GF); (b) stoppings in front of the displays (FF) [source: the authors].
The most favored displays on the ground floor were listed as Displays 18, 2, 4, 6, 8, and 13, whereas on the first floor, the favorite displays were marked as Displays 18, 22, and 25. These were noticed as favorites based on the maximum stopping by the visitors at these displays. There were some displays that were neglected or overlooked by some of the visitors, like Displays 1, 19, 23, 24, 25, 29, and 31 on the ground floor and Displays 20 and 24 on the first floor.
Figure 12a and Figure 12b indicate the displays chosen by women, kids, elderly locals, and foreigners as their favorite displays. This selection was spotted during the tracking study as a noticeable observation.

Figure 12.
Displays favored by different users (a) ground floor (b) first floor [source: the authors].
Table 7 shows visitors who stopped at certain specific displays, indicating their interest and favorite displays. Women were found visiting displays that focused mainly on topics like weddings, beauty, brides, etc. Kids were found stopping mostly at displays that included The Old House, The Heyya Beyya Display, sea trade, the diving display, etc. Elderly Bahrainis were stopped mostly by displays that focused on topics like education, Folk Medicine, The Seyadi House, etc., and the foreigners found interest in schools, architecture, childhood ceremonies, professions, sea trade, palm products, etc.

Table 7.
Favorite displays for different users [source: the authors].
The number of stops on the ground floor and first floor at various displays were noted (Table 8). This was performed under seven demographic categories of visitors, as mentioned earlier. The average values calculated for each category indicated that on the ground floor, the highest number of stops were taken by the tourist group, and the lowest number of stops were taken by the groups—local. On the first floor, it showed that the highest number of stops were taken by family—foreigners, and the lowest stops were taken by individuals—local.

Table 8.
Details of stops taken at displays [source: the authors].
Figure 13 and Figure 14 show the time spent at each display on the ground floor and first floor. The number of stops taken by visitors on the ground floor is 339, with an average of 16.1 over the 21 visiting entities (Figure 13), and a total number of stops by visitors on the first floor of 114, with an average of 5.4 stops over the 21 visiting entities (Figure 14). It shows that the longest time spent is 5 min. This was observed at Display 32 on the ground floor and for Displays 1–17 (considered in the study as one group of exhibits and referred to as a single stop) and Display 25 on the first floor. Overall, the tourist’ group made the highest number of stops on both floors and spent the maximum time in comparison to other visitors in the museum (Figure 15).

Figure 13.
Time spent per display (ground floor) [source: the authors].

Figure 14.
Time spent per display (first floor) [source: the authors].

Figure 15.
Number of stops per visitor type [source: the authors].
Attraction Power measures the proportion of visitors who stop in front of displays during their tour and is calculated using the formula:
Attraction index = number of people who stopped/total number of people observed
In this study, the calculated attraction index indicates that on the ground floor, Displays 2, 4, 6, 8, 13, 18, 22, and 32 have an attraction index of 0.9, while Displays 18, 22, and 25 have an attraction index of 0.85. According to Bollo and Pozzolo [], the closer the attraction index is to 1, the stronger the display’s ability to draw visitor attention. Therefore, these displays can be considered to have high Attraction Power.
The Sweep Rate Index (SRI) is determined by dividing the total exhibition area (in square meters) by the average time visitors spend within the space. This metric helps assess whether visitors move through the exhibition at a slow or fast pace []. In this study, the ground floor exhibition area (excluding the staircase) is 552 sq. mt., while the first floor (excluding the staircase and double-height space) covers 470 sq. mt. The average time taken to explore both floors is 45 min.
SRI = Total size of exhibition/average time spent by the users
= [534 + 470] sq mt/45 min
= 1004 sq mt/45 min.
= 22.31 sq mt/min
= [534 + 470] sq mt/45 min
= 1004 sq mt/45 min.
= 22.31 sq mt/min
According to Serrell [], visitors typically navigate exhibitions at a rate of 200 to 400 square feet per minute. In this study, the Sweep Rate Index (SRI) is 22.31 sq. meters per minute, approximately 240 sq. feet per minute, which aligns with Serrell’s findings.
Diligent Visitor Index (DVI) is obtained by calculating the percentage of visitors who have stopped in front of more than half the elements that make up the exhibition. The percentage of “diligent visitors” helps evaluate to what extent the exhibition has been visited []. During this study, family—foreigners, individual foreigners, group foreigners, and tourist groups visited more than 50% of the displays in the gallery with 60%, 61%, 61%, and 76%, respectively (Table 8). The sum of the visitors from the four categories is 76.
DVI = visitors who visited more than 50% displays/total number of visitors × 100
= 76/86 × 100 = 88.37%
= 76/86 × 100 = 88.37%
Thus, 88.37% of visitors were found to be diligent visitors who stopped by more than 50% of the total displays in the gallery, including both the ground floor and first floor.
5.3. Visitor Experience at the Bahrain National Museum Through Their Interviews
During the interview, visitors were asked about their motivation and background, including the purpose of their visit, their interest in the museum, and any prior knowledge related to the exhibits. They were also questioned about their visit preferences, such as whether they preferred visiting alone or accompanied by friends or children. The interview explored the frequency of visits, determining if it was their first time at the museum or if they were repeat visitors, as well as how often they visited museums or cultural institutions in general. Visitors were asked to provide feedback on their overall experience, including what they found most engaging or enjoyable and the reasons for their preferences. Questions about engagement and understanding focused on how easy it was to interact with the exhibits, the clarity of informational panels, and whether any aspects of the displays needed better explanation. To gather insights for future enhancements, they were asked for suggestions for improvement, such as recommendations for new exhibits, activities, or changes to enhance the visitor experience. The interview also included comparative feedback, inviting visitors to share their experience at the museum compared to other museums or galleries. Finally, participants were encouraged to share any final thoughts, including additional comments, suggestions, or whether they would recommend the museum to others.
Visitors shared diverse motivations, preferences, and feedback, emphasizing the museum’s significance as a cultural hub while also identifying areas for improvement. Many, including expatriates, Saudi tourists, and Bahraini families, visit to explore Bahrain’s ancient heritage, often bringing children for educational purposes. The majority prefer visiting with family or friends, while approximately 20% visit alone. While most are first-time visitors, 10% are repeat visitors who return to share the experience with others. Many visitors also highlighted their appreciation for museums and cultural institutions abroad, reflecting their strong interest in such experiences.
Respondents 5, 10, 11, 12, 13, 14, 16, and 17 praised the museum for its cleanliness, organization, and well-articulated spaces. Respondent 15 regarded the selected gallery as the best in the entire museum, while respondent 13 expressed high satisfaction, stating that he would recommend it to other visitors. Most respondents were visiting for the first time, except for respondents 16 and 18, who were on their second visit, and respondent 19, who was visiting for the third time.
Regarding the spatial design of the museum, respondents highlighted the need for improved navigation and accessibility. Respondents 2 and 7 emphasized the importance of a clear path and better wayfinding within the museum, while respondent 18 extended this concern to include external wayfinding to attract more visitors. Additionally, respondents 2 and 14 expressed the need for seating arrangements within the gallery. Respondent 7 pointed out that the placement of the staircase was causing some visitors to unintentionally skip certain displays (20–31) on the ground floor as they are directed toward the upper level (Figure 5).
Respondent 7 even mentioned that due to improper display sequencing and the location of the staircase, which is mid-journey for visitors, some visitors skip some displays unknowingly. The challenges, which included difficult-to-read signage, poorly lit displays, and a lack of wayfinding panels or guides, hindering navigation, according to the respondents, are shown in Figure 16.

Figure 16.
(a) Unnoticeable way findings, (b) insufficient lighting over the displays, (c) column hindering display appearance [source: the authors].
Museums need more interactive spaces and the inclusion of technology to improve interactivity (respondent 18). Respondents 1, 4, 6, 7, 8, 14, and 17 clearly expressed their dissatisfaction with the lack of technology integration in the museum displays. They recommend interactive screens and smart technology for the improvement of the experience of the visitors. Respondent 15 mentioned the use of sound as an effective way for improving interactivity and respondent 18 suggested multiple activities to be arranged to improve interactivity at the museum. There was a strong demand for more interactive and modernized exhibits to sustain interest, particularly among younger audiences. The absence of hands-on activities and interactive displays is a notable limitation, with visitors suggesting the integration of digital features like interactive screens, virtual tours, and social media prompts to enhance engagement. Suggestions for improvement included adding interactive activities for children, educational workshops, updated exhibits, and better use of technology to bring displays to life.
Several suggestions were given by the respondents, like the inclusion of displays on wedding ceremonies (respondent 3), architecture (respondents 7 and 17), beauty tools and makeup (respondent 1), and traditional games for kids (respondent 15). Respondents 7 and 9 suggested the need for a Tour Guide to produce an effective museum experience. According to respondent 8, arranging seminars and bringing experts would enhance the learning at the museum. While the museum’s thematic organization provides a broad narrative, visitors have pointed out a lack of depth in exhibit topics. There was also strong interest in expanding topics to include more detailed aspects of Bahraini life, such as traditional professions, military history, and local customs (respondent 8).
Respondents 6, 7, and 8 mentioned that they have been to museums outside Bahrain. They compared their experience with the current condition of the National Museum of Bahrain and demanded more input for enhancing the museum experience for the visitors. They spoke of the challenges like difficult-to-read signage, poorly lit displays, and a lack of wayfinding panels or guides, which hindered their navigation. While visitors agreed they would recommend the museum to families or newcomers, they expressed hesitation about revisiting it unless significant updates were made. Many compared the museum unfavorably to international counterparts, calling for greater investment to better represent Bahrain’s rich history and cultural heritage. Visitors emphasized a desire for change and development, which would make the museum more engaging and inspire return visits.
5.4. Visitor Experience at the Bahrain National Museum Through Their Space Observations
During the study, observations were made on the layout of spaces and the atmospheric elements like lighting, acoustics, contents, and interpretive materials of the displays that contribute to the visitors’ experience. The gallery layout at the National Museum of Bahrain presents both strengths and areas for improvement. The intuitive pathways generally facilitate a smooth visitor flow, but the entrance lacks clear directional signage, leading to potential confusion (Figure 16a). The current layout offers two pathways, but one route opposes the logical sequence of the exhibition, causing visitors to navigate backward. The central staircase was seen disrupting the flow, as visitors either moved to the upper floor prematurely or completed the lower floor and forgot to explore the upper floor. Displays 20 to 31 were easily skipped by the visitors due to this situation (Figure 5).
While space utilization allows for comfortable circulation, there is a notable absence of accommodations for the sight-impaired and those with reading difficulties. Signage is often difficult to read due to its height, especially for kids. Moreover, transitions between exhibits lack distinct elements such as specialized lighting or flooring, and auditory clashes from varying sound volumes disrupt the continuity. The visual continuity across sections is maintained, but the need to stop and read the information, which is not consistently placed, interrupts the flow.
The thematic organization of the exhibits, which includes stages such as childhood, education, marriage, work, medicine, housing, and professions, offers a broad narrative but lacks depth. This structure provides an overview but fails to delve into specific details, reducing the potential for a rich storytelling experience. Currently, the exhibits lack interactive elements, with displays limited to viewing and reading. The absence of hands-on activities or digital engagement reduces visitor involvement. The exhibition lacks technological integration, significantly limiting engagement and accessibility. No interactive models, activity stations, or personnel provide explanations or storytelling.
The exhibit lighting is generally adequate but lacks focused or decorative lighting to highlight specific displays (Figure 16b). Some exhibits featured red lights or small spotlights, but these require maintenance and specialist evaluation. Issues with glare reflecting off glass cases hindered the visibility and affected photo-taking for the visitors. While natural light is present between the halls, it is not necessary within the exhibit spaces. Though the lighting is mostly uniform, there are occasional dark spots or overly bright areas.
Seating was found to be very limited, with only two benches each on the ground floor and first floor. Visitors were seen confused on seating benches around Display 32 on the ground floor (Figure 5) and seating benches near Display 10 and 17 on the upper level (Figure 6) to be part of the displays in the gallery and not as furniture provided for rest during their journey. The space shows huge circular columns, and their presence disturbs the noticeable appearance of the displays, especially Display 23 on the ground floor (Figure 16c). Security presence is minimal, with only one guard on duty and insufficient signage to deter touching or protect the exhibits. As a result, children mishandled some exhibits, and food wrappers were found. Sound and background music added context to the exhibits, but volume levels were inconsistent. Repetitive short clips could be annoying, particularly for visitors with sensory difficulties like the situation observed at Display 18 on ground floor—The Heyya Beyya Display (Figure 17).

Figure 17.
Display 18 The Heyya Beyya Display with sound box [source: the authors].
The interpretive materials included informative panels, though some were outdated and difficult to read due to their height, as seen in displays like 1, 3, 5, 9, 21, 24, etc. (Figure 18a). Currently, texts are available only in English and Arabic, limiting the accessibility to foreigners (Figure 18b). The depth of information is sufficient for first-time visitors, engaging children and foreigners by offering insights into the country’s history. However, for those familiar with this history, the information was found to be too simplistic and lacking in depth.

Figure 18.
(a) Display 1 with inaccessible text height. (b) Display 1 showing text in Arabic and English. [source: the authors].
6. Discussion
6.1. Visitors’ Engagement in the Hall and Gallery Spaces at the National Museum of Bahrain
At the National Museum of Bahrain, visitors’ circulation through the gallery provides insights into what they observe, where they focus their attention, and, ultimately, what they learn and experience. However, as Bitgood [] notes, movement patterns are not always consistent, a phenomenon also observed in this study. Most visitors followed a logical route, entering and moving toward the right, though some shifted left upon noticing people in that direction. This aligns with Bitgood’s [] ‘default path theory’, which suggests that visitors tend to follow the path of least resistance. However, visitors descending from the first floor frequently exited prematurely due to the staircase and exit’s placement, missing portions of the exhibition. These findings highlight the importance of clear wayfinding, strategic transitions, and exhibit placement to guide visitors effectively and optimize engagement.
Circulation paths varied among the visitors for multiple reasons, leading to inconsistent engagement with exhibits. Tracking studies indicated that many displays were either revisited multiple times (hotspots) or bypassed entirely. The average time spent at displays was approximately one minute, suggesting low interactivity. Factors contributing to this limited engagement may include non-appealing display design, unclear circulation paths, inadequate wayfinding, weak spatial planning, and a lack of technological integration. Visitors also cited these concerns in interviews, confirming that these aspects influence their interaction levels.
As Falk and Dierking [] emphasize, interactive exhibits enhance engagement, fostering curiosity and personalized experiences. The topic exhibited also plays a role in attracting crowds, especially when of high cultural significance. This can be seen at The National Museum of Bahrain, where Display 18 [Heyya Beyya Display], related to a culturally celebrated event for children, catches the attention of all the kids. Hein [] highlights the importance of diverse interpretive materials to cater to varied visitor needs, while Hooper-Greenhill [] stresses the impact of emotional and cultural relevance on exhibit effectiveness. Bitgood [] further suggests that clarity, novelty, and depth of information are key factors influencing visitor engagement, and Tzortzi [] emphasizes the role of spatial and visual design in shaping movement patterns.
Visitor engagement varied based on group type and mode of exploration. Tourist groups accompanied by guides stopped at nearly all exhibits due to the structured nature of guided tours, where guides dictated the route, key discussions, and stationary phases []. In contrast, foreign individual visitors, without time constraints, explored most exhibits, following an unstructured path that allowed for in-depth engagement with displays. Families prioritized visually interactive exhibits, such as Displays 32 and 25, while often skipping textual panels, emphasizing the need for child-friendly, multi-sensory elements to sustain engagement. While tourist groups ensured exposure to all displays by following structured paths, their engagement remained limited to guided explanations, restricting personal exploration.
Despite the widespread adoption of interactive technology in museums worldwide, the National Museum of Bahrain lacks significant technological integration, affecting visitor engagement. Modern tools such as interactive displays, augmented reality, virtual tours, and multimedia elements can enhance visitor experiences, making exhibitions more dynamic and educational. Currently, 92.7% of displays lack such features, representing a missed opportunity to cater to a tech-savvy audience. A study by Serell [] indicates that the presence of interactive elements has been shown to increase the time visitors spend at exhibits. She also mentions that the exhibits with hands-on activities have higher holding power, leading to longer engagement times, which is found missing at this selected museum.
Cultural factors significantly shape visitor behavior in museums, influencing engagement with exhibits, navigation of spaces, and content interpretation. This is particularly evident at the National Museum of Bahrain, visited by diverse visitor backgrounds. Falk and Dierking [] highlight that prior knowledge, values, and traditions influence exhibit perceptions. Our study found that Bahraini visitors engaged more deeply with local heritage exhibits, while expatriates often required additional information or guidance to understand cultural significance.
Hein [] and Bitgood [] note that engagement styles differ across cultural backgrounds. Visitors familiar with interactive learning environments found the static nature of displays less engaging, a concern reflected in survey responses calling for more dynamic, participatory exhibits.
6.2. Exhibits That Effectively Capture Visitor Attention
Display 32 on the ground floor and Display 25 on the first floor, among the largest and centrally located exhibits on their respective floors, captured prolonged visitor attention. Visitors appeared to associate themselves significantly with larger and strategically placed exhibits, aligning with Falk and Dierking’s [] assertion that visual dominance influences perceived exhibit value. Tzortzi [] supports this by stating that spatial arrangement within museums influences visitor behavior.
Engagement patterns also varied demographically. Bahraini women were particularly drawn to displays of traditional beauty, jewellery, and bridal customs (Figure 11a), whereas expatriate visitors explored a broader range of exhibits, showing curiosity about Bahraini arts, crafts, and architecture (Figure 11b). These trends align with Hood’s [] assertion that cultural norms shape museum attendance. In Bahrain, museum visits are often family outings focused on collective learning, with parents actively explaining exhibits to children.
Language and accessibility also play a crucial role. Serrell [] and Leinhardt et al. [] stress the importance of multilingual signage and culturally relevant interpretation. While Arabic and English texts were available, some non-Arabic-speaking visitors struggled with cultural references, indicating a need for better accessibility. Many foreign visitors also expressed a preference for guided tours.
Cultural identity influences emotional responses to exhibits. Roppola [] notes that background shapes engagement. Our research found that Bahraini visitors had a strong emotional connection to exhibits on national history, such as The Heyya Beyya Display (Figure 17), and exhibits on maritime trade and traditional Bahraini homes. In contrast, expatriates from China, India, the Philippines, etc., were more interested in understanding Bahraini culture through comparisons with their own experiences.
6.3. The Areas That Experience Low Engagement
Displays like Display 2 on the first floor, being in an awkward location, experienced neglect by many visitors. Display 1 on the ground floor, being just an information panel with content that does not interest the visitors, does not attract the visitors. Exhibit design and accessibility are crucial factors that can significantly influence visitor stay times and engagement levels []. Table 6 shows that different demographic groups having different interests getting attracted to some displays and skipping some other displays as per their choices []. Non-integration of technology stands as one of the important reasons that keeps many displays with low engagement (Table 4 and Table 5). Figure 13 and Figure 14 show that there are displays (like Displays 1, 19, 23, 24, 25, 29, 31) on the ground floor and first floor (like Displays 20, 24) with a stop of less than one minute by the visitors. Low time spent indicates low engagement by the visitors can be said since museum studies have consistently demonstrated a correlation between the amount of time visitors spend at exhibits and their level of engagement [].
As Serrell [] notes, there are no universally agreed-upon standards for evaluating museum impact, making it difficult to systematically measure engagement. In most museums, visitor numbers, feedback comments, and exit reactions are commonly used as indicators of popularity. However, these metrics do not necessarily reflect the depth of learning and engagement. This applies to our study as well—tracking visitor entry and exit does not provide insights into their cognitive experiences.
The Attraction Power analysis indicates that 25% of displays on the ground floor (8 out of 32) and 33.3% of displays on the first floor (3 out of 9) achieved Attraction Index values of 0.9 and 0.85, respectively. As noted by Bollo and Pozzolo [], these displays demonstrate a strong ability to draw visitor attention. The Holding Power Index, which evaluates an exhibit’s capacity to sustain visitor interest and serves as a key factor in both learning and non-learning contexts, could not be determined in this study due to a lack of data on utilization time per display. The Sweep Rate Index, measuring the speed at which visitors move through the gallery, was calculated at 22.31 m2/min overall, with distinct variations—17.8 m2/min on the ground floor and 31.3 m2/min on the first floor. Analyzing movement patterns was challenging due to the unstructured arrangement of displays, which varied in size from small to very large []. Lastly, the Diligent Visitor Index was recorded at 88.37%, indicating a high level of exhibit visitation. However, this metric does not necessarily reflect the depth of visitor engagement or level of interest [].
7. Conclusions and Recommendation
7.1. Visitors’ Engagement and Patterns
This paper examined the visitors’ interactions with the exhibits at the National Museum of Bahrain. It attracts diverse visitors whose interactions are shaped by spatial layout, exhibit design, and engagement preferences. The research revealed that unclear indications of circulation—caused by unclear signage, staircase placement, and poorly positioned exits—lead to the visitors missing some exhibits and departing prematurely. Engagement levels vary significantly, with interactive and centrally positioned displays (e.g., 32 and 25 on the ground floor) drawing prolonged attention, while text-heavy panels (e.g., 15, 16, 17 on the ground floor) are frequently bypassed.
Distinct preferences related to patterns of engagement exist dependent on demography. Families engage most with interactive exhibits; guided tourist groups follow structured routes with limited personal exploration, while independent visitors engage deeply with the exhibits, although they move around haphazardly. It revealed that the museum’s limited integration of interactive technology (7.3%) restricts engagement, particularly for the younger and tech-savvy visitors. Furthermore, existing evaluation methods fail to evaluate cognitive engagements, revealing the need for more comprehensive assessment tools. It is, therefore, concluded that addressing these gaps through improved spatial organization, technological enhancements, and diversified content is needed to significantly enhance visitor experience, promote repeat visits, and position the museum as a more dynamic and immersive cultural institution.
7.2. Areas of Improvement for Enhancing Engagement of Visitors
This study thus proposes that the National Museum of Bahrain implements a systematic visitor tracking and feedback mechanism to enhance its effectiveness, promote the exhibits, and enhance the overall visitor experience. While the findings are specific to this context and not generalizable, they support the current understanding of the importance of ongoing research in identifying areas for improvement. They are as follows.
- Regular assessments across all galleries should be prioritized to ensure adaptive and visitor-centered enhancements.
- Understanding visitor behavior and engagement patterns is essential for designing more interactive, educational, and enjoyable experiences.
- Real-time observation of visitor interactions will provide curators with valuable insights to refine exhibit layouts, programming, and interpretation methods.
- Establishing formal feedback channels—currently absent—will ensure that the museum remains relevant to the visitors and allow them to express their preferences and suggest improvements.
Museums often operate on assumptions about visitor behavior, but systematic analysis frequently reveals unexpected patterns that can inform more effective engagement strategies. By adopting these practices, the National Museum of Bahrain can evolve into a more dynamic and inclusive cultural space that fosters deeper connections with its visitors.
7.3. Limitation of the Study
While this research provided valuable insights, it is not without limitations. The study focuses on a single museum and that too within two connected galleries on the ground and first floor, limiting the generalizability of findings to other museums or cultural institutions. Moreover, the observational component of the study may be subject to researcher bias, as visitor behavior could be influenced by the awareness of being observed. Time constraints and visitor variability may also impact the depth and breadth of the data collected. Finally, the study focuses primarily on the physical and sensory aspects of the museum experience, potentially overlooking other factors such as social dynamics, cultural background, and prior knowledge that might affect visitor engagement.
7.4. Recommendations for Improvement
The observed behavioral patterns, along with the feedback received from the visitors, suggest several practical steps for improving the visitor experience and achieving visitor-focused design at the National Museum of Bahrain. Based on these, the following recommendations are made.
- Improving signage and providing clearer directions can help visitors navigate through both floors of the museum more effectively. Employing visible and engaging markers or digital guides can ensure visitors know all available exhibits.
- Developing comprehensive self-guided tools, such as audio guides, mobile apps, and detailed maps, can assist visitors in navigating the museum independently.
- Organizing exhibits in a more intuitive sequence that naturally leads visitors through all areas can help prevent missed sections. The central staircase should be considered in the exhibit flow to avoid premature exits.
- Incorporating visual and interactive elements to draw visitors to all museum areas can ensure a more complete exploration of exhibits. Materials aimed at younger audiences can significantly improve engagement for families. Interactive elements can include touchscreens, hands-on activities, and storytelling sessions designed for children.
- Understanding the demographics of visitors, such as the influx of international tourists on weekends and local families during the week, can inform targeted engagement strategies to meet diverse visitor needs.
- Provide robust interpretive materials, including multilingual descriptions and interactive kiosks, that can meet visitor demands for more information and enhance the educational experience.
- Provide accessible labels to wheelchair users and children while also considering those with poor eyesight or limited mobility by using bold, high-contrast text that remains legible even in dim lighting for conservation purposes. Labels should be visible to multiple viewers simultaneously, readable from a distance, and concise enough to enhance rather than overshadow the experience of observing the object.
- Adjusting lighting, ensuring consistent temperature control, improving acoustics, and clearly distinguishing seating areas can enhance overall visitor comfort and engagement.
- Collect visitor feedback during tracking studies to enhance engagement, improve wayfinding, and refine exhibit design based on visitor insights and comparisons with other museums.
While appreciated for its cultural and historical value, the Bahrain National Museum faces several challenges that need addressing to enhance visitor engagement and satisfaction. The museum can significantly improve its appeal and educational value by incorporating visitor feedback into exhibit renewal, interactive elements, and technological advancements. This continuous improvement will ensure that the museum remains a vital cultural institution, fostering a deeper understanding and appreciation of Bahrain’s rich culture and heritage.
7.5. Future Research
Future research can extend to conducting tracking studies in other halls of the National Museum of Bahrain to gain a more comprehensive understanding of visitor behavior across different exhibit types. Observational tools can be systematically adapted to record visitor movement and categorize engagement using four levels: Ignore (I), Skim (S), Attend (A), and Engage (E). By applying this structured approach, researchers can assess how various demographic groups—distinguished by cultural background, prior knowledge, and group dynamics—interact with different exhibits.
Author Contributions
Conceptualization, H.E.A.K.; methodology, H.E.A.K.; validation, H.E.A.K. and A.V.J.; formal analysis, A.V.J.; investigation, H.E.A.K. and A.V.J.; resources, H.E.A.K.; data curation, A.V.J.; writing—original draft preparation, H.E.A.K. and A.V.J.; writing—review and editing, H.E.A.K.; visualization, H.E.A.K.; supervision, H.E.A.K.; project administration, H.E.A.K. All authors have read and agreed to the published version of the manuscript.
Funding
This research received no external funding.
Institutional Review Board Statement
The paper was conducted according to the guidelines of the Declaration of Helsinki and approved by the UOB-CoE—Scientific Research and Publications and Ethics Committee (Project ID: UOB-ENG-SRPEC-2025-02; Approval Date: 26 March 2025).
Informed Consent Statement
Informed consent was obtained from all subjects involved in the study.
Data Availability Statement
The original contributions presented in this study are included in the article. Further inquiries can be directed to the corresponding authors.
Acknowledgments
Thanks to Shaikh Mohammad bin Khalifa bin Mohammad Al Khalifa (General of Heritage at the Bahrain Authority for Culture and Antiquities (BACA)), for granting access and providing support to conduct the study at the National Museum of Bahrain. We also {acknowledge Batool Jamali, Waad Majed, and Zainab Maki for their efforts in collecting data during the study.
Conflicts of Interest
The authors declare no conflicts of interest.
References
- Falk, J.H.; Dierking, L.D. The Museum Experience Revisited; Left Coast Press: Walnut Creek, CA, USA, 2013. [Google Scholar]
- Information & eGovernment Authority. Visitors of Heritage Landmarks (BACA). Available online: https://www.data.gov.bh/explore/dataset/01-visitors-of-heritage-landmarks-baca-1/analyze/?disjunctive.heritage_landmarks&sort=-year&refine.heritage_landmarks=Bahrain+National+Museum (accessed on 22 February 2025).
- Vom Lehn, D. Embodying experience: A video-based examination of visitors’ conduct and interaction in museums. Eur. J. Mark. 2006, 40, 1340–1359. [Google Scholar] [CrossRef]
- Tzortzi, K. Museum architectures for embodied experience. Mus. Manag. Curatorship 2017, 32, 491–508. [Google Scholar] [CrossRef]
- Hijazi, A.N.; Baharin, H. The Effectiveness of Digital Technologies Used for the Visitor’s Experience in Digital Museums. A Systematic Literature Review from the Last Two Decades. Int. J. Interact. Mob. Technol. 2022, 16, 142–159. [Google Scholar] [CrossRef]
- Bitgood, S. Museum Visitor Studies: Understanding Visitor Behavior; Routledge: London, UK, 2016. [Google Scholar]
- International Council of Museums (ICOM). ICOM Museum Definition. 2022. Available online: https://icom.museum/en/ (accessed on 2 February 2025).
- Falk, J.H.; Dierking, L.D. The Museum Experience; Routledge: London, UK, 1992. [Google Scholar]
- Falk, J.H. Identity and the Museum Visitor Experience; Routledge: London, UK, 2009. [Google Scholar]
- Serrell, B. Paying Attention: Visitors and Museum Exhibitions; American Association of Museums: Washington, DC, USA, 1998. [Google Scholar]
- Hein, G.E. Learning in the Museum; Routledge: London, UK, 1998. [Google Scholar]
- Falk, J.H.; Dierking, L.D. Learning from Museums: Visitor Experiences and the Making of Meaning; Rowman & Littlefield: Lanham, MD, USA, 2000. [Google Scholar]
- Bitgood, S. An Attention-Value Model of Museum Visitors. Visit. Stud. 2010, 13, 33–47. [Google Scholar]
- Falk, J.H.; Storksdieck, M. Using the contextual model of learning to understand visitor learning from a science center exhibition. Sci. Educ. 2005, 89, 744–778. [Google Scholar] [CrossRef]
- Canter, D. The Psychology of Place; Architectural Press: London, UK, 1977. [Google Scholar]
- Bitgood, S. Attention and Value: Keys to Understanding Museum Visitors; Left Coast Press: Walnut Creek, CA, USA, 2013. [Google Scholar]
- Falk, J.H. Assessing the impact of exhibit arrangement on visitor behavior. Visit. Stud. 1993, 6, 15–30. [Google Scholar] [CrossRef]
- Robinson, E.S. The Behaviour of the Museum Visitor; American Museum of Natural History: New York, NY, USA, 1928. [Google Scholar]
- American Association of Museums. Museum Standards and Best Practices; American Association of Museums: Washington, DC, USA, 2007. [Google Scholar]
- Kaplan, R.; Kaplan, S. The Experience of Nature: A Psychological Perspective; Cambridge University Press: Cambridge, UK, 1989. [Google Scholar]
- Falk, J.H.; Dierking, L.D. The Museum Experience Revisited; Routledge: London, UK, 2016. [Google Scholar]
- Falk, J.H.; Storksdieck, M.; Dierking, L.D. Exploring the Role of Free-Choice Learning in Public Understanding of Science. Sci. Educ. 2008, 92, 1059–1075. [Google Scholar]
- Wojciechowski, R.; Walczak, K.; White, M.; Cellary, W. Building virtual and augmented reality museum exhibitions. In Proceedings of the Ninth International Conference on 3D Web Technology, Monterey, CA, USA, 5–8 April 2024; pp. 135–144. [Google Scholar]
- Bitgood, S. Social Design in Museums: The Psychology of Visitor Studies; MuseumsEtc: Edinburgh, UK, 2011; Volume 1. [Google Scholar]
- Leinhardt, G.; Crowley, K.; Knutson, K. Learning Conversations in Museums; Lawrence Erlbaum Associates: Mahwah, NJ, USA, 2002. [Google Scholar]
- Hooper-Greenhill, E. Studying Visitors. In A Companion to Museum Studies; Macdonald, S., Ed.; Blackwell: Hoboken, NJ, USA, 2006; pp. 362–376. [Google Scholar]
- Olesen, A.R.; Holdgaard, N. Why Play in Museums? A Review of the Outcomes of Playful Museum Initiatives. J. Mus. Educ. 2024, 1–12. [Google Scholar] [CrossRef]
- Serrell, B. Exhibit Labels: An Interpretive Approach, 2nd ed.; Rowman & Littlefield: Lanham, MD, USA, 2015. [Google Scholar]
- Chiozzi, G.; Andreotii, L. Behaviour vs. Time: Understanding How Visitors Utilise the Milan Natural History Museum. Curator 2001, 44, 153–165. [Google Scholar] [CrossRef]
- Bitgood, S.; Shettel, H.H. An overview of visitor studies. J. Mus. Educ. 1996, 21, 6–10. [Google Scholar] [CrossRef]
- Serrell, B. Paying Attention: The Duration and Allocation of Visitors’ Time in Museum Exhibitions. Curator Mus. J. 1997, 40, 108–125. [Google Scholar] [CrossRef]
- Crane, V. (Ed.) . Informal Science Learning: What the Research Says About Television, Science Museums, and Community-Based Projects; Research Communications Ltd.: Dedham, MA, USA, 1994. [Google Scholar]
- Melton, A. Problems of Installation in Museums of Art; AAM Monograph, New Series No. 14; American Association of Museums: Washington, DC, USA, 1935. [Google Scholar]
- Melton, A. Distribution of Attention in Galleries in a Museum of Science and Industry. Mus. News 1936, 14, 6–8. [Google Scholar]
- Bitgood, S.C.; Loomis, R.J. Environmental Design and Evaluation in Museums. Environ. Behav. 1993, 25, 683–697. [Google Scholar] [CrossRef]
- Kelly, L.; Gordon, P. Developing a community of practice: Museums and reconciliation in Australia. In Museums, Society, Inequality; Sandell, R., Ed.; Routledge: London, UK, 2002; pp. 153–174. [Google Scholar]
- Bitgood, S.; Patterson, D.; Benefield, A. Exhibit Design and Visitor Behavior: Empirical Relationships. Environ. Behav. 1998, 20, 474–491. [Google Scholar] [CrossRef]
- Yalowitz, S.; Bronnenkant, K. Tracking and Timing: Unlocking Visitor Behavior. Visit. Stud. 2009, 12, 47–64. [Google Scholar] [CrossRef]
- Australian Museum Audience Research Centre. Visitors to the Australian Museum Use Social Media. 2010. Available online: https://australian.museum/blog-archive/museullaneous/visitors-to-the-australian-museum-use-social-media/ (accessed on 10 February 2025).
- Loomis, R.J. Museum Visitor Evaluation: New Tool for Management; American Association for State and Local History: Nashville, TN, USA, 1987. [Google Scholar]
- Bishop, K.; Marshall, N.; Rahmat, H.; Thompson, S.; Steinmetz-Weiss, C.; Corkery, L.; Tietz, C.; Park, M. Behavior Mapping and Its Application in Smart Social Spaces. Encyclopedia 2024, 4, 171–185. [Google Scholar] [CrossRef]
- Kim, H.; Lee, S. Optimizing Museum Layout Using Visitor Tracking Data. J. Mus. Manag. Curatorship 2020, 35, 150–165. [Google Scholar]
- Falk, J.H.; Dierking, L.D. The Museum Experience: Enduring Concepts, Revised Edition; Left Coast Press: Walnut Creek, CA, USA, 2019. [Google Scholar]
- Lee, J.; Park, M.; Choi, Y. Enhancing Visitor Engagement through Real-Time Tracking and Data Analytics. Mus. Stud. J. 2021, 45, 220–235. [Google Scholar]
- Smith, A.; Jones, B. Data-Driven Design: Utilizing Visitor Behavior Insights to Improve Museum Exhibits. Int. J. Cult. Policy 2022, 28, 75–89. [Google Scholar]
- Bollo, A.; Pozzolo, L. Analysis of Visitor Behaviour Inside the Museum: An Empirical Study. 2005. Available online: http://neumann.hec.ca/aimac2005/PDF_Text/BolloA_DalPozzoloL.pdf (accessed on 10 February 2025).
- Bitgood, S. An Analysis of Visitor Circulation: Movement Patterns and the General Value Principle. Curator Mus. J. 2006, 49, 463–475. [Google Scholar] [CrossRef]
- Hooper-Greenhill, E. Museums and the Interpretation of Visual Culture; Routledge: London, UK, 2000. [Google Scholar]
- Tzortzi, K. Museum Space: Where Architecture Meets Museology; Routledge: London, UK, 2014. [Google Scholar]
- Ferguson, M.; Walby, K.; Piché, J. Tour Guide Styless and Penal History Museums in Canada. Int. J. Tour. Res. 2016, 18, 477–485. [Google Scholar] [CrossRef]
- Hood, M.G. Staying away: Why people choose not to visit msuseums. Mus. News 1983, 61, 50–57. [Google Scholar]
- Serrell, B. Exhibit Labels: An Interpretive Approach; Rowman & Littlefield: Lanham, MD, USA, 1996. [Google Scholar]
- Roppola, T. Designing for the Museum Visitor Experience; Routledge: London, UK, 2012. [Google Scholar]
Disclaimer/Publisher’s Note: The statements, opinions and data contained in all publications are solely those of the individual author(s) and contributor(s) and not of MDPI and/or the editor(s). MDPI and/or the editor(s) disclaim responsibility for any injury to people or property resulting from any ideas, methods, instructions or products referred to in the content. |
© 2025 by the authors. Licensee MDPI, Basel, Switzerland. This article is an open access article distributed under the terms and conditions of the Creative Commons Attribution (CC BY) license (https://creativecommons.org/licenses/by/4.0/).