Controlling and Limiting Infection Risk, Thermal Discomfort, and Low Indoor Air Quality in a Classroom through Natural Ventilation Controlled by Smart Windows
Abstract
1. Introduction
2. Materials and Methods
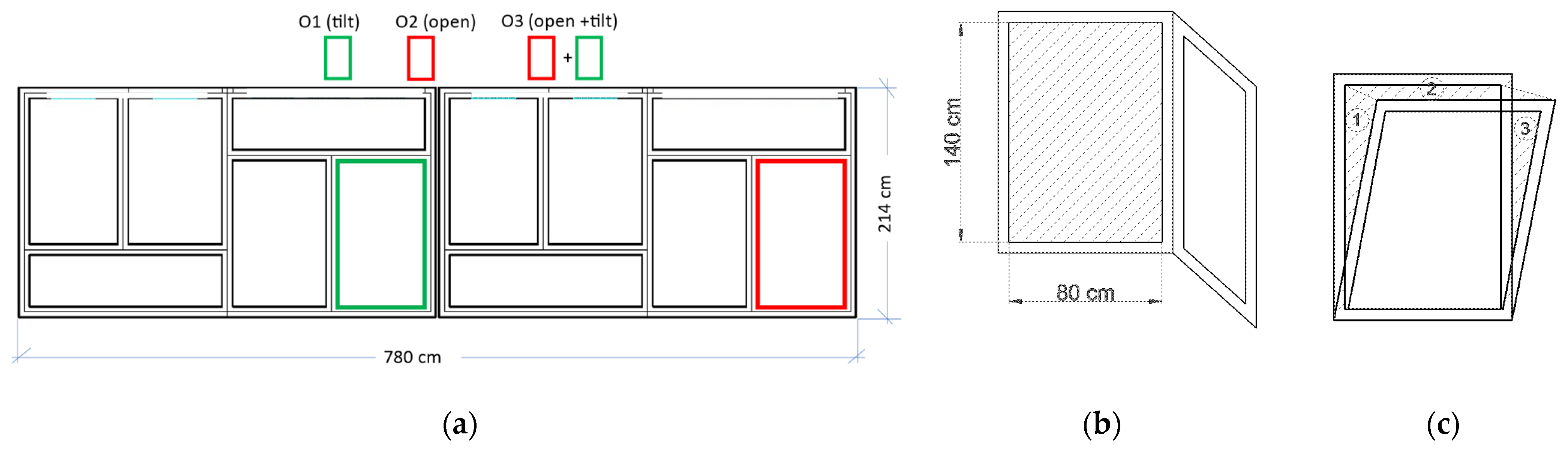
2.1. Research Object
2.2. Software and Simulation Algorithm

- Part I (connected with CO2 concentration in classroom): the window was opened if the limit value of CO2 concentration in the room was exceeded (PPM_o—optimized value). The type of window opening depended on the outside temperature (Tout). At low external temperatures, the window was only tilted (O1), and at high temperatures, one window was tilted and the other was opened (O3); for temperatures between low and high, option 2 was used. The external temperature range for window openings was optimized (TOut_o1, dTOut_o1). The summary of controller operation in part 1 is shown in Table 1.
- Part II (connected with indoor temperature). This part was used to limit overheating of the classroom. The setting of the windows depended on the indoor temperature in the classroom (Tin) and the outdoor temperature (Tout). The operation diagram is shown in Table 2 (optimized values are the ranges of outdoor temperatures (TOut_o2, dTOut_o2) and the corresponding indoor temperature limits (Tin2_o, Tin2_o, Tin2_o) at which the window is opened).
- (1)
- Thermal comfort (Hcomfort):
- (2)
- CO2 concentration (HCO2)—number of hours with conditions within category IV: PPM > 1200, i.e., indoor concentration increased by 800 ppm above outdoor CO2 concentration of 400 ppm.
- (3)
- Infection risk (HR0)—number of hours with bad conditions: Reproduction number R0 > 1 (see Section 2.6).
2.3. Thermal Model
2.4. Air and Contaminant Flows Model
- Powerlaw Model—One-Way Flow model [48] was adopted for closed windows. The tightness of windows and doors is described by Equation (2):
- −
- For windows, a = 0.1 m3/(m∙h∙Pa0.67), n = 0.67;
- −
- For doors, a = 2.8 m3/(m∙h∙Pa0.5), n = 0.5; the door was closed all the time.
- Tilt Windows and Half-open Doors: Single Opening–Two-Way Flow model [48] was adopted for tilt and open windows. Contrary to the Powerlaw model, this takes into account the flow in two directions in one simulation time step. For the tilt window, the equivalent area of the opening was calculated from the equations given in the article by Pinto et al. [42].
- Gravitational Chimney: Darcy-Colebrook Resistance Model was assumed for chimneys [40]. The gravity chimneys were assumed as brick ones with dimensions of 27 × 14 cm, a roughness of 3 mm, and the sum of local loss coefficients of 3.4. The chimneys were extended above the roof to a height of 1.5 m. According to ASHRAE [3], it was assumed that each person staying at school emits 3.82 × 10−8 m3/(s∙W) of carbon dioxide. The concentration of carbon dioxide in the outdoor air was set constant at 400 ppm.
2.5. Air Cleaner
2.6. Infection Risk Calculation
2.7. Selected Cases
3. Results
3.1. Optimal Controller Operation
3.2. Air Quality
3.3. Thermal Environment
3.4. Infection Risk
4. Discussion
4.1. Indoor Environment Quality Optimization
4.2. Infection Risk Optimization
4.3. Energy Analyses
5. Conclusions
- The regular opening of windows only during breaks does not ensure acceptable environment quality in the classroom—the thermal environment is low for more than 45% of time and air quality for more than 80%.
- Smart windows with controllers substantially improve thermal comfort and increase air change rate; thus, air quality is also improved, but the risk of infection is reduced only slightly. The introduction of the “infection risk” objective to controller optimization (Case 3) has very little effect on reducing the probability of infection risk.
- The inflow of cool air through an open window causes a significant increase in the heating power in the rooms, and in periods of low external temperature, it can cause a local decrease in the indoor temperature in the rooms (in this study, even below 14 °C).
- The frequent opening of windows during a day significantly increases heating demand (in this study, heating demand increased 3 times compared to the case when windows are only opened during school breaks). Therefore, mechanical ventilation is necessary to ensure a constant air exchange, which, at the same time, allows the use of heat recovery from the air removed from the room; however, the introduction of such a system is problematic in existing schools and requires large investments.
- In order to reduce infection risk substantially, wearing masks and operating effective air cleaners are necessary (these applications can decrease the time with high infection risk to 1.6%).
- Decreasing the number of students in the classroom, as it was expected, helps to further decrease the risk of infection (in this study, the time with high infection risk decreases to 4.2%).
- The results show that classrooms that possess windows with optimized controllers by indoor environment and infection risk functions, along with air cleaners and masks for students, are able to control air quality, thermal comfort, and infection risk.
6. Limitations and Future Works
- Considering that the present study was limited to only one climate and one typical school, it will be interesting to study the controller performance in different climates and compare the results.
- The expansion of controller parameters and the optimization of functions, especially those that would be affected by window opening, can be advantageous in the future. Energy demand and other indoor air pollutants such as particulate matter (PM) are the major influential issues involved with opening windows.
- The presented analysis concerned the effect of controller operation on energy demand, but the economic issues were not addressed.
- As the model considered the classroom with fully mixed indoor air to use the calculation for quanta concentration, an experimental study with local measurement is recommended to investigate conditions in the real state.
Author Contributions
Funding
Institutional Review Board Statement
Informed Consent Statement
Data Availability Statement
Acknowledgments
Conflicts of Interest
References
- Šujanová, P.; Rychtáriková, M.; Sotto Mayor, T.; Hyder, A. A Healthy, Energy-Efficient and Comfortable Indoor Environment, a Review. Energies 2019, 12, 1414. [Google Scholar] [CrossRef]
- EU Standard EN 16798-1:2019; Energy Performance of Buildings—Ventilation for Buildings—Part 1: Indoor Environmental Input Parameters for Design and Assessment of Energy Performance of Buildings Addressing Indoor Air Quality, Thermal Environment, Lighting and Acoustics—Module M1-6. European Committee for Standardization: Brussels, Belgium, 2019.
- ASHRAE. ASHRAE Standard 62-2001; Ventilation for Acceptable Indoor Air Quality Atlanta. American Society of Heating, Refrigerating, and Air Conditioning Engineers, Inc.: Atlanta, Ga, USA, 2001. [Google Scholar]
- Srivastava, S.; Khokhar, F.; Madhav, A.; Pembroke, B.; Shetty, V.; Mutreja, A. COVID-19 Lessons for Climate Change and Sustainable Health. Energies 2021, 14, 5938. [Google Scholar] [CrossRef]
- Allam, M.; Cai, S.; Ganesh, S.; Venkatesan, M.; Doodhwala, S.; Song, Z.; Hu, T.; Kumar, A.; Heit, J.; Study Group, C.; et al. COVID-19 Diagnostics, Tools, and Prevention. Diagnostics 2020, 10, 409. [Google Scholar] [CrossRef]
- Lewis, D. Is the Coronavirus Airborne? Experts Can’t Agree. Nature 2020, 580, 175. [Google Scholar] [CrossRef] [PubMed]
- Gralton, J.; Tovey, E.R.; McLaws, M.-L.; Rawlinson, W.D. Respiratory Virus RNA Is Detectable in Airborne and Droplet Particles: Viral RNA in Airborne and Droplet Particles. J. Med. Virol. 2013, 85, 2151–2159. [Google Scholar] [CrossRef]
- Santarpia, J.L.; Herrera, V.L.; Rivera, D.N.; Ratnesar-Shumate, S.; Reid, S.P.; Ackerman, D.N.; Denton, P.W.; Martens, J.W.S.; Fang, Y.; Conoan, N.; et al. The size and culturability of patient-generated SARS-CoV-2 aerosol. J. Expo. Sci. Environ. Epidemiol. 2022, 32, 706–711. [Google Scholar] [CrossRef] [PubMed]
- Makison Booth, C.; Clayton, M.; Crook, B.; Gawn, J.M. Effectiveness of Surgical Masks against Influenza Bioaerosols. J. Hosp. Infect. 2013, 84, 22–26. [Google Scholar] [CrossRef]
- O’Dowd, K.; Nair, K.M.; Forouzandeh, P.; Mathew, S.; Grant, J.; Moran, R.; Bartlett, J.; Bird, J.; Pillai, S.C. Face Masks and Respirators in the Fight Against the COVID-19 Pandemic: A Review of Current Materials, Advances and Future Perspectives. Materials 2020, 13, 3363. [Google Scholar] [CrossRef]
- Domínguez-Amarillo, S.; Fernández-Agüera, J.; Cesteros-García, S.; González-Lezcano, R.A. Bad Air Can Also Kill: Residential Indoor Air Quality and Pollutant Exposure Risk during the COVID-19 Crisis. Int. J. Environ. Res. Public. Health 2020, 17, 7183. [Google Scholar] [CrossRef]
- Zhao, Y.; Sun, H.; Tu, D. Effect of Mechanical Ventilation and Natural Ventilation on Indoor Climates in Urumqi Residential Buildings. Build. Environ. 2018, 144, 108–118. [Google Scholar] [CrossRef]
- Jo, S.; Hong, J.; Lee, S.-E.; Ki, M.; Choi, B.Y.; Sung, M. Airflow Analysis of Pyeongtaek St Mary’s Hospital during Hospitalization of the First Middle East Respiratory Syndrome Patient in Korea. R. Soc. Open Sci. 2019, 6, 181164. [Google Scholar] [CrossRef] [PubMed]
- Kulkarni, H.; Smith, C.M.; Lee, D.D.H.; Hirst, R.A.; Easton, A.J.; O’Callaghan, C. Evidence of Respiratory Syncytial Virus Spread by Aerosol. Time to Revisit Infection Control Strategies? Am. J. Respir. Crit. Care Med. 2016, 194, 308–316. [Google Scholar] [CrossRef] [PubMed]
- Rule, A.M.; Apau, O.; Ahrenholz, S.H.; Brueck, S.E.; Lindsley, W.G.; de Perio, M.A.; Noti, J.D.; Shaffer, R.E.; Rothman, R.; Grigorovitch, A.; et al. Healthcare Personnel Exposure in an Emergency Department during Influenza Season. PLoS ONE 2018, 13, E0203223. [Google Scholar] [CrossRef] [PubMed]
- Zhang, H.; Yang, D.; Tam, V.W.Y.; Tao, Y.; Zhang, G.; Setunge, S.; Shi, L. A Critical Review of Combined Natural Ventilation Techniques in Sustainable Buildings. Renew. Sustain. Energy Rev. 2021, 141, 110795. [Google Scholar] [CrossRef]
- World Health Organization. Roadmap to Improve and Ensure Good Indoor Ventilation in the Context of COVID-19; World Health Organization: Geneva, Switzerland, 2021; ISBN 978-92-4-002128-0. [Google Scholar]
- Schibuola, L.; Scarpa, M.; Tambani, C. Natural Ventilation Level Assessment in a School Building by CO2 Concentration Measures. Energy Procedia 2016, 101, 257–264. [Google Scholar] [CrossRef]
- Schibuola, L.; Tambani, C. Indoor Environmental Quality Classification of School Environments by Monitoring PM and CO2 Concentration Levels. Atmos. Pollut. Res. 2020, 11, 332–342. [Google Scholar] [CrossRef]
- Santamouris, M.; Synnefa, A.; Asssimakopoulos, M.; Livada, I.; Pavlou, K.; Papaglastra, M.; Gaitani, N.; Kolokotsa, D.; As-Simakopoulos, V. Experimental Investigation of the Air Flow and Indoor Carbon Dioxide Concentration in Classrooms with Intermittent Natural Ventilation. Energy Build. 2008, 40, 1833–1843. [Google Scholar] [CrossRef]
- European Commission Joint Research Centre; Institute for Health and Consumer Protection.; European Commission; Di-Rectorate General for Health and Consumers; Regional Environmental Centre for Central and Eastern Europe. SINPHONIE: Guidelines for Healthy Environments within European Schools; Publications Office: Luxembourg, 2014. [Google Scholar]
- Seppanen, O.A.; Fisk, W.J.; Mendell, M.J. Association of Ventilation Rates and CO2 Concentrations with Health And Other Responses in Commercial and Institutional Buildings. Indoor Air 1999, 9, 226–252. [Google Scholar] [CrossRef]
- Daum, D.; Haldi, F.; Morel, N. A Personalized Measure of Thermal Comfort for Building Controls. Build. Environ. 2011, 46, 3–11. [Google Scholar] [CrossRef]
- Clements-Croome, D.J.; Awbi, H.B.; Bakó-Biró, Z.; Kochhar, N.; Williams, M. Ventilation Rates in Schools. Build. Environ. 2008, 43, 362–367. [Google Scholar] [CrossRef]
- Coley, D.A.; Greeves, R.; Saxby, B.K. The Effect of Low Ventilation Rates on the Cognitive Function of a Primary School Class. Int. J. Vent. 2007, 6, 107–112. [Google Scholar] [CrossRef]
- Lu, X.; Pang, Z.; Fu, Y.; O’Neill, Z. The Nexus of the Indoor CO2 Concentration and Ventilation Demands Underlying CO2-Based Demand-Controlled Ventilation in Commercial Buildings: A Critical Review. Build. Environ. 2022, 218, 109116. [Google Scholar] [CrossRef]
- Cho, H.; Cabrera, D.; Sardy, S.; Kilchherr, R.; Yilmaz, S.; Patel, M.K. Evaluation of Performance of Energy Efficient Hybrid Ventilation System and Analysis of Occupants’ Behavior to Control Windows. Build. Environ. 2021, 188, 107434. [Google Scholar] [CrossRef]
- Stazi, F.; Naspi, F.; Ulpiani, G.; Di Perna, C. Indoor Air Quality and Thermal Comfort Optimization in Classrooms Developing an Automatic System for Windows Opening and Closing. Energy Build. 2017, 139, 732–746. [Google Scholar] [CrossRef]
- Grygierek, K.; Sarna, I. Impact of Passive Cooling on Thermal Comfort in a Single-Family Building for Current and Future Climate Conditions. Energies 2020, 13, 5332. [Google Scholar] [CrossRef]
- Sorgato, M.J.; Melo, A.P.; Lamberts, R. The Effect of Window Opening Ventilation Control on Residential Building Energy Consumption. Energy Build. 2016, 133, 1–13. [Google Scholar] [CrossRef]
- Psomas, T.; Fiorentini, M.; Kokogiannakis, G.; Heiselberg, P. Ventilative Cooling through Automated Window Opening Control Systems to Address Thermal Discomfort Risk during the Summer Period: Framework, Simulation and Parametric Analysis. Energy Build. 2017, 153, 18–30. [Google Scholar] [CrossRef]
- Tan, Z.; Deng, X. An Optimised Window Control Strategy for Naturally Ventilated Residential Buildings in Warm Climates. Sustain. Cities Soc. 2020, 57, 102118. [Google Scholar] [CrossRef]
- Wang, Y.; Cooper, E.; Tahmasebi, F.; Taylor, J.; Stamp, S.; Symonds, P.; Burman, E.; Mumovic, D. Improving Indoor Air Quality and Occupant Health through Smart Control of Windows and Portable Air Purifiers in Residential Buildings. Build. Serv. Eng. Res. Technol. 2022, 43, 571–588. [Google Scholar] [CrossRef]
- Lakhdari, K.; Sriti, L. Birgit Painter Parametric Optimization of Daylight, Thermal and Energy Performance of Middle School Classrooms, Case of Hot and Dry Regions. Build. Environ. 2021, 204, 108173. [Google Scholar] [CrossRef]
- Deblois, J.C.; Ndiaye, D. CFD-Assisted Design and Optimization of Solar Chimneys for Elementary School Classrooms. In Proceedings of the 14th Conference of International Building Performance Simulation Association, Hyderabad, India, 7–9 December 2015; pp. 818–825. [Google Scholar]
- Acosta-Acosta, D.F.; El-Rayes, K. Optimal Design of Classroom Spaces in Naturally-Ventilated Buildings to Maximize Occupant Satisfaction with Human Bioeffluents/Body Odor Levels. Build. Environ. 2020, 169, 106543. [Google Scholar] [CrossRef]
- Arjmandi, H.; Amini, R.; Khani, F.; Fallahpour, M. Minimizing the Respiratory Pathogen Transmission: Numerical Study and Multi-Objective Optimization of Ventilation Systems in a Classroom. Therm. Sci. Eng. Prog. 2022, 28, 101052. [Google Scholar] [CrossRef]
- Schibuola, L.; Tambani, C. High Energy Efficiency Ventilation to Limit COVID-19 Contagion in School Environments. Energy Build. 2021, 240, 110882. [Google Scholar] [CrossRef] [PubMed]
- Engineering Reference. EnergyPlusTM; Version 9.4.0; Documentation; US Department of Energy: Washington, DC, USA, 2020. [Google Scholar]
- Dols, W.S.; Polidoro, B.J. CONTAM User Guide and Program Documentation Version 3.4; National Institute of Standards and Technology: Gaithersburg, MD, USA, 2020. [Google Scholar]
- Typical Meteorological Years and Statistical Climatic Data for the Area of Poland for Energy Calculations of Buildings—Open Data. Available online: https://Dane.Gov.Pl/Pl/Dataset/797,Typowe-Lata-Meteorologiczne-i-Statystyczne-Dane-Klimatyczne-Dla-Obszaru-Polski-Do-Obliczen-Energetycznych-Budynkow (accessed on 28 November 2022).
- Pinto, M.; Viegas, J.; Freitas, V. Summer Cross Ventilation in Residential Buildings. In Proceedings of the Energy for Sustainability International Conference 2017 Designing Cities & Communities for the Future, Funchal, Portugal, 8–10 February 2017. [Google Scholar]
- EnergyPlus Python API 0.1 Documentation. Available online: https://nrel.github.io/EnergyPlus/api/python/ (accessed on 28 November 2022).
- Blank, J.; Deb, K. Pymoo: Multi-Objective Optimization in Python. IEEE Access 2020, 8, 89497–89509. [Google Scholar] [CrossRef]
- Goldberg, D. Genetic Algorithms in Search, Optimization and Machine Learning; Addison-Wesley Publishing Company, Inc.: Boston, MA, USA, 1989; ISBN 978-0201157673. [Google Scholar]
- Mitchell, R.; Kohler, C.; Curcija, D.; Zhu, L.; Vidanovic, S.; Czarnecki, S.; Arasteh, D. WINDOW 7 User Manual. Lawrence Berkeley National Laboratory, March 2019. Available online: https://Windows.Lbl.Gov/Tools/Window/Documentation (accessed on 14 December 2021).
- Pilkington. Available online: https://www.Pilkington.Com/Pl-Pl/Pl/Produkty/Funkcje-Szkla/Izolacja-Cieplna/Pilkington-Insulight-Therm (accessed on 15 December 2021).
- Dols, W.S.; Emmerich, S.J.; Polidoro, B.J. Coupling the Multizone Airflow and Contaminant Transport Software CONTAM with EnergyPlus Using Co-Simulation. Build. Simul. 2016, 9, 469–479. [Google Scholar] [CrossRef]
- Polish Ministry of Infrastructure. Regulation of the Minister of Infrastructure of 12 April 2002 on the Technical Conditions That Should Be Met by Buildings and Their Location; Journal of Laws of the Republic of Poland No 75, Item. 690, (with Recast); Polish Ministry of Infrastructure: Warsaw, Poland, 2002. (In Polish) [Google Scholar]
- Fernández de Mera, I.G.; Granda, C.; Villanueva, F.; Sánchez-Sánchez, M.; Moraga-Fernández, A.; Gortázar, C.; de la Fuente, J. HEPA Filters of Portable Air Cleaners as a Tool for the Surveillance of SARS-CoV-2. Indoor Air 2022, 32, e13109. [Google Scholar] [CrossRef]
- Sze To, G.N.; Chao, C.Y.H. Review and Comparison between the Wells–Riley and Dose-Response Approaches to Risk Assessment of Infectious Respiratory Diseases. Indoor Air 2010, 20, 2–16. [Google Scholar] [CrossRef]
- Diapouli, E.; Chaloulakou, A.; Koutrakis, P. Estimating the Concentration of Indoor Particles of Outdoor Origin: A Review. J. Air Waste Manag. Assoc. 2013, 63, 1113–1129. [Google Scholar] [CrossRef]
- van Doremalen, N.; Bushmaker, T.; Morris, D.H.; Holbrook, M.G.; Gamble, A.; Williamson, B.N.; Tamin, A.; Harcourt, J.L.; Thornburg, N.J.; Gerber, S.I.; et al. Aerosol and Surface Stability of SARS-CoV-2 as Compared with SARS-CoV-1. N. Engl. J. Med. 2020, 382, 1564–1567. [Google Scholar] [CrossRef]
- Riley, E.C.; Murphy, G.; Riley, R.L. Airborne Spread of Measles In A Suburban Elementary School. Am. J. Epidemiol. 1978, 107, 421–432. [Google Scholar] [CrossRef]
- Gammaitoni, L. Using a Mathematical Model to Evaluate the Efficacy of TB Control Measures. Emerg. Infect. Dis. 1997, 3, 335–342. [Google Scholar] [CrossRef]
- Raja, I.A.; Nicol, J.F.; McCartney, K.J.; Humphreys, M.A. Thermal Comfort: Use of Controls in Naturally Ventilated Buildings. Energy Build. 2001, 33, 235–244. [Google Scholar] [CrossRef]
- Heebøll, A.; Wargocki, P.; Toftum, J. Window and Door Opening Behavior, Carbon Dioxide Concentration, Temperature, and Energy Use during the Heating Season in Classrooms with Different Ventilation Retrofits—ASHRAE RP1624. Sci. Technol. Built Environ. 2018, 24, 626–637. [Google Scholar] [CrossRef]
- Polish Standard PN-83/B-03430/Az3 2000; Ventilation in Dwellings and Public Utility Buildings. Polish Committee for Standardization: Warsaw, Poland, 2000. (In Polish)
- Howard, J.; Huang, A.; Li, Z.; Tufekci, Z.; Zdimal, V.; van der Westhuizen, H.-M.; von Delft, A.; Price, A.; Fridman, L.; Tang, L.-H.; et al. An Evidence Review of Face Masks against COVID-19. Proc. Natl. Acad. Sci. USA 2021, 118, e2014564118. [Google Scholar] [CrossRef]
- Morawska, L.; Allen, J.; Bahnfleth, W.; Bluyssen, P.M.; Boerstra, A.; Buonanno, G.; Cao, J.; Dancer, S.J.; Floto, A.; Franchimon, F.; et al. A Paradigm Shift to Combat Indoor Respiratory Infection. Science 2021, 372, 689–691. [Google Scholar] [CrossRef] [PubMed]
- Buising, K.L.; Schofield, R.; Irving, L.; Keywood, M.; Stevens, A.; Keogh, N.; Skidmore, G.; Wadlow, I.; Kevin, K.; Rismanchi, B.; et al. Use of Portable Air Cleaners to Reduce Aerosol Transmission on a Hospital Coronavirus Disease 2019 (COVID-19) Ward. Infect. Control Hosp. Epidemiol. 2022, 43, 987–992. [Google Scholar] [CrossRef] [PubMed]
- Duill, F.F.; Schulz, F.; Jain, A.; Krieger, L.; van Wachem, B.; Beyrau, F. The Impact of Large Mobile Air Purifiers on Aerosol Concentration in Classrooms and the Reduction of Airborne Transmission of SARS-CoV-2. Int. J. Environ. Res. Public. Health 2021, 18, 11523. [Google Scholar] [CrossRef] [PubMed]
- Popiołek, Z.; Ferdyn-Grygierek, J. Efficiency of Heating and Ventilation in School Buildings before and after Retrofitting. In Proceedings of the 3rd International Seminar Healthy Buildings, Sofia, Bulgaria, 18 November 2005. [Google Scholar]












| If PPM | and If TOut | Windows Opening Options |
|---|---|---|
| ≥PPM_o | <TOut_o1 | 01 |
| ≥TOut_o1 and < TOut_o1 + dTOut_o1 | 02 | |
| ≥TOut_o1 + dTOut_o1 | 03 |
| If TOut | If Tin ≥ 21 °C and If TOut < Tin and If Tin | Windows Opening Options |
|---|---|---|
| <TOut_o2 | ≥Tin1_o | 01 |
| ≥TOut_o2 and < TOut_o2 + dTOut_o2 | ≥Tin2_o | 02 |
| ≥TOut_o2 + dTOut_o2 | ≥Tin3_o | 03 |
| Case | Controller Basis | Number of People | Mask | Clean Air Delivery Rate by Air Cleaner (CADR, m3/h) |
|---|---|---|---|---|
| 1 | Opening window during breaks | 30 | No | – |
| 2 | Objective function: (1) Thermal comfort; (2) CO2 concentration. | 30 | No | – |
| 3 | Objective function: (1) Thermal comfort; (2) CO2 concentration; (3) Infection risk. | 30 | No | – |
| 4 | 30 | Yes | – | |
| 5 | 30 | Yes | 330 | |
| 6 | 30 | Yes | 2 × 330 | |
| 7 | 15 | Yes | – |
| Window State | Case 1 | Case 2 | Case 3 | Case 4 | Case 5 | Case 6 | Case 7 |
|---|---|---|---|---|---|---|---|
| Tilt | 0% | 29% | 31% | 30% | 30% | 30% | 30% |
| Open | 3% | 5% | 2% | 4% | 4% | 6% | 4% |
| Tilt and Open | 0% | 6% | 10% | 8% | 7% | 5% | 6% |
| Closed | 97% | 60% | 57% | 58% | 59% | 59% | 60% |
Disclaimer/Publisher’s Note: The statements, opinions and data contained in all publications are solely those of the individual author(s) and contributor(s) and not of MDPI and/or the editor(s). MDPI and/or the editor(s) disclaim responsibility for any injury to people or property resulting from any ideas, methods, instructions or products referred to in the content. |
© 2023 by the authors. Licensee MDPI, Basel, Switzerland. This article is an open access article distributed under the terms and conditions of the Creative Commons Attribution (CC BY) license (https://creativecommons.org/licenses/by/4.0/).
Share and Cite
Grygierek, K.; Nateghi, S.; Ferdyn-Grygierek, J.; Kaczmarczyk, J. Controlling and Limiting Infection Risk, Thermal Discomfort, and Low Indoor Air Quality in a Classroom through Natural Ventilation Controlled by Smart Windows. Energies 2023, 16, 592. https://doi.org/10.3390/en16020592
Grygierek K, Nateghi S, Ferdyn-Grygierek J, Kaczmarczyk J. Controlling and Limiting Infection Risk, Thermal Discomfort, and Low Indoor Air Quality in a Classroom through Natural Ventilation Controlled by Smart Windows. Energies. 2023; 16(2):592. https://doi.org/10.3390/en16020592
Chicago/Turabian StyleGrygierek, Krzysztof, Seyedkeivan Nateghi, Joanna Ferdyn-Grygierek, and Jan Kaczmarczyk. 2023. "Controlling and Limiting Infection Risk, Thermal Discomfort, and Low Indoor Air Quality in a Classroom through Natural Ventilation Controlled by Smart Windows" Energies 16, no. 2: 592. https://doi.org/10.3390/en16020592
APA StyleGrygierek, K., Nateghi, S., Ferdyn-Grygierek, J., & Kaczmarczyk, J. (2023). Controlling and Limiting Infection Risk, Thermal Discomfort, and Low Indoor Air Quality in a Classroom through Natural Ventilation Controlled by Smart Windows. Energies, 16(2), 592. https://doi.org/10.3390/en16020592

