Abstract
This study describes the step-by-step development of a simplified system which can be implemented in industrial facilities with the help of their own surplus of plastic waste, mainly packaging waste, to reach a level of energy autonomy or semi-autonomy. This waste is converted to about 57,500 L of synthetic pyrolysis oil, which can then be used to power industries, being fed into a Combined Heat and Power system. To achieve this goal, the design has hydrocarbon stability at elevated temperature and restricted oxygen exposure, so that they can be converted to new products. Pyrolysis is a key process which causes thermo-chemical changes—ignition and vaporization. The research outlines the complete process of creating a basic small-scale pyrolysis system which industrial facilities can use to generate energy from their plastic waste. The proposed unit processes 360 tons of plastic waste yearly to produce 160 tons of synthetic pyrolysis oil which enables the generation of 500 MWh of electricity and 60 MWh of heat. The total investment cost is estimated at EUR 41,000, with potential annual revenue of up to EUR 45,000 via net metering. The conceptual design proves both environmental and economic viability by providing a workable method for decentralized waste-to-energy solutions for Small and Medium-sized Enterprises.
1. Introduction
In recent decades, the production and use of plastic has significantly increased, resulting in a concerning increase in plastic waste. The situation has prompted initiatives to tackle this issue; however, a substantial amount of the aforementioned waste is present in aquatic areas, ranging from large plastic fragments to microplastics [1]. A notable issue arises with river pollution as plastic items do not only pollute the water but also worsen flooding potential by obstructing drainage systems [2]. This pollution greatly affects ecosystems and poses a threat to the diversity of plant and animal life.
Currently prevalent pollutants consist of microplastics. These are fragments that are smaller than 5 mm in diameter [3]. These minuscule particles infiltrate freshwater and marine environments and adversely affect organisms by becoming part of the food chain. It is anticipated that by the year 2040 the amount of waste polluting the oceans annually will triple to reach a total of 37 million tons [4].
Projections suggest that without intervention in waste management practices, by 2050, when global plastic waste is expected to reach 1 billion tons, humanity will be facing a volume of waste that exceeds the planets capacity to cope [5]. Given the gravity of the situation, humans are confronted with the task of developing waste disposal regulation solutions that are urgently needed [4]. Governments must collaborate with industries and individuals to enforce policies aimed at reducing plastic production and enhancing recycling efficiency while advocating for alternatives to single use plastics. Failing to act could result in environmental repercussions that may ultimately jeopardize ecosystems and human health in the long run.
Recycling is a commonly suggested manner of repurposing waste and mitigating its harm; nevertheless, it is not devoid of downsides, like the energy requirement and resources that could harm the environment instead of helping it thrive. In addition, it is not always economically viable to recycle mixed plastics. Other waste management methods, like pyrolysis, may offer solutions to these issues [6].
Pyrolysis and other related techniques, like liquefaction and gasification, have the ability to convert waste into fuels and chemicals while also producing energy [7]. These chemical processes neither greatly diminish landfill waste nor eliminate environmental impact, but they are known for their high material recovery rates. By incorporating these methods, industries can embrace circular economic approaches that enhance resource efficiency and prolong the lifespan of plastic goods.
The advantages of pyrolysis technology become evident when compared to gasification and liquefaction methods because it provides better performance for decentralized and small-scale applications [8]. The gasification process operates at elevated temperatures to produce syngases which require extensive purification before utilization [9]. The production of high-quality fuels through liquefaction requires high pressure and catalysts which increase operational complexity and cost [10]. The process of pyrolysis operates at moderate temperatures without oxygen and handles mixed plastic waste through basic reactor designs, which makes it suitable for modular industry-integrated systems [11]. In recent years, the progress that has been made in chemical recycling methods has greatly improved their effectiveness and ability to be scaled up [12]. These innovations play a significant role in dealing with the increasing plastic waste issue. Pyrolysis projects in areas such as Asia, Australia, and America are gaining popularity as they demonstrate a process that extracts energy from discarded materials [13,14]. These projects are not only aiding in the minimization of waste but also laying the groundwork for ecofriendly energy options by transforming waste into valuable fuels and chemicals.
Significant upfront expenses and infrastructure constraints, along with the need to maintain energy efficiency in large-scale operations, remain obstacles to overcome in adopting technologies today, despite these challenges indicating a positive step towards a circular economy [15]. Combining chemical recycling with waste management approaches has the potential to cut down significantly on waste while also producing renewable energy as a byproduct. This shift not only improves environmental sustainability but also creates economic advantages by opening new opportunities in recycled materials and alternative fuels markets. Further investigation and funding are required to overcome the obstacles hindering the adoption of these innovative solutions in various fields of study or application areas. While centralized systems are typically chosen for implementation purposes due to their convenience and efficiency features, their installation demands investment in large scale facilities and an extensive waste management infrastructure that is costly and lacks long-term environmental sustainability [16]. The process of transporting waste to processing facilities is intricate and results in greenhouse gas emissions. Moreover, establishing and maintaining pyrolysis facilities necessitates resources, making it challenging to implement in regions where the residential waste collection system is ineffective.
Although pyrolysis provides advantages for waste management, centralized systems may not be as sustainable for expanding operations. On the contrary, decentralized waste-to-energy systems have shown promising results in cost reduction and reduced environmental impact [17].
These more compact systems could provide flexibility and effectiveness for managing localized waste. Additionally, they could lower transportation expenses and environmental harm, making them an area worth exploring further. These systems seem to offer the opportunity for businesses to transform their waste into energy to run their activities as well as supply electricity to relevant companies and earn additional revenue using valuable federal protocols like net metering [18]. Nonetheless there is still a lack of in-depth investigation into customized solutions designed specifically for managing waste within different industries while also capitalizing on potential secondary revenue streams from these materials [19].
The literature contains similar initiatives. Uzosike et al. [3] investigated small-scale mechanical recycling systems and Vasileiadou and Tsioptsias [4] studied the combustion kinetics of plastic–lignite blends. Rathi et al. [6] studied the catalytic conversion of plastic waste into fuels. Certain pieces of research [6,7,13,20] have investigated centralized pyrolysis systems and their implementation in national energy policies. The majority of existing research investigates either large-scale facilities or theoretical models exclusively [5]. This research presents a complete operational framework for a decentralized pyrolysis-CHP (Combined Heat and Power) unit designed for SMEs (Small and Medium-sized Enterprises) that incorporates actual techno-economic data and modular system design.
This study introduces a new approach through its techno-economic assessment of a decentralized small-scale pyrolysis system which targets SMEs that generate substantial plastic waste. The proposed system differs from previous research because it presents a modular solution which enables on-site energy recovery while reducing costs through Combined Heat and Power (CHP) integration. The system includes standard industrial components alongside detailed operational modelling and net metering potential, which previous studies have not fully explored. The approach represents a groundbreaking method to achieve localized industrial energy independence.
Previous research has introduced decentralized and mobile pyrolysis units, yet most of these systems lack complete CHP integration and do not present complete technical and economic implementation models [21]. This system transforms plastic waste into synthetic pyrolysis diesel-type fuel at the site while offering modular expansion capabilities and net metering functionality and complete breakdowns of mechanical parts and expenses. The complete and ready-to-implement design distinguishes this decentralized solution from others in the field. It emphasizes the concept of energy circularity by lowering the engine’s temperature and supplying thermal energy [22]. This model is especially well suited for companies that produce huge quantities of waste, like plastic film manufacturing [23]. Additionally, this method decreases reliance on external waste management services and reduces energy expenses, which makes it a feasible and environmentally friendly option.
2. Results
2.1. Related Cost Analysis and Techno-Economic Assessment
After giving a detailed description of the equipment, its technical specifications, configuration demands and estimates, the Capital Expenditure (CAPEX) on the apparatus is summarized in bellow. The equipment listed in Table 1 refers to a custom-made integrated system, which is not commercially available as a standardized product. The cost estimations were based on quotations obtained from local machine shops in Thessaloniki, Greece, under market conditions in 2025. These prices reflect the fabrication and assembly costs of the system components, tailored to the technical specifications outlined in this study.
Table 1.
Technical and monetary characteristics of electromechanical equipment.
Based on the present market conditions and prices of suppliers, the total equipment cost is estimated at EUR 35,000. Installation costs are also included at 12% of the equipment price, which is EUR 4.200. Furthermore, a contingency allowance for unforeseen expenses of about 5% adds another EUR 1750. Therefore, the total project cost is approximately EUR 41,000. The cost estimation is in line with the current market research and supplier pricing to ensure that it is accurate and relevant to the industry standards. The economic feasibility of the project is justified by the relatively small initial investment compared with the long-term advantages.
Energy consumption and operational costs, as well as maintenance, are expected to be viable. The design of the pyrolysis system and the related equipment aims for optimum performance. It is estimated that, over the operational life of the system, it will provide significant cost saving by reducing waste disposal charges while simultaneously producing energy that can be used. Furthermore, the modular design allows for future cost optimization through potential expansions. Thus, this system can be integrated into the existing industrial setups, and industries can use waste management solutions to reduce their costs and increase sustainability. The detailed cost breakdown and economic assessment of the project support the feasibility of its implementation in a variety of industrial applications.
2.1.1. Raw Material Cost
The synthetic pyrolysis oil from the pyrolysis process has about 80% of the energy of conventional diesel, or about 33.8 MJ/kg (Megajoule per kilogram). To maintain engine operation, 32 kg/h of synthetic pyrolysis oil were required, which is equivalent to 1053 MJ/h with an energy density of 33.8 MJ/kg. It is, therefore, established that, for a conversion efficiency of 45% of plastic feedstock to liquid concentrate, 71 kg/h of plastic waste is needed. This means that, during a year, with the assumption of an hourly working time of over 8000 h, 360,000 kg of raw material is needed every year. This quantity is ensured for one year of 240 working days, with 1.5 tons of plastic waste treatment per day.
The industrial plastic waste streams contain a combination of polymers, including polyethylene (PE), polypropylene (PP), polystyrene (PS), and smaller amounts of polyethylene terephthalate (PET) and polyvinyl chloride (PVC) [24]. The proposed pyrolysis system is optimized for polyolefin-rich mixtures (PE, PP), which are known to yield high quantities of oil with favourable combustion properties [25]. However, plastics such as PET and PVC may require pre-sorting due to their high oxygen and chlorine content, which can negatively affect oil quality and emissions [26]. A basic sorting stage is therefore recommended prior to processing, depending on the source stream composition.
Sometimes, plastic waste can even be obtained at a negative price, which is a clear economic advantage. Plastic waste can be obtained by industries from the municipal level, which saves the cost of raw materials and assists in the solution of the general problems of waste management. Nevertheless, the transport costs are still significant [27,28]. For a load of 20,000 kg, it costs on average of EUR 200, or about EUR 10/ton. The costs of acquiring plastic waste include loading and unloading costs, which total EUR 40/ton.
This paper also presents a clear picture of how transportation logistics relate to waste management. The total material cost for the year of operation is estimated to be EUR 14,400 based on the above calculations. When plastic waste is processed to produce synthetic pyrolysis oil, not only can industries stand to gain, but the environment will also be saved from the pollution that currently accompanies waste disposal. Moreover, the cost structure of this model shows that the use of pyrolysis systems for energy production is economically justified. Thus, industries can gain a two-fold advantage of reducing their production costs as well as contributing to environmental sustainability by using waste materials as raw materials. There is potential to increase the profitability of such operations by opening more sources of affordable plastic waste and improving transportation logistics.
The theoretical design of this study uses experimental results from previous studies to perform its calculations. The lab-scale experiments of Banapurmath et al. [23] have confirmed that mixed polyethylene and polypropylene waste yields 40–45% by weight of pyrolysis oil, andRathi et al. [6] and Demirbas [29] have reported similar calorific values of approximately 40 MJ/kg. This techno-economic model used experimental findings as reference points to establish realistic performance assumptions.
2.1.2. Energy Cost
For the electrical energy cost, 5 kW (Kilowatt) of power is allocated to machines that are used in the preparation of plastic waste and in the conversion of the plastic waste to energy production. Their use is dependent on the amount of unprocessed material to be treated. Such parameters are used in determining the power price of the suggested system, taking into consideration that the average electricity cost is 0.08 Euros/kWh (Kilowatt hour), as shown in Table 2. This guarantees that the costs of the unit’s operation are calculated and presented precisely and correctly.
Table 2.
Operational cost of the proposed unit.
2.1.3. Environmental Equivalent
Another important factor is the link between public health, environmental protection, and economic aspects. Thus, the advantages of optimizing waste management and decarbonizing industries should be emphasized. First, the environmental performance of the Combined Heat and Power (CHP) unit is evaluated before looking at its economic performance. Based on calculations made before this, using synthetic fuel in the cogeneration unit for an annual electricity production of 500 MWhel (Megawatt electrical) and 60 MWhth (Megawatt thermal) implies that at least 360 tons of plastic waste must be disposed of. Details of a cogeneration facility with a capacity of 100 kWel and 100 kWth are outlined, while 100 kWel can be generated and the 100 kWth is used to preheat water for domestic use. The facility therefore converts 360 tons of plastic waste into energy. If such a unit were not to be used, the lifecycle of the process would be based on fossil fuels, more precisely 47,660 kg of refined diesel (as shown in Table 3), which would have a significant environmental impact.
Table 3.
Equivalent amount of diesel fuel.
2.1.4. Energy Equivalent Cost
Net metering presents a great chance to get money back for manufacturing facilities from selling excess electricity back to the grid. For instance, as things stand today, according to Greek law, electricity produced from renewable energy sources can be injected into the power trade at a favourable value of EUR 90/MWh [28,30]. Considering that the facility generates 500 MWh of energy per year, feeding this much energy back into the grid may generate substantial annual revenue of EUR 500 × 90/MWh = 45,000 Euro. This helps to cover operating expenses and thus enhances the project’s financial sustainability.
The main challenge of this investment is the high cost of the raw materials, which is EUR 40/ton. However, this expense could be easily reduced if the local municipalities use their existing waste management structure to provide plastic waste. This would also help reduce the cost further to about EUR 20/ton if monetary incentives are given to waste collecting companies to transport them to the establishments. Such reductions would improve the financial viability of the project and therefore its feasibility for extension to other projects.
In addition, the integration of the municipal and private sectors into waste management can enhance the efficiency and effectiveness of operations. Lowered raw material costs would enable facilities to channel more resources into enhancing energy generation and process optimization.
Besides the economic benefits, this approach enhances sustainable waste management by keeping the plastic waste from being deposited in landfills and reducing the impact on the environment. In this way, the project can contribute to the global mission of fighting plastic pollution and supporting renewable energy by optimizing profitability and sustainability. The ability to earn money through net metering and cutting the cost of raw materials makes this project a perfect example of a sustainable industrial practice.
2.1.5. Sensitivity Analysis of Key Economic Parameters
A basic sensitivity analysis was conducted on three essential variables to evaluate the economic feasibility of the proposed system: plastic waste costs and electricity sale prices and oil yields from pyrolysis.
- The annual raw material cost increases to EUR 21,600 when the plastic waste cost rises from EUR 40/ton to EUR 60/ton, thus reducing the net benefit. The profit margin expands substantially when plastic waste is obtained at prices between EUR 0–20/ton through municipal partnerships [31].
- The annual revenue changes between EUR 45,000 and EUR 35,000 when the feed-in tariff varies between EUR 90/MWh and EUR 70/MWh. The annual revenue increases to EUR 55,000 when the feed-in tariff reaches EUR 110/MWh [32].
- The synthetic pyrolysis oil yield variation of ±10% affects both the oil volume and the energy output, which directly impacts the energy savings and saleable electricity production [5].
The combined effect of oil yield and electricity sale price on annual revenue is better represented through a heatmap, which demonstrates their influence on revenue generation. The revenue generation directly correlates with both oil yield and electricity sale price, as demonstrated in Figure 1. The system generates more synthetic fuel when oil yield increases, while better electricity prices boost the value of grid-fed energy. The visual demonstration shows how system efficiency optimization combined with advantageous energy tariffs become essential for maintaining economic viability.
Figure 1.
Sensitivity depiction relationship between oil yield, electricity price, and revenue. (The revenue squares represented by brighter colours indicate higher values, while darker colours represent lower revenue levels. The revenue value of each square corresponds to a particular yield and electricity price combination).
3. Materials and Methods
3.1. Theoretical Background
3.1.1. Pyrolysis Outcome—Products
Pyrolysis involves a process where hydrocarbons break down in an environment without oxygen to create solids and liquids as well as gases, with different characteristics and uses [33]. To get the best outcome from this process, attention is required to stoichiometry, since any deviations can lead to the production of byproducts [34]. The level of oxygen balance is determined by the λ index. When λ equals 1 it shows the quantity of oxygen required for oxidation. An index greater than 1 (λ > 1) shows an excess of oxygen that is commonly linked to procedures aimed at optimizing energy output. When λ is lower than one (λ < 1), it signifies a scarcity of oxygen, causing oxidation which results in the formation of syngas—a mixture comprising hydrogen and carbon monoxide along with minor quantities of carbon dioxide and methane. In situations without oxygen (λ = 0), the process is termed as pyrolysis [35]. Pyrolysis plays a role in transforming plastics into chemical substances and fuels. The adaptability of processes in controlling oxygen levels demonstrates their effectiveness, in both energy recovery and material reuse [36]. This flexibility helps promote eco-friendly waste management practices while also minimizing environmental harm by maximizing resource efficiency.
When plastics are broken down through the pyrolysis process into components, like carbon monoxide (CO), carbon dioxide (CO2), hydrogen (H2), methane (CH4), and various fumes, their composition can differ based on the plastic material used [37]. Moreover, these gases can be recycled as energy sources to enhance the sustainability of the process.
Pyrolysis produces substances consisting of hydrocarbons like alkanes and aromatics from plastic feedstocks that can be refined into top-quality fuels similar to conventional fossil fuels [37]. These upgraded fuels find purposes in industrial energy setups.
The process also produces a residue consisting mainly of carbon (C), along with substances that maintain stability throughout the pyrolysis process. This leftover material showcases the ability of the process to efficiently break down substances into their elements. Additionally, the carbon residue can be reused for purposes such as filtration, or as a base material for industries.
When plastic undergoes pyrolysis treatment at either atmospheric or higher-pressure levels, the heating process prompts a sequence of transformations, as the temperature increases.
When the temperature drops below 100 °C, substances that easily turn into vapor start to evaporate and heat-sensitive elements start breaking down. This early stage aids in eliminating moisture and components with low boiling points, getting the material ready for further processing [35].
When the temperature nears 100 °C in the material, the moisture evaporation rate speeds up significantly. Hydrated elements trapped within the crystal lattice structure are emancipated at elevated temperatures [35]. This phase demands a large quantity of energy due to the liquid phases energy level that remains constant until the process is completed. Additionally, a variety of elements in plastics such as plasticizers and specific additives can begin to soften or break down at temperatures both lower and greater than 100 °C based on the type of substance [38].
When plastic containing organic components is subjected to temperatures between 100 °C and 500 °C, the natural constituents begin to decompose. Polyethylene and polypropylene frequently found in plastic materials start breaking down from 300 °C to 500 °C, releasing hydrocarbons such as alkene and alkane. Additional substances like adjuvants and stabilizers used in plastics may degrade into gases and liquids. The remaining compounds that are not easily evaporated are typically carbon based and are commonly known as char or ash when the substance undergoes a process of charring [39].
A temperature range between 200 and 300 °C can trigger the self-ignition of carbon residue if oxygen is not completely eliminated due to the materials’ makeup variance. This reaction, which is observed during combustion, is not accompanied by a noticeable blaze. As ignition takes place, the temperature rises, resulting in remnants emitting a shine, releasing CO2 and CO gases into the atmosphere [37].
3.1.2. Slow Pyrolysis, at a Pace (Traditional)
Charcoal, with low humidity content and elevated carbon levels, has found use in industrial settings, particularly those involving high temperatures, such as the manufacturing of iron and steel through casting and forging processes. Producing charcoal wood is strategically arranged to ensure burning some parts while others remain unburned. The stacked wood is then coated with dirt to restrict air flow, leaving just enough openings for the right quantity of air for the wood igniting process. The pile is lit up and left to smoulder for several days in an environment without oxygen in order to create carbonized matter [35]. Subsequently following this organized procedure, the top layer of the ground is detached from the charcoal for packaging and utilization.
Pyrolysis of plastic materials is based on similar principles that were used for biomass, but the goals and results are different. A similar operational concept of heating in an oxygen-free environment applies to the slow pyrolysis of plastics. Both biomass pyrolysis and plastic pyrolysis need accurate supervision of oxygen input to avoid ignition and to obtain the desired product through the degradation of the fed material. Nevertheless, plastic pyrolysis results in the production of charcoal and pyrolysis oil and liquid hydrocarbons, as well as non-condensable gases [33].
When plastics are processed through pyrolysis at temperatures around 400 °C and heated gradually, it results in the production of both char and liquid fuels. This process bears resemblance to the pyrolysis of biomass, which is known for yielding large amounts of charcoal. By controlling the levels of oxygen and temperature, it is shown that pyrolysis, even though initially designed for managing biomass, can be modified to tackle issues in plastic waste management.
3.1.3. Conventional Pyrolysis Procedure
The traditional pyrolysis method typically completes in a few minutes. Carbon is traditionally derived from biomass through pyrolysis. It is now also being used for breaking down plastics into products. In the conventional approach, woody materials, like biomass, are heated to 500 °C. Similar temperatures are used in plastic pyrolysis, but the focus shifts to creating hydrous hydrocarbons like pyrolysis oil, along with gases that have not been condensed and solidified residue known as char [35].
In plastic pyrolysis processes, like in biomass pyrolysis, vapor phase components react further and produce byproducts like methane and hydrogen that can be fed back into the system to effectively sustain the process [39].
The approach to this process involves placing materials into the pyrolysis reactor and sealing it tightly before starting the operation to collect the end products later on, as depicted in the diagram. If the reactor is exposed to air from the atmosphere during operations at the same temperatures as those within, it may result in partial combustion as well as some plastic elements burning due to their high reactivity. To kickstart this process of pyrolysis, a heat source, like gas or electricity, can be used to heat up the reactor. During operation of the system, heat can be produced by the gases released during the pyrolysis process. This is akin to how biomass pyrolysis generates heat on its own [40].
The traditional approach involves the following steps: loading biomass into the pyrolysis furnace and securely sealing it before carrying out the processing and extracting the product. If the top component is revealed to the open-air atmosphere, it generally burns, to some degree, due to the high temperature materials and their rust. This entire procedure typically ranges from minutes to hours and falls under the category of conventional thermolysis, which distinctively varies from a slower method. Natural gas serves as a filler fuel to heat up the furnace externally. When the heating system’s door is firmly closed, other fuel supplies, like biomass, can be utilized to preserve the desired temperature [40].
If the charcoal ignites upon touching the air, it is gently extinguished with a mist of water. It is then deemed suitable for packaging and shipping to the market once it has cooled down. This approach mirrors pyrolysis in both timing and process yet varies in terms of the equipment used and timing applied.
Fast pyrolysis includes raising the temperature by up to 1000 °C per second to boost the creation of oil. This approach notably shortens the time for biomass to reach its decomposition temperature and usually takes 0.10 to 0.50 s.
The procedure involves showcasing products such as pyrolysis oils comprising 60 to 70% of the output, char ranging from 15 to 25%, and non-condensable gases making up 10 to 15% [38]. These gases are typically used to fuel the pyrolysis burner in a way that sustains the process internally. During the pyrolysis processes, like breaking down oil to make fractions [41], materials are transformed into gaseous and liquid products. Each type of hydrocarbon group has its own condensation temperature based on the specific characteristics of the materials in the vapor stage [29].
Rapid pyrolysis offers a remedy for the challenges corresponding to waste like car rubber wheels and plastic items, especially those that are derived from hydrocarbons. This specialized pyrolysis technique goes beyond the mere disposal of waste. It also yields positive outcomes, like hydrous combustibles (gasoline and oil), solid byproducts (coal), and reusable metals [26]. Henceforth, waste pyrolysis is deemed as efficient and could open up opportunities for ecofriendly circular economy ventures and job prospects that prioritize environmental sustainability and human well-being. During the pyrolysis process of used car tires, hydrocarbons existing in liquid and gas forms, along with steel reinforced in the tires, can be extracted. These extracted elements can then be utilized to produce a variety of items: 45–55% as hydrous combustibles, 10–15% as steel wire, 30–35% as carbon powder, and 8–10%, as petrol fuel. The transformation shows how effectively the procedure utilizes discarded materials. The output ratio is not fixed and varies depending on the configuration and preferred outcomes [42]. This method aids in overcoming the obstacles that arise in handling hydrocarbon sources, like plastics, while simultaneously offering an advantage in generating alternative fuels that are not reliant on petroleum [43].
The energy needed is not completely renewable. A fuel-like biomass is utilized to heat the materials once decomposition begins, and methane gas and other gaseous byproducts are reintroduced into the burner to avoid the consumption of fuels as energy is recycled in the pyrolysis treatment process.
In rapid pyrolysis, a quality synthetic pyrolysis oil is produced in contrast to older pyrolysis techniques. Operating at a temperature of 475 °C converts 40.93% of biomass into artificial oil with a net calorific value (GCV) of 16.92 MJ/kg and containing 28.02% of water; decreasing the water content improves the energy potential and performance of the oil overall.
After undergoing refining to decrease its moisture levels significantly, this artificial oil is capable of being utilized as diesel fuel that adheres to the specifications of the EN590 standard [44]. This progress showcases the practicality of incorporating fuels derived from pyrolysis into real-world scenarios. A thorough examination of the characteristics related to pyrolysis procedures is presented in Table 4. These findings offer a foundation for enhancing efficiency and expanding applications efficiently.
Table 4.
Pyrolysis categorized by their process parameters [45].
3.2. Scenario Definition
A new concept of a small-scale flexible design of the pyrolysis unit for SMEs (Small and Medium-sized Enterprises) is also presented in this study. The proposed unit is planned to be located in buildings which have production facilities and offices with a total area of (40 m × 12 m) 480 m2 and 60 m2, respectively. This system is aimed at using the facility’s own plastic waste, especially packaging waste, to achieve partial or complete energy independence, thereby reducing the need for external energy sources.
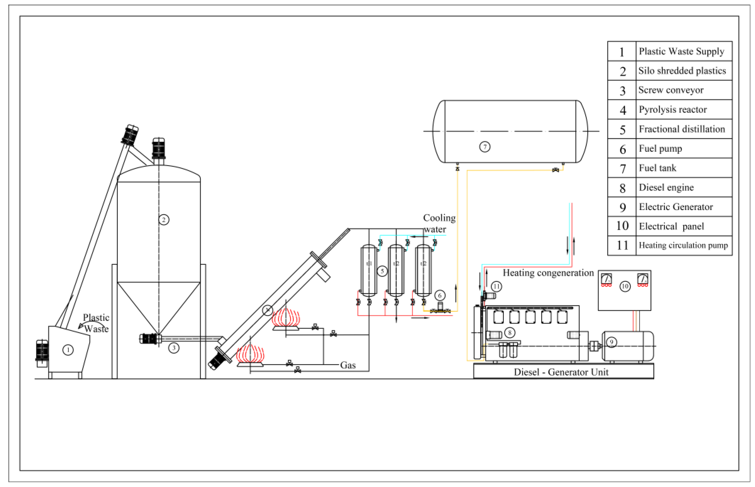
This design is especially suitable for industries that produce large amounts of plastic waste, such as packaging industries, product manufacturing industries, or distribution centres. On average, small enterprises require approximately 200 m2, while larger ones may need up to 1000 m2 [46]. The pyrolysis system allows these organizations to recycle plastic waste into artificial pyrolysis oil, which is further used as fuel in the Combined Heat and Power (CHP) system. A flow diagram of the concept is indicated in Figure 2.
Figure 2.
The proposed decentralized pyrolysis system features an industrial flow diagram. The system processes 360 tons of plastic waste yearly to produce synthetic pyrolysis oil which enables 500 MWh/year electricity generation and sufficient thermal energy for heating and hot water production and up to 57,000 L of diesel-equivalent fuel. The unit operates for 250 days/year and is designed for SMEs with a typical CapEx of EUR 60,000.
The CHP unit is composed of a hydro-cooled diesel producer with a total amplitude of 200 kW. This capacity is divided equally into 100 kW for electricity production and 100 kW for thermal energy to ensure maximum energy conversion with minimum wastage. This dual purpose shows the system’s capability to enhance the utilization of energy and decrease environmental effects.
The purpose of the waste is to produce energy; mostly, plastic is converted into synthetic pyrolysis oil using the cogeneration unit. The system is quite effective in synthesizing materials into energy-dense outputs. The details of the plastic derivatives can be seen in Table 5. From this data, it is possible to precisely determine the efficiency and expandability of the system.
Table 5.
Properties of typical plastic waste [45,47,48,49,50].
In addition, the small size and modular construction of the plant makes it easy to incorporate the plant into existing industrial buildings, which makes it even more applicable. The system also offers organizations the chance to embrace sustainable waste management strategies in line with global initiatives to fight plastic pollution. This approach has not only the potential to benefit the environment but also the economy by cutting down on energy expenditures and producing revenue from the production of excess energy.
Pyrolysis will convert the plastic waste to a synthetic pyrolysis oil that will either provide power in a conventional water-cooled diesel-electric generator or enable waste heat recovery through the engine. The system design assumes 8000 h/year of operation (see Section 2.1.3 for energy output analysis).
This study is based on using a reference case equal to 8000 h × 60 kWh = 500 Mwhel of electric energy generated for the network. The report also estimates how much thermal energy can be used to heat from October to April, operated at maximum power 66% of the time, 8 h/day, to be 95 MWhth, with a 100 kW thermal load. It is envisaged to substitute diesel fuel of a power density of 11.75 kwh/kg with an ignition effectiveness of 0.85 with a thermal output of 95 MWh produced by the lowering of the temperature of the diesel motor, resulting in a reduction of annual heating oil consumption by 9512 kg. The basic layout incorporation is depicted bellow in Figure 3.
Figure 3.
The configuration of the cogeneration unit for plastic waste pyrolysis and power generation. Cyan represents cold water, red indicates hot water, and yellow denotes pyrolysis oil flow.
3.2.1. Feeder of Raw Material and Shredder of Plastic Waste
First, the plastic is fed into a crusher which has a protection case to ensure safe operation. The material that has been shredded is then taken to a silo for storage using a disc perpendicular transporter which is powered by a 2 kW motor. This setup helps in the processing as well as in the handling of the waste in a safe manner. The silo acts as a buffer tank to hold the material before it is further processed. Furthermore, this system helps in decreasing the downtime and enhancing the overall productivity. To ensure that the system can run for 24 h, 2400 kWh of electric energy is required (24 h × 100 kW). With an efficiency of 80% of the engine, this means that the total energy input is 3000 kWh or 10,800 MJ. The system is dimensioned to handle up to 200 kg/h of plastic waste, matching the requirements calculated in Section 2.1.1.
3.2.2. Feed Screw of Crushed Raw Material in the Warehouse
The shredded plastic is transported to the pyrolysis reactor by the screw conveyor at a pace of 200 kg/h or 400 L/h. This information is essential for optimizing storage and feed rates, as outlined in Equation (1) [51].
where:
Raw plastic material = L/s = 400/3600 = 0.11 L/s = 0.00011 m3/s
L: Volume in liters
s: Time in seconds
m: Mass flow rate (kg/s),
p: Density of the material (kg/m³), assumed as 1000 kg/m³
(average for various plastics)Q: Volume flow rate (m3/s).
An Archimedean screw conveyor is chosen with specifications including an outer diameter of D = 0.063 m, a shaft diameter of d = 0.027 m, and a pitch equal to the exterior diameter. The transfer capacity is determined using Equation (3) [42,51]:
The process overcomes a height difference of 4 m. The circulatory force employed to the screw is estimated using Equation (4) [52]. The symbols used in the calculations are listed in Table 6, while Table 7 and Table 8 provide the specifications for the unit discussed in this paper.
Table 6.
Symbols for screw conveyor calculations.
Table 7.
Feed screw (of crushed raw material in the warehouse) specifications and design requirements.
Table 8.
Silo design specifications and requirements.
3.2.3. Daily Storage Silo
Crushed plastics are kept in a clad rack warehouse to ensure convenient handling and efficient management. The design specifications and requirements for the chosen silo are outlined in Table 9.
Table 9.
Feed screw (of shredded unprocessed material to the reactor) particulars for the suggested system.
3.2.4. Feed Screw of Crushed Raw Material to the Reactor
The screw conveyor acts as a transporter of plastic materials to the pyrolysis reactor at a pace of 188 kg/h by load or 375 L/h by volume. This guarantees the same rate of feed and hence the correct functioning and competence of the reactor. To calculate the volume and weight of the materials being fed into the reactor per second, these rates are converted into per second measurements. This calculation, stated in Equation (5) [22,51], is important in order to determine if the reactor is working efficiently. The accurate feed rates ensure that the pyrolysis process is optimized and maintain a constant material input.
Raw material = L/s = 375/3600 = 0.1 L/s = 0.0001 m3/s
For this process, an Archimedean screw conveyor is utilized with the following dimensions: The external diameter is D = 0.063 m, the shaft diameter is d = 0.027 m, and the pitch is equivalent to the exterior diameter. Using Equation (7) [51], this design determines the volume of material. The configuration of the screw is optimized to calculate the material volume, to be effective, and to handle that volume with steady flow and no likelihood of blockage.
Table 9 presents the design essentials for the feed screw, calculated using Equation (4), to transport crushed raw material into the reactor.
3.2.5. Pyrolysis Reactor
Pyrolysis reactors that use plastic materials can further be divided into two categories: ones with a fixed chamber and ones with a moving chamber. These reactors operate in two modes: continuous flow mode and batch mode. Out of the two processes mentioned above, a rotating chamber with continuous flow was employed for uniform heating and complete mixing of the feed. This design is both effective as well as robust. It can also work with a higher throughput and is therefore suitable for large-scale operations. The reactor is planned for everyday use and can manage up to 1440 kg within a single weekend. In the standard mode, it processes 150 kg/h and can handle up to 750 kg within a 5 h period. The thermal energy needed to decompose plastic waste is determined through various exothermic reactions. For simplicity, the entire thermal energy that is necessary is estimated using Equation (8) [53].
Q = m × C × ΔT
- Q denotes the thermal energy, measured in kJ/h.
- m refers to the material’s mass flow rate, which is 150 kg/h.
- C represents the material’s specific heat capacity, given as 2.4 kJ/kg°C.
- ΔT is the temperature difference, calculated by subtracting the ambient temperature (20 °C) from the vaporization temperature (470 °C).
The decomposition process needs an energy input of about 162,000 kJ/h, which is 26% of the energy content of the waste material, which is estimated at 6,225,000 kJ/h. This energy requirement shows the efficiency of the process in using the energy that is available in the waste. The reactor has a thermal power output of 45 kWth and is able to process materials at a pace of 0.042 kg/h. Each batch is in the reactor for a total of 0.33 h. The reactor must have a minimum capacity of 100 L to continue operating without stopping. The additional volume of the reactor with a diameter of 0.5 and a height of 0.6 m, which is estimated to be more than 120 L, is greater than the minimum required. The extra space enables the reactor to work without restriction, giving flexibility and increased efficiency to the decomposition process. The design of the reactor enables continuous operation and optimum performance when the conditions vary.
3.2.6. Gas Supply for Initiation
The fast pyrolysis process and the reactor both use a gaseous fuel source (biogas or propane/butane) to start the operation. The purpose is to guarantee that the system can reach the required conditions for pyrolysis efficiently. The necessary fuel is supplied from a 3000 L gas tank (630 kg). The gas source from the tank provides a consistent and reliable gas supply in order to have smooth operation. An ignition burner at the reactor is first activated. Initiation of the pyrolysis reaction is very important in this step. During the operation, gases generated during the pyrolysis are cooled with different temperature processes. This cooling separates components by their condensation points.
Some of these gases are converted to diesel or gasoline, giving the process value. These remaining non-liquefied gases are returned to the system to assist in fuelling the reactor, thus reducing waste and increasing energy efficiency. The gas supply is monitored by an installed pressure gauge for stable and efficient working. This provides real-time adjustment to maintain optimal performance. Gas from the pyrolysis process is used directly if the pressure level is adequate. But if the pressure goes down, then the system comes back to using gas from the storage tanks. This dual approach assures uninterrupted operation and reliable energy.
3.2.7. Fractional Cooling of Pyrolysis Gases
The gases produced during the pyrolysis procedure are channelled through pipelines to specialized cooling units for condensation. As these gases leave the reactor, the high-temperature environment causes them to decompose into hydrogen and carbon, which then recombine to form new chemical compounds. This transformation is carefully managed by maintaining precise temperature controls within the cooling units. The process ensures the creation of targeted compounds, which are essential for improving the overall efficiency and productivity of the pyrolysis system. Proper cooling not only maximizes the yield but also ensures the stability of the chemical products formed.
3.2.8. Synthetic Pyrolysis Oil Transfer Pump to Tank
The system includes a fuel tank sized for 48 h autonomy based on the oil yield presented in Section 2.1.1. To facilitate oil transfer, a positive displacement gear pump is employed, delivering a flow rate of about 50 L per hour while operating under a pressure of 5 m × 850 kg/m3 = 0.5 kg/cm2
The power requirement for the pump is determined using N = Q × P/η = 5 × (50 × 10−3/3600) × (0.5 × 105)/0.5, resulting in a total power of 10 W. The oil is transported through a feed pipe with a diameter of 0.013 m, ensuring smooth and efficient operation. The system is specifically designed for continuous use, minimizing energy consumption and reducing wear and tear on the components. Additionally, its robust configuration ensures long-term reliability and efficiency in transferring synthetic pyrolysis oil.
The proposed system includes a post-treatment refining step to address the known high viscosity challenge in raw synthetic pyrolysis oil, which causes pipeline clogging and difficult pumping and inefficient combustion [54]. The process begins with heavy tars and waxes removal through fractional condensation and filtration before producing a light synthetic pyrolysis fuel through blending and stabilization [55]. The final product shows lower viscosity and better fluidity, which enables safe long-term storage and efficient transportation and combustion [56]. The literature shows that appropriate refining techniques, including moisture removal and fractional distillation and desulfurization, enable synthetic pyrolysis oil from plastics to meet the fuel quality standards of EN590 for diesel fuel [3]. The system design includes potential post-processing capabilities to support fuel quality upgrades, although this study lacks experimental validation.
3.2.9. Pyrolysis Fuel Tank
The diesel motor consumes synthetic pyrolysis oil at a rate of 32 kg/h. For continuous 24 h operation, this totals 768 kg of synthetic pyrolysis oil. To meet this requirement, a daily consumption tank with a density of ρ = 0.8336 N/m3 and a 50% security limit is needed. The required tank volume is calculated as 768 × 1.5/0.8336 = 1355 L~1.5 m3, or approximately 1.5 m3. A cylindrical tank with a diameter of 0.95 m and a length of 2 m provides a calculated volume of V = 0.952 × 3.14 × 0.5/4 = 1.4 m3, excluding the bottom.
The elliptical bottom is made entirely from sheet steel, which is exactly 0.003 m wide, and the container’s weight is calculated as (0.95 × 3.14 × 2 + 1 × 2) × 0.003 × 7850 × 1.5 = 280 kg. To store synthetic pyrolysis oil for 48 h (e.g., Saturday and Sunday), 32 kg/h for 48 h amounts to 1536 kg. Considering a 50% volume increment, the required tank capacity is calculated as 1536 × 1.5/0.85 = 2710 L, resulting in the need for a 3000 L storage tank.
To meet operational needs, standard 3000 L tanks have been chosen. Two such tanks, with a combined weight of 492 × 2 = 984 kg ≈ 1000 kg, will be sufficient to provide a 90 h operational autonomy. These tanks ensure durability and efficiency for extended usage scenarios, making them suitable for the system’s requirements.
3.2.10. Water-Cooled Diesel Engine
The power-generation construction includes a hydro-cooled diesel motor paired with an electric generator. Table 10 outlines the key specifications of the diesel engine used in this setup.
Table 10.
Technical requirements of a typical branded diesel engine [45].
3.2.11. Electrical Generator
The electrical generator is designed to deliver 100 kW of power and run at 1500 rpm. This is equivalent to ω = π × n/30 = 157 rad/s. For this, the circulatory force to be supplied is calculated as N/ω = M = 100,000/157 = 637 N.m. The generator is a three-stage synchronous machine which produces 400 V 50 Hz. It is operated at power factor of 0.85, and the current is calculated as I = N/(√3 × Vπ × cosφ) = 100,000/(1.73 × 400 × 0.85) = 170 A [57]. These specifications are for the purpose of consistent performance and making it compatible with standard industrial applications. The associated electrical panel is divided into three basic parts: 1. Equipment Power Supply: It provides uninterruptible power supply to all the control and auxiliary circuits. 2. Automation Control: Controls the system’s management to achieve an efficient control of the equipment. 3. Surplus Power Distribution: It sends the surplus power back to the grid through the net metering system to ensure that there is no waste of energy. This setup is for the purpose of maximizing efficiency while also meeting the needs of energy recovery and grid integration systems.
3.2.12. Water Circulator for Radiator
The CHP system operates at 100 kW electric and 100 kW thermal capacity (see Section 2.1.3 for annual performance). This energy is destined for radiators for which the water inlet temperature is 90 °C (hot water in) and the water outlet temperature is 70 °C (water out). The heat carrier flow rate, i.e., the hot water flow rate to the radiators, is calculated as follows [40]: Where q—nominal heat load (in kW), η—expected efficiency of the heat exchanger (typically 0.8–0.9), p—density of water in around 1000 kg/m3, and vi and vo represent the inlet and outlet velocities of water, respectively, in m/s. From this, the volume flow rate is about 0.22 m3/h, which means the circumferential velocity of the water in the radiator’s circular channel should be around 0.75 m/s to fulfil the requirement of a 0.22 m3/h flow rate. A pump can easily achieve this velocity, ensuring that the water circulates effectively through the radiator.
where the heat flux is represented as Q = 100 kW, and the heat capacity of the material, specifically water, is c = 4.19 kJ/kgK.
The diameter of the circulator tube is calculated using Equation (10) [58]. This ensures optimal flow and heat transfer efficiency within the system. Additionally, proper sizing of the tube minimizes pressure loss and enhances overall system performance.
and thus D = 0.05 m.
Q = π × D2 × V/4
The pump’s pressure is influenced by its network configuration and cannot be calculated at this stage. However, it is estimated to be approximately P = 98.063 Pa or 10 water column meters (mWC) = ~1 × 105 N/m2.
Also, pump power will be N = Q × P/η = 0.0012 × 1 × 105/0.65 = 185 W [59].
3.2.13. Piping and Wiring
The piping and wiring arrangement relies upon the location of the apparatus, and very exact data has to be determined to calculate the cost. In the outlined study scenario, an approximate cost of EUR 2700 has been estimated.
4. Discussion
The proposed unit works at full capacity for 66% of the time and processes plastic waste for 8 h each day from mid-October to mid-April. It produces 500 MWel and 60 MWhth, with the discharged thermal energy being utilized for heating purposes. The energy potential of plastic waste is about 40,000 kJ/kg, and 675 kg of plastic waste is processed; thus, 80% energy recapture is achieved. Also, the thermal energy output of the diesel engine, i.e., 60 MWhth, is used to substitute fossil diesel with an energy composition of 11.75 kWh/kg and combustion competence of 0.85, which results in annual savings of 5100 kg of heating oil. The entire equipment’s value is EUR 35,000, with an operational power cost of EUR 770/year. The initial cost of establishing a pilot plant unit is approximately EUR 60,000. Running for 8000 h/year, the unit produces ~160 tons of synthetic pyrolysis oil, which provides energy equivalent to 123 tons of diesel obtained from fossil sources. The produced electrical energy provides energy demand to small-scale industries but also generates power which can be fed back to the grid. Furthermore, the system is environmentally friendly in the sense that it helps with waste management and promotes the use of energy from renewable sources. The economic benefits and environmental advantage make it attractive to invest in this project. The proposed system demonstrates promising techno-economic potential, yet multiple technical limitations need evaluation. The quality of synthetic pyrolysis oil produced by pyrolysis depends on feedstock composition, which demands pre-treatment or blending to achieve engine compatibility. The maintenance expenses will increase with time because of reactor and oil pipeline residue accumulation when feedstock sorting is inadequate [60]. The operational stability of CHP units requires periodic calibration and durable components, especially for small-enterprise modular installations [61]. The assessment of durability and system design optimization for industrial deployment requires pilot testing because of these factors. This way of thinking minimizes energy loss and reduces carbon emissions significantly, in line with sustainability targets.
The technical specifications and design requirements of the proposed Waste-to-Energy (WtE) technological solution intends to address two major problems: (1) management of non-reusable and non-recyclable plastic waste streams; (2) production of substantial energy to match growing requirements in various areas of the world. One of the most important problems of the present day is the effect of waste on the environment; the waste sector has to shift to an ‘intelligent’ supply chain. As an example, this paper has argued that, by emphasizing the role of different industries in environmental degradation and climate change, it is possible to encourage the adoption of measures that can mitigate these effects [49]. However, this approach presents a way to a profitable, sustainable path towards decarbonizing industries. A solution that is both cost-effective and effective is offered. In fact, this innovative energy solution may very likely be taken up first by smaller businesses that are particularly prone to adopting new technologies. This technology solves the main issue of plastic waste management through chemical processes that are similar to those employed in the processing of biomass. It is regarded as an environmentally friendly system since waste management is combined with the future plan to make industries carbon neutral. Waste to fuel is a beautiful and sustainable way of recycling natural resources.
EU Waste Framework Directive (2008/98/EC) and Renewable Energy Directive (2018/2001/EU) establish regulatory requirements for decentralized pyrolysis system deployment. Waste-to-energy solutions receive EU support when waste prevention and recycling maintain their priority status [62]. The Greek government regulates waste incineration activities through national transpositions of EU law which focus on emissions and environmental permitting (Joint Ministerial Decisions 22912/1117/2005 and 37411/2031/2003). The legal classification of pyrolysis as a recovery operation instead of waste incineration could simplify licensing procedures. This distinction enables SMEs to establish decentralized units through flexible permitting pathways [63].
The proposed system can integrate renewable energy sources through biomass feedstock to decrease initial heating requirements and minimize carbon emissions. Real-time monitoring of reactor parameters becomes possible through IoT-based control systems which enables digital monitoring for small-scale applications to achieve better efficiency and reliability.
5. Conclusions
This article summarizes the information available and demonstrates that the pyrolysis of plastic waste to produce synthetic pyrolysis oil that can be utilized in diesel engines is technologically possible and commercially beneficial. The research uses a conceptual model to provide valuable insights that will guide future prototype development and implementation. Here the strategy is to generate both electricity and heat with a reasonable investment and use already known ways of energy production. This system meets heating needs during cold seasons and brings in the added income of having their electricity consumed and sold into the grid, something that may attract industries that produce plastic waste in considerable quantities. Upcoming studies on the pyrolysis of plastic waste should focus on developing compact pyrolysis units, which are flexible and can be adapted to the requirements of local industry as well as community. Such units can potentially provide a solution for waste management, especially where there are very few recycling plants. Community acceptance is also said to be vital to technology implementation. If pyrolysis can be promoted as a technique not only for plastic waste reduction but also for producing renewable energy, that will offer more support to economic benefits. Furthermore, control over the disposal of plastic waste and establishing suitable WtE methods such as incineration or pyrolysis becomes imperative for each waste stream type, based on several factors (stakeholders, technology maturity, etc.) [64,65]. Finally, it must be pointed out that these installations worldwide are classified as waste incineration and have respective legal regulations associated with this situation. It is required to demonstrate that pyrolysis is a supporting activity to recycling in the waste management hierarchy in order to obtain regulatory approval. The process must be demonstrated to be a supporting one rather than a competing one. Supportive legislation that recognizes pyrolysis as a viable green option for unrecyclable plastics matters. Legislation can enhance recycling processes while addressing non-recyclable waste. It further highlights the environment benefits of combining recycling and pyrolysis towards a sustainable waste management practice.
Author Contributions
Conceptualization, C.V.; methodology, D.-A.K.; investigation, D.-A.K.; data curation, D.-A.K. writing—original draft preparation, D.-A.K.; writing—review and editing, A.V.M. and C.V.; supervision, C.V. All authors have read and agreed to the published version of the manuscript.
Funding
This research received no external funding.
Data Availability Statement
The data presented in this study are available on request from the corresponding author.
Conflicts of Interest
The authors declare no conflicts of interest.
References
- Tibbetts, J.H. Managing Marine Plastic Pollution: Policy Initiatives to Address Wayward Waste. Environ. Health Perspect. 2015, 123, A90–A93. [Google Scholar] [CrossRef] [PubMed]
- Haque, F.; Fan, C. Fate and Impacts of Microplastics in the Environment: Hydrosphere, Pedosphere, and Atmosphere. Environments 2023, 10, 70. [Google Scholar] [CrossRef]
- Uzosike, C.C.; Yee, L.H.; Padilla, R.V. Small-Scale Mechanical Recycling of Solid Thermoplastic Wastes: A Review of PET, PEs, and PP. Energies 2023, 16, 1406. [Google Scholar] [CrossRef]
- Vasileiadou, A.; Tsioptsias, C. Thermochemical and Kinetic Analysis of Combustion of Plastic Wastes and Their Blends with Lignite. Appl. Sci. 2023, 13, 8141. [Google Scholar] [CrossRef]
- Hasan, M.M.; Haque, R.; Jahirul, M.I.; Rasul, M.G. Pyrolysis of plastic waste for sustainable energy Recovery: Technological advancements and environmental impacts. Energy Convers. Manag. 2025, 326, 119511. [Google Scholar] [CrossRef]
- Rathi, B.S.; Kumar, P.S.; Rangasamy, G. A sustainable approach on thermal and catalytic conversion of waste plastics into fuel. Fuel 2023, 339, 126977. [Google Scholar] [CrossRef]
- Yaqoob, H.; Tan, E.S.; Ali, H.M.; Ong, H.C.; Jamil, M.A.; Farooq, M.U. Sustainable energy generation from plastic waste: An in-depth review of diesel engine application. Environ. Technol. Innov. 2024, 34, 103467. [Google Scholar] [CrossRef]
- Pytlar, T.S. Status of Existing Biomass Gasification and Pyrolysis Facilities in North America. In Proceedings of the 18th Annual North American Waste-to-Energy Conference, ASMEDC, Orlando, FL, USA, 11–13 May 2010; pp. 141–154. [Google Scholar] [CrossRef]
- Simone, M.; Barontini, F.; Nicolella, C.; Tognotti, L. Gasification of pelletized biomass in a pilot scale downdraft gasifier. Bioresour. Technol. 2012, 116, 403–412. [Google Scholar] [CrossRef]
- Prabhansu; Karmakar, M.K.; Chandra, P.; Chatterjee, P.K. A review on the fuel gas cleaning technologies in gasification process. J. Environ. Chem. Eng. 2015, 3, 689–702. [Google Scholar] [CrossRef]
- Li, S.; Cheng, S.; Cross, J.S. Homogeneous and Heterogeneous Catalysis Impact on Pyrolyzed Cellulose to Produce Bio-Oil. Catalysts 2020, 10, 178. [Google Scholar] [CrossRef]
- Koumpakis, D.-A.; Vlachokostas, C.; Tsakirakis, A.; Petridis, S. Evaluating Plastic Waste Management Strategies: Logistic Regression Insights on Pyrolysis vs. Recycling. Recycling 2025, 10, 33. [Google Scholar] [CrossRef]
- Cudjoe, D.; Brahim, T.; Zhu, B. Assessing the economic and ecological viability of generating electricity from oil derived from pyrolysis of plastic waste in China. Waste Manag. 2023, 168, 354–365. [Google Scholar] [CrossRef] [PubMed]
- Albor, G.; Mirkouei, A.; Struhs, E. Mixed Plastic Waste Conversion to Value-Added Products: Sustainability Assessment and a Case Study in Idaho. In Volume 5: 27th Design for Manufacturing and the Life Cycle Conference (DFMLC), Proceedings of the ASME 2022 International Design Engineering Technical Conferences and Computers and Information in Engineering Conference, St. Louis, MO, USA, 14–17 August 2022; American Society of Mechanical Engineers: New York, NY, USA, 2022. [Google Scholar] [CrossRef]
- Rezania, S.; Oryani, B.; Nasrollahi, V.R.; Darajeh, N.; Ghahroud, M.L.; Mehranzamir, K. Review on Waste-to-Energy Approaches toward a Circular Economy in Developed and Developing Countries. Processes 2023, 11, 2566. [Google Scholar] [CrossRef]
- Areeprasert, C.; Asingsamanunt, J.; Srisawat, S.; Kaharn, J.; Inseemeesak, B.; Phasee, P.; Khaobang, C.; Siwakosit, W.; Chiemchaisri, C. Municipal Plastic Waste Composition Study at Transfer Station of Bangkok and Possibility of its Energy Recovery by Pyrolysis. Energy Procedia 2017, 107, 222–226. [Google Scholar] [CrossRef]
- Wongkhorsub, C.; Chindaprasert, N. A Comparison of the Use of Pyrolysis Oils in Diesel Engine. Energy Power Eng. 2013, 5, 350–355. [Google Scholar] [CrossRef]
- Perkins, G. Underground coal gasification—Part I: Field demonstrations and process performance. Prog. Energy Combust. Sci. 2018, 67, 158–187. [Google Scholar] [CrossRef]
- Vlachokostas, C.; Michailidou, A.V.; Achillas, C. Multi-Criteria Decision Analysis towards promoting Waste-to-Energy Management Strategies: A critical review. Renew. Sustain. Energy Rev. 2021, 138, 110563. [Google Scholar] [CrossRef]
- Albor, G.; Mirkouei, A.; Struhs, E. Mixed Plastic Waste Conversion to Value-Added Products: Sustainability Assessment and a Case Study in Idaho. In Proceedings of the ASME 2022 International Design Engineering Technical Conferences and Computers and Information in Engineering Conference, St. Louis, MO, USA, 14–17 August 2022. [Google Scholar] [CrossRef]
- Salman, C.A.; Dahlquist, E.; Thorin, E.; Kyprianidis, K.; Avelin, A. Future directions for CHP plants using biomass and waste—Adding production of vehicle fuels. E3S Web Conf. 2019, 113, 01006. [Google Scholar] [CrossRef]
- Stefanakis, A.; Nikolaou, I. (Eds.) Circular Economy and Sustainability Volume 1: Management and Policy; Elsevier: Amsterdam, The Netherlands, 2022. [Google Scholar] [CrossRef]
- Banapurmath, N.R.; Gadwal, S.B.; Kamoji, M.A.; Rampure, P.B.; Khandal, S.V. Impact of Injection Timing on the Performance of Single Cylinder DI Diesel Engine Fueled with Solid Waste Converted Fuel. Eur. J. Sustain. Dev. Res. 2018, 2, 39. [Google Scholar] [CrossRef][Green Version]
- Al-Salem, S.M.; Lettieri, P.; Baeyens, J. The valorization of plastic solid waste (PSW) by primary to quaternary routes: From re-use to energy and chemicals. Prog. Energy Combust. Sci. 2010, 36, 103–129. [Google Scholar] [CrossRef]
- Lopez, E.C.R. Pyrolysis of Polyvinyl Chloride, Polypropylene, and Polystyrene: Current Research and Future Outlook. Eng. Proc. 2023, 56, 44. [Google Scholar] [CrossRef]
- Kabeyi, M.J.B.; Olanrewaju, O.A. Review and Design Overview of Plastic Waste-to-Pyrolysis Oil Conversion with Implications on the Energy Transition. J. Energy 2023, 2023, 1821129. [Google Scholar] [CrossRef]
- Vlachokostas, C. Closing the Loop Between Energy Production and Waste Management: A Conceptual Approach Towards Sustainable Development. Sustainability 2020, 12, 5995. [Google Scholar] [CrossRef]
- Erdogan, S. Recycling of Waste Plastics into Pyrolytic Fuels and Their Use in IC Engines. In Sustainable Mobility; IntechOpen: London, UK, 2020. [Google Scholar] [CrossRef]
- Demirbas, A. Pyrolysis of municipal plastic wastes for recovery of gasoline-range hydrocarbons. J. Anal. Appl. Pyrolysis 2004, 72, 97–102. [Google Scholar] [CrossRef]
- Bjelić, D.; Markić, D.N.; Prokić, D.; Malinović, B.N.; Panić, A.A. ‘Waste to energy’ as a driver towards a sustainable and circular energy future for the Balkan countries. Energy Sustain. Soc. 2024, 14, 3. [Google Scholar] [CrossRef]
- Hauschild, T.; Bergmann, C.P.; Basegio, T.M.; da Cruz Tarelho, L.A.; Kappler, G. Technic-economic analysis of pyrolysis to produce fuel oil. Rev. Tecnol. Sociedade 2022, 18, 263. [Google Scholar] [CrossRef]
- Tomić, T.; Slatina, I.; Schneider, D.R. Techno-economic review of pyrolysis and gasification plants for thermochemical recovery of plastic waste and economic viability assessment of small-scale implementation. Clean Technol. Environ. Policy 2024, 26, 171–195. [Google Scholar] [CrossRef]
- Kabeyi, M.J.B.; Olanrewaju, O.A. Fuel from plastic wastes for sustainable energy transition. In Proceedings of the 11th annual international conference on industrial engineering and operations management, Virtual, 7–11 March 2021. [Google Scholar]
- Heyne, S.; Liliedahl, T.; Marklund, M. Biomass Gasification—A Synthesis of Technical Barriers and Current Research Issues for Deployment at Large Scale; The Swedish Knowledge Centre for Renewable Transportation Fuels: Gothenburg, Sweden, 2013. [Google Scholar] [CrossRef]
- Knoef, H.A.M. Handbook Biomass Gasification. 2005. Available online: https://api.semanticscholar.org/CorpusID:133091728 (accessed on 22 April 2025).
- Marlair, G.; Cwiklinski, C.; Tewarson, A. An analysis of some practical methods for estimating heats of combustion in fire safety studies. In Proceedings of the 8th Conference Interflam 1999, Edinburgh, UK, 28 June–1 July 1999. [Google Scholar]
- Kabeyi, D. Performance analysis of diesel engine power plants for grid electricity supply. In Proceedings of the SAIIE31 Proceedings, Virtual, 5–7 October 2020. [Google Scholar]
- Roberts, D.G.; Badwal, S.P.S.; Wibberley, L.J.; Bhattacharya, S. Gasification, DICE, and direct carbon fuel cells for power, fuels, and chemicals production from low rank coals. In Low-Rank Coals for Power Generation, Fuel and Chemical Production; Elsevier: Amsterdam, The Netherlands, 2017; pp. 217–237. [Google Scholar] [CrossRef]
- Zupko, R.; Kolapkar, S.S.; Zinchik, S. Torrefied plastic-fiber fuel pellets as a replacement for fossil fuels—A case study life cycle assessment for Green Bay, Wisconsin, USA. Int. J. Life Cycle Assess. 2023, 28, 1316–1325. [Google Scholar] [CrossRef]
- Phuangpornpitak, N.; Tia, S. Opportunities and Challenges of Integrating Renewable Energy in Smart Grid System. Energy Procedia 2013, 34, 282–290. [Google Scholar] [CrossRef]
- Williams, E.A.; Williams, P.T. Analysis of products derived from the fast pyrolysis of plastic waste. J. Anal. Appl. Pyrolysis 1997, 40–41, 347–363. [Google Scholar] [CrossRef]
- Samolada, M.C.; Vasalos, I.A. A kinetic approach to the flash pyrolysis of biomass in a fluidized bed reactor. Fuel 1991, 70, 883–889. [Google Scholar] [CrossRef]
- Scheirs, J.; Kaminsky, W. (Eds.) Feedstock Recycling and Pyrolysis of Waste Plastic; Wiley: Hoboken, NJ, USA, 2006. [Google Scholar] [CrossRef]
- Benalcazar, P.; Malec, M.; Kaszyński, P.; Kamiński, J.; Saługa, P.W. Electricity Cost Savings in Energy-Intensive Companies: Optimization Framework and Case Study. Energies 2024, 17, 1307. [Google Scholar] [CrossRef]
- Koumpakis, D.-A.; Michailidou, A.V.; Vlachokostas, C.; Mertzanakis, C. Closing the Loop between Plastic Waste Management and Energy Cogeneration: An Innovative Design for a Flexible Pyrolysis Small-Scale Unit. Recycling 2024, 9, 92. [Google Scholar] [CrossRef]
- Kolokotroni, M.; Mylona, Z.; Evans, J.; Foster, A.; Liddiard, R. Supermarket Energy Use in the UK. Energy Procedia 2019, 161, 325–332. [Google Scholar] [CrossRef]
- Javed, N.; Muhammad, S.; Iram, S.; Ramay, M.W.; Jaffri, S.B.; Damak, M.; Fekete, G.; Varga, Z.; Székács, A.; Aleksza, L. Analysis of Fuel Alternative Products Obtained by the Pyrolysis of Diverse Types of Plastic Materials Isolated from a Dumpsite Origin in Pakistan. Polymers 2022, 15, 24. [Google Scholar] [CrossRef]
- Ajibola, A.A.; Omoleye, J.A.; Efeovbokhan, V.E. Catalytic cracking of polyethylene plastic waste using synthesised zeolite Y from Nigerian kaolin deposit. Appl. Petrochem. Res. 2018, 8, 211–217. [Google Scholar] [CrossRef]
- Olam, M. Mechanical and Thermal Properties of HDPE/PET Microplastics, Applications, and Impact on Environment and Life. In Advances and Challenges in Microplastics; IntechOpen: London, UK, 2023. [Google Scholar] [CrossRef]
- Antelava, A.; Jablonska, N.; Constantinou, A.; Manos, G.; Salaudeen, S.A.; Dutta, A.; Al-Salem, S.M. Energy Potential of Plastic Waste Valorization: A Short Comparative Assessment of Pyrolysis versus Gasification. Energy Fuels 2021, 35, 3558–3571. [Google Scholar] [CrossRef]
- Olanrewaju, T. Design and fabrication of a screw conveyor. Agric. Eng. Int. CIGR E-J. 2017, 19, 156–162. [Google Scholar]
- Hibbeler, R.C. Engineering Mechanics: Statics & Dynamics, 14th ed.; Pearson Education: London, UK, 2015. [Google Scholar]
- Serway, R.A.; Jewett, J.W. Physics for Scientists and Engineers with Modern Physics, 10th ed. Cengage Learning: Boston, MA, USA, 2018.
- de Guzman, L.C.; Armones, V.M.; Borja, M.V.B.; Gadot, S.J.G.; Mijares, D.L.D. Liquid product properties of pyrolyzed bamboo Saw-dusts. J. Appl. Phys. Sci. 2018, 4, 86–94. [Google Scholar] [CrossRef]
- Lopez, E.C.R. The Present and the Future of Polyethylene Pyrolysis. Eng. Proc. 2023, 37, 74. [Google Scholar] [CrossRef]
- Homayuni, F.; Hamidi, A.A.; Vatani, A. An Experimental Investigation of Viscosity Reduction for Pipeline Transportation of Heavy and Extra-Heavy Crude Oils. Pet Sci Technol. 2012, 30, 1946–1952. [Google Scholar] [CrossRef]
- Conejo, A.J.; Baringo, L. Power System Fundamentals: Balanced Three-Phase Circuits. In Power System Operations; Springer: Berlin/Heidelberg, Germany, 2018; pp. 17–54. [Google Scholar] [CrossRef]
- Aryan, Y.; Kumar, A.; Samadder, S.R. Environmental and economic assessment of waste collection and transportation using LCA: A case study. Environ. Res. 2023, 231, 17–24. [Google Scholar] [CrossRef] [PubMed]
- Munson, B.R.; Okiishi, T.H.; Huebsch, W.W.; Rothmayer, A.P. Fundamentals of Fluid Mechanics, 7th ed.; John Wiley & Sons: Hoboken, NJ, USA, 2013. [Google Scholar]
- Mikulski, M.; Ambrosewicz-Walacik, M.; Hunicz, J.; Nitkiewicz, S. Combustion engine applications of waste tyre pyrolytic oil. Prog. Energy Combust. Sci. 2021, 85, 100915. [Google Scholar] [CrossRef]
- Wheeley, C.; Mago, P.J. A Methodology to Conduct a Combined Heating and Power System Assessment and Feasibility Study for Industrial Manufacturing Facilities. In Volume 4: Energy Systems Analysis, Thermodynamics and Sustainability; Combustion Science and Engineering; Nanoengineering for Energy, Parts A and B, Proceedings in the ASME 2011 International Mechanical Engineering Congress and Exposition, Denver, Colorado, USA, 11–17 November 2011; ASMEDC: New York, NY, USA, 2011; pp. 631–639. [Google Scholar] [CrossRef]
- Kappler, G.; Hauschild, T.; da Cruz Tarelho, L.A.; Moraes, C.A.M. Waste to energy and materials through pyrolysis: A review. Rev. Tecnol. Sociedade 2022, 18, 281. [Google Scholar] [CrossRef]
- Volpi, M.P.C.; Silva, J.C.G.; Hornung, A.; Ouadi, M. Review of the Current State of Pyrolysis and Biochar Utilization in Europe: A Scientific Perspective. Clean Technol. 2024, 6, 152–175. [Google Scholar] [CrossRef]
- Mertzanakis, C.; Vlachokostas, C.; Toufexis, C.; Michailidou, A.V. Closing the Loop between Waste-to-Energy Technologies: A Holistic Assessment Based on Multiple Criteria. Energies 2024, 17, 2971. [Google Scholar] [CrossRef]
- Toufexis, C.; Makris, D.-O.; Vlachokostas, C.; Michailidou, A.V.; Mertzanakis, C.; Vachtsiavanou, A. Bridging the Gap between Biowaste and Biomethane Production: A Systematic Review Meta-Analysis Methodological Approach. Sustainability 2024, 16, 6433. [Google Scholar] [CrossRef]
Disclaimer/Publisher’s Note: The statements, opinions and data contained in all publications are solely those of the individual author(s) and contributor(s) and not of MDPI and/or the editor(s). MDPI and/or the editor(s) disclaim responsibility for any injury to people or property resulting from any ideas, methods, instructions or products referred to in the content. |
© 2025 by the authors. Licensee MDPI, Basel, Switzerland. This article is an open access article distributed under the terms and conditions of the Creative Commons Attribution (CC BY) license (https://creativecommons.org/licenses/by/4.0/).


