The Quantity and Quality of Flax and Hemp Fibers Obtained Using the Osmotic, Water-, and Dew-Retting Processes
Abstract
:1. Introduction
1.1. Mechanical Processing
- -
- Scutching—a braking and scutching turbine known as the Deporter turbine, which is still in use today;
- -
- Hackling to remove short fibers and other plant tissues, such as the shives;
- -
- Cottonization is the process of further dividing the fibers into elementary fibers, resulting in a thinning of the fibers. The resulting fibers are similar in length and spinning properties to cotton fibers.
1.2. Biological Methods
- -
- Retting the straw in the field, common name dew retting;
- -
- Water retting.
1.3. Chemical Degumming
- -
- To not disturb the structure and properties of the fibers—cellulose;
- -
- To preserve the waxes and fats responsible for the softness of the fibers and the pectin that binds the elementary fibers into bundles;
- -
- Destruction of the tissue connecting the phloem to the woody parts of the plant stalk;
- -
- Easy removal of the woody parts of the plant stalk from the phloem.
1.4. Physical Methods
2. Materials and Methods
2.1. Materials
2.2. Degumming Methods
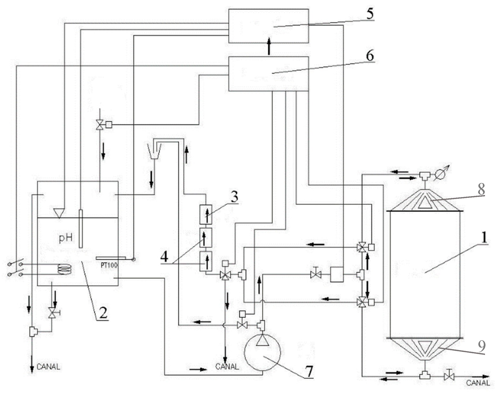
2.2.1. Osmotic Degumming
- Reactor—working tank, the upper and lower collectors of which were equipped with a 30 kHz ultrasonic generator;
- Reservoir—a reservoir for soft process water, equipped with a heater with temperature sensor, pH electrode, and water level sensor;
- A lamp type C UV source to prevent the development of retting bacteria during the process;
- A filtration unit for the closed cycle of the process liquid;
- A controller;
- An installation for steering and diagnostics for setting the parameters and online recording of the physical parameters;
- A pump for forcing the flow of the water and other hydraulic and control installations;
- An openable collector equipped with ultrasound;
- A permanent collector equipped with ultrasound.
2.2.2. Dew Retting
2.2.3. Water Retting
2.3. Mechanical Processing of Degummed Straw
- -
- Laboratory breaking machine—due to the thickness of the stalks, only the hemp straw was broken, built by Czech Flax Machinery (CFM) in the Czech Republic;
- -
- Laboratory turbine, built by Czech Flax Machinery (CFM) in the Czech Republic.
2.4. Test Methods
2.4.1. Straw Evaluation
2.4.2. Fibers Evaluation
- -
- The mass of extracted fibers (%) was tested using a gravimetric method. Fibers were mechanically extracted and weighed. The result is presented as the mass of fibers contained in 100 g dry weight of the raw straw sample (g/100 g).
- -
- Linear mass of the fiber (tex) test was performed with the use of the gravimetric method according to the Polish Standard PN-EN ISO 1973:2022-03 [47]. A 10 mm fibers section was cut off from the middle parts of the flax fibers and then formed into bundles containing 100 pieces of fibers. The measurement of the mass of separate bundles allowed for the determination of the mean linear mass of fibers. The test was carried out under ambient conditions.
- -
- Tenacity (cN/tex) was determined according to the Polish Standard PN-P-04676:1986 [48]. The tenacity was tested by breaking the fiber bundles of specific linear mass with an Automatic Tensile Tester—STATIMAT ME from TXTECHNO, DE (the distance between clamps was 3 mm).
- -
- Microscopic analyses—the micrograph images of longitudinal views and cross sections of flax fibers were made with a scanning electron microscope (SEM) using Hitachi S-3400N, manufactured by Hitachi, Ltd., Tokyo, Japan, in a high vacuum mode (a secondary electron detector SE). Fibers were sputtered with gold. A magnification of ×250, setting the table height to 20 mm, and an accelerating voltage of 20 kV were used to observe the characteristic features of the fibers’ surface.
- -
- Wax and fat content (%) was measured according to the Polish Standard no. BN-86/7501-10 [49]. The percentage content of wax and fat substances was determined by extracting them using an organic solvent (petroleum ether) in a Soxhlet extractor and weighing the residues after the vaporization of the solvent.
- -
- Lignin content (%) was determined according to the Polish Standard BN-86/7501-11 [50]. The lignin content was measured by dissolving cellulose, hemicellulose, and pectins with a mixture of concentrated sulphuric and orthophosphoric acids, followed by draining off the remaining insoluble lignin.
- -
- Pectin content (%) tests were conducted using a gravimetric method developed at INF&MP-NRI. The percent share of pectins was determined by dissolving them in ammonium citrate and then precipitating them from the solution with calcium chloride and by measuring the weight of the calcium pectinate precipitated from the solution.
- -
- Cellulose content (%) in flax and hemp fibers was measured according to the Polish Standard no. PN-P-50092:1992 [51]. The cellulose content was measured by dissolving lignins and other substances present in the fibers with a mixture of acetylacetone and dioxane, acidified with hydrochloric acid.
- -
- Hemicellulose content (%) in the flax end hemp fibers was determined according to the Polish Standard BN-77/7529-02 [52]. The hemicellulose content was measured by dissolving the hemicellulose present in the fibers using a 1% solution of sodium hydroxide, filtering off the residue after dissolution, drying it, and weighing it. Then, the hemicelluloses were calculated from the mass loss of the sample.
- -
- Fiber hygroscopicity (%) was measured under conditions of 65% and 100% relative air humidity, according to the PN-P-04635:1980 standard [53]. The hygroscopicity was determined as a quotient of the mass increase that the bast fibers undergo when placed for a specified time in the air with 65% and 100% relative humidity, respectively, and the mass of the fibers after drying.
- -
- Combined analysis TGA-FTIR—TGA. Thermogravimetric analysis (TGA) was performed using a TA Instruments Analyzer Q50 (TA Instruments, New Castle, DE, USA). A test sample (approximately 15 mg) was heated in the temperature range of 30 to 700 °C at a heating rate of 10 °C/min in a nitrogen atmosphere at a constant gas flow rate of 90 mL/min.
- -
- During the TGA study, the gases released were identified using Fourier Transform Infrared Spectroscopy (FTIR). The tests were performed on a TA Instruments iZ10 model, Thermo Fisher Scientific, Madison, WI, USA. The spectrum of the released gases contained 8 scans per second at a resolution of 4 cm−1 in the range of 600 to 4000 cm−1.
- -
- ATR-FTIR Analysis—Fourier transform infrared spectroscopy (FTIR) with an Attenuated Total Reflectance (ATR) attachment was performed with an iS10 model instrument (TA Instruments, New Castle, DE, USA). The spectrum of the fibers contained 8 scans per second at a resolution of 4 cm−1 within the range from 600 to 4000 cm−1.
- -
- Flammability tests were carried out via a pyrolysis combustion flow calorimeter (PCFC) from FTT, UK. Tests were performed according to the standard of ASTM D7309-2007 [54]. The heating rate was 1 °C/s. The pyrolysis temperature range was 75–750 °C, and the combustion temperature was 900 °C. The flow was a mixture of O2/N2 20/80 cm3/min, and the sample weight was 3–4 mg. The maximum heat release temperature (Tmax) and maximum heat release rate (HRRmax) were determined.
- -
- Statistical analysis was calculated based on significant differences between fibers that were assessed using one-way analysis of variance (ANOVA) and Tukey’s Honest Significant Difference (HSD) test, and p < 0.05 was considered a significant difference.
3. Results
- -
- -
- -
- -
- Acetic acid and formic acid, for which stretching vibrations of the OH bond are observed at 3571–3569 cm−1, stretching vibrations of the carbonyl group for the C=O bond at 1775–1749 cm−1, stretching vibrations for C-O acids at 1177–1071 cm−1, and stretching vibrations of the -CH3 bond at 2974–2972 cm−1 (Figure 10 300–366 °C and Figure 11 300–366 °C);
- -
- -
- IV sub-stage—lignin decomposition for which the following gases have been identified:
- -
- -
4. Conclusions
Author Contributions
Funding
Institutional Review Board Statement
Informed Consent Statement
Data Availability Statement
Conflicts of Interest
References
- Schilling, E.; Muller, W. Chapter A Introduction: History and importance of flax cultivation. In Flax; Len; PWT: Warsaw, Poland, 1951. (In Polish) [Google Scholar]
- Palczewski, J. Linen Technology. Pre-Treatment and Combing; Technologia Lnu. Obróbka Wstępna i Czesanie; PWT: Warsaw, Poland, 1953. (In Polish) [Google Scholar]
- Kozłowski, R.; Mackiewicz-Talarczyk, M.; Allam, A.M. Chapter 5 Bast fibres: Flax. In Handbook of Natural Fibres—Volume 1; Woodhead Publishing Limited: Sawston, UK, 2012; pp. 56–113. [Google Scholar]
- The Wrest Park Story Contributors. Chapter 7 Post harvest processing. Biosyst. Eng. 2009, 103 (Suppl. S1), 79–89. [Google Scholar] [CrossRef]
- Akin, D.E. Flax—Structure, Chemistry, Retting and Processing. In Industrial Applications of Natural Fibres: Structure, Properties and Technical Applications; Wiley A John Wiley and Sons Ltd.: Hoboken, NJ, USA, 2010; pp. 89–108. [Google Scholar]
- Amaducci, S.; Gusovius, H.J. Hemp—Cultivation, Extraction and Processing. In Industrial Applications of Natural Fibres: Structure, Properties and Technical Applications; Wiley A John Wiley and Sons Ltd.: Hoboken, NJ, USA, 2010; pp. 109–134. [Google Scholar]
- Kozłowski, R.; Mańkowski, J.; Kubacki, A.; Kołodziej, J. An effective decortication system for hemp and flax fibre. In Bulletin Flax and Hemp; Biuletyn Len i Konopie; Polska Izba Lnu i Konopi: Poznań, Poland, 2004; pp. 40–52. (In Polish) [Google Scholar]
- Siwcow, A.N. Bast Fibre Pre-Treatment. In Wstępna Obróbka Włókien Łykowych; PWT: Warsaw, Poland, 1953. (In Polish) [Google Scholar]
- Żyliński, T. Fibre science. In Nauka o Włóknie; PWLiS: Warsaw, Poland, 1958. (In Polish) [Google Scholar]
- Collective Work. Retting of Straw. In Retting Guide; Poradnik Roszarnika; WPLiS: Warsaw, Poland, 1965. (In Polish) [Google Scholar]
- Summerscales, J.; Dissanayake, N.P.J.; Virk, A.S.; Hall, W. A review of bast fibres and their composites. Part 1: Fibres as reinforcements. Compos. Appl. Sci. Manuf. 2010, 41, 1329–1335. [Google Scholar] [CrossRef]
- Carter, H.R. The decortications of fibrous plants, with special references to the Belgian flax industry. J. Text. Inst. 1913, 4, 231–264. [Google Scholar] [CrossRef]
- Hanninen, T.; Thygesen, A.; Mehmood, S.; Madsen, B.; Hughes, M. Mechanical processing of bast fibres: The occurrence of damage and its effect on fibre structure. Ind. Crops Prod. 2012, 39, 7–11. [Google Scholar] [CrossRef]
- Sharma, S. Microorganisms in processing of flax. In VCH Verlagsgesselschaft; Rehm, H.J., Reed, G., Eds.; Biotechnology: Weinheim, Germany, 1988; Volume 6, pp. 746–755. [Google Scholar]
- Kozłowski, R. Retting of flax in Poland. In The Biology and Processing of Flax; M. Publications: Belfast, Northern Ireland, 1992; pp. 251–259. [Google Scholar]
- Jankauskiene, Z.; Lugauskas, A.; Repeckiene, J. New Methods for the Improvement of Flax Dew Retting. J. Nat. Fibers 2006, 3, 59–68. [Google Scholar] [CrossRef]
- Kozłowski, R. Process of Flax Retting with the Addition of Urea against the Classical Method (Proces Roszenia lnu z Dodatkiem Mocznika na tle Klasycznego Sposobu). Ph.D. Thesis, IPWŁ, Poznan, Poland, 1970. (In Polish). [Google Scholar]
- Kozlowski, R.; Batog, J.; Konczewicz, W.; Mackiewicz-Talarczyk, M.; Muzyczek, M.; Sedelnik, N.; Tanska, B. Enzymes in Bast Fibrous Plant Processing. Biotechnol. Lett. 2006, 28, 761–765. [Google Scholar] [CrossRef]
- Kozłowski, R.; Tabisz, J. Method of Retting Flax Straw with Urea (Sposób Roszenia Słomy Lnianej z Dodatkiem Mocznika). In Biblioteczka dla Praktyków; IPWŁ: Poznan, Poland, 1967; Volume 36, pp. 1–48. [Google Scholar]
- Ruschmann, G.; Bartram, H. Bacillus felsineus Carbone und seine Bedeutung fur die Flachsrotte. Zentr. Bakt. Parasitenk 1943, 105, 326–351. [Google Scholar]
- Carbone, D.; Tobler, J. Die Roste mit Bacillus felsineus. Faserforschung 1922, 2, 163–184. [Google Scholar]
- Odum, E.P. Fundamentals of ecology. In Podstawy Ekologii; PWRiL: Warsaw, Poland, 1963. (In Polish) [Google Scholar]
- Kozłowski, R.; Batog, J.; Konczewicz, W.; Kozłowska, J.; Sedelnik, N. Overview of current activities relative to bioprocessing of bast plants, fibres and by products. Part I. Nat. Fibres 2001, 45, 85–92. [Google Scholar]
- Kozłowski, R.; Batog, J.; Konczewicz, W.; Kozłowska, J.; Sedelnik, N. Overview of current activities relative to bioprocessing of bast plants, fibres and by products. Part II. Nat. Fibres 2001, 45, 93–100. [Google Scholar]
- Kapitonova, L.S.; Tatarenkov, V.T.; Robaten, R.A. Nutrient for Culturing Clostridium Felsineum-22 Microbial Strain Includes Dextrin and Beetpulp Used in Pectolytic Enzyme Manufacturing for Bast Fibre Treatment. Soviet Union Patent 622838 A. (7927), 26 July 1978. [Google Scholar]
- Kulas, J. Testing of existing methods for aerobic retting of flax and hemp straw. In Przebadanie Istniejących Metod Tlenowego Roszenia Słomy Lnianej I Konopnej; IPWŁ: Poznan, Poland, 1964. (In Polish) [Google Scholar]
- Słuchocka, Z. Wastewater management in the retting industry. In Gospodarka Ściekowa w Przemyśle Roszarniczym; IPWŁ: Poznan, Poland, 1962; Volume 10, pp. 103–126. (In Polish) [Google Scholar]
- Dujardin, A. The Retting of Flax; Carswell & Son Ltd.: Belfast, Northern Ireland, 1948; pp. 99, 166–169. [Google Scholar]
- Dujardin, A. Vlas-Roten; De Wastvlaamsche Boekhandel s.v. Groeninghe drukkerij: Kortrijk, Belgium, 1942. [Google Scholar]
- Kessler, R.W.; Becker, U.; Kohler, R.; Goth, B. Steam explosion of flax—A superior technique for upgrading fibre value. Biomass Bioenergy 1998, 14, 237–249. [Google Scholar] [CrossRef]
- Garcia-Jaldon, C.; Dupeyre, D.; Vignon, M.R. Fibres from semi-retted hemp bundles by steam explosion treatment. Biomass Bioenergy 1998, 14, 251–260. [Google Scholar] [CrossRef]
- Bozzini, A.; Mignoni, G. A New Process of Plant Fibres Retting Using the Electric Resonance Technology. Poznan, Poland. 2008; private communication. [Google Scholar]
- Dochia, M.; Sirghie, C.; Copolovici, L. Degumming process of flax at industrial pilot scale. Sci. Bull. Escorena 2013, 8, 9–15. [Google Scholar]
- Sirghie, C.; Istoc, I.V.; Bung, S.; Copolovici, L. Influence of ultrasound field on laccase degumming process. Cellul. Chem. Technol. 2015, 49, 901–904. [Google Scholar]
- Nair, G.R.; Rho, D.; Yaylayan, V.; Raghavan, V. Microwave assisted retting—A novel method of processing of flax stems. Biosyst. Eng. 2013, 116, 427–435. [Google Scholar] [CrossRef]
- Nair, G.R.; Lyew, D.; Yaylayan, V.; Raghavan, V. Application of microwave energy in degumming of hemp stems for the processing of fibres. Biosyst. Eng. 2015, 131, 23–31. [Google Scholar] [CrossRef]
- Ruan, P.; Du, J.; Gariepy, Y.; Raghavan, V. Characterization of radio frequency assisted water retting andflax fibers obtained. Ind. Crops Prod. 2015, 69, 228–237. [Google Scholar] [CrossRef]
- Allam, A.M. Assessment, Evaluation and Acknowledgment of a New, More Controllable Method for Extracting Vegetal Fibers. J. Nat. Fibers 2005, 1, 77–85. [Google Scholar] [CrossRef]
- Konczewicz, W.; Kozłowski, R.; Kaniewski, R.; Wojtysiak, J.; Podsiedlik, W. Obtaining Fiber from Bast Plants by Osmotic Degumming; Polska Izba Lnu iKonopi: Poznan, Poland, 2011; Volume 16, pp. 34–44. (In Polish) [Google Scholar]
- Konczewicz, W.; Kozłowski, R.; Wojtysiak, J.; Podsiedlik, W. Physico-mechanical extraction of fibers from bast plants. In New Textile Manufacturing Techniques in the Work of the Institute of Exploitation Technology—NRI; Nowe Włókiennicze techniki wytwórcze w pracach Instytutu Technologii Eksploatacji—PIB: Radom, Poland, 2012; pp. 11–23. (In Polish) [Google Scholar]
- Konczewicz, W.; Kryszak, N.; Nowaczkiewicz, E.; Kozlowski, R.; Wojtysiak, J.; Podsiedlik, W. Osmosis Phenomena Based Degumming of Bast Fibrous Plants as A Promising Method in Primary Processing. Mol. Cryst. Liq. Cryst. 2013, 571, 116–131. [Google Scholar] [CrossRef]
- Kozłowski, R.; Konczewicz, W.; Wojtysiak, J.; Podsiedlik, W. Device for Processing Fibrous Raw Materials and the Method of Fibrous Plants Processing. Patent CA 2242876, 23 November 2006. [Google Scholar]
- Wojtysiak, J.; Podsiedlik, W.; Kozłowski, R.; Konczewicz, W. Sposób Ciągłego Odklejania Włókien Roślinnych Oraz Urządzenie do Ciągłego Odklejania Włókien Roślinnych (A Process for Continuous Degumming of Fibers of Bast Plants and a Device for Continuous Degumming of Fibers of Bast Plants). EP 2212454 B1, 13 November 2006. [Google Scholar]
- Konczewicz, W.; Wojtysiak, J. The effect of physical factors on the process of physical-mechanical degumming of flax fibers. Text. Res. J. 2015, 85, 391–403. [Google Scholar] [CrossRef]
- Konczewicz, W. Physical phenomena occurring in the process of physical-mechanical degumming of fiber from flax straw. Text. Res. J. 2015, 85, 380–390. [Google Scholar] [CrossRef]
- PN-P-80103:1996; Fibrous Flax Straw. Polski Komitet Normalizacyjny (PKN): Warsaw, Poland, 1996. (In Polish)
- PN-EN ISO 1973:2022-03; Textile Fibers—Determination of Linear Density—Gravimetric Method and Vibroscope Method. Polski Komitet Normalizacyjny (PKN): Warsaw, Poland, 2022.
- PN-P-04676:1986; Test Methods for Textile Raw Materials—Flax and Hemp Straw—Determination of Static Tensile Indices. Polski Komitet Normalizacyjny (PKN): Warsaw, Poland, 1986. (In Polish)
- BN-86/7501-10; Determination of Waxes and Fats Content. Methods of Testing Textile Products. Flax and Hemp Fiber. Wydawnictwo Normalizacyjne “Alfa”: Warsaw, Poland, 1986. (In Polish)
- BN-86/7501-11; Determination of Lignin Content. Methods of Textile Products Testing. Flax and Hemp Fiber. Wydawnictwo Normalizacyjne “Alfa”: Warsaw, Poland, 1986. (In Polish)
- PN-P-50092:1992; Determination of Cellulose Content. Raw Materials for the Paper Industry. Wood. Chemical Analysis. Polski Komitet Normalizacyjny (PKN): Warsaw, Poland, 1992. (In Polish)
- BN-77/7529-02; Determination of Hemicellulose Content. Methods of Testing Textile Products. Flax and Hemp Fiber. Semi-Products and Textiles. Wydawnictwo Normalizacyjne “Alfa”: Warsaw, Poland, 1977. (In Polish)
- PN-P-04635:1980; Test Methods for Textiles—Determination of Hygroscopicity. Polski Komitet Normalizacyjny (PKN): Warsaw, Poland, 1980. (In Polish)
- ASTM D7309-2007; Standard Test Method for Determining Flammability Characteristics of Plastics and Other Solid Materials Using Microscale Combustion Calorimetry. ASTM International: West Conshohocken, PA, USA, 2007.
- Mazian, B.; Bergeret, A.; Benezet, J.C.; Malhautier, L. Influence of field retting duration on the biochemical, microstructural, thermal and mechanical properties of hemp fibres harvested at the beginning of flowering. Ind. Crops Prod. 2018, 116, 170–181. [Google Scholar] [CrossRef]
- Martin, N.; Mouret, N.; Davies, P.; Baley, C. Influence of the degree of retting of flax fibers on the tensile properties of single fibers and short fiber/polypropylene composites. Ind. Crops Prod. 2013, 79, 755–767. [Google Scholar] [CrossRef]
- Cousins, W.J. Young’s modulus of hemicelluloses related to moisture content. Wood Sci. Technol. 1978, 12, 161–167. [Google Scholar] [CrossRef]
- Cousins, W.J.; Armstrong, R.W.; Robinson, W.H. Young’s modulus of lignin from a continuous in dentation test. J. Mater. Sci. 1975, 10, 1655–1658. [Google Scholar] [CrossRef]
- Fan, M.; Da, D.; Huang, B. Fourier transform infrared spectroscopy for natural fibres. In Fourier Transform—Materials Analysis; Salih, S.M., Ed.; InTechOpen Limited: London, UK, 2012. [Google Scholar] [CrossRef]
- Celino, A.; Freour, S.; Jacquemin, F.; Casari, P. Characterization and modeling of the moisture diffusion behavior of natural fibres. Appl. Polym. Sci. 2013, 130, 297–306. [Google Scholar] [CrossRef]
- Célino, A.; Gonçalves, O.; Jacquemin, F.; Fréour, S. Qualitative and quantitative assessment of water sorption in natural fibres using ATR-FTIR spectroscopy. Carbohydr. Polym. 2014, 101, 163–170. [Google Scholar] [CrossRef]
- Lv, P.; Almeida, G.; Perre, P. TGA-FTIR analysis of torrefaction of lignocellulosic components (cellulose, xylan, lignin) in isothermal conditions over a wide range of time durations. BioResources 2015, 10, 4239–4251. [Google Scholar] [CrossRef]
- Benıtez-Guerrero, M.; Lopez-Beceiro, J.; Sanchez-Jimenez, P.E.; Pascual-Cosp, J. Comparison of thermal behavior of natural and hot-washed sisal fibres based on their main components: Cellulose, xylan and lignin. TG-FTIR analysis of volatile products. Thermochim. Acta 2014, 581, 70–86. [Google Scholar] [CrossRef]
- Dong, Z.; Ding, R.Y.; Zheng, L.; Zhang, G.X.; Yu, C.W. Thermal properties of flax fiber scoured by different methods. Therm. Sci. 2015, 19, 939–945. [Google Scholar]
- Poletto, M.; Ornaghi, L., Jr.; Zattera, S.J. Native cellulose: Structure, characterization and thermal properties. Materials 2014, 7, 6105–6119. [Google Scholar] [CrossRef] [PubMed]
- Kim, H.S.; Kim, S.; Kim, H.J.; Yang, H.S. Thermal properties of bio-flour-filled polyolefin composites with different compatibilizing agent type and content. Thermochim. Acta 2006, 451, 181–188. [Google Scholar] [CrossRef]
- Urbańczyk, G.W. Chapter 9: Natural cellulose fibres—Bast Fibres. In The Science of a Fibre; Nauka o włóknie: Lodz, Poland, 1977; pp. 60–64. (In Polish) [Google Scholar]
- Konczewicz, W.; Zimniewska, M.; Valera, M.A. Selection of a retting method for extraction of bast fibres as response to challenges in composite reinforcement. Text. Res. J. 2018, 88, 2104–2119. [Google Scholar] [CrossRef]
- Price, D.; Anthony, G.; Carty, P. Chapter 1 Introduction: Polymer combustion, condensed, phase pyrolysis and smoke formation. In Fire Retardant Materials; Woodhead Publishing Limited: Cambridge, UK, 2001; pp. 1–30. [Google Scholar]












| Mechanical Processing | Biological Methods | Chemical Degumming | Physical Methods | ||
|---|---|---|---|---|---|
| Water Retting | Dew Retting | ||||
| Natural Water Reservoirs | In a Basin | ||||
|
|
|
Using:
|
|
|
| Process Conditions | Flax | Hemp |
|---|---|---|
| Temperature, °C | 30 | 30 |
| Time, h | 72 | 144 |
| Ultrasound, kHz | 30 | 30 |
| Flow speed, dm3/min | 30 | 30 |
| Batch mass, kg | 15 | 20 |
| Straw | Length | Thickness | Color | Health | Attitude | Straw Class | |||
|---|---|---|---|---|---|---|---|---|---|
| Technical | Total | Yellow | Green-Yellow | Green | |||||
| cm | cm | mm | % | % | % | % | % | ||
| FLAX | 67 | 74 | 1.23 | 100 | - | - | 100 | 100 | I |
| HEMP | 184 | 199 | 6.4 | 20 | 60 | 20 | 100 | 100 | I |
| Fibers | Mass of Extracted Fibers | |||||
|---|---|---|---|---|---|---|
| Total | Long | Short | ||||
| % | SD | % | SD | % | SD | |
| FLAX | ||||||
| Water retted | 35.08 a | 0.82 | 25.74 a,b | 1.83 | 9.34 a,b | 0.91 |
| Osmotically degummed | 38.12 b | 0.84 | 29.64 b | 0.91 | 8.48 a | 0.83 |
| Dew retted | 36.25 ab | 1.28 | 24.58 a | 1.92 | 11.66 b | 1.16 |
| HEMP | ||||||
| Water retted | 28.89 a | 0.96 | 17.78 a | 0.96 | 11.11 | 0.96 |
| Osmotically degummed | 34.44 | 0.96 | 28.33 | 1.67 | 6.11 | 0.96 |
| Dew retted | 26.67 a | 1.67 | 18.33 a | 1.67 | 8.33 | 0.00 |
| Fibers | FLAX | HEMP | ||||||
|---|---|---|---|---|---|---|---|---|
| Tenacity | Linear Mass | Tenacity | Linear Mass | |||||
| cN/tex | SD | tex | SD | cN/tex | SD | tex | SD | |
| Water retted | 24.15 a | 2.59 | 0.3 a | 0.08 | 7.52 a | 1.37 | 1.1 b | 0.05 |
| Osmotically degummed | 20.84 a | 1.82 | 0.3 a | 0.07 | 7.51 a | 1.54 | 0.8 a | 0.18 |
| Dew retted | 13.88 | 1.45 | 0.4 a | 0.07 | 4.59 | 0.74 | 1.0 a,b | 0.15 |
| Fibers | Content of: | |||||||||
|---|---|---|---|---|---|---|---|---|---|---|
| Waxes and Fats | Lignin | Pectin | Cellulose | Hemicellulose | ||||||
| % | SD | % | SD | % | SD | % | SD | % | SD | |
| FLAX | ||||||||||
| Water retted | 1.42 a | 0.05 | 3.07 a | 0.11 | 1.16 a | 0.15 | 74.83 a | 0.68 | 14.43 a | 1.22 |
| Osmotically degummed | 1.84 | 0.06 | 3.49 a | 0.20 | 1.44 a | 0.16 | 74.87 a | 0.68 | 14.57 a | 0.28 |
| Dew retted | 1.50 a | 0.09 | 5.29 | 0.60 | 2.50 | 0.20 | 72.29 a | 0.93 | 18.93 | 0.42 |
| HEMP | ||||||||||
| Water retted | 0.19 a | 0.00 | 2.78 | 0.12 | 0.66 | 0.06 | 70.36 a | 0.62 | 21.22 | 0.12 |
| Osmotically degummed | 0.21 a | 0.01 | 4.25 a | 0.03 | 1.07 | 0.17 | 70.13 a | 0.45 | 15.99 | 0.13 |
| Dew retted | 0.26 | 0.01 | 4.11 a | 0.01 | 2.27 | 0.29 | 71.42 a | 0.66 | 18.96 | 0.13 |
| Fibers | FLAX | HEMP | ||||||
|---|---|---|---|---|---|---|---|---|
| 65% | 100% | 65% | 100% | |||||
| % | SD | % | SD | % | SD | % | SD | |
| Water retted | 8.80 a | 0.04 | 11.48 a | 0.24 | 10.85 a | 0.21 | 13.96 a | 0.52 |
| Osmotically degummed | 8.94 a | 0.00 | 11.78 a | 0.07 | 9.81 | 0.12 | 13.14 a | 0.33 |
| Dew retted | 9.44 | 0.05 | 11.94 a | 0.18 | 10.62 a | 0.03 | 13.32 a | 0.19 |
| Bond | Vibration Type | Wavenumber [cm−1] | Remarks |
|---|---|---|---|
| O-H | Stretching | 3100–3600 | Cellulose, hemicellulose, lignin, pectin |
| C-H, C-H2 | Stretching | 2853–2921 | Cellulose, hemicellulose, lignin, pectins, waxes, and fats |
| C=O | Stretching | 1730–1738 | Carboxylic acids, aldehydes, esters (pectin, lignin, waxes and fats) |
| O-H | Stretching | 1620–1641 | Adsorbed water |
| C=C | Stretching | 1509 | Pick characteristic for lignin |
| O-H C-H3 and C-H2 | Bending Deforming | 1454 1464–1473 | Adsorbed water Lignin and cellulose, hemicellulose, pectins, waxes, and fats |
| COO | Stretching | 1428 | Acids (pectins) |
| O-H | Bending | 1335 | Cellulose, hemicellulose, lignin, pectin |
| CH2 | Scissoring (bending) | 1315 | Cellulose, hemicellulose |
| C-O | Stretching | 1249 | Hemicellulose, pectins |
| C-H | Bending | 1204 | Flax, hemp |
| C-O-C C-O | Bending Stretching | 917–1186 | Cellulose, hemicellulose, pectin |
| 1,4-β-Glycosidic bond | Stretching | 896 | Cellulose, hemicellulose, pectin |
| Fibers | Decomposition of the Main Fibers Component | Residual Mass at T700 °C | ||||||
|---|---|---|---|---|---|---|---|---|
| TInt. | TFin. | Mass loss | ||||||
| °C | SD | °C | SD | % | SD | % | SD | |
| FLAX | ||||||||
| Water retted | 296 | 2.04 | 385 a | 1.63 | 82.64 a | 1.63 | 13.93 | 0.24 |
| Osmotically degummed | 300 a | 2.23 | 388 b | 1.41 | 81.41 a | 0.90 | 13.05 | 0.23 |
| Dew retted | 300 a | 2.41 | 386 ab | 2.09 | 82.01 a | 0.84 | 11.96 | 0.41 |
| HEMP | ||||||||
| Water retted | 300 a | 1.73 | 393 a | 1.86 | 83.55 a | 1.47 | 12.53 | 0.13 |
| Osmotically degummed | 290 | 1.95 | 385 | 2.01 | 80.09 a | 2.24 | 15.35 | 0.12 |
| Dew retted | 300 a | 2.15 | 390 a | 2.33 | 83.64 a | 2.98 | 11.93 | 0.12 |
Disclaimer/Publisher’s Note: The statements, opinions and data contained in all publications are solely those of the individual author(s) and contributor(s) and not of MDPI and/or the editor(s). MDPI and/or the editor(s) disclaim responsibility for any injury to people or property resulting from any ideas, methods, instructions or products referred to in the content. |
© 2023 by the authors. Licensee MDPI, Basel, Switzerland. This article is an open access article distributed under the terms and conditions of the Creative Commons Attribution (CC BY) license (https://creativecommons.org/licenses/by/4.0/).
Share and Cite
Różańska, W.; Romanowska, B.; Rojewski, S. The Quantity and Quality of Flax and Hemp Fibers Obtained Using the Osmotic, Water-, and Dew-Retting Processes. Materials 2023, 16, 7436. https://doi.org/10.3390/ma16237436
Różańska W, Romanowska B, Rojewski S. The Quantity and Quality of Flax and Hemp Fibers Obtained Using the Osmotic, Water-, and Dew-Retting Processes. Materials. 2023; 16(23):7436. https://doi.org/10.3390/ma16237436
Chicago/Turabian StyleRóżańska, Wanda, Barbara Romanowska, and Szymon Rojewski. 2023. "The Quantity and Quality of Flax and Hemp Fibers Obtained Using the Osmotic, Water-, and Dew-Retting Processes" Materials 16, no. 23: 7436. https://doi.org/10.3390/ma16237436
APA StyleRóżańska, W., Romanowska, B., & Rojewski, S. (2023). The Quantity and Quality of Flax and Hemp Fibers Obtained Using the Osmotic, Water-, and Dew-Retting Processes. Materials, 16(23), 7436. https://doi.org/10.3390/ma16237436

