Retrofitting High-Rise Residential Building in Cold and Severe Cold Zones of China—A Deterministic Decision-Making Mechanism
Abstract
1. Introduction
2. Methodology
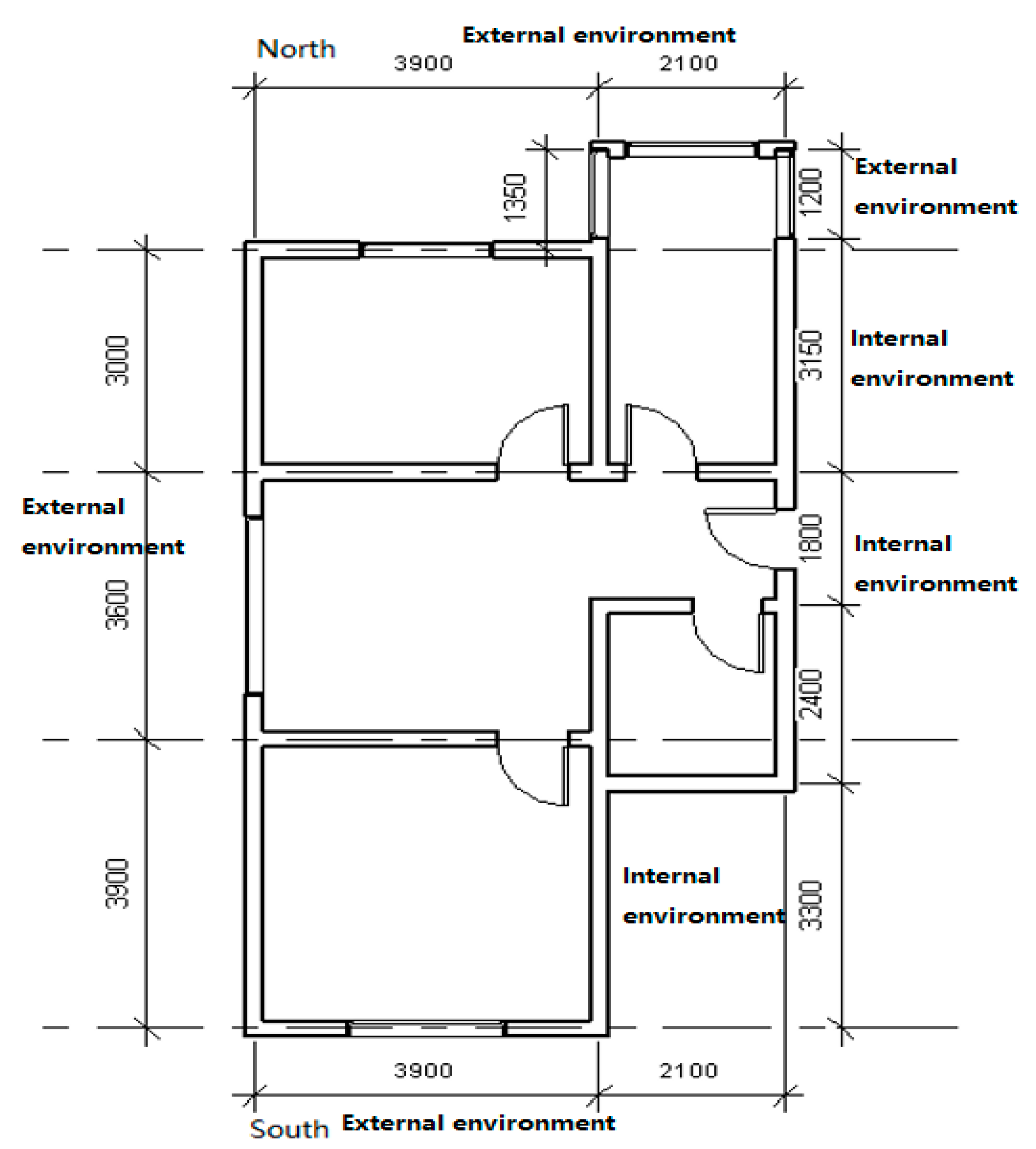
2.1. Building Prototypes
2.1.1. Building Prototype in Cold Zones
2.1.2. Building Prototype in Severe Cold Zones
2.2. Optimization Model
2.2.1. Principle of Optimization Model
2.2.2. Period of Time and Discount Rate for NPV Model
2.3. Decision Objective of Optimization Model
2.3.1. Problem Definition of Optimization Model
2.3.2. Decision Variables of Optimization Model
2.4. Constraints
- Diverse energy-saving targets require different retrofit decisions, all based on balancing economic benefits and energy reduction. In addition, there may be different energy-saving potentials under different climatic conditions, therefore, it is essential to restrict energy reduction to a certain range in order to identify the optimal retrofit options for a given energy reduction requirement. Assuming that there are six levels of energy reduction—i.e., 20%, 30%, 40%, 50%, 60%, and 70%—there will be six corresponding sets of optimal retrofit measures.
- According to some retrofit projects conducted in northern China, improvement of the heating system alone can help occupants reduce energy consumption by 10%. For existing public buildings, the Chinese government has mandated decreases in energy use by 10%, 20%, or 30% [72,73,74]. In order to identify the optimal retrofit decisions for various energy-saving targets, this study begins by analyzing the best choices for building retrofits that will achieve energy conservation in the range of 20–70% in each climatic zone. Thus, the variable regarding energy reduction should meet one of the following constraints:
- (i)
- (leading to a set of optimal decisions to meet a 20% target),
- (ii)
- (leading to a set of optimal decisions to meet a 30% target),
- (iii)
- (leading to a set of optimal decisions to meet a 40% target),
- (iv)
- (leading to a set of optimal decisions to meet a 50% target),
- (v)
- (leading to a set of optimal decisions to meet a 60% target),
- (vi)
- (leading to a set of optimal decisions to meet a 70% target).
- The biggest concern regarding a building retrofit is its economic benefits based on reasonable energy reductions, so it is important to indicate that the NPV involved in building retrofits is positive rather than negative. If it is negative, a building retrofit will be highly unlikely to appeal to stakeholders. Thus, the constraint for NPV is as follows: NPV > 0.
3. Results and Discussion
3.1. Cost-Effective Retrofit Measures in Cold Zone
3.1.1. Optimal Set of Retrofit Measures for the Cold Zone
3.1.2. Comparison between Optimum Retrofit Choices for Various Energy-Saving Targets
3.2. Cost-Effective Retrofit Measures in Severe Cold Zone
3.2.1. Optimum Retrofit Measures in the Severe Cold Zone
3.2.2. Comparison between Optimum Retrofit Choices for Various Energy-Saving Targets
3.3. Comparison of Optimum Retrofit Measures between Studied Zones
4. Conclusions
Supplementary Materials
Author Contributions
Funding
Conflicts of Interest
References
- Shen, P.; Braham, W.; Yi, Y. The feasibility and importance of considering climate change impacts in building retrofit analysis. Appl. Energy 2019, 233–234, 254–270. [Google Scholar] [CrossRef]
- Murto, P.; Jalas, M.; Juntunen, J.; Hyysalo, S. Devices and strategies: An analysis of managing complexity in energy retrofit projects. Renew. Sustain. Energy Rev. 2019, 114, 109294. [Google Scholar] [CrossRef]
- He, Q.; Ng, S.T.; Hossain, M.U.; Augenbroe, G.L. A data-driven approach for sustainable building retrofit—A case study of different climate zones in China. Sustainability 2020, 12, 4726. [Google Scholar] [CrossRef]
- Pardo-Bosch, F.; Cervera, C.; Ysa, T. Key aspects of building retrofitting: Strategizing sustainable cities. J. Environ. Manag. 2019, 248, 109247. [Google Scholar] [CrossRef] [PubMed]
- Regnier, C.; Sun, K.; Hong, T.; Piette, M.A. Quantifying the benefits of a building retrofit using an integrated system approach: A case study. Energy Build. 2018, 159, 332–345. [Google Scholar] [CrossRef]
- Tan, Y.; Liu, G.; Zhang, Y.; Shuai, C.; Shen, G.P. Green retrofit of aged residential buildings in Hong Kong: A preliminary study. Build. Environ. 2018, 143, 89–98. [Google Scholar] [CrossRef]
- Union European. Statistical Pocketbook 2018: Energy; Publications Office of the European Union: Luxembourg, 2018. [Google Scholar] [CrossRef]
- Eom, J.; Clarke, L.; Kim, S.H.; Kyle, P.; Patel, P. China’s building energy demand: Long-term implications from a detailed assessment. Energy 2012, 46, 405–419. [Google Scholar] [CrossRef]
- Güneralp, B.; Zhou, Y.; Ürge-Vorsatz, D.; Gupta, M.; Yu, S.; Patele, P.L.; Fragkias, M.; Li, X.; Seto, K.C. Global scenarios of urban density and its impacts on building energy use through 2050. PNAS 2017, 114, 8945–8950. [Google Scholar]
- China Energy. Building Energy-Saving Industry Observation: Detailed Factors Affecting the Development of the Industry, 2016. Available online: http://www.cnenergy.org/hb/jzyth/201612/t20161207_409532.html (accessed on 15 January 2017).
- IEA. Energy Balances of Non-OECD Countries 2015; International Energy Agency (IEA): Paris, France, 2015. [Google Scholar]
- Zhang, X.H.; Zhang, R.; Wu, L.Q.; Deng, S.H.; Lin, L.L.; Yu, X.Y. The interactions among China’s economic growth and its energy consumption and emissions during 1978. Ecol. Ind. 2013, 24, 83–95. [Google Scholar] [CrossRef]
- Silvestre, J.D.; Castelo, A.M.P.; Silva, J.; de Brito, J.; Pinheiro, M.D. Retrofitting a building’s envelope: Sustainability performance of ETICS with ICB or EPS. Appl. Sci. 2019, 9, 1285. [Google Scholar] [CrossRef]
- Paiho, S.; Seppä, I.P.; Jimenez, C. An energetic analysis of a multifunctional facade system for energy efficient retrofitting of residential buildings in cold climates of Finland and Russia. Sustain. Cities Soc. 2015, 15, 75–85. [Google Scholar] [CrossRef]
- Craven, C.; Garber-Slaght, R. Exterior insulation envelope retrofits in cold climates: Implications for moisture control. HVAC&R Res. 2014, 20, 384–394. [Google Scholar]
- Dodoo, A.; Gustavsson, L.; Tettey, U.Y.A. Cost-optimized energy-efficient building envelope measures for a multi-storey residential building in a cold climate. Energy Proc. 2019, 158, 3760–3767. [Google Scholar] [CrossRef]
- Csoknyai, T.; Hrabovszky-Horváth, S.; Georgiev, Z.; Jovanovic-Popovic, M.; Stankovic, B.; Villatoro, O.; Szendro, G. Building stock characteristics and energy performance of residential buildings in Eastern-European countries. Energy Build. 2016, 132, 39–52. [Google Scholar] [CrossRef]
- Nourozi, B.; Wang, Q.; Ploskić, A. Energy and defrosting contributions of preheating cold supply air in buildings with balanced ventilation. Appl. Thermal Eng. 2019, 146, 180–189. [Google Scholar] [CrossRef]
- Casquero-Modrego, N.; Goñi-Modrego, M. Energy retrofit of an existing affordable building envelope in Spain, case study. Sustain. Cities Soc. 2019, 44, 395–405. [Google Scholar] [CrossRef]
- Zheng, D.; Yu, L.; Wang, L. A techno-economic-risk decision-making methodology for large-scale building energy efficiency retrofit using Monte Carlo simulation. Energy 2019, 189, 116169. [Google Scholar] [CrossRef]
- Berardi, U.; Soudian, S. Benefits of latent thermal energy storage in the retrofit of Canadian high-rise residential buildings. Build. Simul. 2018, 11, 709–723. [Google Scholar] [CrossRef]
- Arumägi, E.; Kalamees, T. Analysis of energy economic renovation for historic wooden apartment buildings in cold climates. Appl. Energy 2014, 115, 540–548. [Google Scholar] [CrossRef]
- Chen, S.; Guan, J.; Levine, M.D.; Xie, L.; Yowargana, P. Elaboration of energy saving renovation measures for urban existing residential buildings in north China based on simulation and site investigations. Build. Simul. 2013, 6, 113–125. [Google Scholar] [CrossRef]
- Fina, B.; Auer, H.; Friedl, W. Profitability of active retrofitting of multi-apartment buildings: Building-attached/integrated photovoltaics with special consideration of different heating systems. Energy Build. 2019, 190, 86–102. [Google Scholar] [CrossRef]
- Zhao, X.; Tan, Y.; Shen, L.; Zhang, G.; Wang, J. Case-based reasoning approach for supporting building green retrofit decisions. Building Environ. 2019, 160, 106210. [Google Scholar] [CrossRef]
- La Fleur, L.; Rohdin, P.; Moshfegh, B. Investigating cost-optimal energy renovation of a multifamily building in Sweden. Energy Build. 2019, 203, 109438. [Google Scholar] [CrossRef]
- Pasichnyi, O.; Levihn, F.; Shahrokni, H.; Wallin, J.; Kordas, O. Data-driven strategic planning of building energy retrofitting: The case of Stockholm. J. Clean. Prod. 2019, 233, 546–560. [Google Scholar] [CrossRef]
- Penna, P.; Prada, A.; Cappelletti, F.; Gasparella, A. Multi-objectives optimization of energy efficiency measures in existing buildings. Energy Build. 2015, 95, 57–69. [Google Scholar] [CrossRef]
- Wu, Z.; Wang, B.; Xia, X. Large-scale building energy efficiency retrofit: Concept, model and control. Energy 2016, 109, 456–465. [Google Scholar] [CrossRef]
- Serrano-Jimenez, A.; Lizana, J.; Molina-Huelva, M.; Barrios-Padura, A. Decision-support method for profitable residential energy retrofitting based on energy-related occupant behaviour. J. Clean. Prod. 2019, 222, 622–632. [Google Scholar] [CrossRef]
- Sharif, S.A.; Hammad, A. Simulation-Based Multi-Objective Optimization of institutional building renovation considering energy consumption, life-cycle cost and life-cycle assessment. J. Build. Eng. 2019, 21, 429–445. [Google Scholar] [CrossRef]
- Gabrielli, L.; Ruggeri, A.G. Developing a model for energy retrofit in large building portfolios: Energy assessment, optimization and uncertainty. Energy Build. 2019, 202, 109356. [Google Scholar] [CrossRef]
- Ascione, F.; Borrelli, M.; De Masi, R.F.; DeRossi, F.; Vanoli, G.P. Energy refurbishment of a university building in cold Italian backcountry. Part 2: Sensitivity studies and optimization. Energy Proc. 2019, 159, 10–15. [Google Scholar] [CrossRef]
- Jafari, A.; Valentin, V. Selection of optimization objectives for decision-making in building energy retrofits. Build. Environ. 2018, 130, 94–103. [Google Scholar] [CrossRef]
- Daly, D.; Cooper, P.; Ma, Z. Qualitative analysis of the use of building performance simulation for retrofitting lower quality office buildings in Australia. Energy Build. 2018, 181, 84–94. [Google Scholar] [CrossRef]
- He, Y.; Liao, N.; Bi, J.; Guo, L. Investment decision-making optimization of energy efficiency retrofit measures in multiple buildings under financing budgetary restraint. J. Clean. Prod. 2019, 215, 1078–1094. [Google Scholar] [CrossRef]
- Menassa, C.C. Evaluating sustainable retrofits in existing buildings under uncertainty. Energy Build. 2011, 43, 3576–3583. [Google Scholar] [CrossRef]
- De Wilde, M. The sustainable housing question: On the role of interpersonal, impersonal and professional trust in low-carbon retrofit decisions by homeowners. Energy Res. Social Sci. 2019, 51, 138–147. [Google Scholar] [CrossRef]
- ISO. Energy Performance of Buildings–Calculation of Energy Use for Space Heating and Cooling (Vol. CEN-ISO 13790-2008(E); ISO: Geneva, Switzerland, 2008; pp. 1–172. [Google Scholar]
- Li, H. Optimal choice for medium and high-rise buildings in cold region-concrete block building. Constr. Technol. Low Temp. 1995, 2, 4–6. [Google Scholar]
- Hu, Q.; Hu, N.; Duan, J. The Road to Success: Sino-German Technical Cooperation-Energy Efficiency in Existing Buildings. Retrieved from Beijing, China: 2012. Available online: https://low-carbon-urban-development-germany-china.org/wp-content/uploads/2015/10/EEEB-Project-Overview-EN.pdf (accessed on 17 July 2020).
- Feng, X.; Jia, X.; an Fu, Q. Thermoeconomic analysis for building wall materials. J. North China Electr. Power Univ. 2003, 30, 94–2003. (In Chinese) [Google Scholar]
- Wu, X. Selection of Energy-Efficient Wall Structures and Materials to Save 65% Energy in the Cold Zone, in The Fourth Science and Technology Academic Conference; Jilin University Press: Changchun, China, 2006. [Google Scholar]
- Beijing Uni-Construction Group Co. Report on EEEB Demonstration Project Building No.12 Huixin West Street, Beijing; Sino-German Technical Cooperation Energy Efficiency in Existing Buildings (EEEB): Beijing, China, 2010. [Google Scholar]
- Heo, Y.; Choudhary, R.; Augenbroe, G.A. Calibration of building energy models for retrofit analysis under uncertainty. Energy Build. 2012, 47, 550–560. [Google Scholar] [CrossRef]
- Li, N.; Li, Y.; Wang, J. Energy Efficiency Analysis on Rebuilding of Beijing Municipal Existing Building External Windows. Energy Conserv. Technol. 2015, 33, 51–54. (In Chinese) [Google Scholar]
- Ren, J.; Li, J.; Zhao, Y.; Zhang, L.; Gao, H. Energy efficiency analysis on rebuilding of Beijing municipal existing building external windows. Archit. Technol. 2011, 42, 877–879. [Google Scholar]
- Wang, L. Design of external shading devices in cold northern regions. Shanxi Architect. 2010, 36, 234–235. [Google Scholar]
- Gao, X.; Asami, Y.; Ishikawa, T. Preferences for floor plans of medium-sized apartments: A Survey analysis in Beijing, China. Housing Stud. 2013, 28, 429–452. [Google Scholar] [CrossRef]
- Zhu, D. Research on the Heat Transfer Coefficient of Window in Harbin Area, in School of Municipal and Environmental Engineering; Harbin Institute of Technology: Harbin, China, 2012; p. 76. [Google Scholar]
- Hao, S. Research on Evaluation of Existing Resident Buildings Energy, in Management Department; Beijing Architecture University: Beijing, China, 2014; p. 61. [Google Scholar]
- Li, Z. Residential Building Window’s Heat Transfer Coefficient Research and Analysis in the Strict and Cold Region, in Civil Engineering; Xinjiang University: Urumqi, China, 2006; p. 91. [Google Scholar]
- Urumqi Construction Committee. Urumqi CaoChangXiang District Pilot Project Report; Urumqi Construction Committee: Urumqi, China, 2011; pp. 1–128. [Google Scholar]
- Chen, Z. Dynamic Simulation of Energy Consumption and Analysis for Residential Buildings in the Strict and Cold Regions, in Civil Engineering Department; Xinjiang University: Urumchi, China, 2007. [Google Scholar]
- Zhou, B. Choosing materials for high-rise building envelope in severe cold region. New Build. Mater. 1994, 11, 6–9. (In Chinese) [Google Scholar]
- Mu, C.; Cai, Z.; Li, C. The Research of Energy Conservation of New House in Severe Cold Area of China. Constr. Technol. 2000, 29, 1–3. (In Chinese) [Google Scholar]
- Feng, J.; Ding, Y.; Wu, H. Energy efficiency of various types of window glass in Beijing. Build. Energy Effic. 2012, 40, 50–54. [Google Scholar]
- Ministry of Construction. Residential Design Code (GBJ 96–86); China Architecture & Building Press: Beijing, China, 1986; p. 13.
- Xu, L.; Zhang, H. Introduction of Residential Design Code. Architect. J. 1987, 1, 22–26. [Google Scholar]
- Jin, H.; Zhao, B. Design Strategy of Energy-Efficient Public Buildings in Cold Region of China, in ASES; ASES: Baltimore, MD, USA, 2013; pp. 1–5. [Google Scholar]
- Yang, B. Research on the Evolution of Harbin High-Rise Residence, in Architecture; Northeast Forestry University: Harbin, China, 2017. [Google Scholar]
- Li, D. Research on Healthy Housing Design of Severe Cold Zone–Harbin Residential Building Design as an Example, in School of Architecture; Northeast Forestry University: Harbin, China, 2012; p. 66. [Google Scholar]
- Zhang, R. North cold regions extant building envelope structure energy efficiency renovation technology. Arch. Technol. 2017, 48, 465–469. (In Chinese) [Google Scholar]
- Zhao, A. Analysis of Cooling and Heating Demand Moving towards Near Zero Energy Civil Building in Severe Cold Region and Cold Region. Master’s Thesis, Dalian University of Technology, Dalian, China, 2018. (In Chinese). [Google Scholar]
- Petersen, S.; Svendsen, S. Method for component-based economical optimisation for use in design of new low-energy buildings. Renew. Energy 2012, 38, 173–180. [Google Scholar] [CrossRef]
- Verbeeck, G.; Hens, H. Energy savings in retrofitted dwellings: Economically viable? Energy Build. 2005, 37, 747–754. [Google Scholar] [CrossRef]
- Scheuer, C.; Keoleian, G.A.; Reppe, P. Life cycle energy and environmental performance of a new university building: Modeling challenges and design implications. Energy Build. 2003, 35, 1049–1064. [Google Scholar] [CrossRef]
- SAC and AQSIQ. General Requirements on Fixed Number of Years of Safety Use and Recycling for House and Similar Electrical Appliances; Standards Press of China: Beijing, China, 2007; Volume GB/T 20197.1-2007, pp. 1–8. [Google Scholar]
- Federal Reserve Bank of St. Louis. Discount Rate for China (2017). Available online: https://fred.stlouisfed.org/series/INTDSRCNM193N (accessed on 17 July 2020).
- Jedrzejuk, H.; Marks, W. Optimization of shape and functional structure of buildings as well as heat source utilization. Basic theory. Build. Environ. 2002, 37, 1–5. [Google Scholar] [CrossRef]
- Zheng, D.; Yu, L.; Wang, L.; Tao, J. An energy-saving retrofit baseline determination method for large-scale building based on investigation data. Sci. Technol. Built Environ. 2019, 25, 396–408. [Google Scholar] [CrossRef]
- Brown, D.; Sorrell, S.; Kivimaa, P. Worth the risk? An evaluation of alternative finance mechanisms for residential retrofit. Energy Pol. 2019, 128, 418–430. [Google Scholar] [CrossRef]
- Fine, J.P.; Touchie, M.F. A grouped control strategy for the retrofit of post-war multi-unit residential building hydronic space heating systems. Energy Build. 2020, 208, 109604. [Google Scholar] [CrossRef]
- Li, H.X.; Li, Y.; Jiang, B.; Zhang, L.; Wu, X.; Lin, J. Energy performance optimisation of building envelope retrofit through integrated orthogonal arrays with data envelopment analysis. Renew. Energy 2019. [Google Scholar] [CrossRef]
- Hart, R.; Selkowitz, S.; Curcija, C. Thermal performance and potential annual energy impact of retrofit thin-glass triple-pane glazing in US residential buildings. Build. Simul. 2019, 12, 79–86. [Google Scholar] [CrossRef]
- Lee, J.; Shepley, M.M.; Choi, J. Exploring the effects of a building retrofit to improve energy performance and sustainability: A case study of Korean public buildings. J. Build. Eng. 2019, 25, 100822. [Google Scholar] [CrossRef]
- Sartori, T.; Calmon, J.L. Analysis of the impacts of retrofit actions on the life cycle energy consumption of typical neighbourhood dwellings. J. Build. Eng. 2019, 21, 158–172. [Google Scholar] [CrossRef]
- Gugul, G.N.; Koksal, M.A.; Ugursal, V.I. Techno-economical analysis of building envelope and renewable energy technology retrofits to single family homes. Energy Sustain. Dev. 2018, 45, 159–170. [Google Scholar] [CrossRef]
- Rodrigues, C.; Kirchain, R.; Freire, F.; Gregory, J. Streamlined environmental and cost life-cycle approach for building thermal retrofits: A case of residential buildings in South European climates. J. Clean. Prod. 2018, 172, 2625–2635. [Google Scholar] [CrossRef]
- Liu, Y.; Liu, T.; Ye, S.; Liu, Y. Cost-benefit analysis for energy efficiency retrofit of existing buildings: A case study in China. J. Clean. Prod. 2018, 177, 493–506. [Google Scholar] [CrossRef]
- Mauri, L.; Vallati, A.; Ocłon, P. Low impact energy saving strategies for individual heating systems in a modern residential building: A case study in Rome. J. Clean. Prod. 2019, 214, 791–802. [Google Scholar] [CrossRef]
- Asadi, E.; Silva, M.G.; Antunes, C.H.; Dias, L.; Glicksman, L. Multi-objective optimization for building retrofit: A model using genetic algorithm and artificial neural network and an application. Energy Build. 2014, 81, 444–456. [Google Scholar] [CrossRef]







| Factor | External Wall | External Window |
|---|---|---|
| Main structure materials | 20 mm cement plaster + 300 mm ceramic concrete block + 20 mm cement plaster | 5 mm single glazing with aluminum frame |
| U-value (W/m2K) | 1.61 | 6.4 |
| Absorption coefficient | 0.68 | NA |
| Emissivity | 0.90 | 0.84 |
| SHGC | NA | 0.85 |
| Orientations | Wall Area (m2) | Window Area (m2) | Floor Area (m2) | Floor Height (m) |
|---|---|---|---|---|
| East | 14.85 | 1.35 | 57.00 | 2.70 |
| South | 4.59 | 2.70 | ||
| West | 18.00 | 2.25 | ||
| North | 16.74 | 6.75 | ||
| Total | 54.18 | 13.05 | 57.00 | 2.70 |
| Factor | External Wall | External Window |
|---|---|---|
| Main structure materials | 30 mm cement plaster + 490 mm hollow bricks + 30 mm cement plaster | 5/5 mm double glazing with aluminum frame |
| U-value (W/m2K) | 0.84 | 3.26 |
| Absorption coefficient | 0.76 | NA |
| Emissivity | 0.90 | 0.84 |
| SHGC | NA | 0.85 |
| Orientations | Wall Area (m2) | Window Area (m2) | Floor Area (m2) | Floor Height (m) |
|---|---|---|---|---|
| East | 1.85 | 1.80 | 59.00 | 2.70 |
| South | 7.83 | 2.70 | ||
| West | 26.60 | 5.40 | ||
| North | 11.70 | 4.50 | ||
| Total | 47.52 | 14.40 | 59.00 | 2.70 |
| Building Systems | Groups of Retrofit Options | 20% Energy Saving | 30% Energy Saving | 40% Energy Saving | 50% Energy Saving | 60% Energy Saving | 70% Energy Saving |
|---|---|---|---|---|---|---|---|
| Lighting system | T1—Daylighting control | Fully auto-control | Fully auto-control | Fully auto-control | Fully auto-control | Fully auto-control | Fully auto-control |
| T2—Lighting occupancy control | Fully auto-control | Fully auto-control | Fully auto-control | Fully auto-control | Fully auto-control | Fully auto-control | |
| T3—Constant lighting control | No retrofit | No retrofit | No retrofit | No retrofit | No retrofit | No retrofit | |
| T4—Lighting lamps | LED | LED | LED | LED | LED | LED | |
| Air conditioning system | T5—Heating system | No retrofit | No retrofit | Pipe system retrofit | Pipe system retrofit | Pipe system retrofit | Pipe system retrofit |
| T6—Cooling system | No retrofit | No retrofit | No retrofit | No retrofit | No retrofit | Invert air conditioner | |
| T7—BEM system | No retrofit | No retrofit | No retrofit | B-adapting operation | B-adapting operation | C-optimizing operation | |
| RE | T8—Solar water heater | No retrofit | No retrofit | No retrofit | No retrofit | No retrofit | 175 L solar water heater |
| External wall | T9—Insulation on south | 50 mm EPS | 50 mm EPS | 100 mm EPS | no retrofit | 50 mm EPS | 100 mm EPS |
| T10—Insulation on north | 30 mm EPS | 30 mm EPS | 50 mm EPS | 30 mm EPS | 50 mm EPS | 120 mm EPS | |
| T11—Insulation on east | no retrofit | 30 mm EPS | 30 mm EPS | 50 mm EPS | 100 mm EPS | 120 mm EPS | |
| T12—Insulation on west | 50 mm EPS | 100 mm EPS | 50 mm EPS | no retrofit | 50 mm EPS | 120 mm EPS | |
| Window system | T13—Window retrofit on south | No retrofit | No retrofit | No retrofit | No retrofit | 6/12 mm double low-e | 6/12 mm double low-e |
| T14—Window retrofit on north | No retrofit | 6 mm single low-e | 6 mm single low-e | 6/12 mm double low-e | 6/12 mm double low-e | 6/12 mm double low-e | |
| T15—Window retrofit on east | 6/9 mm double glazing | 6/12 mm double low-e glazing | 6/12 mm double low-e glazing | 6/12 mm double low-e | 6/12 mm double low-e | 6/12 mm double low-e | |
| T16—Window retrofit on west | 6/12 mm double glazing | 6/12 mm double glazing | 6/12 mm double low-e glazing | 6/12 mm double low-e | 6/12 mm double low-e | 6/12 mm double low-e | |
| Internal shading | T25—Shading on south | No retrofit | No retrofit | No retrofit | No retrofit | No retrofit | No retrofit |
| T26—Shading on north | No retrofit | No retrofit | No retrofit | No retrofit | Venetian blind | No retrofit | |
| T27—Shading on east | No retrofit | No retrofit | No retrofit | No retrofit | No retrofit | No retrofit | |
| T28—Shading on west | No retrofit | No retrofit | No retrofit | No retrofit | Venetian blind | No retrofit |
| NPV (USD) | Investment (USD) | Saved Energy (kWh/m2/year) | Energy Savings Per Cost (ESpC) (kWh/USD) | Energy Saving | Energy Saving Target |
|---|---|---|---|---|---|
| 3960 | 640 | 113 | 198 | 21.71% | 20% |
| 5510 | 1110 | 166 | 169 | 31.99% | 30% |
| 6630 | 1700 | 217 | 144 | 41.81% | 40% |
| 7230 | 2940 | 270 | 103 | 51.94% | 50% |
| 8530 | 3560 | 319 | 100 | 61.46% | 60% |
| 5800 | 8200 | 364 | 50 | 70.08% | 70% |
| Building Systems | Groups of Retrofit Options | 20% Energy Saving | 30% Energy Saving | 40% Energy Saving | 50% Energy Saving | 60% Energy Saving |
|---|---|---|---|---|---|---|
| Lighting system | T1—Daylighting control | Fully auto-control | Fully auto-control | Fully auto-control | Fully auto-control | Fully auto-control |
| T2—Lighting occupancy control | Fully auto-control | Fully auto-control | Fully auto-control | Fully auto-control | Fully auto-control | |
| T3—Constant lighting control | No retrofit | No retrofit | No retrofit | No retrofit | No retrofit | |
| T4—Lighting lamps | LED | LED | LED | LED | LED | |
| Air conditioning system | T5—Heating system | Pipe system retrofit | Pipe system retrofit | Pipe system retrofit | Pipe system retrofit | Pipe system retrofit |
| T6—Cooling system | No retrofit | No retrofit | No retrofit | No retrofit | No retrofit | |
| T7—BEM system | No retrofit | No retrofit | No retrofit | C-adapting operation | B-optimized operation | |
| RE | T8—Solar water heater | No retrofit | No retrofit | No retrofit | No retrofit | 200 l solar water heater |
| External wall | T9—Insulation on south | No retrofit | 50 mm EPS | 50 mm EPS | 50 mm EPS | 50 mm EPS |
| T10—Insulation on north | 30 mm EPS | 50 mm EPS | 100 mm EPS | 50 mm EPS | 50 mm EPS | |
| T11—Insulation on east | 50 mm EPS | 100 mm EPS | 100 mm EPS | 50 mm EPS | 50 mm EPS | |
| T12—Insulation on west | No retrofit | 30 mm EPS | 50 mm EPS | 50 mm EPS | 50 mm EPS | |
| Window system | T13—Window retrofit on south | No retrofit | No retrofit | 6/12 mm double low-e glazing | 6/12 mm double low-e glazing | 6/12 mm double low-e glazing |
| T14—Window retrofit on north | No retrofit | No retrofit | 6/12 mm double low-e glazing | No retrofit | 6/12 mm double low-e glazing | |
| T15—Window retrofit on east | No retrofit | No retrofit | 6/12 mm double low-e glazing | No retrofit | 6/12 mm double low-e glazing | |
| T16—Window retrofit on west | No retrofit | 6/12 mm double low-e glazing | 6/12 mm double low-e glazing | 6/12 mm double low-e glazing | 6/12 mm double low-e glazing | |
| External shading | T17—Overhang on south | No retrofit | No retrofit | No retrofit | No retrofit | No retrofit |
| T18—Overhang on north | No retrofit | No retrofit | No retrofit | No retrofit | No retrofit | |
| T19—Overhang on east | No retrofit | No retrofit | No retrofit | No retrofit | No retrofit | |
| T20—Overhang on west | No retrofit | No retrofit | No retrofit | No retrofit | No retrofit | |
| T21—Side fins on south | No retrofit | No retrofit | No retrofit | No retrofit | No retrofit | |
| T22—Side fins on north | No retrofit | No retrofit | No retrofit | No retrofit | No retrofit | |
| T23—Side fins on east | No retrofit | No retrofit | No retrofit | No retrofit | No retrofit | |
| T24—Side fins on west | No retrofit | No retrofit | No retrofit | No retrofit | No retrofit | |
| Internal shading | T25—Shading on south | No retrofit | No retrofit | No retrofit | No retrofit | No retrofit |
| T26—Shading on north | No retrofit | No retrofit | No retrofit | No retrofit | No retrofit | |
| T27—Shading on east | No retrofit | No retrofit | No retrofit | No retrofit | No retrofit | |
| T28—Shading on west | No retrofit | No retrofit | No retrofit | No retrofit | No retrofit |
| NPV (USD) | Investment (USD) | Saved Energy (kWh/m2/year) | Energy Savings Per Cost (ESpC) (kWh/USD) | Energy Saving | Energy Saving Target |
|---|---|---|---|---|---|
| 3870 | 940 | 120 | 148 | 21.98% | 20% |
| 5280 | 1590 | 174 | 127 | 31.88% | 30% |
| 6400 | 2420 | 226 | 108 | 41.47% | 40% |
| 7450 | 3480 | 281 | 94 | 51.62% | 50% |
| 7470 | 5820 | 335 | 67 | 61.48% | 60% |
| Building Systems | Groups of Retrofit Options | Cold Zone | Severe Cold Zone | ||
|---|---|---|---|---|---|
| Retrofit Measures | Costs (USD) | Retrofit Measures | Costs (USD) | ||
| Lighting system | T1—Daylighting control | Fully automatic control | 60 | Fully automatic control | 70 |
| T2—Lighting occupancy control | Fully automatic control | 30 | Fully automatic control | 40 | |
| T3—Constant lighting control | No retrofit | 0 | No retrofit | 0 | |
| T4—Lighting lamps | LED | 30 | LED | 30 | |
| Air conditioning system | T5—Heating system | Pipe system retrofit | 630 | Pipe system retrofit | 740 |
| T6—Cooling system | No retrofit | 0 | No retrofit | 0 | |
| T7—BEM system | No retrofit | 0 | No retrofit | 0 | |
| RE | T8—Solar water heater | No retrofit | 0 | No retrofit | 0 |
| External wall | T9—Insulation on south | 100 mm EPS | 100 | 50 mm EPS | 100 |
| T10—Insulation on north | 50 mm EPS | 170 | 100 mm EPS | 160 | |
| T11—Insulation on east | 30 mm EPS | 80 | 100 mm EPS | 30 | |
| T12—Insulation on west | 50 mm EPS | 170 | 50 mm EPS | 250 | |
| Window system | T13—Window retrofit on south | No retrofit | 0 | 6/12 mm double low-e glazing | 360 |
| T14—Window retrofit on north | 5 mm single low-e | 200 | 6/12 mm double low-e glazing | 150 | |
| T15—Window retrofit on east | 6/12 mm double low-e glazing | 100 | 6/12 mm double low-e glazing | 140 | |
| T16—Window retrofit on west | 6/12 mm double low-e glazing | 130 | 6/12 mm double low-e glazing | 350 | |
| External shading | T17—Overhang on south | No retrofit | 0 | No retrofit | 0 |
| T18—Overhang on north | No retrofit | 0 | No retrofit | 0 | |
| T19—Overhang on east | No retrofit | 0 | No retrofit | 0 | |
| T20—Overhang on west | No retrofit | 0 | No retrofit | 0 | |
| T21—Side fins on south | No retrofit | 0 | No retrofit | 0 | |
| T22—Side fins on north | No retrofit | 0 | No retrofit | 0 | |
| T23—Side fins on east | No retrofit | 0 | No retrofit | 0 | |
| T24—Side fins on west | No retrofit | 0 | No retrofit | 0 | |
| Internal shading | T25—Shading on south | No retrofit | 0 | No retrofit | 0 |
| T26—Shading on north | No retrofit | 0 | No retrofit | 0 | |
| T27—Shading on east | No retrofit | 0 | No retrofit | 0 | |
| T28—Shading on west | No retrofit | 0 | No retrofit | 0 | |
| Total | 1700 | 2420 | |||
| Parameters | Cold Zone | Severe Cold |
|---|---|---|
| NPV (USD) | 6630 | 6410 |
| Investment (USD) | 1700 | 2420 |
| Energy savings (kWh/m2/year) | 217 | 226 |
| Energy savings per cost (ESpC) (kWh/USD) | 144 | 108 |
© 2020 by the authors. Licensee MDPI, Basel, Switzerland. This article is an open access article distributed under the terms and conditions of the Creative Commons Attribution (CC BY) license (http://creativecommons.org/licenses/by/4.0/).
Share and Cite
He, Q.; Hossain, M.U.; Ng, S.T.; Augenbroe, G.L. Retrofitting High-Rise Residential Building in Cold and Severe Cold Zones of China—A Deterministic Decision-Making Mechanism. Sustainability 2020, 12, 5831. https://doi.org/10.3390/su12145831
He Q, Hossain MU, Ng ST, Augenbroe GL. Retrofitting High-Rise Residential Building in Cold and Severe Cold Zones of China—A Deterministic Decision-Making Mechanism. Sustainability. 2020; 12(14):5831. https://doi.org/10.3390/su12145831
Chicago/Turabian StyleHe, Qiong, Md. Uzzal Hossain, S. Thomas Ng, and Godfried L. Augenbroe. 2020. "Retrofitting High-Rise Residential Building in Cold and Severe Cold Zones of China—A Deterministic Decision-Making Mechanism" Sustainability 12, no. 14: 5831. https://doi.org/10.3390/su12145831
APA StyleHe, Q., Hossain, M. U., Ng, S. T., & Augenbroe, G. L. (2020). Retrofitting High-Rise Residential Building in Cold and Severe Cold Zones of China—A Deterministic Decision-Making Mechanism. Sustainability, 12(14), 5831. https://doi.org/10.3390/su12145831
