Abstract
High-quality data on building energy use and indoor pollution are critical to supporting government efforts to reduce carbon emissions and improve the population’s health. This study describes the development of a city-representative housing stock model used for estimating space-cooling energy use and indoor PM2.5 exposure across the Hong Kong housing stock. Archetypes representative of Hong Kong dwellings were developed based on geographically-referenced housing databases. Simulations of unique combinations of archetype, occupation, and environment were run using EnergyPlus, estimating the annual space-cooling energy consumption and annual average PM2.5 exposure concentrations under both non-retrofit and retrofit scenarios. Results show that modern village houses and top-floor flats in high-rise residential buildings, on average, used 19% more space-cooling energy than other archetypes. Dwellings in urban areas had lower exposure to outdoor-sourced PM2.5 and higher exposure to indoor-sourced PM2.5 compared to those in rural areas. The percentage decrease in space-cooling energy consumption caused by energy efficiency retrofits, including external wall insulation, low-e windows, and airtightening, varied significantly based on archetype. The implementation of external wall insulation in the housing stock led to an average decrease of 3.5% in indoor PM2.5 exposure, whilst airtightening and low-e windows resulted in 7.9% and 0.2% average increases in exposure, respectively.
1. Introduction
1.1. Space-Cooling Energy Consumption in Homes
The energy used by homes for space cooling accounted for 5.5% of the total energy use in Hong Kong in 2019 [1], and is expected to increase in the following years due to climate change and the urban heat island effects. For example, according to a tracking report by the International Energy Agency (IEA) [2], electricity demand for space cooling in the residential sector in China and India increased in 2020. Addressing the increasingly high space-cooling energy consumption in homes will first require a deep understanding of the underlying relationship between dwelling characteristics and space-cooling energy demands. Without this insight, the ability of the government to introduce evidence-based policies to seek a significant reduction in space-cooling energy consumption in the residential sector may be compromised [3]. To date, however, such data have been difficult to come by, possibly due to the lack of interest, poor coordination, and lack of a connection between existing databases. Many studies have identified the key factors that impact the amount of space-cooling energy used by Hong Kong dwellings, including the building geometry [4], building fabric (e.g., building airtightness, window types, and levels of insulation in external walls) [5], natural ventilation potential [6], internal gains from occupants and equipment [7], occupant behaviour [8], the storey level of the flat within the containing building [9], orientation [10], and local environment of the building (e.g., shading from surrounding buildings, terrains, and surrounding microclimates) [11]. There can be a high degree of variation in these factors, as evidenced by the fact that space-cooling energy consumption varies significantly across the Hong Kong housing stock [12]. This means that accounting for the variability in these factors is crucial when examining residential space-cooling energy use.
Given the need for the reduction of carbon emissions, and residential space-cooling energy use being one of the main contributors to carbon emissions, it has been suggested that the Hong Kong government should develop energy efficiency programmes that offer improvements in the energy efficiency of homes [13]. Policies around the world are currently promoting the energy efficiency retrofit of the existing housing stock. In Germany, for example, energy-efficient heating and cooling systems were installed in more than 900 dwellings that were built before 1978 [14]. From the perspective of policy makers, focusing on dwellings with great potential to benefit from a certain energy efficiency intervention is an important strategic objective in order to maximise return on the original investment. Many studies have been undertaken to examine the effect of implementing energy efficiency measures in Hong Kong dwellings, where the estimates of energy savings from an energy efficiency measure were based either on comparisons of pre- and post-measure energy bills of homes [7,15] or on dwelling-specific simulations [16,17]. It is unclear from these studies whether the energy efficiency measure needs to be specific for a dwelling, or whether a ‘one-size-fits-all’ measure can be applied throughout the housing stock. A model that can enable estimates of population-wide energy benefits gained from home energy efficiency measures, and can provide insight into how the energy benefits vary according to the dwelling type, will play an important role in shaping energy efficiency policies for the residential sector.
1.2. Population Exposure to Domestic Indoor PM2.5
The level of outdoor fine particulate matter (PM2.5) in Hong Kong is high due to high volumes of traffic and a dense road network [18]. The relationship between population exposure to PM2.5 and negative health effects has increased as a research priority locally, largely due to the increasing burden of healthcare spending [19]. Epidemiological studies, including [20,21,22], examined health consequences using outdoor PM2.5 levels as an estimate of exposure, and there has been significantly less research relating health consequences to indoor PM2.5 exposure. In Hong Kong, people spend approximately 85% of their time indoors [23], meaning that indoor PM2.5 levels can have a huge impact on personal exposure. In addition, while previous studies have taken into account spatially-distributed outdoor PM2.5 levels in estimating health risks [24,25,26], they have normally ignored the way in which the variation in housing stock may influence the health risks that are associated with indoor PM2.5 exposure.
Dwellings, and the way in which they are operated, can significantly impact indoor PM2.5 concentrations from outdoor and indoor sources. PM2.5 from outdoor sources (e.g., traffic) may infiltrate into the building via cracks and gaps in the envelope of the building, via open windows, and via mechanical ventilation systems. A number of factors can influence PM2.5 infiltration, including dwelling geometry [27], dwelling airtightness [28], the storey level of the flat within the containing building [29], location [30], and occupant ventilation behaviour (e.g., window opening or mechanical ventilation systems) [31]. In addition to infiltration, indoor PM2.5 concentrations can be influenced by emissions from indoor sources such as cooking, smoking, showering, dusting, and vacuuming [32]. The level of indoor- or outdoor-sourced PM2.5 is also highly dependent on the removal of PM2.5 from the indoor air via exfiltration, deposition, or ventilation.
Estimating indoor PM2.5 concentrations can be performed using either field measurements or modelling approaches. Many local studies on indoor PM2.5 concentrations were carried out based on field measurements [33,34,35,36], but there is very little empirical evidence to demonstrate the difference in indoor PM2.5 concentrations between different dwelling types. Internationally, the role of dwellings in indoor PM2.5 levels has been examined in some modelling studies. An advantage of using modelling approaches is that PM2.5 concentrations in a great number of dwellings can be examined quickly at a lower cost compared to field measurements. In the study aiming to develop a nationally-representative model of indoor PM2.5 exposure, Fazli and Stephens [37] used infiltration rates for dwellings in different US cities to estimate indoor PM2.5 concentrations; the results indicate a significant difference in indoor PM2.5 exposure between different dwelling types, but the variation in occupant practices made it difficult to isolate the impact of dwellings. Indoor PM2.5 modelling was performed across sets of dwelling types in the UK, showing how flats may have higher exposure to indoor-sourced PM2.5 and lower exposure to outdoor-sourced PM2.5 compared to houses [27]. A nationally-representative housing stock model developed by Taylor et al. [38] indicates that the permeability of the building envelope could lead to significant differences in exposure to outdoor-sourced PM2.5 between different dwellings.
1.3. Objective
The literature review summarised that: (1) accounting for the variability in factors (e.g., dwelling characteristics, occupant behaviour, environment, etc.) that impact the amount of energy used by homes for space cooling is crucial when examining space-cooling energy consumption across the housing stock; (2) there has been little research to produce a model that allows for estimates of the changes to space-cooling energy consumption and indoor PM2.5 exposure caused by home energy efficiency retrofits across Hong Kong; (3) previous epidemiological studies have established the relationships between outdoor PM2.5 exposure and population’s health; however, these relationships might not apply to Hong Kong where the population would spend time largely indoors; and (4) effort is required to estimate population exposure to domestic indoor PM2.5 using Hong Kong’s housing stock and environmental data.
The objective of this study is to develop a model that can be used to estimate space-cooling energy consumption and exposure to indoor PM2.5 across Hong Kong dwellings. The model outcomes associated with the presence of home energy efficiency retrofits can be used by policy makers in devising viable home-energy-efficient and indoor-environmentally-friendly policies. To do this, archetypes broadly representative of the Hong Kong housing stock were developed using geographically-referenced housing databases. The unique combinations of archetype, occupation, and environment were simulated for annual space-cooling energy consumption and annual average exposure concentrations to indoor- and outdoor-sourced PM2.5 using EnergyPlus version 8 [39]. The modelled home energy efficiency retrofits included external wall insulation, low-e windows, and airtightening.
2. Methods
2.1. Housing Data
Housing data were taken from three housing databases, including: (1) the Hong Kong Housing Authority (HA) database that contains records of the number of households in the public rental and subsidised home ownership housing [40]; (2) the Home Affairs Department (HAD) database that contains records of the number of households in private permanent housing [41]; and (3) the EMPORIS database that contains up-to-date building information worldwide [42]. EMPORIS was used as the fundamental database of the city-representative housing stock model, as it provided details about the built form, built age, and geographical location of dwellings. The number of residential buildings in the EMPORIS database (7152) was slightly less than that of the HA and HAD databases combined (7337), indicating good agreement.
Housing types with sufficient information to enable space-cooling energy consumption and indoor PM2.5 concentrations to be estimated included high-rise flats, low-rise flats, tenements, and modern village houses. Internal layouts available in the literature [43,44,45] were assigned to each housing type according to the number of households and built age, leading to 15 different archetypes (Table 1). While dozens of combinations of housing type and internal layout were identified, those having more than ten examples in the housing stock were selected. The modelled archetypes accounted for approximately 1.8 million households, representing 72% of the 2.5 million households in Hong Kong [46]. The example building for each archetype, along with the floor plan, can be seen in Appendix A.
Table 1.
The housing type, built form, built age, and proportion of the 15 archetypes.
The Window-to-Wall Ratio (known as WWR), which is the fraction of the external wall area that is covered by windows, was estimated using the results from a large-scale housing survey conducted by Wan and Yik [47]. Hong Kong GIS resources [48], in conjunction with the EMPORIS database, were used to determine the footprint, orientation, building height, and ceiling height for individual archetypes. In order to reduce the number of simulations, footprints, building heights, or ceiling heights for the buildings that were classified as the same archetype were averaged. Buildings were assigned to four orientations, North (0°), West (90°), South (180°), and East (270°), based on their actual orientation. For instance, if a building was oriented at 75°, then it was modelled at West. The internal-layout-based method developed by the Buildings Department (BD) [49] was used to assess whether the internal layout for each archetype was sufficient for providing cross ventilation; the detailed assessments can be seen in Appendix C. Dwellings older than 1961 were modelled with external shading devices (i.e., overhangs or side fins), based on the estimated prevalence of external shading devices in the Hong Kong housing stock [50]. Geometrical characteristics of the 15 archetypes can be seen in Table 2.
Table 2.
Geometrical characteristics of the 15 archetypes.
Building fabrics (i.e., external walls, ground floors, roofs, and windows) were modelled with U-values selected from the Hong Kong Building Environment Assessment Method (HK-BEAM) lookup tables based on the built age and fabric type of the dwelling [51]. Dwellings were modelled under the assumption that they had the most commonly seen construction materials according to the surveys of Hong Kong residences [50,52,53]. Information about the thermal conductivity of construction materials was obtained from the BD database [49]; the thickness of individual materials was adjusted to reflect the U-values of building fabrics.
The EnergyPlus AirflowNetwork module was used to calculate infiltration driven by wind and/or by forced air. To take into account the variation in infiltration due to wind pressures, the permeability (i.e., the air leakage rate per hour at a difference of 50 Pa between indoor and outdoor pressure, to the building fabric) was used to replace the infiltration rate. To do this, the infiltration rate for each archetype was estimated based on the methodology outlined in ISO 13790 [54]. An advantage of using the ISO 13790 methodology was that infiltration rates for a large number of dwellings could be estimated quickly at lower costs compared to pressurisation tests. The estimated infiltration rate was then converted to permeability using the volume and surface area of the dwelling. The fabric characteristics of the 15 archetypes are summarised in Table 3. For each archetype, the profile of wind pressure coefficients were determined based on the published data [4,55,56,57,58,59,60,61].
Table 3.
A summary of the fabric characteristics for the modelled 15 archetypes.
Shading due to surrounding buildings was modelled using the Land Cover Mapping database [62]. For instance, if the building was in an area that was classified as compact high-rise (i.e., more than 40% of the land was covered by buildings and the average height of buildings in this area was above 25 m), then it was modelled with block arrays representative of this density. Shading flats in multiple-occupancy buildings were treated as copies of the flats of interest, with no heat transferred in the separating walls.
In addition to the 15 archetypes described above, another set of 15 archetypes representative of the possible energy-efficient improvements to the Hong Kong housing stock in the future was developed. Each archetype was given fabric properties reflecting recommended energy efficiency retrofits [63]: (1) external walls were provided with internal insulation, which reduced the U-value of the walls by 40%; (2) low-e coatings were added to the glass panes of windows, resulting in a 30% reduction in SHGC; and (3) permeability of the building envelope was decreased by 3 m3/h/m2. The effects of individual home energy efficiency retrofits on space-cooling energy consumption and exposure to indoor PM2.5 are examined in Section 3.1 and Section 3.2.
2.2. Environmental Data
The weather data, including temperature, relative humidity, wind, atmospheric pressure, cloud cover, and solar radiation, were obtained from the weather dataset published by the Hong Kong Observatory (HKO) [64]. Data on ambient outdoor PM2.5 concentrations at ground level were obtained from the air quality monitoring dataset published by the Environmental Protection Department (EPD) [65]. An environment file that contained concurrent weather and outdoor pollution components was created using these two datasets. The dispersion model developed by Chan and Kwok was used to estimate how the ambient outdoor PM2.5 concentrations varied at different levels above ground [29]. Weather and outdoor pollution data for the 18 districts in Hong Kong (Figure 1) were used to generate site-specific environment files, assuming that dwellings in the same district were under the same environmental conditions. For districts (i.e., North, Tuen Mun, Tai Po, and Kwai Tsing) where there were some weather or pollution data missing, data from the closest district were used instead. Descriptive statistics of the key environmental variables for individual districts can be seen in Appendix D.
Figure 1.
Hong Kong’s 18 districts.
With the location information provided by EMPORIS, dwellings were assigned to the 18 districts and were simulated using the site-specific environment files. Urban/Rural classifications of the Planning Department (PD) were used to classify dwellings into urban or rural category according to their location [66]; simulations were carried out with different wind speed profile coefficients to reflect urban and rural settings [67].
2.3. Model Development
Building physics models of the 15 archetypes were developed using EnergyPlus version 8. Methods and assumptions that were used in the development of models are described in Section 2.3.1, Section 2.3.2, Section 2.3.3 and Section 2.3.4
2.3.1. Dwellings
For tenements and low-rise residential buildings (Archetypes 1–5), simulations were carried out only for middle-floor rooms/flats, under the assumption that these rooms/flats could represent the majority of rooms/flats in the building. For high-rise residential buildings (Archetypes 6–13), ground-, middle-, and top-floor flats were modelled to account for differences in obstruction, wind speed, wind pressure, and ambient outdoor PM2.5 levels between flats on different floors. The flats of interest and the adjoining flats to the sides, above, and below were assumed to have a net heat, air, and contaminant flow of zero between them. Internal doors were closed, except for the bedroom doors that remained open. The living room and bedroom were chosen as the rooms of interest, given the fact that they were the locations (1) where people spent most of their time when they were at home, and (2) where people most frequently installed and used their air conditioners [50]. The living room and bedrooms were treated as a single well-mixed zone for simplicity.
2.3.2. Occupancy
The occupancy modelled with a family of three (two parents and one child) or two pensioners determined internal heat gains and the periods of exposure to indoor PM2.5. The occupancy groups (i.e., the family of three and pensioners) were selected based on their ability to lead to significant changes in space-cooling energy consumption and exposure to indoor PM2.5 [52], whilst the number of occupants was determined based on the statistics showing that the average domestic household size was 2.5 [46]. Occupants were assumed to stay in the combined living-room-and-bedroom zone when they were at home. Dwellings with the family occupancy were simulated to be unoccupied between 08:30 and 18:30 on weekdays, and occupied at all other times, while those with the pensioner occupancy were occupied for 24 h per day, 7 days per week. Internal heat gains from occupants (130 W per person), lighting (550 W), and electric equipment (700 W) were modelled as per CIBSE [68]. The net generation rate of moisture inside the home was modelled at 9.8 kg per day [69].
2.3.3. Cooling and Ventilation
Cooling was modelled to a 24 °C set-point during the period from April through October [70,71]. The period of the cooling season was consistent with the results from the surveys of Hong Kong households indicating that people rarely switched air conditioners on during the period from November to March [52,72,73]. The cooling system was a split-type air conditioner, which removed heat from the indoor air without bringing in fresh air from outside. The COP of the split-type air conditioner was set as 2.8, according to the Code of Practice for Energy Efficiency of Building Services Installation [74]. Heating devices and mechanical ventilation systems were not modelled because of their rarity in the Hong Kong domestic sector. Extract fans in the kitchen and bathroom ran during cooking and showering, and were sized in accordance with building regulation requirements [75].
Occupant-controlled window opening was modelled to occur in the combined living-room-and-bedroom zone during the period from November to March (i.e., when the buildings were in a free-running mode). The behavioural model developed by Haldi and Robinson [76], which has been shown to accurately predict occupant window opening behaviour in Hong Kong dwellings [77], was used to capture occupants’ window-use patterns. Given the fact that the behavioural model can only work in cases where there is no air conditioning, a rule-based window opening schedule was used for the cooling season. When indoor temperatures were in the range of 18 °C to 24 °C, windows were opened in the combined living-room-and bedroom zone. When indoor temperatures were below 18 °C, windows were closed. In both cases, windows were closed if outdoor temperatures were greater than indoor temperatures, if no one was at home, or if the air conditioning was switched on. The criteria used to determine whether windows could be opened are broadly consistent with the field studies of occupant window opening behaviour [15,78].
2.3.4. PM2.5 Transport
EnergyPlus version 8 can model the transport of PM2.5 based on the Generic Contaminant transport algorithm [79]. The infiltration of PM2.5 from outdoor sources was modelled through cracks in the building envelope (i.e., the external walls, roof, and ground floor) and open windows. Cracks were put at the top and bottom of the external walls of the dwelling, in order to take into account the difference in wind pressure according to the ceiling height. Cracks were assigned air mass flow exponents of 0.66 and the reference air mass flow coefficients were dependent on the dwelling airtightness and surface area [80]. The penetration factor of PM2.5 was 0.8 if windows were closed and 1.0 if windows were open [28]. Internal walls were modelled with cracks, allowing the transport of PM2.5 between rooms. Indoor-sourced PM2.5 were those from cooking in the kitchen (1.6 mg/min) and showering in the bathroom (0.04 mg/min) [81]; the emission schedules of indoor-sourced PM2.5 can be seen in Table 4. Smoking was ignored because of the great uncertainty about the emission schedule. PM2.5 deposition was modelled at a rate of 0.19 h−1 [82]. Air purifiers (or filters installed in air conditioners) that can help reduce indoor PM2.5 concentrations were not modelled due to their rarity in the Hong Kong domestic stock.
Table 4.
The periods of PM2.5 emissions from indoor sources.
2.4. Simulation and Data Collation
Simulations were carried out for the combinations of variables that included:
- 15 archetypes (31 variants including flats on the ground, middle, and top floors);
- 4 orientations (North, West, South, and East);
- 18 locations (weather and outdoor pollution data for 18 districts);
- 5 types of overshadowing (compact high-rise, compact low-rise, open high-rise, open low-rise, and sparsely built);
- 2 types of terrain (urban and rural);
- 2 occupancy groups (two pensioners and a family of three);
- 3 types of fabric retrofits (external wall insulation, low-e windows, and airtightening).
First, EnergyPlus input files for the 31 archetype variants were created using OpenStudio Sketchup Plug-in [83], which allows users to quickly input building geometry. Next, a python-based simulation tool, jEPlus [84], capable of rapidly editing EnergyPlus input files, was used to generate EnergyPlus input files that contained unique combinations of the variables described above. Finally, simulations were run for each combination for a full year using EnergyPlus’s built-in batch file, RunEPlus.bat.
Space-cooling energy consumption was calculated at 10-min intervals and the results output hourly. Indoor PM2.5 concentrations were calculated at 10-min intervals and output hourly alongside ambient outdoor PM2.5 concentrations. Data collation was carried out using SAS [85], which collated the simulation results, and calculated space-cooling energy consumption (kWh/m2) by dividing space-cooling energy consumption for flats on the same floor by the total floor area of these flats, and determined indoor PM2.5 exposure (averaged over the flats on the same floor) by overlaying the occupancy profile on the indoor PM2.5 concentration profile. To date, there was a lack of information on occupancy patterns for individual archetype variants. Considering that working people comprised 50% of the population [86], the estimates of space-cooling energy consumption and exposure to indoor PM2.5 for each dwelling were made by averaging the family and pensioner occupancy results.
2.5. Model Validation
The robustness of the city-representative housing stock model developed in this study was assessed on two grounds: (1) how accurately EnergyPlus version 8 could predict space-cooling energy use and indoor PM2.5 concentrations for a typical Hong Kong dwelling; and (2) whether the simulation results of space-cooling energy consumption and indoor PM2.5 concentrations across the housing stock were consistent with public data from the government and other studies. The assessment of the predictive power of EnergyPlus is presented in this section, whilst comparisons between the simulation results and public data can be seen in Section 4.2.
Measurement data on space-cooling energy use and indoor PM2.5 levels for a flat located in Kowloon (Figure 2) were used to assess the prediction accuracy of the EnergyPlus model. The flat was composed of a living room, two bedrooms, a bathroom, a kitchen, and a balcony. Fabric U-values were 3.1 W/m2K for external walls, 0.54 W/m2K for the ground floor, 0.42 W/m2K for the roof, and 4.6 W/m2K for windows. The window glass had a SHGC of 0.76. The permeability of the building envelope was 10.1 m3 h−1 m−2 at 50 Pa. Measurements were carried out in Bedroom 1, which had an air conditioner with a COP of 2.8 and a rated cooling capacity of 1.9 kW. Windows and internal doors were closed. Weather data were collected from a meteorological station nearby.
Figure 2.
(a) The measured flat; (b) the floor plan of the measured flat.
Measurements of space-cooling energy consumption were taken from 28 September 2017 to 30 September 2017, with the cooling setpoint set as 24 °C. A portable power meter (SP2; BroadLink, Hangzhou, China) was used to measure hourly electrical energy consumption for air conditioning. Measurements of indoor PM2.5 levels were conducted from 15 November 2017 to 17 November 2017, during which the air conditioning was switched off. The levels of indoor and ambient outdoor PM2.5 were measured every hour using two air pollution monitors (DUSTTRAK 8530EP; TSI, Shoreview, MN, USA), which were newly calibrated and were accurate to ±5% (with a measurement range of 0.001 mg/m3 to 150 mg/m3). One air pollution monitor was placed in the middle of Bedroom 1 for measurements of indoor concentrations, and the other was placed in the stairs for measurements of ambient outdoor concentrations (Figure 2b).
The measured flat was modelled in EnergyPlus version 8 using the geometry, fabric characteristics, occupancy schedule, weather conditions, ambient outdoor PM2.5 levels, and air conditioner as described above. The deposition rate of indoor PM2.5 was modelled at 0.19 h−1 [82], whilst the penetration factor was assumed to be 0.8 [28]. The measurement and simulation results for 29 September 2017 (electricity use) and 16 November 2017 (PM2.5 concentrations) were used for analysis. The simulated amount of electricity consumption for air conditioning was consistent with that obtained from the field measurement (Figure 3), with an average error of 5.2%. The simulated indoor PM2.5 levels were also generally in line with the measurements (Figure 4), with an average error of 8.9%. The discrepancy in concentrations was possibly due to the modelled deposition of PM2.5 not being very representative of the actual PM2.5 deposition seen in the measured flat. In conclusion, EnergyPlus version 8 could be used to accurately estimating space-cooling energy use and indoor PM2.5 concentrations for a typical dwelling in Hong Kong; this was fundamental to reasonable estimates of space-cooling energy use and indoor PM2.5 levels across the housing stock.
Figure 3.
The measured and simulated electricity consumption of the air conditioner.
Figure 4.
The measured and simulated indoor PM2.5 concentrations for the flat.
3. Results
3.1. Space-Cooling Energy Use across the Housing Stock
A simple initial statistical analysis was carried out to compare space-cooling energy consumption between different archetypes (Figure 5). The top-floor flats in high-rise residential buildings (Archetypes 6c–13c) and modern village houses (Archetypes 14–15), on average, used 19% more space-cooling energy than other archetypes. The archetypes that used the lowest amount of space-cooling energy were ground-floor flats in high-rise residential buildings (Archetypes 6a–13a). Comparisons among Archetypes 6–13 show that high-rise flats with an internal layout sufficient for providing cross ventilation (i.e., Archetypes 8, 11, and 13, as described in Table 2), on average, used 7.2% less space-cooling energy than the non-cross-ventilation counterparts. Pensioners had a greater demand for space cooling than the family of three, attributable to their presence inside the home during the daytime. Compared with the pensioner results, the family results show less significant variation in space-cooling energy consumption between different archetypes. A likely explanation for this is that people were not at home during the periods of high solar radiation, in which case the difference in the space-cooling energy use between dwellings caused by shading (which had been taken into account based on the archetype, location, and terrain) was relatively small. Figure 6 shows the spatial trend of space-cooling energy consumption for Archetype 5; other archetypes showed similar spatial trends. As expected, dwellings modelled under the microclimate of Sham Shui Po or Wan Chai (which had a relatively higher annual average outdoor temperature, as described in Appendix D) were seen to have the greatest energy demand for space cooling, while those under the microclimate of Tsuen Wan had the lowest space-cooling energy demand.
Figure 5.
Space-cooling energy consumption for different archetypes (a: ground-floor flats, b: middle-floor flats, and c: top-floor flats) with the pensioner/family occupancy. The error bars indicate ±1 standard deviation.
Figure 6.
The space-cooling energy consumption for Archetype 5 under different microclimates, averaged over the pensioner and family results. The error bars indicate ±1 standard deviation.
The percentage change to space-cooling energy consumption caused by fabric retrofits is shown in Figure 7, in which the negative values mean that there were energy benefits to be had from each retrofit. The trend was the same for each archetype—low-e windows led to the largest reduction in space-cooling energy consumption, then the tightening of the building envelope, and finally the external wall insulation. Compared with low- and high-rise residential buildings (Archetypes 3–13), tenements (Archetypes 1–2) and modern village houses (Archetypes 14–15) saw a greater percentage decrease in space-cooling energy consumption following each fabric retrofit, largely because they had a greater externally exposed surface-area-to-volume ratio and a larger WWR.
Figure 7.
The percentage change to space-cooling energy consumption caused by individual fabric retrofits amongst the modelled archetypes (a: ground-floor flats, b: middle-floor flats, and c: top-floor flats), averaged over the pensioner and family results.
3.2. Indoor PM2.5 Exposure across the Housing Stock
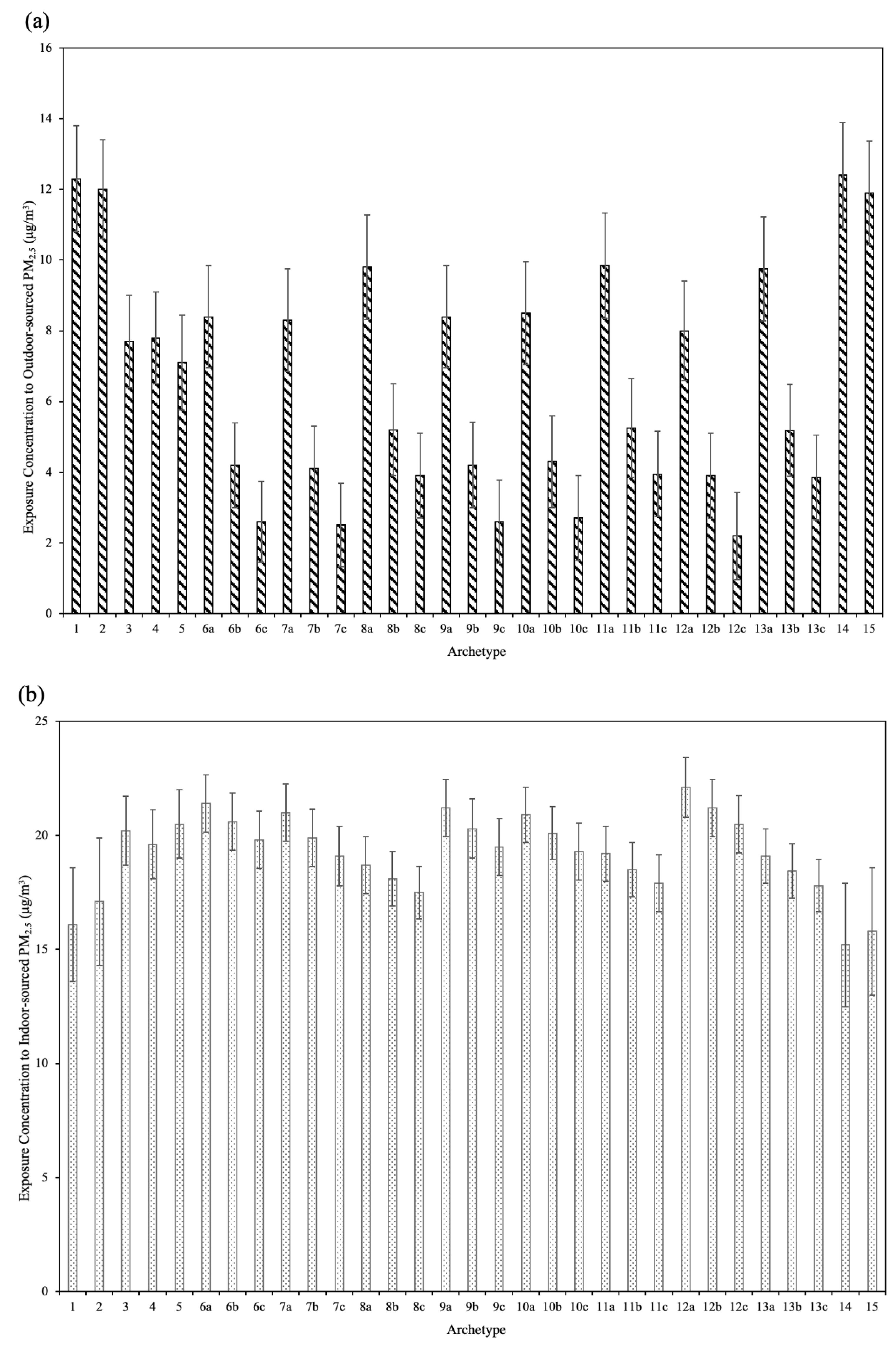
The EnergyPlus results show a range of annual average exposure concentrations to PM2.5 from different sources across the housing stock (Figure 8). The exposure to PM2.5 from outdoor sources was found to be lower in low- and high-rise flats (Archetypes 3–13), and higher in tenements (Archetypes 1–2) and modern village houses (Archetypes 14–15). This supports previous research on the infiltration of PM2.5 into buildings [27], suggesting that reducing the permeability of the building envelope or externally exposed surface-area-to-volume ratio could help reduce exposure to outdoor-sourced PM2.5 (refer to Table 3 for information about the permeability of individual archetypes). For high-rise residential buildings, middle- and top-floor flats (Archetypes 6b–13b and Archetypes 6c–13c, respectively) had lower exposure to PM2.5 from outdoor sources compared to ground-floor flats (Archetypes 6a–13a), attributable to the ambient outdoor PM2.5 concentrations outside flats towards the top of the containing building being lower than concentrations at the bottom (Table A3 in Appendix D). Comparisons between Archetypes 6–13 show that high-rise flats with the ability to cross-ventilate (Archetypes 8, 11, and 13) had greater exposure to PM2.5 from outdoor sources compared to the non-cross-ventilation counterparts. Dwelling-to-dwelling differences for PM2.5 from indoor sources are generally the inverse of those observed for PM2.5 from outdoor sources, with tenements and modern village houses exhibiting lower exposure to PM2.5 from indoor sources compared to low- and high-rise flats, and high-rise flats with the ability to cross-ventilate showing lower exposure compared to the non-cross-ventilation counterparts. Even with the incorporation of extract fans into the kitchen and bathroom, exposure concentrations to PM2.5 from cooking and showering were seen to be larger than those to PM2.5 from outdoor sources in most of the dwellings.
Figure 8.
Annual average exposure concentrations to (a) outdoor-sourced PM2.5 and (b) indoor-sourced PM2.5 for individual archetypes (a: ground-floor flats, b: middle-floor flats, and c: top-floor flats), averaged over the pensioner and family results. The error bars indicate ±1 standard deviation.
The city-wide trend for exposure to PM2.5 from outdoor sources can be seen in Figure 9, where the results were weighted by the proportion of individual archetypes in the same district. Exposure concentrations to outdoor-sourced PM2.5 were found to be higher in the Islands, North, and Sai Kung, due to leaky modern village houses (Archetypes 14–15) being the dominant archetype (as described in Appendix B) and greater exposure to wind (i.e., a rural setting for most of the dwellings), and lower in other districts due to the prevalence of airtight low- and high-rise flats (Archetypes 3–13) and lower wind exposure (i.e., an urban setting for most of the dwellings). This result is in contrast to the data of outdoor PM2.5, which show that higher outdoor PM2.5 concentrations were generally found in urban areas. Dwellings in Yau Tsim Mong, in which there were busy roads and mainline tracks nearby, were seen to have greater exposure to outdoor-sourced PM2.5 in comparison to those in other urban locations. Dwellings in Tsuen Wan exhibited the lowest exposure to PM2.5 from outdoor sources. Exposure concentrations to indoor-sourced PM2.5 were seen to be the opposite of those to outdoor-sourced PM2.5, with lower exposure in areas where there was a large number of leaky dwellings present, higher exposure in areas where there was a large number of airtight dwellings present, and dwellings in Tsuen Wan being the most vulnerable to high PM2.5 concentrations from indoor sources.
Figure 9.
Exposure concentrations to indoor- and outdoor-sourced PM2.5 for dwellings across Hong Kong, averaged over the pensioner and family results.
The percentage change to indoor PM2.5 exposure caused by individual fabric retrofits across the housing stock can be seen in Figure 10, where the positive and negative values show increased and reduced exposure, respectively. The airtightening of the building envelope helped reduce exposure to outdoor-sourced PM2.5, however, at the cost of higher exposure concentrations to PM2.5 from indoor sources. The implementation of external wall insulation was observed to increase exposure to PM2.5 from outdoor sources and reduce exposure to PM2.5 from indoor sources. Compared with airtightening and external wall insulation, the influence of low-e windows on exposure from outdoor and indoor sources was much less significant. The modelled fabric retrofits had a greater influence on exposure to indoor- or outdoor-sourced PM2.5 for tenements (Archetypes 1–2) and modern village houses (Archetypes 14–15), largely because of their higher outside exposed surface-area-to-volume ratio and WWR. When combining exposure from outdoor and indoor sources, the modelled archetypes saw 7.9% and 0.2% average increases in exposure from airtightening and low-e windows, respectively, and an average decrease of 3.5% in exposure from external wall insulation.

Figure 10.
The percentage change to exposure to (a) PM2.5 from outdoor sources; (b) PM2.5 from indoor sources; and (c) indoor PM2.5 caused by each fabric retrofit amongst the 15 archetypes (a: ground-floor flats, b: middle-floor flats, and c: top-floor flats), averaged over the pensioner and family results.
4. Discussion
4.1. The Housing Stock Model
The EMPORIS database that contains detailed building and location data was the most extensive database available when the study was carried out. When compared to the government databases, EMPORIS has shown a good agreement in terms of the number of dwellings. Although extensive, the EMPORIS database lacks information about the built form or built age for 28% of the households in Hong Kong. In addition, EMPORIS does not contain retrofit information across the city, so there is a bias towards the ‘as-built’ dwellings that have not undergone refurbishment (e.g., wall cavity insulation, duct-sealing, or reorganising the internal layout of the dwelling). Not all of the dwellings that have a unique archetype have been modelled, for example, dwellings with a loft or a green roof. Developing archetypes for each dwelling in the housing stock is unrealistic and will require considerable time to simulate via building simulation tools available at the time of the study. However, the archetypes were modelled to represent the majority of dwellings in Hong Kong rather than a specific dwelling, and the deviation of each dwelling from the nominal archetype can be minimised if the results apply to a wide geographical scale—in this case, the whole city.
HVAC systems such as heating systems, mechanical ventilation systems, and air purifiers (or filters in air conditioners) have not been considered because of their relative rarity in the Hong Kong domestic stock. Local shading has been taken into account according to the archetype, location, and terrain, while shading from other sources such as vegetation or signboards (commonly seen in tenements) was not modelled because of a lack of data on building-specific overshadowing. The role of occupants in space-cooling energy consumption and exposure to indoor PM2.5 has not been investigated beyond the two occupancy patterns described in Section 2.3.2. There can be a great degree of variation in model outputs due to uncertainty over the occupancy pattern, for example, people who work overtime in the office being less likely to have high space-cooling energy costs at home, and those who smoke being more vulnerable to great exposure to indoor PM2.5.
4.2. Model Outcomes
By using a city-representative housing stock model, this study has been able to examine space-cooling energy use and exposure to indoor PM2.5 across the Hong Kong housing stock, and how energy efficiency retrofits may influence population exposure to domestic indoor PM2.5. The model outcomes (Figure 5) indicate that modern village houses and top-floor flats in high-rise residential buildings used more space-cooling energy than other dwellings. The increasing demand for housing may imply that flats on high floors will become more common in the future, which may result in higher space-cooling demand in the residential sector. High-rise flats with an internal layout that facilitated cross ventilation were found to have a lower space-cooling energy consumption compared to the non-cross-ventilation counterparts. While cross-ventilation via open windows leads to a reduction in the space-cooling energy consumption, this may not be applicable to the entire housing stock, for instance, the dwellings with security concerns. The significant variability of home space-cooling energy use between different districts (Figure 6) indicates that the microclimate is potentially a key factor in determining the space-cooling energy consumption for dwellings, and that modelling studies examining the space-cooling energy consumption across the housing stock should include location-specific weather files. This study did not consider variations in local temperatures caused by the urban heat island effects, even though they are expected to amplify the differences in home space-cooling energy use between urban and rural locations.
Government policies encouraging the uptake of energy efficiency interventions in the Hong Kong housing stock are currently being implemented [87], which means that the number of retrofit dwellings is expected to increase. An examination of the space-cooling energy use in dwellings with fabric retrofits (i.e., external wall insulation, airtightening, and low-e windows) (Figure 7) agrees with previous research showing that retrofit dwellings used less space-cooling energy in comparison to the non-retrofit counterparts [5,63]. This energy benefit could be attributable to a lower rate of heat gain during peak demand hours. The percentage change of space-cooling energy consumption caused by fabric retrofits shows, in some cases, a significant difference between different archetypes, highlighting the necessity of taking into account the modifying effect of archetypes when investigating the energy benefits of home energy efficiency retrofits.
According to the data on the use of energy in Hong Kong [88], the annual electricity used for space cooling for a household in 2018 was 40.9 kWh/m2, which is 9.7% lower than the value obtained in this study. There are several likely reasons for this discrepancy, including: (1) the modelled two occupancy patterns (i.e., the family and pensioners) did not account for holidays when people are possibly away from home; (2) giving equal weight to the two occupancy patterns may overestimate the number of dwellings with the pensioner occupancy, which were found to use more space-cooling energy than those with the family occupancy; (3) cooling was modelled to a 24 °C set-point, while the actual cooling set-points may vary across dwellings and can be greater than the modelled ones; (4) the living room and bedrooms of a dwelling were modelled as a single thermal zone and were, therefore, air-conditioned simultaneously, which may not reflect the fact that only the occupied room is air-conditioned; (5) a considerable number of dwellings may be equipped with air conditioners with a COP greater than 2.8; and (6) occupants may occasionally use fans instead of air conditioners for cooling.
The spatial variation in outdoor PM2.5 concentrations (Figure 9) indicates that the level of outdoor PM2.5 was higher in urban areas (e.g., Tuen Mun, Yau Tsim Mong, and Wan Chai) than in rural areas (e.g., Islands, North, and Sai Kung). However, taking into account the modifying effect of archetypes led to an obvious inversion of the exposure risk. PM2.5 infiltration was greatly affected by the exposure to wind, which, when in conjunction with the leaky modern village houses being the dominant dwelling archetype, meant that high PM2.5 concentrations from outdoor sources were seen in rural areas. Compared with those in rural areas, dwellings in urban areas had lower PM2.5 concentrations from outdoor sources regardless of the high outdoor concentrations, attributable to the predominance of smaller and more airtight archetypes such as low- and high-rise flats. The exposure to indoor-sourced PM2.5 was seen to be the opposite of that to outdoor-sourced PM2.5, with greater exposure for dwellings in urban areas.
By using a behavioural model to simulate occupant-controlled window opening, this work has been able to determine the difference in exposure between dwellings caused by different window-use patterns. Top-floor flats in high-rise residential buildings are generally more susceptible to high indoor temperatures in comparison to ground- and middle-floor flats, meaning that people may open windows at a higher frequency to maintain as comfortable a temperature as possible. Dwellings with a larger amount of window-opening may facilitate the removal of indoor-produced PM2.5. This is supported by Figure 8 showing that top-floor flats had lower exposure to PM2.5 from indoor sources in comparison to ground- and middle-floor flats. Similarly, dwellings in Sham Shui Po or Wan Chai showed lower levels of exposure to PM2.5 from indoor sources in comparison to those in Tsuen Wan (Figure 9), due to an increase in the amount of window-opening caused by higher outdoor temperatures.
Airtightening was seen to be dangerous for increasing the risk of indoor PM2.5 exposure, in line with previous studies [28,30], while the low-e window was seen to be a much less significant factor in determining the exposure risk (Figure 10). External wall insulation could help reduce indoor PM2.5 exposure concentrations. One possible reason for this health benefit is that external wall insulation limited heat loss through the building envelope and, therefore, increased indoor temperatures, in which case, people have to ventilate the room more (and therefore, have lower exposure to PM2.5 from indoor sources) in order to try to maintain desired levels of thermal comfort.
While there is a lack of data on population exposure to PM2.5 in Hong Kong dwellings, the model outcomes (Figure 8) are generally in line with previous studies. The measurements taken in 63 dwellings in the New Territories estimated a range of average indoor PM2.5 concentrations of 26.3 ± 12.0 µg/m3 [33,36], similar to the range of values (20.2 to 29.7 µg/m3) obtained in this study. The results of cooking-produced PM2.5 measurements taken by Wan et al. [89] are similar in terms of magnitude, but are hard to directly compare with the model outcomes due to differences in the way kitchen extract fans operate. Some local studies [34,35] have found infiltration factors (which represent the proportion of outdoor pollutants that penetrate the building and remain suspended) ranging from 0.29 to 0.82, which are also similar to the model outcomes (0.35 to 0.67).
4.3. Limitations and Further Research
There are some simplifications that could impact the model outcomes. In terms of occupant window opening behaviour during the cooling season, the static temperature thresholds for opening and closing windows were selected based on field studies [15,78], however, there can be a significant variation in this behaviour. For example, while an increase in ventilation will be normally required when indoor temperatures exceed 18 °C, it could be the case that windows are opened at a higher indoor temperature due to occupant adaptation to a warmer indoor environment. In addition, temperature is a key factor that influences occupants’ window operation, but windows may not be only opened for ventilative cooling, or can be closed for security reasons. Finally, the model assumption that bedroom doors remained open may not reflect the reality that occupants may keep bedroom doors closed, especially those who share a flat.
There are also some uncertainties about indoor PM2.5 modelling. Emissions from cooking and showering are likely to vary across dwellings according to the size of the dwelling and the number of occupants, whilst the deposition rate is highly sensitive to the dwelling-specific wall finishes (e.g., tiles or plaster), air speed, and turbulence intensity [90]. The penetration factor is largely dependent on the size of the particle [82], but to simplify simulations and analyses, PM2.5 was treated as a single particle. The penetration factor was assumed to be 1.0 when windows were open, but there is evidence that the penetration factor largely depends on the area of window-opening [91]. The model outcomes indicate that fabrics play an important role in determining indoor PM2.5 exposure. However, a single set of fabrics was assigned to individual archetypes. The fabrics may vary across dwellings that are classified as the same archetype, and therefore, can lead to significant variation in exposure to indoor PM2.5. While cooking and showering were considered as the only indoor PM2.5 sources, PM2.5 can be produced indoors through other indoor activities such as smoking and cleaning. The above-mentioned uncertainties imply that the model outcomes reflect the potential role of dwellings in indoor PM2.5 exposure, but may not be representative of the actual differences in indoor PM2.5 exposure between different dwellings.
The model validation was based on short-period measurements for a typical Hong Kong flat with a single set of fabrics, and therefore, could not provide enough information about the ability of the model to accurately predict the year-round building performance or the performance of flats with different sets of fabrics. Future work will carry out field measurements for a wider housing stock. By focusing work on the current environment, this study is unable to predict future changes in building performance due to climate change and government policies to reduce PM2.5 emissions. Further work will use the foundations of this study to develop an EnergyPlus model that is able to reflect changes in climate and outdoor PM2.5 concentrations. Additionally, future work will apply the outcomes of this study towards an epidemiological study, allowing the relationship between the housing and health effects due to domestic indoor PM2.5 exposure to be better understood.
5. Conclusions
This study reports the outcomes of a city-representative housing stock model developed for the Hong Kong housing stock, illustrating the role of housing on space-cooling energy consumption and exposure to indoor PM2.5, the areas where households were expected to have higher space-cooling energy costs and greater exposure to indoor- and outdoor-sourced PM2.5, and the impacts of home energy-efficient retrofits on space-cooling energy use and exposure to indoor PM2.5 across the housing stock. The main outcomes of this study are:
- Modern village houses and top-floor flats in high-rise residential buildings, on average, used 19% more space-cooling energy than other dwelling archetypes. Dwellings in Sham Shui Po and Wan Chai were seen to have the greatest energy demand for space cooling, while those in Tsuen Wan had the lowest. High-rise flats with the ability to cross-ventilate, on average, used 7.2% less space-cooling energy than the non-cross-ventilation counterparts;
- There were considerable energy benefits to be had from the modelled energy efficiency retrofits, including external wall insulation, airtightening, and low-e windows. The reduction in the space-cooling energy consumption caused by individual retrofits shows, in some cases, a significant difference between different archetypes, highlighting the importance of considering the modifying effect of archetypes when investigating the energy benefits of home energy efficiency retrofits;
- Exposure to indoor PM2.5 was found to vary according to the geographical location, with lower exposure to outdoor-sourced PM2.5 for dwellings in urban areas due to airtight low- and high-rise flats being the dominant dwelling archetypes, and higher exposure to outdoor-sourced PM2.5 for dwellings in rural areas due to the predominance of leaky modern village houses. This variation was in contrast to the profile of outdoor PM2.5 concentrations, which showed that outdoor PM2.5 concentrations were higher in urban areas than in rural areas. The inverse effect was found for exposure to indoor-sourced PM2.5, with dwellings in urban areas exhibiting greater exposure than those in rural areas;
- The modelled energy efficiency retrofits had a greater impact on exposure from indoor or outdoor sources for tenements and modern village houses than on exposure from indoor or outdoor sources for flats. When combining exposure to indoor PM2.5 from different sources, the housing stock saw 7.9% and 0.2% average increases in exposure from airtightening and low-e windows, respectively, and an average decrease of 3.5% in exposure from external wall insulation.
The outcomes of the housing stock model could be used to help enhance the ability of the government to introduce evidence-based policies (for example, targeting energy efficiency measures to dwellings with a great demand for space cooling, focusing on dwellings with great potential to benefit from a certain energy efficiency retrofit, and taking energy efficiency measures that increase the energy efficiency of the housing stock while reducing indoor PM2.5 exposure concentrations) to reduce carbon footprints and improve the population’s health.
Author Contributions
Conceptualisation, X.Z., Z.Z. and R.Z.; methodology, X.Z. and Z.Z.; software, Z.Z.; validation, X.Z., Z.Z. and R.Z.; formal analysis, X.Z. and Z.Z.; investigation, X.Z., Z.Z. and W.W.; resources, Z.Z. and W.W.; data curation, Z.Z.; writing—original draft preparation, X.Z. and Z.Z.; writing—review and editing, X.Z., Z.Z., R.Z. and W.W.; visualisation, X.Z. and Z.Z.; supervision, Z.Z. and W.W.; project administration, Z.Z. and W.W.; funding acquisition, Z.Z. All authors have read and agreed to the published version of the manuscript.
Funding
This research was funded by the Ningbo Science and Technology Bureau under the Major Science and Technology Programme, grant number 2022Z161.
Data Availability Statement
The data presented in this study are available on request from the corresponding author.
Acknowledgments
The authors would like to thank the Department of Architecture and Built Environment, University of Nottingham, Ningbo China, and the School of Energy and Environment, City University of Hong Kong, for providing the materials used for the experiments and simulations.
Conflicts of Interest
The authors declare no conflict of interest.
Appendix A
The example building for each archetype, along with the floor plan, can be seen in Table A1.
Table A1.
The example building for each archetype, along with the floor plan.
Table A1.
The example building for each archetype, along with the floor plan.
| Archetype | Example Building | Floor Plan |
|---|---|---|
| 1 | ![]() | ![]() |
| 2 | ![]() | ![]() |
| 3 | ![]() | ![]() |
| 4 | ![]() | ![]() |
| 5 | ![]() | ![]() |
| 6 | ![]() | ![]() |
| 7 | ![]() | ![]() |
| 8 | ![]() | ![]() |
| 9 | ![]() | ![]() |
| 10 | ![]() | ![]() |
| 11 | ![]() | ![]() |
| 12 | ![]() | ![]() |
| 13 | ![]() | ![]() |
| 14 | ![]() | ![]() |
| 15 | ![]() | ![]() |
Appendix B
Figure A1 shows the proportion of individual archetypes in the Hong Kong housing stock, broken down by district.
Figure A1.
The proportion of individual archetypes in the housing stock, broken down by district.
Figure A1.
The proportion of individual archetypes in the housing stock, broken down by district.

Appendix C
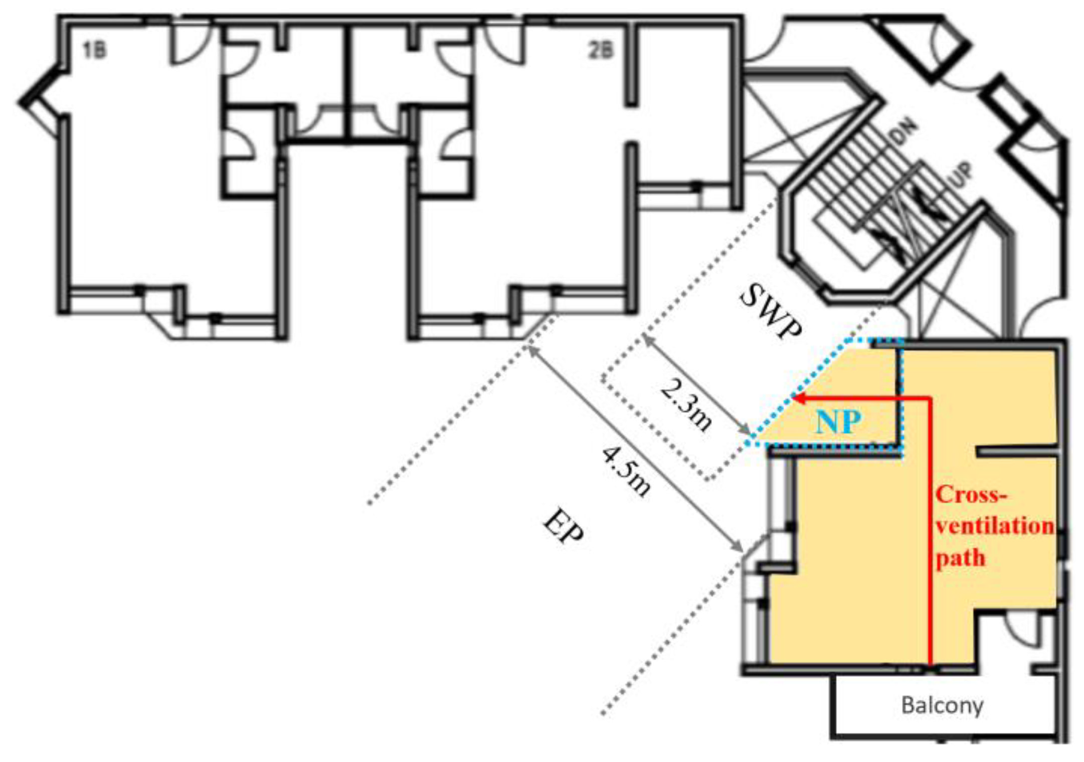
According to the Buildings Department (BD), a dwelling can enjoy adequate cross ventilation if it meets the following geometrical requirements [49]:
- The cross-ventilation path between the primary window-opening and secondary window-opening should be composed of no more than two straight lines (i.e., one turn only);
- The angle of the turn should not be greater than 90°;
- The length of the cross-ventilation path should be less than 12 m. For buildings with concave surfaces, the External Plane (EP) (Figure A2) with a width greater than 4.5 m has similar flow characteristics to the free airstream. A Secondary Window Plane (SWP) with a width of 2.3 m occurs when the width of the EP is less than 4.5 m. A window located in the SWP is considered as the acceptable secondary window-opening. If the window is located outside the SWP, then the ventilated area should be extended by a Notional Plane (NP) (with a width equal to that of the secondary window opening), which connects the secondary window-opening and the SWP. The depth of the NP is added to the length of the cross-ventilation path;
Figure A2.
Schematics of the external plane, secondary window plane, and notional plane for buildings with concave surfaces.
Figure A2.
Schematics of the external plane, secondary window plane, and notional plane for buildings with concave surfaces.

- The primary and secondary window-opening should be located apart with a reasonable distance. To assess this, a rectangle bounding the ventilated space is divided into two equal pieces through the longer side. The two windows should be located in different pieces of the rectangle.
The assessments of the cross-ventilation potential for the 15 archetypes can be seen in Table A2.
Table A2.
The assessments of the cross-ventilation potential for the modelled 15 archetypes.
Table A2.
The assessments of the cross-ventilation potential for the modelled 15 archetypes.
| Archetype | Requirements Met | Schematics | Remarks |
|---|---|---|---|
| 1 | (1), (2), (3), (4) | ![]() | Each room (including the living room and bedrooms) meets all the geometrical requirements, and therefore, has a good ability to cross-ventilate. |
| 2 | None | ![]() | Each room has no significant secondary window opening and is, therefore, not likely to have adequate cross ventilation. |
| 3 | None | ![]() | Each flat has no significant secondary window opening and is, therefore, not likely to have adequate cross ventilation. |
| 4 | None | ![]() | Each flat has no significant secondary window opening and is, therefore, not likely to have adequate cross ventilation. |
| 5 | None | ![]() | Each flat has no significant secondary window opening and is, therefore, not likely to have adequate cross ventilation. |
| 6 | None | ![]() | Each flat has no significant secondary window opening and is, therefore, not likely to have adequate cross ventilation. |
| 7 | None | ![]() | Each flat has no significant secondary window opening and is, therefore, not likely to have adequate cross ventilation. |
| 8 | (1), (2), (3), (4) | ![]() | The ventilated space (including the living room and bedrooms) of individual flats meets all the geometrical requirements, and therefore, has a good ability to cross-ventilate. |
| 9 | None | ![]() | Each flat has no significant secondary window opening and is, therefore, not likely to have adequate cross ventilation. |
| 10 | None | ![]() | Each flat has no significant secondary window opening and is, therefore, not likely to have adequate cross ventilation. |
| 11 | (1), (2), (3), (4) | ![]() | The ventilated space (including the living room and bedrooms) of individual flats meets all the geometrical requirements, and therefore, has a good ability to cross-ventilate. |
| 12 | None | ![]() | Each flat has no significant secondary window opening and is, therefore, not likely to have adequate cross ventilation. |
| 13 | (1), (2), (3), (4) | ![]() | The ventilated space (including the living room and bedrooms) of individual flats meets all the geometrical requirements, and therefore, has a good ability to cross-ventilate. |
| 14 | (1), (2), (3), (4) | ![]() | The ventilated space (including the living room and bedrooms) of individual rooms meets all the geometrical requirements, and therefore, has a good ability to cross-ventilate. |
| 15 | (1), (2), (3), (4) | ![]() | The ventilated space (including the living room and bedroom) of individual rooms meets all the geometrical requirements, and therefore, has a good ability to cross-ventilate. |
Appendix D
The descriptive statistics of the key environmental variables for individual districts can be seen in Table A3.
Table A3.
The descriptive statistics of the key environmental variables for individual districts.
Table A3.
The descriptive statistics of the key environmental variables for individual districts.
| Outdoor Temperature (°C) | Outdoor Relative Humidity (%) | Wind Speed (m/s) | Global Solar Radiation (W/m2) | Ambient Outdoor PM2.5 Concentration (µg/m3) | ||||
|---|---|---|---|---|---|---|---|---|
| Ground-Floor | Middle-Floor | Top-Floor | ||||||
| Islands | ||||||||
| All year | Mean | 23.6 | 74.0 | 7.4 | 163.7 | 20.7 | 7.8 | 5.9 |
| Median | 23.9 | 76.0 | 4.2 | 3.9 | 15.0 | 4.0 | 1.7 | |
| Min | 7.6 | 19.0 | 0 | 0.1 | 0 | 0 | 0 | |
| Max | 35.1 | 99.0 | 16.8 | 1171.6 | 209.0 | 61.5 | 28.4 | |
| Kwai Tsing | ||||||||
| All year | Mean | 23.2 | 79.0 | 3.6 | 163.7 | 24.1 | 8.8 | 6.6 |
| Median | 23.5 | 82.0 | 2.1 | 3.9 | 20.7 | 5.4 | 2.2 | |
| Min | 4.5 | 15.0 | 0 | 0.1 | 0 | 0 | 0 | |
| Max | 35.6 | 99.0 | 12.7 | 1171.6 | 109.0 | 30.0 | 13.8 | |
| North | ||||||||
| All year | Mean | 23.4 | 80.0 | 5.4 | 163.7 | 20.2 | 7.2 | 5.3 |
| Median | 24.0 | 81.0 | 2.3 | 3.9 | 19.0 | 4.1 | 1.2 | |
| Min | 5.2 | 18.0 | 0 | 0.1 | 0 | 0 | 0 | |
| Max | 36.2 | 99.0 | 13.6 | 1171.6 | 139.0 | 40.9 | 18.9 | |
| Sai Kung | ||||||||
| All year | Mean | 23.2 | 81.0 | 3.7 | 163.7 | 16.8 | 6.9 | 5.2 |
| Median | 23.5 | 84.0 | 2.0 | 3.9 | 14.0 | 4.3 | 1.8 | |
| Min | 7.8 | 20.0 | 0 | 0.1 | 0 | 0 | 0 | |
| Max | 36.8 | 99.0 | 9.6 | 1171.6 | 87.0 | 26.2 | 12.1 | |
| Sha Tin | ||||||||
| All year | Mean | 23.7 | 77.0 | 4.4 | 163.7 | 24.0 | 9.0 | 6.8 |
| Median | 24.0 | 80.0 | 2.3 | 3.9 | 17.2 | 4.6 | 1.9 | |
| Min | 8.0 | 16.0 | 0 | 0.1 | 0 | 0 | 0 | |
| Max | 36.8 | 98.0 | 10.2 | 1171.6 | 126.0 | 37.1 | 17.1 | |
| Tai Po | ||||||||
| All year | Mean | 23.2 | 81.0 | 5.0 | 163.7 | 20.2 | 7.5 | 5.7 |
| Median | 23.6 | 84.0 | 2.1 | 3.9 | 19.1 | 5.1 | 2.1 | |
| Min | 7.8 | 21.0 | 0 | 0.1 | 0 | 0 | 0 | |
| Max | 36.3 | 99.0 | 8.2 | 1171.6 | 139.0 | 40.9 | 18.9 | |
| Tsuen Wan | ||||||||
| All year | Mean | 22.5 | 81.0 | 6.2 | 163.7 | 23.2 | 8.7 | 6.6 |
| Median | 22.8 | 83.0 | 2.5 | 3.9 | 19.0 | 5.1 | 2.1 | |
| Min | 6.8 | 18.0 | 0 | 0.1 | 0 | 0 | 0 | |
| Max | 35.3 | 99.0 | 11.2 | 1771.6 | 210.0 | 61.8 | 28.5 | |
| Tuen Mun | ||||||||
| All year | Mean | 23.6 | 77.0 | 4.7 | 163.7 | 26.3 | 9.8 | 7.5 |
| Median | 24.0 | 80.0 | 1.6 | 3.9 | 25.0 | 6.7 | 2.8 | |
| Min | 5.5 | 14.0 | 0 | 0.1 | 0 | 0 | 0 | |
| Max | 36.5 | 99.0 | 8.5 | 1171.6 | 153.0 | 45.0 | 20.8 | |
| Yuen Long | ||||||||
| All year | Mean | 23.7 | 80.0 | 5.3 | 163.7 | 20.5 | 7.7 | 5.8 |
| Median | 24.1 | 83.0 | 2.0 | 3.9 | 17.0 | 4.6 | 1.9 | |
| Min | 4.8 | 20.0 | 0 | 0.1 | 0 | 0 | 0 | |
| Max | 36.8 | 99.0 | 12.2 | 1171.6 | 106.0 | 31.2 | 14.4 | |
| Kowloon City | ||||||||
| All year | Mean | 23.6 | 79.0 | 4.1 | 163.7 | 24.3 | 9.1 | 6.9 |
| Median | 23.9 | 80.0 | 1.5 | 3.9 | 22.0 | 5.9 | 2.5 | |
| Min | 6.4 | 15.0 | 0 | 0.1 | 1.0 | 0 | 0 | |
| Max | 37.2 | 99.0 | 8.9 | 1171.6 | 108.0 | 31.8 | 14.7 | |
| Kwun Tong | ||||||||
| All year | Mean | 23.8 | 79.0 | 4.1 | 163.7 | 24.3 | 9.1 | 6.9 |
| Median | 24.0 | 80.0 | 1.5 | 3.9 | 22.0 | 5.9 | 2.5 | |
| Min | 5.8 | 15.0 | 0 | 0.1 | 1.0 | 0 | 0 | |
| Max | 37.0 | 99.0 | 8.9 | 1171.6 | 108.0 | 31.8 | 14.7 | |
| Sham Shui Po | ||||||||
| All year | Mean | 24.3 | 78.0 | 6.7 | 163.7 | 22.9 | 8.6 | 6.5 |
| Median | 24.5 | 80.0 | 3.2 | 3.9 | 17.9 | 4.8 | 2.0 | |
| Min | 9.8 | 21.0 | 0 | 0.1 | 0 | 0 | 0 | |
| Max | 37.3 | 99.0 | 11.8 | 1171.6 | 123.0 | 36.2 | 16.7 | |
| Wong Tai Shin | ||||||||
| All year | Mean | 23.7 | 79.0 | 4.1 | 163.7 | 24.3 | 9.1 | 6.9 |
| Median | 24.1 | 80.0 | 1.5 | 3.9 | 22.0 | 5.9 | 2.5 | |
| Min | 8.4 | 15.0 | 0 | 0.1 | 1.0 | 0 | 0 | |
| Max | 37.9 | 99.0 | 8.9 | 1171.6 | 108.0 | 31.8 | 14.7 | |
| Yau Tsim Mong | ||||||||
| All year | Mean | 23.6 | 76.0 | 6.6 | 163.7 | 27.3 | 10.3 | 7.7 |
| Median | 24.0 | 79.0 | 2.1 | 3.9 | 23.5 | 6.3 | 2.6 | |
| Min | 6.1 | 16.0 | 0 | 0.1 | 0 | 0 | 0 | |
| Max | 36.9 | 99.0 | 10.4 | 1171.6 | 146.0 | 43.0 | 19.8 | |
| Central and Western | ||||||||
| All year | Mean | 23.6 | 80.0 | 5.1 | 163.7 | 24.0 | 9.0 | 6.8 |
| Median | 23.8 | 82.0 | 2.6 | 3.9 | 20.4 | 5.5 | 2.3 | |
| Min | 6.7 | 23.0 | 0 | 0.1 | 0 | 0 | 0 | |
| Max | 35.8 | 99.0 | 11.9 | 1171.6 | 134.0 | 39.4 | 18.2 | |
| Eastern | ||||||||
| All year | Mean | 23.3 | 82.0 | 6.3 | 163.7 | 23.0 | 8.6 | 6.5 |
| Median | 23.7 | 85.0 | 2.1 | 3.9 | 18.7 | 5.0 | 2.1 | |
| Min | 6.3 | 26.0 | 0 | 0.1 | 0 | 0 | 0 | |
| Max | 36.2 | 99.0 | 12.8 | 1171.6 | 112.0 | 32.9 | 15.2 | |
| Southern | ||||||||
| All year | Mean | 23.7 | 77.0 | 5.5 | 163.7 | 20 | 7.5 | 5.7 |
| Median | 24.0 | 79.0 | 1.9 | 3.9 | 17.2 | 4.6 | 1.9 | |
| Min | 7.2 | 19.0 | 0 | 0.1 | 0 | 0 | 0 | |
| Max | 35.3 | 99.0 | 9.6 | 1171.6 | 105.0 | 30.9 | 14.3 | |
| Wan Chai | ||||||||
| All year | Mean | 24.5 | 80.0 | 5.1 | 163.7 | 25.8 | 9.7 | 7.3 |
| Median | 24.7 | 82.0 | 2.6 | 3.9 | 23.6 | 6.3 | 2.6 | |
| Min | 9.9 | 23.0 | 0 | 0.1 | 1.0 | 0 | 0 | |
| Max | 37.6 | 99.0 | 11.9 | 1171.6 | 139.0 | 40.9 | 18.9 | |
References
- EMSD. Hong Kong Energy End-Use Data 2019; Electrical and Mechanical Services Department: Hong Kong, China, 2019. [Google Scholar]
- Cooling-More Efforts Needed. Available online: https://www.iea.org/reports/cooling (accessed on 2 September 2022).
- Ji, Q.; Bi, Y.; Makvandi, M.; Deng, Q.; Zhou, X.; Li, C. Modelling Building Stock Energy Consumption at the Urban Level from an Empirical Study. Buildings 2022, 12, 385. [Google Scholar] [CrossRef]
- Burnett, J.; Bojić, M.; Yik, F. Wind-induced pressure at external surfaces of a high-rise residential building in Hong Kong. Build. Environ. 2005, 40, 765–777. [Google Scholar] [CrossRef]
- Li, J.; Ng, S.T.; Skitmore, M. Review of low-carbon refurbishment solutions for residential buildings with particular reference to multi-story buildings in Hong Kong. Renew. Sustain. Energy Rev. 2017, 73, 393–407. [Google Scholar] [CrossRef]
- Kwok, Y.T.; de Munck, C.; Lau, K.K.-L.; Ng, E. To what extent can urban ventilation features cool a compact built-up environment during a prolonged heatwave? A mesoscale numerical modelling study for Hong Kong. Sustain. Cities Soc. 2021, 77, 103541. [Google Scholar] [CrossRef]
- Jia, J.; Lee, W. Drivers of moderate increase in cooling energy use in residential buildings in Hong Kong. Energy Build. 2016, 125, 19–26. [Google Scholar] [CrossRef]
- Du, J.; Pan, W. Evaluating energy saving behavioral interventions through the lens of social practice theory: A case study in Hong Kong. Energy Build. 2021, 251, 111353. [Google Scholar] [CrossRef]
- Kwok, Y.T.; Lau, K.K.-L.; Lai, A.K.L.; Chan, P.W.; Lavafpour, Y.; Ho, J.C.K.; Ng, E.Y.Y. A comparative study on the indoor thermal comfort and energy consumption of typical public rental housing types under near-extreme summer conditions in Hong Kong. Energy Procedia 2017, 122, 973–978. [Google Scholar] [CrossRef]
- Liu, T.; Lee, W. Evaluating the influence of transom window designs on natural ventilation in high-rise residential buildings in Hong Kong. Sustain. Cities Soc. 2020, 62, 102406. [Google Scholar] [CrossRef]
- Kwok, Y.T.; Lai, A.K.L.; Lau, K.K.-L.; Chan, P.W.; Lavafpour, Y.; Ho, J.C.K.; Ng, E.Y.Y. Thermal comfort and energy performance of public rental housing under typical and near-extreme weather conditions in Hong Kong. Energy Build. 2017, 156, 390–403. [Google Scholar] [CrossRef]
- Chung, W.; Kam, M.; Ip, C. A study of residential energy use in Hong Kong by decomposition analysis, 1990–2007. Appl. Energy 2011, 88, 5180–5187. [Google Scholar] [CrossRef]
- Cheng, Y.; Cao, K.; Woo, C.; Yatchew, A. Residential willingness to pay for deep decarbonization of electricity supply: Contingent valuation evidence from Hong Kong. Energy Policy 2017, 109, 218–227. [Google Scholar] [CrossRef]
- Power, A. Does demolition or refurbishment of old and inefficient homes help to increase our environmental, social and economic viability? Energy Policy 2008, 36, 4487–4501. [Google Scholar] [CrossRef]
- Yu, C.; Du, J.; Pan, W. Improving accuracy in building energy simulation via evaluating occupant behaviors: A case study in Hong Kong. Energy Build. 2019, 202, 109373. [Google Scholar] [CrossRef]
- Dahanayake, K.C.; Chow, C.L. Comparing reduction of building cooling load through green roofs and green walls by EnergyPlus simulations. Build. Simul. 2018, 11, 421–434. [Google Scholar] [CrossRef]
- Liu, S.; Kwok, Y.T.; Lau, K.K.-L.; Chan, P.W.; Ng, E. Investigating the energy saving potential of applying shading panels on opaque façades: A case study for residential buildings in Hong Kong. Energy Build. 2019, 193, 78–91. [Google Scholar] [CrossRef]
- Brimblecombe, P.; Ning, Z. Effect of road blockages on local air pollution during the Hong Kong protests and its implications for air quality management. Sci. Total Environ. 2015, 536, 443–448. [Google Scholar] [CrossRef]
- Mason, T.G.; Schooling, C.M.; Chan, K.P.; Tian, L. An evaluation of the air quality health index program on respiratory diseases in Hong Kong: An interrupted time series analysis. Atmos. Environ. 2019, 211, 151–158. [Google Scholar] [CrossRef]
- Fan, Z.; Pun, V.C.; Chen, X.-C.; Hong, Q.; Tian, L.; Ho, S.S.-H.; Lee, S.-C.; Tse, L.A.; Ho, K.-F. Personal exposure to fine particles (PM2.5) and respiratory inflammation of common residents in Hong Kong. Environ. Res. 2018, 164, 24–31. [Google Scholar] [CrossRef] [PubMed]
- Chen, X.-C.; Chow, J.C.; Ward, T.J.; Cao, J.-J.; Lee, S.-C.; Watson, J.G.; Lau, N.-C.; Yim, S.H.L.; Ho, K.-F. Estimation of personal exposure to fine particles (PM2.5) of ambient origin for healthy adults in Hong Kong. Sci. Total Environ. 2018, 654, 514–524. [Google Scholar] [CrossRef]
- Ejohwomu, O.A.; Shamsideen Oshodi, O.; Oladokun, M.; Bukoye, O.T.; Emekwuru, N.; Sotunbo, A.; Adenuga, O. Modelling and Forecasting Temporal PM2.5 Concentration Using Ensemble Machine Learning Methods. Buildings 2022, 12, 46. [Google Scholar] [CrossRef]
- Dai, H.K.; Chen, C. Air infiltration rates in residential units of a public housing estate in Hong Kong. Build. Environ. 2022, 219, 109211. [Google Scholar] [CrossRef]
- Yang, Y.; Tang, R.; Qiu, H.; Lai, P.-C.; Wong, P.; Thach, T.-Q.; Allen, R.; Brauer, M.; Tian, L.; Barratt, B. Long term exposure to air pollution and mortality in an elderly cohort in Hong Kong. Environ. Int. 2018, 117, 99–106. [Google Scholar] [CrossRef] [PubMed]
- Tang, R.; Tian, L.; Thach, T.-Q.; Tsui, T.H.; Brauer, M.; Lee, M.; Allen, R.; Yuchi, W.; Lai, P.-C.; Wong, P.; et al. Integrating travel behavior with land use regression to estimate dynamic air pollution exposure in Hong Kong. Environ. Int. 2018, 113, 100–108. [Google Scholar] [CrossRef] [PubMed]
- Lin, H.; Ma, W.; Qiu, H.; Wang, X.; Trevathan, E.; Yao, Z.; Dong, G.-H.; Vaughn, M.G.; Qian, Z.; Tian, L. Using daily excessive concentration hours to explore the short-term mortality effects of ambient PM 2.5 in Hong Kong. Environ. Pollut. 2017, 229, 896–901. [Google Scholar] [CrossRef] [PubMed]
- Taylor, J.; Shrubsole, C.; Davies, M.; Biddulph, P.; Das, P.; Hamilton, I.; Vardoulakis, S.; Mavrogianni, A.; Jones, B.; Oikonomou, E. The modifying effect of the building envelope on population exposure to PM2.5 from outdoor sources. Indoor Air 2014, 24, 639–651. [Google Scholar] [CrossRef]
- Taylor, J.; Mavrogianni, A.; Davies, M.; Das, P.; Shrubsole, C.; Biddulph, P.; Oikonomou, E. Understanding and mitigating overheating and indoor PM2.5 risks using coupled temperature and indoor air quality models. Build. Serv. Eng. Res. Technol. 2015, 36, 275–289. [Google Scholar] [CrossRef]
- Chan, L.; Kwok, W. Vertical dispersion of suspended particulates in urban area of Hong Kong. Atmos. Environ. 2000, 34, 4403–4412. [Google Scholar] [CrossRef]
- Taylor, J.; Davies, M.; Mavrogianni, A.; Shrubsole, C.; Hamilton, I.; Das, P.; Jones, B.; Oikonomou, E.; Biddulph, P. Mapping indoor overheating and air pollution risk modification across Great Britain: A modelling study. Build. Environ. 2016, 99, 1–12. [Google Scholar] [CrossRef]
- Dai, X.; Liu, J.; Li, X.; Zhao, L. Long-term monitoring of indoor CO2 and PM2.5 in Chinese homes: Concentrations and their relationships with outdoor environments. Build. Environ. 2018, 144, 238–247. [Google Scholar] [CrossRef]
- Shrubsole, C.; Ridley, I.; Biddulph, P.; Milner, J.; Vardoulakis, S.; Ucci, M.; Wilkinson, P.; Chalabi, Z.; Davies, M. Indoor PM2.5 exposure in London’s domestic stock: Modelling current and future exposures following energy efficient refurbishment. Atmos. Environ. 2012, 62, 336–343. [Google Scholar] [CrossRef] [Green Version]
- Cheung, P.K.; Jim, C. Impacts of air conditioning on air quality in tiny homes in Hong Kong. Sci. Total Environ. 2019, 684, 434–444. [Google Scholar] [CrossRef] [PubMed]
- Cao, J.J.; Lee, S.-C.; Chow, J.C.; Cheng, Y.; Ho, K.F.; Fung, K.; Liu, S.X.; Watson, J. Indoor/outdoor relationships for PM2.5 and associated carbonaceous pollutants at residential homes in Hong Kong-case study. Indoor Air 2005, 15, 197–204. [Google Scholar] [CrossRef] [PubMed]
- Chao, C.Y.; Wong, K.K. Residential indoor PM10 and PM2.5 in Hong Kong and the elemental composition. Atmos. Environ. 2002, 36, 265–277. [Google Scholar] [CrossRef]
- Tong, X.; Wang, B.; Dai, W.-T.; Cao, J.-J.; Ho, S.S.H.; Kwok, T.C.Y.; Lui, K.-H.; Lo, C.-M.; Ho, K.F. Indoor air pollutant exposure and determinant factors controlling household air quality for elderly people in Hong Kong. Air Qual. Atmos. Health 2018, 11, 695–704. [Google Scholar] [CrossRef]
- Fazli, T.; Stephens, B. Development of a nationally representative set of combined building energy and indoor air quality models for U.S. residences. Build. Environ. 2018, 136, 198–212. [Google Scholar] [CrossRef]
- Taylor, J.; Shrubsole, C.; Symonds, P.; Mackenzie, I.; Davies, M. Application of an indoor air pollution metamodel to a spatially-distributed housing stock. Sci. Total Environ. 2019, 667, 390–399. [Google Scholar] [CrossRef]
- Crawley, D.B.; Lawrie, L.K.; Winkelmann, F.C.; Buhl, W.; Huang, Y.; Pedersen, C.O.; Strand, R.K.; Liesen, R.J.; Fisher, D.E.; Witte, M.J.; et al. EnergyPlus: Creating a new-generation building energy simulation program. Energy Build. 2001, 33, 319–331. [Google Scholar] [CrossRef]
- HA. Complete List of PRH/TPS Estates; Hong Kong Housing Authority: Hong Kong, China, 2018. [Google Scholar]
- BD. Database of Private Buildings in Hong Kong; Buildings Department: Hong Kong, China, 2018. [Google Scholar]
- Building Directory–Hong Kong. Available online: https://www.emporis.com/city/101300/hong-kong-china (accessed on 20 July 2022).
- Cheung, C.; Fuller, R.; Luther, M. Energy-efficient envelope design for high-rise apartments. Energy Build. 2005, 37, 37–48. [Google Scholar] [CrossRef]
- Fong, K.; Lee, C. Investigation of separate or integrated provision of solar cooling and heating for use in typical low-rise residential building in subtropical Hong Kong. Renew. Energy 2015, 75, 847–855. [Google Scholar] [CrossRef]
- HA. Standard Block Typical Floor Plans; Hong Kong Housing Authority: Hong Kong, China, 2018. [Google Scholar]
- CSD. Housing and Property; Census and Statistics Department: Hong Kong, China, 2018. [Google Scholar]
- Wan, K.; Yik, F. Building design and energy end-use characteristics of high-rise residential buildings in Hong Kong. Appl. Energy 2004, 78, 19–36. [Google Scholar] [CrossRef]
- CentaMap. Available online: http://hk.centamap.com/gc/home.aspx (accessed on 20 July 2022).
- BD. Guidelines on Design and Construction Requirements for Energy Efficiency of Residential Buildings; Buildings Department: Hong Kong, China, 2014. [Google Scholar]
- Lam, J.C. Residential sector air conditioning loads and electricity use in Hong Kong. Energy Convers. Manag. 2000, 41, 1757–1768. [Google Scholar] [CrossRef]
- HK-BEAM. Hong Kong Building Environmental Assessment Method: HK-BEAM Version 5/04 Existing Buildings; HK-BEAM Society: Hong Kong, China, 2004. [Google Scholar]
- Wan, K.; Yik, F. Representative building design and internal load patterns for modelling energy use in residential buildings in Hong Kong. Appl. Energy 2004, 77, 69–85. [Google Scholar] [CrossRef]
- Lam, J.C. An analysis of residential sector energy use in Hong Kong. Energy 1996, 21, 1–8. [Google Scholar] [CrossRef]
- ISO 13790; Energy Performance of Buildings, Calculation of Energy Use for Space Heating and Cooling. International Organization for Standardization: Geneva, Switzerland, 2008.
- O’Brien, W.; Kapsis, K.; Athienitis, A.K. Manually-operated window shade patterns in office buildings: A critical review. Build. Environ. 2013, 60, 319–338. [Google Scholar] [CrossRef]
- Weerasuriya, A.; Zhang, X.; Gan, V.J.; Tan, Y. A holistic framework to utilize natural ventilation to optimize energy performance of residential high-rise buildings. Build. Environ. 2019, 153, 218–232. [Google Scholar] [CrossRef]
- Mei, S.-J.; Hu, J.-T.; Liu, D.; Zhao, F.-Y.; Li, Y.; Wang, Y.; Wang, H.-Q. Wind driven natural ventilation in the idealized building block arrays with multiple urban morphologies and unique package building density. Energy Build. 2017, 155, 324–338. [Google Scholar] [CrossRef]
- Yang, L.; Li, Y. Thermal conditions and ventilation in an ideal city model of Hong Kong. Energy Build. 2010, 43, 1139–1148. [Google Scholar] [CrossRef]
- Zhou, H.; Lu, Y.; Liu, X.; Chang, R.; Wang, B. Harvesting wind energy in low-rise residential buildings: Design and optimization of building forms. J. Clean. Prod. 2017, 167, 306–316. [Google Scholar] [CrossRef]
- Zhong, H.-Y.; Zhang, D.-D.; Liu, Y.; Liu, D.; Zhao, F.-Y.; Li, Y.; Wang, H.-Q. Wind driven “pumping” fluid flow and turbulent mean oscillation across high-rise building enclosures with multiple naturally ventilated apertures. Sustain. Cities Soc. 2019, 50, 101619. [Google Scholar] [CrossRef]
- Ai, Z.; Mak, C. Wind-induced single-sided natural ventilation in buildings near a long street canyon: CFD evaluation of street configuration and envelope design. J. Wind Eng. Ind. Aerodyn. 2018, 172, 96–106. [Google Scholar] [CrossRef] [Green Version]
- Wang, R.; Ren, C.; Xu, Y.; Lau, K.K.-L.; Shi, Y. Mapping the local climate zones of urban areas by GIS-based and WUDAPT methods: A case study of Hong Kong. Urban Clim. 2018, 24, 567–576. [Google Scholar] [CrossRef]
- Tan, Y.; Liu, G.; Zhang, Y.; Shuai, C.; Shen, G.Q. Green retrofit of aged residential buildings in Hong Kong: A preliminary study. Build. Environ. 2018, 143, 89–98. [Google Scholar] [CrossRef]
- Climatological Information Services. Available online: https://www.hko.gov.hk/en/cis/climat.htm (accessed on 20 July 2022).
- Inquire and Download Air Quality Monitoring Data. Available online: https://cd.epic.epd.gov.hk/EPICDI/air/station/?lang=en (accessed on 20 July 2022).
- PD. Land Utilization in Hong Kong; PlanningNorth Point: Hong Kong, China, 2009. [Google Scholar]
- ASHRAE. ASHRAE Fundamentals Handbook 2017; American Society of Heating, Refrigeration and Air Conditioning Engineers: Atlanta, GA, USA, 2017. [Google Scholar]
- CIBSE. Environmental Design: CIBSE Guide A; The Chartered Institution of Building Services Engineers: London, UK, 2006. [Google Scholar]
- ASHRAE. ASHRAE Standard 160P: Criteria for Moisture Control Design Analysis in Buildings; American Society of Heating, Refrigeration and Air Conditioning Engineers: Atlanta, GA, USA, 2009. [Google Scholar]
- Wong, I.; Baldwin, A.N. Investigating the potential of applying vertical green walls to high-rise residential buildings for energy-saving in sub-tropical region. Build. Environ. 2016, 97, 34–39. [Google Scholar] [CrossRef]
- Zhang, L. Energy requirements for conditioning fresh air and the long-term savings with a membrane-based energy recovery ventilator in Hong Kong. Energy 2001, 26, 119–135. [Google Scholar] [CrossRef]
- Chen, X.; Yang, H.; Sun, K. A holistic passive design approach to optimize indoor environmental quality of a typical residential building in Hong Kong. Energy 2016, 113, 267–281. [Google Scholar] [CrossRef]
- Chen, X.; Yang, H. Combined thermal and daylight analysis of a typical public rental housing development to fulfil green building guidance in Hong Kong. Energy Build. 2015, 108, 420–432. [Google Scholar] [CrossRef]
- EMSD. Code of Practice for Energy Efficiency of Building Services Installation; Electrical and Mechanical Services Department: Hong Kong, China, 2018. [Google Scholar]
- HKG. Building (Planning) Regulations (Chapter 123); Hong Kong e-Legislation: Hong Kong, China, 1984. [Google Scholar]
- Haldi, F.; Robinson, D. Interactions with window openings by office occupants. Build. Environ. 2009, 44, 2378–2395. [Google Scholar] [CrossRef]
- Zhong, X.; Ridley, I.A. Verification of behavioural models of window opening: The accuracy of window-use pattern, indoor temperature and indoor PM2.5 concentration prediction. Build. Simul. 2020, 13, 527–542. [Google Scholar] [CrossRef]
- Fabi, V.; Andersen, R.V.; Corgnati, S.; Olesen, B.W. Occupants’ window opening behaviour: A literature review of factors influencing occupant behaviour and models. Build. Environ. 2012, 58, 188–198. [Google Scholar] [CrossRef]
- Dols, W.S.; Emmerich, S.J.; Polidoro, B.J. Coupling the multizone airflow and contaminant transport software CONTAM with EnergyPlus using co-simulation. Build. Simul. 2016, 9, 469–479. [Google Scholar] [CrossRef]
- Jones, B.; Das, P.; Chalabi, Z.; Davies, M.; Hamilton, I.; Lowe, R.; Milner, J.; Ridley, I.; Shrubsole, C.; Wilkinson, P. The Effect of Party Wall Permeability on Estimations of Infiltration from Air Leakage. Int. J. Vent. 2013, 12, 17–30. [Google Scholar] [CrossRef]
- Dimitroulopoulou, C.; Ashmore, M.; Hill, M.; Byrne, M.; Kinnersley, R. INDAIR: A probabilistic model of indoor air pollution in UK homes. Atmos. Environ. 2006, 40, 6362–6379. [Google Scholar] [CrossRef]
- Long, C.M.; Suh, H.H.; Catalano, P.J.; Koutrakis, P. Using Time- and Size-Resolved Particulate Data To Quantify Indoor Penetration and Deposition Behavior. Environ. Sci. Technol. 2001, 35, 2089–2099. [Google Scholar] [CrossRef] [PubMed]
- SketchUp Plugin Index. Available online: http://sketchupplugins.com/plugins/nrel-openstudio/ (accessed on 20 July 2022).
- JEPlus—An EnergyPlus Simulation Manager for Parametrics. Available online: http://www.jeplus.org/wiki/doku.php?id=start (accessed on 20 July 2022).
- SAS Trials. Available online: https://www.sas.com/en_us/trials.html (accessed on 20 July 2022).
- CSD. 2018 Population Census Summary Report; Census and Statistics Department: Hong Kong, China, 2018. [Google Scholar]
- Tan, Y.; Luo, T.; Xue, X.; Shen, G.Q.; Zhang, G.; Hou, L. An empirical study of green retrofit technologies and policies for aged residential buildings in Hong Kong. J. Build. Eng. 2021, 39, 102271. [Google Scholar] [CrossRef]
- EMSD. Hong Kong Energy End-Use Data 2018; Electrical and Mechanical Services Department: Hong Kong, China, 2018. [Google Scholar]
- Wan, M.P.; Wu, C.L.; To, G.N.S.; Chan, T.C.; Chao, C.Y.H. Ultrafine particles, and PM2.5 generated from cooking in homes. Atmos. Environ. 2011, 45, 6141–6148. [Google Scholar] [CrossRef]
- El Orch, Z.; Stephens, B.; Waring, M.S. Predictions and determinants of size-resolved particle infiltration factors in single-family homes in the U.S. Build. Environ. 2014, 74, 106–118. [Google Scholar] [CrossRef]
- Rim, D.; Wallace, L.A.; Persily, A.K. Indoor Ultrafine Particles of Outdoor Origin: Importance of Window Opening Area and Fan Operation Condition. Environ. Sci. Technol. 2013, 47, 1922–1929. [Google Scholar] [CrossRef] [PubMed]
Publisher’s Note: MDPI stays neutral with regard to jurisdictional claims in published maps and institutional affiliations. |
© 2022 by the authors. Licensee MDPI, Basel, Switzerland. This article is an open access article distributed under the terms and conditions of the Creative Commons Attribution (CC BY) license (https://creativecommons.org/licenses/by/4.0/).























































