Influence of Corrosion on Dynamic Behavior of Pedestrian Steel Bridges—Case Study
Abstract
:1. Introduction
Description of the Structures
2. Literature Review
3. Methodology
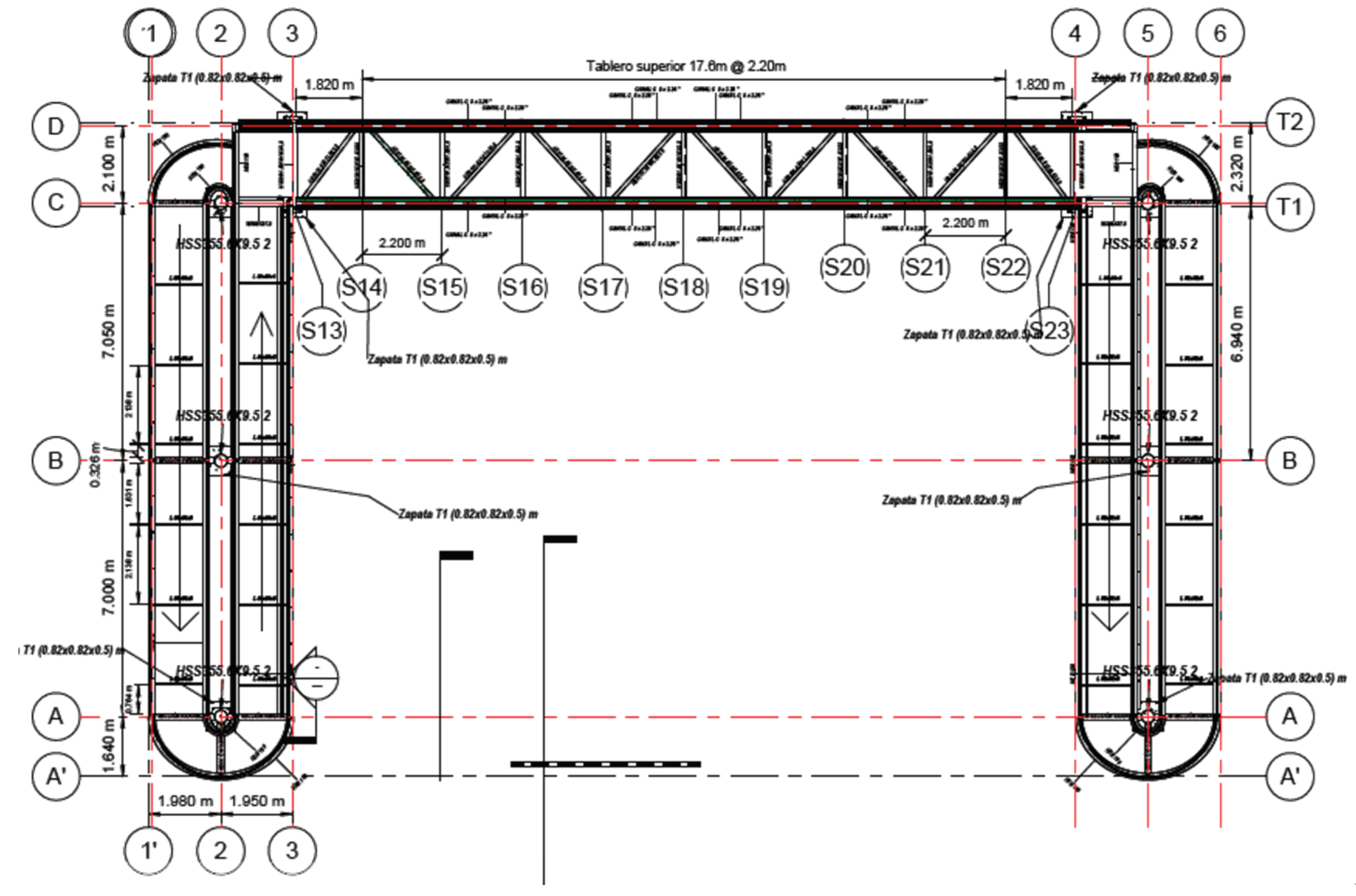
3.1. Geometry of the Bridges
3.2. Dynamic Characterization of Structures
3.2.1. Description of the Test
3.2.2. Signals Processing and Experimental Data
3.2.3. Identification of Dynamic Characteristics of the Bridges
3.3. Characterization of the Degree of Corrosion
- It does not affect the functionality and structural integrity.
- Higher maintenance costs will be incurred.
- It partially affects functionality due to local damage.
- It completely affects functionality and puts structural integrity at risk.
- Structural integrity is at risk.
4. Results
4.1. Bridge Geometry and Numerical Modeling
4.1.1. Bridges Geometry Results
4.1.2. Numerical Modeling Results
4.2. System Identification Results
4.3. PSD Curve Fit Results
Updating Numerical Model Based on Fitted PSD
4.4. Degree of Corrosion
4.5. Relationship between the Dynamic Properties of the Bridges and the Degree of Corrosion Detected
5. Discussion and Conclusions
Author Contributions
Funding
Institutional Review Board Statement
Informed Consent Statement
Data Availability Statement
Acknowledgments
Conflicts of Interest
References
- Singh, A. Corrosion; IntechOpen: London, UK, 2020; ISBN 978-1-78985-256-1. [Google Scholar]
- Calderón, J.A.; Vásquez, F.A.; Carreño, J.A. Adsorption and Performance of the 2-Mercaptobenzimidazole as a Carbon Steel Corrosion Inhibitor in EDTA Solutions. Mater. Chem. Phys. 2017, 185, 218–226. [Google Scholar] [CrossRef]
- Duarte, A.; Ortiz, A.R. Feasibility Study of Using Low-Cost Measurement Devices for System Identification Using Bayesian Approaches. In Model Validation and Uncertainty Quantification, Volume 3, Proceedings of the 38th IMAC, A Conference and Exposition on Structural Dynamics 2020, Houston, Texas, 10–13 February 2020; Mao, Z., Ed.; Springer International Publishing: Cham, Switzerland, 2020; Volume 3, pp. 201–208. [Google Scholar]
- Caballero-Russi, D.; Ortiz, A.R.; Guzmán, A.; Canchila, C. Design and Validation of a Low-Cost Structural Health Monitoring System for Dynamic Characterization of Structures. Appl. Sci. 2022, 12, 2807. [Google Scholar] [CrossRef]
- Zhu, Y.-C.; Au, S.-K. Bayesian Operational Modal Analysis with Asynchronous Data, Part II: Posterior Uncertainty. Mech. Syst. Signal Process. 2018, 98, 920–935. [Google Scholar] [CrossRef]
- Jaramillo, V.; Siachica, Y. Guía De Diseño Para La Construcción De Cruces Elevados En Colombia Aplicado A Poliductos. Bachelor Tesis, Pregrado Ingeniería Civil, Universidad Católica de Colombia, Bogotá, Colombia, 2018. [Google Scholar]
- Andrade-Ochoa, S.; Chaparro-Gómez, V.I.; Martínez-García, E.E.; Pérez-Fuentes, F.R. Evaluación de puentes peatonales de la ciudad de Chihuahua, México: Un estudio descriptivo sobre caminabilidad y accesibilidad universal. Planeo 2020, 90, 1–13. [Google Scholar]
- Bejarano-Acosta, Á.J.; Daza-Moreno, J.D. Diagnóstico De Las Patologías Físicas, Químicas Y Mecánicas Presentes En Los Puentes Peatonales De La Localidad De Engativá En Bogotá d. C. Bachelor Tesis, Pregrado Ingeniería Civil, Universidad Católica de Colombia, Bogotá, Colombia, 2017. [Google Scholar]
- Andrade Ochoa, S.; Mancera Gutiérrez, M.Á. La seguridad vial y los puentes (anti)peatonales en México y América Latina. Antropol. Rev. Interdiscip. del INAH 2018, 4, 32–42. [Google Scholar]
- Nettis, A.; Iacovazzo, P.; Raffaele, D.; Uva, G.; Adam, J.M. Displacement-Based Seismic Performance Assessment of Multi-Span Steel Truss Bridges. Eng. Struct. 2022, 254, 113832. [Google Scholar] [CrossRef]
- Sangiorgio, V.; Nettis, A.; Uva, G.; Pellegrino, F.; Varum, H.; Adam, J.M. Analytical Fault Tree and Diagnostic Aids for the Preservation of Historical Steel Truss Bridges. Eng. Fail. Anal. 2022, 133, 105996. [Google Scholar] [CrossRef]
- Yang, L. Techniques for Corrosion Monitoring; Woodhead Publishing: Sawston, UK, 2020; ISBN 9780081030042. [Google Scholar]
- Lee, S.; Kalos, N.; Shin, D.H. Non-Destructive Testing Methods in the U.S. for Bridge Inspection and Maintenance. KSCE J. Civ. Eng. 2014, 18, 1322–1331. [Google Scholar] [CrossRef]
- Forsyth, D.S. Non-Destructive Testing for Corrosion; Corrosion Fatigue and Environmentally Assisted Cracking in Aging Military Vehicles; OTAN-TRI Austin: Austin, TX, USA, 2011; pp. 21.1–21.12. [Google Scholar]
- Liang, C.-F.; Liu, T.-J.; Xiao, J.-Z.; Zou, D.-J.; Cui, C. Effect of reinforcement and corrosion on damping capacity of concrete members. Eng. Mech. 2017, 34, 101–107. [Google Scholar] [CrossRef]
- Khoshmanesh, S.; Watson, S.J.; Zarouchas, D. The Effect of the Fatigue Damage Accumulation Process on the Damping and Stiffness Properties of Adhesively Bonded Composite Structures. Compos. Struct. 2022, 287, 115328. [Google Scholar] [CrossRef]
- Bhuiyan, M.Z.A.; Wang, G.; Wu, J.; Cao, J.; Liu, X.; Wang, T. Dependable Structural Health Monitoring Using Wireless Sensor Networks. IEEE Trans. Dependable Secur. Comput. 2017, 14, 363–376. [Google Scholar] [CrossRef]
- Gui, G.; Pan, H.; Lin, Z.; Li, Y.; Yuan, Z. Data-Driven Support Vector Machine with Optimization Techniques for Structural Health Monitoring and Damage Detection. KSCE J. Civ. Eng. 2017, 21, 523–534. [Google Scholar] [CrossRef]
- Zhu, Y.-C.; Au, S.-K. Bayesian Operational Modal Analysis with Asynchronous Data, Part I: Most Probable Value. Mech. Syst. Signal Process. 2018, 98, 652–666. [Google Scholar] [CrossRef]
- Zhu, Y.-C.; Au, S.-K. Bayesian Data Driven Model for Uncertain Modal Properties Identified from Operational Modal Analysis. Mech. Syst. Signal Process. 2020, 136, 106511. [Google Scholar] [CrossRef]
- Au, S.-K.; Brownjohn, J.M.W.; Li, B.; Raby, A. Understanding and Managing Identification Uncertainty of Close Modes in Operational Modal Analysis. Mech. Syst. Signal Process. 2021, 147, 107018. [Google Scholar] [CrossRef]
- Noel, A.B.; Abdaoui, A.; Elfouly, T.; Ahmed, M.H.; Badawy, A.; Shehata, M.S. Structural Health Monitoring Using Wireless Sensor Networks: A Comprehensive Survey. IEEE Commun. Surv. Tutor. 2017, 19, 1403–1423. [Google Scholar] [CrossRef]
- Torres, W.; Almazán, J.L.; Sandoval, C.; Boroschek, R. Operational Modal Analysis and FE Model Updating of the Metropolitan Cathedral of Santiago, Chile. Eng. Struct. 2017, 143, 169–188. [Google Scholar] [CrossRef]
- Viviescas Jaimes, A.; Carrillo, J.; Vargas Carvajal, L.A. Línea base para el monitoreo de salud estructural del puente Gómez Ortiz a partir de pruebas de vibración ambiental. INGE CUC 2018, 14, 52–65. [Google Scholar] [CrossRef]
- Su, J.; Xia, Y.; Weng, S. Review on Field Monitoring of High-Rise Structures. Struct. Control Health Monit. 2020, 27, e2629. [Google Scholar] [CrossRef]
- ASTM International ASTM G31-21: Standard Guide for Laboratory Immersion Corrosion Testing of Metals. ASTM Int. 2021, 100, 19428-2959.
- Garrido, I.; Lagüela, S.; Otero, R.; Arias, P. Thermographic Methodologies Used in Infrastructure Inspection: A Review—Post-Processing Procedures. Appl. Energy 2020, 266, 114857. [Google Scholar] [CrossRef]
- Li, D.; Tan, M.; Zhang, S.; Ou, J. Stress Corrosion Damage Evolution Analysis and Mechanism Identification for Prestressed Steel Strands Using Acoustic Emission Technique. Struct. Control Health Monit. 2018, 25, e2189. [Google Scholar] [CrossRef]
- Goldaran, R.; Turer, A.; Kouhdaragh, M.; Ozlutas, K. Identification of Corrosion in a Prestressed Concrete Pipe Utilizing Acoustic Emission Technique. Constr. Build. Mater. 2020, 242, 118053. [Google Scholar] [CrossRef]
- Corrosion College Corrosion Matrix: How to Fight Specific Corrosion. Available online: https://corrosioncollege.com/resources/corrosion-matrix (accessed on 23 December 2022).
- AIS. Reglamento Colombiano de Construcción Sismo Resistente, NSR-10; Asociación de Ingeniería Sísmica: Bogotá, Colombia, 2010. [Google Scholar]
- Zhang, W.; Wu, M.; Zhu, J. Evaluation of Vehicular Dynamic Effects for the Life Cycle Fatigue Design of Short-Span Bridges. Steel Constr. 2017, 10, 37–46. [Google Scholar] [CrossRef]
- Muñoz Pereira, J.F. Evaluación del Estado Límite Último de Fatiga en Pasarelas Peatonales. Master Thesis, Universidad de Sevilla, Sevilla, Spain, 2020. [Google Scholar]























| Lateral View | Bridge Deck | Interior View | Details of View |
|---|---|---|---|
| Uninorte | |||
![]() | ![]() | ![]() | ![]() |
| Sagrado | |||
![]() | ![]() | ![]() | ![]() |
| Unilibre | |||
![]() | ![]() | ![]() | ![]() |
| Technique or Method | Advantages | Disadvantages |
|---|---|---|
| Immersion corrosion testing of metals [26] | * Online monitoring technique. * Direct measurement of metal loss. * Allows to calculate the overall corrosion rate. | * Rapidly promoting the corrosion of the elements does not represent the real state of the structures. The controlled experiment in the laboratory simulates an approximate behavior of the phenomenon; however, there may be variables that are not adequately simulated, creating an environment different from the real one. * Expensive. * Long experimentation periods. * The behavior of certain metals and alloys can be influenced by dissolved oxygen. * The accumulation of corrosion products can influence the composition of the fluid that participates as a corrosive agent. |
| Thermography [27,28] | * Allows to observe the distribution of corrosion in the element under study. * Non-Destructive techniques (NDTs) * Post-processing of temperature maps can be done using AI. * Growing trends in obtaining quantitative or qualitative data through AI (image processing). | * Thermography cannot detect the corrosion rate. * Quantitative image analysis. * Expensive. * High computational cost of image post-processing. * It does not quantify the degree of corrosion; it only thermally characterizes the anomalies detected. * The image quality is affected by the high price since the resolution is limited to the available budget. * The camera’s field of view may not apply to large infrastructures. * High dependence on weather conditions. * High dependence on the experience of the camera operator. |
| Acoustic emission (AE) [28,29] | * Real-time control method in laboratory experiments. * Non-destructive techniques (NDTs). * Prediction methods. | * For real structures monitoring, there is some difficulty in “in situ” real structure corrosion damage monitoring using the AE technique. * Rapidly promoting the corrosion of the elements does not represent the real state of the structures. The controlled experiment in the laboratory simulates an approximate behavior of the phenomenon; however, there may be variables that are not adequately simulated, creating an environment different from the real one. |
| Visual auscultation + corrosion matrix [this research] | * Low-cost * Rapid * Easy implementation * Almost immediate results | * In the calculation of corroded surfaces per element, approximations are made. * It depends on the observer. * Measurements of the reduction of thicknesses due to corrosion are not performed. * Quantitative and global values of the degree of corrosion of the structure are obtained from a qualitative assessment of the consequence of the observed deterioration and the value of the total corroded surface expressed in [%]. * The degree of corrosion is expressed as a range due to the uncertainty of measurements that are not detailed and specific. |
| Bridges | Geometry [m] | |||||
|---|---|---|---|---|---|---|
| a | L | H | s1 | s2 | s3 | |
| Uninorte | 2.50 | 22.47 | 2.66 | 1.12 | 2.20 | 2.24 |
| Sagrado | 2.00 | 21.93 | 2.66 | 0.80 | 1.85 | 2.25 |
| Unilibre | 2.01 | 26.13 | 2.36 | 0.38 | 2.32 | 2.22 |
| Bridge | Frequencies [Hz] | |||
|---|---|---|---|---|
| Mode 1 | Mode 2 | Mode 3 | Mode 4 | |
| Uninorte | 6.32 | 20.41 | 30.73 | 39.38 |
| Sagrado | 7.35 | 23.50 | 34.60 | 43.71 |
| Unilibre | 7.14 | 21.60 | 31.06 | 38.79 |
| Bridge (Experimental Unit) | Observation | f [Hz] | ζ [%] | log(Se) [dB/Hz] | log(S) [dB/Hz] |
|---|---|---|---|---|---|
| Uninorte | 1 | 7.98 | 0.12 | −21.03 | −26.48 |
| 2 | 7.97 | 0.28 | −20.60 | −25.96 | |
| 3 | 7.97 | 0.32 | −20.65 | −25.70 | |
| 4 | 7.96 | 0.29 | −20.59 | −25.56 | |
| 5 | 7.98 | 0.29 | −20.58 | −25.41 | |
| 6 | 7.98 | 0.28 | −20.60 | −25.49 | |
| 7 | 7.99 | 0.35 | −20.47 | −25.05 | |
| 8 | 7.99 | 0.34 | −20.51 | −25.15 | |
| 9 | 7.99 | 0.35 | −20.52 | −25.17 | |
| 10 | 7.99 | 0.15 | −20.99 | −25.45 | |
| 11 | 7.99 | 0.36 | −20.17 | −25.14 | |
| 12 | 7.99 | 0.30 | −20.24 | −25.08 | |
| 13 | 7.99 | 0.33 | −20.33 | −25.18 | |
| 14 | 7.99 | 0.43 | −20.10 | −24.28 | |
| 15 | 7.99 | 0.36 | −20.09 | −24.33 | |
| 16 | 7.98 | 0.32 | −20.05 | −24.35 | |
| 17 | 7.98 | 0.33 | −20.09 | −24.40 | |
| 18 | 7.98 | 0.32 | −20.10 | −24.48 | |
| Sagrado | 1 | 8.64 | 0.21 | −20.79 | −24.56 |
| 2 | 8.66 | 0.37 | −20.62 | −24.45 | |
| 3 | 8.68 | 0.39 | −20.50 | −24.41 | |
| 4 | 8.68 | 0.43 | −20.50 | −24.19 | |
| 5 | 8.68 | 0.47 | −20.56 | −24.15 | |
| 6 | 8.68 | 0.46 | −20.61 | −24.23 | |
| 7 | 8.69 | 0.47 | −20.65 | −24.11 | |
| 8 | 8.69 | 0.44 | −20.69 | −24.03 | |
| 9 | 8.69 | 0.44 | −20.65 | −24.09 | |
| 10 | 8.72 | 0.65 | −21.01 | −23.66 | |
| 11 | 8.71 | 0.51 | −20.62 | −23.76 | |
| 12 | 8.71 | 0.48 | −20.74 | −24.12 | |
| 13 | 8.70 | 0.47 | −20.60 | −24.22 | |
| 14 | 8.70 | 0.47 | −20.64 | −24.32 | |
| 15 | 8.70 | 0.43 | −20.62 | −24.43 | |
| 16 | 8.69 | 0.42 | −20.56 | −24.45 | |
| 17 | 8.69 | 0.47 | −20.54 | −24.32 | |
| 18 | 8.71 | 0.47 | −20.53 | −24.19 | |
| Unilibre | 1 | 8.77 | 0.00 | −21.62 | −23.55 |
| 2 | 8.77 | 0.00 | −20.91 | −23.82 | |
| 3 | 8.77 | 0.00 | −20.92 | −24.22 | |
| 4 | 8.78 | 0.23 | −20.67 | −23.12 | |
| 5 | 8.78 | 0.25 | −20.67 | −23.19 | |
| 6 | 8.78 | 0.25 | −20.68 | −23.39 | |
| 7 | 8.78 | 0.23 | −20.69 | −23.55 | |
| 8 | 8.77 | 0.22 | −20.72 | −23.66 | |
| 9 | 8.77 | 0.21 | −19.63 | −23.72 | |
| 10 | 8.78 | 0.11 | −20.98 | −24.81 | |
| 11 | 8.76 | 0.17 | −20.53 | −23.89 | |
| 12 | 8.76 | 0.16 | −20.71 | −24.20 | |
| 13 | 8.76 | 0.21 | −20.72 | −24.22 | |
| 14 | 8.76 | 0.19 | −20.80 | −24.43 | |
| 15 | 8.76 | 0.16 | −20.87 | −24.58 | |
| 16 | 8.75 | 0.22 | −20.82 | −24.51 | |
| 17 | 8.75 | 0.22 | −20.80 | −24.44 | |
| 18 | 8.75 | 0.21 | −20.83 | −24.54 |
| Bridge (Experimental Unit) | f [Hz] | ζ [%] | log(Se) [dB/Hz] | log(S) [dB/Hz] |
|---|---|---|---|---|
| Uninorte | 7.984 | 0.307 | −20.428 | −25.148 |
| Sagrado | 8.690 | 0.446 | −20.634 | −24.205 |
| Unilibre | 8.769 | 0.167 | −20.749 | −23.959 |
| Bridge | Fitted Frequencies [Hz] | Adjustment Factor | Error [%] | |||
|---|---|---|---|---|---|---|
| Mode 1 | Mode 2 | Mode 3 | Mode 4 | |||
| Uninorte | 8.02 | 26.94 | 40.18 | 44.78 | 1.90 | 0.48 |
| Sagrado | 8.73 | 27.62 | 40.84 | 49.89 | 1.50 | 0.41 |
| Unilibre | 8.75 | 25.06 | 35.98 | 43.47 | 1.80 | 0.21 |
| Element Type | Uninorte Bridge | Sagrado Bridge | Unilibre Bridge | ||||||
|---|---|---|---|---|---|---|---|---|---|
| Total Surface [m2] | Corroded Area [%] | Total Corroded Surface [m2]/ Element | Total Surface | % Corroded Area | Total Corroded Surface/ Element | Total Surface | % Corroded Area | Total Corroded Surface/ Element | |
| Upper chords | 57.16 | 8 | 4.57 | 55.79 | 18 | 10.04 | 66.47 | 56 | 37.23 |
| Lower chords | 57.16 | 10 | 5.72 | 55.79 | 24 | 13.39 | 66.47 | 65 | 43.21 |
| Lateral diagonals | 50.40 | 5 | 2.52 | 50.40 | 30 | 15.12 | 42.68 | 60 | 25.61 |
| Upper diagonals | 12.76 | 8 | 1.02 | 12.76 | 20 | 2.55 | 12.29 | 55 | 6.76 |
| Lower diagonals | 11.49 | 7 | 0.75 | 11.49 | 20 | 2.30 | 11.06 | 60 | 6.64 |
| Upper struts | 10.97 | 4 | 0.44 | 10.97 | 25 | 2.74 | 11.02 | 50 | 5.51 |
| Lower struts | 11.97 | 5 | 0.54 | 11.97 | 25 | 2.99 | 14.87 | 50 | 7.43 |
| Vertical struts | 4.02 | 1 | 0.04 | 4.02 | 22 | 0.88 | 5.32 | 55 | 2.93 |
| Total surface bridge: | 215.93 | --- | 15.59 | 213.19 | --- | 50.02 | 230.18 | --- | 135.30 |
| % of the corroded area/bridge: | 15.59/215.93 = 7.22% | 50.02/213.19 = 23.46% | 135.30/230.18 = 58.78% | ||||||
Disclaimer/Publisher’s Note: The statements, opinions and data contained in all publications are solely those of the individual author(s) and contributor(s) and not of MDPI and/or the editor(s). MDPI and/or the editor(s) disclaim responsibility for any injury to people or property resulting from any ideas, methods, instructions or products referred to in the content. |
© 2023 by the authors. Licensee MDPI, Basel, Switzerland. This article is an open access article distributed under the terms and conditions of the Creative Commons Attribution (CC BY) license (https://creativecommons.org/licenses/by/4.0/).
Share and Cite
Barrios, S.; Guzmán, A.; Ortiz, A. Influence of Corrosion on Dynamic Behavior of Pedestrian Steel Bridges—Case Study. Infrastructures 2023, 8, 52. https://doi.org/10.3390/infrastructures8030052
Barrios S, Guzmán A, Ortiz A. Influence of Corrosion on Dynamic Behavior of Pedestrian Steel Bridges—Case Study. Infrastructures. 2023; 8(3):52. https://doi.org/10.3390/infrastructures8030052
Chicago/Turabian StyleBarrios, Susana, Andrés Guzmán, and Albert Ortiz. 2023. "Influence of Corrosion on Dynamic Behavior of Pedestrian Steel Bridges—Case Study" Infrastructures 8, no. 3: 52. https://doi.org/10.3390/infrastructures8030052
APA StyleBarrios, S., Guzmán, A., & Ortiz, A. (2023). Influence of Corrosion on Dynamic Behavior of Pedestrian Steel Bridges—Case Study. Infrastructures, 8(3), 52. https://doi.org/10.3390/infrastructures8030052













