The Voyatzis Mansion in Aegina, Greece: A Historical and Architectural Approach and Physicochemical Documentation of the Wall Painting Decoration
Abstract
:1. Introduction
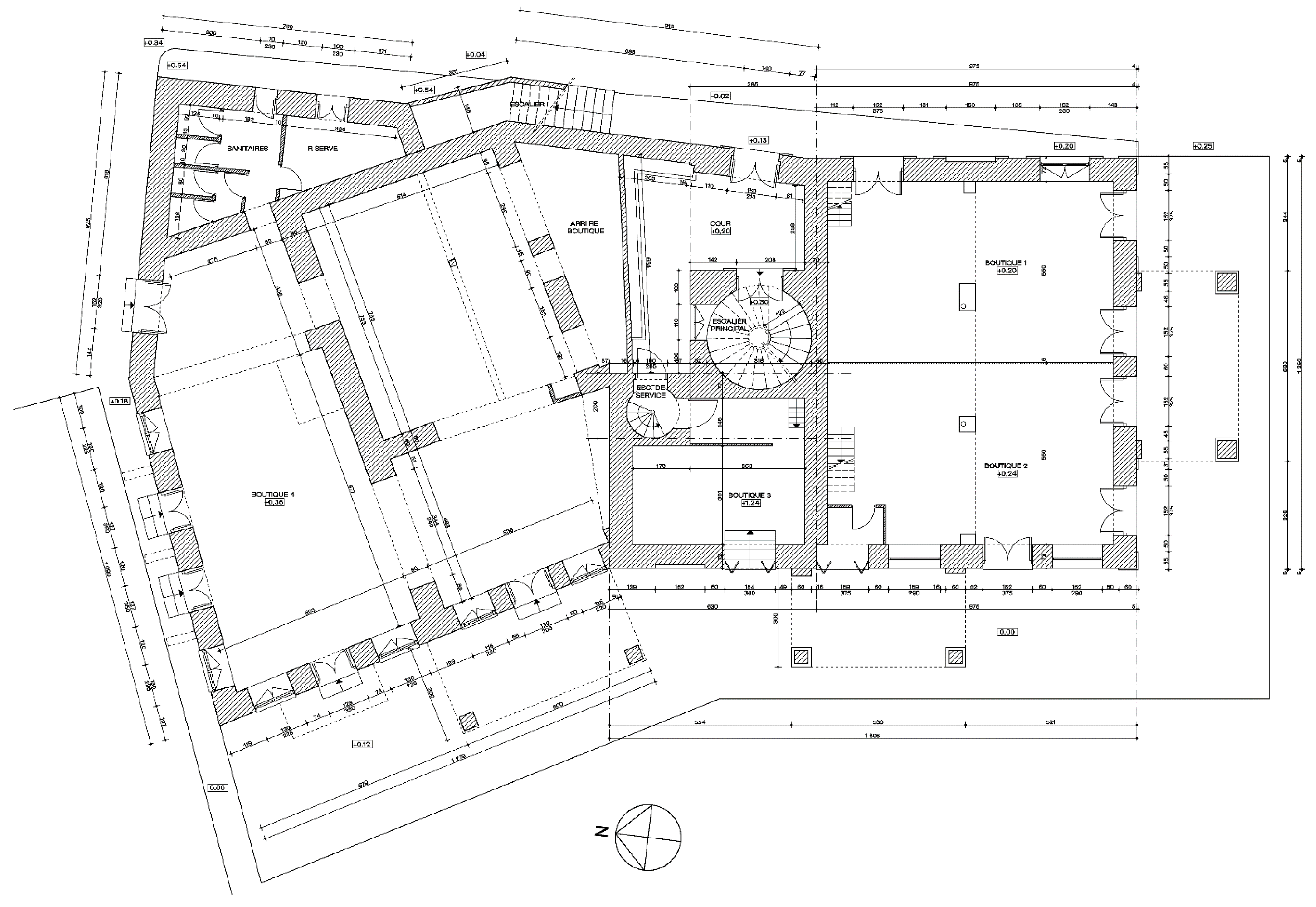
2. Architecture and Special Features
2.1. Timeline
2.2. Architectural Style and Configuration
3. Wall Paintings and Ceiling Decoration
3.1. Description
3.2. The Style of the Painting Decoration
3.3. Technology and Construction
4. Applied Methodology
5. Results and Discussion
5.1. Preservation State
5.2. Material Identification and Painting Technique
6. Conclusions
Author Contributions
Funding
Institutional Review Board Statement
Informed Consent Statement
Data Availability Statement
Acknowledgments
Conflicts of Interest
References
- Topouzis, G. Symi, Nireus’ Island: History of symi from the Mythical Years to Incorporation; Self-Publication: Rhodes, Greece, 1950; pp. 12–20. (In Greek) [Google Scholar]
- Georgas, E. Study of Sponges and Sponge Fishing; Self-Publication: Piraeus, Greece, 1937; pp. 18–35. (In Greek) [Google Scholar]
- Oral testimony and archived documents of Margarita Voyatzi, granddaughter of Konstantinos and Aida Luisa.
- Voyatzi, M. Photographic Archives of Dimitrios Moraitis.
- Oral testimony of Sylvia Voyatzi (1985–1986), daughter of Konstantinos and Aida Luisa.
- Jacotey-Voyatzis Architectes Associès architectural firm, Christina Voyatzi, great-granddaughter of Konstantinos and Aida Louisa. Plotting of Current State, 2004.
- Biris, M. Athenian Architecture, 1875–1925; Melissa: Athens, Greece, 2003; pp. 50–110. (In Greek) [Google Scholar]
- Biris, M.; Adami-Kardamitsi, M. Neoclassical Architecture in Greece; Melissa: Athens, Greece, 2001; pp. 15–102. (In Greek) [Google Scholar]
- Philippidis, D. Modern Greek Architecture; Melissa: Athens, Greece, 1984; pp. 65–98. (In Greek) [Google Scholar]
- Government Gazette 1007/D/02.10.1992 “Listing of 34 Buildings located within the Street Plan of the Municipality of Aegina (Prefecture of Attica) as Historical Buildings and Determination of Special Terms and Conditions for Construction”; Ministry for the Environment, Physical Planning and Public Works: Athens, Greece, 1992.
- Explanatory Report by the Piraeus Directorate for Urban Planning re: “Listing of 34 Buildings along the Port of Aegina Front as Historical” Oικ/101397/13280/04.12.91; Ministry for the Environment, Physical Planning and Public Works: Athens, Greece, 1991.
- Chandler, R. Voyages dans l’ Asie Mineure et en Grèce: Faits aux Depends de la Société des Dilettanti, dans les Années 1764–1765 et 1766; (In French). Chez Arthus- Bernard Librairie: Paris, France, 1806; pp. 302–304. [Google Scholar]
- Bouras, C.; Philippidis, D. (Eds.) Architecture; Melissa: Athens, Greece, 2013; p. 45. (In Greek) [Google Scholar]
- Philippidis, D. Decorative Arts: Three Centuries of Art in Greek Architecture; Melissa: Athens, Greece, 1998; pp. 104–108, 144–147, 271–275. (In Greek) [Google Scholar]
- Government Gazette 999/B/09.12.1982. “Designation of Building at 1 Kanari Str. on the Aegina Waterfront, Owned by A. and S. Voyatzis, as a Work of Art”; Ministry of Culture: Athens, Greece, 1982.
- Harwood, B. Stencilling: Interior Architectural Ornamentation. A Look at 1870–1930 with examples from Texas. J. Int. Des. 1986, 12, 31–40. [Google Scholar] [CrossRef]
- Georgiadou, Z. Constructive and Decorative Materials; Tziolas: Thessaloniki, Greece, 2021; pp. 520–521. (In Greek) [Google Scholar]
- Chiotinis, N.; Xanthis, S.; Chiotinis, M. The Architecture of Symi. In Symi; Apostolopolos, N., Ed.; New Media Art: Athens, Greece, 2008; pp. 111–162. (In Greek) [Google Scholar]
- Tseva, I. Decorative and Architectural Details of Neoclassical Houses of Piraeus. Available online: https://tseva.webnode.com/news/διακοσμητικές-και-αρχιτεκτονικές-λεπτομέρε/ (accessed on 3 June 2021). (In Greek).
- Talbott, P. Classical Savannah; Fine and Decorative Arts 1800–1840; Telfair Museum of Art: Savannah, GA, USA, 1998; p. 6. [Google Scholar]
- Thanopoulos, N. The Athenian Monumental Buildings of the 19th and Early 20th Century with Investigation of the Construction and Static Methodology (1834–1916). Ph.D. Thesis, School of Architect Engineers, National Technical University of Athens, Athens, Greece, 2004. (In Greek). [Google Scholar]
- Nomikos, M. Restoration, Reuse of Historic Buildings and Ensembles. Methodology-Applications; Giagoudi-Giapouli: Thessaloniki, Greece, 2004; pp. 92–102. (In Greek) [Google Scholar]
- Coffin, M. Borders and Scrolls, Early American Brush-Stroke Wall paintings 1790–1820; Albany Institute of History of Art: New York, NY, USA, 1986; p. 7. [Google Scholar]
- Nikolakos, C. Investigation of Conservation and Restoration Treatments of Ceiling Paintings of a Neoclassical Building. Ph.D. Thesis, Department of Civil Engineering, ATEI of Pireus, Egaleo, Greece, 2006. Available online: https://www.prooptiki-insurance.gr/wp-content/uploads/Acrobat/ptyxiaki.pdf (accessed on 3 June 2021). (In Greek).
- Kalantzidou, K. Study of Conservation and Restoration of Ceiling Paintings and Wall Paintings of the Neoclassical Buildinsg “Oikia Prassakaki” in Syros. Ph.D. Thesis, Department for Conservation of Antiqities and Works of Art, TEI of Athens, Athens, Greece, 2006. (In Greek). [Google Scholar]
- Fisher, C.; Kakoulli, I. Multispectral and Hyperspectral Imaging Technologies in Conservation: Current Research and Potential Applications. Rev. Conserv. 2006, 7, 3–16. [Google Scholar] [CrossRef]
- Liang, H. Advances in Multispectral and Hyperspectral Imaging for Archaeology and Art Conservation. Appl. Phys. A 2012, 106, 309–323. [Google Scholar] [CrossRef] [Green Version]
- Land, E.H.; McCann, J.J. Lightness and Retinex theory. J. Opt. Soc. Am. 1971, 61, 1–11. [Google Scholar] [CrossRef] [PubMed]
- Moon, T.; Schilling, M.R.; Thirkettle, S. A Note on the Use of False-Color Infrared Photography in Conservation. Stud. Cons. 1992, 37, 42. [Google Scholar] [CrossRef]
- Mercuri, F.; Zammit, U.; Orazi, N. Active infrared thermography applied to the investigation of art and historic artefacts. J. Therm. Anal. Calorim. 2011, 104, 475–485. [Google Scholar] [CrossRef]
- Alexopoulou, A.; Kaminari, A.; Moutsatsou, A. Multispectral and Hyperspectral Studies on Greek Monuments, Archaeological Objects and Paintings on different Substrates. Achievements and Limitations. In Proceedings of the International Conference on Transdisciplinary Multispectral Modeling and Cooperation for the Preservation of Cultural Heritage, TMM_CH 2018, Athens, Greece, 10–13 October 2018; Springer, Communications in Computer and Information Science; Springer: Berlin/Heidelberg, Germany, 2018; pp. 443–461. [Google Scholar]
- Kokkou, A.; Travlos, I. Ermoupolis—The Creation of a New City in Syros in the Beginning of the 19th Century; Emporiki Trapeza: Athens, Greece, 1984. (In Greek) [Google Scholar]
- Mayer, R. The Artist’s Handbook of Materials and Techniques; Viking: New York, NY, USA, 1991; p. 47. [Google Scholar]
- Eastaugh, N.; Walsh, V.; Chaplin, T.; Siddall, R. The Pigment. Compendium: Optical Microscopy of Historical Pigments; Butterworth-Heinemann: Oxford, UK, 2004. [Google Scholar] [CrossRef]
- Merkaj, E.; Civici, N. Micro-XRF Investigation of Decoration Materials and Painting Techniques in Three 18th–19th Century Mosques in Berat, Albania. J. Mat. Sci. Chem. Eng. 2019, 7, 1–15. [Google Scholar] [CrossRef] [Green Version]
- Alexopoulou, A.; Tziamourani, E.; Karabotsos, A. The Color Decoration of the Rodakis Hose in Mesagros, Aegina. Study of the Stratigraphy and Materials. Available online: https://www.archaiologia.gr/blog (accessed on 3 June 2021). (In Greek).
- Pigments through the Ages. Available online: http://www.webexhibits.org/pigments/ (accessed on 3 June 2021).
- Gettens, R.; Stout, G. Painting Materials—A Short Encyclopaedia; Dover: New York, NY, USA, 1966; p. 153. [Google Scholar]
























| Publisher’s Note: MDPI stays neutral with regard to jurisdictional claims in published maps and institutional affiliations. | 
© 2021 by the authors. Licensee MDPI, Basel, Switzerland. This article is an open access article distributed under the terms and conditions of the Creative Commons Attribution (CC BY) license (https://creativecommons.org/licenses/by/4.0/).
Share and Cite
Alexopoulou, A.G.; Georgiadou, Z.; Ilias, P.; Kaminari, A.A. The Voyatzis Mansion in Aegina, Greece: A Historical and Architectural Approach and Physicochemical Documentation of the Wall Painting Decoration. Heritage 2021, 4, 3630-3651. https://doi.org/10.3390/heritage4040200
Alexopoulou AG, Georgiadou Z, Ilias P, Kaminari AA. The Voyatzis Mansion in Aegina, Greece: A Historical and Architectural Approach and Physicochemical Documentation of the Wall Painting Decoration. Heritage. 2021; 4(4):3630-3651. https://doi.org/10.3390/heritage4040200
Chicago/Turabian StyleAlexopoulou, Athena Georgia, Zoe Georgiadou, Panagiotis Ilias, and Agathi Anthoula Kaminari. 2021. "The Voyatzis Mansion in Aegina, Greece: A Historical and Architectural Approach and Physicochemical Documentation of the Wall Painting Decoration" Heritage 4, no. 4: 3630-3651. https://doi.org/10.3390/heritage4040200
APA StyleAlexopoulou, A. G., Georgiadou, Z., Ilias, P., & Kaminari, A. A. (2021). The Voyatzis Mansion in Aegina, Greece: A Historical and Architectural Approach and Physicochemical Documentation of the Wall Painting Decoration. Heritage, 4(4), 3630-3651. https://doi.org/10.3390/heritage4040200
 
         
                                                
