Intervention Projects in the Rural Alpine Environment: Approaches from the 1990s
Abstract
1. Introduction
1.1. Approaches to Heritage Reuse
- Spolia: From the Romans, compounding a new work from materials, parts, or the entire piece.
- Iconoclasm: An intentional change in use when spatial correspondence takes place (referred to as a transformation in this paper).
- Heritage: After the big contemporary armed conflicts in Europe4, for the first time, it was stated that reusing heritage to make it habitable with a socially useful purpose was a key factor for ensuring its prevalence, referring not only to the great works of architecture but also to those that acquired cultural significance through time, both material and immaterial (including anonymous architecture and traditional building systems such as the timber frame and log-construction in Swiss alpine areas).
- Obsolescence: Referring to the works of the past that are no longer useful, due to either a lack of maintenance or simply being outdated, as is often the case for architecture in a rural environment. When the work should be only updated, it comes to refurbishment; when it should embrace a new meaningful purpose, as it is in the case studies presented in this paper, it comes to transformation, as an intervention in a built heritage which presents a typological shift, which is the essence of the term adaptative reuse.
1.2. Categories of the Intervention Project
- Revelation: The new takes a step back to recover the old, which is presented from a contemporary perspective, which represents a traditional strategy to approach, for example, the ruins, exemplified in the Kolumba Museum of Peter Zumthor.
- Continuation: The new acquires a communicative value equivalent to the old in a functional or symbolic sense, resulting in a kind of well-defined enlargement, yet subordinated to the old, exemplified in the Hotel Zürichberg of Burkhalter Sumi.
- Accentuation: The new obliges to an updated reading of the old through a meaningful addition, which highlights but bounds up inextricably with the old, exemplified in the intervention in the Museum of Natural History in Berlin of Diener&Diener.
1.3. Rediscovering Architecture in the Rural Environment
2. Materials and Methods
3. The Spatial Form Approach
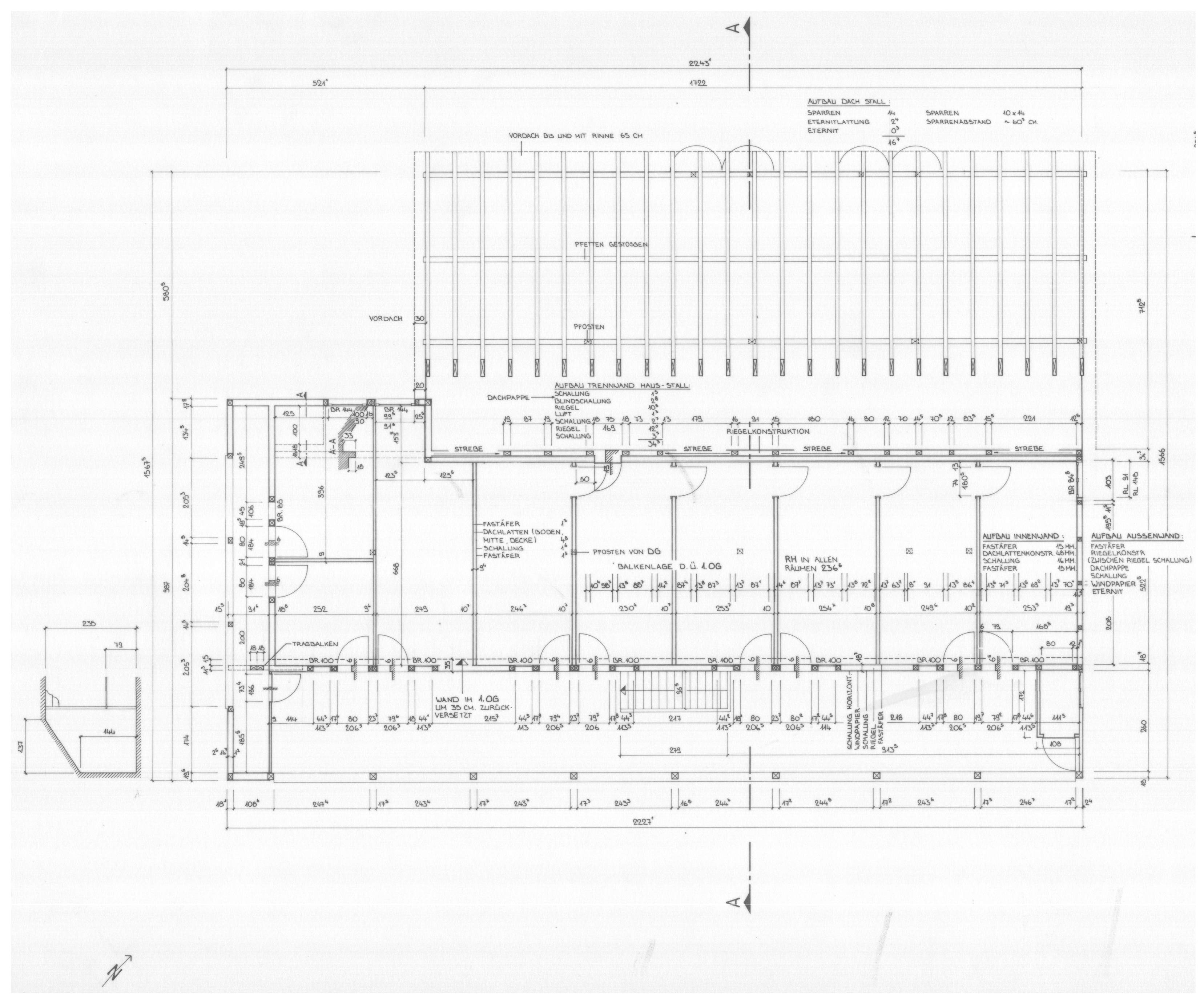
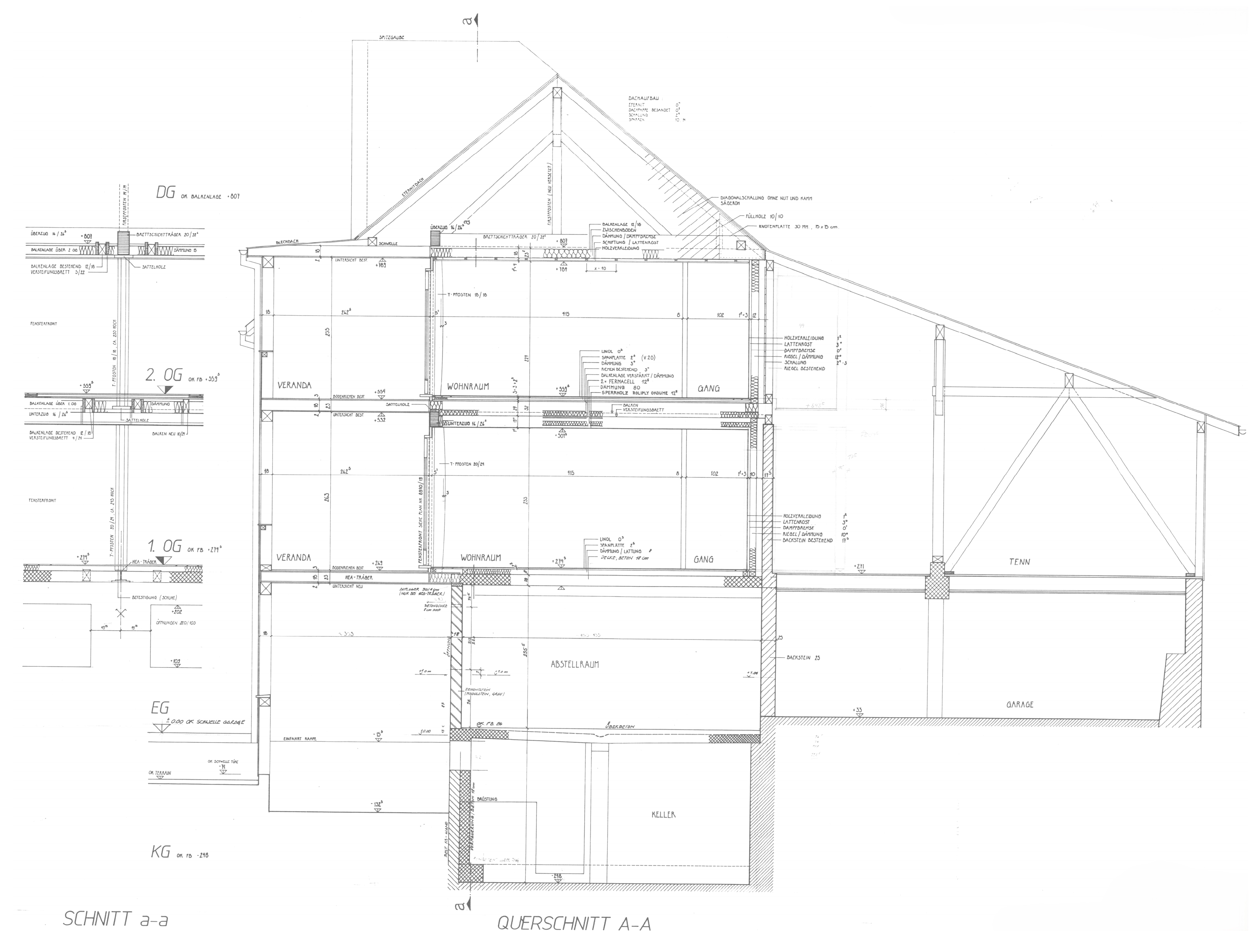
3.1. Spatial Hybridisation: Walenstadtberg Housing
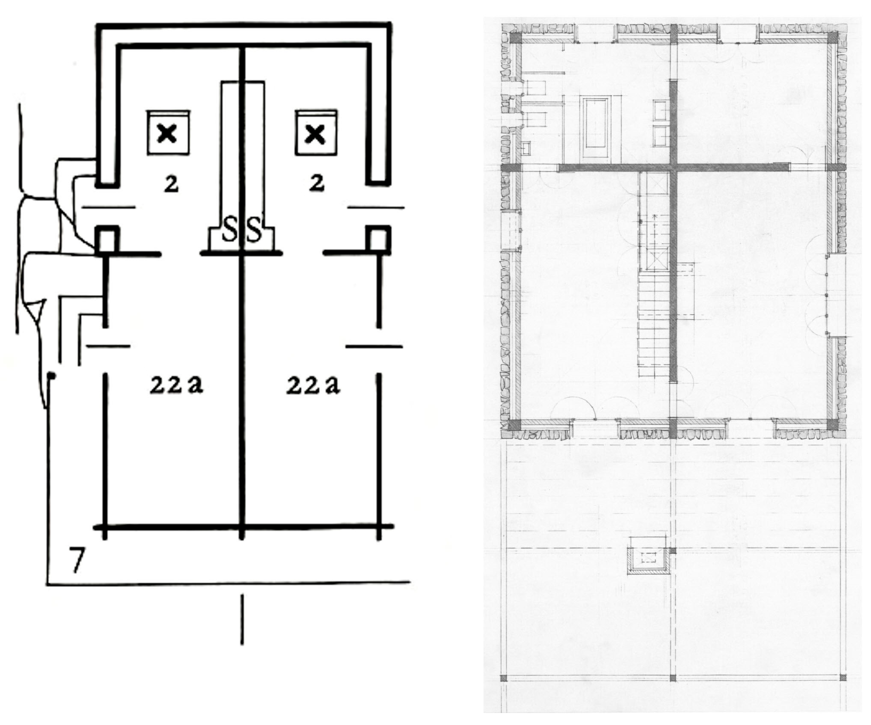
3.2. Plastic Symbiosis: Gugalun House
4. Discussion
5. Conclusions
Every new work of architecture intervenes in a specific historical situation. It is essential to the quality of the intervention that the new building should embrace qualities which can enter into a meaningful dialogue with the existing situation. For if the intervention is to find its place, it must make us see what already exists in a new light. We throw a stone into the water. Sand swirls up and settles again. The stir was necessary. The stone has found its place. But the pond is no longer the same[15] (p. 18).
Funding
Data Availability Statement
Acknowledgments
Conflicts of Interest
| 1 | As detailed by Miroslav Šik in Analogue Oldnew Architecture, 2019, or in Old-New, 2014, both published by Quart Verlag. |
| 2 | Kubler, G. (1962). The Shape of Time: Remarks on the History of things. Yale University Press. |
| 3 | Adaptative Reuse term on the Merriam-Webster Dictionary as the renovation and reuse of pre-existing structures (such as warehouses) for new purposes. https://www.merriam-webster.com/dictionary/adaptive%20reuse, accessed on 26 May 2024. |
| 4 | The fundamental agreements to this respect were the Athens Charter in 1931 (The Athens Charter for the Restoration of Historic Monuments) and the Venice Charter in 1964 (The International Charter for the Conservation and Restoration of Monuments and Sites). |
| 5 | Some examples of typification about intervention on pre-existence, from different approaches, include that of Steven W. Semes: the intervention as the literal replica, the same vine, the abstract reference or the drastic opposite [16]; or that of Muñoz Viñas: the intervention as the symbolism, the cultural connotation or the metaphor [17]. |
| 6 | The previous research carried out by the author in her doctoral thesis on recent Swiss architecture in the Graubünden area of Switzerland, published by Diseño with the support of Pro-Helvetia [18], underpins the previous fieldwork for the selection of the case studies. |
| 7 | The Great Mosque in Cordoba for the first, or the Pantheon in Rome for the latter, illustrate both strategies. |
| 8 | |
| 9 | Wir haben bewusst bewährtes Material bleiben lassen. Der Werdegang und die Einflüsse auf das Gebäude sollten ablesbar bleiben. Benno John [12]. |
| 10 | As initially proposed by Rudolf Olgiati. |
| 11 | An interview with Jürg Conzett conducted by Carlos Graña Ramos on 14th August of 2023, Chur. |
| 12 | This consists of making wax pieces in the shape of the voids to be created. After forming the required volume and placing the wax pieces as if they were formwork, the concrete is poured. When the concrete has set, the wax must be removed by heating. This technique, inherited from sculpture, generally consists of removing the wax in an oven and then filling the hollow with molten metal to achieve the desired shape. The aim in this case was the void and it was not possible to place the piece in an oven. However, the combustion in the chimney itself generates the necessary heat to melt the wax, which is evacuated through a series of holes that must be closed after the process to prevent the escape of the hot air. |
| 13 | The work developed by Mario Artieda Pérez (2016) presents a detailed constructive description of the building [21]. |
| 14 | Represented by the Schmid House in Vals (2000), the Beckel-Kübler House in Fürstenaubruck (2006) or the Girsberger House in Münster-Geschinen (2009) in Caminada, G. A. (2021). Gion A. Caminada, 1995–2021: identidad, autonomía y resonancia = identity, autonomy and resonance. El Escorial (Madrid): Croquis. |
| 15 | A paradigmatic example of this spatial growth yet being a new building but following the old tower typology of the site, and a concrete shell instead of a log construction one, is the Roccolo Tower of Miller&Maranta. |
| 16 | Peter Zumthor explores the limits of the log-construction system through a towers composition which improve the opening possibility of the traditional system in his timber houses Luzi in Jenaz 2002 and Annalisa in Leis 2009. |
| 17 | An example of the Skeuomorphism in log-construction though the weaving of the corners is the Stiva da Morts of Gion A. Caminada in Vrin 1996 yet it is a new building. |
| 18 | The first houses of Gion A. Caminada develop in this way. For example the Caviezel House in Vrin 1995 or the Schmid House in Vals 2000. |
| 19 | The Beckel-Kübler House in Fürstenaubruck 2006 of Gion A. Caminada, although a new building, explores the possibility of an inner division from a core of a timber stud envelope. |
References
- Rivera Blanco, J. Tres restauradores de la arquitectura, Boito, Giovannoni y Torres Balbás: Interrelaciones en la Europa de la primera mitad del siglo XX. Conversaciones Con. 2018, 4, 155–175. Available online: https://revistas.inah.gob.mx/index.php/conversaciones/article/view/11897 (accessed on 25 September 2024).
- Capitel, A. Metamorfosis de Monumentos Y Teorías de la Restauración; Alianza: Madrid, Spain, 2009. [Google Scholar]
- Wong, L. Adaptative Reuse in Architecture. A Typological Index; Birkhäuser: Berlin, Germany, 2023. [Google Scholar]
- Georgescu, A. La Actualización Patrimonial a Través de la Arquitectura Contemporánea; Trea: Gijón, Spain, 2015. [Google Scholar]
- Lüder, I. Widerständige Ressource. Typologie und Gebrauch Historischer Bauernhäuser; Rurale Topografien, Band 17; Transcript Verlag: Bielefeld, Germany, 2022. [Google Scholar] [CrossRef]
- Yin, R.K. Case Study Research. Design and Methods; Sage: London, UK, 1994. [Google Scholar]
- Stake, R.E. The Art of Case Study Research; Sage Publications: Thousand Oaks, CA, USA, 1995. [Google Scholar]
- Cortés, J.A. Paul Frankl, Rudol Wittkower, Colin Rowe. Tres enfoques histórico-formales para el estudio de la arquitectura. Cuad. Proy. Arquit. 2015, 5, 74–83. [Google Scholar]
- Frankl, P. Die Entwicklungsphasen der neueren Baukunst; Teubner: Berlin, Germany, 1914. [Google Scholar]
- Deplazes, A.; Wieser, C. An attempt to classify horizontal and vertical space development. In Constructing Architecture. Materials Processes Structures. A Handbook; Birkhäuser: Basel, Switzerland, 2005; pp. 243–250. [Google Scholar]
- Walker, R. Balkone und Loggien = Balcons et loggias = Balconies and Loggias. Werk Bau. Wohn. 2012, 5, 30–35. [Google Scholar] [CrossRef]
- Das kleinste Detail geflickt. Schrein. Ztg. 2019, 43. Available online: https://www.schreinerzeitung.ch/de/node/60168 (accessed on 25 September 2024).
- Zumthor, P. Peter Zumthor. Buildings and Projects. Zur. Scheidegger Spiess. 2014, II, 1985–2013. [Google Scholar]
- Simonett, C. Die Bauernhäuser des Kantons Graubünden: Die Wohnnauten; Verlag Schweizerische Gesellschaft für Volkskunde: Basel, Switzerland, 1965; Volume 1. [Google Scholar]
- Zumthor, P. Thinking Architecture; Birkhäuser: Basel, Switzerland; Boston, MA, USA; Berlin, Germany, 1999. [Google Scholar]
- Semes, S.W. The Future of the Past: A Conservation Ethic for Architecture, Urbanism, and Historic Preservation; W.W. Norton&Co: New York, NY, USA, 2009. [Google Scholar]
- Muñoz, S. Contemporary Theory of Conservation; Elsevier Butterworth-Heinemann: Amsterdam, The Netherlands, 2005. [Google Scholar]
- Alonso, S. Materialidad poética. Arquitectura Suiza Contemporánea; Diseño: Madrid, Spain, 2021. [Google Scholar]
- Ehemalige Hoteldependance. Walenstadtberg. Holz Bull. Lignum. Umbauen/Verdichten 1992, 31, 434–435.
- Märkli, P.; Mostafavi, M. Approximations the Architecture of Peter Märkli; AA Publications: London, UK, 2002. [Google Scholar]
- Artieda, M. El detalle como Intensificación de la Forma. La Construcción en Madera en la Arquitectura Residencial de Peter Zumthor. Bachelor’s Thesis, University of Zaragoza, Zaragoza, Spain, 2016. [Google Scholar]







































Disclaimer/Publisher’s Note: The statements, opinions and data contained in all publications are solely those of the individual author(s) and contributor(s) and not of MDPI and/or the editor(s). MDPI and/or the editor(s) disclaim responsibility for any injury to people or property resulting from any ideas, methods, instructions or products referred to in the content. |
© 2024 by the author. Licensee MDPI, Basel, Switzerland. This article is an open access article distributed under the terms and conditions of the Creative Commons Attribution (CC BY) license (https://creativecommons.org/licenses/by/4.0/).
Share and Cite
Alonso de los Ríos, S. Intervention Projects in the Rural Alpine Environment: Approaches from the 1990s. Heritage 2024, 7, 5611-5640. https://doi.org/10.3390/heritage7100265
Alonso de los Ríos S. Intervention Projects in the Rural Alpine Environment: Approaches from the 1990s. Heritage. 2024; 7(10):5611-5640. https://doi.org/10.3390/heritage7100265
Chicago/Turabian StyleAlonso de los Ríos, Silvia. 2024. "Intervention Projects in the Rural Alpine Environment: Approaches from the 1990s" Heritage 7, no. 10: 5611-5640. https://doi.org/10.3390/heritage7100265
APA StyleAlonso de los Ríos, S. (2024). Intervention Projects in the Rural Alpine Environment: Approaches from the 1990s. Heritage, 7(10), 5611-5640. https://doi.org/10.3390/heritage7100265
