Polyolefin-Based Cladding Panels from Discarded Fishing Ropes: A Sustainable Solution for Managing Fishing Gear Waste in Isolated Islands
Abstract
1. Introduction
2. Materials and Methods
2.1. Materials
2.2. Manufacturing of Thin Films for Molecular Characterization
2.3. Panel Manufacturing Process
2.4. Characterization Techniques
2.4.1. Fourier Transform Infrared Spectroscopy (FTIR)
2.4.2. Differential Scanning Calorimetry (DSC)
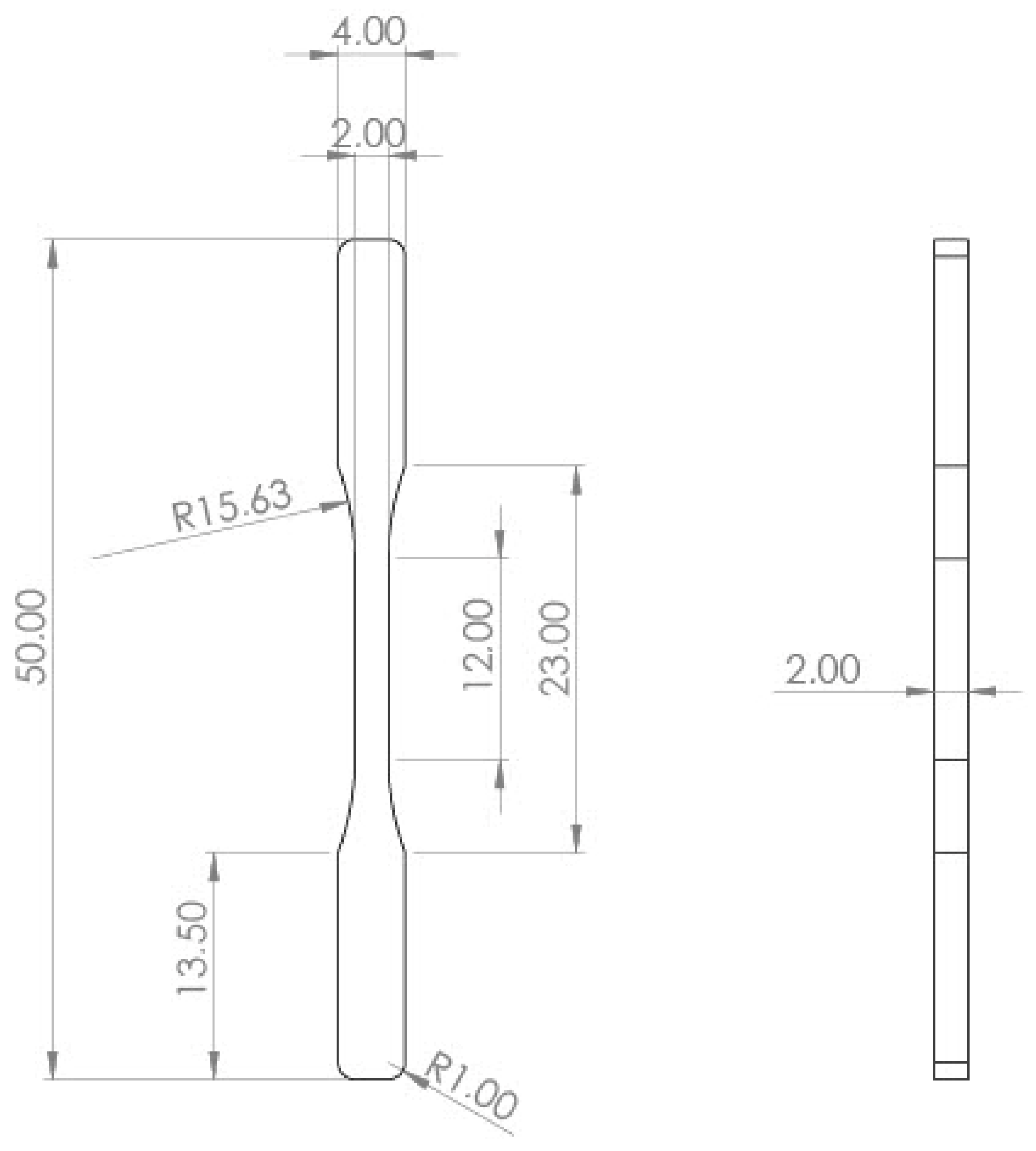
2.4.3. Tensile Tests
2.4.4. Gel Permeation Chromatography (GPC)
2.4.5. Melt Flow Rate (MFR)
2.4.6. X-ray Diffraction (XRD)
2.4.7. Flexural Tests
2.4.8. Notched Izod Impact Tests
2.4.9. Scanning Electron Microscopy (SEM)
3. Results
3.1. FTIR
3.2. DSC
3.3. Tensile Tests
3.4. GPC
3.5. MFR
3.6. XRD
3.7. Flexural and Notched Izod Impact Strength Test
| Panel Type/Manufacturer | Material | Flexural Strength (Mpa) | Flexural Modulus (Gpa) | Izod Impact Strength (J/m) | Source |
|---|---|---|---|---|---|
| Used fishing rope panel | PP-HDPE | 10 | 0.23 | 30.73 | ---- |
| MULFORD Plastics | HDPE | ---- | 1.379 | 159 | [80] |
| CPS | HDPE | ---- | ---- | 374 | [81] |
| SIMONA | HDPE | --- | 1.65 | 147 | [82] |
4. Conclusions
Author Contributions
Funding
Institutional Review Board Statement
Informed Consent Statement
Data Availability Statement
Acknowledgments
Conflicts of Interest
References
- Ritchie, H.; Samborska, V.; Roser, M. “Plastic Pollution”. 2023. Published Online at OurWorldInData.org. Available online: https://ourworldindata.org/plastic-pollution (accessed on 21 May 2024).
- United Nations Environment Programme. “Plastic Pollution”. 2023. Published Online at UNEP.org. Available online: https://www.unep.org/plastic-pollution (accessed on 1 January 2024).
- Greenpeace, “Ghost Gear: The Abandoned Fishing Nets Haunting Our Oceans”, Greenpeace. 2019. Available online: https://www.greenpeace.org/static/planet4-international-stateless/2019/11/8f290a4f-ghostgearfishingreport2019_greenpeace.pdf (accessed on 17 May 2023).
- Lebreton, L.; Slat, B.; Ferrari, F.; Sainte-Rose, B.; Aitken, J.; Marthouse, R.; Hajbane, S.; Cunsolo, S.; Schwarz, A.; Levivier, A.; et al. Evidence that the Great Pacific Garbage Patch is rapidly accumulating plastic. Sci. Rep. 2018, 8, 4666. [Google Scholar] [CrossRef]
- Good, T.P.; June, J.A.; Etnier, M.A.; Broadhurst, G. Ghosts of the Salish Sea: Threats to Marine Birds in Puget Sound and the Northwest Straits from Derelict Fishing Gear; NOAA Fisheries/National Marine Fisheries Service, Conservation Biology Division, Northwest Fisheries Science Center: Seattle, WA, USA, 2009. [Google Scholar]
- Pritchard, G. Plastics Additives; Springer: Dordrecht, The Netherlands, 1998; Volume 1. [Google Scholar]
- Gijsman, P.; Meijers, G.; Vitarelli, G. Comparison of the UV-degradation chemistry of polypropylene, polyethylene, polyamide 6 and polybutylene terephthalate. Polym. Degrad. Stab. 1999, 65, 433–441. [Google Scholar] [CrossRef]
- Norman, G.; Gerald, S. Polymer Degradation & Stabilisation; Cambridge University Press: Cambridge, UK; New York, NY, USA, 1988. [Google Scholar]
- Singh, B.; Sharma, N. Mechanistic implications of plastic degradation. Polym. Degrad. Stab. 2008, 93, 561–584. [Google Scholar] [CrossRef]
- Jan, F. Rabek, Polymer Photodegradation; Springer: Dordrecht, The Netherlands, 1995. [Google Scholar] [CrossRef]
- Tolinski, M. Additives for Polyolefins: Getting the Most Out of Polypropylene, Polyethylene and TPO; William Andrew Pub: Oxford, UK, 2009. [Google Scholar]
- Scott, G. (Ed.) Degradable Polymers; Springer: Dordrecht, The Netherlands, 2002. [Google Scholar] [CrossRef]
- De Carvalho, C.L.; Silveira, A.F.; Rosa, D.D.S. A study of the controlled degradation of polypropylene containing pro-oxidant agents. Springerplus 2013, 2, 623. [Google Scholar] [CrossRef] [PubMed]
- Doğan, M. Ultraviolet light accelerates the degradation of polyethylene plastics. Microsc. Res. Tech. 2021, 84, 2774–2783. [Google Scholar] [CrossRef]
- Carrasco, F.; Pagès, P.; Pascual, S.; Colom, X. Artificial aging of high-density polyethylene by ultraviolet irradiation. Eur. Polym. J. 2001, 37, 1457–1464. [Google Scholar] [CrossRef]
- Gewert, B.; Plassmann, M.M.; MacLeod, M. Pathways for degradation of plastic polymers floating in the marine environment. Environ. Sci. Process Impacts 2015, 17, 1513–1521. [Google Scholar] [CrossRef]
- Weber, R.; Watson, A.; Forter, M.; Oliaei, F. Review Article: Persistent organic pollutants and landfills—A review of past experiences and future challenges. Waste Manag. Res. J. A Sustain. Circ. Econ. 2011, 29, 107–121. [Google Scholar] [CrossRef]
- Summers, J.W.; Rabinovitch, E.B. Weathering of Plastics; Elsevier: Amsterdam, The Netherlands, 1999. [Google Scholar]
- Marfella, R.; Prattichizzo, F.; Sardu, C.; Fulgenzi, G.; Graciotti, L.; Spadoni, T.; D’Onofrio, N.; Scisciola, L.; La Grotta, R.; Frigé, C.; et al. Microplastics and Nanoplastics in Atheromas and Cardiovascular Events. N. Engl. J. Med. 2024, 390, 900–910. [Google Scholar] [CrossRef]
- CERMIM. “Rapport Projet de Valorisation des Cordages”. Report Published Online at CERMIM.ca. 2023. Available online: https://www.cermim.ca/wp-content/uploads/2023/08/200129_Rapport-Projet-valorisation-Cordages_CERMIM-1-108.pdf (accessed on 12 February 2024).
- Econyl. NET-WORKSTM. Available online: https://www.econyl.com/magazine/econyl-news/net-works/ (accessed on 21 May 2024).
- Waterhaul. Recycled, Sustainable Sunglasses & Ocean Plastic Products. Available online: https://waterhaul.co/ (accessed on 21 May 2024).
- Bureo. Bureo—Recycled Fishing Nets Products. Available online: https://bureo.co/ (accessed on 21 May 2024).
- Park, J.K.; Kim, D.J.; Kim, M.O. Mechanical behavior of waste fishing net fiber-reinforced cementitious composites subjected to direct tension. J. Build. Eng. 2021, 33, 101622. [Google Scholar] [CrossRef]
- Truong, V.D.; Kim, M.O.; Kim, D.J. Feasibility study on use of waste fishing nets as continuous reinforcements in cement-based matrix. Constr. Build. Mater. 2021, 269, 121314. [Google Scholar] [CrossRef]
- European Commission. Study on Circular Design of the Fishing Gear for Reduction of Environmental Impacts; European Commission: Brussels, Belgium, 2020. [Google Scholar]
- Ahad, N.A.; Yahaya, S.S.S. Sensitivity analysis of Welch’s t-test. AIP Conf. Proc. 2014, 1605, 888–893. [Google Scholar] [CrossRef]
- Almond, J.; Sugumaar, P.; Wenzel, M.N.; Hill, G.; Wallis, C. Determination of the carbonyl index of polyethylene and polypropylene using specified area under band methodology with ATR-FTIR spectroscopy. E-Polymers 2020, 20, 369–381. [Google Scholar] [CrossRef]
- Larsen, Å.G.; Olafsen, K.; Alcock, B. Determining the PE fraction in recycled PP. Polym. Test. 2021, 96, 107058. [Google Scholar] [CrossRef]
- TA Instruments. Thermal Conductivity (TN048). Available online: https://www.tainstruments.com/pdf/literature/TN048.pdf (accessed on 16 February 2024).
- ISO 527-2; Plastics—Determination of Tensile Properties—Part 2: Test Conditions for Moulding and Extrusion. ISO: Geneva, Switzerland, 2012.
- Bivens, A. “Step-by-Step Method Development for GPC/SEC”. Published Online at Agilent Technologies, Inc. 2016. Available online: https://www.agilent.com/cs/library/technicaloverviews/public/5991-7272EN.pdf (accessed on 1 July 2024).
- ASTM D1238-23; Standard Test Method for Melt Flow Rates of Thermoplastics by Extrusion Plastometer. ASTM: West Conshohocken, PA, USA, 2013.
- Singh, R.; Kumar, R.; Ahuja, I.S. Thermal Analysis for Joining of Dissimilar Polymeric Materials Through Friction Stir Welding. In Reference Module in Materials Science and Materials Engineering; Elsevier: Amsterdam, The Netherlands, 2017. [Google Scholar] [CrossRef]
- Bremner, T.; Rudin, A.; Cook, D.G. Melt flow index values and molecular weight distributions of commercial thermoplastics. J. Appl. Polym. Sci. 1990, 41, 1617–1627. [Google Scholar] [CrossRef]
- Strömberg, E.; Karlsson, S. The design of a test protocol to model the degradation of polyolefins during recycling and service life. J. Appl. Polym. Sci. 2009, 112, 1835–1844. [Google Scholar] [CrossRef]
- Oblak, P.; Gonzalez-Gutierrez, J.; Zupančič, B.; Aulova, A.; Emri, I. Processability and mechanical properties of extensively recycled high density polyethylene. Polym. Degrad. Stab. 2015, 114, 133–145. [Google Scholar] [CrossRef]
- ASTM D790-17; Standard Test Methods for Flexural Properties of Unreinforced and Reinforced Plastics and Electrical Insulating Materials. ASTM: West Conshohocken, PA, USA, 2017.
- ASTM D256-23; Standard Test Methods for Determining the Izod Pendulum Impact Resistance of Plastics. ASTM: West Conshohocken, PA, USA, 2023.
- Smith, B.C. The Infrared Spectra of Polymers II: Polyethylene. Spectroscopy 2021, 36, 24–29. [Google Scholar] [CrossRef]
- Karger-Kocsis, J. (Ed.) Polypropylene; Springer: Dordrecht, The Netherlands, 1999; Volume 2. [Google Scholar] [CrossRef]
- Larkin, P.J. Illustrated IR and Raman Spectra Demonstrating Important Functional Groups. In Infrared and Raman Spectroscopy; Elsevier: Amsterdam, The Netherlands, 2018; pp. 153–210. [Google Scholar] [CrossRef]
- Amar, H.; Chabira, S.; Sebaa, M.; Benchatti, A. Structural Changes Undergone During Thermal Aging and/or Processing of Unstabilized, Dry-blend and Rigid PVC, Investigated by FTIR-ATR and Curve Fitting. Ann. Chim.-Sci. Matériaux 2019, 43, 59–68. [Google Scholar] [CrossRef]
- Laufer, H.; Baclaski, B.; Koehn, U. Alkylphenols affect lobster (Homarus americanus) larval survival, molting and metamorphosis. Invertebr. Reprod. Dev. 2012, 56, 66–71. [Google Scholar] [CrossRef]
- Martínez-Romo, A.; González-Mota, R.; Soto-Bernal, J.J.; Rosales-Candelas, I. Investigating the degradability of HDPE, LDPE, PE-Bio, and pe-oxo films under UV-B radiation. J. Spectrosc. 2015, 2015, 1–6. [Google Scholar] [CrossRef]
- Lu, H.; Qiao, J.; Xu, Y.; Yang, Y. Effect of isotacticity distribution on the crystallization and melting behavior of polypropylene. J. Appl. Polym. Sci. 2002, 85, 333–341. [Google Scholar] [CrossRef]
- Wei, H.; Thompson, R.B.; Park, C.B.; Chen, P. Surface tension of high density polyethylene (HDPE) in supercritical nitrogen: Effect of polymer crystallization. Colloids Surf. A Physicochem. Eng. Asp. 2010, 354, 347–352. [Google Scholar] [CrossRef]
- Aumnate, C.; Rudolph, N.; Sarmadi, M. Recycling of Polypropylene/Polyethylene Blends: Effect of Chain Structure on the Crystallization Behaviors. Polymers 2019, 11, 1456. [Google Scholar] [CrossRef]
- Pracella, M.; Rolla, L.; Chionna, D.; Galeski, A. Compatibilization and properties of poly(ethylene terephthalate)/polyethylene blends based on recycled materials. Macromol. Chem. Phys. 2002, 203, 1473–1485. [Google Scholar] [CrossRef]
- Jabarin, S.A.; Lofgren, E.A. Photooxidative effects on properties and structure of high-density polyethylene. J. Appl. Polym. Sci. 1994, 53, 411–423. [Google Scholar] [CrossRef]
- Fabiyi, J.S.; McDonald, A.G. Degradation of polypropylene in naturally and artificially weathered plastic matrix composites. Maderas. Cienc. Tecnol. 2014, 16, 12. [Google Scholar] [CrossRef]
- Parenteau, T.; Ausias, G.; Grohens, Y.; Pilvin, P. Structure, mechanical properties and modelling of polypropylene for different degrees of crystallinity. Polymer 2012, 53, 5873–5884. [Google Scholar] [CrossRef]
- Tarani, E.; Arvanitidis, I.; Christofilos, D.; Bikiaris, D.N.; Chrissafis, K.; Vourlias, G. Calculation of the degree of crystallinity of HDPE/GNPs nanocomposites by using various experimental techniques: A comparative study. J. Mater. Sci. 2023, 58, 1621–1639. [Google Scholar] [CrossRef]
- Batista, N.L.; Helal, E.; Kurusu, R.S.; Moghimian, N.; David, E.; Demarquette, N.R.; Hubert, P. Mass-produced graphene—HDPE nanocomposites: Thermal, rheological, electrical, and mechanical properties. Polym. Eng. Sci. 2019, 59, 675–682. [Google Scholar] [CrossRef]
- Shanks, R.A.; Li, J.; Yu, L. Polypropylene–polyethylene blend morphology controlled by time–temperature–miscibility. Polymer 2000, 41, 2133–2139. [Google Scholar] [CrossRef]
- Stewart, K.M.E.; Stonecipher, E.; Ning, H.; Pillay, S.B. Mixing rules for high density polyethylene-polypropylene blends. Can. J. Chem. Eng. 2023, 101, 5395–5407. [Google Scholar] [CrossRef]
- Jones, H.; McClements, J.; Ray, D.; Hindle, C.S.; Kalloudis, M.; Koutsos, V. Thermomechanical Properties of Virgin and Recycled Polypropylene—High-Density Polyethylene Blends. Polymers 2023, 15, 4200. [Google Scholar] [CrossRef]
- Graybeal, B.A. Material Property Characterization of Ultra-High Performance Concrete; Office of Infrastructure Research and Development: Washington, DC, USA, 2006. [Google Scholar]
- Ali, M.M.; Abdullah, A.; Mohamad, E.; Salleh, M.S.; Hussein NI, S.; Muhammad, Z.; Dahaman, S. Tensile properties of ternary blends for HDPE/PP/RECYCLE HDPE in blow moulding process. J. Adv. Manuf. Technol. 2018, 12, 31–41. [Google Scholar]
- Grause, G.; Chien, M.-F.; Inoue, C. Changes during the weathering of polyolefins. Polym. Degrad. Stab. 2020, 181, 109364. [Google Scholar] [CrossRef]
- Shyichuk, A.V.; Stavychna, D.Y.; White, J.R. Effect of tensile stress on chain scission and crosslinking during photo-oxidation of polypropylene. Polym. Degrad. Stab. 2001, 72, 279–285. [Google Scholar] [CrossRef]
- Ding, L.; Davidchack, R.L.; Pan, J. A molecular dynamics study of Young’s modulus change of semi-crystalline polymers during degradation by chain scissions. J. Mech. Behav. Biomed. Mater. 2012, 5, 224–230. [Google Scholar] [CrossRef] [PubMed]
- PolymerExport. HDPE 5000S Monofilament. Available online: https://polymerexport.com/product/hdpe-5000s-monofilament/ (accessed on 26 June 2024).
- Haldia Petrochemicals. Technical Data Sheet HD T10S. Available online: https://www.haldiapetrochemicals.com/img/newPdf/TDS%20HD%20T10S%2004052022.pdf (accessed on 26 June 2024).
- OPaL India. Technical Data Sheet R5410. Available online: https://opalindia.in/assets/pdf/HDPE/Technical-Data/R5410.pdf (accessed on 26 June 2024).
- TotalEnergies. Polypropylene PPH 3060. Available online: https://plastore.it/cgi2018/file818/6842_pp%20omo%20total%20pph3060.pdf (accessed on 26 June 2024).
- Product Catalogue Polypropylene Tipplen Tatren Slovnaft Certificates. 2018. Available online: www.molgroupchemicals.com (accessed on 26 June 2024).
- Sowinski, P.; Piorkowska, E.; Boyer, S.A.E.; Haudin, J.-M.; Zapala, K. The role of nucleating agents in high-pressure-induced gamma crystallization in isotactic polypropylene. Colloid Polym. Sci. 2015, 293, 665–675. [Google Scholar] [CrossRef] [PubMed]
- Świetlicki, M.; Chocyk, D.; Klepka, T.; Prószyński, A.; Kwaśniewska, A.; Borc, J.; Gładyszewski, G. The Structure and Mechanical Properties of the Surface Layer of Polypropylene Polymers with Talc Additions. Materials 2020, 13, 698. [Google Scholar] [CrossRef]
- Varga, J. β-Modification of Isotactic Polypropylene: Preparation, Structure, Processing, Properties, and Application. J. Macromol. Sci. Part B 2002, 41, 1121–1171. [Google Scholar] [CrossRef]
- Papageorgiou, D.G.; Bikiaris, D.N.; Chrissafis, K. Effect of crystalline structure of polypropylene random copolymers on mechanical properties and thermal degradation kinetics. Thermochim. Acta 2012, 543, 288–294. [Google Scholar] [CrossRef]
- Papageorgiou, D.G.; Papageorgiou, G.Z.; Bikiaris, D.N.; Chrissafis, K. Crystallization and melting of propylene–ethylene random copolymers. Homogeneous nucleation and β-nucleating agents. Eur. Polym. J. 2013, 49, 1577–1590. [Google Scholar] [CrossRef]
- Tordjeman, P.; Robert, C.; Marin, G.; Gerard, P. The effect of α, β crystalline structure on the mechanical properties of polypropylene. Eur. Phys. J. E 2001, 4, 459–465. [Google Scholar] [CrossRef]
- Madhu, G.; Bhunia, H.; Bajpai, P.K.; Chaudhary, V. Mechanical and morphological properties of high density polyethylene and polylactide blends. J. Polym. Eng. 2014, 34, 813–821. [Google Scholar] [CrossRef]
- Obadal, M.; Čermák, R.; Raab, M.; Verney, V.; Commereuc, S.; Fraïsse, F. Structure evolution of α- and β-polypropylenes upon UV irradiation: A multiscale comparison. Polym. Degrad. Stab. 2005, 88, 532–539. [Google Scholar] [CrossRef]
- Saeed, A.; Adewuyi, S.O.; Ahmed, H.A.M.; Alharbi, S.R.; Al Garni, S.E.; Abolaban, F. Electrical and Dielectric Properties of the Natural Calcite and Quartz. Silicon 2022, 14, 5265–5276. [Google Scholar] [CrossRef]
- Lin, J.-H.; Pan, Y.-J.; Liu, C.-F.; Huang, C.-L.; Hsieh, C.-T.; Chen, C.-K.; Lin, Z.-I.; Lou, C.-W. Preparation and Compatibility Evaluation of Polypropylene/High Density Polyethylene Polyblends. Materials 2015, 8, 8850–8859. [Google Scholar] [CrossRef] [PubMed]
- Ramazani, S.A.A.; Valami, M.A.; Khak, M. Effect of Poly (Propylene-g-maleic Anhydride) on the Morphological, Rheological, and Mechanical Properties of PP/HDPE Blend. J. Thermoplast. Compos. Mater. 2009, 22, 519–530. [Google Scholar] [CrossRef]
- Daramola, O.; Taiwo, A.; Oladele, I.; Olajide, J.; Adeleke, S.; Adewuyi, B.; Sadiku, E. Mechanical properties of high density polyethylene matrix composites reinforced with chitosan particles. Mater. Today Proc. 2021, 38, 682–687. [Google Scholar] [CrossRef]
- Mulford Plastics. HDPE Leaflet. Available online: https://www.mulfordplastics.com.au/media/1257/hdpe-leaflet.pdf (accessed on 21 May 2024).
- Creative Panel Solutions. Laminated HDPE Panels. Available online: https://bpi.build/webres/File/building_materials/cps/Laminated-Poly-Data-Page.pdf (accessed on 21 May 2024).
- Simona America Industries. Simona® Hdpe Polytone® Sheet. Available online: https://www.simona-america.com/fileadmin/user_upload/USA/Applications/Outdoor/Playground/16_SIMONA-HDPE-Polytone.pdf (accessed on 21 May 2024).
- Park, B.; Balatinecz, J.J. Mechanical properties of wood-fiber/toughened isotactic polypropylene composites. Polym. Compos. 1997, 18, 79–89. [Google Scholar] [CrossRef]
- Wu, J.; Yu, D.; Chan, C.-M.; Kim, J.; Mai, Y.-W. Effect of fiber pretreatment condition on the interfacial strength and mechanical properties of wood fiber/PP composites. J. Appl. Polym. Sci. 2000, 76, 1000–1010. [Google Scholar] [CrossRef]
- Huang, Z.; Lin, Z.; Cai, Z.; Mai, K. Physical and mechanical properties of nano-CaCO3/PP composites modified with acrylic acid. Plast. Rubber Compos. 2004, 33, 343–352. [Google Scholar] [CrossRef]
- Buasri, A.; Chaiyut, N.; Borvornchettanuwat, K.; Chantanachai, N.; Thonglor, K. Thermal and Mechanical Properties of Modified CaCO3/PP Nanocomposites. Int. J. Metall. Mater. Eng. 2012, 6, 689–692. [Google Scholar]








| Parameter | Value |
|---|---|
| Extruder used | Thermo Fischer Process 11 Twin-screw extruder (Waltham, MA, USA) |
| Extruder temperature zone | 8 zones (Zone 1: 180 °C, Zones 2–8: 190 °C) |
| Die exit diameter | 2 mm |
| Screw speed | 70 RPM |
| Injection molding machine | HAAKETM MiniJet Pro (Waltham, MA, USA) |
| Molding time | 10 s |
| Molding pressure | 450 bars |
| Mold temperature | Room temperature |
| Sample | CI |
|---|---|
| Used fishing ropes | 0.66 |
| New fishing ropes | 0.25 |
| Used Fishing Ropes | New Fishing Ropes | ||
|---|---|---|---|
| Tc (°C) | Mean | 117.24 | 116.1 |
| Standard deviation | 0.1 | 0.24 | |
| p-value | 2 × 10−3 | ||
| Tm1 (°C) | Mean | 166.46 | 169.22 |
| Standard deviation | 0.23 | 0.21 | |
| p-value | 5 × 10−8 | ||
| Xc1 (%) | Mean | 18.08 | 19.3 |
| Standard deviation | 0.64 | 0.67 | |
| p-value | 0.02 | ||
| Tm2 (°C) | Mean | 135.18 | 135.2 |
| Standard deviation | 0.15 | 0.1 | |
| p-value | 0.56 | ||
| Xc2 (%) | Mean | 42.56 | 45.28 |
| Standard deviation | 1.64 | 1.57 | |
| p-value | 0.02 | ||
| Used Fishing Ropes | New Fishing Ropes | ||
|---|---|---|---|
| Young’s modulus (Gpa) | Mean | 1.31 | 1.31 |
| Standard deviation | 0.16 | 0.024 | |
| p-value | 0.99 | ||
| Tensile strength (Mpa) | Mean | 54.2 | 68.4 |
| Standard deviation | 3.21 | 3.51 | |
| p-value | 10−4 | ||
| Elongation at break (%) | Mean | 1425 | 810 |
| Standard deviation | 83.89 | 52.08 | |
| p-value | 3.47 × 10−6 | ||
| Rope Type | Number Average (Mn) in g/mol | Weight Average (Mw) in g/mol | Polydispersity Index (PI) |
|---|---|---|---|
| New fishing ropes | 90,227 | 409,615 | 4.53 |
| Used fishing ropes | 79,032 | 368,203 | 4.65 |
| New Fishing Ropes | Used Fishing Ropes | ||
|---|---|---|---|
| MFR (g/10 min) | Mean | 1.35 | 1.82 |
| Standard deviation | 0.2 | 0.11 | |
| p-value | 0.02 | ||
Disclaimer/Publisher’s Note: The statements, opinions and data contained in all publications are solely those of the individual author(s) and contributor(s) and not of MDPI and/or the editor(s). MDPI and/or the editor(s) disclaim responsibility for any injury to people or property resulting from any ideas, methods, instructions or products referred to in the content. |
© 2024 by the authors. Licensee MDPI, Basel, Switzerland. This article is an open access article distributed under the terms and conditions of the Creative Commons Attribution (CC BY) license (https://creativecommons.org/licenses/by/4.0/).
Share and Cite
Belmokhtar, Z.; Sanchez-Diaz, S.; Cousin, P.; Elkoun, S.; Robert, M. Polyolefin-Based Cladding Panels from Discarded Fishing Ropes: A Sustainable Solution for Managing Fishing Gear Waste in Isolated Islands. Waste 2024, 2, 337-353. https://doi.org/10.3390/waste2030019
Belmokhtar Z, Sanchez-Diaz S, Cousin P, Elkoun S, Robert M. Polyolefin-Based Cladding Panels from Discarded Fishing Ropes: A Sustainable Solution for Managing Fishing Gear Waste in Isolated Islands. Waste. 2024; 2(3):337-353. https://doi.org/10.3390/waste2030019
Chicago/Turabian StyleBelmokhtar, Zakariae, Simon Sanchez-Diaz, Patrice Cousin, Saïd Elkoun, and Mathieu Robert. 2024. "Polyolefin-Based Cladding Panels from Discarded Fishing Ropes: A Sustainable Solution for Managing Fishing Gear Waste in Isolated Islands" Waste 2, no. 3: 337-353. https://doi.org/10.3390/waste2030019
APA StyleBelmokhtar, Z., Sanchez-Diaz, S., Cousin, P., Elkoun, S., & Robert, M. (2024). Polyolefin-Based Cladding Panels from Discarded Fishing Ropes: A Sustainable Solution for Managing Fishing Gear Waste in Isolated Islands. Waste, 2(3), 337-353. https://doi.org/10.3390/waste2030019

