An Integrated Approach to Improve Seismic and Energetic Behaviour of RC Framed Buildings Using Timber Panels
Abstract
:1. Introduction
2. Retrofit Solution
2.1. Existing Structural Frame
2.2. RC–TP Configuration
2.3. RC–TPext Configuration
2.4. Durability
2.5. Execution
- The demolition of the external solid brick wythe. Hammocks, to collect debris, must be placed on the scaffolding as a protection.
- The application of the timber subframe to the existing RC structure.
- The crane transportation of the prefabricated panel (provided with proper eyebolts) and the restraining thereof to the timber subframe.
- The connection of the remaining hollow-brick wythe with the CLT panel through resin-bonded bars with anchor sleeves.
- The finishing of the external insulating layer, covering of the holes and spaces with insulating material, and sealing of possible slits with foam.
- The application of an external plaster composed of a rendering coat, two layers of rustic plaster, and two layers of lime slurry paint.
- (a)
- The connection of the masonry wythes through resin-bonded bars with anchor sleeves.
- (b)
- The disconnection of the external strong wythe from the columns (outlined in black). Hammocks to collect debris must be placed on the scaffolding as a protection (not necessary at the ground floor).
- (c)
- The crane transportation of the prefabricated panel (provided with proper eyebolts) and its restraining to the RC beams.
- (d)
- The connection of the CLT panel with the strong masonry wythe through dry steel anchors.
- (e)
- The finishing of the external insulating layer, covering of the holes and spaces with insulating material, and sealing of possible slits with foam.
- (f)
- The application of an external plaster composed of a rendering coat, two layers of rustic plaster, and two layers of lime slurry paint.
3. Seismic Analyses
3.1. Vertical and Out-of-Plane Actions
3.2. In-Plane Analyses—Numerical Models
3.3. In-Plane Responses
4. Energy Analyses
4.1. Thermo-Hygrometric Performance in Winter Conditions
4.2. Thermal Performance in Summer Conditions
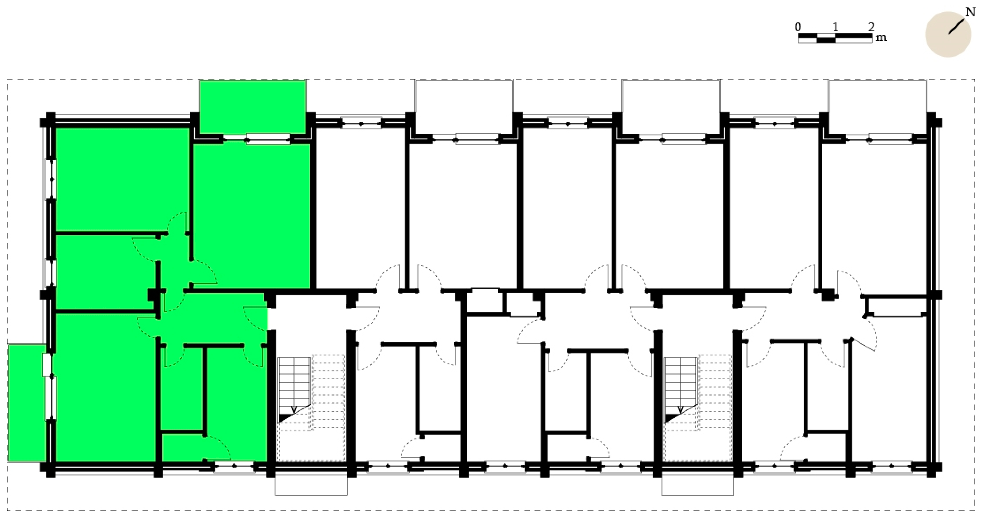
5. Case Study
5.1. Intervention Application and Alternative Solutions
5.2. Energy Analysis of a Retrofitted Apartment
6. Conclusions
Author Contributions
Funding
Institutional Review Board Statement
Informed Consent Statement
Data Availability Statement
Acknowledgments
Conflicts of Interest
References
- Kasanko, M.; Barredo, J.I.; Lavalle, C.; McCormick, N.; Demicheli, L.; Sagris, V.; Brezger, A. Are European cities becoming dispersed? A comparative analysis of 15 European urban areas. Landsc. Urban Plan. 2006, 77, 111–130. [Google Scholar] [CrossRef]
- European Parliament and Council. Directive (EU) 2018/844 Amending Directive 2010/31/EU on the Energy Performance of Buildings and Directive 2012/27/EU on Energy Efficiency. Available online: https://eur-lex.europa.eu/legal-content/EN/TXT/HTML/?uri=CELEX:32018L0844&from=IT (accessed on 28 June 2021).
- European Commission, Department: Energy. In Focus: Energy Efficiency in Buildings. Brussels, 17 February 2020. Available online: https://ec.europa.eu/info/news/focus-energy-efficiency-buildings-2020-feb-17_en (accessed on 25 June 2021).
- Afshari, A.; Anderson, H.R.; Cohen, A.; Oliveira Fernandes, E.; Douwes, J.; Górny, R.; Hirvonen, M.R.; Jaakkola, J.; Kirchner, S.; Kurnitski, J.; et al. WHO Guidelines for Indoor Air Quality: Dampness and Mould; World Health Organization: Copenhagen, Denmark, 2009. [Google Scholar]
- Pombo, O.; Rivela, B.; Neila, J. The challenge of sustainable building renovation: Assessment of current criteria and future outlook. J. Clean. Prod. 2016, 123, 88–100. [Google Scholar] [CrossRef]
- Kadysiewski, S.; Mosalam, K.M. Modeling of Unreinforced Masonry Infill Walls, Considering. In Plane and Out-of-Plane Interaction; Pacific Earthquake Engineering Research Center, University of California: Berkeley, CA, USA, 2009. [Google Scholar]
- D’Aragona, M.G.; Polese, M.; Di Ludovico, M.; Prota, A. Seismic vulnerability for RC infilled frames: Simplified evaluation for as-built and retrofitted building typologies. Buildings 2018, 8, 137. [Google Scholar] [CrossRef] [Green Version]
- Mosalam, K.M.; Günay, S. Progressive Collapse Analysis of Reinforced Concrete Frames with Unreinforced Masonry Infill Walls Considering In-Plane/Out-of-Plane Interaction. Earthq. Spectra 2015, 31, 921–943. [Google Scholar] [CrossRef]
- Tarque, N.; Candido, L.; Camata, G.; Spacone, E. Masonry infilled frame structures: State-of-the-art review of numerical modelling. Earthq. Struct. 2015, 8, 733–759. [Google Scholar]
- Al Louzi, R.A.K. Seismic In-Plane Response of Reinforced Concrete Frames with Masonry Infill Walls. Ph.D. Thesis, Purdue University, Lafayette, IN, USA, 2015. [Google Scholar]
- Sustersic, I.; Dujic, B. Seismic strengthening of existing buildings with cross laminated timber panels. In Proceedings of the World Conference on Timber Engineering, Auckland, New Zealand, 16–19 July 2012. [Google Scholar]
- Suga, J.; Ono, M.; Aoki, K.; Fukuhara, T.; Kurihara, T.; Maeda, T. Timber Shear Walls for Seismic Retrofit of Reinforced Concrete Buildings. In Proceedings of the World Conference on Timber Engineering, Seoul, Korea, 20–23 August 2018. [Google Scholar]
- Gioiella, L.; Balducci, A.; Carbonari, S.; Gara, F.; Dezi, L. An innovative seismic protection system for existing buildings: External dissipative towers. In Proceedings of the 16th World Conference on Earthquake Engineering (16WCEE), Santiago, Chile, 9–13 January 2017. [Google Scholar]
- Abd Alla, S.; Bianco, V.; Tagliafico, L.A.; Scarpa, F. Life-cycle approach to the estimation of energy efficiency measures in the buildings sector. Appl. Energy 2020, 264, 114745. [Google Scholar] [CrossRef]
- Parasonis, J.; Keizikas, A.; Endriukaitytė, A.; Kalibatienė, D. Architectural solutions to increase the energy efficiency of buildings. J. Civ. Eng. Manag. 2012, 18, 71–80. [Google Scholar] [CrossRef]
- Ampatzidis, P.; Serasidou, A.; Tsiaousi, A.; Martinopoulos, G. High energy efficiency renovation options for a typical apartment. The case study of the SPITI project. IOP Conf. Ser. Earth Environ. Sci. 2020, 410, 012060. [Google Scholar] [CrossRef]
- Labo’, S.; Passoni, C.; Belleri, A.; Marini, A.; Riva, P. Esoscheletri tipo diagrid per la riqualificazione degli edifici esistenti in ottica ciclo vita. Costr. Met. 2019, 5, 24–35. [Google Scholar]
- Marini, A.; Passoni, C.; Belleri, A.; Feroldi, F.; Preti, M.; Metelli, G.; Riva, P.; Giuriani, E.; Plizzari, G. Combining seismic retrofit with energy refurbishment for the sustainable renovation of RC buildings: A proof of concept. Eur. J. Environ. Civ. Eng. 2017, 1–21. [Google Scholar] [CrossRef]
- Margani, G.; Evola, G.; Tardo, C.; Marino, E.M. Energy, Seismic, and Architectural Renovation of RC Framed Buildings with Prefabricated Timber Panels. Sustainability 2020, 12, 4845. [Google Scholar] [CrossRef]
- Artino, A.; Evola, G.; Margani, G.; Marino, E.M. Seismic and Energy Retrofit of Apartment Buildings through Autoclaved Aerated Concrete (AAC) Blocks Infill Walls. Sustainability 2019, 11, 3939. [Google Scholar] [CrossRef] [Green Version]
- Smiroldo, F.; Viel, D.; Giongo, I.; Piazza, M. A Numerical study on a timber-based seismic retrofit intervention for masonry infilled concrete frames. COMPDYN 2021. In Proceedings of the 8th ECCOMAS Thematic Conference on Computational Methods in Structural Dynamics and Earthquake Engineering, Athens, Greece, 27–30 June 2021. [Google Scholar]
- Smiroldo, F.; Giongo, I.; Piazza, M. Use of timber panels to reduce the seismic vulnerability of concrete frame structures. Eng. Struct. 2021, 244, 112797. [Google Scholar] [CrossRef]
- Smiroldo, F.; Giongo, I.; Piazza, M. Seismic retrofit of masonry infilled frames by using timber panels. In Proceedings of the 17th World Conference on Earthquake Engineering (17WCEE), Sendai, Japan, 13–18 September 2020. [Google Scholar]
- Masi, A.; Manfredi, V.; Ventura, G. Progettazione integrata di interventi per il miglioramento delle prestazioni sismiche e termiche di edifici esistenti in c.a. In Proceedings of the XVI Convegno ANIDIS, L’Aquila, Italy, 13–17 September 2015. [Google Scholar]
- Furtado, A.; Rodrigues, H.; Arêde, A.; Varum, H. Double-wythe infill masonry walls cyclic in-plane behaviour: Experimental and numerical investigation. Open Constr. Build. Technol. J. 2018, 12, 35–48. [Google Scholar] [CrossRef] [Green Version]
- Furtado, A.; Costa, C.; Rodrigues, H.; Arêde, A. Characterization of structural characteristics of Portuguese RC buildings with masonry infill walls stock. In Proceedings of the 9th International Masonry Conference, Guimarães, Portugal, 7–9 July 2014. [Google Scholar]
- Bala, E.; Crowleyb, H.; Pinhoc, R.; Gülayd, F.G. Detailed assessment of structural characteristics of Turkish RC building stock for loss assessment models. Soil Dyn. Earthq. Eng. 2008, 28, 914–932. [Google Scholar] [CrossRef]
- Manfredi, G.; Masi, A.; Pinho, R.; Verderame, G.; Vona, M. Valutazione Degli Edifici Esistenti in Cemento Armato; IUSS Press: Pavia, Italy, 2007. [Google Scholar]
- Cristofaro, M.T.; D’Ambrisi, A.; De Stefano, M.; Pucinotti, R.; Tanganelli, M. Studio sulla dispersione dei valori di resistenza a compressione del calcestruzzo di edifici esistenti. Il G. Delle Prove Non Distruttive Monit. Diagn. 2012, 2, 32–39. [Google Scholar]
- Cristofaro, M.T.; D’Ambrisi, A.; De Stefano, M.; Pucinotti, R.; Tanganelli, M. Mechanical Characterization of Concrete from Existing Buildings with SonReb Method. In Proceedings of the 15th World Conference on Earthquake Engineering (15WCEE), Lisboa, Portugal, 24–28 September 2012. [Google Scholar]
- Verderame, G.M.; Ricci, P.; Esposito, M.; Sansiviero, F.C. Le Caratteristiche Meccaniche degli Acciai Impiegati nelle Strutture in C.A. Realizzate dal 1950 al 1980. In Proceedings of the Atti Convegno AICAP, Paper 54, Padua, Italy, 19–21 May 2011. [Google Scholar]
- Ministero delle Infrastrutture e dei Trasporti. CNTC19—Circolare Applicativa Delle Norme Tecniche Delle Costruzioni di Cui al D.M. 17 January 2018 (NTC 2018); Gazzetta Ufficiale, n. 35; Ministero delle Infrastrutture e dei Trasporti: Rome, Italy, 11 February 2019. (In Italian)
- EN 14080:2013. Timber Structures—Glued Laminated Timber and Glued Solid Timber—Requirements; European Committee for Standardization: Brussels, Belgium, 2013. [Google Scholar]
- EN 338:2016. Structural Timber—Strength Classes; BSI Standards Publication: London, UK, 2016. [Google Scholar]
- Ott, S.; Tietze, A.; Winter, S. Introduction of a semi-probabilistic moisture safety model for tall timber- based building shell—A risk based durability approach. In Proceedings of the IALCCE 2016 (The Fifth International Symposium on Life-Cycle Civil Engineering), Delft, The Netherlands, 16–19 October 2016. [Google Scholar]
- Liberatore, L.; Noto, F.; Mollaioli, F.; Franchin, P. In-plane response of masonry infill walls: Comprehensive experimentally-based equivalent strut model for deterministic and probabilistic analysis. Eng. Struct. 2018, 167, 533–548. [Google Scholar] [CrossRef]
- Di Trapani, F.; Malavisi, M. Seismic fragility assessment of infilled frames subject to mainshock/aftershock sequences using a double incremental dynamic analysis approach. Bull. Earthq. Eng. 2019, 17, 211–235. [Google Scholar] [CrossRef]
- Priestley, M.J.N.; Verma, R.; Xiao, Y. Seismic shear strength of reinforced concrete columns. J. Struct. Eng. 1994, 120, 2310–2329. [Google Scholar] [CrossRef]
- Biskinis, D.E.; Roupakias, G.K.; Fardis, M.N. Degradation of shear strength of reinforced concrete members with inelastic cyclic displacement. ACI Struct. J. 2004, 101, 773–783. [Google Scholar]
- Aelenei, D.; Henriques, F.M.A. Analysis of the condensation risk on exterior surface of building envelopes. Energy Build. 2008, 40, 1866–1871. [Google Scholar] [CrossRef]
- Sadineni, S.B.; Madala, S.; Boehm, R.F. Passive building energy savings: A review of building envelope components. Renew. Sustain. Energy Rev. 2011, 15, 3617–3631. [Google Scholar] [CrossRef]
- UNI/TR 11552:2014. Opaque Envelope Components of Buildings—Thermo-Physical Parameters; Ente Italiano di Normazione (UNI): Milano, Italy, 2014. [Google Scholar]
- UNI EN ISO 6946:2018. Building Components and Building Elements—Thermal Resistance and Thermal Transmittance—Calculation Methods; Ente Italiano di Normazione (UNI): Milano, Italy, 2018. [Google Scholar]
- UNI 10351:2015. Building Materials and Products—Hygrothermal Proprieties—Procedure for Determining the Design Values; Ente Italiano di Normazione (UNI): Milano, Italy, 2015. [Google Scholar]
- UNI EN ISO 13788:2013. Hygrothermal Performance of Building Components and Building Elements—Internal Surface Temperature to Avoid Critical Surface Humidity and Interstitial Condensation—Calculation Methods; Ente Italiano di Normazione (UNI): Milano, Italy, 2013. [Google Scholar]
- UNI EN ISO 13786:2018. Thermal Performance of Building Components—Dynamic Thermal Characteristics—Calculation Methods; Ente Italiano di Normazione (UNI): Milano, Italy, 2018. [Google Scholar]
- Rossi, M.; Rocco, V.M. External walls design: The role of periodic thermal transmittance and internal areal heat capacity. Energy Build. 2014, 68, 732–740. [Google Scholar] [CrossRef]
- Tabeshpour, M.R.; Noorifard, A. A new procedure to determine equivalent strut of infill walls with openings for engineering applications. Struct. Build. 2020, 173, 585–601. [Google Scholar] [CrossRef]
- Cassol, D.; Giongo, I.; Ingham, J.; Dizhur, D. Seismic out-of-plane retrofit of URM walls using timber strong-backs. Constr. Build. Mater. 2020, 269, 121237. [Google Scholar] [CrossRef]
























| Element | Characteristic | Value |
|---|---|---|
| Concrete frame | length [mm] | 4500 |
| height [mm] | 3000 | |
| column section (base × height) [mm] beam section (base × height) [mm] | 300 × 350 300 × 500 | |
| Reinforcements 1 | column longitudinal rebars | n2 + 2 Φ16 |
| column confinement reinforcement (2-legged stirrups) | Φ6 @150 | |
| beam longitudinal rebars at ends (top–bottom side) | 6 Φ14–4 Φ14 | |
| beam longitudinal rebars at mid-span (top–bottom side) | 2 Φ14–4 Φ14 | |
| beam confinement reinforcement (2-legged stirrups) | Φ6 @200 | |
| Double-wythe Masonry infill | solid brick (external strong wythe) thickness [mm] air gap thickness [mm] hollow bricks (internal weak wythe) thickness [mm] | 120 50 80 |
| Loads | vertical distributed (upper beam) [kN/m] | 20 |
| vertical concentrated (each column) [kN] | 250 |
| Concrete | Steel |
|---|---|
| fc [MPa] 20 | fy [MPa] 460 |
| Ec [MPa] 27,000 | Es [MPa] 210,000 |
| Solid Brick | Value | Hollow Brick | Value |
|---|---|---|---|
| fm [MPa] | 3.45 | fm [MPa] | 1.7 |
| fv,0 [MPa] | 0.20 | fv,0 [MPa] | 0.13 |
| Em [MPa] | 1500 | Em [MPa] | 1150 |
| Hollow Brick | Value |
|---|---|
| fm [MPa] | 2.2 |
| fv,0 [MPa] | 0.27 |
| Em [MPa] | 1500 |
| Thickness [mm] | 80 |
| Layer | Thickness [m] | Density [kg/m3] | Conductivity [W/m K] | Specific Heat [J/kg K] | Vapour Resist. |
| Inside plaster 1 | 0.025 | 1400 | 0.7 | 1000 | 10 |
| Hollow bricks 1 | 0.08 | 800 | 0.4 | 1000 | 1 |
| Non-ventilated air-gap 2 | 0.05 | 1 | 0.273 | 1004 | 10 |
| Solid bricks 1 | 0.12 | 1800 | 0.72 | 1000 | 10 |
| Layer | Surface Mass [kg/m2] | Th. Resistance [m2 K/W] | Equiv. Air Layer Thickness [m] | Diffusivity [m2/Ms] | |
| Inside plaster 1 | 35.0 | 0.036 | 0.25 | 0.5 | |
| Hollow bricks 1 | 64.0 | 0.2 | 0.8 | 0.5 | |
| Non-ventilated air-gap 2 | 0.1 | 0.183 | 0.05 | 0 | |
| Solid bricks 1 | 216.0 | 0.167 | 1.2 | 0.4 | |
| Layer | Thickness [m] | Density [kg/m3] | Conductivity [W/m K] | Specific Heat [J/kg K] | Vapour Resist. |
| Inside plaster 1 | 0.025 | 1400 | 0.7 | 1000 | 10 |
| Hollow bricks 1 | 0.08 | 800 | 0.4 | 1000 | 1 |
| Wood fibre panel 2 | 0.12 | 170 | 0.043 | 2000 | 3 |
| CLT panel | 0.10 | 420 | 0.12 | 1598 | 50 |
| Exp. Polyurethane 2 | 0.06 | 42 | 0.023 | 1402 | 60 |
| Outside plaster 1 | 0.025 | 1800 | 0.9 | 1000 | 10 |
| Layer | Surface Mass [kg/m2] | Th. Resistance [m2K/W] | Equiv. Air Layer Thickness [m] | Diffusivity [m2/Ms] | |
| Inside plaster 1 | 35.0 | 0.036 | 0.25 | 0.5 | |
| Hollow bricks 1 | 64.0 | 0.2 | 0.8 | 0.5 | |
| Wood fibre panel 2 | 20.4 | 2.791 | 0.36 | 0.126 | |
| CLT panel | 42.0 | 0.833 | 1.2 | 0.4 | |
| Exp. Polyurethane 2 | 2.5 | 2.609 | 3.6 | 0.391 | |
| Outside plaster 1 | 45 | 0.028 | 0.25 | 0.5 | |
| Layer | Thickness [m] | Density [kg/m3] | Conductivity [W/m K] | Specific Heat [J/kg K] | Vapour Resistance |
| Inside plaster 1 | 0.025 | 1400 | 0.7 | 1000 | 10 |
| Hollow bricks 1 | 0.08 | 800 | 0.4 | 1000 | 1 |
| Non-ventilated air-gap 2 | 0.05 | 1 | 0.273 | 1004 | 10 |
| Solid bricks 1 | 0.12 | 1800 | 0.72 | 1000 | 10 |
| Wood fibre panel 3 | 0.12 | 170 | 0.043 | 2000 | 3 |
| CLT panel | 0.10 | 420 | 0.12 | 1598 | 50 |
| Exp. Polyurethane 3 | 0.06 | 42 | 0.023 | 1402 | 60 |
| Outside plaster 1 | 0.025 | 1800 | 0.9 | 1000 | 10 |
| Layer | Surface Mass [kg/m2] | Th. Resistance [m2K/W] | Equiv. Air Layer Thickness [m] | Diffusivity [m2/Ms] | |
| Inside plaster 1 | 35.0 | 0.036 | 0.25 | 0.5 | |
| Hollow bricks 1 | 64.0 | 0.2 | 0.8 | 0.5 | |
| Non-ventilated air-gap 2 | 0.1 | 0.183 | 0.05 | 0 | |
| Solid bricks 1 | 216.0 | 0.167 | 1.2 | 0.4 | |
| Wood fibre panel 3 | 20.4 | 2.791 | 0.36 | 0.126 | |
| CLT panel | 42.0 | 0.833 | 1.2 | 0.4 | |
| Exp. Polyurethane 3 | 2.5 | 2.609 | 3.6 | 0.391 | |
| Outside plaster 1 | 45 | 0.028 | 0.25 | 0.5 | |
| Existing [W/m2 K] | RC–TP [W/m2 K] | RC–TPext [W/m2 K] |
|---|---|---|
| 1.323 | 0.150 | 0.198 |
| Parameter | Unit | Value |
|---|---|---|
| Outdoor temperature | °C | 6.8 |
| Outdoor pressure | Pa | 920.1 |
| Outdoor relative humidity | % | 93.1 |
| Minimum resistance to avoid mouldgrowth risk | m2 K/W | 0.909 |
| Resistance for existing masonry infill | m2 K/W | 0.756 |
| Resistance for RC–TP | m2 K/W | 6.666 |
| Resistance for RC–TPext | m2 K/W | 5.055 |
| Parameter | Unit | Value |
|---|---|---|
| Outdoor temperature | °C | 1.2 |
| Outdoor pressure | Pa | 555.0 |
| Outdoor relative humidity | % | 83.5 |
| Minimum resistance to avoid surface condensation risk | m2 K/W | 0.530 |
| Resistance for existing masonry infill | m2 K/W | 0.756 |
| Resistance for RC–TP | m2 K/W | 6666 |
| Resistance for RC–TPext | m2 K/W | 5055 |
| Parameter | Unit | Value |
|---|---|---|
| Periodic thermal transmittance | W/m2 K | 0.527 |
| Areal internal heat capacity | kJ/m2 K | 58.65 |
| Thermal time shift | h | 8 h 15′ |
| Thermal decrement factor | - | 0.401 |
| Parameter | Unit | Value |
|---|---|---|
| Periodic thermal transmittance | W/m2 K | 0.006 |
| Areal internal heat capacity | kJ/m2 K | 57.56 |
| Thermal time shift | h | 19 h 1′ |
| Thermal decrement factor | - | 0.037 |
| Parameter | Unit | Value |
|---|---|---|
| Periodic thermal transmittance | W/m2 K | 0.005 |
| Areal internal heat capacity | kJ/m2 K | 51.53 |
| Thermal time shift | h | 18 h 21′ |
| Thermal decrement factor | - | 0.026 |
| Annual Energy Consumption | Existing | L-I (RC–TPext) | M-I (RC–TP) |
|---|---|---|---|
| EPgl,nren [kWh/m2 year] | 182.638 | 87.250 | 28.887 |
| EPh,nd [kWh/m2 year] | 83.52 | 26.04 | 13.39 |
Publisher’s Note: MDPI stays neutral with regard to jurisdictional claims in published maps and institutional affiliations. |
© 2021 by the authors. Licensee MDPI, Basel, Switzerland. This article is an open access article distributed under the terms and conditions of the Creative Commons Attribution (CC BY) license (https://creativecommons.org/licenses/by/4.0/).
Share and Cite
Smiroldo, F.; Paviani, I.; Giongo, I.; Zanon, S.; Albatici, R.; Piazza, M. An Integrated Approach to Improve Seismic and Energetic Behaviour of RC Framed Buildings Using Timber Panels. Sustainability 2021, 13, 11304. https://doi.org/10.3390/su132011304
Smiroldo F, Paviani I, Giongo I, Zanon S, Albatici R, Piazza M. An Integrated Approach to Improve Seismic and Energetic Behaviour of RC Framed Buildings Using Timber Panels. Sustainability. 2021; 13(20):11304. https://doi.org/10.3390/su132011304
Chicago/Turabian StyleSmiroldo, Francesco, Isabella Paviani, Ivan Giongo, Stefano Zanon, Rossano Albatici, and Maurizio Piazza. 2021. "An Integrated Approach to Improve Seismic and Energetic Behaviour of RC Framed Buildings Using Timber Panels" Sustainability 13, no. 20: 11304. https://doi.org/10.3390/su132011304
APA StyleSmiroldo, F., Paviani, I., Giongo, I., Zanon, S., Albatici, R., & Piazza, M. (2021). An Integrated Approach to Improve Seismic and Energetic Behaviour of RC Framed Buildings Using Timber Panels. Sustainability, 13(20), 11304. https://doi.org/10.3390/su132011304

