Evaluation of Modern Architecture Criteria in the Context of Sustainability and Architectural Approach; Modern Period in North Nicosia
Abstract
1. Introduction
The Research Objectives
2. Literature Review
2.1. Modern Architecture
2.2. Modern Architectural Approach
2.2.1. Functionalism
2.2.2. Cubism
2.2.3. De-Stijl
2.3. Sustainability
2.3.1. Social Sustainability
2.3.2. Cultural Sustainability
2.3.3. Environmental Sustainability
2.3.4. Economic Sustainability
3. Methodology
4. The Case Study of Kumsal, North Nicosia
5. Findings of the Study
5.1. Analysis of the Modern Architectural Criteria and Sustainability Parameters of the Efruz Houses
5.1.1. Analysis of the Modern Architectural Criteria of the Efruz Houses
Form
Function
Construction
5.1.2. Analysis of the Sustainability Parameters of the Efruz Houses
Social Sustainability
Cultural Sustainability
Environmental Sustainability
Economic Sustainability
6. Conclusions and Recommendations
Consequently, the Research Findings and Recommendations of This Study Are Listed below
- It overlapped with the social sustainability parameters in the context of neighborhood relationships, ease of access, and density,
- Architectural identity, which is formed by architectural construction technique and architectural approach, overlapped with cultural sustainability parameters,
- Its environmentally friendly design approach in building design overlapped with environmental sustainability parameters,
- The use of sustainable and local materials applied in the building design and the real estate value of its immediate surroundings overlapped with the economic sustainability parameters, it has been clearly seen.
Author Contributions
Funding
Institutional Review Board Statement
Informed Consent Statement
Data Availability Statement
Conflicts of Interest
References
- Frisby, D. Analyzing modernity. In Tracing Modernity Manifestations of the Modern in Architecture and the City; Hvattum, M., Hermansen, C., Eds.; Psychology Press: London, UK, 2004; pp. 3–22. [Google Scholar]
- Amen, M.A. The inspiration of Bauhaus principles on the modern housing in Cyprus. J. Contemp. Urban Aff. 2017, 1, 21–32. [Google Scholar] [CrossRef]
- Ali, F.A. The influence of Le Corbusier on the emergence of the aesthetic values in the modern architecture of Cyprus. J. Contemp. Urban Aff. 2018, 2, 1–12. [Google Scholar] [CrossRef]
- Azizi, B.; Eshaq Zai, A. Explorıng the Characterıstıcs of Modernısm And Post-Modernısm: A Revıew Paper. J. Crıtıcal Rev. 2022, 9, 9. [Google Scholar]
- Madsen, O.J. Modernity. In Encyclopedia of Critical Psychology; Springer: New York, NY, USA, 2014; pp. 1199–1204. [Google Scholar]
- Menga, L. Industrıal Revolutıon And The Bırth Of Modern Archıtecture. Int. Sci. J. Vis. 2022, 7, 105–123. [Google Scholar] [CrossRef]
- Özyalvaç, A.N. Mimarlıkta modernite kavramı ve Türkiye. FSM İlmi Araştırmalar İnsan Ve Toplum Bilim. Derg. 2013, 1, 294–306. [Google Scholar]
- Moffett, M.; Fazio, M.W.; Wodehouse, L. A World History of Architecture; Laurence King Publishing: London, UK, 2003. [Google Scholar]
- Lawrence, J.; Miller, C.; Smith, D.A.; Taylor, J. Application Books Architecture, 3rd ed.; NTV Publications: Istanbul, Turkey, 2012. [Google Scholar]
- Şahin, S.T. 1930–1980 Yılları Arasında Üretilen Gaziantep Modern Mimarlık Yapılarının Cephe ve Kütle Özelliklerinin İncelenmesi. Master’s Thesis, Necmettin Erbakan Üniversitesi Fen Bilimleri Enstitüsü, Konya, Turkey, 2022. [Google Scholar]
- Schoenefeldt, H. Creating the right internal climate for the Crystal Palace. Proc. Inst. Civ. Eng. Eng. Hist. Herit. 2012, 165, 197–207. [Google Scholar] [CrossRef]
- Nia, H.A.; Rahbarianyazd, R. Aesthetics of modern architecture: A semiological survey on the aesthetic contribution of modern architecture. Civ. Eng. Archit. 2020, 8, 66–76. [Google Scholar] [CrossRef]
- Conrads, U. Programs and Manifestos on 20th-Century Architecture; MIT: Cambridge, MA, USA, 1971. [Google Scholar]
- Özsavaş Uluçay, N. A method proposal for interior design analysis via Villa Savoye. J. Art Arch. Stud. 2020, 9, 5–13. [Google Scholar] [CrossRef]
- Rowe, H.A. The rise and fall of modernist architecture. Inq. J. 2011, 3, 1. [Google Scholar]
- Sadler, S. An avant-garde academy. In New Interventions in Art History; John Wiley & Sons: Hoboken, NJ, USA, 2004; p. 33. [Google Scholar]
- Ballantyne, A. Architectures Modernism and After; Blackwell Publishing: Oxford, UK, 2004. [Google Scholar]
- Żychowska, M.J. Bauhaus—Didactic Experiments and Their Legacy. Glob. J. Eng. Educ. 2019, 21, 134–138. [Google Scholar]
- Arenibafo, F.E. The Transformation of Aesthetics in Architecture from Traditional to Modern Architecture: A case study of the Yoruba (southwestern) region of Nigeria. J. Contemp. Urban Aff. 2017, 1, 35–44. [Google Scholar] [CrossRef]
- Winter, E. Aesthetics and Architecture. Br. J. Aesthet. 2007, 48, 235. [Google Scholar] [CrossRef]
- Schumacher, T.L. “The outside is the Result of an Inside”: Some Sources of One of Modernism’s Most Persistent Doctrines. J. Archit. Educ. 2002, 56, 23–33. [Google Scholar] [CrossRef]
- Behne, A. The Modern Functional Building; Getty Research Institute: Los Angeles, VA, USA, 1996; Volume 1996. [Google Scholar]
- Trisno, R.; Lianto, F. Relationship Between Function-Form in The Expression of Architectural Creation. 2019. Available online: https://www.researchgate.net/profile/Fermanto-Lianto/publication/335596708_Relationship_Between_Function-Form_in_The_Expression_of_Architectural_Creation/links/5da0351e45851553ff86a912/Relationship-Between-Function-Form-in-The-Expression-of-Architectural-Creation.pdf (accessed on 18 December 2022).
- Besgen, A. The Effects of Cubist Design Theory on Modernism and Post Modernism. In Proceedings of the 4th International Conference on Design and Decision Support Systems in Architecture and Urban Planning, Eindhoven University of Technology, Maastricht, The Netherlands, 26–29 July 1998. [Google Scholar]
- Haftmann, W. Painting in the Twentieth Century; Lund Humphries: London, UK, 1960; Volume 1. [Google Scholar]
- Falcetta, J.R. Geometries of Space and Time: The Cubist London of” Mrs. Dalloway”. Woolf Stud. Annu. 2007, 13, 111–136. [Google Scholar]
- Galenson, D.M. Painting Outside the Lines: Patterns of Creativity in Modern Art; Harvard University Press: Cambridge, MA, USA, 2001; p. 14. [Google Scholar]
- Cottington, D. Cubism and Its Histories; Manchester University Press: Manchester, UK, 2004. [Google Scholar]
- Diamond, B. Landscape Cubism: Parks that break the pictorial frame. J. Landsc. Archit. 2011, 6, 20–33. [Google Scholar] [CrossRef]
- Gardiner, S. Le Corbusier; AFA Yayınları: İstanbul, Turkey, 1985. [Google Scholar]
- Sherrye, C. Arthur Dove: Nature as Symbol; UMI Dissertation Services: Ann Arbor, MI, USA, 1985. [Google Scholar]
- Wadsworth, S.M. Destroying Tradition and Rebuilding. In The Spiritual in Twentieth Century Art; Pollock, J., Stravınsky, I., Wright, F.L., Eds.; Dover Publications: Mineola, NY, USA, 2011. [Google Scholar]
- Holdren, T. A Re-Application of Neo-Plasticism: De Stijl Architecture in a Contemporary Context. 2016. Available online: https://surface.syr.edu/architecture_tpreps/334 (accessed on 20 January 2023).
- Qin, S. On De Stijl and Architectural Design. In Proceedings of the 2015 2nd International Conference on Education, Language, Language, Art and Intercultural Communication (ICELAIC-15), Henan, China, 7–8 November 2015; Atlantis Press: Amsterdam, The Netherlands, 2015; pp. 567–568. [Google Scholar]
- Doorman, M. 5. Innovation In Painting And Architecture: De Stijl. In Art in Progress; Amsterdam University Press: Amsterdam, The Netherlands, 2003; pp. 81–114. [Google Scholar]
- Birol, G. Modern Mimarlığın Ortaya Çıkışı ve Gelişimi; Megaron, Mimarlar Odası Balıkesir Şubesi Yayını: Balıkesir, Türkiye, 2006; pp. 3–16. [Google Scholar]
- Blotkamp, C. Mondrian: The Art of Destruction; Reaktion Books: London, UK, 2001. [Google Scholar]
- White, M. De Stijl and Dutch Modernism; Manchester University Press: Manchester, UK, 2003; p. 39. [Google Scholar]
- Frampton, K. The Evolution of 20th Century Architecture: A Synoptic Account; Springer: New York, NY, USA, 2007. [Google Scholar]
- Leuthäuser, G. Architecture in the Twentieth Century; Taschen: Cologne, Germany, 2001; Volume 1. [Google Scholar]
- Heinberg, R.; Lerch, D. What is sustainability. Post Carbon Read. 2010, 11, 19. [Google Scholar]
- Office of the Federal Register (US) (Ed.) Code of Federal Regulations, Title 26, Internal Revenue, PT. 1 (Sections 1.908–1.1000), Revised as of 1 April 2009; Government Printing Office: Washington, DC, USA, 2009.
- Fiksel, J.R.; Eason, T.; Frederickson, H. A Framework for Sustainability İndicators at EPA; National Risk Management Research Laboratory, Office of Research and Development, U.S. Environmental Protection Agency: Research Triangle Park, NC, USA, 2012.
- Litman, T. Sustainability and Livability: Summary of Definitions, goals, Objectives and Performance İndicators. 2010. Available online: http://www.vtpi.org/sus_liv.pdf (accessed on 28 January 2023).
- World Commission on Environment and Development. World commission on environment and development. Our Common Future 1987, 17, 1–91. [Google Scholar]
- Soini, K.; Birkeland, I. Exploring the scientific discourse on cultural sustainability. Geoforum 2014, 51, 213–223. [Google Scholar] [CrossRef]
- Manzi, T.; Lucas, K.; Jones, T.L.; Allen, J. (Eds.) Social Sustainability in Urban Areas: Communities, Connectivity and the Urban Fabric; Routledge: New York, NY, USA, 2010. [Google Scholar]
- Yenidünya, S.S.; Limoncu, S. Determination of Sustainability Criteria for Building Renewal Applications: A Systematic Literature Review and Meta-Analysis//Bina Yenileme Uygulamaları için Sürdürülebilirlik Ölçütlerinin Belirlenmesi: Sistematik Literatür Taraması ve Meta Analizi. Megaron 2020, 15, 270. [Google Scholar]
- Pourdehqan, B.; Rashidi, M.; Saeed Firouzbakht, M.; Najafi, N. Environment and Sustainable Architecture. Eur. Online J. Nat. Soc. Sci. Proc. 2015, 4 (Suppl. S3), 5. [Google Scholar]
- Boström, M. A missing pillar? Challenges in theorizing and practicing social sustainability: Introduction to the special issue. Sustain. Sci. Pract. Policy 2012, 8, 3–14. [Google Scholar] [CrossRef]
- Ghahramanpouri, A.; Lamit, H.; Sedaghatnia, S. Urban social sustainability trends in research literature. Asian Soc. Sci. 2013, 9, 185. [Google Scholar] [CrossRef]
- Doğu, F.U.; Aras, L. Measuring social sustainability with the developed MCSA model: Güzelyurt case. Sustainability 2019, 11, 2503. [Google Scholar] [CrossRef]
- Dempsey, N.; Bramley, G.; Power, S.; Brown, C. The social dimension of sustainable development: Defining urban social sustainability. Sustain. Dev. 2011, 19, 289–300. [Google Scholar] [CrossRef]
- Eizenberg, E.; Jabareen, Y. Social sustainability: A new conceptual framework. Sustainability 2017, 9, 68. [Google Scholar] [CrossRef]
- Duman, Ü.; Asilsoy, B. Developing an Evidence-Based Framework of Universal Design in the Context of Sustainable Urban Planning in Northern Nicosia. Sustainability 2022, 14, 13377. [Google Scholar] [CrossRef]
- Vallance, S.; Perkins, H.C.; Dixon, J.E. What is social sustainability? A clarification of concepts. Geoforum 2011, 42, 342–348. [Google Scholar] [CrossRef]
- McKenzie, S. Social Sustainability: Towards Some Definitions; Hawke Research Institute: Adelaide, Australia, 2004. [Google Scholar]
- Williams, R. A Vocabulary of Culture and Society; Oxford University Press: Oxford, UK, 2014. [Google Scholar]
- Soini, K.; Dessein, J. Culture-sustainability relation: Towards a conceptual framework. Sustainability 2016, 8, 167. [Google Scholar] [CrossRef]
- Pop, I.L.; Borza, A.; Buiga, A.; Ighian, D.; Toader, R. Achieving cultural sustainability in museums: A step toward sustainable development. Sustainability 2019, 11, 970. [Google Scholar] [CrossRef]
- Bandarin, F.; Van Oers, R. The Historic Urban Landscape: Managing Heritage in an Urban Century; John Wiley & Sons: Oxford, UK, 2012. [Google Scholar]
- Appendino, F. Balancing Heritage Conservation and Sustainable Development—The Case of Bordeaux. In IOP Conference Series: Materials Science and Engineering; IOP Publishing: Bristol, UK, 2017; Volume 245, p. 062002. [Google Scholar]
- Morelli, J. Environmental sustainability: A definition for environmental professionals. J. Environ. Sustain. 2011, 1, 2. [Google Scholar] [CrossRef]
- Jeronen, E. Economic Sustainability. In Encyclopedia of Sustainable Management; Idowu, S., Schmidpeter, R., Capaldi, N., Zu, L., Del Baldo, M., Abreu, R., Eds.; Springer: Cham, Switzerland, 2020. [Google Scholar]
- Basiago, A.D. Economic, social, and environmental sustainability in development theory and urban planning practice. Environmentalist 1998, 19, 145–161. [Google Scholar] [CrossRef]
- Berardi, U. Sustainability assessments of buildings, communities, and cities. In Assessing and Measuring Environmental Impact and Sustainability; Butterworth-Heinemann: Oxford, UK, 2015; pp. 497–545. [Google Scholar]
- Bernardi, E.; Carlucci, S.; Cornaro, C.; Bohne, R.A. An Analysis of the Most Adopted Rating Systems for Assessing the Environmental Impact of Buildings. Sustainability 2017, 9, 1226. [Google Scholar] [CrossRef]
- Ozay, N. A comparative study of climatically responsive house design at various periods of Northern Cyprus architecture. Build. Environ. 2005, 40, 841–852. [Google Scholar] [CrossRef]
- Oktay, D. An analysis and review of the divided city of Nicosia, Cyprus, and new perspectives. Geography 2007, 92, 231–247. [Google Scholar] [CrossRef]
- Günçe, K.; Mısırlısoy, D. Assessment of adaptive reuse practices through user experiences: Traditional houses in the walled city of Nicosia. Sustainability 2019, 11, 540. [Google Scholar] [CrossRef]
- Bakshi, A. Urban form and memory discourses: Spatial practices in contested cities. J. Urban Des. 2014, 19, 189–210. [Google Scholar] [CrossRef]
- Mesda, Y. An analytical approach to the house design in the walled city of Nicosia in Cyprus. Des. Princ. Pract. Int. J. 2011, 5, 389–430. [Google Scholar] [CrossRef]
- Feridun, S.; Feridun, A. İki Mimarın Bir Öyküsü, 1960′lardan Günümüz; Işık Kitabevi: Lefkoşa, Cyprus, 2013. [Google Scholar]
- Cogaloglu, M.; Turkan, Z. Plan organization in XX. Century housing architecture in North Cyprus. Amazon. Investig. 2019, 8, 381–388. [Google Scholar]



















| Architectural Timeline in Modern Period Between 1900–1980 | ||||||||
|---|---|---|---|---|---|---|---|---|
| 1900–1925 Early Modernism | 1900–Present Day Functionalism | 1910–1925 Futurism | 1910–1925 Expressionism | 1910–1925 De Stijl | 1919 Bauhaus | 1911–1940 Art Deco | 1920–1930 Cubism | 1920–1930 Purism |
| Peter Behrens AEG Berlin Turbine Hall ![]() https://bauhauskooperation.com/knowledge/the-bauhaus/works/architecture/aeg-turbine-hall-berlin/ (accessed on 27 April 2023) | Le Corbusier Louis H. Sullivan Villa La Roche ![]() https://en.parisinfo.com/paris-museum-monument/71409/Maison-La-Roche (accessed on 27 April 2023) | Antonio Sant’Elia La Città Nuova (The New City) ![]() https://en.wikipedia.org/wiki/Futurism (accessed on 27 April 2023) | Frank Ghery Dancing House ![]() https://en.wikipedia.org/wiki/Dancing_House (accessed on 27 April 2023) | Gerrit Rietveld Schröder House ![]() https://www.arkitektuel.com/rietveld-schroder-evi/ (accessed on 27 April 2023) | Walter Gropius Bauhaus ![]() https://www.archdaily.com/375067/happy-birthday-to-bauhaus-founder-and-acclaimed-modernist-walter-gropius (accessed on 27 April 2023) | William Van Alen Chrysler Building![]() https://www.villagepreservation.org/2020/05/04/beyond-the-village-and-back-the-chrysler-building/ (accessed on 30 April 2023) | Villa Kovařovic Josef Chochol ![]() https://en.wikipedia.org/wiki/Cubism#/media/File:Vy%C5%A1ehrad_Kova%C5%99ovicova_vila_7.jpg (accessed on 30 April 2023) | Le Corbusier Villa Savoye ![]() https://www.khanacademy.org/humanities/ap-art-history/later-europe-and-americas/modernity-ap/a/corbusier-savoye (accessed on 30 April 2023) |
| 1920–1930 Constructivism | 1920 International Style | 1920–1935 Organic Architecture | 1931 International Style in America | 1952–1975 Brutalism | 1945–1970 Late Modernism | 1945–Present Day High-tech | 1960–Present Day Postmodernism | 1980–Present Day Deconstructivism |
| Hammer and Sickle Architectural Fantasy Yakov Chernikhov ![]() https://www.pinterest.com/pin/340655159283925946/ (accessed on 30 April 2023) | Auguste Perret Villa La Roche ![]() https://en.parisinfo.com/paris-museum-monument/71409/Maison-La-Roche (accessed on 30 April 2023) | Frank Lloyd Wright Falling Water House ![]() https://www.arkitektuel.com/fallingwater-evi-selale-evi/ (accessed on 30 April 2023) | Mies Van Der Rohe Walter Gropius Lake Shore Drive Apartments ![]() http://architecture-history.org/schools/INTERNATIONAL%20STYLE.html (accessed on 30 April 2023) | Tomás Lugo Marcano, Jesús Sandoval Dietrich Teresa Carreño Cultural Complex Kunckel ![]() https://en.wikipedia.org/wiki/Teresa_Carre%C3%B1o_Cultural_Complex (accessed on 30 April 2023) | Mies Van Der Rohe IBM Plaza ![]() https://en.wikipedia.org/wiki/330_North_Wabash (accessed on 30 April 2023) | Richard Rogers Renzo Piano Centre Pompidou ![]() https://en.parisinfo.com/what-to-do-in-paris/info/guides/exhibition-at-the-centre-pompidou (accessed on 30 April 2023) | Frank Gehry Chiat/Day offices ![]() https://www.ribaj.com/culture/chiat-day-offices-los-angeles-1991-frank-gehry-binoculars (accessed on 30 April 2023) | Frank Ghery Walt Disney Concert Hall ![]() https://en.wikipedia.org/wiki/Deconstructivism#/media/File:Image-Disney_Concert_Hall_by_Carol_Highsmith_edit-2.jpg (accessed on 30 April 2023) |
| The Building Designs in Modern Architecture | ||
|---|---|---|
![]() | ![]() | ![]() |
![]() Le Corbusier Villa Savoye 1927 | ![]() Mies Van Der Rohe Barcelona Pavilion 1929 | ![]() Frank Lloyd Wright—Fallingwater House |
| Philip Johnson, Glass House; and Mies van der Rohe, Berlin National Art Gallery | |
|---|---|
![]() | ![]() |
![]() Glass House, 1949, Philip Johnson | ![]() Berlin National Art Gallery, 1965, Mies van der Rohe |
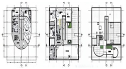
| Villa La Roche, 1923, by Le Corbusier | ||
|---|---|---|
![]() Facade Design | ![]() Interior Space Design | ![]() Interior Space Design |
![]() Plan | ![]() Section | ![]() Design Phases |
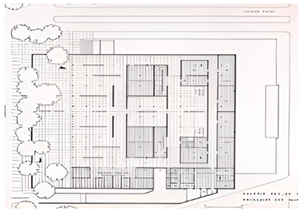
| Robie House (1907–1909) | ||
|---|---|---|
![]() | ![]() | ![]() |
| Facade Design | Interior Design | Interior Design |
![]() | ![]() | ![]() |
| Plan | Section | Design Phases |
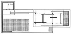
| Schröder House (1923–1924) | ||
|---|---|---|
![]() | ![]() | ![]() |
| Plan | Section | Design phase |
![]() | ![]() | ![]() |
| Living spaces formed around spiral staircases. The staircase connects both levels of the building. | It shows the spatial organization of the upper floor. The stair area is shown as a box that can be accessed from other areas on the floor. In addition, the upper level is divided into four main areas with access to a three-post balcony. | Circulation axis downstairs. Every downstairs area has access to the outdoors. |
![]() | ![]() | ![]() |
| Facade Design | Interior Space Design | Interior Space Design |
| Evaluation of Modern Buildings within the Sustainability Parameters and Modern Architectural Criteria | ||
|---|---|---|
| Evaluated Building | Sustainability Parameters | Evaluation |
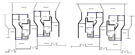
| Neighborhood Name: Kumsal Zone Type of Efruz Houses: Row and Attached Houses | Street Name: Meriç Street/Tuna Street/Tuncer Hasan Street | |
![]() Efruz Houses (Müdüroğlu Houses) Year: 1963–1974 | Social Sustainability | In these modern houses, social sustainability parameters include density, walkability, neighborhood relationship, and accessibility by vehicle transportation. |
![]() ![]() | Cultural Sustainability (Parameters) | These buildings, which were designed in the modern period, are a historical cultural value that determines the architectural identity of the region with its architectural style, building form, and construction technique in the context of cultural sustainability. |
| Environmental Sustainability (Parameters) | Efruz Houses, designed in the modern period, were built in an environmentally friendly and harmonious manner. When we evaluate the building materials used in the design in the context of environmental sustainability, it has been observed that they are built as durable and environmentally friendly building materials. | |
| Economical Sustainability (Parameters) | These residences, which were built in the modern period and have cultural value, maintain their economic sustainability. It creates a tourist attraction center by increasing the land value and residential property values of the surrounding area. Since its environmental sustainability continues due to its location, it continues to contribute to economic sustainability. | |
| Architectural Space Criteria | Evaluation (Architectural Criteria) | |
| Form | Spaces Analysis | |
![]() | Ground Floor Spaces: | ![]() |
| Courtyard Garage Entrance Hall Livingroom Dining Room Kitchen Studying Room Wc | ||
![]() | First Floor Spaces: | ![]() |
| 3 Bedrooms Bathroom 2 Balconies | ||
![]() | Form Analysis: The plan design consists of straight, simple, and sharp lines. They have an exemplary approach to geometric forms and symmetrical plans. They include functionalism, cubism, De-Stijl, and Bauhaus approaches. The buildings that have been observed have an open-plan design application. It reflects the structural plan features in which the internal-external relationship is established. | |
| Function | Efruz Houses consist of 31 buildings in total. While 27 buildings retain their original residence function, four buildings have changed their functions. Refunctioned structures are used as a human resources office, an insurance agency, an information technology office, and a private bank. | |
| Original Function: 31 Houses Today’s Function: 27 Residential Houses (in good condition, without damages), and four Houses (have different functions) | ||
| Construction | Traditional natural stone material was used on the facade. There is no ornamentation in the facade designs. Large rectangular window openings are striking on the facades. The buildings have a tile roof construction technique as two floors, adjacent to the garage connection. | |
| Structure/Material: Concrete, Plaster, Dye, Glass, Iron Railings, White Fire Brick, Stonewall Facade | ||
| Evaluation of Modern Buildings within the Sustainability Parameters and Modern Architectural Criteria (Buildings That are Modifying Their Functions) | ||||
|---|---|---|---|---|
| Evaluated Building | Sustainability Parameters | Evaluation | ||
| Neighborhood Name: Kumsal Zone Type of Efruz Houses: Row and Attached Houses | Street Name: Tuncer Hasan Street | |||
| TYPE A INSURANCE AGENCY | Original Function: Efruz House (Müdüroğlu Houses) Year: 1963–1974 | Social Sustainability | In the Efruz housing structure (insurance agency) which is classified as type A, social sustainability has parameters such as walkability, accessibility, and transportation by vehicle. | |
![]() The location of the structure whose function has changed on the map | ![]() Front View | Cultural Sustainability (Parameters) | This modern building, which has undergone a functional change, is evaluated in the context of cultural sustainability. Its architectural style, building style, and construction technique have been preserved, and the preservation of its architectural identity. Therefore, cultural sustainability has continued. | |
| Environmental Sustainability (Parameters) | The insurance agency building, when evaluated within the scope of environmental sustainability, has been observed despite the changing function of the building. The materials used in its design have not changed, so it has preserved its environmental sustainability until today. | |||
| Economical Sustainability (Parameters) | The insurance agency building, which was built with materials that preserve its identity in the modern period, continues to maintain its economic structure by today’s standards. Since this structure, which has undergone functional change, has economic and cultural value, it has been changed by preserving the existing original construction criteria, and the real estate value of the building increases. | |||
| Architectural Space Criteria | Evaluation (Architectural Criteria) | |||
| Form | Spaces Analysis | |||
![]() Ground Floor plan | ![]() First floor Plan | Ground Floor Spaces: | ![]() | |
| Courtyard Garage Entrance Hall Offices Wc Kitchen | ||||
| First Floor Spaces: | ![]() | |||
| Manager Office Offices Bathroom Corridor 2 Balconies | ||||
![]() | Form Analysis: The plan design of this building, which has changed a functional change, has been preserved and the spaces have been re-functionalized. The plan design consists of straight, simple, sharp lines and open plan organization. It preserves functionalism, cubism, De-Stijl, and Bauhaus approaches. It reflects the structural plan features in which the internal-external relationship is established. | |||
| Front Elevation | Back Elevation | |||
| Function Original Function: House Today’s Function: Insurance Agency in Tuncer Hasan Street (The House number 21) | The original function of the building is residential. Today, it has been converted into an office by an insurance company. | |||
| Construction Structure/Material: Stone Wall, Concrete, Plaster, Dye, Glass, Iron Railings, White Fire Brick | The original facade of the building is structurally not changed. The original construction materials of the existing building have been preserved in the insurance building, which has changed a functional change. To symbolize the color of the institution, the roof eaves are painted green in the facade design. | |||
| Evaluation of Modern Buildings within the Sustainability Parameters and Modern Architectural Criteria (Buildings That Are Modifying Their Functions) | |||
|---|---|---|---|
| Evaluated Building | Sustainability Parameters | Evaluation | |
| Neighborhood Name: Kumsal Zone Type of Efruz Houses: Row and Attached Houses | Street Name: Meriç Street | ||
| TYPE E Hotel’s Human Resources Office | Original Function: Efruz House (Müdüroğlu Houses) Year: 1963–1974 | Social Sustainability | Efruz housing structure (hotel’s human resources office), which is classified as E type, has parameters such as social sustainability, walkability, accessibility, and transportation by vehicle. |
![]() The location of the structure whose function has changed on the map | ![]() Front View | Cultural Sustainability (Parameters) | The human resources building, which has changed functional change, is evaluated in terms of cultural sustainability, the addition made in the facade design has caused the partial deterioration of its architectural identity and cultural sustainability. |
| Environmental Sustainability (Parameters) | The building is evaluated within the scope of environmental sustainability, and it has been observed that it partially protects its environmental sustainability since it was built with environmentally friendly materials in the modern period. The additions made to the front and rear facades after the functional change caused the visual order of the building to be partially disturbed. | ||
| Economical Sustainability (Parameters) | It has been observed that the human resources office building, designed with modern period materials, has changed the sustainability of the original facade design by adding additional building additions in the front and rear facade designs of the ground floor. With the change made, the economic sustainability of this structure was partially damaged. | ||
| Architectural Space Criteria | Evaluation (Architectural Criteria) | ||
| Form | Spaces Analysis | ||
![]() Ground Floor Plan | ![]() First Floor Plan | Ground Floor Spaces: | ![]() |
| Courtyard Garage Entrance Hall Offices Kitchen Wc Storage | |||
| First Floor Spaces: | ![]() | ||
| Manager Room Human Resources Office Bathroom 2 Balconies | |||
![]() | Form Analysis: The human resources office of a private hotel changed functional changes and has different space division changes in the ground floor plan, while the original building space divisions are preserved in the upper floor plan. The living room and dining area, which were designed in an open plan type on the ground floor of the building, were converted into two office spaces after the change in function. The section, which was designed as a dining area in the original building design, was changed by enlarging it toward the front. The section that was designed as a living room in its original design, has been extended toward the facade in the back. It preserves functionalism, cubism, De-Stijl, and Bauhaus approaches. The spaces that have changed in the plan design are marked in red in the plan shown in the table. | ||
| Front Elevation | Back Elevation | ||
| Function | The original function of the building is residential. Today, it has been converted into an office by a human resources office. | ||
| Original Function: House Today’s Function: Merit Nicosia Hotel Office in Meriç Street (The House number 14) | |||
| Construction | The original facades of the building have been structurally altered. These changes are due to the extension of the dining area towards the front facade and the closing of the terrace facing the rear facade of the living room and its inclusion in the ground floor plan. On the other facades, the original building materials of the existing building have been preserved. | ||
| Structure/Material: Concrete, Plaster, Dye, Glass, Iron Railings | |||
| Evaluation of Modern Buildings within the Sustainability Parameters and Modern Architectural Criteria (Buildings That Are Modifying Their Functions) | |||
|---|---|---|---|
| Evaluated Building | Sustainability Parameters | Evaluation | |
| Neighborhood Name: Kumsal Zone Type of Efruz Houses: Row and Attached Houses | Street Name: Meriç Street | ||
| TYPE E Information Technology Office | Original Function: Efruz House (Müdüroğlu Houses) Year: 1963–1974 | Social Sustainability | Efruz housing structure (information technology office), which is classified as E type, has criteria such as social sustainability parameters, walkability, accessibility, and transportation by vehicle. |
![]() The location of the structure whose function has changed on the map | ![]() | Cultural Sustainability (Parameters) | The information technology office structure, which is classified as type E and has changed functional changes, is evaluated in the context of cultural sustainability parameters, the changes in its architecture, style, and technique have caused both architectural identity and cultural sustainability to partially change. |
| Environmental Sustainability (Parameters) | The information technologies office building, when evaluated within the scope of environmental sustainability, the addition of the upper covering designed in addition to the original structure on the left side entrance door and the addition of space to the rear facade has partially changed the environmental sustainability. | ||
| Economical Sustainability (Parameters) | This building, which was built with modern period construction materials, has spoiled its original building identity with the top coating material added to the left facade design and the additional structure added to the rear facade. With the change made, the economic sustainability of this structure was partially damaged. | ||
| Architectural Space Criteria | Evaluation (Architectural Criteria) | ||
| Form | Spaces Analysis | ||
![]() Ground floor Plan | ![]() First floor Plan | Ground Floor Spaces: | ![]() |
| Courtyard Garage Entrance Hall Offices Kitchen Wc Storage | |||
| First Floor Spaces: | ![]() | ||
| 3 Unused Bedroom Bathroom Corridor 2 Balconies | |||
![]() | Form Analysis: The spaces have been re-functionalized with the changes made in the plan design of the IT office, which has changed functional changes. The additional room added to the back of the ground floor plan of the building changed the original building identity of Efruz Houses. The section, which was designed as a dining area in the original building design, was changed by extending it forward. It preserves functionalism, cubism, De-Stijl, and Bauhaus approaches. The changed spaces in the plan design are marked in red in the plan shown in the table. | ||
| Front Elevation | Back Elevation | ||
| Function | The original function of the building is residential. Today, it has been converted into an Information Technology office. | ||
| Original Function: House Today’s Function: Information Technology Office in Meriç Street | |||
| Construction | The original facades of the building have been structurally altered. These changes are due to the extension of the ground floor plan of the building towards the front and rear facades. The top covering element designed in addition to the original structure on the left side entrance door of the building has damaged the original identity of this building. On the other facades, the original building materials of the existing building have been preserved. | ||
| Struructure/Material: Concrete, Plaster, Dye, Glass, Iron Railings | |||
| Evaluation of Modern Buildings within the Sustainability Parameters and Modern Architectural Criteria (Buildings That Are Modifying Their Functions) | ||||
|---|---|---|---|---|
| Evaluated Building | Sustainability Parameters | Evaluation | ||
| Neighborhood Name: Kumsal Zone Type of Efruz Houses: Row and Attached Houses | Street Name: Meriç Street | |||
| TYPE E Private Bank | Original Function: Efruz House (Müdüroğlu Houses) Year: 1963–1974 | Social Sustainability | Efruz housing structure (Mondial private bank), which is classified as E type, has criteria such as social sustainability parameters, walkability, accessibility, and transportation by vehicle. | |
![]() The location of the structure whose function has changed on the map | ![]() | Cultural Sustainability (Parameters) | The Mondial private bank structure, which is classified as type E and has changed functional changes, is evaluated in the context of cultural sustainability parameters. The changes in its architecture, style, and technique have caused both architectural identity and cultural sustainability to change. | |
| Environmental Sustainability (Parameters) | The Mondial private bank building, when evaluated within the scope of environmental sustainability, the environmental sustainability of the building has been greatly damaged as a result of the expansion of the space designed in addition to the original structure on the left and right facades of the building. | |||
| Economical Sustainability (Parameters) | The Mondial private bank, which was built with modern period construction materials, has damaged the original architectural identity of the building due to the size of the space added to the building form. The economic sustainability of the building has been completely disturbed by all the form and material changes made by ignoring the style and criteria of the modern period. | |||
| Architectural Space Criteria | Evaluation (Architectural Criteria) | |||
| Form | Spaces Analysis | |||
![]() Ground Floor Plan | ![]() First Floor Plan | Ground Floor Spaces: | ![]() | |
| Courtyard Entrance Hall Offices Kitchen Wc Storage | ||||
| First Floor Spaces: | ![]() | |||
| Manager Room Offices Bathroom Corridor 2 Balconies | ||||
![]() | Form Analysis: A private bank that has changed a functional change has changed the space divisions in the original building design. These changes were made to the ground floor plan as a different space division and add additional space design. The space added to the ground floor plan has turned into a new space design in the upper floor plan on the same level. The living room and dining area, which were designed in an open plan type on the ground floor of the building, were transformed into three office spaces after the change in function. The section, which was designed as a dining area in the original building design, was changed by extending it forward. It partially preserved the approaches of functionalism, cubism, De-Stijl, and Bauhaus. The spaces that have changed in the plan design are marked in red in the plan shown in the table. | |||
| Front Elevation | Back Elevation | |||
| Function | The original function of the building is residential. Today, it has been converted into a private bank. | |||
| Original Function: House Today’s Function: Private Bank in Meriç Street | ||||
| Construction | There have been some changes in the original facade designs of the building. These changes are due to the expansion of the dining area towards the front and the room located at the back of the staircase to be extended toward the back and included in the ground floor plan. The addition made on the ground floor plan on the back facade was expanded on the same level as the upper floor plan. The original facade materials have been changed on the interior and exterior. | |||
| Structure/Material: Concrete, Plaster, Dye, Glass, Iron and Glass Railings | ||||
Disclaimer/Publisher’s Note: The statements, opinions and data contained in all publications are solely those of the individual author(s) and contributor(s) and not of MDPI and/or the editor(s). MDPI and/or the editor(s) disclaim responsibility for any injury to people or property resulting from any ideas, methods, instructions or products referred to in the content. |
© 2023 by the authors. Licensee MDPI, Basel, Switzerland. This article is an open access article distributed under the terms and conditions of the Creative Commons Attribution (CC BY) license (https://creativecommons.org/licenses/by/4.0/).
Share and Cite
Beyaz, Ç.; Erçin, Ç. Evaluation of Modern Architecture Criteria in the Context of Sustainability and Architectural Approach; Modern Period in North Nicosia. Sustainability 2023, 15, 10005. https://doi.org/10.3390/su151310005
Beyaz Ç, Erçin Ç. Evaluation of Modern Architecture Criteria in the Context of Sustainability and Architectural Approach; Modern Period in North Nicosia. Sustainability. 2023; 15(13):10005. https://doi.org/10.3390/su151310005
Chicago/Turabian StyleBeyaz, Çağla, and Çilen Erçin. 2023. "Evaluation of Modern Architecture Criteria in the Context of Sustainability and Architectural Approach; Modern Period in North Nicosia" Sustainability 15, no. 13: 10005. https://doi.org/10.3390/su151310005
APA StyleBeyaz, Ç., & Erçin, Ç. (2023). Evaluation of Modern Architecture Criteria in the Context of Sustainability and Architectural Approach; Modern Period in North Nicosia. Sustainability, 15(13), 10005. https://doi.org/10.3390/su151310005






















































































