Seismic Performance of Corroded ECC-GFRP Spiral-Confined Reinforced-Concrete Column
Abstract
1. Introduction
2. Experimental Program
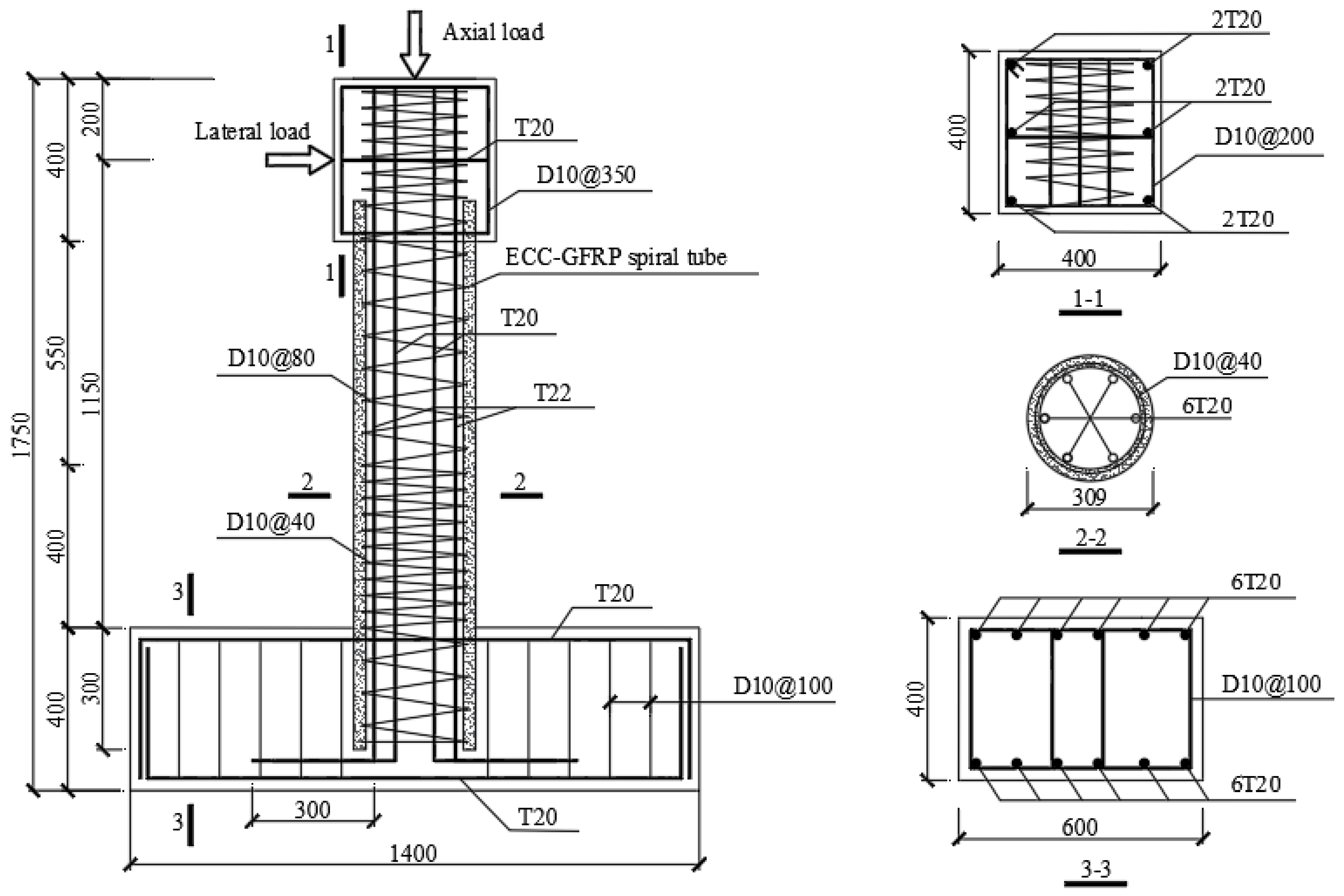
2.1. Specimen Design
2.2. Material Properties
2.3. Specimen Fabrication
2.4. Accelerated Corrosion Procedure
2.5. Test Setup
3. Test Observations
3.1. Evaluation of the Corrosion Condition
3.2. Failure Modes
4. Results and Discussions
4.1. Hysteretic Responses
4.2. Seismic Performance of the ECC-GFRP Spiral-Confined RC Column
5. Finite Element Analysis
5.1. Finite Element Modeling
5.2. Model Verification
5.3. Parameter Analysis
5.4. Sensitivity Analysis
6. Conclusions
- (1)
- Compared to RC columns, ECC-GFRP spiral-confined RC columns exhibit a lower actual corrosion rate of the steel reinforcement, smaller crack widths after corrosion, and fewer corrosion products. The ECC-GFRP spiral tube demonstrates excellent crack control performance and corrosion resistance, effectively inhibiting steel reinforcement corrosion.
- (2)
- Hysteresis tests on corroded ECC-GFRP spiral-confined RC columns indicate that, at a target corrosion rate of 20%, these columns exhibit superior hysteretic performance. The load-bearing capacity, ductility, and energy dissipation capacity of ECC-GFRP spiral-confined RC columns are better than those of corroded RC columns, demonstrating excellent durability and seismic performance. The application of ECC-GFRP spiral-confined concrete reinforcement not only weakens the corrosion of the internal longitudinal reinforcement, but it can also provide stable confinement to the internal concrete, thereby ensuring the mechanical properties of the RC column in harsh environments.
- (3)
- Based on the experimental data, the accuracy of the finite element model was verified. The results of the parametric and sensitivity analyses indicate that, as the volumetric stirrup ratio and concrete compressive strength increase or the corrosion rate decreases, the peak load of the specimens improves. Among these factors, concrete compressive strength has the most significant impact on the load-bearing capacity of ECC-GFRP spiral-confined RC columns, while the corrosion rate has the least impact.
Author Contributions
Funding
Institutional Review Board Statement
Data Availability Statement
Conflicts of Interest
References
- Angst, U.M. Challenges and opportunities in corrosion of steel in concrete. Mater. Struct. 2018, 51, 4. [Google Scholar] [CrossRef]
- Guo, Y.; Trejo, D.; Yim, S. New Model for Estimating the Time-Variant Seismic Performance of Corroding RC Bridge Columns. J. Struct. Eng. 2015, 141, 04014158. [Google Scholar] [CrossRef]
- Li, H.; Li, C. Research Progress on Life-cycle Based Bridge Structural Seismic Performance Evaluation and Design Method. China J. Highw. Transp. 2014, 27, 32–45. [Google Scholar]
- Zhang, L.; Niu, D.; Wen, B.; Luo, D. Concrete Protective Layer Cracking Caused by Non-Uniform Corrosion of Reinforcements. Materials 2019, 12, 4245. [Google Scholar] [CrossRef] [PubMed]
- Chen, Y.D.; LI, P.D. Anti-corrosion performance of a novel ECC-GFRP spiral-confined RC column. Case Stud. Constr. Mater. 2024, 20, e03241. [Google Scholar] [CrossRef]
- Li, P.D.; Chen, Y.D.; Yuan, F. Stress-strain behavior of ECC-GFRP spiral confined concrete cylinders. J. Build. Eng. 2023, 63, 105473. [Google Scholar] [CrossRef]
- Ye, Z.; Zhang, W.; Gu, X. Deterioration of shear behavior of corroded reinforced concrete beams. Eng. Struct. 2018, 168, 708–720. [Google Scholar] [CrossRef]
- Yang, D.; Yan, C.; Zhang, J.; Liu, S.; Li, J. Chloride threshold value and initial corrosion time of steel bars in concrete exposed to saline soil environments. Constr. Build. Mater. 2021, 267, 120979. [Google Scholar] [CrossRef]
- Cao, H.; Lyu, Z.; Dong, W.; Zhao, Z.; Gan, W.; Wang, Y. Corrosion Experimental Research on Local Damage of Epoxy-Coated Steel Bars in Concrete Under Marine Environment. Front. Mater. 2022, 8, 821716. [Google Scholar] [CrossRef]
- Choi, O.C.; Hadjeghaffari, H.; Darwin, D.; McCabe, S.L. Bond of epoxy-coated reinforcement-bar parameters. ACI Mater. J. 1991, 88, 207–217. [Google Scholar]
- Hu, X.; Xue, W.; Xue, W. Bond properties of GFRP rebars in UHPC under different types of test. Eng. Struct. 2024, 314, 118319. [Google Scholar] [CrossRef]
- Hu, X.; Xue, W.; Zheng, R. Hysteretic performance of prestressed concrete beams with AFRP tendons under cyclic loading. Struct. Concr. 2024, 25, 620–636. [Google Scholar] [CrossRef]
- Li, P.D.; Wu, Y.F. Damage evolution and full-field 3D strain distribution in passively confined concrete. Cem. Concr. Compos. 2023, 138, 104979. [Google Scholar] [CrossRef]
- Huang, Z.; Wei, Y.; Zhang, Y.; Zhao, K.; Dong, Z. Flexural performance of FRP-SWSSC-steel composite beams: Experimental and analytical investigation. Eng. Struct. 2024, 306, 117842. [Google Scholar] [CrossRef]
- Hu, J.; Wei, Y.; Yi, J.; Zhang, Y.; Zhao, K. Axial compression performance of underwater columns reinforced with stainless steel tube-FRP grids. J. Constr. Steel Res. 2024, 218, 108721. [Google Scholar] [CrossRef]
- LI, P.D.; Zhao, Y.; Wu, Y.F.; Lin, J.P. Effect of defects in adhesive layer on the interfacial bond behaviors of externally bonded CFRP-to-concrete joints. Eng. Struct. 2023, 278, 115495. [Google Scholar] [CrossRef]
- Li, P.D.; Zeng, Q.; Gao, S.J.; Yuan, F. Postpeak Stress–Strain Behavior of High-Strength Concrete under Different FRP Confinement Stiffness Ratios. J. Compos. Constr. 2024, 28, 04024003. [Google Scholar] [CrossRef]
- De Luca, A.; Matta, F.; Nanni, A. Behavior of Full-Scale Glass Fiber-Reinforced Polymer Reinforced Concrete Columns under Axial Load. ACI Struct. J. 2010, 107, 589–596. [Google Scholar]
- Sahmaran, M.; Li, V.C.; Andrade, C. Corrosion resistance performance of steel-reinforced engineered cementitious composite beams. ACI Mater. J. 2008, 105, 243–250. [Google Scholar]
- Ma, K.; Deng, H.; Guo, X.; Yin, J.; Zhao, Y. The investigating on mechanical properties of engineered cementitious composites with high ductility and low cost. J. Build. Eng. 2022, 57, 104873. [Google Scholar] [CrossRef]
- Li, L.Z.; Cai, Z.W.; Yu, K.Q.; Zhang, Y.X.; Ding, Y. Performance-based design of all-grade strain hardening cementitious composites with compressive strengths from 40 MPa to 120 MPa. Cem. Concr. Compos. 2019, 97, 202–217. [Google Scholar] [CrossRef]
- Ma, H.Q.; Yi, C.; Wu, C. Review and outlook on durability of engineered cementitious composite (ECC). Constr. Build. Mater. 2021, 287, 122719. [Google Scholar] [CrossRef]
- Li, V.C.; Kanda, T. Engineered cementitious composites for structural applications. J. Mater. Civ. Eng. 1998, 10, 66–69. [Google Scholar] [CrossRef]
- Wu, C.; Pan, Z.F.; Su, R.K.L.; Leung, C.K.Y.; Meng, S.P. Seismic behavior of steel reinforced ECC columns under constant axial loading and reversed cyclic lateral loading. Mater. Struct. 2017, 50, 78. [Google Scholar] [CrossRef]
- Zhang, R.; Meng, Q.L.; Shui, Q.J.; He, W.; Chen, K.X.; Liang, M.F.; Sun, Z.Y. Cyclic response of RC composite bridge columns with precast PP-ECC jackets in the region of plastic hinges. Compos. Struct. 2019, 221, 110844. [Google Scholar] [CrossRef]
- Yuan, F.; Chen, M.C.; Pan, J.L. Experimental study on seismic behaviours of hybrid FRP-steel-reinforced ECC-concrete composite columns. Compos. Part B-Eng. 2019, 176, 107272. [Google Scholar] [CrossRef]
- Xu, Y.; Jia, Y.F.; Tong, Z.L.; Shivahari, S. Cyclic loading test for concrete bridge columns integrated with ECC segment at the plastic zone. Eng. Struct. 2021, 246, 112985. [Google Scholar] [CrossRef]
- Xu, L.; Pan, J.L.; Chen, J.H. Mechanical Behavior of ECC and ECC/RC Composite Columns under Reversed Cyclic Loading. J. Mater. Civ. Eng. 2017, 29, 04017097. [Google Scholar] [CrossRef]
- Li, X.; Chen, K.D.; Hu, P.; He, W.; Xiao, L.; Zhang, R. Effect of ECC jackets for enhancing the lateral cyclic behavior of RC bridge columns. Eng. Struct. 2020, 219, 110714. [Google Scholar] [CrossRef]
- Pan, Z.F.; Zhu, Y.Z.; Qiao, Z.; Meng, S.P. Seismic behavior of composite columns with steel reinforced ECC permanent formwork and infilled concrete. Eng. Struct. 2020, 212, 110541. [Google Scholar] [CrossRef]
- Cai, J.M.; Pan, J.L.; Su, H.; Lu, C. Experimental study on the hysteretic behavior of ECC-encased CFST columns. Eng. Struct. 2018, 173, 107–121. [Google Scholar] [CrossRef]
- Afifi, M.Z.; Mohamed, H.M.; Benmokrane, B. Axial Capacity of Circular Concrete Columns Reinforced with GFRP Bars and Spirals. J. Compos. Constr. 2014, 18, 04013017. [Google Scholar] [CrossRef]
- Hadi, M.N.S.; Karim, H.; Sheikh, M.N. Experimental Investigations on Circular Concrete Columns Reinforced with GFRP Bars and Helices under Different Loading Conditions. J. Compos. Constr. 2016, 20, 04016009. [Google Scholar] [CrossRef]
- Abdallah, A.E.M.; El-Salakawy, E. Confinement Properties of GFRP-Reinforced Concrete Circular Columns under Simulated Seismic Loading. J. Compos. Constr. 2021, 25, 04020088. [Google Scholar] [CrossRef]
- Tavassoli, A.; Sheikh, S.A. Seismic Resistance of Circular Columns Reinforced with Steel and GFRP. J. Compos. Constr. 2017, 21, 04017002. [Google Scholar] [CrossRef]
- Pantelides, C.P.; Gibbons, M.E.; Reaveley, L.D. Axial Load Behavior of Concrete Columns Confined with GFRP Spirals. J. Compos. Constr. 2013, 17, 305–313. [Google Scholar] [CrossRef]
- ASTM C469-94; Standard Test Method for Effect of Outdoor Weathering on Unsaturated Polyester Glass-Resin Base Plates. American Society for Testing and Materials: West Conshohocken, PA, USA, 1994.
- JSCE. Recommendations for Design and Construction of High Performance Fiber Reinforced Cement Composites with Multiple Fine Cracks; Japan Society of Civil Engineers Press: Tokyo, Japan, 2008; pp. 1–16. [Google Scholar]
- GB/T 228.1-2021; Metallic Materials—Tensile Testing—Part 1: Method of Test at Room Temperature. Standardization Administration of China: Beijing, China, 2021.
- Jiang, H.; Jin, C.; Yan, L.; Li, Q.N.; Lu, W. Design method for the relocation of plastic hinges in prefabricated steel beams with corrugated webs. PLoS ONE 2021, 16, e0246439. [Google Scholar] [CrossRef] [PubMed]
- Hwang, H.-J.; Kim, C.-S. Simplified Plastic Hinge Model for Reinforced Concrete Beam-Column Joints with Eccentric Beams. Appl. Sci. 2021, 11, 1303. [Google Scholar] [CrossRef]
- Jeyarajan, S.; Liew, J.Y.R.; Koh, C.G. Plastic Hinge Analysis of Composite Frames under Column Loss Scenario. Int. J. Steel Struct. 2016, 16, 975–985. [Google Scholar] [CrossRef]
- Yuan, W.; Wu, X.; Wang, Y.; Liu, Z.; Zhou, P. Time-Dependent Seismic Reliability of Coastal Bridge Piers Subjected to Nonuniform Corrosion. Materials 2023, 16, 1029. [Google Scholar] [CrossRef] [PubMed]
- Medeiros, M.H.F.; Gobbi, A.; Reus, G.C.; Helene, P. Reinforced concrete in marine environment: Effect of wetting and drying cycles, height and positioning in relation to the sea shore. Constr. Build. Mater. 2013, 44, 452–457. [Google Scholar] [CrossRef]
- Zhou, Y.W.; Chen, X.; Wang, X.H.; Sui, L.L.; Huang, X.X.; Guo, M.H.; Hu, B. Seismic performance of large rupture strain FRP retrofitted RC columns with corroded steel reinforcement. Eng. Struct. 2020, 216, 110744. [Google Scholar] [CrossRef]
- Zhou, H.J.; Xu, Y.N.; Peng, Y.R.; Liang, X.B.; Li, D.W.; Xing, F. Partially corroded reinforced concrete piers under axial compression and cyclic loading: An experimental study. Eng. Struct. 2020, 203, 109880. [Google Scholar] [CrossRef]
- Zhou, Y.W.; Wang, X.H.; Yuan, F.; Hu, B.; Zhu, Z.F. Seismic retrofitting of coastal structural columns with steel bars locally corroded to fracture using sprayed ECC overlays and FRP jackets. Compos. Struct. 2023, 307, 116670. [Google Scholar] [CrossRef]
- Du, Y.G.; Clark, L.A.; Chan, A.H.C. Residual capacity of corroded reinforcing bars. Mag. Concr. Res. 2005, 57, 135–147. [Google Scholar] [CrossRef]
- Yuan, F.; Pan, J.L.; Leung, C.K.Y. Elastoplastic time history analysis of reinforced engineered cementitious composite or engineered cementitious composite-concrete composite frame under earthquake action. Adv. Struct. Eng. 2017, 20, 491–503. [Google Scholar] [CrossRef]
- Yu, T.; Teng, J.G.; Wong, Y.L.; Dong, S.L. Finite element modeling of confined concrete-II: Plastic-damage model. Eng. Struct. 2010, 32, 680–691. [Google Scholar] [CrossRef]


























| Ingredients | Quantities |
|---|---|
| Limestone powder (LP) (kg/m3) | 74 |
| Silica fume (SF) (kg/m3) | 111 |
| Ground granulated blast furnace slag (GGBFS) (kg/m3) | 566 |
| Silica sand (kg/m3) | 466 |
| Cement (kg/m3) | 528 |
| Water (kg/m3) | 388 |
| HRWR (kg/m3) | 3 |
| PE fiber (kg/m3) | 20 |
| W*/(Cement + LP + SF + GGBFS) | 0.303 |
| Reinforcement Type | ds (mm) | fy (MPa) | εy (mm/mm) | fsu (MPa) | εsu (mm/mm) | Es (GPa) |
|---|---|---|---|---|---|---|
| Spiral bar | 10 mm | 380 | 0.002065 | 536 | 0.1440 | 205 |
| Longitudinal bar | 20 mm | 438 | 0.002086 | 617 | 0.1510 | 202 |
| Reinforcement Type | Diameter (mm) | Elasticity Modulus (GPa) | Ultimate Strain (%) | Ultimate Strength (MPa) |
|---|---|---|---|---|
| GFRP | 10 | 46.8 | 2.03 | 791 |
| Specimens | Reinforcement Type | Corrosion Rate (%) | Current Density (mA/mm2) | Current Value (A) | Time (h) |
|---|---|---|---|---|---|
| C20-ECC-GFRP | Longitudinal bar | 20 | 0.4 | 0.603 | 1880 |
| C20-RC | Longitudinal bar | 20 | 0.4 | 0.603 | 1880 |
| Spiral bar | 22.5 | 0.4 | 0.599 | 1880 |
| Specimens | Reinforcement Type | Target Corrosion Rate | Actual Corrosion Rate |
|---|---|---|---|
| C20-ECC-GFRP | Longitudinal bar | 20% | 11.59% |
| C20-RC | Longitudinal bar | 20% | 14.81% |
| Spiral bar | 22.50% | 24.37% |
| Specimen | Direction | Yield Point | Peak Point | Ultimate Point | ||||
|---|---|---|---|---|---|---|---|---|
| (kN) | (mm) | (kN) | (mm) | (kN) | (mm) | |||
| C20-ECC-GFRP | Positive | 113.45 | 9.25 | 128.20 | 2.85 | 108.97 | 26.34 | - |
| Negative | 109.83 | −8.85 | −130.54 | 2.97 | −110.96 | −26.31 | - | |
| Average | 111.64 | 9.05 | - | 2.91 | 109.96 | 26.33 | 2.91 | |
| C0-RC | Positive | 110.87 | 7.22 | 130.28 | 2.73 | 110.74 | 19.68 | - |
| Negative | 117.48 | −9.82 | −136.41 | 2.87 | 115.95 | −28.20 | - | |
| Average | 114.18 | 8.52 | - | 2.81 | 113.34 | 23.94 | 2.81 | |
| C20-RC | Negative | −57.83 | −5.37 | −65.95 | 1.83 | −56.06 | −9.80 | 1.83 |
| μ | ρsv (%) | ρs (%) | L/d | fc (MPa) | Cr (%) |
|---|---|---|---|---|---|
| 0.4 | 3.02% | 2.67 | 4 | 40 | 10 |
| Design Factor | Range of Parameter Values |
|---|---|
| Longitudinal reinforcement corrosion rate Cr (%) | 0, 10, 20 |
| Volumetric stirrup ratio ρsv (mm) | 40, 60, 80 |
| Concrete compressive strength fc (MPa) | 30, 40, 50 |
| Specimen | Cr (%) | ρsv (MPa) | fc (MPa) | Fp (kN) | Fp/Fp,control |
|---|---|---|---|---|---|
| Control specimen | 10% | 3.02% | 40 | 129.14 | 100.00% |
| C0-S40-C40 | 0% | 129.18 | 100.03% | ||
| C20-S40-C40 | 20% | 128.18 | 99.26% | ||
| C10-S60-C40 | 2.01% | 129.08 | 99.96% | ||
| C10-S80-C40 | 1.51% | 127.86 | 99.01% | ||
| C10-S40-C30 | 30 | 121.93 | 94.42% | ||
| C10-S40-C50 | 50 | 134.55 | 104.19% |
Disclaimer/Publisher’s Note: The statements, opinions and data contained in all publications are solely those of the individual author(s) and contributor(s) and not of MDPI and/or the editor(s). MDPI and/or the editor(s) disclaim responsibility for any injury to people or property resulting from any ideas, methods, instructions or products referred to in the content. |
© 2024 by the authors. Licensee MDPI, Basel, Switzerland. This article is an open access article distributed under the terms and conditions of the Creative Commons Attribution (CC BY) license (https://creativecommons.org/licenses/by/4.0/).
Share and Cite
Long, X.; Chen, Z.; Li, P. Seismic Performance of Corroded ECC-GFRP Spiral-Confined Reinforced-Concrete Column. Polymers 2024, 16, 2110. https://doi.org/10.3390/polym16152110
Long X, Chen Z, Li P. Seismic Performance of Corroded ECC-GFRP Spiral-Confined Reinforced-Concrete Column. Polymers. 2024; 16(15):2110. https://doi.org/10.3390/polym16152110
Chicago/Turabian StyleLong, Xu, Zehong Chen, and Pengda Li. 2024. "Seismic Performance of Corroded ECC-GFRP Spiral-Confined Reinforced-Concrete Column" Polymers 16, no. 15: 2110. https://doi.org/10.3390/polym16152110
APA StyleLong, X., Chen, Z., & Li, P. (2024). Seismic Performance of Corroded ECC-GFRP Spiral-Confined Reinforced-Concrete Column. Polymers, 16(15), 2110. https://doi.org/10.3390/polym16152110

