Retrofit of Building Façade Using Precast Sandwich Panel: An Integrated Thermal and Environmental Assessment on BIM-Based LCA
Abstract
1. Introduction
2. Precast Concrete Panel—A Critical Review
2.1. Energy Rating Tool
2.2. Regression Analysis in Energy Optimization
2.3. Monte Carlo Simulation
2.4. Life Cycle Assessment (LCA)
3. Research Methodology
3.1. Estimation of Operational Energy
3.2. Multiple Linear Regression Analysis (MLRA)
3.3. Sensitivity Indices
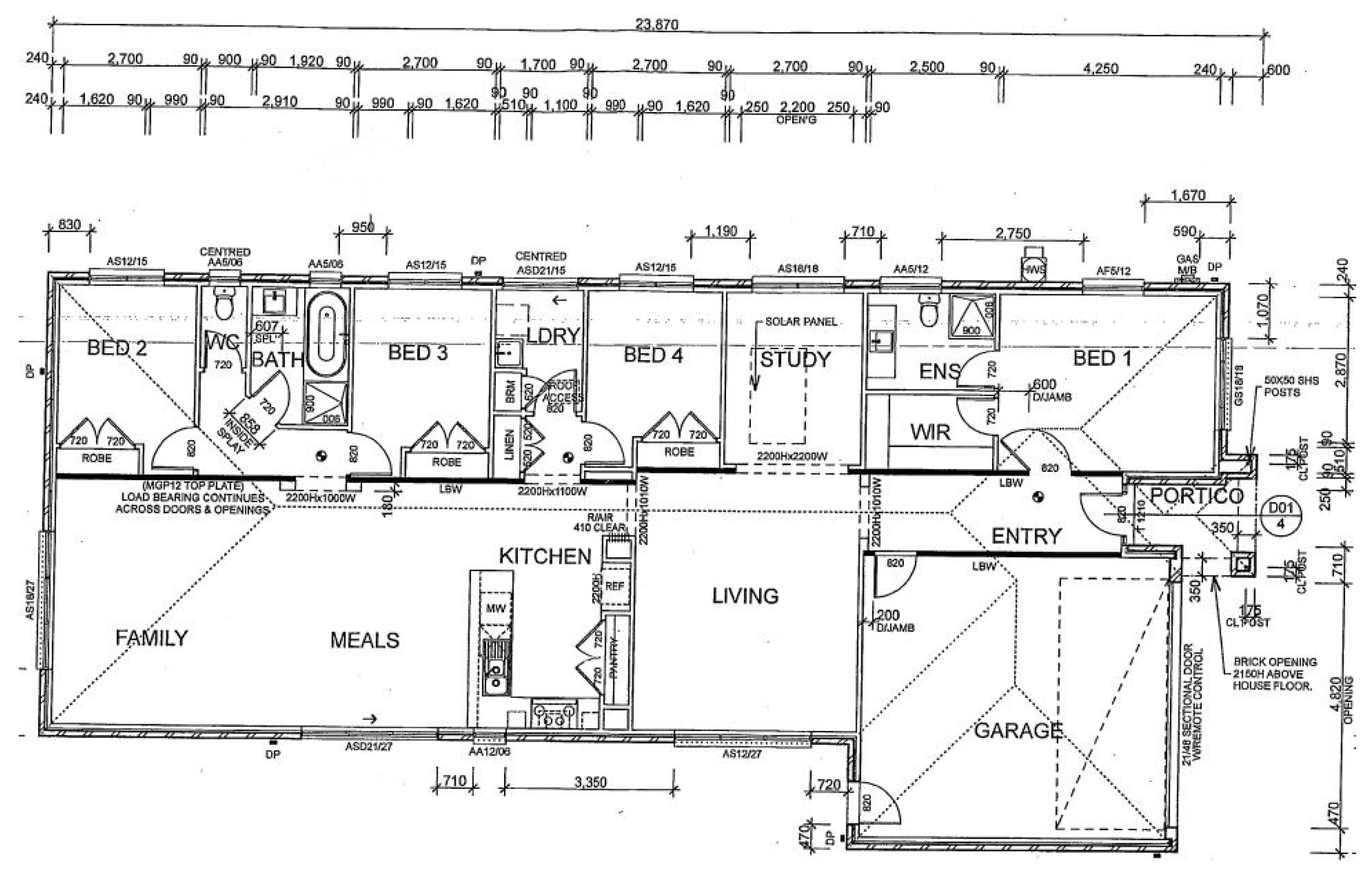
3.4. Development of Building Model
3.5. Estimation of Embodied Energy
4. Results and Discussions
4.1. Regression Model
4.2. Validation of Regression Model
4.3. Sensitivity Analysis
4.4. Life Cycle Assessment of the Entire Building
4.5. Embodied Energy Analysis
4.6. Selection of Insulation
5. Conclusions
6. Future Scope and Recommendations
Author Contributions
Funding
Data Availability Statement
Acknowledgments
Conflicts of Interest
References
- Karlsson, I.; Rootzén, J.; Johnsson, F. Reaching net-zero carbon emissions in construction supply chains–Analysis of a Swedish road construction project. Renew. Sustain. Energy Rev. 2020, 120, 109651. [Google Scholar] [CrossRef]
- Sandanayake, M.; Lokuge, W.; Zhang, G.; Setunge, S.; Thushar, Q. Greenhouse gas emissions during timber and concrete building construction—A scenario based comparative case study. Sustain. Cities Soc. 2018, 38, 91–97. [Google Scholar] [CrossRef]
- Vilches, A.; Garcia-Martinez, A.; Sanchez-Montanes, B. Life cycle assessment (LCA) of building refurbishment: A literature review. Energy Build. 2017, 135, 286–301. [Google Scholar] [CrossRef]
- Azhar, S.; Carlton, W.A.; Olsen, D.; Ahmad, I. Building information modeling for sustainable design and LEED® rating analysis. Autom. Constr. 2011, 20, 217–224. [Google Scholar] [CrossRef]
- Kuznik, F.; David, D.; Johannes, K.; Roux, J.-J. A review on phase change materials integrated in building walls. Renew. Sustain. Energy Rev. 2011, 15, 379–391. [Google Scholar] [CrossRef]
- Gregory, K.; Moghtaderi, B.; Sugo, H.; Page, A. Effect of thermal mass on the thermal performance of various Australian residential constructions systems. Energy Build. 2008, 40, 459–465. [Google Scholar] [CrossRef]
- Beckett, C.; Ciancio, D. A review of the contribution of thermal mass to thermal comfort in rammed earth structures. In Proceedings of the 2nd International Conference on Sustainable Built Environment, Kandy, Sri Lanka, 14–16 December 2012. [Google Scholar]
- Aditya, L.; Mahlia, T.; Rismanchi, B.; Ng, H.; Hasan, M.; Metselaar, H.; Muraza, O.; Aditiya, H. A review on insulation materials for energy conservation in buildings. Renew. Sustain. Energy Rev. 2017, 73, 1352–1365. [Google Scholar] [CrossRef]
- Zhu, L.; Hurt, R.; Correia, D.; Boehm, R. Detailed energy saving performance analyses on thermal mass walls demonstrated in a zero energy house. Energy Build. 2009, 41, 303–310. [Google Scholar] [CrossRef]
- Tushar, Q.; Zhang, G.; Bhuiyan, M.A.; Giustozzi, F.; Navaratnam, S.; Hou, L. An optimized solution for retrofitting building façades: Energy efficiency and cost-benefit analysis from a life cycle perspective. J. Clean. Prod. 2022, 376, 134257. [Google Scholar] [CrossRef]
- Uriarte, A.; Garai, I.; Ferdinando, A.; Erkoreka, A.; Nicolas, O.; Barreiro, E. Vacuum insulation panels in construction solutions for energy efficient retrofitting of buildings. Two Case Stud. Spain Swed. Energy Build. 2019, 197, 131–139. [Google Scholar]
- Shirazi, A.; Ashuri, B. Embodied Life Cycle Assessment (Lca) Comparison OF Residential Building Retrofit Measures in Atlanta. Build. Environ. 2020, 171, 106644. [Google Scholar] [CrossRef]
- Silva, R.; de Brito, J.; Dhir, R. Availability and processing of recycled aggregates within the construction and demolition supply chain: A review. J. Clean. Prod. 2017, 143, 598–614. [Google Scholar] [CrossRef]
- Tushar, Q.; Bhuiyan, M.A.; Zhang, G.; Maqsood, T. An integrated approach of BIM-enabled LCA and energy simulation: The optimized solution towards sustainable development. J. Clean. Prod. 2020, 289, 125622. [Google Scholar] [CrossRef]
- Insulation Council of Australia and New Zealand. Insulation Handbook, I. Part 1: Thermal Performance—Version 3, Total R-Value Calculation for Typical Building Applications. December 2016. Available online: http://icanz.org.au/wp-content/uploads/2016/12/Insulation-Handbook-Part-1-Thermal-Performance-Version-3-December-2016.pdf (accessed on 1 October 2022).
- Ding, K.W.; Wang, G.; Yin, W.Y. Application of composite sandwich panels in construction engineering. Appl. Mech. Mater. 2013, 291–294, 1172–1176. [Google Scholar] [CrossRef]
- Bhatti, A.Q. Application of dynamic analysis and modelling of structural concrete insulated panels (SCIP) for energy efficient buildings in seismic prone areas. Energy Build. 2016, 128, 164–177. [Google Scholar] [CrossRef]
- Balaji, P.; Selvan, S.A. Performance evaluation of ferro cement sandwich wall panels with different infills. Perform. Eval. 2018, 5, 1518–1524. [Google Scholar]
- Williamson, T. Assessing the effectiveness for thermal mass in the building envelop. In Proceedings of the Building Simulation 2011: 12th Conference of International Building Performance Simulation Association, Sydney, NSW, Australia, 14–16 November 2011; pp. 1655–1661. [Google Scholar]
- Huang, Q.; Hamed, E.; Gilbert, R. Experimental and Numerical Investigation of the Flexural Behaviour of Composite Prefabricated Concrete Sandwich Panels, ACMSM25; Springer: Berlin/Heidelberg, Germany, 2020; pp. 123–130. [Google Scholar]
- Kunič, R. Forest-based bioproducts used for construction and its impact on the environmental performance of a building in the whole life cycle. In Environmental Impacts of Traditional and Innovative Forest-Based Bioproducts; Springer: Berlin/Heidelberg, Germany, 2016; pp. 173–204. [Google Scholar]
- Thomas, M. Optimizing the Use of Fly Ash in Concrete; Portland Cement Association: Skokie, IL, USA, 2007. [Google Scholar]
- Seto, K.E.; Churchill, C.J.; Panesar, D.K. Influence of fly ash allocation approaches on the life cycle assessment of cement-based materials. J. Clean. Prod. 2017, 157, 65–75. [Google Scholar] [CrossRef]
- Boafo, F.E.; Kim, J.-H.; Kim, J.-T. Performance of modular prefabricated architecture: Case study-based review and future pathways. Sustainability 2016, 8, 558. [Google Scholar] [CrossRef]
- Luo, T.; Xue, X.; Tan, Y.; Wang, Y.; Zhang, Y. Exploring a body of knowledge for promoting the sustainable transition to prefabricated construction. Eng. Constr. Archit. Manag. 2020, 28, 2637–2666. [Google Scholar] [CrossRef]
- Islam, H.; Zhang, G.; Setunge, S.; Bhuiyan, M.A. Life cycle assessment of shipping container home: A sustainable construction. Energy Build. 2016, 128, 673–685. [Google Scholar] [CrossRef]
- Rosso, F.; Golasi, I.; Castaldo, V.L.; Piselli, C.; Pisello, A.L.; Salata, F.; Ferrero, M.; Cotana, F.; de Lieto Vollaro, A. On the impact of innovative materials on outdoor thermal comfort of pedestrians in historical urban canyons. Renew. Energy 2018, 118, 825–839. [Google Scholar] [CrossRef]
- Enescu, D. A review of thermal comfort models and indicators for indoor environments. Renew. Sustain. Energy Rev. 2017, 79, 1353–1379. [Google Scholar] [CrossRef]
- Ascione, F.; Bianco, N.; de Stasio, C.; Mauro, G.M.; Vanoli, G.P. Multi-stage and multi-objective optimization for energy retrofitting a developed hospital reference building: A new approach to assess cost-optimality. Appl. Energy 2016, 174, 37–68. [Google Scholar] [CrossRef]
- Islam, H.; Bhuiyan, M.; Tushar, Q.; Navaratnam, S.; Zhang, G. Effect of Star Rating Improvement of Residential Buildings on Life Cycle Environmental Impacts and Costs. Buildings 2022, 12, 1605. [Google Scholar] [CrossRef]
- JHygh, S.; DeCarolis, J.F.; Hill, D.B.; Ranjithan, S.R. Multivariate regression as an energy assessment tool in early building design. Build. Environ. 2012, 57, 165–175. [Google Scholar]
- O’Leary, T. Industry Adaption to NatHERs 6 Star Energy Regulations and Energy Performance Disclosure Models for Housing. Ph.D. Thesis, University of South Australia, Port Augusta, SA, Australia, December 2016. Available online: https://rest.neptune-prod.its.unimelb.edu.au/server/api/core/bitstreams (accessed on 1 October 2022).
- Rajagopalan, P.; Wong, J.P.; Andamon, M.M. Building performance simulation in the built environment education: Experience from teaching two disciplines. In Proceedings of the 50th International Conference of the Architectural Science Association, Adelaide, Australia, 7–9 December 2016; pp. 359–368. [Google Scholar]
- Bruhns, A.; Deurveilher, G.; Roy, J.-S. A non linear regression model for mid-term load forecasting and improvements in seasonality. In Proceedings of the 15th Power Systems Computation Conference, Liege, Belgium, 22–26 August 2005; pp. 22–26. [Google Scholar]
- Tushar, Q.; Bhuiyan, M.A.; Zhang, G. Energy simulation and modeling for window system: A comparative study of life cycle assessment and life cycle costing. J. Clean. Prod. 2021, 330, 129936. [Google Scholar] [CrossRef]
- Catalina, T.; Virgone, J.; Blanco, E. Development and validation of regression models to predict monthly heating demand for residential buildings. Energy Build. 2008, 40, 1825–1832. [Google Scholar] [CrossRef]
- Li, D.; Wong, S.L.; Cheung, K.L. Energy performance regression models for office buildings with daylighting controls. Proc. Inst. Mech. Eng. Part A J. Power Energy 2008, 222, 557–568. [Google Scholar] [CrossRef]
- Carlo, J.; Lamberts, R. Development of envelope efficiency labels for commercial buildings: Effect of different variables on electricity consumption. Energy Build. 2008, 40, 2002–2008. [Google Scholar] [CrossRef]
- Bansal, N.K.; Bhattacharya, A. Parametric equations for energy and load estimations for buildings in India. Appl. Therm. Eng. 2009, 29, 3710–3715. [Google Scholar] [CrossRef]
- Lam, J.C.; Hui, S.C.; Chan, A.L. Regression analysis of high-rise fully air-conditioned office buildings. Energy Build. 1997, 26, 189–197. [Google Scholar] [CrossRef]
- JLam, C.; Wan, K.K.; Liu, D.; Tsang, C. Multiple regression models for energy use in air-conditioned office buildings in different climates. Energy Convers. Manag. 2010, 51, 2692–2697. [Google Scholar]
- Iman, R.L. Latin Hypercube Sampling; Wiley: Hoboken, NJ, USA, 2014. [Google Scholar]
- Tushar, Q.; Santos, J.; Zhang, G.; Bhuiyan, M.A.; Giustozzi, F. Recycling waste vehicle tyres into crumb rubber and the transition to renewable energy sources: A comprehensive life cycle assessment. J. Environ. Manag. 2022, 323, 116289. [Google Scholar] [CrossRef]
- Paxton, P.; Curran, P.J.; Bollen, K.A.; Kirby, J.; Chen, F. Monte Carlo experiments: Design and implementation. Struct. Equ. Modeling 2001, 8, 287–312. [Google Scholar] [CrossRef]
- Landau, D.P.; Binder, K. A Guide to Monte Carlo Simulations in Statistical Physics; Cambridge University Press: Cambridge, UK, 2014. [Google Scholar]
- Feizizadeh, B.; Jankowski, P.; Blaschke, T. A GIS based spatially-explicit sensitivity and uncertainty analysis approach for multi-criteria decision analysis. Comput. Geosci. 2014, 64, 81–95. [Google Scholar] [CrossRef]
- Sun, Y.; Gu, L.; Wu, C.J.; Augenbroe, G. Exploring HVAC system sizing under uncertainty. Energy Build. 2014, 81, 243–252. [Google Scholar] [CrossRef]
- Spitz, C.; Mora, L.; Wurtz, E.; Jay, A. Practical application of uncertainty analysis and sensitivity analysis on an experimental house. Energy Build. 2012, 55, 459–470. [Google Scholar] [CrossRef]
- Tushar, Q.; Bhuiyan, M.; Zhang, G.; Sandanayake, M. Correlation of Building Parameters with Energy Reduction. In Proceedings of the 2018 5th Asia-Pacific World Congress on Computer Science and Engineering (APWC on CSE), Nadi, Fiji, 10–12 December 2018; pp. 116–120. [Google Scholar]
- Cabeza, L.F.; Rincón, L.; Vilariño, V.; Pérez, G.; Castell, A. Life cycle assessment (LCA) and life cycle energy analysis (LCEA) of buildings and the building sector: A review. Renew. Sustain. Energy Rev. 2014, 29, 394–416. [Google Scholar] [CrossRef]
- Huntzinger, D.N.; Eatmon, T.D. A life-cycle assessment of Portland cement manufacturing: Comparing the traditional process with alternative technologies. J. Clean. Prod. 2009, 17, 668–675. [Google Scholar] [CrossRef]
- Zhang, G.; Sandanayake, M.; Setunge, S.; Li, C.; Fang, J. Selection of emission factor standards for estimating emissions from diesel construction equipment in building construction in the Australian context. J. Environ. Manag. 2017, 187, 527–536. [Google Scholar] [CrossRef]
- Notarnicola, B.; Sala, S.; Anton, A.; McLaren, S.J.; Saouter, E.; Sonesson, U. The role of life cycle assessment in supporting sustainable agri-food systems: A review of the challenges. J. Clean. Prod. 2017, 140, 399–409. [Google Scholar] [CrossRef]
- Peng, C. Calculation of a building’s life cycle carbon emissions based on Ecotect and building information modeling. J. Clean. Prod. 2016, 112, 453–465. [Google Scholar] [CrossRef]
- Ji, Y.; Qi, K.; Qi, Y.; Li, Y.; Li, H.X.; Lei, Z.; Liu, Y. BIM-based life-cycle environmental assessment of prefabricated buildings. Eng. Constr. Archit. Manag. 2020, 27, 1703–1725. [Google Scholar] [CrossRef]
- Yang, X.; Hu, M.; Wu, J.; Zhao, B. Building-information-modeling enabled life cycle assessment, a case study on carbon footprint accounting for a residential building in China. J. Clean. Prod. 2018, 183, 729–743. [Google Scholar] [CrossRef]
- Wastiels, L.; Decuypere, R. Identification and comparison of LCA-BIM integration strategies. In IOP Conference Series: Earth and Environmental Science; IOP Publishing: Bristol, UK, 2019; p. 012101. [Google Scholar]
- Meex, E.; Hollberg, A.; Knapen, E.; Hildebrand, L.; Verbeeck, G. Requirements for applying LCA-based environmental impact assessment tools in the early stages of building design. Build. Environ. 2018, 133, 228–236. [Google Scholar] [CrossRef]
- Hu, Z.-Z.; Zhang, X.-Y.; Wang, H.-W.; Kassem, M. Improving interoperability between architectural and structural design models: An industry foundation classes-based approach with web-based tools. Autom. Constr. 2016, 66, 29–42. [Google Scholar] [CrossRef]
- Böhms, H.; Plokker, W.; Charvier, B.; Madrazo, L.; Sicilia, A. IntUBE energy information integration platform. In Proceedings of the 8th European Conference on Product and Process Modelling (ECPPM), Cork, Ireland, 12–14 September 2010; pp. 339–344. [Google Scholar]
- Al-Ghamdi, S.G.; Bilec, M.M. Green building rating systems and whole-building life cycle assessment: Comparative study of the existing assessment tools. J. Archit. Eng. 2017, 23, 04016015. [Google Scholar] [CrossRef]
- Najjar, M.; Figueiredo, K.; Palumbo, M.; Haddad, A. Integration of BIM and LCA: Evaluating the environmental impacts of building materials at an early stage of designing a typical office building. J. Build. Eng. 2017, 14, 115–126. [Google Scholar] [CrossRef]
- Santos, R.; Costa, A.A. Information Integration and Interoperability for BIM-Based Life-Cycle Assessment, Integrating Information in Built Environments; Routledge: London, UK, 2017; pp. 91–108. [Google Scholar]
- Bueno, C.; Fabricio, M.M. Comparative analysis between a complete LCA study and results from a BIM-LCA plug-in. Autom. Constr. 2018, 90, 188–200. [Google Scholar] [CrossRef]
- GhaffarianHoseini, A.; Zhang, T.; Nwadigo, O.; GhaffarianHoseini, A.; Naismith, N.; Tookey, J.; Raahemifar, K. Application of nD BIM Integrated Knowledge-based Building Management System (BIM-IKBMS) for inspecting post-construction energy efficiency. Renew. Sustain. Energy Rev. 2017, 72, 935–949. [Google Scholar] [CrossRef]
- Mora, T.D.; Bolzonello, E.; Peron, F.; Carbonari, A. Integration of LCA tools in BIM toward a regenerative design. In Proceedings of the PLEA 2018 Hong Kong, Honk Kong, China, 10–12 December 2018; pp. 341–346. [Google Scholar]
- Lu, W.; Yuan, H. Investigating waste reduction potential in the upstream processes of offshore prefabrication construction. Renew. Sustain. Energy Rev. 2013, 28, 804–811. [Google Scholar] [CrossRef]
- Tushar, Q.; Bhuiyan, M.A.; Zhang, G.; Maqsood, T.; Tasmin, T. Application of a harmonized life cycle assessment method for supplementary cementitious materials in structural concrete. Constr. Build. Mater. 2022, 316, 125850. [Google Scholar] [CrossRef]
- Martínez-Rocamora, A.; Solís-Guzmán, J.; Marrero, M. LCA databases focused on construction materials: A review. Renew. Sustain. Energy Rev. 2016, 58, 565–573. [Google Scholar] [CrossRef]
- Yaragal, S.C.; Teja, D.C.; Shaffi, M. Performance studies on concrete with recycled coarse aggregates. Adv. Concr. Constr. 2016, 4, 263. [Google Scholar] [CrossRef]
- Yagoob, N.M.A.E.R. Design of High Compressive Strength Concrete Mix without Additives; Sudan University of Science & Technology: Kharthum, Sudan, 2017. [Google Scholar]
- GAbreu, B.d.; Costa, S.M.M.; Gumieri, A.G.; Calixto, J.M.F.; França, F.C.; Silva, C.; Quinõnes, A.D. Mechanical properties and microstructure of high performance concrete containing stabilized nano-silica. Matéria 2017, 22. [Google Scholar] [CrossRef]
- Lin, X.; Zhang, Y.; Pathak, P. Nonlinear Finite Element Analysis of Composite and Reinforced Concrete Beams; Woodhead Publishing: Thorston, UK, 2019. [Google Scholar]
- Mazzuca, P.; Firmo, J.P.; Correia, J.R.; Garrido, M. Mechanical behaviour in shear and compression of polyurethane foam at elevated temperature. J. Sandw. Struct. Mater. 2022, 24, 1429–1448. [Google Scholar] [CrossRef]






| Type of Area | Area (m2) |
| Net conditioned floor area (NCFA) | 181.0 |
| Unconditioned room area | 7.7 |
| Garage area | 39.4 |
| Total gross floor area | 228.1 |
| Building façade components | Area (m2) |
| External Brick Veneer (BV) wall | 161.0 |
| Internal plasterboard stud wall | 183.8 |
| Concrete Slab on Ground (CSOG) floor | 228.2 |
| Windows (Aluminium Single Glaze Clear) | 50.74 |
| Model Summary | ||||||
| Model | R | R Square | Adjusted R square | Standard Error of the Estimate | R Square Change | F change |
| Melbourne_BV | 0.991 | 0.981 | 0.980 | 7.7285 | 0.981 | 660.566 |
| ANOVA | ||||||
| Model | Indicators | Sum of Squares | df | Mean Square | F | Sig. |
| Melbourne_BV | Regression | 78,911.513 | 2 | 39,455.75 | 660.566 | 0.000 |
| Residual | 1493.255 | 25 | 59.73 | |||
| Total | 80,404.767 | 27 | ||||
| Coefficients | ||||||
| Model | Indicators | Unstandardized Coefficients | Standardized Coefficients | t | Sig. p-value | |
| B | Standard Error | Beta | ||||
| Melbourne_BV | Constant | 105.239 | 5.154 | 20.420 | 0.000 | |
| WWR | 2.653 | 0.078 | 0.932 | 34.193 | 0.000 | |
| R | (−)18.005 | 1.461 | 0.336 | (−)12.328 | 0.000 | |
| Traditional Brick Veneer (BV) Construction | Precast Construction | Prefabricated Sandwich Panel Construction | |
|---|---|---|---|
| Melbourne (cold temperate) | 98.0% | 97.2% | 97.4% |
| Darwin (hot temperate) | 99.7% | 99.5% | 99.6% |
| Perth (warm temperate) | 99.5% | 99.2% | 99.4% |
| Feature Climatic Zones | Cold Temperate Melbourne | Hot Temperate Darwin | Warm Temperate Perth | ||||||
|---|---|---|---|---|---|---|---|---|---|
| Building components | Brick veneer | Sandwich panel | Precast panel | Brick veneer | Sandwich panel | Precast panel | Brick veneer | Sandwich panel | Precast panel |
| Standardized Coefficients Beta | |||||||||
| WWR | 0.932 | 0.905 | 0.902 | 0.993 | 0.986 | 0.985 | 0.992 | 0.989 | 0.984 |
| R | −0.336 | −0.395 | −0.399 | −0.103 | −0.152 | −0.161 | −0.105 | −0.129 | −0.155 |
| Sensitivity indices for heating-cooling load | |||||||||
| Mean (µ) | 174.11 | 177.99 | 182.98 | 622.06 | 642.47 | 649.08 | 159.06 | 160.80 | 168.20 |
| Std (σ) | 54.01 | 52.50 | 53.97 | 143.64 | 140.69 | 142.96 | 64.07 | 58.03 | 60.22 |
| Coeff. of Var (CV) | 0.31 | 0.29 | 0.29 | 0.23 | 0.22 | 0.22 | 0.40 | 0.36 | 0.36 |
| 5th Percentile | 85.29 | 91.97 | 94.51 | 385.71 | 410.38 | 414.64 | 53.68 | 65.34 | 68.95 |
| 95th Percentile | 263.17 | 264.11 | 271.79 | 858.13 | 874.33 | 884.12 | 264.37 | 256.19 | 267.24 |
| Traditional Brick Veneer (BV) Construction | Prefabricated Concrete Panel Construction | ||||||
|---|---|---|---|---|---|---|---|
| CSI Division | Total Mass | Global Warming Potential (kgCO2eq) | Primary Energy Demand (MJ) | CSI Division | Total Mass | Global Warming Potential (kgCO2-eq) | Primary Energy Demand (MJ) |
| 03—Concrete | 52,047.82 (34.89%) | 14,320.95 (19.54%) | 122,952.6 (10.65%) | 03—Concrete | 142,887.4 (84.31%) | 40,487.43 (53.27%) | 262,635.8 (27.25%) |
| Cast-in-place concrete; slab on grade (100 mm) | 52,047.82 | 14,320.95 | 122,952.6 | Precast concrete structural panel (100 mm) | 142,887.4 | 40,487.43 | 262,635.8 |
| 04—Masonry | 48,082.9 (32.23%) | 16,363.22 (22.33%) | 257,041.6 (22.26%) | ||||
| Brick (110 mm); generic; grouted | 48,082.9 | 16,363.22 | 257,041.6 | ||||
| 07—Thermal and Moisture Protection | 24,945.31 (16.72%) | 11,994.77 (16.37%) | 241,479.7 (20.91%) | 07—Thermal and Moisture Protection | 2489.285 (1.47%) | 4932.688 (6.49%) | 168,138.9 (17.45%) |
| Asphalt felt sheet | 868.7182 | 371.9096 | 28,039.84 | Asphalt felt sheet | 868.7702 | 371.9318 | 28,041.52 |
| Concrete roofing tile | 22,454.39 | 7057.362 | 73,197.19 | Extruded polystyrene (XPS); board | 1423.789 | 4011.965 | 124,010.9 |
| Extruded polystyrene (XPS); board | 1425.206 | 4015.957 | 124,134.3 | Polyethelene sheet vapor barrier (HDPE) | 196.7254 | 548.7912 | 16,086.48 |
| Polyethelene sheet vapor barrier (HDPE) | 196.9934 | 549.5387 | 16,108.39 | ||||
| 08—Openings and Glazing | 6498.197 (4.36%) | 10,776.22 (14.70%) | 188,390.9 (16.31%) | 08—Openings and Glazing | 6498.197 (3.83%) | 10,776.22 (14.18%) | 188,390.9 (19.55%) |
| Door frame; wood | 255.1965 | 1305.936 | 38,122.41 | Door frame; wood | 255.1965 | 1305.936 | 38,122.41 |
| Door; exterior; wood; solid core | 3230.371 | 4371.319 | 72,576.51 | Door; exterior; wood; solid core | 3230.371 | 4371.319 | 72,576.51 |
| Glazing; double-pane IGU | 1617.17 | 2424.472 | 36,185.7 | Glazing; double-pane IGU | 1617.17 | 2424.472 | 36,185.7 |
| Glazing; monolithic sheet | 978.075 | 1231.856 | 17,323.43 | Glazing; monolithic sheet | 978.075 | 1231.856 | 17,323.43 |
| Window frame; aluminum | 417.384 | 1442.636 | 24,182.85 | Window frame; aluminum | 417.384 | 1442.636 | 24,182.85 |
| 09—Finishes | 17,623.79 (11.81%) | 19,835.6 (27.06%) | 344,990.5 (29.87%) | 09—Finishes | 17,607.84 (10.39%) | 19,811.88 (26.07%) | 344,580.5 (35.75%) |
| Carpet; nylon; generic | 3721.684 | 14,187.54 | 242,416.7 | Carpet; nylon; generic | 3716.622 | 14,168.24 | 242,087 |
| Wall board; gypsum | 13,902.1 | 5648.061 | 102,573.8 | Wall board; gypsum | 13,891.22 | 5643.639 | 102,493.5 |
| Grand Total | 149,198 | 73,290.76 | 1,154,855 | Grand Total | 169,482.7 | 76,008.21 | 963,746.1 |
| Wall Components (Precast Concrete Structural Panel and Brick Veneer) | AP (kgSO2-eq) | EP (kgN-eq) | GWP (kgCO2-eq) | ODP (CFC-11eq) | SFP (kgO3-eq) | PED (MJ) | NRED (MJ) | RED (MJ) | |
|---|---|---|---|---|---|---|---|---|---|
| 100 mm structural panel | Precast concrete structural panel; 5000 psi; 0% fly ash: reinforcement 28 kg/m3 | 51.52 | 1.81 | 10,893 | 7.08 × 10−5 | 702.20 | 70,663 | 68,724 | 1946 |
| −30.2% | 57.6% | 33.4% | −24,567% | −1.1% | 72.5% | 72.1% | 81.7% | ||
| Precast concrete structural panel; 5000 psi; 25% fly ash: reinforcement 28 kg/m3 | 41.13 | 1.62 | 9037 | 5.45 × 10−5 | 573.10 | 64,709 | 62,750 | 1966 | |
| −3.95% | 62.1% | 44.7% | −18,878% | 17.5% | 74.8% | 74.5% | 81.5% | ||
| Precast concrete structural panel; 5000 psi; 30% fly ash: reinforcement 28 kg/m3 | 39.05 | 1.58 | 8666 | 5.14 × 10−5 | 547.28 | 63,519 | 61,555 | 1971 | |
| 1.29% | 63% | 47% | −17,820% | 21.2% | 75.2% | 75.0% | 81.5% | ||
| Precast concrete structural panel; 5000 psi; 50% fly ash: reinforcement 28 kg/m3 | 31.81 | 1.53 | 7402 | 3.83 × 10−5 | 477.75 | 61,901 | 59,892 | 2036 | |
| 19.6% | 64.3% | 54.7% | −13,256% | 31.2% | 75.9% | 75.7% | 80.9% | ||
| 125 mm structural panel | Precast concrete structural panel; 5000 psi; 0% fly ash: reinforcement 28 kg/m3 | 64.39 | 2.27 | 13,615 | 8.85 × 10−5 | 878 | 88,316 | 85,893 | 2433 |
| −62.7% | 47% | 16.8% | −30,729% | −26.3% | 65.6% | 65.1% | 77.1% | ||
| Precast concrete structural panel; 5000 psi; 25% fly ash: reinforcement 28 kg/m3 | 51.41 | 2.03 | 11,296 | 6.81 × 10−5 | 716 | 80,875 | 78,427 | 2458 | |
| −29.9% | 52.6% | 30.9% | −23,619% | −3.1% | 68.5% | 68.2% | 76.9% | ||
| Precast concrete structural panel; 5000 psi; 30% fly ash: reinforcement 28 kg/m3 | 48.81 | 1.98 | 10,832 | 6.43 × 10−5 | 684 | 79,387 | 76,933 | 2463 | |
| −23.3% | 53.8% | 33.8% | −22,296% | 1.6% | 69.1% | 68.8% | 76.8% | ||
| Precast concrete structural panel; 5000 psi; 50% fly ash: reinforcement 28 kg/m3 | 38.42 | 1.79 | 8977 | 4.79 × 10−5 | 555 | 73,434 | 70,960 | 2484 | |
| −2.8% | 58.2% | 45.1% | −16,592% | 20.1% | 71.4% | 71.2% | 76.7% | ||
| Base case | 110 mm brick veneer (BV) wall; generic; grouted 2000 kg/m3 | 39.57 | 4.28 | 16,363 | 2.87 × 10−7 | 695 | 257,042 | 246,437 | 10,663 |
| Floor Components (Precast Concrete Structural Panel and Cast-in-Place Concrete) and Impact Assessment in Terms of kg Equivalent | AP (SO2-eq) | EP (N-eq) | GWP (CO2-eq) | ODP (CFC-11eq) | SFP (O3-eq) | PED (MJ) | NRED (MJ) | RED (MJ) | |
|---|---|---|---|---|---|---|---|---|---|
| 100 mm structural panel | Precast concrete structural panel; 5000 psi; 0% fly ash: reinforcement 28 kg/m3 | 69.98 | 2.46 | 14,796 | 9.62 × 10−5 | 954 | 95,981 | 93,347 | 2644 |
| −9.6% | 38.5% | −3.3% | 15.7% | −6.1% | 21.9% | 21.6% | 30.4% | ||
| Precast concrete structural panel; 5000 psi; 25% fly ash: reinforcement 28 kg/m3 | 55.87 | 2.20 | 12,276 | 7.40 × 10−5 | 778 | 87,894 | 85,233 | 2672 | |
| 12.4% | 45.1% | 14.2% | 35.1% | 13.3% | 28.5% | 28.4% | 29.7% | ||
| Precast concrete structural panel; 5000 psi; 30% fly ash: reinforcement 28 kg/m3 | 53.05 | 2.15 | 11,772 | 6.99 × 10−5 | 743 | 86,276 | 83,610 | 2677 | |
| 16.8% | 46.4% | 17.8% | 38.7% | 17.2% | 29.8% | 29.8% | 29.5% | ||
| Precast concrete structural panel; 5000 psi; 50% fly ash: reinforcement 28 kg/m3 | 43.21 | 2.08 | 10,054 | 5.21× 10−5 | 649 | 84,078 | 81,351 | 2765 | |
| 32.2% | 48.2% | 29.7% | 54.3% | 27.7% | 31.6% | 31.7% | 27.2% | ||
| 125 mm structural panel | Precast concrete structural panel,5000 psi; 0% fly ash: reinforcement 28 kg/m3 | 87.77 | 3.09 | 18,558 | 1.21 × 10−4 | 1196 | 120,385 | 117,082 | 3316 |
| −37.5% | 22.9% | −29.5% | −5.7% | −33.1% | 2.0% | 1.7% | 12.7% | ||
| Precast concrete structural panel; 5000 psi; 25% fly ash: reinforcement 28 kg/m3 | 70.07 | 2.76 | 15,397 | 9.28 × 10−5 | 976 | 110,241 | 106,904 | 3351 | |
| −9.82% | 31.1% | −7.5% | 18.6% | −8.6% | 10.3% | 10.2% | 11.8% | ||
| Precast concrete structural panel; 5000 psi; 30% fly ash: reinforcement 28 kg/m3 | 66.53 | 2.70 | 14,765 | 8.76 × 10−5 | 932 | 108,213 | 104,868 | 3358 | |
| −4.2% | 32.7% | −3.1% | 23.2% | −3.7% | 11.9% | 12.0% | 11.6% | ||
| Precast concrete structural panel; 5000 psi; 50% fly ash: reinforcement 28 kg/m3 | 52.38 | 2.44 | 12,236 | 6.53 × 10−5 | 756 | 100,098 | 96,726 | 3386 | |
| 17.9% | 39.2% | 14.5% | 42.7% | 15.8% | 18.5% | 18.8% | 10.9% | ||
| 100 mm cast-in-situ | Cast-in-place concrete; 3000 psi; 0% fly ash; low reinforcement 43.62 kg/m3 | 63.81 | 4.01 | 14,321 | 1.14 × 10−4 | 898 | 122,953 | 119,165 | 3802 |
| 0% | 0% | 0% | 0% | 0% | 0% | 0% | 0% | ||
| Cast-in-place concrete; 3000 psi; 25% fly ash; low reinforcement 43.62 kg/m3 | 52.12 | 3.79 | 12,234 | 9.58 × 10−5 | 753 | 116,255 | 112,445 | 3825 | |
| 18.3% | 5.4% | 14.5% | 16.0% | 16.1% | 5.4% | 5.6% | −0.6% | ||
| Cast-in-place concrete; 3000 psi; 30% fly ash; low reinforcement 43.62 kg/m3 | 49.79 | 3.75 | 11,816 | 9.23 × 10−5 | 724 | 114,916 | 111,101 | 3829 | |
| 21.9% | 6.4% | 17.4% | 19.1% | 19.4% | 6.5% | 6.7% | −0.7% | ||
| Cast-in-place concrete; 3000 psi; 50% fly ash; low reinforcement 43.62 kg/m3 | 40.44 | 3.58 | 10,147 | 7.75 × 10−5 | 608 | 109,558 | 105,724 | 3847 | |
| 36.6% | 10.7% | 29.1% | 32.0% | 32.3% | 10.8% | 11.2% | −1.2% | ||
| Cast-in-place concrete; 3000 psi; 50% fly ash; moderate reinforcement 87.24 kg/m3 | 44.25 | 3.79 | 11,478 | 8.99 × 10−5 | 659 | 126,900 | 120,655 | 6263 | |
| 30.6% | 5.5% | 19.8% | 21.1% | 26.6% | −3.2% | −1.2% | −64.7% | ||
| Cast-in-place concrete; 3000 psi; 50% fly ash; high reinforcement 130.86 kg/m3 | 48.05 | 4.00 | 12,808 | 1.02 × 10−4 | 711 | 144,243 | 135,586 | 8678 | |
| 24.7% | 0.3% | 10.5% | 10.3% | 20.9% | −17.3% | −13.7% | −128% | ||
| 100 mm cast-in-situ | Cast-in-place concrete; 5000 psi; 0% fly ash; low reinforcement 44.40 kg/m3 | 71.16 | 2.53 | 15,244 | 1.00 × 10−4 | 970 | 102,144 | 98,616 | 3539 |
| −11.5% | 36.8% | −6.4% | 11.9% | −7.9% | 16.9% | 17.2% | 6.9% | ||
| Cast-in-place concrete; 5000 psi; 25% fly ash; low reinforcement 44.40 kg/m3 | 57.10 | 2.27 | 12,732 | 7.84 × 10−5 | 795 | 94,084 | 90,529 | 3566 | |
| 10.5% | 43.3% | 11.0% | 31.3% | 11.5% | 23.4% | 24.0% | 6.1% | ||
| Cast-in-place concrete; 5000 psi; 30% fly ash; low reinforcement 44.40 kg/m3 | 54.29 | 2.22 | 12,230 | 7.42 × 10−5 | 760 | 92,472 | 88,912 | 3572 | |
| 14.9% | 44.6% | 14.6% | 34.9% | 15.4% | 24.7% | 25.3% | 6.0% | ||
| Cast-in-place concrete; 5000 psi; 50% fly ash; low reinforcement 44.40 kg/m3 | 43.04 | 2.02 | 10,221 | 5.65 × 10−5 | 620 | 86,024 | 82,442 | 3594 | |
| 32.5% | 49.7% | 28.6% | 50.4% | 30.9% | 30.0% | 30.8% | 5.4% | ||
| Cast-in-place concrete; 5000 psi; 50% fly ash; moderate reinforcement 88.80 kg/m3 | 46.90 | 2.23 | 11,569 | 6.90 × 10−5 | 672 | 103,593 | 97,567 | 6041 | |
| 26.5% | 44.5% | 19.2% | 39.4% | 25.2% | 15.7% | 18.1% | −58.8% | ||
| Cast-in-place concrete; 5000 psi; 50% fly ash; high reinforcement 133.2 kg/m3 | 50.75 | 2.44 | 12,917 | 8.16 × 10−5 | 724 | 121,162 | 112,693 | 8487 | |
| 20.4% | 39.2% | 9.8% | 28.4% | 19.4% | 1.4% | 5.4% | −123% | ||
| Base | Cast-in-place concrete; 3000 psi; 0% fly ash; low reinforcement 43.62 kg/m3 | 63.81 | 4.01 | 14,321 | 1.14 × 10−4 | 898 | 122,953 | 119,165 | 3802 |
| Insulation Level to Achieve R (2.5) | AP (kgSO2-eq) | EP (kgN-eq) | GWP (kgCO2-eq) | ODP (CFC-11eq) | SFP (kgO3-eq) | PED (MJ) | NRED (MJ) | RED (MJ) | Mass (Kg) |
|---|---|---|---|---|---|---|---|---|---|
| Cellulose insulation; blown (52 kg/m3) (100 mm) | 15.5 | 6.9 | 2051 | −9.11× 10−9 | 92 | 12,961 | 10,830 | 2148 | 2548 |
| Closed cell; spray-applied polyurethane foam; high density (42 kg/m3) (100 mm) | 29.6 | 3.3 | 17,609 | 2.16 × 10−4 | 376 | 184,952 | 180,522 | 4448 | 2039 |
| Cellulose insulation; boards (70 kg/m3) | 12.1 | 5.7 | 2239 | 1.01 × 10−7 | 120 | 41,258 | 24,824 | 16,441 | 3504 |
| Glass fibre board (20 kg/m3) (110 mm) | 73.4 | 3.6 | 12,427 | 8.52 × 10−4 | 812 | 206,013 | 191,023 | 14,994 | 971 |
| Extruded Polystyrene board (XPS); Pentane foaming agent (29 kg/m3) (70 mm) | 10.9 | 5.2 | 4022 | 2.61 × 10−7 | 174 | 124,319 | 121,151 | 3181 | 1427 |
| Expanded polystyrene (EPS); board (25 kg/m3) (98 mm) | 10.9 | 4.7 | 3923 | 1.51 × 10−4 | 224 | 114,145 | 112,912 | 1245 | 1248 |
Publisher’s Note: MDPI stays neutral with regard to jurisdictional claims in published maps and institutional affiliations. |
© 2022 by the authors. Licensee MDPI, Basel, Switzerland. This article is an open access article distributed under the terms and conditions of the Creative Commons Attribution (CC BY) license (https://creativecommons.org/licenses/by/4.0/).
Share and Cite
Tushar, Q.; Zhang, G.; Bhuiyan, M.A.; Navaratnam, S.; Giustozzi, F.; Hou, L. Retrofit of Building Façade Using Precast Sandwich Panel: An Integrated Thermal and Environmental Assessment on BIM-Based LCA. Buildings 2022, 12, 2098. https://doi.org/10.3390/buildings12122098
Tushar Q, Zhang G, Bhuiyan MA, Navaratnam S, Giustozzi F, Hou L. Retrofit of Building Façade Using Precast Sandwich Panel: An Integrated Thermal and Environmental Assessment on BIM-Based LCA. Buildings. 2022; 12(12):2098. https://doi.org/10.3390/buildings12122098
Chicago/Turabian StyleTushar, Quddus, Guomin Zhang, Muhammed A. Bhuiyan, Satheeskumar Navaratnam, Filippo Giustozzi, and Lei Hou. 2022. "Retrofit of Building Façade Using Precast Sandwich Panel: An Integrated Thermal and Environmental Assessment on BIM-Based LCA" Buildings 12, no. 12: 2098. https://doi.org/10.3390/buildings12122098
APA StyleTushar, Q., Zhang, G., Bhuiyan, M. A., Navaratnam, S., Giustozzi, F., & Hou, L. (2022). Retrofit of Building Façade Using Precast Sandwich Panel: An Integrated Thermal and Environmental Assessment on BIM-Based LCA. Buildings, 12(12), 2098. https://doi.org/10.3390/buildings12122098

