Experimental Study and Numerical Simulation for the Seismic Performance of an Innovative Connection between a Flat CFST Column and an H Beam
Abstract
:1. Introduction
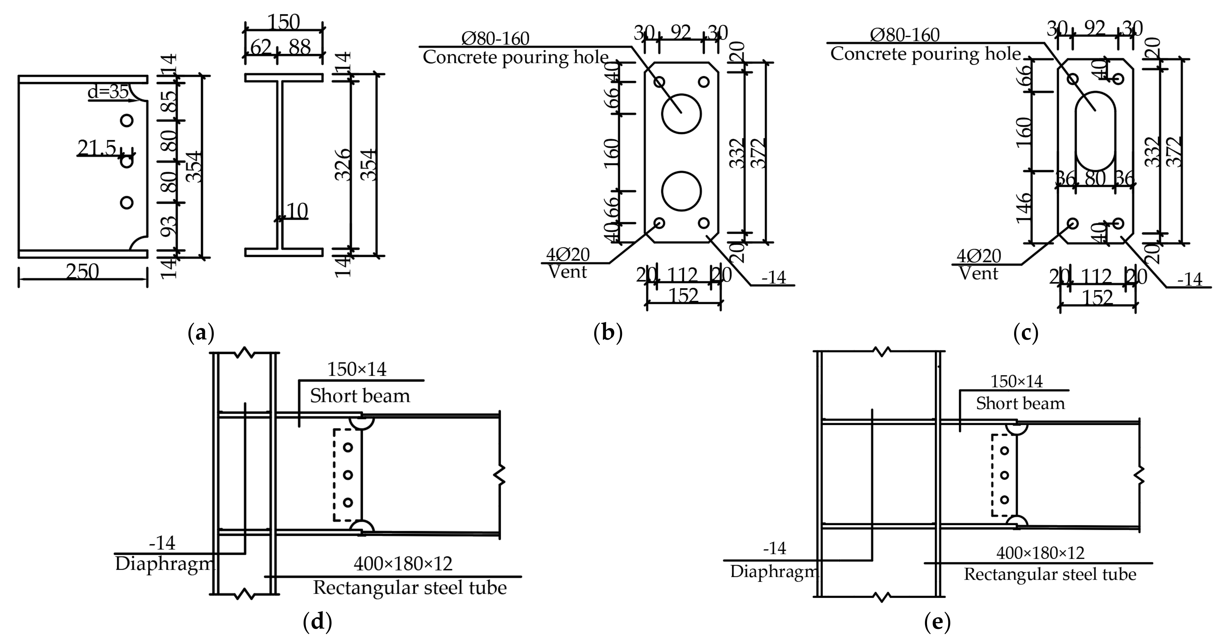
2. Proof for the Innovative Connection
3. Experimental Study
3.1. Test Specimens and Material Properties
3.2. Test Setup and Loading Program
3.3. Instrumentation
4. Test Results and Discussion
4.1. General Observations and Failure Mode
4.2. Load-Displacement Hysteretic Curves
4.3. Envelope Curve
4.4. Ductility and Energy Dissipation
4.5. Strain Response
5. Finite Element Modeling and Validation
5.1. Finite Element Modeling
5.2. Validations of the Developed FEM
6. Conclusions
- (1)
- The hysteresis curve of the innovative connection with a reinforced short beam and an interior diaphragm is plump under an earthquake, indicating that the connection has good deformation capacity and energy dissipation capacity.
- (2)
- The failure mode of the connection is the tearing of the base metal of the flange of the H beam. The presence of the reinforced short beam and the interior diaphragm can effectively move the plastic hinge outward. The “strong column weak beam” seismic design strategy can be satisfied.
- (3)
- The seismic performances, including the hysteretic curves, ductility, and energy dissipation capacities of specimens S-CFT-A and S-CFT-B were basically the same. The eccentricity of the beam had less influence on the seismic performance of the connection when the beam was connected to the strong axis of the column.
- (4)
- When the beam is connected to the weak axis of the flat CFST column, the initial stiffness and energy dissipation capacity of the connection can be improved significantly. However, the deformation capacity and ductility were less than the connection where the beam was connected to the strong axis of the column.
- (5)
- The FEM developed in this paper was verified as being reasonable for predicting the seismic performance of the connection. The FEM can provide a conservative prediction for the load-bearing capacity of the connection.
Author Contributions
Funding
Institutional Review Board Statement
Informed Consent Statement
Data Availability Statement
Conflicts of Interest
References
- Ali, M.M.; Moon, K.S. Advances in Structural Systems for Tall Buildings: Emerging Developments for Contemporary Urban Giants. Buildings 2018, 8, 104. [Google Scholar] [CrossRef] [Green Version]
- Shen, Y.; Tu, Y.; Huang, W. Flexural Strength Evaluation of Multi-Cell Composite L-Shaped Concrete-Filled Steel Tubular Beams. Buildings 2022, 12, 39. [Google Scholar] [CrossRef]
- Le, K.B.; Van Cao, V. Numerical Study of Circular Concrete Filled Steel Tubes Subjected to Pure Torsion. Buildings 2021, 11, 397. [Google Scholar] [CrossRef]
- Doung, P.; Leelataviwat, S.; Sasaki, E. Tensile strength and failure mechanism of internal diaphragms in wide flange beam-to-box column connections with concrete filling. J. Build. Eng. 2021, 34, 102037. [Google Scholar] [CrossRef]
- Mou, B.; Bai, Y. Experimental investigation on shear behavior of steel beam-to-CFST column connections with irregular panel zone. Eng. Struct. 2018, 168, 487–504. [Google Scholar] [CrossRef]
- Di Benedetto, S.; Latour, M.; Rizzano, G. Assessment of the stiffness of 3D cut welded connections with CHS columns and through I-BEAMS. Structures 2020, 27, 247–258. [Google Scholar] [CrossRef]
- Di Benedetto, S.; Latour, M.; Rizzano, G. Chord failure resistance of 3D cut welded connections with CHS columns and through I-BEAMS. Thin-Walled Struct. 2020, 154, 106821. [Google Scholar] [CrossRef]
- Javed, M.F.; Sulong, N.H.R.; Memon, S.A. FE modelling of the flexural behaviour of square and rectangular steel tubes filled with normal and high strength concrete. Thin-Walled Struct. 2017, 119, 470–481. [Google Scholar] [CrossRef]
- Patel, V.I.; Liang, Q.; Hadi, M.N.S. Behavior of biaxially-loaded rectangular concrete-filled steel tubular slender beam-columns with preload effects. Thin-Walled Struct. 2014, 79, 166–177. [Google Scholar] [CrossRef]
- Tong, G.; Hu, Z.; Chen, Y. Study on the moment capacity of a connection joining an I-beam to concrete-filled multicellular steel tube walls. J. Constr. Steel Res. 2021, 182, 106643. [Google Scholar] [CrossRef]
- Zhou, T.; Yang, Z.; Chen, Z. Mechanical properties of π-shaped joints of flat concrete-filled steel tubular column. J. Constr. Struct. Eng. 2021, 187, 106916. [Google Scholar] [CrossRef]
- Xu, L.; Pan, J.; Cai, J. Mechanical behavior of flat CFST column to steel beam joints under reversed cyclic loading. Eng. Struct. 2019, 198, 109540. [Google Scholar] [CrossRef]
- JGJ 82-2011; Technical Specification for High Strength Bolt Connections of Steel Structures. China Architecture & Building Press: Beijing, China, 2011. (In Chinese)
- GB50011-2010; Code for Seismic Design of Buildings. China Architecture & Building Press: Beijing, China, 2010. (In Chinese)
- El-Mandouh, M.A.; Omar, M.S.; Elnaggar, M.A. Cyclic Behavior of High-Strength Lightweight Concrete Exterior Beam-Column Connections Reinforced with GFRP. Buildings 2022, 12, 179. [Google Scholar] [CrossRef]
- Liu, X.; Cui, F.; Zhan, X. Seismic performance of bolted connection of H-beam to HSS-column with web end-plate. J. Constr. Steel Res. 2019, 156, 167–181. [Google Scholar] [CrossRef]
- AISC/ANSI 341-16; Seismic Provisions for Structural Steel Buildings. Chicago American Institute of Steel Construction: Chicago, IL, USA, 2016.
- Ahmadi, M.M.; Mirghaderi, S.R. Experimental studies on through-plate moment connection for beam to HSS/CFT column. J. Constr. Steel Res. 2019, 161, 154–170. [Google Scholar] [CrossRef]
- Calado, L.; Proenca, J.M.; Espinha, M. Hysteretic behavior of dissipative welded fuses for earthquake resistant composite steel and concrete frames. Steel Compos. Struct. 2013, 14, 547–569. [Google Scholar] [CrossRef]
- ABAQUS; User Manual Version 2010. DS Simulia Corp.: Providence, RI, USA, 2013.
- Tort, C.; Hajjar, J.F. Mixed Finite-Element Modeling of Rectangular Concrete-Filled Steel Tube Members and Frames under Static and Dynamic Loads. J. Struct. Eng. 2010, 136, 654–664. [Google Scholar] [CrossRef]
- Ahmed, M.; Liang, Q.; Patel, V.I. Experimental and numerical investigations of eccentrically loaded rectangular concrete-filled double steel tubular columns. J. Struct. Eng. 2020, 167, 105949. [Google Scholar] [CrossRef]
- Ansari, M.; Jeddi, M.Z.; Badaruzzaman, W.H.W. A numerical investigation on the through rib stiffener beam to concrete-filled steel tube column connections subjected to cyclic loading. Eng. Sci. Tech. Inter. J. 2021, 24, 728–735. [Google Scholar] [CrossRef]
- Fan, J.; Zhao, J. Experimental investigation and analytical modeling of steel beam-to-CFDST column connection. J. Struct. Eng. 2022, 190, 107164. [Google Scholar] [CrossRef]






















| Specimen | C (mm) | SB (mm) | B (mm) | Connecting Axis of the Column | Eccentricity of the Beam | Beam Length (mm) |
|---|---|---|---|---|---|---|
| S-CFT-A | 400 × 180 × 12 | H354 × 150 × 10 × 14 | H350 × 150 × 6 × 8 | Strong axis | No | 2220 |
| S-CFT-B | 400 × 180 × 12 | H354 × 150 × 10 × 14 | H350 × 150 × 6 × 8 | Strong axis | Yes | 2220 |
| S-CFT-C | 400 × 180 × 12 | H354 × 150 × 10 × 14 | H350 × 150 × 6 × 8 | Weak axis | No | 2220 |
| Material | fcu (MPa) | Es(GPa) |
|---|---|---|
| C40 | 41.8 | 25.03 |
| Material | fy (MPa) | fu (MPa) | Es (GPa) | fu/fy | Elongation |
|---|---|---|---|---|---|
| Q355B | 355 | 470 | 206 | 1.32 | 24.84% |
| 10.9M20 | 940 | 1140 | 206 | 1.21 | 26.73% |
| Specimen | Loading Direction | θy (rad) | Py (kN) | θu (rad) | Pu (kN) | μ |
|---|---|---|---|---|---|---|
| S-CFT-A | + | 0.008 | 88.2 | 0.022 | 129.1 | 2.75 |
| − | 0.007 | 82.8 | 0.020 | 123.5 | 2.85 | |
| S-CFT-B | + | 0.006 | 85.4 | 0.020 | 127.5 | 3.33 |
| – | 0.007 | 82.7 | 0.022 | 123.0 | 3.14 | |
| S-CFT-C | + | 0.004 | 88.6 | 0.011 | 132.3 | 2.75 |
| – | 0.004 | 83.0 | 0.009 | 123.9 | 2.25 |
| Specimen | S–CFT–A | S–CFT–B | S–CFT–C |
|---|---|---|---|
| Energy dissipation coefficient | 1.461 | 1.372 | 1.867 |
| Equivalent viscous damping coefficient | 0.233 | 0.218 | 0.297 |
| Dilatation Angle | Eccentricity | fb0/fc0 | K | Viscosity |
|---|---|---|---|---|
| 30 | 0.1 | 1.16 | 0.67 | 0.005 |
| Specimen | Loading Direction | Pm-FEM (kN) | Pm-test (kN) | Pm-FEM/Pm-test |
|---|---|---|---|---|
| S-CFT-A | + | 129.1 | 130.4 | 0.990 |
| – | 123.5 | 125.1 | 0.987 | |
| S-CFT-B | + | 127.5 | 135.5 | 0.941 |
| – | 123.0 | 130.3 | 0.944 | |
| S-CFT-C | + | 132.3 | 126.7 | 1.044 |
| – | 123.9 | 132.1 | 0.938 | |
| Mean | 0.974 | |||
| COV | 0.043 |
Publisher’s Note: MDPI stays neutral with regard to jurisdictional claims in published maps and institutional affiliations. |
© 2022 by the authors. Licensee MDPI, Basel, Switzerland. This article is an open access article distributed under the terms and conditions of the Creative Commons Attribution (CC BY) license (https://creativecommons.org/licenses/by/4.0/).
Share and Cite
Deng, E.-F.; Wang, Y.-H.; Liu, Z.; Song, Y.-J.; Wang, Z.; Cao, D.-B. Experimental Study and Numerical Simulation for the Seismic Performance of an Innovative Connection between a Flat CFST Column and an H Beam. Buildings 2022, 12, 735. https://doi.org/10.3390/buildings12060735
Deng E-F, Wang Y-H, Liu Z, Song Y-J, Wang Z, Cao D-B. Experimental Study and Numerical Simulation for the Seismic Performance of an Innovative Connection between a Flat CFST Column and an H Beam. Buildings. 2022; 12(6):735. https://doi.org/10.3390/buildings12060735
Chicago/Turabian StyleDeng, En-Feng, Yu-Han Wang, Zhe Liu, Yong-Ji Song, Zhen Wang, and Dian-Bin Cao. 2022. "Experimental Study and Numerical Simulation for the Seismic Performance of an Innovative Connection between a Flat CFST Column and an H Beam" Buildings 12, no. 6: 735. https://doi.org/10.3390/buildings12060735
APA StyleDeng, E.-F., Wang, Y.-H., Liu, Z., Song, Y.-J., Wang, Z., & Cao, D.-B. (2022). Experimental Study and Numerical Simulation for the Seismic Performance of an Innovative Connection between a Flat CFST Column and an H Beam. Buildings, 12(6), 735. https://doi.org/10.3390/buildings12060735

