Influence of the Soil Squeezing Effect on the Peripile Soil of Pre-Tensioned H-Type Prestressed Concrete Revetment Pile Construction Based on Field Tests
Abstract
1. Introduction
2. Materials and Methods
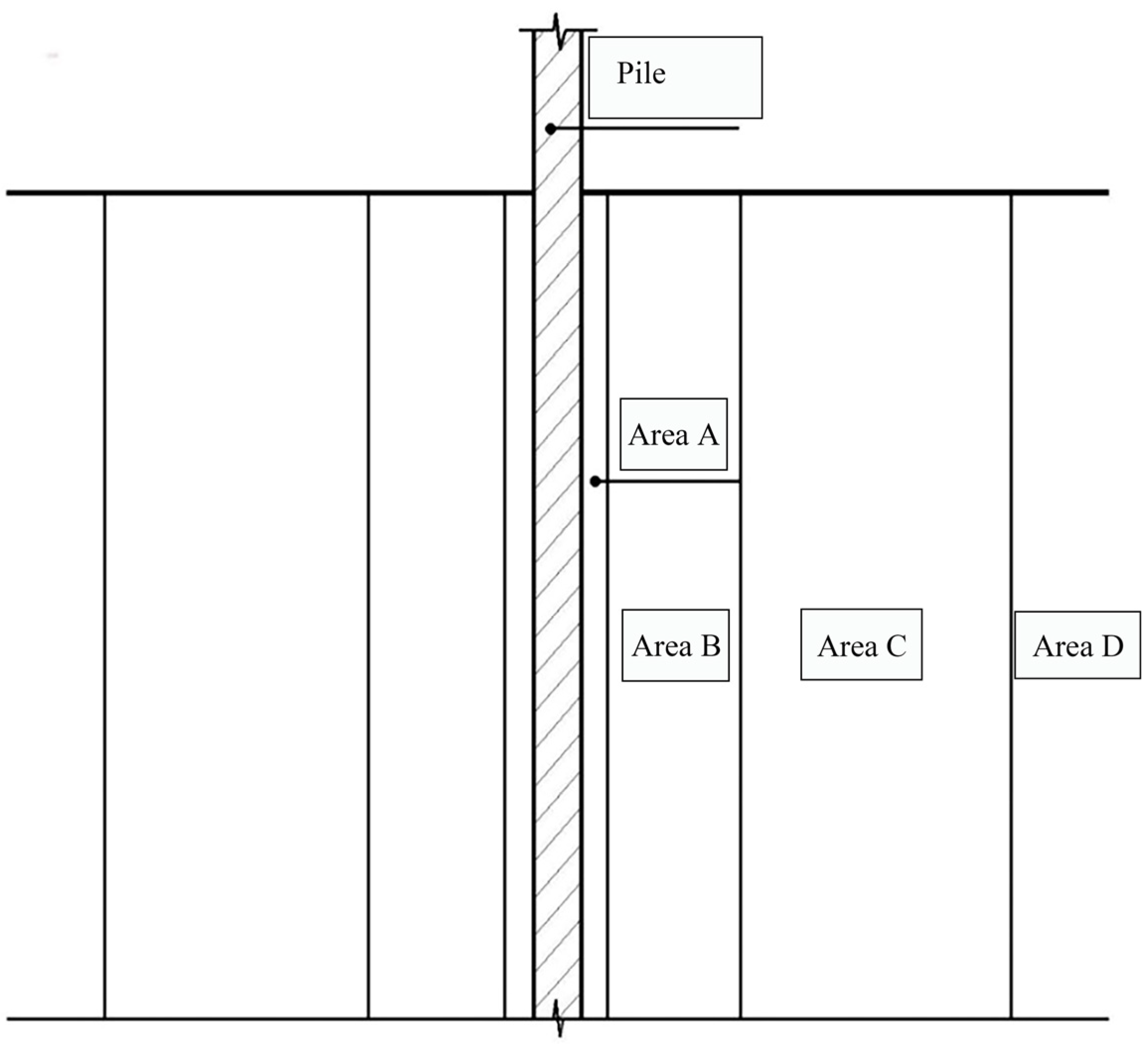
2.1. Testing Site
2.2. Materials and Construction Methods
3. Results
3.1. Pore Water Pressure
3.2. Soil Displacement
4. Discussion
4.1. Analysis of Results of Soil Squeezing Effect Manifested on Pore Water Pressure
- Ka—active earth pressure coefficient, ;
- γ—heaviness of the fill behind the wall, kN/m3, and the effective heaviness is taken below the water table;
- c—cohesive force of clay, kPa;
- φ—the angle of internal friction of the fill soil, °;
- z—depth of the calculated point from the fill surface, m.
4.2. Analysis of Results of Soil Squeezing Effect Manifested on Soil Displacement
5. Conclusions
Author Contributions
Funding
Data Availability Statement
Conflicts of Interest
References
- Zhang, Z.X.; Chen, G.; Xu, T.B.; Gong, S.F.; Xiao, Z.B.; Liu, C.B. Experimental study on flexural and shear performance of prestressed steel strand ultra-high strength concrete H-type piles. J. Zhejiang Univ. Eng. 2019, 53, 31–39. [Google Scholar] [CrossRef]
- Hama Salih, S.J.; Salih, N.B.; Noory, D.B. Optimum Design of Steel Piles in Different Sandy Soil Configurations. Geomech. Geoeng. 2022, 17, 347–357. [Google Scholar] [CrossRef]
- Seo, D.-J.; Kang, D.-M.; Lee, H.; Moon, D.Y. An Experimental Study on Lateral Load Resistance of a Wall Structure composed of Precast Concrete and H-Pile. J. Korea Inst. Struct. Maint. Insp. 2020, 24, 9–17. [Google Scholar]
- Lv, Y.; Zhang, D.; Li, P.; Zheng, C. A Theoretical Analysis of the Vertical Shearing Mechanism of the H-Pile. Soil Mech. Found. Eng. 2015, 52, 122–130. [Google Scholar] [CrossRef]
- Lv, Y.; Zhang, D.; Rong, X.; Wang, Y. Mechanism of Downdrag for Floating H-Pile Subjected to Surcharge. Soil Mech. Found. Eng. 2017, 54, 110–116. [Google Scholar] [CrossRef]
- Zhang, H.; Xing, H.; Zhu, L.; Tannant, D.; Guo, X. Centrifuge Model Tests of H-Type Anti-Slide Pile Reinforced Slope under Different Rainfall Duration. Eur. J. Environ. Civ. Eng. 2024, 1–21. [Google Scholar] [CrossRef]
- Javanmardi, A.; Huang, F.; Chen, W.; Xu, P.; Xue, J. Experimental Study on Seismic Response of an Integral Abutment: Steel H-Pile Structure under Quasi-Static Cyclic Loads. J. Earthq. Eng. 2023, 27, 2358–2380. [Google Scholar] [CrossRef]
- Ouyang, W.; Wan, J.; Liu, S.-W.; Li, X. Line-Finite-Element Implementation for Driven Steel H-Piles in Layered Sands Considering Post-Driving Residual Stresses. Adv. Struct. Eng. 2021, 24, 1384–1398. [Google Scholar] [CrossRef]
- Adhikari, P.; Ng, K.W.; Gebreslasie, Y.Z.; Wulff, S.S.; Sullivan, T.A. Geomaterial Classification Criteria for Design and Construction of Driven Steel H-Piles. Can. Geotech. J. 2020, 57, 616–621. [Google Scholar] [CrossRef]
- Hegedus, E.; Khosla, V.K. Pullout Resistance of “H” Piles. J. Geotech. Eng. 1984, 110, 1274–1290. [Google Scholar] [CrossRef]
- Jesswein, M.; Liu, J. A New SPT-Based Method for Estimating Axial Capacity of Driven Piles in Glacial Deposits. Geotech. Geol. Eng. 2022, 40, 1043–1060. [Google Scholar] [CrossRef]
- Alshawabkeh, Y.M.; Issa, M.A.; Abandah, M.R.; Salman, N.N. Lateral Buckling Capacity of Steel H-Piles Supporting Integral Abutment Bridges (IABs). Structures 2023, 50, 896–907. [Google Scholar] [CrossRef]
- Son, S.-W.; Seo, M.; Im, J.-C.; Yoo, J.-W. Dynamic Numerical Analysis of Displacement Restraining Effect of Inclined Earth-Retaining Structure during Embankment Construction. Appl. Sci. 2019, 9, 2213. [Google Scholar] [CrossRef]
- Yang, J.; Tham, L.G.; Lee, P.K.; Yu, F. Observed Performance of Long Steel H-Piles Jacked into Sandy Soils. J. Geotech. Geoenviron. Eng. 2006, 132, 24–35. [Google Scholar] [CrossRef]
- Nguyen, T.N.; Nguyen, T.A. The effect of pile driving process on stress and strain of neighboring building’s foundations: An application in vietnam. Geomate J. 2023, 24, 1–10. [Google Scholar] [CrossRef]
- Goodall, S.; Merifield, R. A Case Study on Lateral Ground Movements Due to Piling Driving in Soft Clay Near an Existing Elevated Roadway. In Proceedings of the 5th International Conference on Transportation Geotechnics (ICTG) 2024, Sydney, Australia, 20–22 November 2024s; Rujikiatkamjorn, C., Xue, J., Indraratna, B., Eds.; Springer Nature: Singapore, 2025; Volume 8, pp. 215–228. [Google Scholar] [CrossRef]
- Attari, Y.; Eiksund, G.R.; Jostad, H.P. Assessment of the Impact of Pile Driving on Slope Stability. 2023. Available online: https://hdl.handle.net/11250/3111894 (accessed on 15 November 2024).
- Hørlykke, T.; Dedenroth, B.; Sørensen, K.K. A Case Study of Heave of Pile-Supported Structures Due to Pile Driving in Heavily Overconsolidated Very High Plasticity Palaeogene Clay. In Proceedings of the 17th Nordic Geotechnical Meeting, Reykjavik, Iceland, 25–28 May 2016. [Google Scholar]
- Cao, L.F.; Teh, C.I.; Chang, M.F. Undrained Cavity Expansion in Modified Cam Clay I: Theoretical Analysis. Géotechnique 2001, 51, 323–334. [Google Scholar] [CrossRef]
- Chen, S.L.; Abousleiman, Y.N. Exact Drained Solution for Cylindrical Cavity Expansion in Modified Cam Clay Soil. Géotechnique 2013, 63, 510–517. [Google Scholar] [CrossRef]
- Chen, H.; Li, L.; Li, J.; Wang, H. Stress Transform Method to Undrained and Drained Expansion of a Cylindrical Cavity in Anisotropic Modified Cam-Clay Soils. Comput. Geotech. 2019, 106, 128–142. [Google Scholar] [CrossRef]
- Geng, D. Comparison of Different Theoretical Calculation Methods of Soil Squeezing Effect. Int. Core J. Eng. 2022, 8, 448–456. [Google Scholar] [CrossRef]
- Vrakas, A. A Rigorous Semi-Analytical Solution for Undrained Cylindrical Cavity Expansion in Critical State Soils. Int. J. Numer. Anal. Methods Geomech. 2016, 40, 2137–2160. [Google Scholar] [CrossRef]
- Li, L.; Li, J.; Sun, D. Anisotropically Elasto-Plastic Solution to Undrained Cylindrical Cavity Expansion in K0-Consolidated Clay. Comput. Geotech. 2016, 73, 83–90. [Google Scholar] [CrossRef]
- Henke, S. Influence of Pile Installation on Adjacent Structures. Int. J. Numer. Anal. Methods Geomech. 2010, 34, 1191–1210. [Google Scholar] [CrossRef]
- Ding, J.; Zhang, J.; Wang, Q.; Zhang, J.; Qi, H. Numerical Analysis of Soil Squeezing Effect of Pipe Pile Construction in Deep Silt Site. IOP Conf. Ser. Earth Environ. Sci. 2021, 696, 012022. [Google Scholar] [CrossRef]
- Chrisopoulos, S.; Triantafyllidis, T. Zur Numerischen Modellierung von Vibrationsrammung Im Gesättigten Boden. Bautechnik 2019, 96, 176–194. [Google Scholar] [CrossRef]
- Chrisopoulos, S.; Vogelsang, J.; Triantafyllidis, T. FE Simulation of Model Tests on Vibratory Pile Driving in Saturated Sand. In Holistic Simulation of Geotechnical Installation Processes; Triantafyllidis, T., Ed.; Lecture Notes in Applied and Computational Mechanics; Springer International Publishing: Cham, Switzerland, 2017; Volume 82, pp. 124–149. [Google Scholar] [CrossRef]
- Abu-Farsakh, ·M.; Rosti, F.; Souri, A. Evaluating Pile Installation and Subsequent Thixotropic and Consolidation Effects on Setup by Numerical Simulation for Full-Scale Pile Load Tests. Can. Geotech. J. 2015, 52, 1734–1746. [Google Scholar] [CrossRef]
- Lu, Y.; Wang, Q.; Li, X.J.; Sun, H.Q.; Wang, X.Y. Characterization of Soil Displacements During Press-in Pile Model Tests. In Proceedings of the GeoShanghai 2018 International Conference: Fundamentals of Soil Behaviours, Shanghai, China, 27–30 May 2018; Zhou, A., Tao, J., Gu, X., Hu, L., Eds.; Springer: Singapore, 2018; pp. 550–556. [Google Scholar] [CrossRef]
- Vogelsang, J.; Huber, G.; Triantafyllidis, T. Experimental Investigation of Vibratory Pile Driving in Saturated Sand. In Holistic Simulation of Geotechnical Installation Processes; Triantafyllidis, T., Ed.; Lecture Notes in Applied and Computational Mechanics; Springer International Publishing: Cham, Switzerland, 2017; Volume 82, pp. 101–123. [Google Scholar] [CrossRef]
- Zhou, D.; Zhang, W.G. Transparent Soil Model Test on Displacement Field of Soils around Single Passive Pile. In Proceedings of the International Conference on Geotechnical and Earthquake Engineering, Austin, TX, USA, 10–13 June 2018; American Society of Civil Engineers: Reston, VA, USA, 2019; pp. 652–659. [Google Scholar] [CrossRef]
- Ahmed, M.; Iskander, M. Analysis of Tunneling-Induced Ground Movements Using Transparent Soil Models. J. Geotech. Geoenviron. Eng. 2011, 137, 525–535. [Google Scholar] [CrossRef]
- Orrje, O.; Broms, B.B. Effects of Pile Driving on Soil Properties. J. Soil Mech. Found. Div. 1967, 93, 59–73. [Google Scholar] [CrossRef]
- Hagerty, D.J.; Peck, R.B. Heave and Lateral Movements Due to Pile Driving. J. Soil Mech. Found. Div. 1971, 97, 1513–1532. [Google Scholar] [CrossRef]
- Zhang, J.; Zhao, J.; Niu, L. Analysis of soil microstructure components for squeezing effect by pile-driving. J. Eng. Geol. 2011, 19, 231–237. [Google Scholar]
- Zhang, J.; Zhao, J.; Sun, S. Model test and analysis of excess pore water pressure produced by driving pile group. Ind. Build. 2009, 1, 76–78. [Google Scholar]
- Lei, H. Micro-structural effect of consolidation deformation in saturated soft clay. J. Hydraul. Eng. 2004, 4, 91–95. [Google Scholar]
- Suleiman, M.T.; Ni, L.; Davis, C.; Lin, H.; Xiao, S. Installation Effects of Controlled Modulus Column Ground Improvement Piles on Surrounding Soil. J. Geotech. Geoenviron. Eng. 2016, 142, 04015059. [Google Scholar] [CrossRef]
- Langford, J.; Lande, E.-J.; Sandene, T.; Kahlstrøm, M.; Nadim, F.; Norén-Cosgriff, K.; Piciullo, L.; Ritter, S.; Hauser, C.; Lysdahl, A.; et al. BegrensSkade II–REMEDY–Risk Reduction of Groundwork Damage: An Overview. IOP Conf. Ser. Earth Environ. Sci. 2021, 710, 012058. [Google Scholar] [CrossRef]
- Attari, Y.; Jostad, H.P.; Grimstad, G.; Eiksund, G.R. Evaluation of Pile Driving Effects on Slope Stability in Clay. Geotech. Geol. Eng. 2024, 42, 1623–1638. [Google Scholar] [CrossRef]
- Poulos, H.G. Effect of Pile Driving on Adjacent Piles in Clay. Can. Geotech. J. 1994, 31, 856–867. [Google Scholar] [CrossRef]
- Sagaseta, C.; Whittle, A.J. Prediction of Ground Movements Due to Pile Driving in Clay. J. Geotech. Geoenviron. Eng. 2001, 127, 55–66. [Google Scholar] [CrossRef]
- Vytiniotis, A.; Casey, B.; Sykora, D.W. Lateral Soil Movements Due to Pile Driving: A Case Study in Soft Clays. In Proceedings of the International Foundation Congress and Equipment Expo 2018, Orlando, FL, USA, 5–10 March 2018; pp. 113–128. [Google Scholar] [CrossRef]
- GB50021-2009; Geotechnical investigation specification. Ministry of Housing and Urban-Rural Development: Beijing, China, 2009.
- GB/T50123-2019; Geotechnical Test Method Standards. Ministry of Housing and Urban-Rural Development: Beijing, China, 2019.
- GB 50497-2019; Technical Standards for Monitoring of Construction Pit Works. Ministry of Housing and Urban-Rural Development: Beijing, China, 2019.
- Viggiani, C.; Mandolini, A.; Russo, G. Piles and Pile Foundations; CRC Press: Boca Raton, FL, USA, 2014. [Google Scholar]
- Xu, Y.; Fu, D. Excess pore pressure induced in piling in saturated structural soft soils. Rock Soil Mech. 2000, 1, 53–55. [Google Scholar] [CrossRef]
- Yang, S.; Li, Y. Experimental Research on Compacting Effect of PHC Piles. Chin. J. Geotech. Eng. 2006, 20, 117–120. [Google Scholar]
- Li, G.; Bian, S.; Lu, X.; Yang, T.; Lei, G. Field test on extruding soil caused of PHC pipe pile driving by static pressure for improving soft Field test on extruding soil caused of PHC pipe pile driving by static pressure for improving soft. Rock Soil Mech. 2013, 34, 1089–1096. [Google Scholar]
- Ying, H.; Zhang, L.; Xie, K.; Huang, D. Pore Pressure Response to Groundwater Fluctuations in Saturated Double-Layered Soil. Math. Probl. Eng. 2015, 2015, 389089. [Google Scholar] [CrossRef]
- Zhang, L.; Ying, H.; Xie, K.; Huang, D. Effect of Groundwater Fluctuations on Pore Pressures and Earth Pressures on Coastal Excavation Retaining Walls. Mar. Georesour. Geotechnol. 2016, 34, 770–781. [Google Scholar] [CrossRef]
- Luo, Y.; Gong, X.; Wu, R. New Method for Calculation of Water-Earth Pressure on Foundation Pit Considering Ground Water Seepage. J.-Zhejiang Univ. Eng. Sci. 2007, 41, 157. [Google Scholar]
- Benmebarek, N.; Benmebarek, S.; Kastner, R.; Soubra, A.-H. Passive and Active Earth Pressures in the Presence of Groundwater Flow. Géotechnique 2006, 56, 149–158. [Google Scholar] [CrossRef]
- Piling Theory Manual. Available online: https://apps.dtic.mil/sti/citations/ADA386246 (accessed on 18 November 2024).
- Liu, L. Pile Foundation Design and Calculations. Available online: https://www.zhangqiaokeyan.com/book-cn/081504191419.html (accessed on 15 November 2024).
- Tang, S.; He, L.; Fu, C. Excess pore water pressure caused by an installing pile in soft foundation. Rock Soil Mech. 2002, 6, 725–729+732. [Google Scholar] [CrossRef]
- Chen, D. Influencing Range and Preventive Measures of Squeezing Effect of Static Pressure Pile Construction in Soft Soil Area. Shanghai Constr. Sci. Technol. 2019, 1, 22–25. [Google Scholar]
- Zhu, D.; Indraratna, B.; Poulos, H.; Rujikiatkamjorn, C. Field Study of Pile—Prefabricated Vertical Drain (PVD) Interaction in Soft Clay. Can. Geotech. J. 2020, 57, 377–390. [Google Scholar] [CrossRef]
- Randolph, M.F.; Wroth, C.P. An Analytical Solution for the Consolidation around a Driven Pile. Int. J. Numer. Anal. Methods Geomech. 1979, 3, 217–229. [Google Scholar] [CrossRef]
- Zhu, S. Field Test and Numerical Simulation Study on Horizontal Compaction Effect of Pipe Pile Construction in Soft Soil Laye. Constr. Technol. 2020, 49, 77–81. [Google Scholar]
- Bradshaw, A.S.; Baxter, C.D.P.; Osborn, P. Lessons Learned from Pile Driving at the Central Artery/Tunnel Project. In Proceedings of the Sessions of Geo-Frontiers 2005 Congress, Texas, Austin, USA, 24–26 January 2005; pp. 1–15. [Google Scholar] [CrossRef]
- Feld, J.; Carper, K.L. Construction Failure; John Wiley & Sons: Hoboken, NJ, USA, 1996. [Google Scholar]
- Svinkin, M.R. Mitigation of Soil Movements from Pile Driving. Pract. Period. Struct. Des. Constr. 2006, 11, 80–85. [Google Scholar] [CrossRef]
- Woods, R.D. Dynamic Effects of Pile Installations on Adjacent Structures; Transportation Research Board: Washington, DC, USA, 1997; Volume 7. [Google Scholar]
- Massarsch, K.; Fellenius, B. Ground Vibrations Induced by Impact Pile Driving. In Proceedings of the International Conference on Case Histories in Geotechnical Engineering, Arlington, Virginia, 13 August 2008. [Google Scholar]
- Yao, D.; Zhang, Y.; Ye, Y.; Yan, P. Impact of Jacked Pile Construction Vibration on Environment and Its Control Measures. Chin. J. Undergr. Space Eng. 2013, S1, 1739–1743. [Google Scholar]
- D’Appolonia, D.J.; Lambe, T.W. Performance of Four Foundations on End Bearing Piles. J. Soil Mech. Found. Div. 1971, 97, 77–93. [Google Scholar] [CrossRef]


















| Floor Number | Name | Water Content | Wet Density | Void Ratio | Degree of Saturation | Plasticity Index | Liquidity Index | Coefficient of Compressibility | Modulus of Compression |
|---|---|---|---|---|---|---|---|---|---|
| ω | ρ | e | Sr | IP | IL | av | Es | ||
| % | g/cm3 | — | % | — | — | MPa−1 | MPa | ||
| −1 | Plain fill soil | 26.7 | 1.91 | 0.798 | 90.7 | 13 | 0.58 | 0.340 | 5.29 |
| −2 | Powdery clay | 30.9 | 1.89 | 0.892 | 94.5 | 16 | 0.59 | 0.368 | 5.40 |
| −1 | Powdery clay | 33.9 | 1.86 | 0.964 | 95.7 | 15 | 0.86 | 0.446 | 4.62 |
| −2 | Powdery soil | 28.5 | 1.88 | 0.846 | 94.1 | 10 | 1.06 | 0.221 | 9.04 |
| −1 | Powdery clay | 27.3 | 1.94 | 0.789 | 94.3 | 15 | 0.45 | 0.297 | 6.21 |
| Parameter Name | Cylinder Block Quality kg | Frequency Min−1 | Maximum Energy kJ | Maximum Pile Weight kg | Gross Weight of Hammer kg |
|---|---|---|---|---|---|
| Parameter value | 2500 | 35–50 | 57.5 | 6000 | 4200 |
Disclaimer/Publisher’s Note: The statements, opinions and data contained in all publications are solely those of the individual author(s) and contributor(s) and not of MDPI and/or the editor(s). MDPI and/or the editor(s) disclaim responsibility for any injury to people or property resulting from any ideas, methods, instructions or products referred to in the content. |
© 2024 by the authors. Licensee MDPI, Basel, Switzerland. This article is an open access article distributed under the terms and conditions of the Creative Commons Attribution (CC BY) license (https://creativecommons.org/licenses/by/4.0/).
Share and Cite
Wu, Y.; Xiao, Y.; Liu, J. Influence of the Soil Squeezing Effect on the Peripile Soil of Pre-Tensioned H-Type Prestressed Concrete Revetment Pile Construction Based on Field Tests. Buildings 2024, 14, 3816. https://doi.org/10.3390/buildings14123816
Wu Y, Xiao Y, Liu J. Influence of the Soil Squeezing Effect on the Peripile Soil of Pre-Tensioned H-Type Prestressed Concrete Revetment Pile Construction Based on Field Tests. Buildings. 2024; 14(12):3816. https://doi.org/10.3390/buildings14123816
Chicago/Turabian StyleWu, Yuedong, Yu Xiao, and Jian Liu. 2024. "Influence of the Soil Squeezing Effect on the Peripile Soil of Pre-Tensioned H-Type Prestressed Concrete Revetment Pile Construction Based on Field Tests" Buildings 14, no. 12: 3816. https://doi.org/10.3390/buildings14123816
APA StyleWu, Y., Xiao, Y., & Liu, J. (2024). Influence of the Soil Squeezing Effect on the Peripile Soil of Pre-Tensioned H-Type Prestressed Concrete Revetment Pile Construction Based on Field Tests. Buildings, 14(12), 3816. https://doi.org/10.3390/buildings14123816

