Next Article in Journal
Analysis and Optimization of Residential Elements from the Perspective of Multi-Child Families in the Yangtze River Delta Region
Next Article in Special Issue
Evaluation of Urban Complex Utilization Based on AHP and MCDM Analysis: A Case Study of China
Previous Article in Journal
Energy Efficiency Analysis of Building Envelope Renovation and Photovoltaic System in a High-Rise Hotel Building in Indonesia
Previous Article in Special Issue
Research on Planning Strategy for Urban Community Living Environment for the Elderly That Promotes “Living Mutual Aid”
 
 
Font Type:
Arial Georgia Verdana
Font Size:
Aa Aa Aa
Line Spacing:
Column Width:
Background:
Article

Research on Optimization Design Strategies for Natural Ventilation in Living Units of Institutional Elderly Care Facilities Based on Computational Fluid Dynamics Simulation

School of Human Settlements and Civil Engineering, Xi’an Jiaotong University, Xi’an 710049, China
*
Author to whom correspondence should be addressed.
Buildings 2024, 14(6), 1648; https://doi.org/10.3390/buildings14061648
Submission received: 30 April 2024 / Revised: 16 May 2024 / Accepted: 29 May 2024 / Published: 3 June 2024

Abstract

As China transitions into a deeply aging society, the elderly population’s growth has driven a rapid increase in elderly care institutions and facilities during the “13th Five-Year Plan” period, rising by over 235% compared to the “12th Five-Year Plan”. The ongoing normalization of COVID-19 prevention measures has underscored the urgent need to improve natural ventilation in elderly care residential facilities. This study conducted empirical surveys to assess the current state of natural ventilation in typical elderly care facilities and analyzed the architectural elements influencing it. By examining the needs and preferences of the elderly for natural ventilation, two basic living space layout types were identified through typological analysis. Suitable CFD simulation software was then employed to model key elements, and effective methods to enhance ventilation were summarized. This study found that modifying the floor plan to reduce the depth of south-facing rooms to 8.4 m, relocating external openings to the center of the rooms, adjusting the ratio of ventilation openings to room area to greater than 1/12, and adding 0.5 m high windows facing internal traffic roads can significantly improve indoor ventilation while maintaining privacy. Furthermore, placing the main activity and resting areas of the elderly in well-ventilated zones with minimal drafts can enhance both comfort and ventilation effectiveness. The research provides a scientific basis and methodological guidance for the construction and renovation of elderly care residential facilities.

1. Introduction

In the second decade of the 21st century, global society faces an unprecedented challenge of aging populations. According to a report by the World Health Organization, the proportion of the population aged 65 and above is growing at an unprecedented rate worldwide, expected to increase from 730 million in 2021 to 1.6 billion by 2050. This demographic shift is particularly pronounced in developed countries, but developing nations are also rapidly aging. This change in population structure has led to a dramatic increase in the demand for institutional elderly care facilities, not only in quantity but also in higher standards of quality and comfort.
However, traditional active ventilation systems, such as central air conditioning, no longer meet the daily environmental needs of the elderly due to their lower comfort levels and significant noise issues. Moreover, in the face of major public health events like SARS and the COVID-19 pandemic, the use of such ventilation systems has been severely restricted, further exposing their inadequacies in ensuring indoor air quality and responding to public health emergencies.
In response to this challenge, governments and relevant agencies around the world have begun to take action. The Chinese government’s “14th Five-Year Plan for Comprehensive Work on Energy Conservation and Emission Reduction” explicitly states that the energy renovation of public buildings is a key measure to achieve dual carbon goals. Passive energy-saving technologies, such as natural ventilation and solar energy utilization, with their high efficiency, energy saving, and low-carbon environmental characteristics, have become an important direction in the design of the next generation of public buildings. These technologies not only significantly reduce the energy consumption of buildings but also provide a more comfortable and healthy living and working environment.

1.1. Natural Ventilation Research

Studies on natural ventilation have demonstrated that natural ventilation systems, with their energy-saving and cost-effective features, show significant advantages in safety and economy over mechanical ventilation systems, highlighting their importance as a research topic. Tan and Deng’s numerical analysis focused on typical single-story residences in major climatic zones of Australia, assessing the cities’ ventilation potential through Natural Ventilation Hours (NVHs) and Satisfactory Natural Ventilation Hours (SNVHs), revealing the close relationship between natural ventilation performance and local climatic conditions [1]. Flourentzou et al. compared the performance of pure natural ventilation and mechanical ventilation systems in a high-efficiency sports hall in Saviese, Switzerland, highlighting the superior performance of natural ventilation systems under controlled conditions [2]. These studies confirm the applicability of natural ventilation across different spatial scales, ensuring air quality in winter and maintaining comfortable temperatures in summer. In terms of adaptive comfort research, Fanger and Toftum extended models for comfort assessment in non-air-conditioned buildings in warm climates, reflecting the contributions of natural ventilation to architectural design, operation, or evaluation [3,4]. Aflaki et al. explored the interaction between natural ventilation and other passive design strategies in tropical climates, emphasizing the crucial impact of architectural design details like chimney effects, wind, layout, window size, and placement on ventilation efficiency [5,6]. Researchers have emphasized the influence of social and architectural factors and forms of expression on meeting moderate comfort requirements through specific case analyses, pointing towards the direction of passive design [7]. Through comparative analysis of typical layouts, wind speeds, and air age, they optimized indoor air flow, enhancing living comfort [8,9]. Practical measurement and verification methods for natural ventilation, such as tracer gas techniques and wind tunnel validation, have provided deep insights into the impacts of window-opening behavior on indoor ventilation and health [10,11]. In summary, research and application of natural ventilation across various regions and climates demonstrate its broad adaptability and energy-saving potential, offering effective ways to enhance indoor air quality and thermal comfort.

1.2. CFD Simulation Studies Based on Architecture

In the field of architectural evaluation and computation, Computational Fluid Dynamics (CFD) simulations are widely used, with ANSYS Fluent being a commonly employed tool. Ayata et al. used the Finite Element method through FLUENT software to simulate natural ventilation in buildings in the city of Kayseri, Turkey, while utilizing the ANFIS model to predict indoor wind speeds. The simulation results emphasized the potential of natural ventilation in providing a thermally comfortable indoor environment during summer and pointed out the importance of building openings, aspect ratios, and positioning for uniform indoor air velocity distribution [12]. Cheng et al. conducted natural ventilation analysis with FLUENT, determining key coefficients and empirical equations for building ventilation, highlighting the energy-saving advantages of buildings with a window-to-wall ratio of 0.3 and sliding windows, providing methods for evaluating the potential and energy savings of natural ventilation in buildings in North America [13]. In studies of solar chimneys, Fedyushkin utilized FLUENT simulations to discover that reducing fluid dynamic losses and modifying geometric shapes are key strategies for improving efficiency [14]. Yang and Jiang conducted CFD simulations on the architectural layout of student dormitories to explore their impact on natural ventilation [15]. Cui et al. used PHOENICS software to simulate wind speed and air age distribution in dormitory buildings of Jinan universities during summer, proposing natural ventilation design strategies that include optimizing floor plans and ventilation components, and adjusting indoor relative humidity [16]. Xuan used ENERGY PLUS software for seasonal measurements of natural ventilation in residential buildings, exploring the effects of infiltration wind, screen doors, and balcony shapes on ventilation, finding that wind pressure coefficients are higher in the middle parts of buildings and that different balcony shapes have minimal impact on ventilation effectiveness [17]. Liu conducted CFD simulations on residential buildings in Xi’an, finding that specific architectural forms help enhance natural ventilation efficiency [18]. In medical architecture, Zhang et al. performed CFD simulations for ventilation design optimization in patient rooms at Wuhan’s Leishenshan Hospital, comparing different ventilation system schemes and concentrations of pollutants under various indoor heights, concluding the superiority of same-side air supply and lower exhaust systems, and recommending closing bathroom doors to prevent the spread of pollutants [19]. These studies demonstrate the extensive application and significance of CFD simulations in optimizing the design of natural ventilation in buildings. Abhinav et al. and Ajmera and Mathur focus on the impact of vent locations and heat source arrangements on natural and mixed convection. Through numerical simulation and experimental studies, the authors analyze the effects of different ventilation designs on internal temperature distribution and fluid flow. Abhinav et al. emphasize the critical role of vent location in optimizing natural convection, while Ajmera and Mathur explore the effectiveness of multiple vent configurations in mixed convection. These findings provide important references for the application of CFD simulation in optimizing building ventilation design and offer a theoretical and experimental foundation for further research [20,21].

1.3. Research on Elderly Care Living Facilities

Research targeting elderly care living facilities has explored key factors that enhance the quality of life for the elderly. Jing et al., through questionnaires with elderly residents in Seoul and Gyeonggi-do, identified the quality of care facilities, self-esteem, family support, and individual education level as significant factors affecting quality of life [22]. Yang et al. observed the daily behaviors of elderly individuals with dementia, noting the significant impact of facility schedules on daily activities, and the crucial roles of common areas such as lounges and dining rooms, as well as personal living spaces [23]. Bodur and Cingil, using the WHOQOL-BREF questionnaire, found that the quality of life scores for home-based care were higher than those for institutional care, with especially lower scores among women in institutions, suggesting an emphasis on social activities and comprehensive support for women [24]. In response to new requirements for elderly facilities due to COVID-19, Lee et al. recommended that no more than 16 individuals reside in a single living unit, special isolation rooms be established, and sufficient social distancing be maintained in common living areas [25]. Analysis of elderly living needs has highlighted key strategies in architectural design and management. Li analyzed the advantages of the AIP (Aging in Place) model for elderly care and redesigned living spaces for an elderly care institution in Wenjiang District, Chengdu, to meet the diverse needs of the elderly [26]. Ye, through research on elderly living spaces in Harbin, emphasized spatial design principles based on elderly needs [27]. Ran and Xiao separately proposed design principles for social spaces in elderly care institutions and strategies to meet elderly companionship and medical needs [28,29]. Liu et al.’s study on elderly facilities in Chongqing revealed the elderly’s thermal comfort adaptability to natural ventilation, emphasizing the importance of adaptive temperature ranges [30]. Qin and Zhou explored spatial configuration issues in integrated medical and elderly care facilities, proposing four models for medical space arrangement [31]. Zhao’s survey of elderly institutions in Nanjing presented strategies for optimizing integrated medical and care design, including flexible room design and multi-functional nursing stations [32]. These studies reflect the diverse needs and development directions that must be considered in the design and management of elderly care living facilities.
In summary, although the industry has utilized simulation methods for the scientific design of building structures and forms to enhance passive ventilation efficiency, research on the dynamic changes and influencing factors of the indoor wind environment has lagged behind. This research gap limits the depth and breadth of the application of passive ventilation technologies in elderly care living facilities, and also makes it difficult for existing research results to be directly applied to practical indoor space design. Against this backdrop, governments and relevant agencies are increasing their investments and promoting the use of passive energy-saving technologies. The European Union has already passed several legislative and financial support measures to encourage the application of passive energy-saving technologies in public and residential buildings. Moreover, many countries are actively exploring passive energy-saving architectural designs that are compatible with local climates and cultures, hoping that these efforts will provide more solutions to the challenges of an aging society, and also contribute to the achievement of global sustainable development goals.

1.4. Research Objectives

Building on previous studies, this paper aims to typify and summarize the living spaces of elderly care facilities in urban communities of Xi’an City, presenting typical spatial layout designs. Taking the Maycare Garden in Hanzhong, Shaanxi Province, as an exemplary case, this study will conduct both actual measurements and simulation validations. Computational Fluid Dynamics (CFD) technology will be employed to simulate, analyze, and modify the main factors affecting natural ventilation, further exploring the patterns of indoor wind environment changes under different parameter conditions. Ultimately, this research will propose a series of living space design and renovation recommendations for elderly care facilities that align with future development trends, promote natural ventilation, and cater to the daily needs of the elderly (Figure 1). These recommendations aim to provide scientific and practical references and guidance for the sustainable design of elderly care facilities.

2. Analysis of Natural Ventilation Requirements and Extraction of Typical Floor Plans

2.1. Analysis of Natural Ventilation Requirements

Research on natural ventilation cannot rely solely on assumptions and subjective evaluations. It is essential to gather data on the needs of the elderly regarding their living environment and their satisfaction with ventilation effects to assess the actual demand and effectiveness of natural ventilation. This study conducted semi-structured questionnaire surveys and in-depth interviews with 42 elderly residents living in nursing homes during the experiment, with 38 valid questionnaires collected.
The results show a significant demand for natural ventilation among the elderly. Among the surveyed individuals, 7.8% were diagnosed with respiratory diseases, and 21% had or believed they had respiratory problems such as shortness of breath and coughing. The analysis of the ventilation habits of the elderly revealed the following key points:
(1)
Regarding preference for natural ventilation, 100% of the elderly believe that opening windows effectively promotes air circulation, and 97.3% prefer natural ventilation over mechanical ventilation systems. Reasons include discomfort from the cool air of mechanical systems, a personal preference for opening windows, and unfamiliarity with operating mechanical ventilation systems.
(2)
Usage of Mechanical Ventilation Systems: Although all elderly residents use mechanical ventilation systems for half an hour daily, this process is managed by staff and the systems are turned off before the residents return to their rooms. In summer, 26% of the elderly extend the use of mechanical ventilation systems to one hour, especially during rainy or humid conditions when natural ventilation is insufficient.
(3)
Window- and Door-Opening Habits: In summer, most elderly residents keep balcony doors open all day, even with curtains drawn, as it feels comfortable and does not hinder rest and communication. Some elderly residents close windows and doors at night, and a very small number keep them open for less than six hours due to physical discomfort, mental illness, or mobility issues, relying on staff to manage window operations. In winter, almost all elderly residents open windows for 0–6 h daily, mainly in the morning and after naps, to refresh the air.
Overall, the elderly have a strong demand for natural ventilation and exhibit some discomfort with air conditioning and mechanical ventilation systems. These systems must be operated by staff when the elderly are not present and turned off before their return. Even when using natural ventilation, elderly residents prefer frequently opening balcony doors rather than windows due to the milder draft from doors, which is a significant factor in their decision to open windows and doors.
In conclusion, natural ventilation is widely preferred and highly demanded by the elderly. These findings provide empirical evidence for further optimizing the ventilation design in nursing homes.

2.2. Typical Layout Construction of Elderly Care Living Facilities

In designing elderly care living facilities, the floor plan layout critically impacts natural ventilation efficiency. This influence extends from the overall architectural strategy to the specific design details of each room. Effective natural ventilation requires a comprehensive consideration of various factors to optimize air circulation, enhance living comfort, and reduce energy consumption.
(1)
Key Influencing Factors in Overall Building Layout:
(a)
Traffic Flow Organization: A rational layout ensures comfortable movement for residents and prevents corridors and public areas from becoming barriers to air circulation.
  • Functional Zone Division: Scientifically separating living areas from rest areas can manage and guide airflow, enhancing natural ventilation.
(b)
Balcony Configuration: Balconies provide additional resting space and are crucial for promoting air circulation. Their design should consider orientation, size, and shading to enhance ventilation.
(c)
Room Organization and Air Convection: Room and public space layouts should promote natural air circulation and avoid dead zones. This involves considering aerodynamic characteristics when designing room positions and the orientation of doors and windows.
(2)
Main Influencing Factors in Individual Room Layouts:
(a)
Room Size and Layout: Proper room dimensions and layouts significantly enhance air convection and temperature control, improving ventilation efficiency.
(b)
Door and Window Design: The size, type, and placement of windows and doors directly affect air entry and circulation patterns. Cross-placed windows, for example, can greatly promote cross-ventilation.
(c)
Bathroom Ventilation: Proper ventilation design in bathrooms is crucial for overall air quality. Effective exhaust facilities and their placement can prevent humidity and odors from spreading to other areas.
(3)
Study Methodology
To study the impact of floor plan layouts on natural ventilation, we analyzed 50 samples, including 24 elderly care facilities in Xi’an and typical cases from 26 literature sources (Table 1). We generated typical floor plans for elderly care facilities based on the ventilation habits and preferences of the elderly. The living spaces were simplified into three functional areas: elderly bedrooms, traffic corridors, and common living rooms. Classification criteria included traffic flow organization (internal and external corridors), functional layout, balcony layout, room organization (entrance convection), room depth (bedroom types, activity room types), door and window settings, and bathroom location.
(4)
Findings and Typical Floor Plans
The analysis revealed that elderly care facilities commonly feature internal corridors and dual-sided bedrooms, with most lacking balconies and some having enclosed or semi-enclosed balconies. Double rooms, typically featuring a single window, are the most common bedroom type, with bathrooms located on the interior side. Two typical floor plans were defined:
 (a)
Living rooms on the south side with double rooms on both sides.
 (b)
Living rooms on the north side with double rooms on both sides.
These floor plans were simplified to include bedrooms (sleeping area, entrance area, bathroom, doors, and windows), traffic corridors, and open common living rooms (Figure 2). Based on the requirements of the current Chinese “Building Design Code for Elderly Care Facilities (GB50867-2013)” [33] and combined with the survey and statistical results, the basic dimensions of two typical floor plans were determined (Table 2). Based on these typical plans, variable adjustments were made by modifying elements of the living spaces (Table 3) to explore methods for enhancing internal ventilation.

3. Numerical Model of Indoor Wind Environment under Natural Ventilation

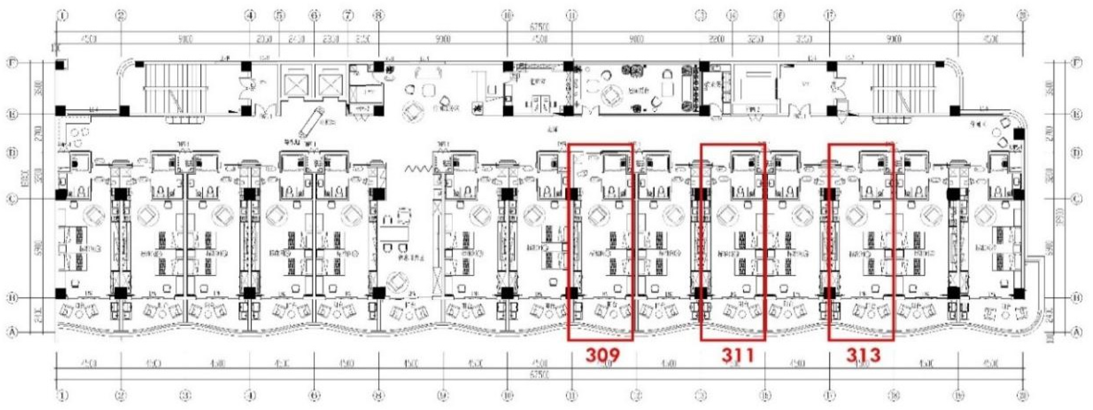
This study uses empirical verification methods to validate the effectiveness of the software and simulation methods, focusing on the Maycare Garden Elderly Care Park in Hanzhong City, Shaanxi Province (Figure 3). The Maycare Garden Elderly Care Park is a large comprehensive facility integrating medical and nursing services, covering 75 acres with a building area of 73,000 square meters and 837 beds. The subject of the investigation is Building 1, a rectangular structure. The windward south side consists of double rooms, while the leeward north side contains auxiliary spaces such as nursing stations, common living rooms, and terraces. Bathrooms are located on the interior side of the rooms, reflecting typical characteristics of elderly care facilities.
Measurements were conducted from 9–11 September 2021, during typical summer weather with outdoor wind speeds averaging 1.7–2.1 m/s and prevailing southeast winds. The tested rooms were 309, 311, and 313 on the third floor of Building 1, all of which are double rooms used by the elderly (Figure 4).

3.1. Measurement Environment and Methods

This study conducted on-site measurements based on the master plan to construct a room model (Figure 5). The building has a net height of 2700 mm, a room depth of 9900 mm, a width of 4200 mm, and a balcony door with an effective ventilation area of 800 mm × 2000 mm. Using relevant measuring instruments, we measured the indoor and outdoor air temperature of room 311, as well as the indoor humidity, building envelope temperature, lighting temperature, inlet wind speed, and outdoor wind speed. The variable method was used to compare and verify these measurements against room 313 in an unoccupied state.
Room 309 faces the terrace with aligned airflow inlets and outlets, while room 311 faces a closed corridor with staggered airflow inlets and outlets. Comparing these two setups, we verified the impact of layout organization (staggered inlets and outlets) on ventilation efficiency.
To accommodate the elderly’s living habits, doors and windows were half-open from 7:30 to 21:00 and closed the rest of the time, with the balcony door always open. The lights and TV were on from 19:30 to 21:00. The measuring instruments included the following:
(1)
COS-03 extension-type temperature and humidity sensor (Figure 6) for indoor measurements at a height of 1.1 m, recording every minute;
(2)
SWEMA micro anemometer (Figure 7) for measuring ventilation inlet wind speed, recording every 30 s;
(3)
Agilent analyzer (main unit 34970A, modules 34901A, T-type copper–copper nickel thermocouples) for measuring the temperature of the building envelope and lighting surfaces (Figure 8), recording every minute;
(4)
Handheld weather station (Figure 9) for measuring outdoor wind speed as a supplement.
The main instruments’ measurement accuracy and range are detailed in Table 4. The measurement period was 24 h. Room 311 had 14 indoor temperature and humidity measurement points, 12 building envelope surface temperature points (including floor and ceiling), 6 lighting surface temperature points, and 1 TV surface temperature point. There was one outdoor balcony wind speed point and one indoor inlet wind speed point (Figure 10 and Figure 11). Room 313, as a control group, had 13 indoor temperature and humidity measurement points (Figure 12 and Figure 13). Room 309, as a control for studying the impact of layout on ventilation, had one balcony-to-indoor inlet wind speed point.

3.2. Measurement Results and Selection of Operating Conditions

To ensure the accuracy and practicality of natural ventilation simulation in elderly care facilities, we first conducted a comprehensive assessment of the average inlet wind speed, the surface temperature of the building envelope, and the actual activities of the elderly and staff. This was carried out to collect and analyze key parameters affecting indoor airflow and the thermal environment, thereby establishing a scientifically sound simulation environment.
From 10 to 11 September, the SWEMA micro anemometer detected fluctuations in indoor inlet wind speed, indicating variations in instantaneous wind. Analysis of the average inlet wind speed fluctuations (Figure 14) revealed significant changes in natural wind speed. During the measurement process, the wind speed recorded by the handheld weather station placed on a semi-open balcony and the testo-425 anemometer showed little change, suggesting thermal pressure ventilation.
The indoor temperature measurements were largely as expected. A comparison of the central temperatures in rooms 311 and 313 (using simple averaging) clearly showed the impact of human activity on indoor temperature, leading to an increase (Figure 15).
Based on the measured data, we selected five typical time periods with stable inlet wind speeds and high human activity as simulation conditions. During these periods, the surface temperature of the building envelope was also measured (Table 5). Five evenly fluctuating time periods were chosen based on wind speed fluctuations, and 12 average wind speed points over 15 min were selected accordingly (Figure 16). The average wind speed was calculated as the simple average of the recorded wind speeds within each time period. These periods represent different environmental conditions and activity patterns, ensuring that the simulation conditions cover typical environments and operational conditions within the elderly care facilities.

3.3. Validation of Simulation Effectiveness

3.3.1. Room Model Construction and Simplification

Room 311 was simplified into a geometric model. The clear height of the model is set at 2700 mm based on measured data, with a room area of 41.6 m2, equipped with a balcony door providing an effective ventilation area of 800 mm× 2000 mm. Non-essential furniture was removed, and elements that significantly affect air flow, such as beds, bedside tables, and wardrobes, were treated as cuboids. The door facing the balcony was simplified as a wind speed inlet, and the door facing the interior corridor was simplified as a wind speed outlet. These were processed into standard-sized 3D physical models in CAD2020 23.1 software (Figure 17).

3.3.2. Mesh Generation

This study used Fluent 2020R2’s Mesh software for grid generation. Since the near-wall regions are not areas where the elderly are active and do not impact the overall ventilation simulation, no near-wall inflation layer was set. Due to the complexity of the internal room structure, the mesh was generated as homogeneous unstructured tetrahedral grids under automatic processing. After comparing different mesh sizes, a grid size of 0.05 m was selected, resulting in a total of 1.8 million cells.

3.3.3. Governing Equations

Before performing Fluent simulations, it is necessary to determine the governing equations. These are derived from the fundamental laws of motion in nature and include the algebraic forms of the fluid control equations, such as the mass conservation equation and the momentum conservation equation. Air is modeled as a viscous, incompressible fluid [34,35].
The equation for mass conservation continuity is
p t + u x + v y + w z = 0
For incompressible fluids, the mass conservation equation can be simplified to
u x + v y + w z = 0
The Navier–Stokes equations (N-S equations):
V t + V · V = f p ρ + ν 2 V
The motion equations of the N-S equations in Cartesian coordinates:
u t + u u x + v u v + w u z = f x 1 ρ p x + ν 2 u x 2 + 2 u y 2 + 2 u z 2
v t + u v x + v v v + w v z = f y 1 ρ p y + ν 2 v x 2 + 2 v y 2 + 2 v z 2
w t + u w x + v w v + w w z = f z 1 ρ p z + ν 2 w x 2 + 2 w y 2 +   2 w z 2
In the equation, u , v , w are the velocity components of the fluid at point (x, y, z) and time t; ρ is the fluid density; V is the velocity vector; ν is the kinematic viscosity; p is the pressure; f is the external force per unit volume of the fluid.
We combine Equations (2), (4), (5) and (6), where ρ , ν is a constant. We solve these four equations for the four unknowns, u , v , w , p . Additionally, appropriate boundary conditions and initial conditions must be specified.
For the CFD simulations conducted using Fluent, we first determine the control equations, deriving algebraic equations for fluid dynamics from fundamental principles, including the conservation of mass and momentum. Air is modeled as a viscous, incompressible fluid. To accurately capture the effects of convection and diffusion, we establish differential equations. The widely adopted two-equation model, which links turbulent viscosity with turbulent kinetic energy (k) and the turbulent dissipation rate (ε), allows for detailed calculations of complex turbulence phenomena [36].
Recent studies have demonstrated the effectiveness of advanced turbulence models in predicting airflow patterns and thermal comfort in indoor environments. For instance, Zhang et al. showed that enhanced turbulence modeling can significantly improve the accuracy of natural ventilation simulations in residential buildings [37]. Similarly, Smith et al. highlighted the importance of incorporating detailed geometrical features into CFD models to capture the nuances of indoor airflow [38].
k ε equation:
ρ ε t + ρ u j ε x j = x j μ + μ t σ ε ε x j + c 1 ε k μ t u i x j u j x i + u i x j c 2 ρ ε 2 k
ρ k t + ρ u j k x j = x j μ + μ t σ k k x j + μ t u i x j u j x i + u i x j ρ ε
In the equation, μ t represents the turbulent viscosity coefficient; c 1 , c 2 , σ ε , σ k are empirical constants; ε is the dissipation rate; k is the turbulent kinetic energy; ρ is the density; c 1 = 1.44; c 2 = 1.92; σ ε = 1.3; and σ k = 1.0.

3.3.4. Boundary Conditions

This study focuses on low-velocity indoor ventilation, where the indoor temperature is relatively constant and temperature differences are minimal. Since the temperature difference has a negligible impact on airflow, the energy equation is not considered. This study concentrates on the airflow paths and velocity distribution.
The investigation revealed that elderly care facilities in Shaanxi Province are predominantly north–south oriented, linear, standalone buildings with low to medium density, which minimally impacts ventilation. Therefore, the surrounding buildings are ignored in the simulation.
Boundary conditions in this study include the inlet air velocity at the balcony door and the outlet air pressure, set to zero, since the air exits to an internal corridor. Room walls are modeled as no-slip surfaces. Wall temperatures and inlet air velocities are set as specified in Table 4. Five simulations were conducted for five different time periods, and the simulation results were validated against actual temperature measurements.

3.3.5. Comparison of Simulation Results with Measured Data

Using the previously constructed CFD model, simulations of temperature and wind speed under different conditions in Room 311 were conducted using Fluent 2020R2 software. The simulation results (Table 6) are compared against thirteen 1100 mm high air temperature measurement points within Room 311, with actual data selected as the average air temperature over a 15 min interval. The simulated temperature results are aligned with the corresponding measurement points, and the temperatures from the thirteen points are compared using the Euclidean distance method (Equations (9) and (10)). The Euclidean distance calculation, a straightforward method in similarity calculations, treats the simulated and actual data as points on a coordinate axis, calculating the straight-line distance between them. The data from this calculation is processed through the formula 1/(1 + d) to scale within the range (0,1], reflecting the average similarity between the simulation and actual results (Table 7).
d x , y = ( ( x i y i ) 2 )
s im x , y = 1 1 + d ( x , y )
In the equation, ( x , y ) represents the coordinates of each point.
In the actual temperature tests, due to the influence of summer solar radiation, some areas exhibited temperature differences of about 2 degrees between two nearby measurement points. After excluding interference data, the similarity between the simulation and actual measurements significantly improved. Additionally, while the software simulation represents an ideal environment, in reality, there are several factors that can cause temperature differences and affect the indoor wind environment, which may lead to slight discrepancies between the simulation results and experimental results. However, the overall experimental validation indicates that the Fluent 2020R2 software simulation is feasible.

3.4. Preset and Validation of Typical Floor Plans

3.4.1. Typical Plan Simulation Preset

Initially, a 3D model was generated based on the typical floor plan of elderly residential facilities (Figure 2). To explore the impact of basic design elements such as building layout organization, floor circulation, and room space on natural ventilation, and to identify existing issues, thereby contemplating corresponding improvement strategies, this study eliminated interfering factors such as furniture and further simplified the model. The room net height, depth, and width were set based on measured data. In the typical plan derivation, although non-balcony floor plans are prevalent, new elderly care parks generally include balconies to enhance the living environment quality for the elderly. Accordingly, this study, looking towards the future needs and trends in elderly residential facilities and referencing the Maycare Garden elderly care park, equipped living units with balcony doors, setting the effective ventilation area at 2000 mm × 800 mm. Public living rooms are equipped with two casement windows, with a sill height of 900 mm and an effective ventilation area of 1200 mm × 1800 mm. Regarding parameters, the entrance wind speed was set based on the average measured wind speed at 0.015 m/s, with the exit leading outdoors and wind pressure set as undetermined, designated as a free outlet (outflow). Wall temperatures were averaged from measured temperatures and set at 300 K. The grid size was set at 500 mm. Based on research analysis, the main activity areas for the elderly were categorized into standing, sitting/lying, and combined standing–sitting/lying zones. Therefore, this study focused on cross-section A-A through the living room and elderly resident room, and on planes at 1100 mm and 1500 mm heights for principal analysis (Figure 18).

3.4.2. Grid Independence Test

To ensure the accuracy of the simulation results, it is necessary to eliminate the influence of grid size settings. Too few grid cells will affect computational accuracy, while too many will increase computation time and resource consumption. Grid independence verification aims to determine the optimal grid size and number to ensure the validity of the results. This study verifies this using the southern living room type.
Using grid sizes of 0.08 m, 0.1 m, 0.125 m, and 0.15 m, the number of grid cells was set to 7.16 million, 4.21 million, 2.67 million, and 1.51 million, respectively (Table 8). Simulation results showed that wind speed and air age distributions were similar across different grid sizes. To compare detailed calculation accuracy, a segment in the model with coordinates from (65, 19, 1.1) to (65, 37, 1.1) was selected to compare wind speed variations among the four grid sizes (Figure 19). Initially, a comparison between 2.67 million and 1.51 million grids showed significant differences; adding the 4.21-million grid showed discrepancies among the three; finally, including the 7.16-million grid demonstrated that the 7.16-million and 4.21-million grids had consistent accuracy (Figure 20). Balancing accuracy and computation cost, the 4.21-million grid was chosen as the base grid size.
Verification confirmed that this grid size also yielded optimal results in another typical floor plan.

3.4.3. Validation of Bathroom Space Exclusion

During simulation calculations, it was noted that bathrooms typically do not ventilate directly outdoors and are characterized by lower air velocities, leading to insufficient air renewal in these areas. In reality, such spaces often rely on mechanical ventilation systems to achieve air exchange and are commonly maintained under negative pressure to prevent the flow of contaminated air into other living areas. Additionally, to preserve privacy and eliminate unpleasant odors, bathroom doors are generally kept closed during normal use.
Based on the aforementioned real conditions and simulation requirements, we conducted simulations of wind speed and air age using the south-side living room type as an example, comparing scenarios with and without the inclusion of the bathroom. The results indicated that omitting the bathroom had a minimal impact on the simulation outcomes (Table 9). A similar observation was also confirmed in the simulations of the north-side living rooms. Therefore, in subsequent simulation calculations, we opted to exclude the bathroom layout.

4. Simulation Analysis of Natural Ventilation in Living Space Units

Building on the Computational Fluid Dynamics (CFD) simulations of wind speed, we have extended our research scope in line with the ventilation frequency requirements stipulated in the “Architectural Design Standards for Elderly Care Facilities (JGJ 450-2018) [39]” (Table 10), introducing the calculation of air age. Air age is an important indicator for measuring the efficiency of indoor air renewal. By calculating the time it takes for air to enter a room until it is replaced, we can more directly assess the passive ventilation effects of elderly care facilities. In accordance with standards such as the “General Principles of Civil Building Design (GB 50352-2019)” [40], among others, our study has established evaluation criteria for air age in typical layouts and different types of spaces (Table 11). Through simulation, this helps us quantitatively analyze the performance of existing ventilation designs and identify potential deficiencies in ventilation. Based on these findings, we can develop specific improvements, such as adjusting window layouts and optimizing air flow paths, to enhance ventilation efficiency and living comfort. The application of this methodology ensures that design optimizations are based on actual performance assessments, thereby effectively improving the environmental quality of elderly care facilities and the living experience of the elderly. The calculation and simulation of air age will be implemented by loading UDFs (user-defined functions) in the Fluent 2020R2 solver.

4.1. Overall Building Layout Simulation Analysis

Initially, simulations of wind speed and air age were performed for two typical floor plans. When simulating the ventilation of the south-side public living room type, it was observed that at heights of 1.1 m and 1.5 m, the wind speed simulations showed similar trends, with wind speeds uniformly decreasing from the windward to the leeward side. However, significant reductions in wind speed were noted as the airflow passed through the entry corridor into the living room, creating a calm wind area. This also led to a substantial increase in air age on the leeward side of the rooms. This phenomenon suggests that a door-to-door layout may promote the formation of a Venturi effect, enhancing the wind speed in the north–south corridors, resulting in higher wind speeds at 1.1 m above the corridor, and relatively fresher air renewal. Although the highest indoor wind speed reached 0.019 m/s, this speed is almost imperceptible to the elderly, and the overall ventilation condition is very comfortable. Further analysis using air age contour maps revealed that living room areas near windows had higher wind speeds and quicker air renewal. To avoid the disadvantages of elderly activity areas directly facing windows, an asymmetric design is often used, resulting in lower air ages (0–4000 s) on the window side, while the ventilation effect is significantly reduced on the side away from the windows, with air ages increasing significantly to 5000–8000 s, exceeding the architectural design standard’s acceptable limit of 3600 s.
The internal air ventilation of the south-side living rooms is notably superior to that of the north side, with the main air age in the south-side bedroom areas ranging from 5000 to 9000 s, while that of the north-side bedroom areas ranges from 8000 to 14,000 s, indicating a clear deficiency in air renewal on the north side. The simulation results for the north-side public living room type are largely consistent with those of the south side, especially in corner areas where poorly ventilated zones are also formed. The cross-sectional A-A analysis of the entry corridor into the living room reveals a calm wind area, with air quality gradually improving from the corners to the center (Table 12).
In configuring the living rooms, six double rooms are set on the south side to ensure adequate daylight and ventilation for the elderly, but the ventilation performance still shows a significant gap compared to the acceptable target of 3600 s, indicating substantial room for improvement (Figure 21). In real life, most elderly people prefer to be active within their personal rooms but also participate in social or recreational activities in the living activity rooms for over three hours, underscoring the importance of optimizing ventilation and choosing locations for living rooms. Therefore, the choice of optimal locations for rooms or living rooms should be based on in-depth research and understanding of the target group for elderly residential facilities.

4.2. Simulation Analysis of Three Key Elements

Building on the results from simulations of two typical floor plans, this study conducted a more detailed analysis focusing on three aspects: floor plan organization, room dimensions, and external openings. The goal was to further understand the factors influencing the air age in elderly residential facilities and to propose targeted design strategies.

4.2.1. Floor Plan Organization

(1)
Location of Public Living Rooms
This study modified the layout of room doors by changing from a direct, door-to-door linear arrangement to a staggered layout, aiming to analyze the impact of this layout on the ventilation effectiveness of the rooms. The design of staggered doors not only avoids direct drafts but also reduces the likelihood of elderly residents opening doors to internal corridors, effectively safeguarding their privacy and minimizing awkward situations. This is a proactive and effective design adjustment. According to the simulation results (Table 13), in the south-side public living room type, the adjustment in door layout maintained a stable wind environment in the living rooms, but the non-compliant area in the south-side bedrooms slightly increased, especially near the walls. In the north-side bedrooms, although the two rooms facing the open-type living room showed no significant change, the air age significantly increased in the other four rooms, rising from the original 8000–14,000 s to 10,000–16,000 s. This indicates a noticeable decline in air freshness, making these rooms unsuitable as the main activity areas for the elderly. For the north-side public living room type, the area with non-compliant air age significantly decreased, making the overall environment more suitable for living activities. The main air age area in the north-side living activity room dropped from the original 6000–14,000 s to 5000–11,000 s, showing an overall improvement in ventilation; however, due to the window layout being biased to one side, the air in the northeast corner of the activity room was more polluted. In summary, changing the convection form of the rooms, especially by staggering the door layout from a straight line, plays a positive role in improving ventilation effectiveness and enhancing residential comfort. This design adjustment helps create a healthier and more private living environment for the elderly in residential facilities.
(2)
Openness of Public Living Rooms
In the simulations of wind speed and air age for the typical floor plan’s living rooms, it was observed that although the living rooms were positioned on the windward side and maintained an open design, the addition of external walls had minimal impact on the ventilation of the main activity areas for the elderly (Table 14). Despite some increase in wind speed in enclosed living rooms, their overall negative impact on air renewal, particularly the restrictions on movement and staying in internal corridors and conducting diverse public activities, indicates that this design is unsuitable for the elderly population. Particularly, the enclosed public living rooms on the north side had the poorest ventilation and should be considered for improvement or replacement. To address this, a low wall with a height of 900 mm was placed between the semi-open living room and the internal corridor. This design not only provides a sense of security and private space for active elderly people but also maintains a homely atmosphere, avoiding rigid spatial divisions. These low walls are often used for placing decorative plants or everyday items, enhancing the room’s aesthetics and practicality. According to the simulation results (Table 15), near the low walls in the south-side public living room type, the wind speeds ranged from 0.002 to 0.006 m/s, which is a significant improvement compared to the wind speeds below 0.02 m/s in the corridors of the enclosed living rooms. The air age was between 3000 and 5000 s, slightly higher than the 2000 to 5000 s in the open living rooms, but still below the standard of 7200 s, indicating that the area is suitable for elderly activities. Overall, the semi-open setup did not significantly impact the living activity room or other rooms.

4.2.2. Room Dimensions

In this study, for the design of double rooms, we considered the impact of furniture arrangement, ventilation, and lighting on room depth. In standard simulations, the depth of rooms on both the north and south sides was set at 9.9 m. However, based on architectural practice, rooms on the north side are typically designed as single rooms or functional spaces. Therefore, in this phase of simulation, we adjusted the depth of the north side rooms to 8.4 m to explore the specific impact of reducing room depth on ventilation effectiveness. According to the simulation results (Table 16), adjusting the depth of the north-side rooms did not show a significant improvement in ventilation in the south-side public living room types. In the north-side bedrooms, the air age in some areas increased from the original 8000–14,000 s to 11,000–15,000 s, indicating a decrease in ventilation effectiveness. Nonetheless, the air quality near the north-side walls and corners in the rooms improved, showing a more even distribution of air. For the north-side public living room types, the main impact was concentrated in the north-side bedrooms. In these bedrooms, although the non-compliant area remained unchanged, the air age in the sitting and lying areas increased, indicating an actual decline in ventilation quality.
In summary, while adjusting room depth had a positive impact on air distribution in certain areas, reducing the depth of rooms on the north side did not significantly improve ventilation conditions, especially in the bedroom areas. Further design strategies need to be considered to enhance ventilation quality.

4.2.3. External Openings

(1)
Symmetrical Window Configuration in Living Rooms
This study simulated the effects of ventilation with symmetrical window arrangements to explore the impact of window layout on indoor air flow. According to the simulation results (Table 17), the setup of symmetrical windows effectively enhanced the overall ventilation performance and reduced the area of non-compliant regions. In the south-side public living room types, non-compliant areas were mainly concentrated near the wall between the two windows, with air ages ranging from 4000 to 5000 s, slightly above the acceptable value but with minor differences; the overall air age inside the living room ranged from 0 to 5000 s, with wind speeds at the windows between 0.006 and 0.016 m/s, maintaining a comfortable range. In the north-side public living room types, setting the windows symmetrically resulted in a more even distribution of air age within the living room, with the main areas ranging from 6000 to 10,000 s. Only in the north-side area near the wall between the windows did the air age slightly exceed this, reaching 10,000–12,000 s. In comparison, although the symmetrical window layout improved ventilation compared to asymmetrical layouts, the air ages still did not meet the target value of 3600 s. In summary, although the symmetrical window layout shows positive effects in optimizing ventilation performance and reducing non-compliant areas, the simulation results indicate that even with symmetrically arranged windows, some areas still do not achieve the desired standards. Therefore, while symmetrical window layouts can improve indoor ventilation and provide a more uniform distribution of air, further exploration and implementation of other ventilation strategies are needed to meet the ventilation needs of all areas and ensure that health and comfort standards are met across all zones.
(2)
External Opening Area
In the study of the south-side public living room types, we expanded the external opening area of the west-side bedrooms to 1.2 m × 2 m, observing a significant improvement in ventilation (Table 18). Specifically, the wind speed in the middle of the north–south corridors increased from 0.006–0.014 m/s to 0.014–0.028 m/s, doubling the initial speeds. At the same time, the air age in the south-side bedrooms decreased from the original 5000–9000 s to 3000–7000 s, and the air age in the north-side bedrooms also dropped significantly from 8000–14,000 s to 5000–9000 s, indicating a significant enhancement in ventilation efficiency. Similarly, in the north-side public living room types, the expansion of the external opening width also brought about similar positive effects. This change not only enhanced the wind speed within the north–south corridors and north-facing bedrooms but also significantly improved the frequency of air renewal within the rooms. The air age in the bedroom areas of the south-side living rooms decreased from 5000–9000 s to 3000–7000 s, and in the bedroom areas of the north-side living rooms, it dropped dramatically from 9000–16,000 s to 5000–10,000 s. Based on the analysis above, by expanding the external opening area of the bedrooms horizontally, we achieved a significant improvement in ventilation effects not only on the south side but also on the north side. This change significantly reduced the non-compliant areas in the rooms and corridors, effectively promoting air circulation and providing a healthier and more comfortable living environment for the residents.

4.2.4. Ventilation Methods within Living Spaces

In studying ventilation methods within living spaces, we primarily discuss the installation of windows on internal openings, including high windows and louvered windows on doors. In the simplified model, louvered windows are set as fully ventilated areas. Both types of windows are 1200 mm × 500 mm in size and identical in shape. The louvered windows are positioned 150 mm above the floor, and the high windows are 2100 mm above the floor. With the doors closed, we analyze the ventilation effects of these two types of windows. In practice, air leakage around the doors, especially at the bottom, cannot be ignored, so all internal air leakage is simplified to a 50 mm floor-level opening to ensure the simulation’s accuracy.
In the simulation, the south-side windows are set as air inlets with consistent wind speeds, and the north-side windows are set as free outlets. When the internal openings are sufficiently large, air leakage and uneven wind pressures at external openings can be ignored. However, when the internal openings are nearly closed, air leakage can cause significant discrepancies between the simulation and actual conditions. In practice, the wind from the south-side rooms is affected by gaps and does not entirely pass through the louvered or high windows into the north-side rooms, leading to an overestimation of the north-side rooms’ ventilation effect. Nevertheless, this idealized model still offers valuable references.
Under conditions where the south side faces the wind and the north side is sheltered, changing the internal window type does not significantly affect the ventilation of the south-side rooms and living rooms. The air age diagrams for both the louvered and high windows are consistent in the south-side rooms and living rooms. In the north-side rooms at a height of 1.1 m, louvered windows provide better ventilation than high windows, while at 1.5 m, high windows are superior. Closing the internal openings affects the north-side corridor, increasing the air age from 5000–8000 s to 6000–10,000 s, but decreases the air age in the bedrooms from 8000–14,000 s to 6000–10,000 s, highlighting the importance of adding internal windows (Table 19). The south-side rooms remain unaffected by door closures or window types, maintaining consistency. Overall, for the north-side rooms, louvered windows perform slightly better at 1.1 m height, and high windows perform better at 1.5 m height, with minimal overall differences. In the living room, high windows outperform louvered windows in the northwest corner and the internal corridor (Table 20).

4.3. Impact Factors and Improvement Proposals

In this study, we selected two representative typical floor plans based on typological synthesis combined with actual measurement data. We conducted simulation analyses considering factors such as floor plan layout, room configuration, and the size and location of windows and other external openings. The analysis aimed to identify the key factors affecting the natural ventilation efficiency of elderly residential facilities, especially the natural ventilation conditions on the south-facing windward side under typical summer day conditions (Table 21). The simulation focused on three main aspects:
Floor Plan Organization: We evaluated how different room layouts affect air flow paths, including the enclosure of public areas, the relative position of public areas to private rooms, and the rational layout of indoor air streams to ensure that air can effectively flow through each room.
Room Settings: We analyzed the specific impact of room type, room depth, and room spacing on air circulation. It was determined that room depth is a major factor affecting natural ventilation among these elements.
External Opening Adjustments: We simulated the effects of windows of different sizes and locations on indoor ventilation, with a particular focus on how window design can utilize natural wind forces to drive indoor and outdoor air exchange. It was clarified that the effective ventilation area of external openings is a major factor influencing natural ventilation.
The results of the simulations revealed that by improving these key elements in elderly residential facilities during hot summer conditions, natural ventilation effectiveness can be significantly enhanced. We will propose recommendations for natural ventilation improvements from two perspectives: design optimization and renovation optimization. These improvement plans aim to ensure that elderly residential facilities provide a cool and comfortable living environment for the elderly during hot seasons while reducing reliance on mechanical cooling systems, thereby enhancing energy efficiency and living comfort.

5. Optimization and Improvement Strategies

5.1. Design Optimization Strategies

In terms of design optimization, this study made adjustments to the design plans based on two typical floor plans and simulation results and conducted validation simulations (Table 22). Taking the south-side public living room type as an example, the first consideration was to reduce room depth to enhance ventilation in the living spaces. The living room designs included both open and semi-open types, with windows arranged in a symmetrical triptych. The floor plan adopted a door-to-door streamline.
In the bedroom design, the bathroom was located on the interior side; the depth of the south-side bedrooms was reduced, while the north side remained unchanged. Additionally, the external opening area was increased, with a window sill height set at 0.9 m. Considering that ventilation is usually poor in the north-side bedrooms, windows were merged to ensure improved ventilation. High windows were installed on the doors of the internal corridor openings, which could supplement ventilation when closed and enhance it when open.
Through a series of simulations and adjustments, the specific parameters of the optimized design were determined: the living room dimensions were 8.64 m × 8.4 m, with axially symmetrical three-pane windows and the side windows measuring 1.2 m × 1.8 m to ensure the maximum effective opening area; the middle window measured 1.2 m × 1.2 m. If the living room design was semi-open, it was necessary to ensure that the air quality between the side windows did not deteriorate, with a partition wall height of 0.9 m. The south-side bedroom depth was 8.4 m, width 4.2 m; the north-side bedroom depth was 9.9 m, width also 4.2 m; bathrooms on both sides measured 1.6 m × 2.7 m. The exterior openings of the bedrooms were balcony doors measuring 1.6 m × 2 m, with a semi-open balcony design to ensure entrance wind speed (Figure 22).
In the north-side public living room type, as the living room was located on the north side (Figure 23), the ventilation effect of the semi-open part was improved, but some areas experienced a decrease; hence, an open design was chosen. To ensure ventilation, the living room also adopted a symmetrical triptych window design. Like the south-side living room type, a door-to-door streamline was used. In terms of bedroom design, the depths of the rooms on both the south and north sides were reduced to meet the ventilation needs of the rooms and the north-side activity room, with the bathrooms also located internally. The window sill height was set at 0.9 m to ensure north-side ventilation; external openings on both sides were merged, and high windows were installed on the doors of the internal corridor openings. Specifically, the room depths on both the south and north sides were 8.4 m, the external openings were 1.6 m × 2 m, and the bathroom dimensions were 1.6 m × 2.7 m; the north-side living activity room had three symmetrical windows, with window dimensions of 1.8 m × 1.5 m and a window sill height of 0.9 m. Simulation validation of the design plan showed that the air age non-compliant area was significantly reduced compared to the typical floor plan, proving the effectiveness and reliability of the new scheme.

5.2. Renovation Optimization Strategies

In terms of renovation optimization, the key lies in enhancing ventilation efficiency under the constraint of the existing architectural layout to meet current standards (Table 23, Figure 24). Thus, modifications based on the existing conditions of the typical floor plan are prioritized, including expanding the external wall’s window area to 1.8 m × 2 m and adding high windows indoors. The renovation of the south-side public living room type considers the limitations of room depth and bathroom location, with the north-side bedrooms unable to fully meet the standard of an air age below 7200 s. In problem areas, particularly the south-side wall-adjacent areas of the bedrooms, where ventilation dead zones exist, it can be considered to transform these parts of the north-side bedrooms into single rooms, using poorly ventilated dead zone areas to place furniture. This not only improves the spatial utilization but also satisfies the needs of some elderly people as a deluxe single room. For the north-side public living room type, while keeping the room sizes unchanged, the external openings of both side rooms are uniformly set to 1.8 m × 2 m. Due to the ventilation conditions and spatial layout restrictions of the living activity room, which can accommodate a maximum of 16 people at the same time, the south side is set as double rooms and the north side as single rooms, optimizing space use and ventilation conditions. Simulation validation of the renovation schemes, compared to the typical floor plan’s simulation results, reveals a significant reduction in areas where air age is non-compliant, proving the effectiveness of the renovation design. These renovations not only help improve the ventilation quality of living spaces but also make the spaces more suitable for the residential needs of the elderly.

6. Conclusions

This study employed semi-structured interviews to identify the natural ventilation preferences of the elderly. It was found that they prefer natural wind and keep windows open for extended periods during summer but are sensitive to direct drafts. Additionally, there are issues of inadequate ventilation, poor air circulation, and discomfort in some areas of elderly care facilities. Based on a detailed analysis of the elements influencing ventilation in different residential areas, several key factors were identified, including floor function, circulation, layout, room type, organization, and the positioning of doors and windows. Two typical floor plans and several analysis variables were derived.
Field measurements and simulation analyses were conducted to determine the impact of these factors on ventilation quality. The findings were used to develop methods to improve natural ventilation in elderly care facilities. Based on design standards, indoor air age requirements were proposed. Design strategies for the two typical floor plans were suggested, including structural modifications and small-scale renovations in the south and north living rooms to enhance air quality and meet fresh air system standards. The main conclusions are as follows:
(1)
South-facing living rooms improve indoor air quality while enhancing lighting.
(2)
Reducing the depth of windward-facing rooms facilitates the entry of fresh air.
(3)
Increasing the external opening area, especially horizontally, enhances natural ventilation in breathing zones.
(4)
Longer ventilation durations correlate with better air quality.
(5)
The relative positions of doors and windows strengthen natural air circulation.
This study systematically analyzes ventilation factors at the living space level and proposes corresponding spatial optimization strategies for elderly care facilities. These strategies provide a reference for improving ventilation in elderly care facilities in northern Chinese cities.
However, the study’s analysis is limited to living spaces and low-wind-speed environments. It does not explore the impact of building layout and density on ventilation. The study was conducted on typical summer days, and the results may not apply to other climate conditions.
Future research should focus on the following aspects:
(1)
Expanding the study of ventilation factors at different levels: Previous discussions have highlighted the significant impact of various factors on individual buildings. This includes evaluating building siting, surrounding building density, and greenery to select sites with good natural ventilation resources for elderly care facilities. Building form and layout also influence natural ventilation. Designing wind deflectors and thermal chimney ventilation can greatly aid summer ventilation.
(2)
Detailed study of window-opening behavior and needs in different seasons and climates: Future research should explore how opening and closing some doors and windows meet ventilation needs in seasons with lower ventilation requirements or under different climate conditions. If natural ventilation is insufficient, the possibility of supplementing with mechanical ventilation should be considered. Managing natural and mechanical ventilation to meet ventilation needs during special climate conditions, such as rain and temperature drops, is also a crucial topic for future research.

Author Contributions

Conceptualization, T.L., J.W., D.Z. and Y.W.; data curation, T.L., J.W., X.M. and X.L.; formal analysis, T.L., D.Z., X.M., X.L. and Y.W.; funding acquisition, D.Z.; investigation, T.L. and J.W.; methodology, T.L., X.M., X.L. and Y.W.; resources, T.L., J.W. and Y.W.; software, J.W.; supervision, D.Z., X.M., X.L. and Y.W.; visualization, D.Z.; writing—original draft, T.L. and J.W.; writing—review and editing, D.Z. and Y.W. All authors have read and agreed to the published version of the manuscript.

Funding

This research was funded by the National Natural Science Foundation of China, grant number 51778526.

Data Availability Statement

The original contributions presented in the study are included in the article, further inquiries can be directed to the corresponding authors.

Conflicts of Interest

The authors declare no conflicts of interest.

References

  1. Tan, Z.J.; Deng, X. Assessment of Natural Ventilation Potential for Residential Buildings across Different Climate Zones in Australia. Atmosphere 2017, 8, 177. [Google Scholar] [CrossRef]
  2. Flourentzou, F.; Pantet, S.; Ritz, K. Design and performance of controlled natural ventilation in school gymnasiums. Int. J. Vent. 2017, 16, 112–123. [Google Scholar] [CrossRef]
  3. De Dear, R.J.; Brager, G.S. Thermal comfort in naturally ventilation buildings: Revisions to ASHRAE Standard 55. Energy Build. 2002, 34, 549–561. [Google Scholar] [CrossRef]
  4. Fanger, P.O.; Toftum, J. Extension of the PMV model to non-air-conditioned buildings in warm climates. Energy Build. 2002, 34, 533–536. [Google Scholar] [CrossRef]
  5. Aflaki, A.; Mahyuddin, N.; Al-Cheikh Mahmoud, Z.; Baharum, M.R. A review on natural ventilation applications through building facade components and ventilation openings in tropical climates. Energy Build. 2015, 101, 153–162. [Google Scholar] [CrossRef]
  6. Yamamoto, Y.; Murakami, S.; Ishino, H.; Kohri, K. Energy Saving Performance of Buoyancy-Driven Natural and Hybrid Ventilation. In Proceedings of the ASHRAE Winter Conference, Chicago, IL, USA, 20–24 January 2018. [Google Scholar]
  7. Song, Y.; Wang, J.; Zhu, N. Reflections on Passive Design Strategies for Indigenous Green Buildings in China. J. Archit. 2013, 7, 94–99. [Google Scholar]
  8. Guo, P.; Yi, M.; Lv, T.; Wang, Y.; Liu, T.F. Study on Optimization Strategies for Natural Ventilation Opening Modes in Residential Buildings Based on CFD Simulation. Build. Sci. 2021, 37, 120–125. [Google Scholar]
  9. Shi, Z.N. Study on the Impact of Natural Ventilation in Hospital Wards on the Transmission of Respiratory Infectious Diseases. Master’s Thesis, Southeast University, Nanjing, China, 2018. [Google Scholar]
  10. Gao, X. Empirical Study on the Impact of Natural Ventilation in University Classrooms on Indoor CO2 Concentration. Master’s Thesis, Chongqing University, Chongqing, China, 2016. [Google Scholar]
  11. Sun, R.; Lei, Y.; Song, Z.; Jing, S. Natural Ventilation Performance of Louvered Combination Solar Chimneys in Buildings. Sol. Energy J. 2021, 42, 452–457. [Google Scholar]
  12. Ayata, T.; Çam, E.; Yıldız, O. Adaptive neuro-fuzzy inference systems (ANFIS) application to investigate potential use of natural ventilation in new building designs in Turkey. Energy Build. 2007, 48, 1472–1479. [Google Scholar] [CrossRef]
  13. Cheng, J.; Qi, D.; Katal, A.; Wang, L.; Stathopoulos, T. Evaluating wind-driven natural ventilation potential for early building design. J. Wind. Eng. Ind. Aerodyn. 2018, 182, 160–169. [Google Scholar] [CrossRef]
  14. Fedyushkin, A.I. Numerical simulation and analysis of the efficiency of natural ventilation in industrial buildings. J. Appl. Mech. Tech. Phys. 2020, 61, 936–944. [Google Scholar] [CrossRef]
  15. Yang, D.; Jiang, L.H. Simulation Study on the Natural Ventilation of College Student’ Dormitory. In Proceedings of the 10th International Symposium on Heating, Ventilation and Air Conditioning, Jinan, China, 19–22 October 2017; pp. 1279–1285. [Google Scholar]
  16. Cui, Y.; Zhang, C. Study on the Natural Ventilation Design Strategy of University Dormitory Buildings in Summer Based on CFD: A Case Study of a Dormitory Building in Jinan. Energy Conserv. Build. 2022, 50, 86–92. [Google Scholar]
  17. Xuan, Z. Study on Natural Ventilation Measurement and Calculation of Typical Residential Buildings and Related Influencing Factors. Master’s Thesis, Southeast University, Nanjing, China, 2019. [Google Scholar]
  18. Liu, M. Study on Xi’an Urban Residential Design Based on Natural Ventilation and Indoor Wind Environment Simulation. Master’s Thesis, Xi’an University of Architecture and Technology, Xi’an, China, 2020. [Google Scholar]
  19. Zhang, S.; Cheng, M.; Fu, W.; Dai, F.; Song, Y. Practical Application of CFD Technology in the Ventilation System Design of the Negative Pressure Wards at Leishenshan Hospital. Cent. China Archit. 2020, 38, 78–81. [Google Scholar]
  20. Abhinav, R.; Sunder, P.S.; Gowrishankar, A.; Vignesh, S.; Vivek, M.; Kishore, V.R. Numerical study on effect of vent locations on natural convection in an enclosure with an internal heat source. Int. Commun. Heat Mass Transf. 2013, 49, 69–77. [Google Scholar] [CrossRef]
  21. Ajmera, S.K.; Mathur, A.N. Experimental investigation of mixed convection in multiple ventilated enclosure with discrete heat sources. Exp. Therm. Fluid Sci. 2015, 68, 402–411. [Google Scholar] [CrossRef]
  22. Jing, W.; Willis, R.; Feng, Z. Factors Associated Quality of Life of Elderly in Non-paid or Paid Assisted Living Facilities. Korean J. Adult Nurs. 2012, 24, 99–108. [Google Scholar]
  23. Yang, K.-S. A Study on the Changes of Living Activities and the Use of Spaces of the Recuperating Elderly with Dementia in Skilled Nursing Facilities in Rural Area. J. Korean Inst. Rural. Archit. 2012, 14, 19–26. [Google Scholar]
  24. Bodur, S.; Cingil, D.D. Using WHOQOL-BREF to evaluate quality of life among Turkish elders in different residential environments. J. Nutr. Health Aging 2009, 13, 652–656. [Google Scholar] [CrossRef]
  25. Lee, H.; Kwon, S.; Kang, J. Standards of Living Space in Elderly Care Facilities Response to Infectious Diseases. J. Archit. Inst. Korea 2021, 37, 19–29. [Google Scholar]
  26. Li, H. Study on the Design of Living Spaces in Elderly Care Institutions under the AIP Model. Master’s Thesis, Southwest Jiaotong University, Chengdu, China, 2019. [Google Scholar]
  27. Ye, Q.; Liu, S.J.; Zhao, X.H.; Gong, Y.B. Exploration of Design of Living Spaces in Elderly Care Institutions Based on Harbin. Furnit. Inter. Decor. 2019, 1, 114–115. [Google Scholar]
  28. Ran, J. Study on the Design of Indoor Social Interaction Spaces in Nursing Homes Based on Behavioral Characteristics. Master’s Thesis, Chongqing University, Chongqing, China, 2017. [Google Scholar]
  29. Xiao, Y.; Wu, M.L.Y.; Zeng, T.Y.; Yang, Y. Analysis of the Needs of the Elderly in Urban Nursing Institutions in China and the Current Situation of Need Satisfaction. Gen. Nurs. 2021, 19, 4155–4158. [Google Scholar]
  30. Liu, H.; Wu, Y.; Zhang, H.; Du, X.Y. Study on the Adaptive Thermal Comfort Evaluation of the Elderly in Naturally Ventilated Residences during Summer. HVAC R Res. 2015, 45, 50–58. [Google Scholar]
  31. Qin, L.; Zhou, Y. Research on Medical Space Allocation in Elderly Care Institutions under the “Medical-Nursing Combined” Context. J. Archit. 2021, S1, 74–79. [Google Scholar]
  32. Zhao, Y. Research on the Design of Elderly Care Institutions in the Medical-Nursing Combined Model Based on a Survey in Nanjing. Master’s Thesis, Southeast University, Nanjing, China, 2017. [Google Scholar]
  33. GB50867-2013; Design Code for Elderly Facilities Buildings. Ministry of Housing and Urban-Rural Development of the People’s Republic of China: Beijing, China; General Administration of Quality Supervision, Inspection and Quarantine of the People’s Republic of China: Beijing, China; China Architecture & Building Press: Beijing, China, 2014.
  34. Versteeg, H.K.; Malalasekera, W. An Introduction to Computational Fluid Dynamics: The Finite Volume Method; Pearson Education: London, UK, 2007. [Google Scholar]
  35. Awbi, H.B. Ventilation of Buildings; Routledge: London, UK, 2013. [Google Scholar]
  36. Launder, B.E.; Spalding, D.B. The Numerical Computation of Turbulent Flows. Comput. Methods Appl. Mech. Eng. 1974, 3, 269–289. [Google Scholar] [CrossRef]
  37. Zhang, X.; Chen, Q.; Lin, Z. Numerical Simulation of Natural Ventilation in Residential Buildings with Enhanced Turbulence Models. Energy Build. 2020, 212, 109829. [Google Scholar]
  38. Smith, T.; Jones, A.; Wang, Y. Advanced Turbulence Modeling for Indoor Airflow Simulation. Build. Environ. 2018, 143, 77–89. [Google Scholar]
  39. JGJ 450-2018; Building Design Standards for Elderly Care Facilities. Ministry of Housing and Urban-Rural Development of the People’s Republic of China: Beijing, China; China Architecture & Building Press: Beijing, China, 2018.
  40. GB 50352-2019; Unified Standard for Civil Building Design. Ministry of Housing and Urban-Rural Development of the People’s Republic of China: Beijing, China; China Architecture & Building Press: Beijing, China, 2019.
Figure 1. Technical roadmap.
Figure 1. Technical roadmap.
Buildings 14 01648 g001
Figure 2. Two typical floor plans. (a) South-side living room type. (b) North-side living room type.
Figure 2. Two typical floor plans. (a) South-side living room type. (b) North-side living room type.
Buildings 14 01648 g002
Figure 3. Main entrance of Maycare Garden Elderly Care Park.
Figure 3. Main entrance of Maycare Garden Elderly Care Park.
Buildings 14 01648 g003
Figure 4. Overall floor plan of the third floor, Building No. 1, Maycare Garden Elderly Care Park.
Figure 4. Overall floor plan of the third floor, Building No. 1, Maycare Garden Elderly Care Park.
Buildings 14 01648 g004
Figure 5. Room layout model.
Figure 5. Room layout model.
Buildings 14 01648 g005
Figure 6. COS-03 temperature and humidity meter.
Figure 6. COS-03 temperature and humidity meter.
Buildings 14 01648 g006
Figure 7. SWEMA micro anemometer.
Figure 7. SWEMA micro anemometer.
Buildings 14 01648 g007
Figure 8. Agilent analyzer.
Figure 8. Agilent analyzer.
Buildings 14 01648 g008
Figure 9. Outdoor handheld weather station.
Figure 9. Outdoor handheld weather station.
Buildings 14 01648 g009
Figure 10. Measurement points in room 311.
Figure 10. Measurement points in room 311.
Buildings 14 01648 g010
Figure 11. Layout of room 311.
Figure 11. Layout of room 311.
Buildings 14 01648 g011
Figure 12. Measurement points in room 313.
Figure 12. Measurement points in room 313.
Buildings 14 01648 g012
Figure 13. Layout of room 313.
Figure 13. Layout of room 313.
Buildings 14 01648 g013
Figure 14. Entrance wind speeds in rooms 309 and 311.
Figure 14. Entrance wind speeds in rooms 309 and 311.
Buildings 14 01648 g014
Figure 15. Comparative data on room temperatures.
Figure 15. Comparative data on room temperatures.
Buildings 14 01648 g015
Figure 16. Comparison of 15-min average wind speeds.
Figure 16. Comparison of 15-min average wind speeds.
Buildings 14 01648 g016
Figure 17. Physical model of room 311. (a) The basic 3D model of the room. (b) The simplified 3D model of the room.
Figure 17. Physical model of room 311. (a) The basic 3D model of the room. (b) The simplified 3D model of the room.
Buildings 14 01648 g017
Figure 18. Elderly activity area and cross-section A-A.
Figure 18. Elderly activity area and cross-section A-A.
Buildings 14 01648 g018
Figure 19. Comparison region for grid computation selection.
Figure 19. Comparison region for grid computation selection.
Buildings 14 01648 g019
Figure 20. Comparison results of wind speed for different grid sizes.
Figure 20. Comparison results of wind speed for different grid sizes.
Buildings 14 01648 g020
Figure 21. Areas where air age does not meet standards (grey). (a) South-side public living room. (b) North-side public living room.
Figure 21. Areas where air age does not meet standards (grey). (a) South-side public living room. (b) North-side public living room.
Buildings 14 01648 g021
Figure 22. Three-dimensional model of south-side public living room type. (a) Open public living room. (b) Semi-open public living room.
Figure 22. Three-dimensional model of south-side public living room type. (a) Open public living room. (b) Semi-open public living room.
Buildings 14 01648 g022
Figure 23. Three-dimensional model of north-side public living room type.
Figure 23. Three-dimensional model of north-side public living room type.
Buildings 14 01648 g023
Figure 24. Three-dimensional model of renovation optimization. (a) South-side public living room type. (b) North-side public living room type.
Figure 24. Three-dimensional model of renovation optimization. (a) South-side public living room type. (b) North-side public living room type.
Buildings 14 01648 g024
Table 1. Statistical analysis of floor plan combinations and room elements in elderly care facilities.
Table 1. Statistical analysis of floor plan combinations and room elements in elderly care facilities.
CategoryElementQuantity (%)Typical Form
Floor Plan CombinationsTraffic Flow OrganizationIndoor Corridor42 (84%)Buildings 14 01648 i001
Outdoor Corridor8 (16%)
Functional LayoutNorth-side Bedrooms36 (72%)
North-side Non-Bedrooms14 (28%)
Non-Balcony32 (64%)Buildings 14 01648 i002
Balcony18 (36%)
Room OrganizationDirect Entry42 (84%)Buildings 14 01648 i003
Staggered Entry8 (16%)
Room LayoutRoom TypeDouble Room50 (100%)Buildings 14 01648 i004
Common Living Room (Activity Room)50 (100%)
Suite6 (12%)
External OpeningsSingle Window43 (86%)Buildings 14 01648 i005
Double Window7 (14%)
Bathroom LocationInside42 (84%)
Middle Side1 (2%)
Outside7 (14%)
Table 2. Current code requirements and dimensions of typical floor plans.
Table 2. Current code requirements and dimensions of typical floor plans.
ItemRegulationTypical Floor Plan Dimensions
Inner Corridor WidthAt least 1800 mm2450 mm
Bedroom EntranceAt least 1200 mm1200 mm
Living Space AreaAt least 14 m2/bed20.7 m2/bed
Room Ceiling HeightAt least 2600 mm2700 mm
Activity Area per PersonAt least 1.2 m22.1 m2
Window-to-Floor Area Ratio1:61:6
Table 3. Variable elements affecting ventilation.
Table 3. Variable elements affecting ventilation.
CategoryVariable ElementDetails
Common Living Room (Activity Room)Openness, Opening ConfigurationOpen/Semi-Open/Closed
Plan Convection FormEntranceDirectly Facing/Staggered
BathroomLocationOutside
Room DimensionsDepth, Room TypeDouble Room/Single Room,
External OpeningsSize, ArrangementArea, Height, Combination
Additional FeaturesHigh Windows, Louvered WindowsWindows above interior doors
Table 4. Main instruments’ measurement range and accuracy.
Table 4. Main instruments’ measurement range and accuracy.
Instrument NameMeasurement RangeMeasurement Accuracy
COS-03−40~80 °C, 0~100%RH±0.1 °C (25 °C)
±1.5%RH(60%RH, 25 °C)
SWEMA Micro Anemometer0~10 m/s0.05–2.0 m/s: ±(0.05 m/s ± 2% of reading)
>2.0 m/s: ±(0.1 m/s ± 2% of reading)
T-type Thermocouple−100 °C~400 °C±1 °C, Temperature Coefficient 0.03 °C
Table 5. Simulation condition parameters.
Table 5. Simulation condition parameters.
TimeAverage Entrance Wind Speed/m·s−1Average Surface Temperature of Enclosure Structures/K
8:45–9:000.010297.3
10:15–10:300.017298.1
12:35–12:500.015298.5
15:50–16:050.023299.4
16:45–17:000.022298.6
Table 6. Simulation results for room 311.
Table 6. Simulation results for room 311.
TimeTemperatureWind Speed
8:45–9:00Buildings 14 01648 i006Buildings 14 01648 i007
10:15–10:30Buildings 14 01648 i008Buildings 14 01648 i009
12:35–12:50Buildings 14 01648 i010Buildings 14 01648 i011
15:50–16:05Buildings 14 01648 i012Buildings 14 01648 i013
16:45–17:00Buildings 14 01648 i014Buildings 14 01648 i015
Table 7. Average Euclidean distance and similarity between simulation and measured results.
Table 7. Average Euclidean distance and similarity between simulation and measured results.
TimeAverage Euclidean DistanceAverage SimilarityProcessed Euclidean DistanceProcessed Similarity
8:45–9:000.260.7330.270.790
10:15–10:300.480.6330.220.821
12:35–12:500.420.6580.310.761
15:50–16:050.460.6430.370.729
16:45–17:000.510.6210.250.799
Table 8. Simulation results under different grid scales.
Table 8. Simulation results under different grid scales.
Grid SizeWind SpeedAir Age
0.08 mBuildings 14 01648 i016Buildings 14 01648 i017
0.1 mBuildings 14 01648 i018Buildings 14 01648 i019
0.125 mBuildings 14 01648 i020Buildings 14 01648 i021
0.15 mBuildings 14 01648 i022Buildings 14 01648 i023
Table 9. Comparative simulation of including vs. excluding bathroom.
Table 9. Comparative simulation of including vs. excluding bathroom.
Simulation StatusWind SpeedAir Age
IncludingBuildings 14 01648 i024Buildings 14 01648 i025
ExcludingBuildings 14 01648 i026Buildings 14 01648 i027
Table 10. Minimum ventilation rates (non-nursing bed positions).
Table 10. Minimum ventilation rates (non-nursing bed positions).
Per Capita Living Area  ( F P )Hourly Ventilation Rate
F P     10 m20.7
10 <   F P     20 m20.6
20 <   F P   50 m20.5
50 m2  <   F P   0.45
Table 11. Air age evaluation criteria.
Table 11. Air age evaluation criteria.
Room TypeAir Age (T)Evaluation
Activity Room (20 People)T 3600 sQualified
3600 s < TNot Qualified
Elderly Resident RoomT 1800 sExcellent
1800 s < T 7200 sQualified
7200 s TNot Qualified
Table 12. Simulation results of wind speed and air age at different heights for two typical floor plans.
Table 12. Simulation results of wind speed and air age at different heights for two typical floor plans.
Space TypeData Type1.1 m Height1.5 m HeightA-A Cross-Section
South-Side Public Living RoomWind SpeedBuildings 14 01648 i028Buildings 14 01648 i029Buildings 14 01648 i030
Air AgeBuildings 14 01648 i031Buildings 14 01648 i032Buildings 14 01648 i033
North-Side Public Living RoomWind SpeedBuildings 14 01648 i034Buildings 14 01648 i035Buildings 14 01648 i036
Air AgeBuildings 14 01648 i037Buildings 14 01648 i038Buildings 14 01648 i039
Table 13. Simulation results of changes in public living room locations.
Table 13. Simulation results of changes in public living room locations.
Space TypeData Type1.1 m Height1.5 m HeightNot Meeting Standards (Grey)
South-Side Public Living RoomWind SpeedBuildings 14 01648 i040Buildings 14 01648 i041
Air AgeBuildings 14 01648 i042Buildings 14 01648 i043Buildings 14 01648 i044
North-Side Public Living RoomWind SpeedBuildings 14 01648 i045Buildings 14 01648 i046
Air AgeBuildings 14 01648 i047Buildings 14 01648 i048Buildings 14 01648 i049
Table 14. Simulation results for enclosed living rooms.
Table 14. Simulation results for enclosed living rooms.
Space TypeData Type1.1 m Height1.5 m HeightNot Meeting Standards (Grey)
South-Side Public Living RoomWind SpeedBuildings 14 01648 i050Buildings 14 01648 i051
Air AgeBuildings 14 01648 i052Buildings 14 01648 i053Buildings 14 01648 i054
North-Side Public Living RoomWind SpeedBuildings 14 01648 i055Buildings 14 01648 i056
Air AgeBuildings 14 01648 i057Buildings 14 01648 i058Buildings 14 01648 i059
Table 15. Simulation results for semi-open living rooms.
Table 15. Simulation results for semi-open living rooms.
Space TypeData Type1.1 m Height1.5 m HeightNot Meeting Standards (Grey)
South-Side Public Living RoomWind SpeedBuildings 14 01648 i060Buildings 14 01648 i061
Air AgeBuildings 14 01648 i062Buildings 14 01648 i063Buildings 14 01648 i064
North-Side Public Living RoomWind SpeedBuildings 14 01648 i065Buildings 14 01648 i066
Air AgeBuildings 14 01648 i067Buildings 14 01648 i068Buildings 14 01648 i069
Table 16. Simulation results for changes in room depth.
Table 16. Simulation results for changes in room depth.
Space TypeData Type1.1 m Height1.5 m HeightNot Meeting Standards (Grey)
South-Side Public Living RoomWind SpeedBuildings 14 01648 i070Buildings 14 01648 i071
Air AgeBuildings 14 01648 i072Buildings 14 01648 i073Buildings 14 01648 i074
North-Side Public Living RoomWind SpeedBuildings 14 01648 i075Buildings 14 01648 i076
Air AgeBuildings 14 01648 i077Buildings 14 01648 i078Buildings 14 01648 i079
Table 17. Simulation results for symmetrical window arrangements.
Table 17. Simulation results for symmetrical window arrangements.
Space TypeData Type1.1 m Height1.5 m HeightNot Meeting Standards (Grey)
South-Side Public Living RoomWind SpeedBuildings 14 01648 i080Buildings 14 01648 i081
Air AgeBuildings 14 01648 i082Buildings 14 01648 i083Buildings 14 01648 i084
North-Side Public Living RoomWind SpeedBuildings 14 01648 i085Buildings 14 01648 i086
Air AgeBuildings 14 01648 i087Buildings 14 01648 i088Buildings 14 01648 i089
Table 18. Simulation results for increased external opening area.
Table 18. Simulation results for increased external opening area.
Space TypeData Type1.1 m Height1.5 m HeightNot Meeting Standards (Grey)
South-Side Public Living RoomWind SpeedBuildings 14 01648 i090Buildings 14 01648 i091
Air AgeBuildings 14 01648 i092Buildings 14 01648 i093Buildings 14 01648 i094
North-Side Public Living RoomWind SpeedBuildings 14 01648 i095Buildings 14 01648 i096
Air AgeBuildings 14 01648 i097Buildings 14 01648 i098Buildings 14 01648 i099
Table 19. Simulation results of high windows and louvered windows in south-side public living room type.
Table 19. Simulation results of high windows and louvered windows in south-side public living room type.
Data TypeHeightHigh WindowsLouvered Windows
Wind Speed1.1 mBuildings 14 01648 i100Buildings 14 01648 i101
1.5 mBuildings 14 01648 i102Buildings 14 01648 i103
Air Age1.1 mBuildings 14 01648 i104Buildings 14 01648 i105
1.5 mBuildings 14 01648 i106Buildings 14 01648 i107
Table 20. Simulation results of high windows and louvered windows in north-side public living room type.
Table 20. Simulation results of high windows and louvered windows in north-side public living room type.
Data TypeHeightHigh WindowsLouvered Windows
Wind Speed1.1 mBuildings 14 01648 i108Buildings 14 01648 i109
1.5 mBuildings 14 01648 i110Buildings 14 01648 i111
Air Age1.1 mBuildings 14 01648 i112Buildings 14 01648 i113
1.5 mBuildings 14 01648 i114Buildings 14 01648 i115
Table 21. Key factors affecting natural ventilation in typical floor plans.
Table 21. Key factors affecting natural ventilation in typical floor plans.
FactorAdjustmentImpact on Ventilation
Living Activity RoomEnclosedSlight decrease
Semi-openImprovement in central north-side room
Plan Convection FormStaggeredSignificant decrease on both sides
Room SettingsRoom DepthImprovement in south-side rooms and corridors, decrease in north-side rooms
External Opening AdjustmentsIncrease AreaOverall significant improvement
Additional MeasuresInternal OpeningsHigh windows superior to louvered windows
Table 22. Design optimization proposals and simulation validation results.
Table 22. Design optimization proposals and simulation validation results.
Space TypeData TypeDesign SchemeNot Meeting Standards (Grey)
South-Side Public Living RoomOpenBuildings 14 01648 i116Buildings 14 01648 i117
Semi-OpenBuildings 14 01648 i118Buildings 14 01648 i119
North-Side Public Living RoomOpenBuildings 14 01648 i120Buildings 14 01648 i121
Table 23. Renovation optimization proposals and simulation validation results.
Table 23. Renovation optimization proposals and simulation validation results.
Space TypeData TypeDesign SchemeNot Meeting Standards (Grey)
South-Side Public Living RoomOpenBuildings 14 01648 i122Buildings 14 01648 i123
Semi-OpenBuildings 14 01648 i124Buildings 14 01648 i125
North-Side Public Living RoomOpenBuildings 14 01648 i126Buildings 14 01648 i127
Disclaimer/Publisher’s Note: The statements, opinions and data contained in all publications are solely those of the individual author(s) and contributor(s) and not of MDPI and/or the editor(s). MDPI and/or the editor(s) disclaim responsibility for any injury to people or property resulting from any ideas, methods, instructions or products referred to in the content.

Share and Cite

MDPI and ACS Style

Liu, T.; Wang, J.; Zhou, D.; Meng, X.; Luo, X.; Wang, Y. Research on Optimization Design Strategies for Natural Ventilation in Living Units of Institutional Elderly Care Facilities Based on Computational Fluid Dynamics Simulation. Buildings 2024, 14, 1648. https://doi.org/10.3390/buildings14061648

AMA Style

Liu T, Wang J, Zhou D, Meng X, Luo X, Wang Y. Research on Optimization Design Strategies for Natural Ventilation in Living Units of Institutional Elderly Care Facilities Based on Computational Fluid Dynamics Simulation. Buildings. 2024; 14(6):1648. https://doi.org/10.3390/buildings14061648

Chicago/Turabian Style

Liu, Tianye, Jingxian Wang, Dian Zhou, Xiangzhao Meng, Xilian Luo, and Yupeng Wang. 2024. "Research on Optimization Design Strategies for Natural Ventilation in Living Units of Institutional Elderly Care Facilities Based on Computational Fluid Dynamics Simulation" Buildings 14, no. 6: 1648. https://doi.org/10.3390/buildings14061648

APA Style

Liu, T., Wang, J., Zhou, D., Meng, X., Luo, X., & Wang, Y. (2024). Research on Optimization Design Strategies for Natural Ventilation in Living Units of Institutional Elderly Care Facilities Based on Computational Fluid Dynamics Simulation. Buildings, 14(6), 1648. https://doi.org/10.3390/buildings14061648

Note that from the first issue of 2016, this journal uses article numbers instead of page numbers. See further details here.

Article Metrics

Back to TopTop