Centrifuge Model Investigation of Interaction between Successively Constructed Foundation Pits
Abstract
:1. Introduction
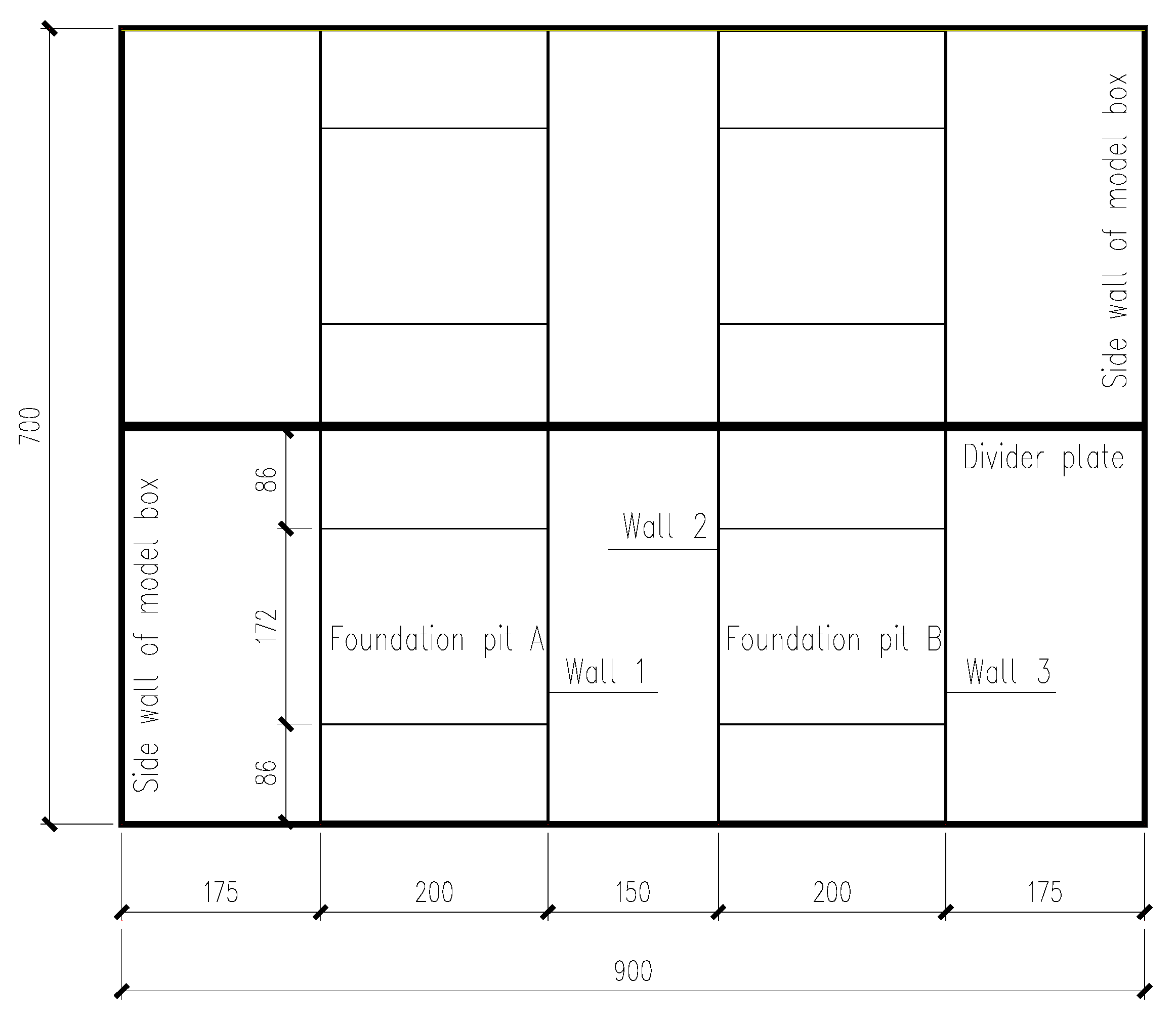
2. Centrifugal Model Test Design
3. Analysis of Test Results
4. Conclusions
- During the construction of foundation pit B, diaphragm wall No. 1 experienced a negative bending moment, the support experienced tension, and the wall top deformed toward the middle. Corresponding measures should be taken in real projects to avoid tension in support members.
- The stress and deformation of the retaining wall as well as the axial force of the support of foundation pit B were markedly larger than those of foundation pit A. Therefore, for similar practical projects, a foundation pit with high protection requirements should be constructed later.
- The active earth pressure of the middle soil of diaphragm wall No. 1 during the construction of foundation pit A was higher than that of diaphragm wall No. 2 during the construction of foundation pit B.
- The settlement of the middle soil in the construction of foundation pit B was larger than that in the construction of foundation pit A, indicating that the settlement of the middle soil was superimposed during the construction of two adjacent foundation pits.
- During the construction of two adjacent foundation pits, the displacement of wall 3 was greater than that of wall 2, indicating that during the construction of two adjacent foundation pits, foundation pit B was offset toward foundation pit A, but only slightly.
Author Contributions
Funding
Institutional Review Board Statement
Informed Consent Statement
Data Availability Statement
Acknowledgments
Conflicts of Interest
References
- Dan, K.; Sahu, R.B. Estimation of Ground Movement and Wall Deflection in Braced Excavation by Minimum Potential Energy Approach. Int. J. Géoméch. 2018, 18, 04018068. [Google Scholar] [CrossRef]
- Tan, Y.; Wang, D. Characteristics of a Large-Scale Deep Foundation Pit Excavated by the Central-Island Technique in Shanghai Soft Clay. I: Bottom-Up Construction of the Central Cylindrical Shaft. J. Geotech. Geoenviron. Eng. 2013, 139, 1875–1893. [Google Scholar] [CrossRef]
- Tan, Y.; Wang, D. Characteristics of a Large-Scale Deep Foundation Pit Excavated by the Central-Island Technique in Shanghai Soft Clay. II: Top-Down Construction of the Peripheral Rectangular Pit. J. Geotech. Geoenviron. Eng. 2013, 139, 1894–1910. [Google Scholar] [CrossRef]
- Chowdhury, S.S. Effect of location of surcharge on braced excavation under different excavation widths. In Proceedings of the Indian Geotechnical Conference 2012, New Delhi, India, 13–15 December 2012. [Google Scholar]
- Liu, Y.; Xiang, B.H.; Fu, M.F. Observed Performance of a Large-Scale Deep Triangular Excavation in Shanghai Soft Clays. Geotech. Geol. Eng. 2019, 37, 2791–2809. [Google Scholar] [CrossRef]
- Liu, Y.; Xiang, B.H.; Fu, M.F. Influence of Dewatering in Deep Excavation on Adjacent Pile Considering Water Insulation Effect of Retaining Structures. Geotech. Geol. Eng. 2019, 37, 5123–5130. [Google Scholar] [CrossRef]
- Lim, A.; Ou, C.Y. Stress paths in deep excavations under undrained conditions and its influence on deformation analysis. Tunn. Undergr. Space Technol. 2017, 63, 118–132. [Google Scholar] [CrossRef]
- Tan, Y.; Wei, B.; Zhou, X.; Diao, Y. Lessons learned from construction of Shanghai metro stations: Importance of quick excavation, promptly propping, timely casting and segmented construction. J. Perform. Constr. Facil. 2015, 29, 04014096. [Google Scholar] [CrossRef]
- Yan, G.; Wu, W.; Zhang, G. Centrifuge model test study of behavior of foundation pit. In Proceedings of the Geo-Shanghai, Shanghai, China, 26–28 May 2014; pp. 622–632. [Google Scholar]
- Tan, Y.; Li, X.; Kang, Z.; Liu, J.; Zhu, Y. Zoned Excavation of an Oversized Pit Close to an Existing Metro Line in Stiff Clay: Case Study. J. Perform. Constr. Facil. 2015, 29, 04014158. [Google Scholar] [CrossRef]
- Finno, R.J.; Arboleda-Monsalve, L.G.; Sarabia, F. Observed Performance of the One Museum Park West Excavation. J. Geotech. Geoenviron. Eng. 2015, 141, 04014078. [Google Scholar] [CrossRef]
- Ding, J.S.; Xian, Y.Q.; Liu, T.J. Numerical Modeling of Affection of Foundation Pit Excavation on Metro Tunnel. Adv. Mater. Res. 2012, 368–373, 2562–2566. [Google Scholar] [CrossRef]
- Liang, Y.Y.; Liu, N.W.; Yu, F.; Gong, X.N.; Chen, Y.T. Prediction of Response of Existing Building Piles to Adjacent Deep Excavation in Soft Clay. Adv. Civ. Eng. 2019, 2019, 8914708. [Google Scholar] [CrossRef] [Green Version]
- Chen, J.S.; Mo, H.H.; Liu, S.Z. Evaluation on Effect of Building Settlement due to Adjacent Deep Excavation. Appl. Mech. Mater. 2012, 170–173, 637–646. [Google Scholar] [CrossRef]
- Nazir, S. The effect of deep excavation-induced lateral soil movements on the behavior of strip footing supported on reinforced sand. J. Adv. Res. 2012, 3, 337–344. [Google Scholar]
- Zhang, H.B. Environmental Impact Induced by Excavation Group and Deformation Control. Ph.D. Thesis, Shanghai Jiao Tong University, Shanghai, China, 2016. (In Chinese). [Google Scholar]
- Wang, J.H.; Chen, J.J.; Li, M.G. Concept and characters of deep excavation groups in urban underground space development. Jpn. Geotech. Soc. Spec. Publ. 2016, 2, 1559–1562. [Google Scholar] [CrossRef] [Green Version]
- Chen, H.H.; Li, J.P.; Li, L. Performance of a zoned excavation by bottom-up technique in Shanghai soft soils. J. Geotech. Geoenviron. Eng. 2018, 144, 05018003. [Google Scholar] [CrossRef]
- Dai, B.; Hu, G.; Wang, H.S. Analysis and practice of influence of synchronous excavation of adjacent foundation pits in Shanghai area. Chin. J. Geotech. Eng. 2021, 43, 129–132. (In Chinese) [Google Scholar]
- Chen, D.J. Study on Excavation Displacement Transformation of Adjacent Pits in Shanghai South Railway Station. Buil. Sci. 2005, 21, 59–63. (In Chinese) [Google Scholar]
- Li, M.G. Deformation Behavior of Adjacent Retaining Walls in Group Excavation. Ph.D. Thesis, Shanghai Jiao Tong University, Shanghai, China, 2016. (In Chinese). [Google Scholar]
- Hu, M.Y.; Shou, S.D.; Yuan, J.; Zhang, Y.; Zhang, S.Z. Study on influence of excavation process of adjacent foundation pits. J. Zhejiang Univ. Technol. 2022, 50, 111–118. (In Chinese) [Google Scholar]
- Tao, D.J.; Zhang, H.W.; Kong, D.J. Interaction Effects Analysis of Twin Adjacent Excavations in Soft Soil Area. J. Water Resour. Archit. Eng. 2020, 18, 6. (In Chinese) [Google Scholar]
- Cui, J.F.; Li, J.P.; Li, L. Deformation of Subway Tunnels Affected by Adjacent Excavation: In-situ Monitoring and Centrifugal Model Test. In Proceedings of the GeoShanghai International Conference; Springer: Singapore, 2018; pp. 429–438. [Google Scholar]
- Guo, H.Q.; Tao, S.Z.; Zhang, Q. Research on Stress and Deformation of Super Deep Foundation Pits based on the Centrifugal Model Test. J. Undergr. Space Eng. 2020, 16, 177–186. (In Chinese) [Google Scholar]
- Xu, Q.W.; Ma, X.F.; Zhu, H.H.; Ding, W. Centrifugal model test on extra-deep foundation pit excavations in soft ground. China Civ. Eng. J. 2009, 12, 154–161. (In Chinese) [Google Scholar]
- Shao, P.; Zhu, C.; Pan, J.; Liu, N. Study on the Interaction of Limited Earth Pressure and Supporting Structure between Deep Foundation Pits. Chin. J. Undergr. Space Eng. 2021, 17, 187–195. (In Chinese) [Google Scholar]
- Li, L.X.; Fu, Q.H.; Huang, J.J. Centrifuge model tests on cantilever foundation pit engineering in sand ground and silty clay ground. Rock Soil Mech. 2018, 2, 529–536. (In Chinese) [Google Scholar]
- Liang, F.Y.; Chu, F.; Song, Z.; Li, Y.S. Centrifugal model test research on deformation behaviors of deep foundation pit adjacent to metro stations. Rock Soil Mech. 2012, 33, 657–664. (In Chinese) [Google Scholar]
- Chen, Y.M.; Tang, Y.; Ling, D.S.; Wang, Y.B. Hypergravity Experiments on Multiphase Media Evolution. Sci. China Technol. Sci. 2022. [Google Scholar] [CrossRef]
- Liang, F.; Liang, X.; Zhang, H.; Wang, C. Seismic response from centrifuge model tests of a scoured bridge with a pile-group foundation. J. Bridge Eng. 2020, 25, 04020054. [Google Scholar] [CrossRef]
- Liang, F.; Zhao, M.; Qin, C.; Jia, Y.; Wang, Z.; Yue, G. Centrifugal test of a road embankment built after new dredger fill on thick marine clay. Mar. Georesour. Geotechnol. 2020, 38, 114–121. [Google Scholar] [CrossRef]
- Xian-Feng, M.; Zhang, H.H.; Wei-Jie, Z. Centrifuge model tests on deformation of ultra-deep foundation pits in soft ground. Chin. J. Geotech. Eng. 2009, 31, 1371–1377. [Google Scholar]














| Soil Layer | Moisture Content/ω (%) | Internal Friction Angle/φ (°) | Unit Weight/γ0 (kN·m−3) | Compression Modulus/Es (MPa) | 
|---|---|---|---|---|
| Standard sand | 4 | 31.0 | 16.1 | 11.3 | 
| Component Type | 1/n Ratio (Reinforced Concrete) | Alternative Materials (Aluminum Alloy) | 
|---|---|---|
| Thickness of diaphragm wall model | 6 mm | 4.65 mm | 
| Purlin size | 10 mm × 7 mm | 7 mm × 5 mm (solid) | 
| Support section size | 8 mm × 7 mm | 7 mm × 4 mm (solid) | 
| Support length | 200 mm | 200 mm | 
| Step | Event | 
|---|---|
| Preparation | Excavation of Soil Layer 1 of foundation pit A and B, installing Strut 1 and Strut 4 | 
| Step 1 | Excavation of Soil Layer 2 of foundation pit B and installing Strut 2 | 
| Step 2 | Excavation of Soil Layer 3 of foundation pit B | 
| Step 3 | Installing Strut 3 and excavation of Soil Layer 4 of foundation pit B | 
| Preparation | Construction of the underground structure of foundation pit B | 
| Step 4 | Excavation of Soil Layer 2 of foundation pit A | 
| Step 5 | Installing Strut 5 and excavation of Soil Layer 3 of foundation pit A | 
| Step 6 | Installing Strut 6 and excavation of Soil Layer 4 of foundation pit A | 
| Axial Force of Strut | ZC-1 | ZC-2 | ZC-3 | ZC-4 | ZC-5 | ZC-6 | 
|---|---|---|---|---|---|---|
| Step 1 | 654 | 1798 | −198 | |||
| Step 2 | 476 | 3362 | −211 | |||
| Step 3 | 144 | 2657 | 4212 | −225 | ||
| Step 4 | 1130 | |||||
| Step 5 | 882 | 1382 | ||||
| Step 6 | 826 | 1250 | 2760 | 
| Construction Steps | Step 1 | Step 2 | Step 3 | Step 4 | Step 5 | Step 6 | 
|---|---|---|---|---|---|---|
| Surface subsidence (cm) | 9.6 | 10.4 | 10.9 | 5.3 | 6.6 | 6.9 | 
| Publisher’s Note: MDPI stays neutral with regard to jurisdictional claims in published maps and institutional affiliations. | 
© 2022 by the authors. Licensee MDPI, Basel, Switzerland. This article is an open access article distributed under the terms and conditions of the Creative Commons Attribution (CC BY) license (https://creativecommons.org/licenses/by/4.0/).
Share and Cite
Chen, S.; Cui, J.; Liang, F. Centrifuge Model Investigation of Interaction between Successively Constructed Foundation Pits. Appl. Sci. 2022, 12, 7975. https://doi.org/10.3390/app12167975
Chen S, Cui J, Liang F. Centrifuge Model Investigation of Interaction between Successively Constructed Foundation Pits. Applied Sciences. 2022; 12(16):7975. https://doi.org/10.3390/app12167975
Chicago/Turabian StyleChen, Shangrong, Jifei Cui, and Fayun Liang. 2022. "Centrifuge Model Investigation of Interaction between Successively Constructed Foundation Pits" Applied Sciences 12, no. 16: 7975. https://doi.org/10.3390/app12167975
APA StyleChen, S., Cui, J., & Liang, F. (2022). Centrifuge Model Investigation of Interaction between Successively Constructed Foundation Pits. Applied Sciences, 12(16), 7975. https://doi.org/10.3390/app12167975
 
         
                                                

 
       