Abstract
The purpose of this study was to investigate the receiving ability and efficacy of volleyball players, which can be effectively improved after practicing with volleyballs of different weights. In this study, 36 elite male volleyball players were recruited and participated in a four-week training program in four groups: a lighter-ball training group (LBTG), a heavier-ball training group (HBTG), a normal-ball training group (NBTG), and a control group (CG). All subjects were required to evaluate their receiving ability during the initial training (week-0) and then to reevaluate it after two (week-2) and four (week-4) weeks of training. The statistical analysis revealed that the time factor (F2, 64 = 209.346, p < 0.001) and the time × group factor (F6, 64 = 17.463, p < 0.001) were significant but the group factor (F3, 32 = 0.340, p = 0.797) was not. The results revealed that the LBTG experienced a significant positive effect on the receiving test after four weeks of training, with an 8.6% improvement in skill performance after two weeks and a 16.4% improvement after four weeks. The HBTG, NBTG, and CG improved by 2.6%, 5.3%, and 3.8% after two weeks and by 6.3%, 9.3%, and 4.3% after four weeks, respectively. The main findings were that four weeks of volleyball training with a lighter ball resulted in significant improvements in player performance. In contrast, training with a ball with 70 g of added mass did not effectively enhance motor ability development.
1. Introduction
Receiving is one of the most important skills in volleyball sports. Past literature indicates that elite teams are significantly better at receiving than non-elite teams, and research has also shown that the quality of attack depends on the quality of ball handling. This, however, depends on the quality of receiving or defense [1]. In volleyball, there is a close relationship between motor abilities and performance [2,3]. Zetou et al. [4] showed that the outcome of a match can be predicted by the receiving performance. If a team can pass each ball perfectly to the setter during receiving, the setter can launch the first tempo attack or pass the ball to the outside hitter to attack. Therefore, receiving quality directly increases the ability to distribute the ball, which translates into a greater probability of a point attack.
Receiving requires both player movements and the corresponding arm movements. After receiving the signal to serve, the player moves quickly to the zone where the ball will likely be hit. The final movement of the arms is to direct the ball to the planned reception place. Some teams prefer to receive the ball in zone 2, some in zone 3, and some between zones 2 and 3 or 3 and 4. The preference varies with tactics. Therefore, when developing and training the receiving technique, it is necessary to develop the correct concept concerning what needs to be done. Then, adjustments need to be made to the stability of the athlete’s movement control through a structured and systematic model. Movement control becomes habitual through repetitive training, which creates a synergistic pattern of muscle use and allows for better control of the musculoskeletal structure and effective learning [5]. In learning volleyball skills, the effects of different practice styles on skill acquisition and transfer, as well as on retained performance, have become a major issue as coaches and trainers aim to develop the most effective teaching skills [6]. Two of the most important goals in motor control learning is to ensure that skill practice is adaptable to new situations that the learner encounters (task-to-task transfer) and that the skill is retained over time once it is learned [7,8,9].
The first thing that must be understood during the learning phase is the initial skill level of the learner. Wulf and Shea [10] pointed out that situations with low processing could benefit performers if the load and challenge were increased. On the other hand, practice conditions with extremely high loads would be improved by reducing the load to more manageable levels. Guadagnoli and Lee [11] developed the hypothesis of the “challenge point” to illustrate learners’ skill levels. The main point of the hypothesis is that if learning should occur, the functional task difficulty must be adjusted to the learner’s skill level [12]. Additionally, if the learning tasks differ too much in afferent information and movement characteristics, then no positive transfer can be expected for the performers [13]. In volleyball, this means that if learners reach a stable level, they must change their functional task difficulty to achieve further development. In this way, the challenge point hypothesis allows for systematic enhancement of task difficulties [14,15].
In the task constraints of the performance context, the interaction of the organism, environment, and the task forms an attractor layout of a perceptual-motor landscape, and it also represents the individual’s stable movement solutions [16,17]. Skill learning is a personal behavior that changes over time and is also a characteristic goal-directed practical result [17]. Through practice, the individual will perceivably adapt to all the information that can be received and then transform it into the ability to develop organization and coordination [18]. Tremblay and Proteau [19] have shown that changing incoming information between acquisition and transfer tests has a decreasing effect on transfer performance. This may indicate that the learning of skills involves specific incoming information that is available during acquisition, which is essential for motor control. Essentially, this means that if two tasks do not share the same incoming information, a positive transfer between them cannot be expected. The transfer of motor learning is the conceptualized processing of a behavior that was developed with a certain set of constraints being adapted to a new set of constraints [17,20]. The transfer process can be promoted when the new task is close to an individual’s existing attractor repertoire. On the other hand, an existing attractor that is far from a functional attractor will “pull” the entire system away from a functional coordination pattern, reducing performance [17].
Schmidt and Lee [21] noted that human behavior changes as a result of changes in external factors. In terms of sports training and learning, equipment adjustments can improve the accuracy of movement patterns and techniques and improve the consistency of movements. Pellett, Henschel-Pellett, and Harrison [22] reported significant improvements in athletic performance after a short cycle of 16 days of practice with a lighter (75% of normal weight) volleyball for handling and underhand serving techniques. In youths, the results of training with different ball weights have been even better. Arias, Argudo, and Alonso [23] examined the effects of different basketball weights on the dribbling, crossover, and passing abilities of players aged 9–11 years and found that using a lighter basketball (440 g) was the most effective while the regular (485 g) and heavier (540 g) balls were not as effective in enhancing performance. Burcak [24] studied the effect of warming up with two different sizes of balls on passing skills and conducted 10 days of training with 28 non-elite soccer players. Their results indicated that warming up with a smaller ball before a game had a positive effect on passing skill during the game.
Overall, many studies have suggested that changing the weight and size of a ball can have an impact on athletic performance during learning or competition. A trend change in the dynamic force characteristics of the ball can be achieved [25]. However, few studies have examined the intervention effects of volleyballs of different weights in training, so the benefits of applying them to specialized athletes need clarification. Therefore, this study was conducted to investigate whether volleyball players could improve their receiving ability as well as performance after training with a lighter or heavier ball.
2. Methods
2.1. Study Subjects
Thirty-six male volleyball players in Level 1 from Taiwan’s University Volleyball League were recruited as research participants. They had an average height of 181.61 ± 5.36 cm, weight of 75.37 ± 6.5 kg, age of 21.32 ± 2.5 years, and length of playing professionally of 9.52 ± 2.68 years. They were subjected to stratified sampling (SS). The participants of player functions for each group are provided in Table 1. Stratified sampling was used to classify nine players into the lighter-ball training group (LBTG), nine players into the heavier-ball training group (HBTG), nine players into the normal-ball training group (NBTG), and nine players into the control group (CG) according to player characteristics (attackers and free agents). The study was conducted according to the guidelines of the Declaration of Helsinki and approved by the Institutional Review Board of Landseed Hospital (protocol code: 17-020-B1; date of approval 16 August 2017).
Table 1.
The participants in player functions in each group.
2.2. Research Tools and Court Layout
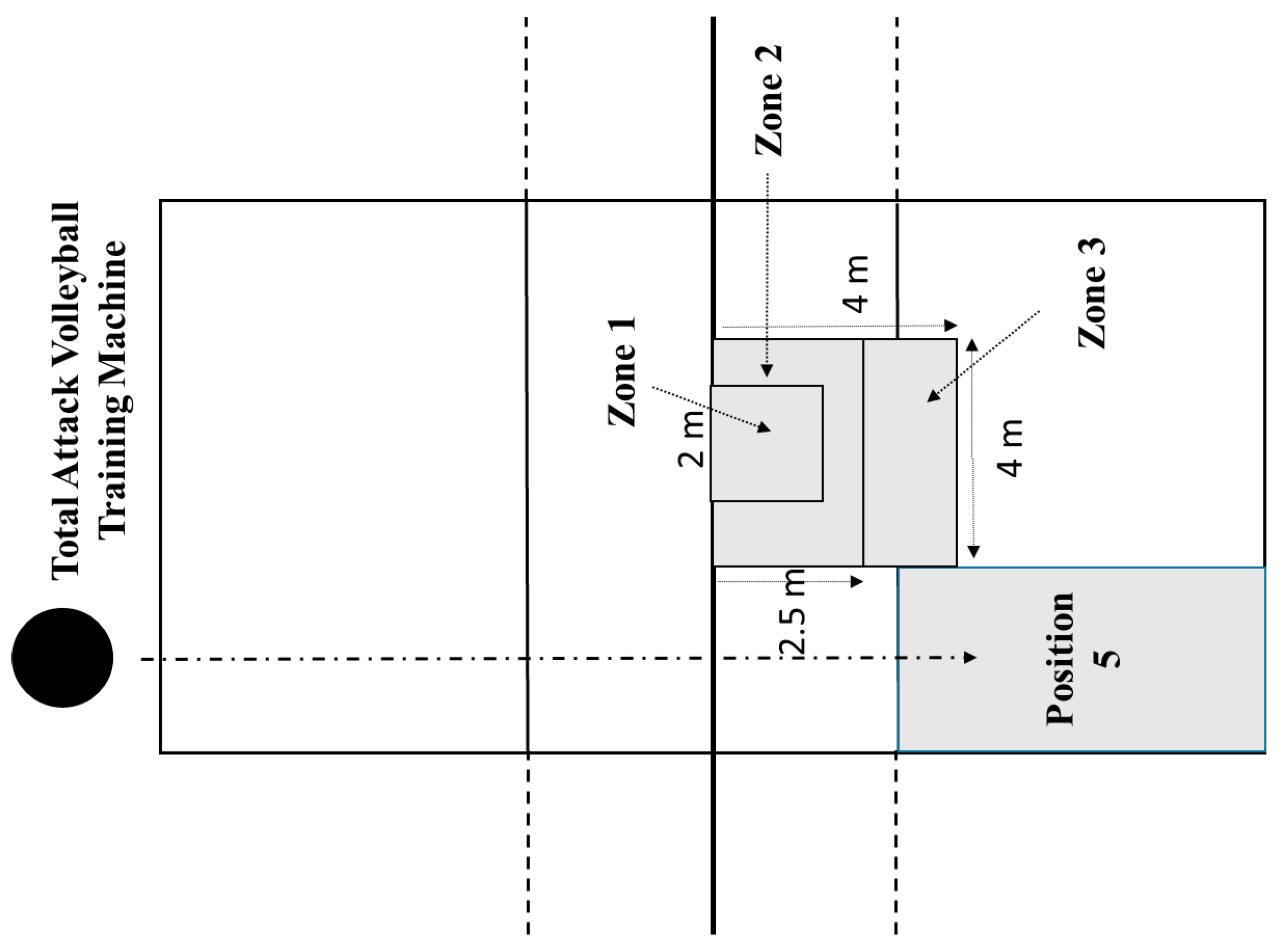
This study employed Conti-7000 volleyballs of three different weights: 230 ± 10 g (lighter ball, LB), 270 ± 10 g (normal ball, NB), and 340 ± 10 g (heavier ball, HB) (Continental Chemical Industries Co. Ltd., Taipei, Taiwan). Each ball was 65–67 cm in circumference. The Conti-7000 consists of an 18- panel design; an exclusive, soft polyurethane microfiber surface for improved tactile impression; a foam elastomer padding for improving ball liveliness; and a cloth-wrapped wound center for better inner airtightness. To adjust the weight, the thickness of the cloth-wrapped wound center was changed. In the experimental test, six new balls of each type were used. As per the regulations of the Fédération Internationale de Volleyball (FIVB), the air pressure for each ball was set to 294.3–318.8 mbar. The average for this experiment was 306 mbar. Regarding the Total Attack Volleyball Training Machine (Sports Attack), the target frame for measuring receiving and serving abilities had the following measurements: an outer frame width of 200 cm, length of 300 cm, and a trapezoidal frame height of 160 cm and 243 cm.
2.3. Operational Definition
Serve-Reception Skills Evaluation
The target frame for receiving-skill evaluation was developed by modifying the range and scoring criteria set by Afonso et al. [26]. With reference to that study, the height of the serving machine (Silver Model; Sports Tutor Inc., Burbank, CA, USA) was set at 215 cm and the elevation angle was set at 20°; the machine was located 3 m directly behind the service zone and 2.25 m from the right end line. After adjustment of the serving machine, the ball speed was measured using a speed gun at 38 mph = 61.16 km/h = 16.98 m/s. The target for the receiving evaluation was placed at position 3 in the middle of the attack zone of the court. Each subject was evaluated using 20 balls in the receiving zone; the cumulative score for 20 balls was the score of the receiving performance. The NB was used to conduct the receiving test during the evaluation. The scoring rules were as follows: 5 points for receiving the ball into the “zone 1” box or touching the top edge of the zone 1 frame of the target frame, 3 points for receiving the ball into the “zone 2” box or touching the top edge of the zone 2 frame of the target frame, 2 points for receiving the ball into the “zone 3” box or touching the top edge of the zone 3 frame of the target frame, and 0 points for failing to receive the ball or failing to receive the ball into the target frame. In this study, the volleyball player’s skills in serve reception of the ball in a straight line was investigated; hence, the volleyball court behind the bottom line at position 1 was used as the serving zone and position 5 on the opposite side of the court was used as the receiving test and training zone. The trajectory of the received ball was required to be higher than the net. The layout of the training and measurement zones is shown in Figure 1.
Figure 1.
Training and experimental site layout.
2.4. Study Steps
The serve-reception skills training and skill-based conditioning protocols were performed four times per week (Mon., Tue., Thu., and Fri.) during the four-week period at the beginning of the season (August). A single session for both programs lasted up to 120 min (10 min of standardized warm-up, 10 min of skill-based warm-up, 16 min of serve-reception skills training, and 75–85 min of skill-based conditioning). In this study, all the training programs were performed at the indoor stadium of Chung Yuan Christian University in the afternoon (2 p.m.). All the participants were required to wear short-sleeved shirts, athletic shorts, and volleyball shoes. The data for the serve-reception skills assessment were collected by two professional coaches, both of whom had been teaching volleyball for more than 15 years.
At the beginning of the experiment, the serve-reception skills assessment (week-0) was administered to all subjects. The LBTG and HBTG then completed 10 min of LB/HB practice and 120 balls of LB/HB receiving training at the beginning of each training session with an eight-second interval between each serve. The NBTG completed 120 balls of NB receiving training for each training session. The CG did not receive additional receiving training. The training was conducted four times a week for four weeks and all subjects were required to re-evaluate their receiving ability after completing two (week-2) and four (week-4) weeks of training. After completing the 10 min warm-up drill and the 16 min receiving drill, the LBTG and HBTG were required to switch to the NB for daily practice.
2.5. Statistical Analysis
Statistical analyses were performed in SPSS software, version 20.0 (Statistical Package for Social Science, Chicago, IL, USA). Descriptive statistics included calculations of the means and standard deviations. A Shapiro–Wilk test indicated that all data showed a normal distribution. To compare the effects of the training protocols, a two-factor mixed factorial ANOVA was used with training group as the between-ball-mass factor (LBTG, HBTG, NTBG, and CG) and with repeated measures on test occasion as the within-participants factor (week-0, week-2, and week-4). A Scheffe post hoc analysis was used to determine the effects of training on the variables. Simple effects were tested when the two-factor effect reached statistical significance, whereas the main effects were tested when the interaction effect did not reach statistical significance. The differences between week-0, week-2, and week-4 for each group were evaluated using magnitude-based Cohen’s effect size (ES) statistics with modified qualitative descriptors. The effect size was assessed using the following criteria: <0.2 = trivial; 0.2–0.6 = small; >0.6–1.2 = moderate; >1.2–2.0 = large; and >2.0 very large differences [27]. In addition, pre- to post-testing differences are presented as the average percentage of changes. In all tests, p < 0.05 was used as the level of significant differences.
3. Results
The data analysis generated three main themes representative of the training effects (group, time, and group × time). The time and group × time themes presented significant effects but the group factor did not. Because the group × time factor was statistically significant, the simple effects were tested for differences between groups and within groups. The results are presented in Table 2.
Table 2.
Results of analysis of variance for repeated measures for training effect within the group.
After the four-week training program, the LBTG scored 67.8 ± 4.8, 73.6 ± 4.4, and 78.9 ± 5.6 points for receiving in the pre-test, week-2, and week-4, respectively. The HBTG scores were 69.9 ± 5.1, 71.7 ± 5.2, and 74.8 ± 4.3 points, respectively; the NBTG scores were 68.4 ± 5.1, 72.0 ± 4.9, and 74.8 ± 4.3 points, respectively; and the CG scored 69.3 ± 4.8, 72.0 ± 5.2, and 72.3 ± 4.7, respectively. The two-factor mixed ANOVA revealed that the time factor was significant (F2, 64 = 209.346, p < 0.001) and the time × group factor was significant (F6, 64 = 17.463, p < 0.001). However, the group factor was not significant (F3, 32 = 0.340, p = 0.797). Therefore, a simple effects test was carried out; the results showed no significant differences among the four groups at week-0 (F3, 32 = 0.320, p = 0.811) or week-2 (F3, 32 = 0.265, p = 0.850). A significant difference was revealed among the four groups at week-4 (F3, 32 = 2.922, p = 0.049). The post hoc analysis suggested that the LBTG was significantly better than the CG (p = 0.042). The LBTG showed a significant difference in the training effect within the group (F2, 24 = 11.217, p < 0.001), demonstrating that its training effect was week-4 > week-0 and week-2 > week-0. The NBTG showed a significant difference in the training effect within the group (F2, 24 = 4.087, p = 0.030), demonstrating that its training effect was week-4 > week-0. The HBTG (F2, 24 = 1.194, p = 0.320) and CG (F2, 24 = 0.598, p = 0.558) showed no significant training effects. The results implied that the LBTG progressively improved their serve-reception effectiveness as the number of weeks increased, with a significant effect at week-2 and a significant improvement over the CG at week-4. The NBTG also improved their serve-reception effectiveness as the number of weeks increased and achieved a significant effect at week-4. The HBTG did not exhibit a significant effect after four weeks of training, although their average performance improved.
4. Discussion
This study examined whether volleyball training with balls of two different weights had a positive migratory effect on receiving skills. The main findings were that the LBTG evidenced a significant positive effect on the serve-reception test after four weeks of training, with an 8.6% improvement in skill performance after two weeks and a 16.4% improvement after four weeks. The NBTG also evidenced a significant positive effect and improved by 5.3% and 9.3% by week-2 and week-4, respectively. The HBTG and CG improved by 2.6% and 3.8% after two weeks and by 6.3% and 4.3% after four weeks, respectively. In terms of average benefits, both the HBTG and CG had positive but not significant benefits. This study’s skill migration and retention effects were consistent with those found in previous research [24]. In this study, volleyballs of different weights were applied in a training program for serve-reception skill development. The training program moderately increased the difficulty during the skill-development phase. This change produced additional cognitive information for the athlete, which is important for transfer and retention performance. According to the results of this study, the practice added sufficient difficulty for the participants and facilitated the skill development. Therefore, when designing training methods to increase transfer and retention, the complexity of the movements should be considered along with the difficulty of the training. However, increasing the difficulty during training has no benefit if the difficulty of the original movement is already high enough [10], as the learning effect is less likely to be demonstrated with difficult and unfamiliar movements.
In this study, the practice time and total training volume (repetitions) used for the LBTG, HBTG, and NBTG were the same. In general, skill practice is usually controlled by time rather than by training volume in a sports training process. In this study, to avoid variation due to different numbers of training repetitions, the serve-reception training volume of each subject was fixed to determine the training benefits of repetitions at different ball weights. It has been pointed out [13,28] that an increased volume of practice during the learning phase is a major factor in transferring skills; that is, the learning effect can be reflected only after the training volume reaches a certain level. Our findings revealed that the LBTG performed better than the HBTG and NBTG in serve reception because the weight of the volleyball used could be adjusted by varying the thickness of the inner tube of the ball. When the volume of a ball is increased or lightened, the air resistance is higher, which affects the ball speed [29]. Likewise, increasing the mass of a ball increases the muscular load on the player [30]. Thus, the lighter ball used in this study had an increased resistance in the air, which resulted in an increased floating effect. The receivers failed to react to the ball as soon as it began flying through the air and could react only after the ball had traveled a certain distance, during which they could judge its flight direction. As a result, the LBTG faced a greater challenge during the receiving practice, so they required quicker reactions, better judgment, and a higher speed. This resulted in higher learning benefits and retention after the four-week training cycle was completed.
The key factor is not to follow the linear curve but rather to develop a stabilization plateau in volleyball/reception skill learning. This means that many repetitions and practices are required to approach the higher skill status, and then transfer and retention performance can be enhanced. The extensive practice period strengthens the link between stimuli and response in volleyball receiving tasks, thereby enhancing transfer performance in the volleyball skills. Snapp-Childs et al. [31] stated that players practice to get better at performing in competition, and the more learning tasks overlap with (i.e., are representative of) performance tasks, the greater the likelihood that such positive transfer will occur. In addition, the performance of numerous repetitions in the acquisition phase gives the learner more confidence in their performance and decreases factors such as stress and anxiety in a testing situation [32].
Transfer of training [33] is an old concept in motor learning. Since skill development or learning in volleyball can be described from a nonlinear pedagogical perspective, the design of training programs seems to be a key issue in functional practice tasks. The learning task could draw learners out of comfort zones into less comfortable performance situations, although it is important to note that in the latter, the learner might fall back on previous “intrinsic” behaviors [34]. The specific effects of a practice task on athletic performance are predicated on levels of task similarity (more similar or less similar) [35]. Therefore, the serve-reception skills-training program in this study was designed based on input from two experienced coaches, the athletes, and the views of previous research [25,26] in co-designing a practice context [36] that could support athlete performance development.
In this study, the LBTG and HBTG were given the same training volume: 10 min to warm up with the lighter/heavier balls in addition to the receiving training. Thus, the greater improvement of the LBTG can be ascribed to the weight of the ball of this group not differing as much from normal as the weight of the ball used by the HBTG. Interestingly, in the results showing improved skill performance, the results of the NBTG were better than the results of the HBTG. The HBTG did not improve as much as the LBTG and NBTG because the perturbation caused by the additional 70 g was too great. Consequently, to increase ball-receiving performance, the training task should be close to the individual’s existing attractor repertoire.
In this study, we observed male college athletes, and therefore generalization of the results is limited to similar samples of athletes. No results related to physiological and psychological responses to each of the applied training programs were collected; such results could certainly allow monitoring of the athletes’ personal conditions during the entire training program. This study did not develop information on the eventual influence of studied training modalities on players’ serve-reception skills in real game situations, which are one of the most important factors in success in volleyball. Finally, it may be worthwhile for future research to explore the effects of ball mass on other skills in volleyball.
5. Conclusions
The most important finding of the present research was that college male volleyball players who trained using lighter volleyballs exhibited improvements in their serve-reception and passing skills. The reason for this finding was that the LBTG experienced the greatest significant improvement in performance after the training program. However, there was no significance difference between groups. These results showed that training with lighter balls increased ball control. This increase was assumed to facilitate accurate passing during volleyball matches. In this context, it is suggested that trainers have team players practice serve-reception skills with a lighter ball during training.
In addition, the findings of the current study also indicated that training with a ball with an additional 70 g of mass did not effectively enhance serve-reception skills. The difference from the original motor characteristics was too great and the skill transfer did not yield positive effects. This implied that even for elite athletes, the development and improvement of techniques still require suitable training to improve skill levels and thus the transfer and retention of performance.
Author Contributions
Conceptualization, K.-C.L. and C.-Y.C.; methodology, K.-C.L.; software, K.-C.L.; validation, C.-Y.C., M.-H.H. and W.-M.L.; formal analysis, K.-C.L.; investigation, K.-C.L.; resources, K.-C.L.; data curation, K.-C.L.; writing—original draft preparation, K.-C.L.; writing—review and editing, W.-M.L.; visualization, M.-H.H.; supervision, K.-C.L.; project administration, K.-C.L.; funding acquisition, K.-C.L. All authors have read and agreed to the published version of the manuscript.
Funding
This research was funded by the National Science and Technology Council under grant number 106-2410-H-033-037 and by Chung Yuan Christian University.
Institutional Review Board Statement
The study was conducted according to the guidelines of the Declaration of Helsinki and approved by the Institutional Review Board of Landseed Hospital (protocol code: 17-020-B1; date of approval: 16 August 2017).
Informed Consent Statement
Informed consent was obtained from all subjects involved in the study.
Data Availability Statement
The data presented in this study are available on request from the corresponding author. The data are not publicly available due to privacy.
Conflicts of Interest
The authors declare no conflict of interest.
References
- Hughes, M.; Daniel, R. Playing patterns of elite and non-elite volleyball. Int. J. Perform. Anal. Sport 2003, 3, 50–56. [Google Scholar] [CrossRef]
- Mroczek, D.; Superlak, E.; Kawczynski, A.; Chmura, J. Relationships between motor abilities and volleyball performance skills in 15-year-old talent-identified volleyball players. Balt. J. Health Phys. Act. 2017, 9, 2. [Google Scholar] [CrossRef]
- Tsoukos, A.; Drikos, S.; Brown, L.E.; Sotiropoulos, K.; Veligekas, P.; Bogdanis, G.C. Anthropometric and motor performance variables are decisive factors for the selection of junior national female volleyball players. J. Hum. Kinet. 2019, 67, 163–173. [Google Scholar] [CrossRef]
- Zetou, E.; Moustakidis, A.; Tsigilis, N.; Komninakidou, A. Does effectiveness of skill in Complex I predict win in men’s Olympic volleyball games? J. Quant. Anal. Sports 2007, 3. [Google Scholar] [CrossRef]
- Loeb, G.E. Learning to use Muscles. J. Hum. Kinet. 2021, 76, 9. [Google Scholar] [CrossRef] [PubMed]
- Magill, R.A.; Hall, K.G. A review of the contextual interference effect in motor skill acquisition. Hum. Mov. Sci. 1990, 9, 241–289. [Google Scholar] [CrossRef]
- Davis, W.E.; Burton, A.W. Ecological task analysis: Translating movement behavior theory into practice. Adapt. Phys. Act. Q. 1991, 8, 154–177. [Google Scholar] [CrossRef]
- Práxedes, A.; Pizarro, D.; Travassos, B.; Domínguez, M.; Moreno, A. Level of opposition constrains offensive performance in consecutive game situations. An analysis according to game principles. Phys. Educ. Sport Pedagog. 2022, 27, 291–303. [Google Scholar] [CrossRef]
- Renshaw, I.; Davids, K.; O’Sullivan, M.; Maloney, M.A.; Crowther, R.; McCosker, C. An ecological dynamics approach to motor learning in practice: Reframing the learning and performing relationship in high performance sport. Asian J. Sport Exerc. Psychol. 2022, 2, 18–26. [Google Scholar] [CrossRef]
- Wulf, G.; Shea, C.H. Principles derived from the study of simple skills do not generalize to complex skill learning. Psychon. Bull. Rev. 2002, 9, 185–211. [Google Scholar] [CrossRef]
- Guadagnoli, M.A.; Lee, T.D. Challenge point: A framework for conceptualizing the effects of various practice conditions in motor learning. J. Mot. Behav. 2004, 36, 212–224. [Google Scholar] [CrossRef] [PubMed]
- Guadagnoli, M.A.; Morin, M.; Dubrowski, A. The application of the challenge point framework in medical education. Med. Educ. 2012, 46, 447–453. [Google Scholar] [CrossRef] [PubMed]
- Raastad, O.; Aune, T.K.; van den Tillaar, R. Effect of practicing soccer juggling with different sized balls upon performance, retention, and transfer to ball reception. Mot. Control 2016, 20, 337–349. [Google Scholar] [CrossRef] [PubMed]
- Porter, J.M.; Magill, R.A. Systematically increasing contextual interference is beneficial for learning sport skills. J. Sports Sci. 2010, 28, 1277–1285. [Google Scholar] [CrossRef]
- Porter, J.M.; Saemi, E. Moderately skilled learners benefit by practicing with systematic increases in contextual interference. Int. J. Coach. Sci. 2010, 4, 61–71. [Google Scholar]
- Newell, K.M. Motor skill acquisition. Annu. Rev. Psychol. 1991, 42, 213–237. [Google Scholar] [CrossRef]
- Newell, K.M. Change in movement and skill: Learning, retention, and transfer. In Dexterity and Its Development; 1996; pp. 393–429. Available online: https://books.google.com.tw/books?id=tzB5AgAAQBAJ&printsec=frontcover&hl=zh-TW#v=onepage&q&f=false (accessed on 1 August 2022).
- Davids, K.; Araújo, D.; Hristovski, R.; Passos, P.; Chow, J.Y. Ecological dynamics and motor learning design in sport. In Skill Acquisition in Sport: Research, Theory and Practice; Routledge: London, UK, 2012; pp. 112–130. Available online: https://www.researchgate.net/publication/236668224_Ecological_dynamics_and_motor_learning_design_in_sport (accessed on 1 August 2022).
- Tremblay, L.; Proteau, L. Specificity of practice in a ball interception task. Can. J. Exp. Psychol. /Rev. Can. Psychol. Expérimentale 2001, 55, 207. [Google Scholar] [CrossRef]
- Rosalie, S.M.; Müller, S. A model for the transfer of perceptual-motor skill learning in human behaviors. Res. Q. Exerc. Sport 2012, 83, 413–421. [Google Scholar] [CrossRef]
- Schmidt, R.A.; Lee, T.D. Motor Control and Learning; Human Kinetics: Champaign, IL, USA, 2005. [Google Scholar]
- Pellett, T.L.; Henschel-Pellett, H.A.; Harrison, J.M. Influence of ball weight on junior high school girls’ volleyball performance. Percept. Mot. Ski. 1994, 78, 1379–1384. [Google Scholar] [CrossRef]
- Arias, J.L.; Argudo, F.M.; Alonso, J.I. Effect of ball mass on dribble, pass, and pass reception in 9–11-year-old boys’ basketball. Res. Q. Exerc. Sport 2012, 83, 407–412. [Google Scholar] [CrossRef]
- Burcak, K. The effects on soccer passing skills when warming up with two different sized soccer balls. Educ. Res. Rev. 2015, 10, 2860–2868. [Google Scholar]
- Ho, C.S.; Lin, K.C.; Chen, K.C.; Yan, Z.T.; Chang, C.H. Mechanical factors associated with the development of training volleyballs. Proc. Inst. Mech. Eng. Part P J. Sports Eng. Technol. 2016, 230, 84–89. [Google Scholar] [CrossRef]
- Afonso, J.; Esteves, F.; Araújo, R.; Thomas, L.; Mesquita, I. Tactical determinants of setting zone in elite men’s volleyball. J. Sports Sci. Med. 2012, 11, 64. [Google Scholar]
- Batterham, A.M.; Hopkins, W.G. Making meaningful inferences about magnitudes. Int. J. Sports Physiol. Perform. 2006, 1, 50–57. [Google Scholar] [CrossRef]
- van den Tillaar, R.; Marques, M.C. Effect of specific versus variable practice upon overhead throwing speed in children. Percept. Mot. Ski. 2013, 3, 872–884. [Google Scholar] [CrossRef] [PubMed]
- Takeuchi, T.; Kobayashi, Y.; Hiruta, S.; Yuza, N. The effect of the 40 mm diameter ball on table tennis rallies by elite players. Int. J. Table Tennis Sci. 2002, 4, 267–277. [Google Scholar]
- Kirk, D. Framing quality physical education: The elite sport model or sport education? Phys. Educ. Sport Pedagog. 2004, 9, 185–195. [Google Scholar] [CrossRef]
- Snapp-Childs, W.; Wilson, A.D.; Bingham, G.P. Transfer of learning between unimanual and bimanual rhythmic movement coordination: Transfer is a function of the task dynamic. Exp. Brain Res. 2015, 233, 2225–2238. [Google Scholar] [CrossRef]
- Arthur, W., Jr.; Bennett, W., Jr.; Stanush, P.L.; McNelly, T.L. Factors that influence skill decay and retention: A quantitative review and analysis. Hum. Perform. 1998, 11, 57–101. [Google Scholar] [CrossRef]
- Issurin, V.B. Training transfer: Scientific background and insights for practical application. Sports Med. 2013, 43, 675–694. [Google Scholar] [CrossRef]
- Davids, K.; Güllich, A.; Shuttleworth, R.; Araújo, D. Analysis of micro-structure of practice and macro-structure of development histories. In Routledge Handbook of Talent Identification and Development in Sport; 2017; p. 192. Available online: http://shura.shu.ac.uk/16439/ (accessed on 1 August 2022).
- Barnett, S.M.; Ceci, S.J. When and where do we apply what we learn? A taxonomy for far transfer. Psychol. Bull. 2002, 128, 612. [Google Scholar] [CrossRef] [PubMed]
- Woods, C.T.; Rothwell, M.; Rudd, J.; Robertson, S.; Davids, K. Representative co-design: Utilising a source of experiential knowledge for athlete development and performance preparation. Psychol. Sport Exerc. 2021, 52, 101804. [Google Scholar] [CrossRef]
Publisher’s Note: MDPI stays neutral with regard to jurisdictional claims in published maps and institutional affiliations. |
© 2022 by the authors. Licensee MDPI, Basel, Switzerland. This article is an open access article distributed under the terms and conditions of the Creative Commons Attribution (CC BY) license (https://creativecommons.org/licenses/by/4.0/).
