Abstract
Anchor dragging is a major threat to the structural integrity of submarine pipelines. A mathematical model in which the mechanical model of chain and the bearing model of anchor were coupled together. Based on the associated flow rule, an incremental procedure was proposed to solve the spatial state of anchor until it reaches the ultimate embedding depth. With an indirect measurement method for the anchor trajectory, a model test system was established. The mathematical model was validated against some model tests, and the effects of two parameters were studied. It was found that both the ultimate embedding depth of a dragging anchor and the distance it takes to reach the ultimate depth increase with the shank-fluke pivot angle, but decrease as the undrained shear strength of clay increases. The proposed model is supposed to be useful for the embedding depth calculation and guiding the design of the pipeline burial depth.
1. Introduction
With the development of offshore oil and gas and offshore wind industry, length of offshore pipelines and cables has been increasing rapidly in recent years. Statistical data shows human activities such as fishing and commercial shipping is a major cause of submarine pipeline and cable failure [1], especially for emergency anchoring [2,3,4]. This is because the fishing trawl and anchors may impact or hook on the pipeline and cable, which would cause either local denting or buckling of the pipe. On seabed with soft soils, the anchor may be dragged away by the drifting ship as its holding capacity is low, especially during emergency anchoring. If the anchor hooks on a pipeline, it could be devastating. Therefore, the dragging trajectory of anchors, especially the ultimate embedment depth thereof, should be well studied.
To protect pipelines from human activities, they are usually buried in the seabed. Therefore, the penetration depth of an anchor during the dragging is critical for the design of pipeline burial depth. However, there are no official rules or standards guiding the design, either for the burial depth or the assessment of pipeline damage due to anchor dragging. API-RP-2SK (2008) recommended that the maximum fluke tip penetration could be up to three times the fluke length [5]. DNV-RP-E301 (2017) recommended an analytical tool with which the equilibrium equations of the anchor line and anchor are resolved iteratively [6]. However, these two guidelines are mainly for deepwater mooring design, which is different from the anchoring process of merchant ships in shallow water. Besides the lack of guidelines, academic studies on the anchor dragging process of merchant ships are also limited. Zhang (2013) and Wang (2016) proposed that the maximum penetration of anchoring is when the anchor crown is just fully embedded, and it can be simply calculated with geometric parameters of the anchor [7,8]. This method does not consider the type and parameter of the seabed soil. Yan et al. (2015) proposed an analytical method to calculate the maximum penetration depth of anchor dragging in rock berm [9]. It did not consider the effect of the anchor chain. Gaudin et al. (2007, 2009) experimentally investigated the anchor dragging trajectory in soils and rock berms, and validated the rock protection for pipelines [10,11]. Wang and Chia (2010) numerically simulated the anchor- rock interaction to optimize the rock armour protection design [12]. Selker et al. (2018) assessed the influence of pipe burial depth on the consequence of dropping on and dragging the pipeline by a dropped anchor [13]. Nevertheless, there is a lack of analytical methods on the anchor dragging process of merchant ships, as well as prediction methods.
The anchor dragging process involves not only the anchor, but also the soils and the anchor chain. To solve this problem, this paper establishes a mathematical model of the interaction between the anchor, seabed and chain. A numerical algorithm is proposed to solve the model. Based on studies on effects of the soil strength and the shank/fluke pivot angle, some practical conclusions are drawn. By calculating the dragging trajectory, the ultimate embedment depth can be determined, which is critical to the burial depth design for the pipeline. The present work is supposed to guide future pipeline burial design.
2. Mathematical Modelling
2.1. Anchor Chain Modelling
Generally, a ship in emergency is slowed down by the anchoring force and the hydrodynamic resistance. However, the anchoring force plays a major role in slowing down a ship encountering emergency incidents. Therefore, behavior of the anchor and chain should be well examined when analyzing the kinetic motion of a ship in emergency anchoring.
The chain is connected to the ship and the anchor at both ends. Normally it can be divided into two parts, including the suspended part and the on-seabed part. As shown in Figure 1, the suspended part has a length of s, and its horizontal length is denoted as Xs. The horizontal length of the on-seabed part is denoted as X0. The anchor dragging process involves the interaction between the chain, the soil and the anchor. The mechanical equilibrium of the chain and the anchor is studied separately. Corresponding mathematical models of the chain profile and the anchor orientation are set up. Then the two models are coupled through the force continuum condition at the chain—shank joint. An iteration procedure is proposed to the mathematical model.
Figure 1.
Schematic diagram of the anchoring process.
The interaction between the soil, the chain and the anchor are sketched in Figure 2. The horizontally lying chain is not included in this figure, as it mainly transfers a horizontal tension force to the embedded chain. The anchor is embedded in the soil and connected to the chain. The tension between the chain and the anchor is denoted as Ta. When dragging the anchor, the geometric profile of the chain and anchor will change as the tension between them changes. It is because the embedment of the anchor normally increases its holding capacity. Some characteristic parameters of the profile are shown in Figure 2. and denote the angle of the chain at the mudline and the anchor pivot, respectively. , and denote the angle of the fluke, the angle of the shank and the angle between them, respectively. To analyse the chain profile, Neubecker and Randolph (1995) proposed a model of the anchor chain based on the catenary theory. The relationship between the chain profile and the tension is expressed as
where is the chain diameter multipler, is bearing capacity factor of chain, b is the chain diameter, is the undrained shear strength of clay at the mudline, is the undrained shear strength gradient of clay and z is the embedding depth of the shank-chain joint. It has to be noted that the frictional force on the chain is not included in Equation (1). This is because the frictional force is of the same order of magnitude as the chain’s weight, and the tension is of the same order of magnitude as the breaking force of the chain. Normally, the frictional force on the chain is neglectable compared to the tension.
Figure 2.
Schematic diagram of the interaction between chain, anchor and soil.
As is very small in shallow water conditions, it is assumed to be zero in the present study. Equation (1) is therefore simplified as
Given the tension and angle at both ends, the chain profile can be easily obtained with the catenary theory. However, the tension couples the chain and the anchor together. Dragging the anchor tends to make it penetrate deeper into the soil and increase the holding capacity, and it in turn increases the tension in the chain. Once the horizontal tension force in the chain is equal to the horizontal holding capacity of the anchor, an equilibrium state is established. Then the ship will be slowed down by this holding force from the anchor. In general, the tension and chain angle changes with the anchor embedding depth. The derivative of with respect to the depth z is
2.2. Anchor-Soil Interaction Modelling
For the anchor, there are three forces acting on the fluke: the normal force , the tangential force and the rotating moment M, as shown in Figure 3. There is also a tension force F acting on the shank. As shown in Figure 2, the force F should be equal to the tension .
where is the angle between the chain and the fluke, and , and are the length of the fluke, shank and the anchor crown, respectively. In Equations (4)–(6), parameters , and are used to simplify the equations, and they represent the relationships between the forces acting on the fluke and the tension force acting on the shank from the chain.
Figure 3.
Schematic diagram of forces on the fluke.
These forces can be normalized as follows:
where , , , are bearing capacity factors of the anchor, is the undrained shear strength of the clay and is the maximum projected area of the fluke.
The maximum bearing capacity factors of fluke in clay, , and , can be calculated according to the models proposed by O’ Neill et al. (2003) [14], as shown in Equation (8).
where is the fluke thickness, and , where is the clay sensitivity.
Normally, the anchor fluke is subjected to combined loading of tangential force, normal force and moment. In this case, the maximum bearing capacity in each direction will not be activated at the same time, but the forces and moment should lie on a yield surface. The yielding surface proposed by Murff (1994) [15] was adopted in this study, in which the normal force, tangential force and the moment have the relation as
where and are the bearing capacity in the normal and tangential directions, and is the bearing capacity of moment; m, n, p, q are the parameters describing the geometric profile of the yield surface, and their values are taken as 0.81, 2.39, 0.71 and 2.94, respectively.
Substituting Equations (4)–(6) into (9), the following equation is set up:
Lade (2005) pointed out that the difference between observed soil behavior and behavior predicted on the basis of associated flow is not pronounced for clays with lower effective friction angles [16]. Employing the associated flow rule results in a great advantage, because knowing either the yield surface or knowing the plastic potential surface would automatically result in knowing both surfaces, which simplifies the mathematical framework for the model of the plastic behavior. For clays, the dilation angle and the internal friction angle are very low. Therefore, the associated flow rule in which the dilation angle equals the internal friction angle is applicable to the clay. Assuming the associated flow rule, that is the plastic flow develops along the normal to the yield surface, the angular velocity , the tangential velocity and the normal velocity of the fluke is obtained by partially differentiate the function f. A scalar multiplier is used to give the expression of , and .
Combining Equations (10) and (11)–(13), relationships between the angular velocity , the tangential velocity and the normal velocity can be obtained. The rotation to tangential translation ratio is
The normal to tangential translation ratio is
When the anchor reaches the maximum embedment, should satisfy the following relation:
2.3. Solution Procedure
To obtain the trajectory of anchor dragging, the equations are solved explicitly. With small time increment, displacements in the vertical and horizontal directions are solved step by step until the equilibrium state is satisfied. Specifically, the problem is solved with the following procedure:
- (1)
- Given a small tangential displacement increment , the normal displacement increment is solved according to Equation (15). Then the displacement increments in the vertical and horizontal directions are obtained as and .
- (2)
- Solve the increment of shank angle according to Equation (14), and the increment of , is solved according to Equation (3).
- (3)
- Based on the solution of , , and are updated, and then is updated.
- (4)
- Repeat step (1) to step (3), until Equation (16) is satisfied.
3. Experimental Set-Up
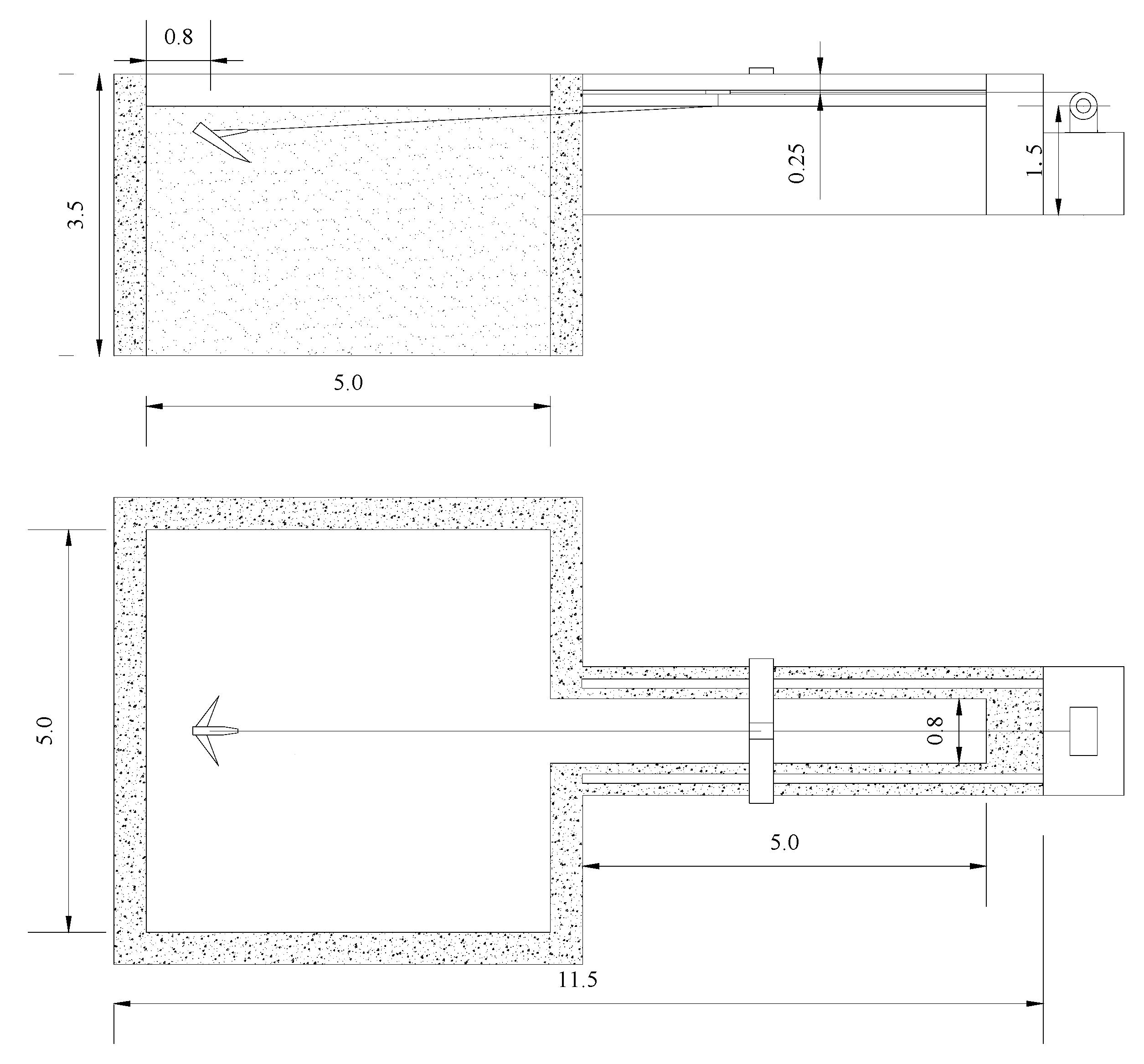
The test system was comprised of a soil tank, a dragging system, an instrumentation system and an anchor model. As shown in Figure 4, the soil tank was designed as T-shape with a cubic tank and a channel. The channel was 6 m long and 1 m wide, providing space for the dragging system to translate, while the cubic tank was 6 m long, 5 m wide and 3 m deep, providing space for the anchor dragging. The dragging system was designed to horizontally drag the model anchor. It was configured with a vehicle, a railway and a variable-frequency motor. The motor actuated the vehicle to translate horizontally on the railway, and then the vehicle dragged the chain.
Figure 4.
Schematic diagram of anchor dragging system.
As the anchor tends to embed into the soil, it is very difficult to measure the dragging trajectory directly. An instrumentation system was designed to deduce the trajectory by measuring some basic parameters of the anchor. As shown in Figure 5, a displacement transducer was connected to the fluke center, and a force transducer was installed in the chain. Two angle transducers were used to measure the angles of the fluke and the displacement transducer line, respectively. With this system, the displacement of fluke center l, the angle of displacement transducer line alpha, the fluke angle beta and the tension T were measured. The position of the fluke center at time t was deduced according to the following equations:
where B is the length of fluke. The initial position of the fluke center was calculated as
Figure 5.
Schematic diagram of Instrumentation system.
Then the trajectory of the fluke is described as .
The instrumentation system was tested with a 36 kg Hall anchor. As shown in Figure 6, the trajectory of the anchor was deduced from the measured data. However, it was not smooth due to the signal noise, thus it was then filtered to get a smooth trajectory line. In this case, the ultimate embedding depth was around 0.25 m.
Figure 6.
Typical test trajectory.
4. Results and Discussion
4.1. Validation of the Mathematical Model against the Test
To validate the mathematical model, two tests were conducted. In these two cases, a 36 kg and 100 kg Hall anchor were dragged respectively. Diameter b of the chain used in the tests was 14 mm, and its line mass was 4.0 kg/m. Their parameters are listed in Table 1.
Table 1.
Parameters of the model anchors.
The 36 kg and 100 kg anchor were dragged in Clay 1 and Clay 2, respectively, of which the parameters are listed in Table 2. The trajectory predicted with the mathematical model was compared with the test in Figure 7 and Figure 8. For the 100 kg anchor, the mathematical model agrees very well with the test. Both the ultimate embedding depth and the dragging distance were well predicted. For the 36 kg anchor, the ultimate embedding depth was well predicted, however the trajectory was not. This is probably attributed to the inaccurate test of the 36 kg anchor, because it was relatively light and easy to be disturbed by the un-uniform distribution of soils. Nevertheless, the mathematical model is believed to be proper and accurate to predict the anchor dragging trajectory.
Table 2.
Clay parameters in the tests.
Figure 7.
Comparison of the trajectory of 36 kg anchor.
Figure 8.
Comparison of the trajectory of 100 kg anchor.
4.2. Effects of the Soil Strength
Effects of the undrained shear strength of clay on the anchor dragging trajectory were studied with a 100 kg Hall anchor. Five cases with different undrained shear strengths were numerically simulated; in these cases, the undrained shear strength at the mudline was 2.2 kPa, and increased with the depth by 1, 2, 3, 4, 5 kPa/m. The pivot angle of the anchor was fixed as 40°. The dragging trajectories of these cases are plotted in Figure 9. It is shown that both the ultimate embedding depth of anchor and the dragging distance it takes to reach the ultimate embedding depth increase as the undrained shear strength decreases.
Figure 9.
Comparison of the trajectory of 100 kg anchor.
4.3. Effects of the Shank/Fluke Pivot Angle
With the 100 kg Hall anchor, effects of the fluke/shank pivot angle on the anchor dragging trajectory were also studied. The dragging trajectories of four anchors with pivot angles of 30°, 35°, 40° and 45° were calculated. In these cases, the undrained shear strength at mudline was 2.2 kPa, increasing by 4 kPa/m with the depth. As shown in Figure 10, both the ultimate embedding depth of anchor and the dragging distance it takes to reach the ultimate embedding depth increase with the pivot angle.
Figure 10.
Comparison of the trajectory of 100 kg anchor
As shown in Figure 9 and Figure 10, the horizontal distance it takes to reach the ultimate embedment depth is several times that of the embedment. During the anchoring process, the anchor will be furtherly dragged as the ship is slowed down. However, the horizontal displacement is not critical for the design of the burial depth design of pipelines. The calculation of the dragging trajectory in this study is dedicated to determine the ultimate embedment depth, which is critical to the burial depth design.
5. Conclusions
In this paper, both a mathematical model coupling the chain, the anchor and the clay, and the solution procedures are proposed. The model was validated with model tests, and the effects of parameters including the undrained shear strength and the shank-fluke pivot angle were investigated. The following conclusions are drawn:
- (1)
- The proposed mathematical model can precisely predict the dragging trajectory of anchors, as it agrees well with the model tests. However, for tests with relatively small anchors, the measured trajectory is susceptible to disturbance.
- (2)
- Both the ultimate embedding depth of a dragging anchor and the distance it takes to reach the ultimate depth increase as the undrained shear strength of clay decreases.
- (3)
- The ultimate embedding depth of a dragging anchor and the distance it takes to reach the ultimate depth all increase with the shank-fluke pivot angle.
Author Contributions
Conceptualization, X.Z. and P.G.; data curation, K.Y.; formal analysis, K.Y.; investigation, X.Z.; methodology, P.G.; software, X.Z.; supervision, Y.L.; validation, K.Y.; writing—original draft, X.Z.; writing—review and editing, Y.L. All authors have read and agreed to the published version of the manuscript.
Funding
This research was funded by the National Natural Science Foundation of China, grant number 51709164 and 51509151, and the Key Research and Development Project of Shandong Province, grant number 2019JZZY020713.
Institutional Review Board Statement
Not applicable.
Informed Consent Statement
Not applicable.
Data Availability Statement
No new data were created or analyzed in this study. Data sharing is not applicable to this article.
Conflicts of Interest
The authors declare no conflict of interest.
Nomenclature
| b | chain diameter |
| , , | dimensionless parameters |
| m, n, p, q | yield surface parameters |
| s | suspended chain length |
| z | embedding depth |
| chain diameter multiplier | |
| bearing capacity factor of chain | |
| clay sensitivity | |
| undrained shear strength of clay at the mudline | |
| vertical undrained shear strength gradient | |
| normal force on the fluke | |
| tangential force on the fluke | |
| M | rotating moment on the fluke |
| , , , | bearing capacity factors of the anchor |
| Ta | tension between chain and anchor |
| Xs | horizontal length of suspended chain |
| anchor fluke length | |
| anchor shank length | |
| anchor crown length | |
| the fluke thickness | |
| chain angle at the mudline | |
| chain angle at the anchor pivot | |
| angle of the fluke | |
| angle of the shank | |
| angle between the fluke and shank | |
| angle between the chain and the fluke | |
| angular velocity of the fluke | |
| tangential velocity of the fluke | |
| normal velocity of the fluke | |
| rotation to tangential translation ratio | |
| normal to tangential translation ratio | |
| X0 | horizontal length of on-seabed chain |
References
- Gao, P.; Duan, M.; Gao, Q.; Jia, X.; Huang, J. A prediction method for anchor penetration depth in clays. Ships Offshore Struct. 2016, 11, 782–789. [Google Scholar] [CrossRef]
- Zhuang, Y.; Li, Y.; Su, W. Influence of anchoring on burial depth of submarine pipelines. PLoS ONE 2016, 11, e0154954. [Google Scholar] [CrossRef] [PubMed]
- Yue, J.; Gan, L.; Zheng, Y.; Zhou, C.; Ma, Y.; Zhang, L.; Ouyang, Y. Numerical simulation research of submarine pipeline depth against emergency anchor loading parameter setting for the model. In Proceedings of the Twenty-Eighth (2018) International Ocean and Polar Engineering Conference, Sapporo, Japan, 10–15 June 2018; pp. 248–254. [Google Scholar]
- Jie, W.; Fan, Y.-T. Study on safety monitoring system for submarine power cable on the basis of AIS and radar technology. Phys. Procedia 2012, 24, 961–965. [Google Scholar] [CrossRef][Green Version]
- API Design. Analysis of Stationkeeping Systems for Floating Structures; American Petroleum Institute: Washington, DC, USA, 2008. [Google Scholar]
- DNV-RP-E301; Design and Installation of Fluke Anchors in Clay; Det Norske Veritas: Oslo, Norway, 2000.
- Wang, Z. Numerical Simulation Research of Submarine Pipeline Depth against Emergency Anchor Loading. Master’s Thesis, Wuhan University of Technology, Wuhan, China, 2016. [Google Scholar]
- Zhang, L. The Research of the Burial Depth and Protection of the Submarine Pipelines Based on the Ship’s Emergency Anchoring; Wuhan University of Technology: Wuhan, China, 2013. [Google Scholar]
- Yan, S.; Guo, B.; Sun, L.; Guo, W.; Lei, Z. Analytical and experimental studies of dragging hall anchors through rock berm. Ocean Eng. 2015, 108, 529–538. [Google Scholar] [CrossRef]
- Gaudin, C.; Vlahos, G.; Randolph, M.F.; Colwill, R.D. Investigation in centrifuge of anchor-pipeline interaction. Int. J. Offshore Polar Eng. 2007, 17, 67–73. [Google Scholar]
- Gaudin, C.; Landon, M.M.; Pedersen, V.; Kiat, C.H.; Leqin, W. Validation of rock berm cover design for offshore LNG pipeline in Hong Kong. Proc. Int. Offshore Polar Eng. Conf. 2009, 1, 546–553. [Google Scholar]
- Wang, L.Q.; Chia, H.K. Optimization study of pipeline rock armour protection design based on Finite Element Analysis. In Proceedings of the International Conference on Offshore Mechanics and Arctic Engineering—OMAE, Shanghai, China, 6–11 June 2010; Volume 5, pp. 165–170. [Google Scholar]
- Selker, R. Impact of dropped objects and anchor dragging on pipeline integrity. In Proceedings of the Twenty-Eighth (2018) International Ocean and Polar Engineering Conference, Sapporo, Japan, 10–15 June 2018; pp. 238–247. [Google Scholar]
- O’Neill, M.P.; Bransby, M.F.; Randolph, M.F. Drag anchor fluke-soil interaction in clays. Can. Geotech. J. 2003, 40, 78–94. [Google Scholar] [CrossRef]
- Murff, J.D. Limit analysis of multi-footing foundation systems. In Proceedings of the 8th International Conference on Computer methods and Advances in Geomechanics, Morgantown, WV, USA, 22–28 May 1994; pp. 223–244. [Google Scholar]
- Lade, P.V. Overview of constitutive models for soils. In ASCE Geotechnical Special Publication No. 128, Soil Constitutive Models: Evaluation, Selection, and Calibration; Yamamuro, J.A., Kaliakin, V.N., Eds.; American Society of Civil Engineers: Austin, TX, USA, 2005; pp. 1–34. [Google Scholar]
Publisher’s Note: MDPI stays neutral with regard to jurisdictional claims in published maps and institutional affiliations. |
© 2021 by the authors. Licensee MDPI, Basel, Switzerland. This article is an open access article distributed under the terms and conditions of the Creative Commons Attribution (CC BY) license (http://creativecommons.org/licenses/by/4.0/).









