Comparative Review of Worship Spaces in Buddhist and Cistercian Monasteries: The Three Temples of Guoqing Si (China) and the Church of the Royal Abbey of Santa Maria de Poblet (Spain)
Abstract
:1. Introduction
1.1. Study Background and Objectives
“Typical of the plan is first of all the arrangement of its buildings in three groups. The whole layout is arranged around three longitudinal axes. The structures lying along the central one form the group which stands as the official embodiment and expression of the idea on which the existence of the whole layout is based and will contain the chief halls to which the public have access.”
1.2. Research Methods and Scope
2. Worship Spaces in Both Monasteries
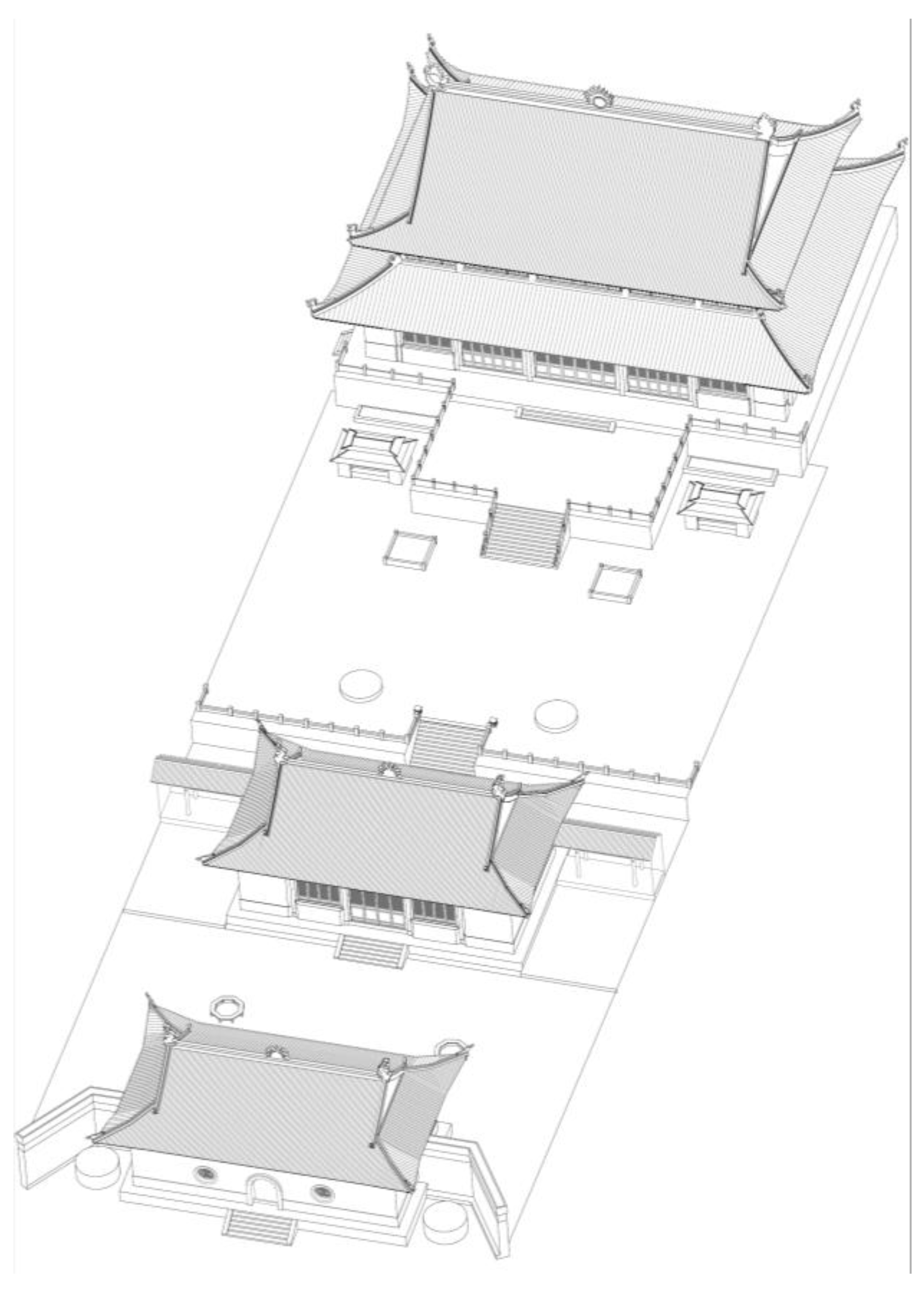
2.1. The Three Temples in Guoqing Si
2.2. The Church in Poblet Monastery
3. Comparative Analysis
3.1. The Roles of Worship Spaces in the Monastic Layouts
3.1.1. Similar Roles in the Generation of Monastic Layouts
3.1.2. Similar Space Prototype
3.1.3. Similar Priority of Construction
3.2. Programmed Functional Layouts
3.2.1. Similar Space Dominators
3.2.2. Similar Itineraries
4. Discussion of the Differences behind the Similarities
4.1. Integration and Independence
4.2. Different Understanding of Deities
4.2.1. Different Ways of Worship
4.2.2. World of Buddhas vs. Immeasurable God
4.2.3. Different Distances to Deities
5. Conclusions
Funding
Institutional Review Board Statement
Informed Consent Statement
Data Availability Statement
Acknowledgments
Conflicts of Interest
| 1 | According to the Rule of Saint Benedict, there are four kinds of monks: Cenobites, Anchorites (or Hermits), Sarabaites and Landlopers. |
| 2 | Although Guoqing Si belongs to Tiantai sect, it was converted to Chan Buddhist in Song Dynasty, and later changed back to Tiantai sect. |
| 3 | 常建【唐】题破山寺后禅院“清晨入古寺,初日照高林。曲径通幽处,禅房花木深。山光悦鸟性,潭影空人心。万籁此俱寂,但余钟磬音。”. |
References
- Altisent, Agustín. 1974. Història de Poblet. Tarragona: Tarragona Abadía de Poblet. [Google Scholar]
- Bango Torviso, Isidro G., María Lucía Barrero, Julio David Pizarro, María del Carmen Muñoz Párraga, Concepción Abad Castro, María Teresa López de Guereñoo Sanz, Susana Calvo Capilla, Eduardo Carrero Santamaría, Elena Casas Castells, and Antonio García Flores. 1998. Monjes y Monasterios. El Cister en el Medievo de Castilla y León. Valladolid: Junta de Castilla y León. [Google Scholar]
- Bassegoda Nonell, Juan. 1983. Història de la restauració de Poblet: Destrucció i reconstrucció de Poblet, 1st ed. Tarragona: Tarragona Abadia de Poblet. [Google Scholar]
- Benedict of Nursia. 516. The Rule of Saint Benedict. Tarragona. [Google Scholar]
- Boerschmann, Ernst. 1912. Chinese Architecture and Its Relation to Chinese Culture. 1911 Annual report of the Board of Regents of the Smithsonian Institution. Washington, DC: Smithsonian Institution. [Google Scholar]
- Boisvert, Mathieu. 1992. A Comparison of the Early Forms of Buddhist and Christian Monastic Traditions. Buddhist-Christian Studies 12: 123–41. [Google Scholar] [CrossRef]
- Bozal González, José Luis. 2016. Iglesia del Monasterio de Santa Maria de Poblet, Una hipótesis sobre las fases de su construcción basada en sus signos de cantero. Available online: http://www.signosdecantero.com/descargas/Santa_Mar%EDa_Poblet_JL_Bozal.pdf (accessed on 4 November 2021).
- Braunfels, Wolfgang. 1972. Monasteries of Western Europe, the Architecture of the Orders. Princeton: Princeton University Press. [Google Scholar]
- Cassidy-Welch, Megan. 2001. Monastic Spaces and Their Meanings: Thirteenth-Century English Cistercian Monasteries. Turnhout: Brepols. [Google Scholar]
- Dehui. 1335. Chi Xiu Baizhang Qing Gui. Available online: http://buddhism.lib.ntu.edu.tw/BDLM/sutra/chi_pdf/sutra19/T48n2025.pdf (accessed on 4 November 2021).
- Ding, Tiankui. 1995. Guo Qing Si Zhi, 1st ed. Shanghai: Hua Dong Shi Fan Da Xue Chu Ban She. [Google Scholar]
- Domènech i Montaner, Lluís. 1925. Historia y arquitectura del Monestir de Poblet. Barcelona: Montaner y Simón. [Google Scholar]
- Du, Fu. n.d. Available online: https://www.shicimingju.com/418.html (accessed on 4 November 2021).
- Exodus. n.d. Available online: https://biblia.com/bible/esv/exodus/20/4-5 (accessed on 4 November 2021).
- Fei, X. 2001. Jiangcun Jing Ji: Zhongguo Nong Min De Sheng Huo (江村经济: 中国农民的生活), 1st ed. Shang Wu Yin Shu Guan Wen Ku. Beijing: Shang Wu Yin Shu Guan. [Google Scholar]
- Finestres y de Monsalvo, Jaime, and Joaquin Guitert i Fontseré. 1947. Historia del Real Monasterio de Poblet, illustrada con disertaciones curiosas sobre la antiguedad de su fundación. Barcelona: Editorial Orbis. [Google Scholar]
- Frampton, Kenneth. 2015. A Genealogy of Modern Architecture: Comparative Critical Analysis of Built Form. Edited by Ashley Simone. Zürich: Lars Müller. [Google Scholar]
- Ge, Ruliang. 1979. Guoqing Temple in Mount Tiantai. Journal of Tongji University 4: 10–22. [Google Scholar]
- Gongbuchabu. 1874. 佛说造像量度经 (Fo Shuo Zao Xiang Liang Du Jing). Available online: http://buddhism.lib.ntu.edu.tw/BDLM/sutra/chi_pdf/sutra10/T21n1419.pdf (accessed on 4 November 2021).
- Guanding. n.d. Guoqing Bailu. Available online: http://buddhism.lib.ntu.edu.tw/BDLM/sutra/chi_pdf/sutra19/T46n1934.pdf (accessed on 4 November 2021).
- Henry, Patrick Gillespie, and Donald K. Swearer. 1989. For the Sake of the World: The Spirit of Buddhist and Christian Monasticism. Minneapolis: Fortress Press, Collegeville: Liturgical Press. [Google Scholar]
- Ho, Puay-peng. 1995. The ideal monastery: Daoxuan’s description of the Central Indian Jetavana vihara. East Asian History (Canberra) 10: 1–18. [Google Scholar]
- Horn, Walter, Ernest Born, and Saint Adalard. 1979. The Plan of St. Gall. California Studies in the History of Art. Berkeley: University of California Press, vol. 19. [Google Scholar]
- Hou, Youbin. 2011. 中国建筑之道 (Zhongguo Jianzhu Zhi Dao). Beijing: China Architecture & Building Press. [Google Scholar]
- Itō, Chūta. 1931. Shina kenchikushi. Tōyōshi kōza. Tōkyō: Yūzankaku, vol. 11. [Google Scholar]
- Kilde, Jeanne Halgren. 2014. Sacred Power, Sacred Space: An Introduction to Christian Architecture and Worship. New York and Oxford: Oxford University Press. [Google Scholar]
- Kinder, Terryl Nancy. 2000. Architecture of Silence: Cistercian Abbeys of France. New York: H.N. Abrams. [Google Scholar]
- King, Peter. 1999. Western Monasticism: A History of the Monastic Movement in the Latin Church. Cistercian studies series, no. 185. Kalamazoo: Cistercian Publications. [Google Scholar]
- Li, Yunhe. 1982. Hua Xia Yi Jiang: Zhongguo Gu Dian Jian Zhu She Ji Yuan Li Fen Xi. Hong Kong: Guang Jiao Jing Chu Ban She; Hua Feng Shu Ju Fa Xing. [Google Scholar]
- Liang, Sicheng. 1932. 蓟县独乐寺观音阁山门考 (Research on the Gate and Pavilion of Dule Temple in Ji County). 中国营造学社汇刊 (Journal of the Society for Research in Chinese Architecture) 3: 1–92. [Google Scholar]
- Liang, Sicheng. 1961. 中国的佛教建筑 (Buddhist architecture in China). 清华大学学报 (Journal of Tsinghua University) 12: 53–54. [Google Scholar]
- Liang, Sicheng, and Wilma Fairbank. 1984. A Pictorial History of Chinese Architecture. Cambridge: MIT Press. [Google Scholar]
- Liu, Dunzhen. 2007. Liu Dunzhen Quan Ji, 1st ed. Beijing: Zhongguo Jian Zhu Gong Ye Chu Ban She. [Google Scholar]
- Moon, Simon Young-suck. 1998. Korean and American Monastic Practices: A Comparative Case Study. Lewiston: Edwin Mellen Press. [Google Scholar]
- Portal Liaño, Jorge, and José Luis González Moreno-Navarro. 2013. La iglesia del Real Monasterio de Santa María de Poblet: pasado y presente de un desequilibrio. Edited by Santiago, Huertay Fabián and López Ulloa. Madrid: Instituto Juan de Herrera. [Google Scholar]
- Prip-Møller, Johannes. 1937. Chinese Buddhist Monasteries, Their Plan and Its Function as a Setting for Buddhist Monastic Life. Copenhagen: G.E.C. Gad, London: Oxford University Press. [Google Scholar]
- Sekino, Tadashi, and Daijō Tokiwa. 1926. Shina Bukkyō shiseki. Tōkyō: Bukkyō Shiseki Kenkyūkai. [Google Scholar]
- Shen, Huan. 861. 国清寺止观堂记 (The Note of Zhiguan Tang in Guoqing Monastery).
- Shi, Chengxun. n.d. 参天台五台山记 (Can Tiantai Wutai Shan Ji). Available online: http://tripitaka.cbeta.org/B32n0174_001 (accessed on 4 November 2021).
- Su, Bai. 2009. Zhongguo Gu Jian Zhu Kao Gu, 1st ed. Su Bai Wei Kan Jiang Gao Xi Lie. Beijing: Wen Wu Chu Ban She. [Google Scholar]
- Sun, Dazhang. 2017. Zhongguo Fo Jiao Jian Zhu, 1st ed. Beijing: Zhongguo Jian Zhu Gong Ye Chu Ban She. [Google Scholar]
- Walsh, Francis Edward. 1932. Church Architecture: Building for A Living Faith. Milwaukee: The Bruce Publishing Company. [Google Scholar]
- Wang, Guixiang. 2011. 中国古建筑测绘十年 (Ten Years of Surveying and Mapping Ancient Chinese Architecture). Beijing: Tsinghua University Press. [Google Scholar]
- Wang, Guixiang. 2016. 中国汉传佛教建筑史: 佛寺的建造、分布与寺院格局、建筑类型及其变迁 (Zhongguo Han Chuan Fo Jiao Jian Zhu Shi: Fo Si De Jian Zao, Fen Bu Yu Si Yuan Ge Ju, Jian Zhu Lei Xing Ji Qi Bian Qian (The History of Chinese Buddhist Architecture)), 1st ed. Beijing: Tsinghua University Press. [Google Scholar]
- Wang, Weiqao. 2021. Tiempo y espacio: Investigación sobre el espacio monástico a través de la vida en los monasterios budistas y cistercienses = Time and space: Research on Monastic Space through Monks’ Life in Buddhist and Cistercian Monasteries. Thesis (Doctoral), E.T.S. Arquitectura (UPM). Available online: https://doi.org/10.20868/UPM.thesis.68991 (accessed on 4 November 2021).
- Wang, Weiren, and Zhu Xu. 2011. 中国早期寺院配置的形态演变初探:塔·金堂·法堂·阁的建筑形制 (Topological Study on the evolution of early Chinese Buddhist Monasteries: Layout of Pagoda, Buddha Hall, Lecture Hall and Pavilion Tower). 南方建筑(South Architecture) 1: 38–49. [Google Scholar]
- Wang, Yuan, and Bingjie Lu. 2000. 中国古代佛教建筑的场所特征 (Characteristic of Chinese temple architecture place). 华中建筑(Hua Zhong Jian Zhu) 18: 131–33. [Google Scholar]
- Zhang, Lianyuan. 1717. Tiantai Shan Quan Zhi: 18 Juan. Available online: https://hollis.harvard.edu/primo-ex-plore/fulldisplay?docid=01HVD_ALMA212047190400003941&context=L&vid=HVD2&lang=en_US&search_scope=everything&adaptor=Local%20Search%20Engine&tab=everything&query=any,contains,%E5%A4%A9%E5%8F%B0%E5%B1%B1%E5%85%A8%E5%BF%97&offset=0 (accessed on 4 November 2021).
- Zhang, Yuhuan. 2012. Tu Jie Zhongguo Fo Jiao Jian Zhu, 1st ed. Beijing: Dang Dai Zhongguo Chu Ban She. [Google Scholar]
- Zhao, Nadong. 2013. 敦煌莫高窟初唐石窟所反映的佛寺核心院落主题 (The theme of the core courtyard of the Buddhist temple reflected in the early Tang Grottoes at Mogao Grottoes at Dunhuang). 中国建筑史论汇刊 (Journal of Chinese Architecture History) 1: 212–23. [Google Scholar]




























| Time | Office | Location |
|---|---|---|
| 04:00–06:00 | Morning Chanting | Main Hall |
| 06:00–06:15 | Breakfast | Refectory |
| 06:15–07:00 | Rest | Dormitory |
| 07:00–10:30 | Work | Farm, Kitchen, Laundry, etc. |
| 10:30–11:00 | Lunch | Refectory |
| 11:00–13:00 | Rest | Dormitory |
| 13:00–16:30 | Work | Farm, Kitchen, Laundry, etc. |
| 16:30–16:45 | Dinner | Refectory |
| 17:00–19:00 | Evening Chanting | Main Hall |
| 19:00–19:45 | Meditation | Meditation Hall |
| 19:45–21:00 | Reading | Dormitory |
| 21:00 | Sleep | Dormitory |
| Time | Office | Location |
|---|---|---|
| 05:15–06:00 | Vigilias | Church |
| 06:00–07:00 | Meditation | Dormitory or Cloister |
| 7:00 | Laudes | Church |
| 08:00–08:45 | Conventual mass | Church |
| 08:45–09:00 | Breakfast | Refectory |
| 09:00–13:00 | Work | Kitchen, Laundry, etc. |
| 13:00–13:15 | Noon prayer | Church |
| 13:15–13:45 | Lunch | Refectory |
| 13:45–18:30 | Work | Kitchen, Laundry, etc. |
| 18:30 | Visperas | Church |
| 19:00–19:30 | Dinner | Refectory |
| 19:30–20:15 | Work | Kitchen, Laundry, etc. |
| 20:15–20:30 | Reading | Chapter room |
| 20:30–21:00 | Completas | Church |
| 21:00 | Sleep | Dormitory |
Publisher’s Note: MDPI stays neutral with regard to jurisdictional claims in published maps and institutional affiliations. |
© 2021 by the author. Licensee MDPI, Basel, Switzerland. This article is an open access article distributed under the terms and conditions of the Creative Commons Attribution (CC BY) license (https://creativecommons.org/licenses/by/4.0/).
Share and Cite
Wang, W. Comparative Review of Worship Spaces in Buddhist and Cistercian Monasteries: The Three Temples of Guoqing Si (China) and the Church of the Royal Abbey of Santa Maria de Poblet (Spain). Religions 2021, 12, 972. https://doi.org/10.3390/rel12110972
Wang W. Comparative Review of Worship Spaces in Buddhist and Cistercian Monasteries: The Three Temples of Guoqing Si (China) and the Church of the Royal Abbey of Santa Maria de Poblet (Spain). Religions. 2021; 12(11):972. https://doi.org/10.3390/rel12110972
Chicago/Turabian StyleWang, Weiqiao. 2021. "Comparative Review of Worship Spaces in Buddhist and Cistercian Monasteries: The Three Temples of Guoqing Si (China) and the Church of the Royal Abbey of Santa Maria de Poblet (Spain)" Religions 12, no. 11: 972. https://doi.org/10.3390/rel12110972
APA StyleWang, W. (2021). Comparative Review of Worship Spaces in Buddhist and Cistercian Monasteries: The Three Temples of Guoqing Si (China) and the Church of the Royal Abbey of Santa Maria de Poblet (Spain). Religions, 12(11), 972. https://doi.org/10.3390/rel12110972

