Modelling, Simulation and Controlling of a Multi-Pump System with Water Storage Powered by a Fluctuating and Intermittent Power Source
Abstract
1. Introduction
2. Modelling of the Multi-Pump System
2.1. Irrigation Network
2.2. Water Storage (Pool)
2.3. Pumps
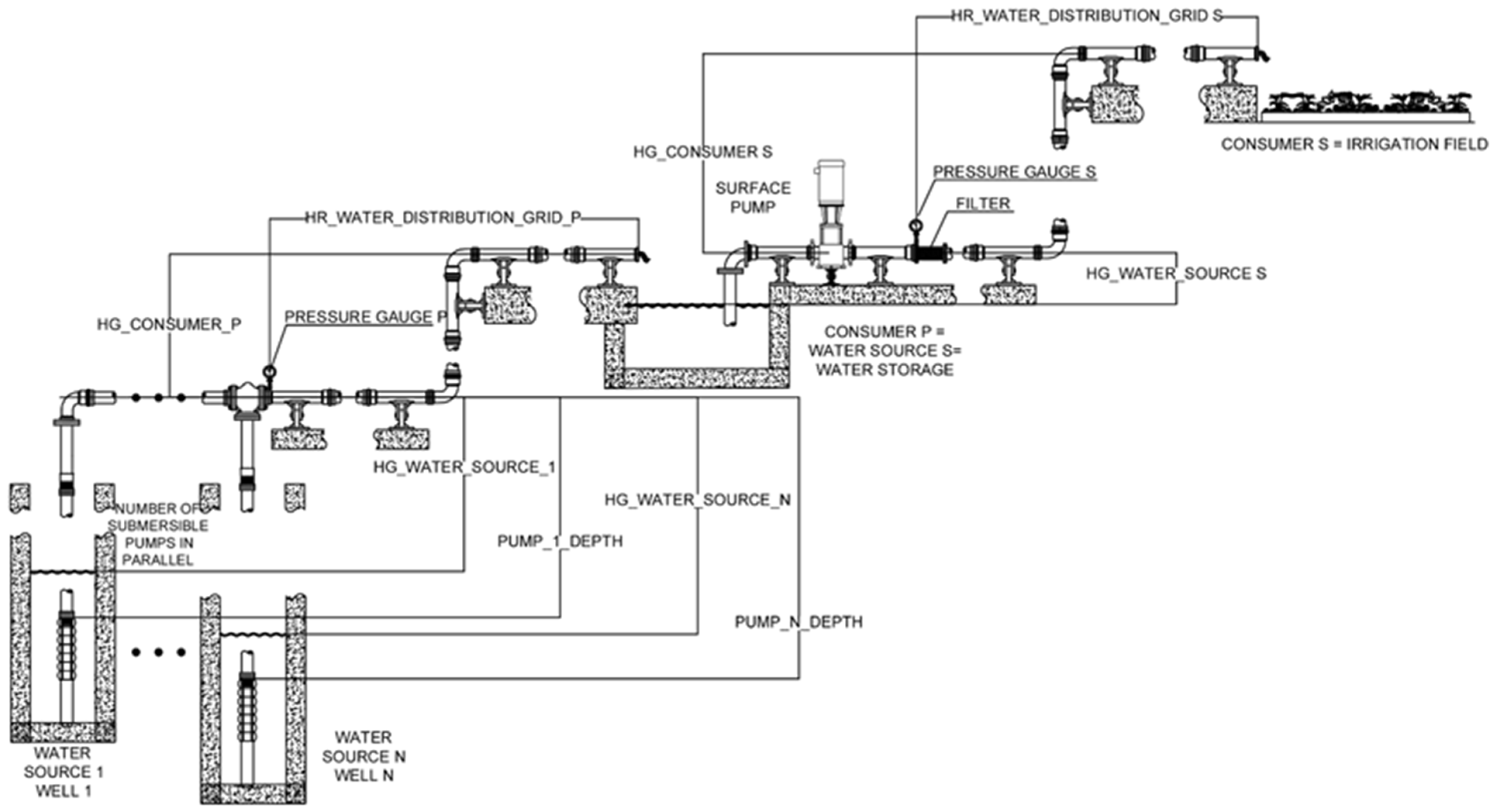
- The first pump is installed at a depth of 120 m below ground level (PUMP_1_DEPTH ≈ 120 m in Figure 1) and the water dynamic level is 100 m (HG_WATER_SOURCE_1 ≈ 100 m in Figure 1). The maximum extractable flow from the well is 41 m3/h, but the pump operates at the nominal flow of 38.52 m3/h at 50 Hz. The second pump is installed at a depth of 120 m below ground level (PUMP_2_DEPTH ≈ 120 m in Figure 1), and the water dynamic level is 98 m (HG_WATER_SOURCE_2 ≈ 98 m in Figure 1). The maximum extractable flow from the well is 41 m3/h, but the pump operates at the nominal flow of 38.88 m3/h at 50 Hz.
- The third pump is installed at a depth of 120 m below ground level (PUMP_3_DEPTH ≈ 120 m in Figure 1), and the water dynamic level is 100 m (HG_WATER_SOURCE_3 ≈ 100 m in Figure 1). The maximum extractable flow from the well is 41 m3/h, but the pump operates at the nominal flow of 31.68 m3/h at 50 Hz. The fourth pump is installed at a depth of 120 m below ground level (PUMP_4_DEPTH ≈ 120 m in Figure 1), and the water dynamic level is 105 m (HG_WATER_SOURCE_4 ≈ 105 m in Figure 1). The maximum extractable flow from the well is 41 m3/h, but the pump operates at the nominal flow of 40 m3/h at 50 Hz.
2.4. Induction Motors
2.5. Induction Motor Drives
3. The Proposed Control Strategy
3.1. General System Controller (GSC)
3.2. Submersible Pump Controllers (Sm.PC)
- vds and vqs are the stator three-phase AC voltage commands transformed in the synchronous (dq) reference frame;
- vαs and vβs are the stator three-phase AC voltage commands transformed in the stationary (αβ) reference frame;
- vas, vbs, vcs are the stator three-phase AC voltage commands;
- ias, ibs, ics are the stator three-phase AC currents;
- iα and iβ are the stator three-phase AC currents expressed in the stationary (αβ) reference frame;
- PWM = pulse width modulation;
- Sa, Sb, Sc are the switching commands (orders);
- Tdq.αβ = transformation from the synchronous (dq) reference frame into the stationary (αβ) reference frame;
- Tabc.αβ = transformation from the three-phase (abc) complex space vector to the stationary (αβ) reference frame;
- Tαβ.dq = transformation from the stationary (αβ) reference frame into synchronous (dq) reference frame;
- Tαβ.abc = transformation from the stationary (αβ) reference frame to the three-phase (abc) complex space vector.
3.3. Surface Pump Controller (Sr.PC)
4. Simulation Results
- Standard period between 7:00 and 18:00, with the maximum contracted power of 121 kW;
- Peak period between 18:00 and 22:00, without any contracted power, meaning that no pump should operate during this period.
- Off-peak period between 22:00 and 7:00, with the maximum contracted power of 121 kW;
- Considering a switch of the submersible pumps’ priorities, leading to the monthly percentage of the total operating period in Table 2.
- Of all the simulation performance indicators (operating period, absorbed power, energy consumption, pumping water flow and volume), two of them were validated by the experimental data. The monthly energy consumption was validated by the energy consumption from the monthly electricity bills during the 2021 irrigation campaign. Additionally, the water volume at the end of the one-year simulation was validated by the irrigation water volume displayed on the flow counter at the end of the same irrigation campaign.
- Using an intermittent and fluctuating power source, the presented control strategy, in addition to respecting all the boundaries and conditions imposed, performs very well, sometimes naturally (by a photovoltaic generator or a wind electrical generator) and sometimes economically (by an electricity source with various price periods), leading to an efficient energy management without sacrificing the operation and lifetime of the plant.
- The proposed control strategy managed the water storage (ensuring stable and continuous irrigation, especially during the irrigation campaign) with high efficiency and respected the economic restrictions imposed by the user. It should be mentioned that, during the irrigation campaign, the proposed control strategy used the irrigation system’s capabilities to the maximum, while outside this campaign, it only used the necessary capacity.
- In the simulation where the photovoltaic generator powered the multi-pump system with water storage, it was found that a 164 kW photovoltaic generator can ensure all the energy necessary for a similar irrigation campaign, except during the most demanding months of the irrigation campaign (June, July, August and September), where only half of the energy required by the irrigation system can be ensured by the photovoltaic generator.
- Although the proposed control strategy was tested only in the case of pumping systems powered by an electrical grid with various price periods or by photovoltaic generators, it can be assumed that it would also work for those powered by wind electrical generators (due to their slower dynamics compared to photovoltaic generators or power grids).
5. Conclusions
Author Contributions
Funding
Data Availability Statement
Conflicts of Interest
Abbreviations
| H0 | Nominal pumping head, m; |
| Hg | Static head, m; |
| k | Head loss coefficient, h/m2; |
| Q0 | Nominal pumping flow rate, m3/h; |
| Phid0 | Nominal pump’s hydraulic power, W; |
| ρ | Water density, Kg/m3; |
| g | Gravitational acceleration, m/s2; |
| Vpool | Water pool capacity, m3; |
| Vpool.out | Water volume extracted from the pool by the surface pump, m3; |
| Vpool.in | Water volume discharged into the pool by the submersible pumps, m3; |
| A | Head–flow 1st coefficient, m; |
| B | Head–flow 2nd coefficient, h/m2; |
| C | Head–flow 3rd coefficient, h/m5; |
| D | Efficiency–flow 1st coefficient, 1/m2; |
| E | Efficiency–flow 2nd coefficient, 1/m5; |
| η0 | Nominal efficiency of the pump, -; |
| ω | Pump’s operating speed, rad/s; |
| ω0 | Pump’s nominal speed, rad/s; |
| α | Denotes the ratio between the pump’s nominal and operating speeds, -; |
| Ppump0 | Nominal mechanical (rotational) power required by the pump, W; |
| Ppump | Operating mechanical (rotational) power required by the pump, W; |
| H | Operating pumping head, m; |
| Q | Operating pumping flow rate, m3/h; |
| G | Pump geometry, m2; |
| Q(ω) | Pump discharge according to the pump speed variation, m3/h; |
| η | Operating efficiency of the pump, -; |
| Tpump | Pump torque, Nm; |
| Ipump | Pump moment of inertia, Kg m2; |
| The stator voltage vector reference to the stator, V; | |
| The stator current vector reference to the stator, A; | |
| The rotor flux vector reference to the stator, Vm; | |
| Lm | Magnetizing inductance, H; |
| Ls | Stator inductance, H; |
| Lr | Rotor inductance, H; |
| Tem | Electromagnetic torque of the induction motor, Nm; |
| PIM | Input power of the induction motor/output power, W; |
| pmotor | Induction motor’s number of pole pairs, -; |
| k0 | No-load inverter losses, -; |
| k1 | Linear inverter losses, -; |
| k2 | Joule inverter losses, -; |
| Pdrivenominal | Nominal power of the induction motor drive, W; |
| Pdriveinput | Input power of the induction motor drive, W; |
| ηdrive | Efficiency of the induction motor drive, %; |
| ηfilter | Efficiency of the DV/DT filter, %; |
| ηcables | The efficiency after the loss due to the voltage drop in the cables, %; |
| vds and vqs | The stator three-phase AC voltage commands transformed in the synchronous (dq) reference frame, V; |
| vαs and vβs | The stator three-phase AC voltage commands transformed in the stationary (αβ) reference frame, V; |
| vas, vbs, vcs | The stator three-phase AC voltages, V; |
| ias, ibs, ics | The stator three-phase AC currents, A; |
| iα and iβ | The stator three-phase AC currents expressed in stationary (αβ) reference frame, A; |
| Sa, Sb, Sc | The pulse-width modulation switching commands (orders), -; |
| Tdq.αβ | Transformation from synchronous (dq) reference frame into stationary (αβ) reference frame, -; |
| Tabc.αβ | Transformation from three-phase (abc) complex space vector into stationary (αβ) reference frame, -; |
| Tαβ.dq | Transformation from stationary (αβ) reference frame into synchronous (dq) reference frame, -; |
| Tαβ.abc | Transformation from stationary (αβ) reference frame into three-phase (abc) complex space vector, -; |
| ids* | Reference of the d-axis (real component) current loop, A; |
| ids | The output of the d-axis (real component) current loop, A; |
| iqs* | The reference of the q-axis (imaginary component) current loop, A; |
| iqs | The output of the q-axis (imaginary component) current loop, A; |
| kp1 | Proportional gain of the d- and q-axis current systems, -; |
| ki1 | Integral gain of the d- and q-axis current systems, -; |
| ωn1 | The first natural frequency of the d- and q-axis current systems, Hz; |
| ξ1 | The damping factor of the d- and q-axis current systems, Ns/m; |
| fm | Induction motor electrical frequency, Hz; |
| fm* | Induction motor electrical frequency reference, Hz; |
| kp2 | Proportional gain of the driving shaft speed controller, -; |
| ki2 | Integral gain of the driving shaft speed controller, -; |
| ωn2 | The first natural frequency of the driving shaft system, Hz; |
| ξ2 | The damping factor of the driving shaft system, Ns/m; |
| τr | Induction motor’s rotor time constant, s; |
| kp3 | Proportional gain of the rotor flux controller, -; |
| ki3 | Integral gain of the driving rotor flux controller, -; |
| ωn3 | The first natural frequency of the rotor flux estimator, Hz; |
| ξ3 | The damping factor of the rotor flux estimator, Ns/m. |
Appendix A
| Properties | Submersible Pump | Surface Pump | Symbol | Unit | |||
|---|---|---|---|---|---|---|---|
| Manufacturer | Caprari | Dutchi Motors | - | - | |||
| Type | E6P35/14M | DM1 225M4 | - | - | |||
| Pump number | 1 | 2 | 3 | 4 | - | - | - |
| Operating Flow | 38.52 | 38.88 | 34.68 | 40 | 150–170 | Q | m3/h |
| Maximum flow | 41 | 41 | 41 | 41 | - | Qmax | m3/h |
| Consumer pressure | 1 | 1.2 | 1.2 | 1.5 | 3.7 | Hgcons | bar |
| Well Dynamic head | 100 | 98 | 100 | 105 | - | Hgwell | mca |
| Water level variation | 0 | 1 | 0 | 1 | - | ΔHg | mca |
| Pipe diameter | 0.11 | 0.11 | 0.11 | 0.11 | - | Dpipe | m |
| Measured voltage | 400 | 400 | 400 | 400 | 400 | V | V |
| Measured current | 39 | 37.8 | 36 | 40 | 59 | I | C |
| Measured Power factor | 0.8 | 0.8 | 0.8 | 0.8 | 0.87 | Cos φ | - |
| Absorbed power | 21.616 | 20.95 | 19.953 | 22.17 | 35.562 | P | kW |
| Head–flow 1st coefficient | 187.1244 | 41.2583 | A | m | |||
| Head–flow 2nd coefficient | 0.6671 | 0.0891 | B | h/m2 | |||
| Head–flow 3rd coefficient | −0.0577 | −0.0005 | C | h/m5 | |||
| Efficiency–flow 1st coefficient | 4.3812 | 0.8306 | D | 1/m2 | |||
| Efficiency–flow 2nd coefficient | −0.0628 | −0.0022 | E | 1/m5 | |||
| Technical Properties | Submersible Pump Induction Motor | Surface Pump Induction Motor | Symbol | Unit |
|---|---|---|---|---|
| Manufacturer | Caprari | Dutchi Motors | - | - |
| Type | MAC625A-8V | M301852121-V | - | - |
| Nominal Power | 18.5 | 34 | PIM0 | kW |
| Nominal Efficiency | 83% | 94.2% | ηIM0 | % |
| Nominal Frequency | 50 | 50 | fIM | Hz |
| Nominal Voltage | 400 | 400 | VIM | V |
| Nominal Current | 40.2 | 81.1 | IIM | A |
| Number of poles | 2 | 4 | Poles | - |
| Rotor synchronous speed | 3000 | 1500 | ωs | rpm |
| Rotor nominal speed | 2875 | 1480 | ω0 | rpm |
| Rotor operating speed | Variable | Variable | ω | rpm |
| Power factor | 0.8 | 0.85 | cos φ | - |
| Technical Properties | Variable Frequency Drive | Symbol | Unit |
|---|---|---|---|
| Manufacturer | Nidec Control Techniques | - | - |
| Type | F300 | - | - |
| Maximum DC voltage | 980 | VmaxVFDdc | Vdc |
| MMP DC voltage range | 540–830 | VVFDdc | Vdc |
| AC rated power | 45 | PVFD | kW |
| AC rated voltage | 400 | VVFDac | Vac |
| AC rated frequency | 50 | fVFD | A |
| AC maximum continuous current | 94 | IVFD | A |
| No-load inverter losses | 0.0115 | k0 | - |
| Linear inverter losses | 0.0015 | k1 | - |
| Joule inverter losses | 0.0438 | k2 | - |
References
- Lai, Z.; Li, Q.; Zhao, A.; Zhou, W.; Xu, H.; Wu, D. Improving Reliability of Pumps in Parallel Pump Systems Using Particle Swam Optimization Approach. IEEE Access 2020, 8, 58427–58434. [Google Scholar] [CrossRef]
- Arun Shankar, V.K.; Umashankar, S.; Paramasivam, S.; Hanigovszki, N. An Energy Efficient Control Algorithm for Parallel Pumping Industrial Motor Drives System. In Proceedings of the IEEE International Conference on Power Electronics, Drives and Energy Systems (PEDES) 2018, Chennai, India, 18–21 December 2018; pp. 1–6. [Google Scholar] [CrossRef]
- European Parliament; European Council. Directive 2005/32/EC 2005 Of the European Parliament and of the Council of 6 July 2005 establishing a framework for the setting of ecodesign requirements for energy-using products and amending Council Directive 92/42/EEC and Directives 96/57/EC and 2000/55/EC of the European Parliament and of the Council. Off. J. Eur. 2005. [Google Scholar]
- Olszewski, P. Genetic optimization and experimental verification of complex parallel pumping station with centrifugal pumps. Appl. Energy 2016, 178, 527–539. [Google Scholar] [CrossRef]
- Qiang, Z.; Li, G.; Rui, Z. Integrated model of water pump and electric motor based on BP neural network. In Proceedings of the 2015 IEEE 10th Conference on Industrial Electronics and Applications (ICIEA), Auckland, New Zealand, 15–17 June 2015; pp. 1449–1452. [Google Scholar] [CrossRef]
- Xiang, H.; Wu, J.; Chang, X.; Wang, D.; Ji, L. Study on optimal scheduling pump group based on parallel H-Q characteristics and pipe characteristics. In Proceedings of the 2019 Chinese Control Conference (CCC), Guangzhou, China, 27–30 July 2019; pp. 7161–7165. [Google Scholar] [CrossRef]
- Olszewski, P.; Arafeh, J. Parametric analysis of pumping station with parallel-configured centrifugal pumps towards self-learning applications. Appl. Energy 2018, 231, 1146–1158. [Google Scholar] [CrossRef]
- Yang, Z.; Soleiman, K.; Løhndorf, B. Energy Efficient Pump Control for an Offshore Oil Processing System. IFAC Proc. 2018, 45, 257–262. [Google Scholar] [CrossRef]
- Bordeașu, D. Study on the implementation of an alternative solution to the current irrigation system. In Proceedings of the ErgoWork 2022 International Conference on Ergonomics and Workplace Management, Timișoara, Romania, 16 June 2022. [Google Scholar]
- Bordeașu, D.; Proștean, O.; Vașar, C.; Debeș, A. Load Comparison Between Two Controlling Strategies for Wind Energy Conversion System Power-Boosting. In Proceedings of the IEEE 16th International Symposium on Applied Computational Intelligence and Informatics (SACI 2022), Timișoara, Romania, 25 May 2022. [Google Scholar]
- Abdelsalam, A.; Basma, M.; Essam, R. Power Saving of Multi Pump-Motor Systems Using Variable Speed Drives. In Proceedings of the 2018 Twentieth International Middle East Power Systems Conference (MEPCON), Cairo, Egypt, 18–20 December 2018; pp. 839–844. [Google Scholar] [CrossRef]
- Bakman, I.; Gevorkov, L.; Vodovozov, V. Efficiency Control for Adjustment of Number of Working Pumps in Multi-pump System. In Proceedings of the 2015 9th International Conference on Compatibility and Power Electronics (CPE), Costa da Caparica, Portugal, 24–26 June 2015. [Google Scholar]
- Bordeasu, I.; Micu, L.M.; Oanca, O.V.; Pugna, A.; Bordeasu, C.; Popoviciu, M.O.; Bordeasu, D. Laser beam treatment effect on AMPCO M4 bronze cavitation erosion resistance. IOP Conf. Ser. Mater. Sci. Eng. 2015, 85, 10. [Google Scholar] [CrossRef]
- Micu, L.M.; Bordeasu, I.; Popoviciu, M.O.; Popescu, M.; Bordeasu, D.; Salcianu, L.C. Influence of volumic heat treatments upon cavitation erosion resistance of duplex X2CrNiMoN 22-5-3 stainless steels. IOP Conf. Ser. Mater. Sci. Eng. 2015, 85, 012019. [Google Scholar] [CrossRef]
- Rishel, J.B. Water Pumps and Pumping Systems, 1st ed.; MC Graw. Hill: New York, NY, USA, 2002; ISBN 10:0071374914/ISBN 13:9780071374910. [Google Scholar]
- Bakman, I.; Gevorkov, L.; Vodovozov, V. Predictive Control of a Variable-Speed Multi-Pump Motor Drive. In Proceedings of the 2014 IEEE 23rd International Symposium on Industrial Electronics (ISIE), Istanbul, Turkey, 1–4 June 2014. [Google Scholar]
- Bakman, I.; Gevorkov, L. Speed Control Strategy Selection for Multi Pump Systems. In Proceedings of the 56th International Scientific Conference on Power Electrical Engineering of Riga Techanical University, Riga, Latvia, 14–14 October 2015. [Google Scholar]
- Vodovozov, V.; Lehtla, T.; Bakman, I.; Raud, Z.; Gevorkov, L. Energy-efficient predictive control of centrifugal multi-pump stations. In Proceedings of the 2016 Electric Power Quality and Supply Reliability (PQ), Tallinn, Estonia, 29–31 August 2016; pp. 233–238. [Google Scholar] [CrossRef]
- Vodovozov, V.; Raud, Z. Predictive Control of Multi-Pump Stations with Variable-Speed Drives. IET Electr. Power Appl. 2017, 11, 911–917. [Google Scholar] [CrossRef]
- Ursachi, A.; Bordeasu, D. Smart Grid Simulator. Int. J. Electr. Comput. Eng. 2014, 8, 542–545. [Google Scholar]
- Elsisi, M.; Tran, M.-Q.; Hasanien, H.M.; Turky, R.A.; Albalawi, F.; Ghoneim, S.S.M. Robust Model Predictive Control Paradigm for Automatic Voltage Regulators against Uncertainty Based on Optimization Algorithms. Mathematics 2021, 9, 2885. [Google Scholar] [CrossRef]
- Tian, M.-W.; Yan, S.-R.; Liu, J.; Alattas, K.A.; Mohammadzadeh, A.; Vu, M.T. A New Type-3 Fuzzy Logic Approach for Chaotic Systems: Robust Learning Algorithm. Mathematics 2022, 10, 2594. [Google Scholar] [CrossRef]
- Solar Irrigation in a 95 ha Citrus Plantation. Available online: https://bombeatec.com/en/casos-de-exito/solar-irrigation-in-a-96ha-citrus-plantation/ (accessed on 5 June 2022).
- Caprari 2019 Submersible Electric Pump E6P35/14M+MAC625A-8V Technical Data Sheet. Available online: https://ipump.caprarinet.net/ (accessed on 5 June 2022).
- Dutchi Motors Series DM1 Technical Data Sheet. Available online: https://vecgroup.com/assets/pdf/DM1.pdf (accessed on 5 June 2022).
- Bordeașu, D.; Proștean, O.; Hatiegan, C. Contributions to Modeling, Simulation and Controlling of a Pumping System Powered by a Wind Energy Conversion System. Energies 2021, 14, 7696. [Google Scholar] [CrossRef]
- Predescu, A.; Truică, C.-O.; Apostol, E.-S.; Mocanu, M.; Lupu, C. An Advanced Learning-Based Multiple Model Control Supervisor for Pumping Stations in a Smart Water Distribution System. Mathematics 2020, 8, 887. [Google Scholar] [CrossRef]
- Bărglăzan, M.; Velescu, C.; Miloş, T.; Manea, A.; Dobândă, E.; Stroiţă, C. Hydrodynamic Transmission Operating with Two-phase Flow. Comput. Methods Multiph. Flow IV WIT Trans. Eng. Sci. 2007, 56, 369. [Google Scholar]
- Oshurbekov, S.; Kazakbaev, V.; Prakht, V.; Dmitrievskii, V. Improving Reliability and Energy Efficiency of Three Parallel Pumps by Selecting Trade-Off Operating Points. Mathematics 2021, 9, 1297. [Google Scholar] [CrossRef]
- White, F.M. Chapter 11 Turbomachinery. In Fluid Mechanics, 7th ed.; McGraw-Hill: New York, NY, USA, 2011. [Google Scholar]
- Sârbu, I.; Borza, I. Energetic optimization of water pumping in distribution systems. Period. Polytech. Ser. Mech. Eng. 1998, 42, 141–152. [Google Scholar]
- Thorley, A.R.D. Fluid Transients in Pipeline Systems; D. & L. George Ltd.: Herts, UK, 1991. [Google Scholar]
- Sul, S. Control of Electric Machine Drive Systems; John Wiley & Sons: Hoboken, NJ, USA, 2011; pp. 291–294. [Google Scholar]
- Haţiegan, C.; Chioncel, C.P.; Răduca, E.; Popescu, C.; Pădureanu, I.; Jurcu, M.R.; Bordeaşu, D.; Trocaru, S.; Dilertea, F.; Bădescu, O. Determining the operating performance through electrical measurements of a hydro generator. IOP Conf. Ser. Mater. Sci. Eng. 2017, 163, 012031. [Google Scholar] [CrossRef]
- Nidec Control Techniques Digistart D3 23 A-1600A 200 V-690 V; Nidec Control Techniques Ltd.: Newtown, UK, 2017; p. 324.
- Nidec Control Techniques Powerdrive F300; Nidec Control Techniques Ltd.: Newtown, UK, 2017.
- Muñoz, J.; Martínez-Moreno, F.; Lorenzo, E. On-site characterisation and energy efficiency of grid-connected PV inverters. Prog. Photovolt. Res. Appl. 2011, 19, 192–201. [Google Scholar] [CrossRef]
- Abad, G. Power Electronics and Electric Drives for Traction Applications; John Wiley & Sons: Chichester, UK, 2017; pp. 37–98, 149–185. [Google Scholar]
- Abu-Rub, H.; Malinowski, M.; Al-Haddad, K. Power Electronics for Renewable Energy Systems, Transportation and Industrial Applications; IEEE Press and John Wiley & Sons Ltd.: Chichester, UK, 2014; pp. 277–356. [Google Scholar]














| Pump | Measured Power Consumption (kW) | Simulated Power Consumption (kW) | Power Error (%) | Measured Current Consumption (A) | Simulated Current Consumption (A) | Current Error (%) |
|---|---|---|---|---|---|---|
| Submersible pump 1 | 21.616 | 20.884 | 3.3864 | 39 | 37.68 | 3.3846 |
| Submersible pump 2 | 20.95 | 21.528 | −2.7589 | 37.8 | 38.8412 | −2.7545 |
| Submersible pump 3 | 19.953 | 20.858 | −4.5357 | 36 | 37.6323 | −4.5342 |
| Submersible pump 4 | 22.17 | 21.222 | 4.276 | 40 | 38.2891 | 4.2773 |
| Surface pump | 35.562 | 35.0498 | 1.4403 | 59 | 58.1494 | 1.4417 |
| Month | Submersible Pump 1 | Submersible Pump 2 | Submersible Pump 3 | Submersible Pump 4 |
|---|---|---|---|---|
| January | 10% | 30% | 30% | 30% |
| February | 10% | 30% | 30% | 30% |
| March | 10% | 30% | 30% | 30% |
| April | 10% | 30% | 30% | 30% |
| May | 10% | 30% | 30% | 30% |
| Jun | 25% | 25% | 25% | 25% |
| July | 25% | 25% | 25% | 25% |
| August | 19% | 27% | 27% | 27% |
| September | 25% | 25% | 25% | 25% |
| October | 10% | 30% | 30% | 30% |
| November | 10% | 30% | 30% | 30% |
| December | 10% | 30% | 30% | 30% |
| Month | Standard Hours kWh 7:00–18:00 | Peak Hours kWh 18:00–22:00 | Off-Peak Hours kWh 22:00–7:00 | Total Energy kWh | Operational Days/Month |
|---|---|---|---|---|---|
| January | 12,581 | 0 | 0 | 12,581 | 21 |
| February | 12,581 | 0 | 0 | 12,581 | 24 |
| March | 27,154 | 0 | 2422 | 29,576 | 26 |
| April | 33,789 | 0 | 28,359 | 62,148 | 30 |
| May | 35,890 | 0 | 33,551 | 69,441 | 31 |
| Jun | 39,683 | 0 | 32,468 | 72,152 | 30 |
| July | 41,006 | 0 | 33,551 | 74,557 | 31 |
| August | 41,006 | 0 | 33,551 | 74,557 | 31 |
| September | 39,683 | 0 | 32,468 | 72,152 | 30 |
| October | 33,635 | 0 | 16,004 | 49,639 | 31 |
| November | 12,581 | 0 | 0 | 12,581 | 30 |
| December | 12,581 | 0 | 0 | 12,581 | 23 |
Publisher’s Note: MDPI stays neutral with regard to jurisdictional claims in published maps and institutional affiliations. |
© 2022 by the authors. Licensee MDPI, Basel, Switzerland. This article is an open access article distributed under the terms and conditions of the Creative Commons Attribution (CC BY) license (https://creativecommons.org/licenses/by/4.0/).
Share and Cite
Bordeașu, D.; Proștean, O.; Filip, I.; Drăgan, F.; Vașar, C. Modelling, Simulation and Controlling of a Multi-Pump System with Water Storage Powered by a Fluctuating and Intermittent Power Source. Mathematics 2022, 10, 4019. https://doi.org/10.3390/math10214019
Bordeașu D, Proștean O, Filip I, Drăgan F, Vașar C. Modelling, Simulation and Controlling of a Multi-Pump System with Water Storage Powered by a Fluctuating and Intermittent Power Source. Mathematics. 2022; 10(21):4019. https://doi.org/10.3390/math10214019
Chicago/Turabian StyleBordeașu, Dorin, Octavian Proștean, Ioan Filip, Florin Drăgan, and Cristian Vașar. 2022. "Modelling, Simulation and Controlling of a Multi-Pump System with Water Storage Powered by a Fluctuating and Intermittent Power Source" Mathematics 10, no. 21: 4019. https://doi.org/10.3390/math10214019
APA StyleBordeașu, D., Proștean, O., Filip, I., Drăgan, F., & Vașar, C. (2022). Modelling, Simulation and Controlling of a Multi-Pump System with Water Storage Powered by a Fluctuating and Intermittent Power Source. Mathematics, 10(21), 4019. https://doi.org/10.3390/math10214019

