Abstract
An experimental system for observing the drop vaporization and microexplosion characteristics of emulsified droplets in high-temperature environments was conducted to analyze the effects of environmental temperature, droplet size, and water content on droplet behavior. In addition, emulsified low-sulfur heavy fuel oil (HFO) with a 20 vol% water content and pure low-sulfur HFO were used as fuels for burning in an industrial boiler under normal operating conditions. The results showed that by using an emulsified HFO with a 20 vol% water content, the boiler efficiency can be improved by 2%, and that a reduction of 35 ppm in NOx emissions (corresponding to a NOx reduction rate of 18%) can be achieved. These advantages are due to the occurrence of a microexplosion during the combustion of the emulsified droplets. It was observed that when emulsified HFO with a 20 vol% water content was used, the fuel (HFO) consumption rate was 252 l/h. On the other hand, the fuel consumption rate was 271 l/h when pure low-sulfur HFO was used. Therefore, a reduction of 19 l/h in the fuel (HFO) consumption rate was achieved when using the water-in-oil emulsion, corresponding to fuel savings of 7%.
1. Introduction
Industrial combustion applications of liquid fuels are mainly achieved through spray atomization. The main purpose of the spray is to atomize the liquid fuels into fine fuel oil droplets. The particle size and penetration distance of the droplets are the important parameters in spray flow fields. The size of the droplet should be small enough to be rapidly vaporized; on the other hand, the size should be sufficiently large for the droplet to have an opportunity to penetrate deep inside of the combustion chamber. In addition to control the droplet size to achieve the desired combustion conditions, Gollahalli [1] and Lasheras et al. [2] separately and concurrently suggested that adding water to the fuel oil is an effective, easy, and inexpensive method by which to improve combustion. The added water reduces NOx emissions by lowering the locally high temperature region in a flame.
The most commonly used method to add water to fuel oil is to apply it in the form of an emulsified fuel. The two immiscible liquids (e.g., diesel oil and water) are mixed with a surfactant to cause the water droplets to disperse in the liquid fuel and form an emulsified state. This milky white fuel is called emulsified fuel. The emulsified fuel droplets are heated by the surrounding high temperature during the combustion process. When the internal water droplet temperature exceeds its superheat limit temperature, the water gasifies rapidly, and the emulsified fuel droplets are then split into smaller droplets, which is called a microexplosion [3,4]. When the emulsified liquid is used as a fuel, the first step of atomization is usually achieved using a spray nozzle. The second stage of atomization is performed by the occurrence of the microexplosion when the droplets enter the high temperature combustion chamber. Consequently, the droplets explode into tiny droplets (i.e., secondary atomization) that can be rapidly vaporized and effectively combusted. This process improves the formation of the combustible mixture as well as combustion efficiency. Another advantage of the emulsified fuel is that the moisture contained in the fuel absorbs heat, which lowers the flame temperature and thus reduces the formation of thermal NOx [5,6]. In addition to reducing NOx emissions, the emulsified fuels formed by the fuel–water mixing technology gain the emission advantages of other pollutants such as carbonaceous residues [7,8] in the combustion furnace due to the microexplosion behavior. In comparison with pure fuel oil spray combustion, Gollahalli et al. [9] found that aqueous emulsified fuel emits less NO than a pure fuel. In the downstream combustion area, NO emissions were reduced by approximately 20%. Emulsions of liquid fuel and water are often promoted as being able to overcome the issues related to simultaneously reducing emissions of both the oxides of nitrogen and particulate matter from diesel engines [10]. In Ballester et al.’s study [11], it was also shown that the NOx emissions can be reduced from the burning of emulsified fuel. This is mainly due to the temperature drop of 65 K and the addition of water, which increases the hydroxide ions and consumes oxygen. In short, adding water to the fuel does have an effect on the reduction of NOx.
In addition, Yoshimoto et al. [12] and Selim et al. [13] reported that the use of water/oil emulsified fuel is effective for fuel savings, where they attributed the specific fuel consumption and the thermal efficiency in the tested engine to a reduction in heat loss. Li et al. [14] applied a water/heavy oil emulsion homogenizer to a boiler to directly evaluate the boiler efficiency. The important findings related to the use of an emulsified fuel without a surfactant include the fact that the higher boiler efficiency of the water/heavy oil emulsion has the potential to reduce energy consumption by 15% compared to that obtained with pure heavy oil and also the fact that the NOx emissions in the boiler increase with increases in the amount of excess air. Furthermore, lower CO emissions have been found for boiler firing water/heavy oil emulsions because of the occurrence of microexplosions, which is also known as secondary atomization.
The problems with pure liquid droplet evaporation or burning in a high temperature environment have been fully ascertained through both theoretical and experimental studies. The theories from the early [15] (Law et al., 1980) to the recent [16] (Sagna et al., 2013) studies were based on the d2-law model. In addition, the evaporation of multi-component droplets has also been studied. The theoretical studies on the evaporation of multicomponent droplets have mostly used statistical distribution methods to describe the mass or volume fraction of the multicomponent fuels [17,18,19,20].
In this paper, the main goal is to investigate the combustion performance of water-emulsified HFO in an industrial boiler. For the purpose of fully describing the microexplosion characteristics of a single emulsified droplet and to demonstrate the advantages of water-emulsified HFO on boiler efficiency and pollutant emissions, two experiments were performed separately using a single suspended droplet heating system and an industrial boiler.
2. Experimental Setup and Method
2.1. Fuels
The heavy fuel oil (HFO) used in the experiment was produced by the CPC Corporation, Taiwan. A Water/HFO emulsion with a 20 vol% water content was adopted as the emulsified fuel. In Kim et al.’s study [5], the water-in-oil-type emulsion fuel was fabricated by mixing marine diesel oil and water at a volume ratio of 80:20. The emulsified fuel has benefits for the reduction of both NOx and smoke, and the improvement of combustion efficiency. In addition, the microexplosion for the emulsion of HFO with a 21 vol% water content is more violent than the other emulsions with a lower/higher water content [21]. Therefore, in this investigation, HFO with a 20 vol% water content was adopted. The goal was focused on the effect of microexplosion of the emulsified fuel on energy saving and NOx emission. Table 1 shows the physical and chemical properties of the HFO and water/HFO emulsion. As shown in Table 1, the emulsion has higher viscosity and density but lower sulfur content and heating value compared to the HFO.
Table 1.
Properties of the heavy fuel oil (HFO) and water/HFO emulsion with a 20 vol% water content.
2.2. A Single Emulsified Droplet Heating System
A schematic of the suspended droplet experimental system is shown in Figure 1. The experimental equipment and apparatus included a movable droplet suspension system (No. 1, 2, and 5), a temperature-controlled heating environment system (No. 3 and 4), a temperature measurement and recording system (No. 5, 6, and 7), an image capture and recording system (No. 8, 9, and 10), and a temperature-image synchronization system (No. 8, 9, and 12).
Figure 1.
The experimental setup for the heating of the suspended droplet.
This experiment involved hanging a single droplet approximately 0.9–1.1 mm in diameter on a K-type thermocouple in a general atmospheric environment. The droplet could be driven into or out of the heating space at a constant speed by using a stepping motor. A high-speed digital camera operating at 1000 frames per second was used to capture the evaporation behavior or microexplosion phenomenon during the droplet heating process. The image recording and droplet temperature data acquisition system was set to synchronization. The heating environment was placed in parallel by two electric heating plates 60 mm long and 30 mm wide (No. 3 in Figure 1; also shown in Figure 2). This experiment was intended to investigate the behavior of droplets in high temperature environments at 300, 400, and 500 °C. It was necessary to determine that the temperature had reached the controller setting and was stable for 20 min before the start of each experiment. Two sets of K-type thermocouples were employed. One (thermocouple B, No. 6 in Figure 1) was used to control and measure the temperature in the high temperature environment, and the other (thermocouple A, No. 5 in Figure 1) was used to hang a single droplet and measure the droplet temperature. The images were captured with a high-speed digital camera operating at 1000 frames per second. Then, variations in the square of the droplet diameter with time were plotted and used to compare with the d2-law [3]. However, the shapes of the suspended droplets during the heating process were not true spheres. For these droplets with irregular shapes, the average droplet diameter (d) is defined as the hydraulic diameter 4A/p, where A is the droplet area, and p is the perimeter of the droplet. For the picture originally taken with the high speed camera, the image of thermocouple was firstly eliminated and only the image of droplet was preserved. Then the droplet boundary was extracted from the image of droplet. Thirdly, both A and p were obtained by analyzing the image of droplet with image processing software (ImageJ). Finally, the hydraulic diameter 4A/p could be obtained. A more detailed explanation of the experimental design and operations can be found in our previous study (Hou et al. [22]).
Figure 2.
Positions of thermocouples A and B.
2.3. Water-Emulsified Fuels for Spray Combustion in an Industrial Boiler
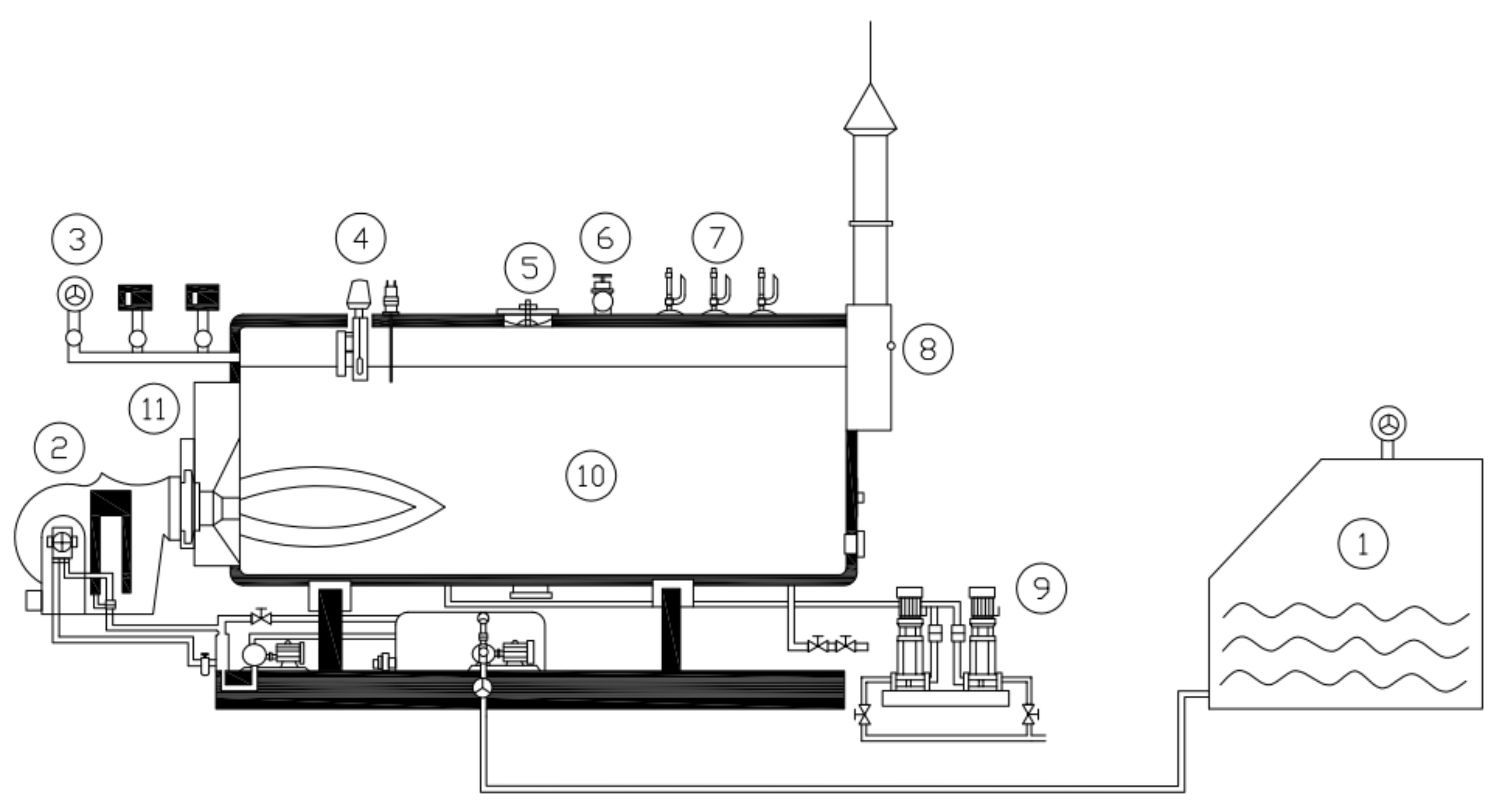
In this study, the main equipment in the industrial combustion facilities, as shown in Figure 3, included: (1) a 7T smoke tube boiler, (2) a 500 l double-layer steam heating emulsion tank, (3) a mixing system, (4) steam and fuel flow meters and a steam thermometer, and (5) steam pressure controllers.
Figure 3.
Experimental apparatus: 1: heating tank, 2: blower, 3: pressure gauge, 4: level gauge, 5: enclosures, 6: steam valve, 7: safety valve, 8: flue gas sampling hole, 9: cooling water system, 10: combustion chamber, 11: combustor.
This experiment was aimed at investigating the combustion performance and energy savings obtained with the use of emulsified low-sulfur fuel oil for an industrial 7T smoke tube boiler. Note that regular cleaning of the boiler tubes is of significance to improve heat transfer efficiency and lower exhaust temperatures, resulting in an improvement in boiler efficiency. Therefore, a comparative study under the operating conditions without cleaning boiler tubes and after cleaning boiler tubes is also needed. Test parameters included the fuel supply rate, boiler efficiency and a pollution emissions analysis (O2, CO, CO2, and NOx), and the values of CO, CO2, and NOx emissions were corrected by 6 vol% O2 (dry basis) for consistency. The measurement range of the flue gas analyzer instrument used in this experiment was as follows: NO: 0–2000 ppm, NO2: 0–100 ppm, CO2: 0–20 vol%, CO: 0–2000 ppm, and O2: 0–20.9 vol%. The measurement accuracy of all flue gas analyzers is ±0.5% full scale. The emissions were sampled in the flue gas zone. The solid particles were filtered through a filter to prevent moisture from condensing into water and reacting with sulfur to cause corrosion. The purpose of the combustion tuning was to determine the optimized experimental conditions for complete oil combustion [23,24,25]. The efficiency of the boiler was calculated according to the standard of CNS 2141 B1025:
where w2 is the mass of generating steam per kilogram of fuel; hx means the steam enthalpy; hi means the water enthalpy; Hl is the lower heating value of fuel; cf is the specific heat of fuel; tf is the heated fuel temperature and t0 is the ambient temperature.
3. Results and Discussion
A high-speed camera was used in this study to observe either the evaporation or microexplosion characteristics of both pure and emulsified droplets in high-temperature environments. The results can be used to empirically explain the differences in efficiency and emissions between pure HFO and water-in-HFO emulsions in industrial boiler tests.
3.1. Evaporation and MicroExplosion for Suspended Droplet
Figure 4 shows high speed photographic images of the typical feature behavior for a pure HFO droplet with an initial diameter d0 = 1.04 mm at 400 °C environment. More specifically, the change in shape (droplet diameter) with time (t) and the instantaneous temperature (T) at the time of obtaining each image are shown in Figure 4. As can be seen in Figure 4, the droplet began to significantly evaporate after about 2 seconds and the droplet diameter gradually decreased. Note that only evaporation occurred for pure HFO droplets without microexplosion during heating process.
Figure 4.
The images of evaporation characteristics and shape change with heating time of a pure HFO droplet with an initial diameter d0 = 1.04 mm at 400 °C environment. T represents the instantaneous temperature at the time of obtaining each image.
The evaporation behavior of droplets in high temperature environments was graphically represented in Figure 5. In Figure 5, the x-axis represents the time coordinate at which the droplet entered the high temperature environment. “t = 0” represents the time at which the suspended droplet moves to the point where the high speed camera is triggered. The right hand side y-axis represents the temperature of the droplet measured by thermocouple A (No. 5 in Figure 1), and the left hand side y-axis shows the change in diameter after the droplet enters the high temperature environment. When the suspended droplet arrived at the trigger position in the high temperature environment, the droplet was heated. In Figure 5, it can be seen that the pure heavy fuel oil droplet exhibits an approximately constant diameter and undergoes a rapid increase in temperature in the first 1–2 seconds. This is attributed to the fact that the droplets have not yet begun to vaporize, and the absorption of heat was mainly manifested by the sensible heat of the temperature rise during this period. After that, the droplet diameter gradually decreased, in line with the d2-law model. Since the thermal energy was used for the latent droplet evaporation heat, the rate of the temperature rise gradually slowed down. A higher ambient temperature (500 °C) results in less time required for the droplets to reach sensible heat and a more obvious diameter reduction rate at the end of evaporation. The slopes of (d/d0)2 versus time were −0.033, −0.066, and −0.138 at 300, 400, and 500 °C, respectively. As expected, in a higher temperature environment, rapid droplet evaporation occurred.
Figure 5.
The plots of dimensionless droplet diameter square (d/d0)2 versus time and temperature versus time for pure heavy fuel oil at different ambient temperatures (a) 300, (b) 400, and (c) 500 °C.
Figure 6 shows high speed photographic images of the selected feature behavior an emulsified droplet with an initial diameter d0 = 1.05 mm at 400 °C environment. The emulsified fuel droplet used in this experiment was a mixture of 80 vol% heavy fuel oil and 20 vol% water with a surfactant. As shown in Figure 6, expansion could be found at t = 0.396 and 1.612 s; microexplosion could be found at t = 0.796, 1.324 and 2.462 s; evaporation could be found at t = 3.716 and 6.935 s.
Figure 6.
The images of microexplosion characteristics and shape change with heating time of an emulsified droplet with initial diameter d0 = 1.05 mm at 400 °C environment. T represents the instantaneous temperature at the time of obtaining each image.
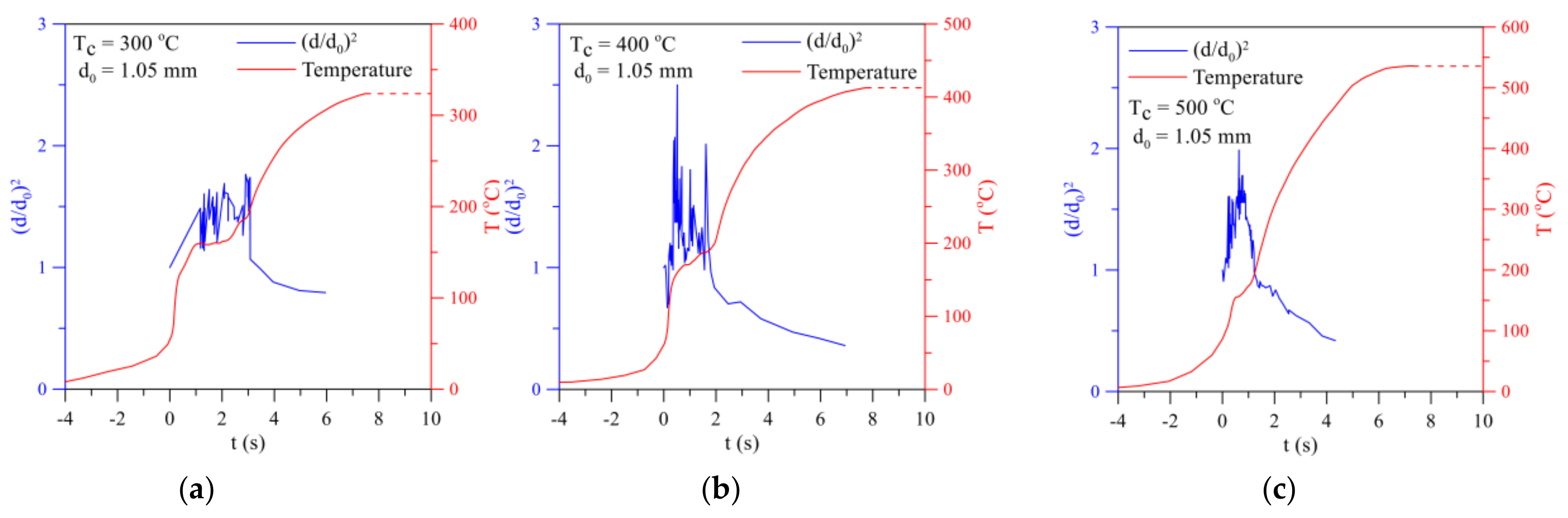
Figure 7 shows the dimensionless droplet diameter square versus time and temperature versus time to describe the microexplosion characteristics of the emulsified droplets during the heating process. At an ambient temperature of TC = 400 °C, the droplet was rapidly heated when the emulsified droplet with an initial diameter d0 = 1.05 mm entered the trigger position. The diameter of the droplet underwent an unstable and violent change that could have been caused by expansion or ejection (microexplosion) during the water vaporization process inside the droplet within the first 2 seconds. During this period, water absorbed latent heat for vaporization, so the rise in the droplet temperature slowed down. Note that when the high ambient temperature reached 500 °C, droplet breakage was recorded. After the occurrences of the violent microexplosion phenomena, the changes in the droplet diameter and temperature were similar to those of pure HFO droplets, i.e., basically following the d2-law. In a comparison of the microexplosion and evaporation of the emulsified droplets under different high temperature environment conditions, the results of Figure 7a–c show that when the ambient temperature is higher, the microexplosive strength of the emulsified droplets is greater, and the droplet lifetime is shorter.
Figure 7.
The plots of dimensionless droplet diameter square (d/d0)2 versus time and temperature versus time for water-emulsified oil at different ambient temperatures (a) 300, (b) 400, and (c) 500 °C.
In addition, the experiments of smaller diameter droplets (about d0 = 0.9 mm) were conducted. There were no obvious differences from the previous results. The d2-law slopes obtained by summarizing the different ambient temperatures and droplet sizes are presented in Table 2. As can be seen, when the ambient temperature was higher, the slope was steeper due to the strengthened evaporation. Furthermore, at the same ambient temperature, the d2-law slope for the water-emulsified oil was greater than that for pure heavy fuel oil.
Table 2.
Variations in the droplet evaporation slope with ambient temperature, droplet size, and fuel type.
3.2. Water-Emulsified Fuels Spray Combustion in an Industrial Boiler+
Figure 8, Figure 9 and Figure 10 show the variations of emissions (O2, CO, CO2, and NOx), flue gas temperature, and boiler efficiency with time for the three experimental conditions (i.e., Case A: firing HFO without cleaning the boiler tubes; Case B: firing emulsified HFO with 20% water without cleaning the boiler tubes; Case C: firing emulsified HFO with 20% water after cleaning the boiler tubes). Figure 11 shows the corresponding average boiler efficiencies and flue gas temperatures for these three cases; and Figure 12 shows the corresponding average emissions of each exhaust gas for these three cases. In addition, their corresponding average fuel consumption rates and boiler efficiencies shown in Figure 8, Figure 9 and Figure 10 are listed in Table 3. The experimental results shown in Figure 8, Figure 9 and Figure 10 were obtained under optimized combustion operating conditions with the lowest CO and NOx concentrations detected in the flue gas by adjusting the air supply to the industrial boiler. Comparisons of experimental results using pure low-sulfur heavy fuel oil (Case A; Figure 8), emulsified low-sulfur heavy fuel oil with 20 vol% water content without cleaning the boiler tubes (Case B; Figure 9), and emulsified heavy fuel oil with 20 vol % water content after cleaning the boiler tubes (Case C; Figure 10) are reported and discussed. As shown in Table 3, the corresponding average fuel consumption rates are 271, 315, and 303.6 l/h for Cases A, B, and C, respectively. The emulsified fuel used in this study is a mixture of 80 vol% heavy fuel oil (HFO) and 20 vol% water. Deducting 20 vol% water content, the actual fuel (HFO) consumption rates are 252 l/h for Case B (firing water/HFO emulsion without cleaning boiler tubes) and 242.9 l/h for Case C (firing water/HFO emulsion after cleaning boiler tubes), respectively. Consequently, under the same operating conditions without cleaning the boiler tubes, the actual fuel consumption of Case B (firing emulsion) can save 19 l/h (i.e., (271-252) l/h = 19 l/h) of heavy fuel oil as compared to Case A (firing pure heavy fuel oil). The fuel savings rate was therefore approximately 7% (i.e., 19/271 = 7%).
Figure 8.
Combustion characteristics when firing pure low-sulfur fuel oil without cleaning the boiler tubes.
Figure 9.
Combustion characteristics when firing emulsion fuel oil with 20 vol% water without cleaning the boiler tubes.
Figure 10.
Combustion characteristics when firing emulsion fuel oil with 20 vol% water after cleaning the boiler tubes.
Figure 11.
Boiler efficiencies and flue gas temperatures under different operating conditions. Case A: firing HFO without cleaning the boiler tubes; Case B: firing emulsified HFO with 20 vol% water without cleaning the boiler tubes; Case C: firing emulsified HFO with 20 vol % water after cleaning the boiler tubes.
Figure 12.
CO, CO2, O2, NOx emissions under different operating conditions. Case A: firing HFO without cleaning the boiler tubes; Case B: firing emulsified HFO with 20 vol% water without cleaning the boiler tubes; Case C: firing emulsified HFO with 20 vol% water after cleaning the boiler tubes.
Table 3.
Variations in boiler performance with fuel type and operating conditions.
The performance of emulsified fuel combustion has predominantly been tested in diesel engines [5,6,26]. In this study, pure fuel oil and emulsified fuel oil with 20 vol% water content were tested in an industrial combustion facility to analyze whether there would be any energy savings and pollution reduction benefits. Generally, the formation of NOx has been found to be significantly correlated with excess oxygen concentration. The amount of air input during the combustion test was determined by combustion tuning [23,24,25]. Both types of fuel had a preheating temperature of 90 °C and a steady combustion test of 180 min. The boiler was operated by an automatic combustion control system (ACC). Whenever changes on the boiler loading or pressure occurred, ACC would automatically adjust the valve in the forced draft fan, the speed of the fan, and the fuel feeding rate. The excess air coefficient m (actual air quantity/theoretical air quantity) was kept at about 1.25 throughout the study, and the operation pressure was maintained around 686.5 kPa.
Under the operating conditions in which the boiler tubes were not cleaned, the average flue gas temperature (192.2 °C) of the pure heavy fuel oil (Case A) was higher than that (165.9 °C) of the emulsified fuel (Case B), as shown in Figure 11. This was because the water in the emulsified fuel could absorb the heat of combustion and undergo vaporization. It was also found from Figure 11 that the flue gas temperature (157.3 °C) was lowest under the operating condition in which the boiler tubes were cleaned (Case C).
Figure 8 shows that the oxygen percentages at some measurement points were higher, indicating that the amounts of air supplied were slightly greater than the critical amount required for complete combustion. The reason why the values of CO2 emissions at these times were lower was attributed to the fact that when the air supply was increased, the excess O2 was increased and the CO2 concentrations were relatively reduced. The CO concentrations were nearly zero because the experimental results (shown in Figure 8, Figure 9, Figure 10 and Figure 12) were obtained under the low excess air operating condition after combustion tuning process.
Under the operating conditions in which the boiler tubes were not cleaned, comparing Case A with Case B, a 26.3 ppm reduction (corresponding to 13.7% reduction rate) in the NOx emissions of the emulsified fuel (165.9 ppm) was found as compared to the pure fuel (192.2 ppm), as shown in Figure 12. The main reason for this was that the 20 vol% water in the emulsified fuel oil reduced the combustion temperature, which in turn caused a decrease in the amount of thermal NOx produced.
Figure 9 and Figure 10 show the combustion characteristics of the emulsified fuel oil fired with 20 vol% water without cleaning the boiler tubes (Case B) and after cleaning the boiler tubes (Case C), respectively. The NOx emissions shown in Figure 9 are higher than those shown in Figure 10. More specifically, as shown in Figure 12, it can be seen that the average value of NOx emissions (157.3 ppm) after cleaning the boiler tubes (Case C) was lower than that (165.9 ppm) without cleaning the boiler tubes (Case B) because the better heat transfer lowered the combustion chamber temperature. As compared with pure heavy fuel oil (Case A), there was a reduction of about 35 ppm in NOx emissions (corresponding to a reduction rate of 18%) when firing a 20 vol% water content emulsion after cleaning the boiler tube (Case C), as shown in Figure 12.
It was observed from Figure 8, Figure 9, Figure 10 and Figure 11 and Table 3 that the highest average boiler efficiency (92.6%) was achieved when the emulsified heavy fuel oil was fired after cleaning the boiler tubes, following by firing the emulsified fuel without cleaning the boiler tubes (87.8%), and the boiler efficiency was the lowest when the pure low-sulfur heavy fuel oil was fired without cleaning the boiler tubes, 86.1%. Therefore, without cleaning the boiler tubes, the boiler efficiency of firing the emulsified HFO with 20 vol% water can be improved by an increase rate of 2% (i.e., (87.8-86.1)/86.1 = 2%) in comparison with that of firing pure HFO. In addition, boiler efficiency of firing emulsified fuel oil with 20 vol% water after cleaning the boiler tubes can be improved by 6.8% (92.9%-86.1% = 6.8%) (corresponding to an increase rate of 7.9%) as compared to that of firing pure low-sulfur heavy fuel oil without cleaning the boiler tubes. These results also validated that water-emulsified oils and clean boiler tubes can improve boiler efficiency.
As discussed above, boiler efficiency of firing the emulsified HFO with 20 vol% water is higher than that of firing pure HFO. The increase of boiler efficiency for firing water-in-HFO emulsions is mainly due to the microexplosion effect on combustion. With water-HFO emulsified fuel, ambient temperature is lower due to the latent heat of water evaporation, therefore the flame temperature is reduced on combustion of boiler. Moreover, the microexplosion of water-in-oil emulsion enhances secondary atomization of the droplets, thereby promoting combustion, resulting in a decrease in fuel consumption rate. It is noteworthy that if the negative effect of water evaporation (causing heat loss) is less than the positive effect of microexplosion (enhancing combustion), then overall heat gain occurs, leading to higher boiler efficiency and reduced fuel consumption rate. In this study, higher boiler efficiency and lower pollution rate of the emulsified HFO with 20 vol% water over pure HFO were verified experimentally. It is also found that a lower flue gas temperature was obtained for the boiler firing water-HFO emulsified fuel instead of pure HFO. The water-HFO emulsion reduces energy consumption compared to pure HFO, as evidenced by an increase in the boiler efficiency. This tendency agrees well with Li et al.’s study [14]. In addition, as shown in Figure 8, Figure 9, Figure 10 and Figure 12 under the three experimental operating conditions, the CO2 concentration was maintained at approximately 15%; the CO concentrations were nearly zero; and firing the emulsified fuel oil emitted lower NOx concentrations up to a NOx reduction rate of 18%.
4. Conclusions
This study provides a systematic discussion of the secondary atomization combustion caused by microexplosion of emulsified spray fuel, as well as providing an actual comparison of the improvements in industrial boiler efficiency and reduced NOx emissions. The energy savings and pollution reduction benefits of the emulsified fuel oil with 20 vol% water compared with pure fuel were verified experimentally. In addition, the difference between the operating conditions without cleaning and after cleaning the boiler tubes was determined.
The conclusions are as follows:
- (1)
- In the suspended droplet experiment, it was observed that when the water-emulsified suspended droplet enters a high temperature environment, the droplets would undergo three periods of rapid heating, internal gasification (expansion and microexplosion), surface evaporation.
- (2)
- When water-emulsified fuel was used, the actual fuel (HFO) consumption rate was lower than that of pure low-sulfur fuel oil. To conclude, when using 20 vol% water content emulsion, energy savings (fuel savings) of 7% were achieved.
- (3)
- The highest boiler efficiency (92.6%) was under the operating condition of using emulsified fuel oil after cleaning boiler tubes, and the second one (87.8%) was the emulsified fuel without cleaning boiler tubes. The boiler efficiency was relatively lower (86.1%) for firing the pure low-sulfur fuel oil without cleaning boiler tubes. That is, water-emulsified oils and cleaning boiler tubes can help to improve boiler efficiency.
- (4)
- The NOx emissions of the emulsified fuel was lower than that of pure fuel because the water in the emulsion absorbed heat for vaporization and thus reduced the combustion temperature, which in turn caused a decrease in the amount of thermal NOx produced.
Author Contributions
C.-Y.H. and Y.-L.W. performed the experiments and analyzed the results. S.-S.H. and T.-H.L. generated ideas, designed experiments, analyzed results, supervised the entire research work, wrote the manuscript, and edited the manuscript.
Funding
This research was funded by the Ministry of Science and Technology, Taiwan, under grant number 107-2221-E-168-016-MY2.
Acknowledgments
This work was supported by the Ministry of Science and Technology (MOST) and the Ministry of Education (MOE), Taiwan.
Conflicts of Interest
The authors declare no conflicts of interest.
References
- Gollahalli, S.R. An experimental study of the combustion of unsupported drops of residual oils and emulsions. Combust. Sci. Tech. 1979, 19, 245–250. [Google Scholar] [CrossRef]
- Lasheras, J.C.; Fernandez-Pello, A.C.; Dryer, F.L. Initial observations on the free droplet combustion characteristics of water-in-fuel emulsions. Combust. Sci. Tech. 1979, 21, 1–14. [Google Scholar] [CrossRef]
- Law, C.K. Recent advances in droplet vaporization and combustion. Prog. Energy Combust. Sci. 1982, 8, 171–201. [Google Scholar] [CrossRef]
- Sazhin, S.S. Modelling of fuel droplet heating and evaporation: Recent results and unsolved problems. Fuel 2017, 196, 69–101. [Google Scholar] [CrossRef]
- Kim, M.; Oh, J.; Lee, C. Study on combustion and emission characteristics of marine diesel oil and water-in-oil emulsified marine diesel oil. Energies 2018, 11, 1830. [Google Scholar] [CrossRef]
- Vellaiyan, S.; Amirthagadeswaran, K.S. The role of water-in-diesel emulsion and its additives on diesel engine performance and emission levels: A retrospective review. Alexandria Eng. J. 2016, 55, 2463–2472. [Google Scholar] [CrossRef]
- Ocampo-Barrera, R.; Villasenor, R.; Diego-Marin, A. An experimental study of the effect of water content on combustion of heavy fuel oil/water emulsion droplets. Combust. Flame 2001, 126, 1845–1855. [Google Scholar] [CrossRef]
- Marrone, N.J.; Kennedy, I.M.; Dryer, F.L. Coke formation in the combustion of isolated heavy oil droplets. Combust. Sci. Tech. 1984, 36, 149–170. [Google Scholar] [CrossRef]
- Gollahalli, S.R.; Nasrullah, M.K.; Bhashi, J.H. Combustion and emission characteristics of burning sprays of a residual oil and its emulsions with water. Combust. Flame 1984, 55, 93–103. [Google Scholar] [CrossRef]
- Alahmer, A.; Yamin, J.; Sakhrieh, A.; Hamdan, M.A. Engine performance using emulsified diesel fuel. Energy Convers. Manag. 2010, 51, 1708–1713. [Google Scholar] [CrossRef]
- Ballester, J.M.; Fueyo, N.; Dopazo, C. Combustion characteristics of heavy oil-water emulsions. Fuel 1996, 75, 695–705. [Google Scholar] [CrossRef]
- Yoshimoto, Y.; Tsukahara, M.; Kuramoto, T. Improvement of BSFC by reducing diesel engine cooling losses with emulsified fuel. SAE Tech. Pap. 1996. [Google Scholar] [CrossRef]
- Selim, M.Y.E.; Elfeky, S.M.S. Effects of diesel/water emulsion on heat flow and thermal loading in a precombustion chamber diesel engine. Appl. Therm. Eng. 2001, 21, 1565–1582. [Google Scholar] [CrossRef]
- Li, Y.Y.; Hou, S.S.; Sheu, W.J. Investigation on boiler efficiency and pollutant emissions of water/heavy oil emulsions using edge-tone resonant homogenizer. Fuel 2014, 119, 240–251. [Google Scholar] [CrossRef]
- Law, C.K.; Chung, S.H.; Srinivasan, N. Gas-phase quasi-steadiness and fuel vapor accumulation effects in droplet burning. Combust. Flame 1980, 38, 173–198. [Google Scholar] [CrossRef]
- Sagna, K.; D’Almeida, A. A study of droplet evaporation. Am. J. Phys. 2013, 2, 71–76. [Google Scholar] [CrossRef]
- Tamim, J.; Hallett, W.L. A continuous thermodynamics model for multicomponent droplet vaporization. Chem. Eng. Sci. 1995, 50, 2933–2942. [Google Scholar] [CrossRef]
- Hallett, W.L. A simple model for the vaporization of droplets with large numbers of components. Combust. Flame 2000, 121, 334–344. [Google Scholar] [CrossRef]
- Zhu, G.S.; Reitz, R.D. A model for high-pressure vaporization of droplets of complex liquid mixtures using continuous thermodynamics. Int. J. Heat Mass Trans. 2002, 45, 495–507. [Google Scholar] [CrossRef]
- Arias-Zugasti, M.; Rosner, D.E. Multicomponent fuel droplet vaporization and combustion using spectral theory for a continuous mixture. Combust. Flame 2003, 135, 271–284. [Google Scholar] [CrossRef]
- Hou, S.S. Physical Tests and Analysis for Water-in-Oil Emulsions with Different Water Contents Prepared by Ultrasonic Method; Final report for ITRI (Industrial Technology Research Institute); Industrial Technology Research Institute: Hsinchu, Taiwan, 2009. [Google Scholar]
- Hou, S.S.; Rizal, F.M.; Lin, T.H.; Yang, T.Y.; Wan, H.P. Microexplosion and ignition of droplets of fuel oil/bio-oil (derived from lauan wood) blends. Fuel 2013, 113, 31–42. [Google Scholar] [CrossRef]
- Hou, S.S.; Huang, W.C.; Rizal, F.M.; Lin, T.H. Co-firing of fast pyrolysis bio-oil and heavy fuel oil in a 300-kWth furnace. Appl. Sci. 2016, 6, 326. [Google Scholar] [CrossRef]
- Hou, S.S.; Huang, W.C.; Lin, T.H. Co-combustion of fast pyrolysis bio-oil derived from coffee bean residue and diesel in an oil-fired furnace. Appl. Sci. 2017, 7, 1085. [Google Scholar] [CrossRef]
- Huang, W.C.; Hou, S.S.; Lin, T.H. Combustion characteristics of a 300 kWth oil-fired furnace using castor oil/diesel blended fuels. Fuel 2017, 208, 71–81. [Google Scholar] [CrossRef]
- Feng, L.; Du, B.; Tian, J.; Long, W.; Tang, B. Combustion performance and emission characteristics of a diesel engine using a water-emulsified heavy fuel oil and Light diesel blend. Energies 2015, 8, 13628–13640. [Google Scholar] [CrossRef]
© 2019 by the authors. Licensee MDPI, Basel, Switzerland. This article is an open access article distributed under the terms and conditions of the Creative Commons Attribution (CC BY) license (http://creativecommons.org/licenses/by/4.0/).











