Abstract
School buildings are essential in catering to children’s psychological and educational needs. They enable children to learn, teach, play, and interact with peers. The corridor space within a school’s structure is also significant, serving multiple purposes. The community in Erbil, Iraq, has expressed concerns about the economic challenges of constructing and designing new school buildings. Therefore, this research aimed to identify unused spaces in these corridors to ensure usability and flexibility while reducing the cost of building construction. A comprehensive approach was taken to achieve this, employing both qualitative and quantitative analysis techniques. The qualitative analysis was conducted through surveys and documentation to provide an intense understanding of the issues. This research employed two distinct quantitative methods: first, the study used the Revit engineering software to compare the circulation ratio of pre-existing buildings with that recommended by the BB 103 guidelines, and second, student feedback was collected through a questionnaire to provide a holistic view of the situation. This study found that the built-up corridor area in the L-shaped school accounted for 34% of the total area, 11.5 percentage points more than the BB 103 guideline. Meanwhile, the built-up corridor area in the O-shaped school was 20.5 percentage points higher than the recommendation. According to the student feedback, the extra corridor space in the selected schools is not being efficiently utilized. Therefore, the proposed redesigns for the L-shaped and O-shaped schools focus on eliminating traditional corridors and integrating outdoor spaces to create functional areas, enhancing natural lighting and ventilation. These redesigned concepts ensure cost-effective, adaptable, and engaging educational spaces that support the well-being and academic success of students. This paper recommends that school designers and architects re-evaluate existing school designs with a focus on reducing corridor spaces and prioritizing outdoor learning areas. By adopting these strategies, schools can improve space utilization, foster healthier and more efficient learning environments, and promote sustainability.
1. Introduction
The process of designing buildings is complex, involving many different aspects: functional, economic, social, aesthetic, and sustainable features. Each of these dimensions is crucial in creating a satisfactory design [1]. Because of changes in education programs and increasing urbanization, the construction and maintenance of school buildings have become critical in many countries. As a result, they receive global support for the creation of educational environments that are economically efficient and highly functional, especially in underdeveloped and developing countries [2]. Throughout the 20th century until now, various theories and studies have had an impact on the design of educational buildings, including open and closed plans [3]. In general, the school building plan consists of four main spaces: classrooms, recreational facilities, administration, and movement areas. In particular, the corridors are considered the most flexible spaces in the school building, as they can be expanded or minimized in relation to other spaces in the school [4]. More recently, experts and school designers have come to realize that corridors can be utilized as both social and educational areas, as well as pathways for movement [3]. When redesigning a specific space within a building, the concept of usability should be considered to identify a satisfactory resolution. Satisfaction is a determinant of usability, alongside efficiency and effectiveness [5].
The Kurdistan region, a federal territory within the Iraq, has faced economic challenges, particularly in recent years, because of the ongoing conflict with ISIS (Islamic State of Iraq and ash-Sham) and the global COVID-19 pandemic effects. Furthermore, the government needs to construct new school buildings to implement the contemporary education system effectively. This research intends to study and restructure the current layouts of the school building to reduce the cost of building without compromising students’ needs for usability, flexibility, and adaptability in the corridors. The study will fill a gap of making scientific works in regards of reducing waste area in new school buildings through redesigning the most flexible spaces in the school buildings “corridors”.
This study utilized a comprehensive mixed-method technique, combining both qualitative and quantitative approaches. In the qualitative phase, we conducted surveys and obtained documentation. In the quantitative phase, two distinct methods were used to ensure a robust result for the functionality of corridors in school designs in the city of Erbil. Firstly, we used the software program Revit 2021 as the analytical tool to determine the gross built-up area of corridors in two types of constructed buildings. These data were then compared with international standards to identify any excess areas. Secondly, we administered a questionnaire to gauge the level of satisfaction of the main users, namely, students. This additional evaluation method supported the concept of redesigning schools. As a result, the insights gained from this study can be directly applied by local authority communities. These findings will help in the formulation of new principles for designing school buildings, with a specific focus on incorporating usability and economic considerations. This practical application underscores the relevance and importance of this research. Furthermore, the plans submitted to the Ministry of Education so far have been without research, and this research has suggested two new plans for school owners to focus on the studied plans.
2. Theory
2.1. Spatial Zoning in School Buildings
Spatial zoning is a method that involves arranging space into various areas based on their shared characteristics [6]. According to Frederick’s definition in 2007, space planning is the process of organizing or arranging areas to fulfill functional demands [7]. In schools, the functional areas differ based on the age of the students and the subjects they are studying. The Queensland Department of Education stated that the functional areas of school buildings vary between elementary and secondary levels. For instance, a primary school building comprises areas for various functions, such as administration, a resource center learning community, a multi-purpose workshop space, and a multi-purpose hall with facilities for physical activities, a canteen, amenities, janitorial facilities, and outdoor activities. On the other hand, a middle school building encompasses administration, a resource center learning community, specialist facilities for science, physical activities, and physical education, a canteen and social gathering areas for students, general amenities, janitorial facilities, and outdoor areas for activities [8].
The arrangement of these spaces within a school building depends on their spatial relationships, as well as the educational system, location, and student demographics [9]. Many educational administrators and planners have tried to establish a standard design for school buildings over the years. Perkins (2002), for example, proposed four models of school designs, each with an emphasis on one of four key areas within the building—the centralized resource plan, the classroom-clustering model, the spine plan, and the courtyard plan. The primary zones in spatial design are as follows: major circulation (corridors), learning clusters (classrooms), shared facilities (e.g., gym, library), and classroom nodes (e.g., administration offices, restrooms, project rooms) [4].
2.1.1. Corridors as Spatial Areas
Corridors are movable and interconnecting parts of any building. In a school building, they connect various components, such as learning clusters (classrooms), standard amenities (such as the gym and library), and classroom nodes (toilets, administrative rooms, and project rooms) [10]. However, school corridors not only provide a means of movement but also serve as spaces for education and social interaction among students [3]. The most common types of school corridors are double-load, single-load enclosed, and single-load open corridors [11]. Among these, single-load open corridors are the most efficient in terms of ventilation, according to Zhang et al. (2017). Local school buildings have a range of corridor designs, with newly constructed schools under the Ministry of Education featuring double-sided corridors in two distinct forms: O- and L-shaped. The school’s corridor design should meet the standards for ventilation and lighting, provide a safe place for students, and combine educational and social activities [10,11]. Furthermore, the principles of flexibility, adaptation, and variety should be incorporated within educational settings [3].
2.1.2. Circulation Ratio Guidelines
International standards and local community guidelines recommend incorporating circulation ratios into school designs. The circulation ratio is the circulation area divided by the built-up area of the school. However, the built-up area is defined as the covered spaces in the building, in which the closed room or carpet area, walls, lobbies, balconies, and corridors are considered a built-up area. The circulation area is considered the primary space of the building’s non-net portion. For instance, the BB 103 guideline (Bulletin, 2014) suggests that the minimum recommended circulation area for primary schools in the UK should be 22.5% of the total net area, while for secondary schools, it should be 25% [12]. Although most architectural standards and guidelines regarding school designs do not include circulation area calculations in the contracts, design guidelines for corridors, pathways, and vertical circulation focus on specific aspects, such as a corridor’s required width [13]. We need to identify and calculate the circulation area to avoid waste and neglected spaces and to design comfortable and economical schools.
In exploring innovative educational environments, Simone Subissati Architects’ “School Without Corridor” presents a unique design that eliminates traditional corridors, integrating classrooms with hybrid spaces that foster interaction and play [14]. This approach aligns with principles of flexibility and variety, creating dynamic learning environments that challenge conventional corridor designs. Unlike traditional double-load or single-load corridors that serve as mere passageways, this design facilitates continuous engagement and social interaction, enhancing both educational and social experiences for students [11].
2.2. Considered Factors
2.2.1. Usability
Designers strive to develop products that are simple and cost-effective to use. This is called “usability” or “ease of use” [15]. The ISO 9241-11 standard (ISO, 1998) defines usability as “the extent to which designated users can use a product in a particular context to achieve specific objectives with satisfaction, efficiency, and effectiveness” [16]. Usability can be applied in different contexts, including building designs, which ideally require a user-friendly and efficient environment. For an efficient building design, economic, functional, and aesthetic factors must be taken into account [15].
School buildings are where students and teachers interact, while staff, parents, and other personnel strive to create an environment that is conducive to learning and guidance. The size and layout of a structure vary according to its purpose. However, designing a school building requires the consideration of many factors to achieve usability within the building, including safety, wayfinding, thermal comfort, social interaction, orientation, flexibility, acoustic comfort, and connectivity between spaces [17].
2.2.2. Flexibility and Adaptability
The field of building design has undergone significant changes due to rapid advancements in technology, requiring architects to adapt to the demands of people and utilize the benefits of the latest technology. According to one study, building designs prioritize flexibility over rigid functional ordering and hierarchical arrangements. Therefore, designers use adaptable designs for various purposes. The architect Aldo van Eyck has cautioned against a “one-size-fits-all” approach to design, stating that one design may not be suitable for all users [18].
New building technologies, such as the use of steel and reinforced concrete materials, have introduced the concept of flexibility to building designs. Architects are now embracing the idea of a free plan [18]. However, defining and characterizing flexibility in architectural design is challenging since it involves integrating people, functions, and space. To achieve flexibility, an optimal correlation and the organization of areas are crucial in contemporary architecture. Moreover, flexibility is not achieved through reciprocal spatial arrangements but by introducing variability in the interconnections across functions [18].
The application of flexibility in architectural design can be broadly categorized into functional and adaptable paradigms. However, adaptable flexibility offers more freedom than functional flexibility. For instance, a single space may need to accommodate up to three distinct functions because of variations in ergonomic design requirements. The achievement of adaptability and appropriateness is essential in a flexible space [18,19].
2.2.3. Cost-Effective School Design
Research has shown various ways to reduce construction costs. One major principle of sustainable development is to create cost-effective building designs and construction methods [20]. In school construction, architects and designers have made efforts to reduce costs so that more schools can be built. One effective approach uses local materials and techniques. For instance, architects John McAslan, Parterres, and Arup employed this methodology to construct a low-cost school building in Malawi [21].
Many new building technologies are more cost-effective compared to traditional methods [22]. One area of focus for researchers is the selection of optimal building materials for school buildings. In a study aimed at minimizing the construction costs of public schools in Iraq, the researchers used the computer program Analytical Hierarchy Process to select appropriate materials for exterior walls. They compared four building systems: a brick cavity wall system, a lightweight block wall system, a precast concrete wall panel, and a metal-framed sandwich panel. They assessed nine critical attributes—durability, safety, maintainability, flexibility, availability of skilled workers, regional materials, waste management, thermal properties, and acoustic properties. The brick cavity wall system received an excellent rating compared to the other materials [23].
The use-efficiency method has been applied to the study of primary schools in India to reassess the cost of building a conducive learning environment [24,25]. The aim was to increase the utilization of classroom assets from 0.51 to 0.85, which would lead to a 40% reduction in the expenses associated with informal learning in the classroom. This can be quantified using the “Utilization Efficiency” formula, defined as follows:
T classroom is the amount of time spent in classroom spaces. This is the total number of hours classrooms are used for teaching and learning over a specific period. is the amount of time the school is open. This is the total number of hours the school is operational over the same period. The formula calculates the percentage of school time effectively used for classroom activities. Higher utilization efficiency indicates better utilization of classroom spaces, leading to enhanced cost-efficiency. The goal of this formula is to maximize the effective use of classroom spaces relative to the total available school time, thereby enhancing the cost-efficiency of the learning environment [24]. However, the study identified some challenges, such as an uncomfortable environment on hot days and poor movement and circulation, which required implementing a terracing area. As a result, the conversion of two classrooms into outdoor terraces reduced the number of classes from five to three. The study concluded that this change resulted in a decrease in classroom demand, optimization of space utilization, and increased acceptance of outdoor learning activities.
Additionally, Srivastava showcased alternative school design layouts that could be 20% more cost effective than existing learning environments. These alternatives involved adjustments to construction and design criteria and implementing prefabrication techniques for specific building components. To achieve a low-cost construction plan, empty areas need to be eliminated throughout a school’s design. Therefore, the building’s spaces and functions require high flexibility and adaptability. The designer’s primary responsibility is to prioritize a connection between the learning process and the available resources [24].
Reducing energy consumption is effective at minimizing the usage cost of buildings. One approach is by strategically designing corridors. Zhang et al. (2017) explored the design of corridors in a cold environment in China to conserve energy within the building. They focused on three types of corridors—double-load, single-load closed, and single-load open—and evaluated them based on six main criteria: shape and direction, temperature control, components of the opaque cover, infiltration, glazing, and ventilation. To conduct the evaluation, the researchers used a computer program called Design Builder. The study concluded that the single-load open corridor is the best-quality design for energy savings compared to the other two forms of design [11].
A courtyard is an essential architectural element that contributes to a building’s energy efficiency. In an essential study conducted in Kirkuk, Iraq (Najib and Ekici, 2022), researchers explored how the width and orientation of courtyards affected energy consumption in eco-friendly building designs. The study used computer programs such as Revit and Green Building Studio to simulate courtyards according to different criteria and compare the variation in cooling and heating within the building. The analysis produced various proposals confirming that the width and orientation of a courtyard can significantly impact the heating and cooling of a building. Increasing the width of the courtyard can increase energy consumption because of the larger proportion of the build-up area. Najib and Ekici also concluded that areas facing west and east require more thermal energy during the winter, but in the summer, the situation is reversed, resulting in less consumption of cooling energy [26].
Reducing the costs associated with building schools is crucial for low-income countries. Many studies have been conducted to analyze the strategies used by countries to minimize expenses while ensuring a user-friendly design for modern educational systems. For example, Pereira et al. (2018) examined the analytical design methodologies used to assess the learning environment in the early design phase for public schools in Brazil. Their study aimed to evaluate and enhance the design layout by employing a systematic design process and specifying design parameters. They presented three analytical methodologies for educational buildings: a design quality indicator, the multi-criteria optimization of environmental comfort evaluation method for school buildings, and a comparative floor-plan analysis. The study examined twenty school design layouts using the suggestions from a comparative floor-plan analysis and the foundation for educational development. Pereira et al. (2018) revealed the need to employ a well-designed analytical approach and utilize concrete-based knowledge to provide an effective learning environment [27].
According to Sureshkumar et al. (2018), constructing a school building at a reduced cost cannot be accomplished by solely relying on low-cost materials. Other factors play a role in a cost reduction assessment, such as the condition of the site, the shape and size of the layout of classrooms, the height of the building, the amount of decorations, and the use of lower-cost local materials. To manage these economic criteria, certain factors need to be considered, such as the availability of natural daylight and permanent ventilation in classrooms and bathrooms, the durability of the materials, maintenance requirements, the central plant area, thermal insulation, fire safety, strength, stability, comfort, and convenience [28].
2.2.4. Sustainable and Green Building Practices
Sustainable and green building practices are essential for modern school construction, focusing on reducing environmental impact, promoting resource efficiency, and ensuring long-term ecological balance. These practices include using recycled materials like Fiber Reinforced Recycled Aggregate Concrete (FRAC), which enhances the mechanical properties of concrete while recycling construction waste [29]. Additionally, optimizing energy efficiency through strategies such as natural ventilation and daylighting significantly reduces energy consumption and enhances the learning environment. Green buildings provide multifaceted benefits, including improved environmental performance, economic savings, and enhanced health outcomes for occupants [30]. Implementing green building standards and certification systems, such as LEED and BREEAM, provides verification of the sustainability of a project and offers various economic and environmental benefits. These benefits include significant reductions in energy, carbon, water, and waste, resulting in cost savings and increased building value [31]. By incorporating these sustainable and green building practices into school design, we can create educational environments that are not only cost-effective but also environmentally responsible and conducive to long-term ecological balance. These strategies ensure that schools can provide healthy, efficient, and adaptable spaces that support the well-being and academic success of students and staff.
3. Research Methodologies
3.1. Study Design and Methods
This study used empirical research to achieve its objectives. An empirical study focuses on collecting and examining accurate and observable data instead of relying on beliefs and theories [32]. Thus, we employed a mixed-method research approach, combining qualitative and quantitative data collection methods. The research began with an in-depth literature review of relevant topics and studies to understand relevant issues, identify any gaps in the knowledge, and develop concepts for the study design. We then made direct observations for the selected case studies.
For the practical part of the research, two methods were used to analyze the corridors of two types of school buildings in Erbil. Firstly, the proportion of the corridor’s area in each building was calculated and compared to other facilities (i.e., calculating the circulation ratio) using the Revit program. The result was then compared with the BB 106-recommended circulation ratio. Lastly, a questionnaire-based cross-sectional survey was developed and distributed among the students in the two schools in Erbil to collect data on their perceptions of school corridors. This stage included studying and analyzing the floor plans of the selected school cases and documenting and observing student behavior in the schools, particularly in the corridors. This method is reliable for gathering students’ perceptions in many fields of study [33].
The upcoming sections provide a more comprehensive understanding of the study’s design, data collection, and analysis methods. The qualitative data comprise a literature review of previous studies, and the quantitative data are the result of the comparative method using the Revit program.
3.2. Sample Schools
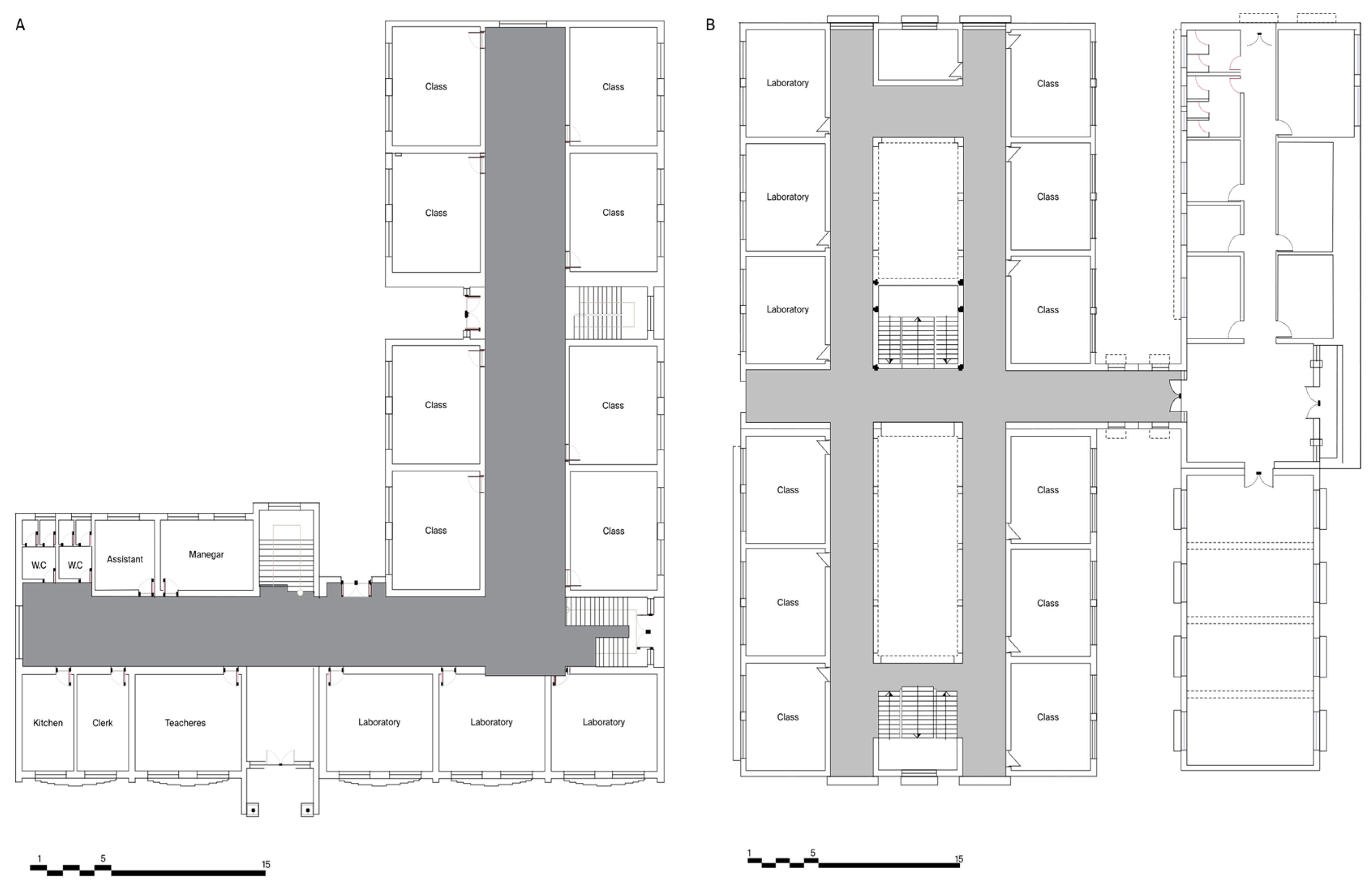
The Ministry of Education (ME) of the Kurdistan Regional Government (KRG) has built various school buildings of different sizes and shapes. Among these, 18-classroom schools are currently preferred in cities to address the rise in student population and a lack of available schools. This study examined two prevalent designs of 18-classroom schools: an L shape (double-loaded corridor) and an O shape (single-loaded corridor). The ME KRG determined that these school designs are standard and widely preferred in every city. Two typical schools in Erbil, the capital of KRG, were selected for observation and survey studies. The case studies selected were the L-shaped Daria Primary School and the O-shaped Dastur Primary School. Figure 1 illustrates the chosen schools’ representative floor plans, and front views of the school are shown in Figure 2.
Figure 1.
Floor-plan layouts for L-shaped (A) and O-shaped (B) schools. Source: Ministry of Education of Erbil.
Figure 2.
L-shaped Daria Primary School (A) and O-shaped Dastur Primary School (B). Source: author.
Daria Primary School has two floors and a built-up area of 2450 m2. It can accommodate up to 540 students and has a site area of 3320 m2. The school’s main feature is its L-shaped corridor, which houses classrooms, laboratories, and staff areas. The classrooms are on one side of the corridor, while the laboratories and staff rooms are on the other side. In total, there are 18 classrooms and several laboratories and staff rooms.
Dastur Primary School has a built-up area of 4735 m2 and a site area of 8750 m2. It has two floors and can accommodate up to 600 students. The school is divided into three distinct zones: a service zone, staff offices, and classrooms. The functional space measures 950 m2 and includes 18 classrooms, laboratories, computer halls, a music classroom, and an art classroom. The staff zone includes several administration and teacher rooms as well as a multi-purpose hall.
3.3. Data Collection Tool and Procedure
During the academic year of 2022–2023, interviews were conducted in the spring semester at both schools in Erbil. Ethical permission was obtained from the school committee before conducting the questionnaire survey, taking photographs, or making observations since the participants were students at the foundation schools. Students in grades 1, 2, and 3 were excluded from the study, as they had a limited capacity to comprehend questions and express their emotions effectively. However, their behavior and activities were documented using observational methods. All participants were provided with a clear explanation of the research’s aims, significance, and results. Those who consented to participate were enrolled after obtaining permission from the appropriate teachers. The questionnaire was completed by 262 students from both schools. Only those students who completed the entire questionnaire were included in the subsequent analysis.
After gaining approval from the institutional ethical committee and authorization from the deans, the data-gathering process began with the survey. The questionnaire comprised two parts: Part 1 included questions about the student’s age, gender, and academic term. Part 2 used the Dundee Ready Education Environment Measure scale. The students were contacted during school hours with prior permission from their respective teachers. Before administering the questionnaire, the students were provided with an explanation of the significance of the study and the questionnaire.
Additionally, they were informed about the importance of carefully completing the questionnaire, that their participation was optional, and that privacy would be maintained. The students were asked to answer all questions truthfully. The data gathering included all the students throughout all possible semesters within the specified period.
3.4. Statistical Methods
This study calculated the mean scores and standard deviations for each question. Additionally, the mean, range, and standard deviation were computed for all four subscales. The researchers also examined the relationship between subscale scores and socio-demographic factors, such as gender, grade, and school design, using a t-test and an ANOVA (analysis of variance). A statistical analysis was performed using SPSS 22 software (IBM Corp, Armonk, New York, NY, USA).
4. Results and Discussion
This study utilized a mixed-method approach, combining both quantitative and qualitative methods to identify the factors that can reduce construction costs by minimizing the corridor area in school buildings. The quantitative results are as follows.
4.1. Analysis of Revit Software
The researcher used the Revit software program (version 2021) to analyze the floor plans of the L- and O-shaped case studies. The program determined the space ratio for each category of the building components. The findings indicated that corridors accounted for 34% of the built-up area in the L-shaped school structure, while this figure was 43% in the O-shaped design. Table 1 provides a detailed breakdown of the construction ratio for each component of the buildings.
Table 1.
The average construction cost of a foundation school in Erbil and the layout design details. Source: author.
The BB 103 guideline (Bulletin, 2014) specifies that the circulation space of a foundation school should be at least 22.5% of the total built-up area. In this discussion, the results of two Erbil school samples (L- and O-shaped) were compared with the BB standard guidelines for schools to evaluate how well the current school buildings align with the recommendation. The results, as shown in Table 2, indicate that these contracted school buildings utilize extra space for the built-up area. The L-shaped school’s ratio was 11.5 percentage points greater than the recommended minimum of 22.5%, while the O-shaped school’s ratio was 20.5 percentage points higher.
Table 2.
Comparison of existing school buildings in Erbil with BB 103 guidelines (Bulletin, 2014) in the built-up area ratio of corridors. Source: author.
By aligning more closely to the school design guidelines, we can positively impact the built environment. We can reduce costs while ensuring that the learning spaces are adequate. This can help the local authorities optimize the educational facilities for learning and cost effectiveness and contribute to a better educational experience for students.
4.2. Questionnaire Survey Result Analysis
4.2.1. Descriptive Analysis of the Respondents’ Opinions
As a part of the study, students were requested to share their feedback on the design of the corridors based on twelve questions to help articulate their experiences and provide valuable feedback. The responses to the questionnaire were analyzed using the SPSS software platforms, and the results are presented in Table 3. The overall arithmetic mean of the questionnaire was 2.76, with an average standard deviation of 0.308. This average corresponds to a moderately positive view regarding the construction and design of school corridors. In other words, the students held a moderate level of agreement regarding the quality of the schools they attended. Question No. 12 obtained the highest score in the questionnaire, with a mean of 3.39 and a standard deviation of 0.844. Questions No. 7 and 2 received the lowest scores, with means of 2.8 and 2.49, respectively, and standard deviations of 0.931 and 0.989, respectively, as shown in Table 3.
Table 3.
The respondents’ opinions about the design and construction of school buildings and improving school corridors. Source: author.
4.2.2. Paired-Sample t-Test Results
This study aimed to provide valuable insights into the relationship between gender and school corridor designs across three subscale factors. By using a paired-sample t-test and analyzing the questionnaire section, we examined each factor’s significance and its relationship with the three variable elements. This information can help us better understand how school corridors can be designed to benefit students of both genders.
Gender Variable
According to the information presented in Table 4, the gender of the respondents significantly affected their views on the design and construction of school buildings, as well as the improvement of school corridors. The t-value of 4.318 was statistically significant at a p-value of 0.000, indicating differences between the opinions of male and female respondents in the study about the improvement of school corridors and the design and construction of school buildings. The data indicate that females tended to prefer these improvements more than males.
Table 4.
Result of t-test to measure significant differences in students’ opinions about the design and construction of school buildings and improving school corridors according to the gender variable. Source: author.
School Corridor Design
According to Table 5, notable differences were present among the participants’ opinions about the design and construction of school buildings and the improvement of school corridors based on the types of schools they attended. The statistical analysis revealed a t-value of 2.600, which was significant at a p-value of 0.010, indicating significant differences among the respondents based on the school’s type. The study participants expressed a preference for the L-shaped option of school designs, constructions, and corridor improvements.
Table 5.
Result of the t-test to measure significant differences in students’ opinions about the design and construction of school buildings and improving school corridors according to the school type variable. Source: author.
4.2.3. One-Way ANOVA Results
A one-way ANOVA is a statistical technique that allows for the comparison of means between more than two groups. It is used to determine if a significant variation exists among different sampling methods. In this study, an ANOVA was conducted to evaluate the responses of the research sample members regarding their opinions on the design and construction of school buildings, as well as improvements to school corridors. The grade variable was used for the analysis.
The data presented in Table 6 and Table 7 indicate no statistically significant variations among the respondents’ opinions regarding the design and construction of school buildings and the improvement of school corridors based on the grade variable. The F-value was 0.22, which was not significant at p = 0.979. This suggests that respondents in the study sample belonging to different grades shared similar opinions on the design and construction of school buildings and improving the school corridors.
Table 6.
Descriptive analysis of students’ opinions about the design and construction of school buildings and improving school corridors according to the grade variable. Source: author.
Table 7.
Results of the ANOVA to measure significant differences in the respondents’ opinions about the design and construction of school buildings and improving school corridors according to the grade variable. Source: author.
4.3. Development of Innovative Design Concepts
Given the findings from the assessment of corridor conditions and the feedback from students, this study developed several design concepts to address the identified inefficiencies.
4.3.1. Elimination of Traditional Corridors
The Revit software analysis indicated that corridors accounted for a significant portion of the built-up area in both L-shaped (34%) and O-shaped (43%) school structures, far exceeding the recommended 22.5% circulation space. The proposed redesign eliminates traditional corridors, replacing them with more functional and engaging spaces. This approach creates seamless transitions between indoor and outdoor learning environments, enhancing natural lighting and ventilation. Moreover, removing corridors can reduce noise levels typically arising from crowded corridors, thus creating a quieter and more conducive learning environment. Research by Shield and Dockrell (2003) found that noise significantly impacts children’s performance and annoys them, particularly older primary school children, hindering their learning experience [34]. By reducing the total built area through the removal of corridors, construction costs are expected to be significantly lowered. This reduction in built area not only decreases initial construction expenses but also minimizes the resources needed for heating and cooling, leading to further operational cost savings and reduced energy consumption.
4.3.2. Separate Units for Different Educational Stages
The redesign involves constructing separate units for different educational stages, each comprising several classrooms, creating outdoor educational spaces adjacent to classrooms. This layout enhances natural lighting and ventilation while providing flexibility for future expansions and modifications. The Green School South Africa by GASS Architecture Studios exemplifies this approach, using multiple building clusters and natural materials to create an environmentally integrated learning environment [35].
4.3.3. Private and Common Outdoor Areas
Each classroom will have a private outdoor area to ensure privacy and security for students, along with common open areas to facilitate interaction and collaboration among different classes. This dual approach promotes both individual and group activities, catering to diverse educational needs. Research highlights the benefits of outdoor environments, including opportunities for exploration, social interaction, and connection with nature, which are essential for fostering a well-rounded educational experience and improving cognitive performance [36].
4.3.4. Flexible Partitions
Classrooms can be divided by flexible partitions to be adjusted according to need, creating adaptable learning spaces. This design aligns with contemporary educational requirements for easily reconfigurable spaces. According to Perkins (2002), flexibility is essential to keep pace with changing concepts of education’s role in society and the teacher’s role in the learning process [4]. The classroom must reflect the teaching methods of the school and be an adaptable space that can be easily reconfigured to meet various educational needs.
4.3.5. Phased Construction
The construction of the school can be done in stages according to government financial abilities and school needs. This approach allows for additions to be made over time, ensuring that the school can be expanded and modified as required without significant disruptions. By structuring the school into separate units for different educational stages, phased construction becomes even more feasible. Initially, a few units can be built to meet immediate needs, with the flexibility to add more units over time as resources allow.
4.3.6. Redesign Proposals for L-Shaped and O-Shaped Schools
Based on the innovative design concepts described, the redesign proposals for both L-shaped and O-shaped schools focus on eliminating traditional corridors, and direct access to outdoor space to create functional spaces that enhance natural lighting and ventilation. Separate units for different educational stages are incorporated, along with private and common outdoor areas to foster both individual and group activities. Flexible partitions allow for adaptable classrooms, and phased construction accommodates financial and structural needs over time. The two models integrate classrooms with informal learning spaces by providing outdoor seating and open and covered green areas to offer better self-directed learning and collaboration and enhance creativity and performance, as illustrated in Figure 3 and Figure 4.
Figure 3.
Proposal of the L-shaped school design. Source: author.
Figure 4.
Proposal of the O-shaped School. Source: author.
However, the important points in these drawings can be interpreted in terms of their impact and application in school designs in the region.
- (a)
- Expected Impacts
The proposed redesign is expected to significantly enhance space utilization, student behavior, and the overall school environment. By eliminating traditional corridors and integrating outdoor educational spaces, the school design becomes more flexible and cost-effective. Additionally, the private areas and common open areas foster a balance between privacy and collaboration, catering to diverse student needs. The new design is anticipated to reduce the built-up area previously occupied by corridors, thereby aligning more closely with recommended guidelines and improving the efficiency of space usage. The reduction in built area also leads to lower construction costs and decreased energy consumption for heating and cooling, resulting in significant cost savings. Moreover, reducing noise levels by eliminating crowded corridors further enhances the learning environment.
- (b)
- Applicability
The proposed design concepts are highly applicable to new school construction projects, especially in regions facing challenges related to high construction costs. By implementing these concepts, educational institutions can create more efficient and engaging learning environments. The flexible and modular nature of the design allows for easy adaptation to different educational levels and local contexts, ensuring broad applicability. As summarized in Table 8, the key improvements in the new design proposals for L-shaped and O-shaped school designs include significant enhancements in space usage, flexibility, adaptability, and construction approaches.
Table 8.
Summary of key improvements in new design proposals compared to previous L-shaped and O-shaped school designs.
5. Conclusions
The corridors in school buildings play a vital role in facilitating different activities and movements within the school. However, this study highlights that both L- and O-shaped school corridor designs have underutilized and inadequate spaces, which demands immediate attention.
A review of existing school buildings using Revit software shows that the ratio of corridor construction is higher than the standard set by the BB 103 guidelines (Bulletin, 2014), indicating that both types of buildings have additional space within their corridors. Based on the valuable feedback provided by students, these corridor designs need more versatility as play and social areas during break time. Furthermore, the students expressed a preference to bypass the corridors altogether and move outside the building directly. To address this issue, schools can consider redesigning their corridors to make them more functional and engaging for students. This can involve incorporating more open spaces, interactive displays, and seating areas that encourage socialization and creativity. As a result, schools can create a more positive and stimulating learning environment that meets the needs of students and promotes their overall well-being. In conclusion, the proposed redesign of school layouts addresses the identified shortcomings by introducing innovative and flexible design solutions. The elimination of traditional corridors, along with the integration of separate units, private areas, and common open areas, enhances space utilization and creates a more engaging learning environment. These redesign concepts hold significant potential for improving educational facilities in the city and beyond, making them more adaptable to modern educational needs and environmental considerations. In particular, we have developed redesign proposals for both L-shaped and O-shaped schools, which can serve as adaptable models for future school designs. Therefore, we recommend that schools consider these redesign concepts to enhance their functionality and create a positive learning environment for their students.
Future Study
Further studies and practical experiments are needed to refine these redesign concepts and evaluate their long-term impact on educational environments. Future research could explore the integration of advanced technologies and sustainable materials to enhance the functionality and sustainability of the redesigned spaces.
Funding
This research received no external funding.
Data Availability Statement
The original contributions presented in the study are included in the article, further inquiries can be directed to the corresponding author.
Conflicts of Interest
The authors declare no conflicts of interest.
References
- Mahmoodi, A.S. The Design Process in Architecture: A Pedagogic Approach Using Interactive Thinking. Ph.D. Thesis, University of Leeds, Leeds, UK, 2001. [Google Scholar]
- Schiefelbein, E.; Hallak, J.; Caillods, F. Redefining Basic Education for Latin America: Lessons to Be Learned from the Colombian Escuela Nueva (No. 42); UNESCO, International Institute for Educational Planning: Paris, France, 1992. [Google Scholar]
- Nair, P.; Fielding, R.; Lackney, J.A. The Language of School Design: Design Patterns for 21st Century Schools; DesignShare: New York, NY, USA, 2013. [Google Scholar]
- Perkins, B. Building Type Basics for Elementary and Secondary Schools; John Wiley & Sons: Hoboken, NJ, USA, 2002. [Google Scholar]
- Baper, S.Y.; Rashid, S.J. The impact of sustainability factors on the usability of residential spaces. Int. Trans. J. Eng. Manag. Appl. Sci. Technol. 2018, 9, 271–281. [Google Scholar]
- Claessens, D.P.; Boonstra, S.; Hofmeyer, H. Spatial zoning for better structural topology design and performance. Adv. Eng. Inform. 2020, 46, 101162. [Google Scholar] [CrossRef]
- Frederick, M. 101 Things I Learned in Architecture School; MIT Press: Cambridge, MA, USA, 2007. [Google Scholar]
- Department of Education, Queensland Government. Education Facilities Design Principles and Generic Functional Brief. In Design Standards Part A; Department for Education: London, UK, 2024; pp. 1–195. Available online: https://alt-qed.qed.qld.gov.au/our-publications/standards/Documents/design/education-facilities-design-principles-general-functional-brief.pdf (accessed on 25 August 2024).
- Pasalar, C. The Effects of Spatial Layouts on Students’ Interactions in Middle Schools: Multiple Case Analysis; North Carolina State University: Raleigh, NC, USA, 2004. [Google Scholar]
- Sailer, K. Corridors, classrooms, classification: The impact of school layout on pedagogy and social behaviors. In Designing Buildings for the Future of Schooling; Routledge: London, UK, 2018; pp. 87–111. [Google Scholar]
- Zhang, A.; Sun, Y.; Huang, Q.; Bokel, R.; van den Dobbelsteen, A.; Zhang, A.; Sun, Y.; Huang, Q.; Bokel, R.; van den Dobbelsteen, A. Effect of Corridor Design on Energy Consumption for School Buildings in the Cold Climate. In Proceedings of the World Sustainable Built Environment Conference (WSBE17), Hongkong, China, 5–7 June 2017; Construction Industry Council: Hongkong, China, 2017. [Google Scholar]
- Area Guidelines for Mainstream Schools, Building Bulletin 103; Department for Education: London, UK, 2014.
- Neufert, E.; Neufert, P. Neufert Architects’ Data, 4th ed.; Wiley-Blackwell: Hoboken, NJ, USA, 2012; Volume 53, Issue 9. [Google Scholar]
- Subissati, S. School without Corridor, more than a classroom. In The Plan; Maggioli SpA: Bologna, Italy, 2022; Available online: https://www.theplan.it/eng/award-2022-Education/school-without-corridor-more-than-a-classroom-simone-subissati-architects (accessed on 25 August 2024).
- Bittencourt, M.C.; do Valle Pereira, V.L.D.; Júnior, W.P. The usability of architectural spaces: Objective and subjective qualities of built environment as multidisciplinary construction. Procedia Manuf. 2015, 3, 6429–6436. [Google Scholar] [CrossRef]
- ISO 9241-11:1998; Ergonomic Requirements for Office Work with Visual Display Terminals (VDTs). The International Organization for Standardization: Geneva, Switzerland, 1998.
- Duca, G. Usability requirements for buildings: A case study on primary schools. Work 2012, 41 (Suppl. S1), 1441–1448. [Google Scholar] [CrossRef] [PubMed]
- Kim, Y.J. Organism of Options: A Design Strategy for Flexible Space. Ph.D. Thesis, Massachusetts Institute of Technology, Cambridge, MA, USA, 2008. [Google Scholar]
- Shabha, G.S. Flexibility and the design for change in school buildings. Archit. Sci. Rev. 1993, 36, 87–96. [Google Scholar] [CrossRef]
- Dobson, D.W.; Sourani, A.; Sertyesilisik, B.; Tunstall, A. Sustainable construction: Analysis of its costs and benefits. Am. J. Civ. Eng. Archit. 2013, 1, 32–38. [Google Scholar]
- Bredenoord, J. Sustainable building materials for low-cost housing and the challenges facing their technological developments: Examples and lessons regarding bamboo, earth-block technologies, building blocks of recycled materials, and improved concrete panels. J. Archit. Eng. Technol. 2017, 6, 1000187. [Google Scholar] [CrossRef]
- Tam, V.W. Cost effectiveness of using low cost housing technologies in construction. Procedia Eng. 2011, 14, 156–160. [Google Scholar] [CrossRef]
- Hassan, A.; Yahya, M. Cost optimization for public school building projects during design stage using value engineering. In MATEC Web of Conferences; EDP Sciences: Les Ulis, France, 2018; Volume 162, p. 02033. [Google Scholar]
- Srivastava, R.D. A Method of Reducing Classroom Requirements in Primary Schools in Asia; Occasional Paper-School Building No. 13; ERIC Clearinghouse: Washington, DC, USA, 1967. [Google Scholar]
- Abdullah, S.; Ali, H.M.; Sipan, I.; Awang, M.; Rahman, M.S.A.; Shika, S.A.; Jibril, J.D. Classroom management: Measuring space usage. Procedia-Soc. Behav. Sci. 2012, 65, 931–936. [Google Scholar] [CrossRef]
- Najib, S.H.; Ekici, B.B. Investigation of the effect of courtyard direction and width on energy loads of buildings. Karesi J. Archit. 2022, 1, 89–103. [Google Scholar]
- Pereira, P.R.P.; Kowaltowski, D.C.C.K.; Deliberador, M.S. Analysis support for the design process of school buildings. Ambiente Construído 2018, 18, 375–390. [Google Scholar] [CrossRef]
- Sureshkumar, M.; Uthra, V.; Puneeth, S. Low-cost school building. Development 2018, 5, 87–89. [Google Scholar]
- Ahmed, W.; Lim, C.W. Production of sustainable and structural fiber reinforced recycled aggregate concrete with improved fracture properties: A review. J. Clean. Prod. 2021, 279, 123832. [Google Scholar] [CrossRef]
- Liu, T.; Chen, L.; Yang, M.; Sandanayake, M.; Miao, P.; Shi, Y.; Yap, P.S. Sustainability considerations of green buildings: A detailed overview on current advancements and future considerations. Sustainability 2022, 14, 14393. [Google Scholar] [CrossRef]
- Doan, D.T.; Van Tran, H.; Aigwi, I.E.; Naismith, N.; Ghaffarianhoseini, A.; Ghaffarianhoseini, A. Green building rating systems: A critical comparison between LOTUS, LEED, and Green Mark. Environ. Res. Commun. 2023, 5, 075008. [Google Scholar] [CrossRef]
- Hahn Fox, B.; Jennings, W.G. How to write a methodology and results section for empirical research. J. Crim. Justice Educ. 2014, 25, 137–156. [Google Scholar] [CrossRef]
- Creswell, J.W. Educational Research: Planning, Conducting, and Evaluating Quantitative and Qualitative Research; Pearson: London, UK, 2012; p. 4. [Google Scholar]
- Shield, B.M.; Dockrell, J.E. The effects of noise on children at school: A review. Build. Acoust. 2003, 10, 97–116. [Google Scholar] [CrossRef]
- Khansari, S.; Movahed Mohammadi, Z.S. Life around Circles. Passive Design Strategies for a Secondary School in Benga, Malawi. 2021. Available online: https://www.politesi.polimi.it/handle/10589/189147 (accessed on 25 August 2024).
- Keniger, L.E.; Gaston, K.J.; Irvine, K.N.; Fuller, R.A. What are the benefits of interacting with nature? Int. J. Environ. Res. Public Health 2013, 10, 913–935. [Google Scholar] [CrossRef] [PubMed]
Disclaimer/Publisher’s Note: The statements, opinions and data contained in all publications are solely those of the individual author(s) and contributor(s) and not of MDPI and/or the editor(s). MDPI and/or the editor(s) disclaim responsibility for any injury to people or property resulting from any ideas, methods, instructions or products referred to in the content. |
© 2024 by the author. Licensee MDPI, Basel, Switzerland. This article is an open access article distributed under the terms and conditions of the Creative Commons Attribution (CC BY) license (https://creativecommons.org/licenses/by/4.0/).



