Abstract
China has numerous traditional wooden dwellings located in regions with hot summers and cold winters. The historic dwellings lack proper thermal insulation and have excessive energy consumption in the building structure, failing to suit the needs of modern people. Hence, it is crucial to enhance their energy efficiency through essential actions. Roofs, being the fifth side of the building envelope, are frequently neglected when it comes to enhancing their insulating capabilities. The study aimed to implement energy-efficient roof alterations while preserving the historical features of traditional structures. This study focuses on enhancing the energy efficiency of a traditional wood-structured dwelling in Guangdu Village, Zhejiang Province, China, by installing composite thermal insulation panels on the interior of the roof using an easy restoration approach. The actual risk of condensation and the impact of retrofit processes on historical features determine the choice and limitations of energy-saving retrofit materials and methods. This study evaluates the transformation using two indicators: energy efficiency and economic feasibility. The numerical simulation results indicate that traditional dwellings have an annual energy savings rate of 16.66% and an investment payback period of 7.25 years. This study demonstrates the feasibility of energy-saving roof renovation measures for these traditional wood-structured dwellings. The measures improve energy efficiency and are affordable for residents. This study can offer technical suggestions for enhancing the energy efficiency of traditional wood-structured dwellings.
1. Introduction
As the world’s largest carbon emitter, China faces a huge challenge in reducing its carbon footprint, especially in the construction sector, which accounts for 46.7% of the country’s total energy consumption and shows a rising trend [1]. Rural areas, which are undergoing rapid urbanization, contribute significantly to energy consumption and the energy gap in China [2,3]. Traditional residential buildings, which constitute a major part of rural building energy consumption, have been largely abandoned or replaced by new construction in the past two decades, leading to a substantial waste of energy [4]. By adaptively renovating and reusing these traditional dwellings, not only can energy be saved but the historical value of traditional dwellings can also be preserved to some extent [5].
The preservation and protection of traditional rural buildings for reuse is a critical issue that has received considerable attention from domestic and international scholars in recent years [6]. The hot summer and cold winter climatic zones in China cover a vast area with many inhabitants. These zones also have many traditional dwellings with wood structures. For example, in Zhejiang Province, 701 villages have been designated as “Chinese traditional villages”. Most of these dwellings were built during the Ming and Qing Dynasties and have a history spanning 100–600 years. Wood-structured traditional dwellings are one of the most important types of these dwellings, as they have a long history and unique regional features and characteristics. The roofs of these dwellings, in particular, reflect the adaptability of regional features. The preservation and reuse of this type of traditional architecture have great value and significance for the transmission of history and culture.
Most existing research on energy-saving retrofitting of traditional building souths concentrates on walls [7], windows [8], and floor slabs [9]. Although these components have a greater impact on the overall energy-saving of the building [10,11], retrofitting measures for the roofs are also crucial, especially for low-rise buildings. Roofs are the main surfaces that receive solar radiation and transfer indoor heat [12,13] and they account for 5–10% of the building’s total energy consumption and more than 40% of the top attic floor’s energy consumption in the hot summer and cold winter zone of China [14]. In southern China’s rural areas, roofs retrofitted with the same insulation material as walls have 2.3 times higher energy-saving efficiency than walls [15]. Most roofs of wood-structured traditional dwellings in China are sloped structures with cedar beams, boards, ceramic tiles, and other materials that have high heat transfer coefficients and low thermal insulation. Retrofitting these roofs can improve the indoor environment and energy-saving efficiency.
Researchers both domestically and internationally have conducted extensive studies on energy-saving retrofit measures for residential roofs, focusing on innovative materials [16] and structures. These measures can be broadly categorized into two main types. The first type involves adding a roof insulation structure. For example, in a retrofit project in Hangzhou, China, Luo et al. [17] added a layer of 50 mm extruded polystyrene boards to the middle layer of a wooden roof. This addition significantly improved the thermal insulation of the roof. In addition, other thermal insulation measures were implemented throughout the rest of the dwelling, resulting in a 14% reduction in energy consumption compared to the original home. Yuk et al. [18] utilized vacuum-insulated panels (VIP) on the wooden roof of a historic building in South Korea, resulting in a 55% reduction in cooling and heating energy usage throughout the year. Similarly, Liu [19] incorporated 50mm-thick reed foil as roof insulation during the restoration of a traditional dwelling in western Hunan Province, China. This approach considered economic factors and aimed to optimize the utilization of local resources. Xiong [20] introduced a horizontal insulated ceiling with a modifiable opening and closing mechanism beneath the roof of a pitched-roof dwelling in Chongqing. While this design offers some thermal insulation benefits, it also leads to the inefficient use of attic space on the top floor and compromises the historical feature of the original roof. Another category is the installation of technological devices with energy-saving effects on the roof. Dehwah et al. [21] used a switchable insulation system (sis) to retrofit the attic of a historic home in the U.S. The study concluded that the system could save $0.05/m2 $1.57/m2 in energy costs per year, depending on the climate, as compared to static high-R-value insulation. Milovanović et al. [11] suggested incorporating photovoltaic (PV) panels on the roof to insulate it and generate electrical energy. Through their research, it was determined that installing 60 square meters of south-facing PV panels could generate 12% of the building’s total annual energy consumption. Chi et al. [22], for typical courtyard dwellings in southern China, installed a fully passive heating and cooling system with a lighting function above the patio, which can realize a 23% energy-saving benefit and effectively improve indoor ventilation, and also added a radiation-based air temperature conditioning system on both sides of the sloped roof to reduce the total annual energy consumption of the building up to 1863 kWh, with a total energy-saving rate of 20% [23]. However, none of the above retrofit programs are universally applicable to the situations of simple retrofit [24], economy [25,26], and condensation prevention required for traditional dwellings.
Wood-structured traditional dwellings possess distinct attributes that necessitate a meticulous evaluation of refit materials and strategies. The subtropical monsoon climate [27] can lead to the condensation of the insulating layer within timber roofs particularly. The current methods of insulating the building’s envelope do not effectively stop air from entering the insulation. This can lead to problems such as condensation of water vapor, growth of mold, damage to the structure, reduced insulation effectiveness, and degradation of indoor air quality [28,29]. Some scholars have suggested using specific energy-saving retrofit materials to address the issue of condensation in internal insulation. For example, cellulose insulation materials with a water vapor buffering effect can store and redistribute a certain amount of water vapor in high-humidity environments [30]. Phase change materials can also be utilized in the building envelope to reduce condensation by storing thermal energy [31]. Our research group previously suggested a bamboo-wood fiber composite insulation board for the walls of wood-structured traditional dwellings [32]. The board was fixed to the inner side of the building envelope and had a void layer between the original wood envelope and the insulation boards. This layer allowed water vapor to escape from the wall. A bio-based material [33] with economic and environmental sustainability has also been suggested for structural insulation of the envelope. The renewal and renovation strategy of historical buildings should consider not only the problem of condensation but also its impact on the historical features [34]. Some past renovation measures ignored the historical features, resulting in the loss of original historical value [35] and the violation of the principle of “restoring the old as the old” [36] for historical buildings. Therefore, the energy-saving and comfort requirements should be compatible with the continuity of the historical features to obtain a more appropriate renovation strategy [37].
This study focuses on the characteristics of rural wood-structured traditional dwellings, the risk of condensation, and the impact of the renovation process on their historical features. It proposes to start with the continuation of historical features and establish a comprehensive evaluation model of the energy-saving retrofitting technology based on two indicators: energy-saving and economy. It then optimizes the energy-saving retrofitting strategy of the dwellings and suggests a list of internal heat preservation retrofitting technologies for the roofs of the wood-structured traditional dwellings. The aim is to provide some technical references for the energy-saving optimization of wood-structured traditional dwellings.
2. Methodology
2.1. Methods and Processes
This study evaluates energy-saving retrofit programs for wood-structured traditional dwellings based on the continuation of their historical features and value (Figure 1). First, it establishes the traditional model of the residence using field measurements and surveys and obtains data such as residence dimensions, enclosure structure information, air conditioning start/stop time, and monthly heating and cooling energy consumption. Second, it uses bamboo and wood fiber board materials and extruded polystyrene (XPS) materials to perform a simple technical retrofit that preserves the historical features of the original residence and obtains the roof foundation retrofit model and the roof multi-conditions retrofit model. Third, it conducts energy consumption simulations based on the retrofit models and obtains the energy consumption of the original residence and the retrofitted residence. Fourth, it conducts energy consumption simulations based on each retrofit model and obtains data on summer cooling, winter heating, and annual energy consumption. Finally, it optimizes the double indices of energy-saving and economy and derives the best retrofit method.
Figure 1.
Research methods framework.
This study simulated the energy consumption of a traditional residential dwelling using EnergyPlus 9.5.0 (U.S. Department of Energy (DOE) Building Technologies Office (BTO), Washington, DC, USA). It constructed a 3D parametric model using Rhinoceros 3D and a battery block engine using Grasshopper 1.0.0007. The engine assigned the original condition of the building to the model based on parameters such as building spatial composition, envelope characteristics, electrical equipment, air-conditioning start/stop times, and indoor/outdoor environments. It then obtained the building energy consumption values through simulation and analysis (Figure 2). Honeybee, a Grasshopper plug-in, is an EnergyPlus-based tool that can simulate the energy consumption of various buildings [38]. This study calibrated the input parameters through field surveys and measurements to make the simulation results match the actual usage of the buildings. In addition, the physical condition of the building can be measured and verified by means of artificial intelligence [39].
Figure 2.
Simulation Flowchart.
2.2. Establishment of the Method
This study uses the continuity of historical features as the starting point for energy-saving retrofits, aiming to preserve the historical features of the retrofitted traditional dwellings. The retrofit strategy follows four characteristics of historical features: color, material, construction, and appearance. Table 1 illustrates these four historical features.
Table 1.
Description of historical features.
Energy-saving retrofits of traditional dwellings should protect historical features and consider simple and low-cost renovation measures that suit local economic development. Therefore, this study will use a new type of composite insulation material for the energy-saving retrofit of the study object. The composite insulation boards are made of bamboo and wood fiber boards and XPS boards.
The heat transfer coefficient of single-layer bamboo wood fiber board is 0.09 W/(m2·k), lower than that of cedar board with the same thickness in residential heat transfer. The bamboo wood fiber board also has better thermal insulation and airtightness. For example, the local procurement cost in Zhejiang is ¥30/m2 for a single piece of bamboo wood fiber board. The main components of bamboo wood fiber board are bamboo wood fiber and polyurethane resin, which make it lightweight, high-strength, fire-resistant, moisture-resistant, sound-insulating, and heat-preserving [40]. Bamboo wood fiber boards have low cost, thin and light material, green environmental protection, and a similar appearance to wood compared with conventional thermal insulation boards [41]. They also resist rotting in high temperatures and humidity after anti-mold and anticorrosion treatment, making them significant for low-energy building design [42]. Bamboo wood fiber boards are easy to cut and splice and can be prefabricated into slats of a certain size in the factory. The slats can then be spliced to form the desired panel, a simple and easy process (Figure 3). The material does not contain formaldehyde or produce secondary pollution and it has a service life of up to 20 years. The surface texture, color, and size of the material can be customized, which facilitates the adaptation and upgrade of traditional dwellings based on historical preservation.
Figure 3.
Wood-bamboo fiberboard.
The XPS board has a closed cellular structure with low water absorption, low heat transfer, and high compression resistance. It is also aging-resistant, inexpensive, and a common insulation material in the local area. The density of the XPS board is 32 kg/m3 and the heat transfer coefficient is 0.028 W/(m2·k).
This experiment enhances the wall’s thermal insulation performance by adding an XPS board between two layers of bamboo wood fiber board. It wraps the XPS board with a bamboo wood fiber board to form a composite insulation board (Figure 4). The reasons for wrapping the bamboo wood fiber board outside the XPS board are the following. First, the two materials have good thermo-physical properties. Second, the synthetic material can be produced by mature technology. Third, condensation in hot summer and cold winter climates can lead to moisture accumulation on XPS boards, resulting in issues like deformation, shedding, reduced thermal resistance, and compromised thermal insulation performance and durability. The bamboo wood fiber board can act as an air barrier, preventing the internal XPS board from moisture and mildew [43], reducing maintenance costs, and extending their service life. This maximizes the thermal insulation effect of the insulation layer. Fourth, XPS boards are very flammable and emit dense black smoke and noxious fumes, posing a significant safety risk when utilized in wood structures without additional fire protection. The fire rating assessment test standard for construction materials (GB8624-2012 [44]) categorizes bamboo wood fiber board as belonging to the B1 level, indicating its high flame retardant capabilities that effectively inhibit flame spreading and burning. Using bamboo wood fiber board to encase XPS board can act as a fire retardant for the XPS board. Fifthly, the bamboo wood fiber surface is more suitable for installing metal components and fixing the roof. Insulation boards added to the roofs of wood-structured traditional dwellings increase the stress on the timber beams. If the traditional dwelling requires further strengthening, consider using carbon fiber-reinforced polymer panels [45] to enhance the flexural strength of the timber beams or eco-friendly sawdust concrete [46] to improve the walls’ robustness and boost the building’s load-bearing capacity.
Figure 4.
Section view of the composite insulation board.
2.3. Evaluation and Optimization of the Method
This study determines the energy-saving efficiency of each retrofit method by comparing the simulated energy consumption of the retrofitted and original homes.
To begin with, an examination was conducted on the electricity usage of every dwellinghold in the traditional dwellings to determine the precise level of electricity consumption in their original condition. The EnergyPlus program was utilized to digitally model the key spatial aspects, geometric information of the enclosure construction, and thermophysical parameters of the traditional dwellings. Second, we made calibration adjustments between the actual and simulated electricity consumption levels to enhance the accuracy of the model data. Then, we built and simulated each energy efficiency retrofit method in EnergyPlus to derive the cooling and heating energy consumption for each method. Finally, we calculated the energy-saving rate of each retrofit method according to Formula (1).
where ESR, Ea, and Eb represent the building energy-saving rate, standard scenario energy consumption, and energy-saving retrofit simulation energy consumption, respectively.
In addition to their energy-saving rate, economic indicators should be considered when evaluating energy-saving retrofit methods for traditional dwellings. As low-cost retrofit measures gain popularity, economic analysis of these measures is necessary. Hence, the payback period serves as an assessment criterion for ultimately selecting the most effective energy-saving retrofit approach. The payback period is determined using Equations (2) and (3). Incremental costs refer to the specific and overall expenses that arise from the retrofitting process, encompassing the costs of materials, construction measures, machinery, and labor [47]. The overall expense of each retrofit condition is determined by conducting on-site assessments of the material market and consulting with construction organizations. Subsequently, the total cost of each retrofit step is estimated.
* NPV represents the annual net present value, n represents the computation period, r represents the discount rate, represents the cash flow in year t, represents the initial incremental cost of investment, Δ represents the dynamic payback period, N represents the year in which the cumulative cash flow is positive for the first time, represents the cumulative cash flow in which the last item is negative, and represents the cumulative cash flow in year n.
3. Case Study
3.1. Study of the Current State of Traditional Dwelling
A large number of traditional wood-structure dwellings are conserved in regions of China with hot summers and cold winters. These structures are primarily built using cedar wood, bamboo, green brick, stone, rammed earth, and straw [48]. The architectural features of these dwellings, such as roof ridges, mountain walls, doorways, and wood carvings, exhibit distinct and unique styles [49]. Residences often have a central courtyard and are arranged in a quadrangle or triplex configuration. The external walls are enclosed, allowing for the connection of adjacent buildings to create many compartments for housing with the potential for expansion [50]. The roof design of traditional residences in Zhejiang Province is characterized by its simplicity. To ensure effective drainage, the roof extends beyond the walls for a specific distance. Additionally, the roof often has a slope of approximately 30°. A conventional traditional home often consists of a series of roofing boards placed on the rafters, followed by mud pads on top of the boards and finally, tiles, or alternatively, tiles directly placed on the rafters. Typically, small green tiles are utilized for the roofing tiles. The tiles are laid by placing Yang-tiles directly on the rafters and then by placing cover tiles between the Yang-tiles. The overlapping method of “Pressing seven and exposing three” (70% overlapping and 30% exposing) is employed between the upper and lower tiles to ensure effective rain-proofing and wind-resistant qualities of the roofs. The building materials and structures of these traditional dwellings are similar to those found in traditional dwellings in China’s hot summer and cold winter climate zones. The retrofitting approach used in this study can be applied to other wood-structure traditional dwellings in this climate zone.
The study focused on analyzing the traditional dwelling No. 280 located in Guangdu Village, Quzhou City, Zhejiang Province, China. This study chose Dwelling 280 in Guangdu Village, Zhejiang Province, China, for three reasons. First, the dwelling is well preserved and undamaged. Second, the presence of two families in the dwelling makes it easier to measure the building’s physical characteristics, energy usage information, and occupants’ living conditions. Third, the dwelling exemplifies the traditional wooden dwellings in hot summer and cold winter regions and can serve as a reference for energy-saving roof retrofits for other dwellings in this climate zone. The geographical position of the dwelling is depicted in Figure 5.
Figure 5.
Location analysis map of the traditional dwelling No. 280.
The dwelling is a wood-structured traditional building arranged in a courtyard layout. It was constructed during the Qing Dynasty, precisely 243 years ago. The entire floor area of the dwelling measures 887.5 square meters. Historically, the residence accommodated up to 17 families. The present state of the residence is depicted in Figure 6. Figure 6a displays the entry of the home, while Figure 6b showcases the roof. The primary materials used for the exterior enclosure of the dwelling consist of brick and wood panel walls. The material on the ground is compacted soil known as rammed earth. The roof is a pitched structure adorned with tiles, which serves as a characteristic adaptation to the local subtropical monsoon environment characterized by high temperatures and rainfall in summer and low temperatures and rainfall in winter.
Figure 6.
The real picture of the traditional Dwelling No. 280. (a) Entrance of the study building; (b) Roof of the study building.
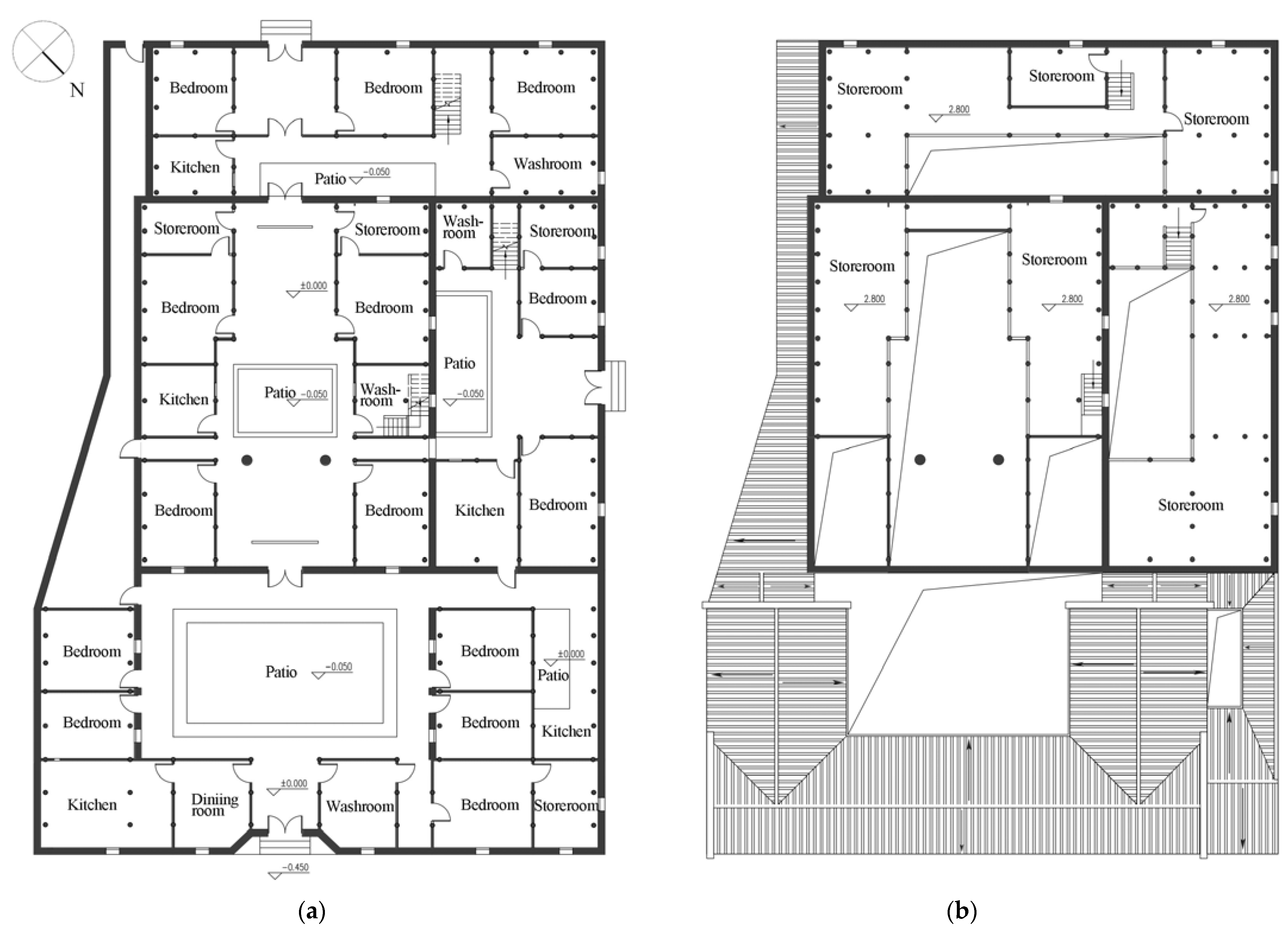
The residence’s entrance faces the northeast direction and consists of a main floor and a partially built second floor. The functional layout of the plan may be seen in Figure 7. The primary purpose of the first floor is to accommodate everyday living areas, including bedrooms, living rooms, kitchens, and so on. The floor is made of compacted soil and, during the summer rainy season (July and August), underground moisture can seep out of the ground, potentially impacting the cleanliness of the indoor space. During the winter season, inadequate insulation leads to low temperatures indoors and undermines the overall comfort of living spaces. Furthermore, the limited size of the window apertures in the rooms on the ground floor leads to inadequate internal illumination. The second story (Figure 8) is only utilized for storage purposes. The second-floor area lacks wall panels for spatial partitioning and is immediately linked to the patio area. The simple and thin roof construction and poor thermal insulation make the building stuffy in summer and cold in winter, thus making it unsuitable for habitation.
Figure 7.
Plan of the traditional Dwelling No. 280. (a) Ground floor plan; (b) Two-level plan.
Figure 8.
Current situation of the second-floor space.
3.2. Measurements of Dwellings
Prior to commencing the simulation, the thermophysical characteristics of the building’s envelope and roof construction were acquired using data from field research and the relevant literature (Table 2). Furthermore, the initial quantitative model was developed and the energy usage was validated by simulating the occupants’ daily routines, the operational periods of energy-consuming devices, and the yearly energy consumption of the original dwelling in the research structure.
Table 2.
The thermal properties of building envelopes used in the simulations.
The thermophysical parameters of the residential enclosure do not meet the criteria of the current Chinese energy-saving design code, particularly the heat transfer coefficient of the roof (3.46 W/m2·K), which exceeds the standard limit of k < 0.7 W/m2·K.
The study collected the residents’ daily schedules by field interviews and research. The air conditioning start and stop times for each bedroom were precisely determined based on the inhabitants’ routine schedule as outlined in Table 3.
Table 3.
The schedule of the residents.
In order to rectify the energy consumption statistics of the created numerical model, the study gathered the real power usage of two dwellingholds in the study building in 2023 (Figure 9). Based on the field survey, the prevailing electricity rate in the area is CNY 0.508/kWh.
Figure 9.
Monthly electricity consumption of two dwellings.
3.3. Parameterization of the Energy Consumption Simulation Process
Table 4 displays the parameter configuration settings utilized in the simulation procedure. Furthermore, we took into account additional aspects such as the internal heat gain, electric equipment’s energy consumption, lighting energy consumption, and so forth. As per the GB50736-2016 [51] specification, the air conditioner’s minimum temperature for heating in winter was set at 20 °C, while the maximum temperature for cooling in summer was set at 24 °C.
Table 4.
Set points for the boundary conditions used in the simulations.
3.4. Energy Consumption Simulation Calibration
The original dwelling’s two dwellingholds consumed 15,356 kWh of electricity annually. The numerical model built by Grasshopper simulated an annual energy consumption value of 15,949 kWh. The primary components of energy consumption are cooling energy, heating energy, equipment energy, and lighting energy. The analysis revealed a discrepancy of 3.9% between the actual electricity consumption and the simulated energy consumption, as indicated in Table 5. This small margin of error confirms the validity of the simulated values, making them suitable for energy simulation research.
Table 5.
Annual energy consumption record.
Given that there are currently only two families residing in the original dwelling, the study aims to assess the actual living conditions of the dwelling following an energy-saving renovation. To achieve this, the study simulates the presence of six families living in the dwelling and compares the simulated energy consumption, energy-saving measures, and economic impact. Based on the simulation findings, the original dwelling has an annual simulated energy consumption of 44,557 kWh, which serves as the standard situational energy consumption in this study.
According to a study by Yoshino et al. [52], the average energy consumption for cooling and heating per unit area of rural residential buildings in China was 24.6 kWh/m2, while the energy consumption of rural residential buildings in the hot summer and cold winter region was 16.3 kWh/m2. The average energy consumption for cooling and heating per unit area of the study case was 43.8 kWh/m2, which is much larger than the average for rural dwellings in this climate zone.
3.5. Energy-Saving Ways to Retrofit Primitive Dwellings
To increase the living area of this dwelling, the study group utilizes bamboo wood fiber boards to divide the second-floor space based on the current state of development in the local rural area. This approach maintains the historical look of the dwelling while enhancing its insulation and energy efficiency. As part of this strategy to save energy on residential roofs, the second-floor area was transformed into livable bedrooms, resulting in the addition of a total of six bedrooms following the refit. The bedroom areas were partitioned as depicted in the diagram, with an adjoining corridor around the patio to connect the different rooms. Additionally, windows were incorporated into all the bedroom compartments along the corridor side to provide natural indoor illumination (Figure 10).
Figure 10.
Second-floor bedroom space division plan.
The dwelling’s roof is built using a conventional method in the area, consisting of rafters, roofing boards, and tiles arranged from the bottom to the top. Based on the site inspection, it was determined that the rafters were constructed using cedar wood. The rafters had a “D” shaped cross-section, with the flat side positioned upwards and in close proximity to the roofing boards. The cross-section diameter of the rafters was approximately 65 mm and there was a spacing of 200 mm between each adjacent rafter (Figure 11a). The roofing boards consist of vertically aligned spliced cedar boards, with a thickness of approximately 16 mm. The tiles are made of fired clay and are categorized into yang tiles and cover tiles. The yang tiles are attached to the wooden roofing boards at the bottom using yellow clay, while the cover tiles are placed on top. The bottom tiles overlap with the top tiles to create a guttering system, allowing rainwater to flow from the cover tiles into the guttering and eventually drain out of the roof (Figure 11b).
Figure 11.
Current view of the roof of the traditional Dwelling No. 280. (a) The lower surface of the roof; (b) The upper surface of the roof.
The study suggests incorporating composite insulation boards between the roofing boards and shingles to achieve energy-efficient roof renovations while maintaining the historical appearance of the roofs. This study suggests incorporating composite insulation boards between the roofing boards and the tiles to achieve energy-efficient roof renovation while maintaining the historical appearance. This approach minimizes alterations to the original roof’s aesthetic while significantly enhancing thermal insulation and resistance to rain and moisture. In the roof, to increase the composite heat preservation board, the roof will have a certain lift in order to avoid the roof lift touching the ridge, so the overall height of the roof lift needs to be controlled within 100 mm and the composite heat preservation board in the thickness of the XPS board should be controlled within 80 mm. This study varied the thickness of XPS boards in composite insulation boards from 10 mm to 80 mm in 10 mm increments (corresponding to the working conditions ➀ to ➇). Additionally, a simulation of a roof construction was created using Grasshopper. Comparative simulation experiments were conducted on the multi-conditions roof (Figure 12b) and the original roof (Figure 12a) to verify the thermal insulation effect of the composite insulation board and select the best thickness of the board.
Figure 12.
Roof retrofit profile. (a) Original roof; (b) Multi-conditions retrofit roof.
4. Results and Discussion
4.1. Evaluation of Historical Features
Most of the existing research on energy-saving renovation of the roofs of traditional dwellings focuses on adding heat-preserving materials and installing energy-saving devices on the roof. However, these methods seldom consider the maintenance of the historical appearance of traditional dwellings. They often result in abrupt changes in the building envelope, reduced indoor space, destroyed coordination and unity of the original architectural structure, and damage to the structure of the building, thus losing its historical value. This study begins by considering the ongoing presence of traditional dwellings throughout historical features as the foundation for the renovation approach. It focuses on four key criteria of historical appearance, color, material, construction, and overall aesthetic, to guide the selection of renovation measures and materials. The composite insulation boards are covered with bamboo wood fiber boards on the outside, which have a color resembling cedar wood boards. The bamboo wood fiber boards are primarily made from natural and eco-friendly bamboo wood fiber, similar to those found in traditional wood-structured dwellings. The composite insulation boards are affixed to the upper surface of the roofing boards using stainless steel clips. They are installed in a manner that does not intrude upon the internal space, thus preserving the historic character of the refurbished room. Once the roof has been installed with the composite insulation boards, the upper shingles will be raised to a specific height. The purpose of controlling the height of elevation is to protect the structural integrity of the roof ridge and wall headings, thereby maximizing the preservation of the historic character of the outward expression of the traditional dwelling.
To evaluate the impact of various roof retrofit techniques on traditional residential energy use, this study used Grasshopper energy simulation software. This software was used to calculate energy consumption for the base case and for eight roof retrofit methods. The total energy consumption includes cooling energy, heating energy, equipment energy, and lighting energy, as shown in Figure 13.
Figure 13.
Comparison of energy consumption for multi-conditions roof retrofits.
The base case has a simulated total energy consumption of 44,557 kWh. The total energy consumption for the other eight retrofit methods ranges from 36,000 kWh to 40,000 kWh. Specifically, the base case consumes 23,211 kWh for refrigeration and 15,677 kWh for heating. The remaining eight retrofit methods consume between 17,000 kWh and 20,000 kWh for refrigeration and between 13,000 kWh and 5000 kWh for heating. With an increase in the material thickness of the composite insulation board, there is a corresponding decrease in the energy consumption required for cooling and heating. Cooling energy consumption falls more significantly than heating energy consumption. Hence, incorporating composite insulation boards with varying thicknesses on the roof can significantly decrease the energy consumption for cooling and heating in the room, thereby enhancing the year-round energy efficiency of residential structures.
The incorporation of composite insulation materials into the roof resulted in a decrease in yearly energy usage. The decreasing trend occurred in two stages. Firstly, the addition of the composite insulation board (XPS board with 10 mm thickness) during the initial stage resulted in a significant reduction in cooling and heating energy consumption, with an annual energy-saving rate of 11.24%. Secondly, the energy-saving efficiency was further stabilized by increasing the thickness of the XPS board from 10mm. This led to a final energy-saving rate of 18.41% with the addition of the composite insulation board (XPS board with 10 mm thickness).
4.2. Economic Evaluation of Different Retrofit Methods
The objective of energy-efficient refurbishment of conventional residences is to reduce energy consumption and achieve economic advantages in their usage. However, there are costs associated with the refurbishment process, particularly in rural regions of China where economic development, material supply, and labor availability are limited. Therefore, it is essential to consider the cost-effectiveness of refurbishment measures and implement appropriate energy-saving strategies based on the prevailing economic conditions. Thus, this study does an economic assessment of each energy-saving retrofit technique to determine the economic expense associated with each retrofit method. As shown in Table 6, local supplier inquiry, labor level assessment, and construction method investigation all helped to determine the precise costs of the roofing retrofit procedure.
Table 6.
Economic cost of retrofitting methods.
This study categorizes the costs of the remodeling technique into material costs and labor costs. The dimensions of the composite insulation board are 800 mm (width) × 2800 mm (length), including two bamboo wood fiber boards and one XPS board. The bedroom on the second story features a slanted roof and, based on precise measurements, the total area requiring the installation of composite insulation boards amounts to approximately 266.4 square meters. The labor cost amounts to CNY 150 each day and the estimated duration for the remodeling process is 16 days.
The expenses associated with retrofitting are escalating in direct proportion to the augmentation of the composite insulation board’s thickness. The retrofit methods were evaluated and it was determined that the minimum cost of retrofitting was CNY 23,523, while the maximum cost was CNY 31,595. The cost per family for retrofitting ranged from approximately CNY 3800 to CNY 5300. The cost of the renovation was investigated and determined to be affordable for the local population.
4.3. Comprehensive Evaluation Results
The method is first evaluated with respect to two factors: energy-saving and economy and then the payback period is used as the final evaluation index. The retrofit approach not only fulfills the energy-saving efficacy of conventional residences but also aligns with the prevailing economic development conditions in the area. The payback period for the eight types of rooftop MWRs was determined by using Equations (2) and (3), based on the yearly energy-saving level and price of electricity. The results may be found in Table 7. The optimal retrofit measure consists of using a combination of 40 mm thick XPS boards and bamboo wood fiber boards. By implementing this retrofit method during the summer cooling period, it is possible to achieve energy savings of 5163 kWh, resulting in an energy-saving rate of 22.24%. During the winter heating period, the same retrofit measure can save 2260 kWh of electric energy, with an energy-saving rate of 14.42%. Overall, this retrofit measure can lead to a total energy consumption reduction of 7423 kWh throughout the year, resulting in an energy-saving rate of 16.66%.
Table 7.
Results of the analysis of the eight energy-saving retrofit methods.
The inhabitants in this area have limited time for heating during the winter due to the local economic conditions and their living patterns. As a result, the annual energy consumption for cooling exceeds that of heating. The payback durations for the eight energy-saving retrofit methods are displayed in Figure 14. These periods vary from 7.25 to 7.58 years for all thicknesses of XPS board retrofit methods, except for the 10 mm XPS board retrofit method, which has a payback period of 9.25 years. Therefore, this study suggests that local residents can choose appropriate retrofitting methods based on their specific circumstances.
Figure 14.
Payback period for the eight energy-saving retrofit methods.
This study focused on the roof of wood-structured traditional dwellings in the rural areas of southeastern China. The remodeling measures were also applicable to other enclosure structures of the wood-structured traditional dwellings. Adding composite thermal insulation panels to other constructions of the dwellings was the future direction of our study group. Wood-structured buildings are common in many regions, both domestic and foreign. The study suggests that using historical features as a basis for remodeling can be broadly applied to renovating traditional homes. The method to minimize condensation in energy-efficient building renovations can also be used for wood-structured historic buildings in regions with hot summers and cold winters, hot summers and warm winters, and moderate climates, which broadens the applicability of the study’s retrofit strategy. Therefore, this study provides a reference for the energy-saving retrofit and its comprehensive assessment of wood-structured buildings in other regions, which broadens the applicability of the study’s retrofit strategy.
5. Conclusions
This study addresses the poor indoor thermal comfort of traditional wood-structured dwellings in the hot summer and cold winter regions of China. It proposes a set of roof energy-saving retrofit and evaluation methods that preserve the historical style and meet the energy-saving and economic requirements of traditional wood-structured dwellings. This study analyzed several feasible methods of roof retrofitting for a traditional wood-structure dwelling in Quzhou, Zhejiang Province, using comparative on-site measurements and numerical simulations. It also provided optimization suggestions for the roof retrofitting of this dwelling. The main findings were the following:
- The roof renovation of traditional dwellings with wood structures in hot summer and cold winter regions of China can use bamboo wood fiberboard + XPS board composites to improve the airtightness and heat preservation of the room. The heat preservation performance of the roof increases with the thickness of the XPS boards;
- By wrapping XPS board with a bamboo wood fiber board, the composite heat preservation board prevents condensation and board rot in the internal heat preservation of the roof. It also extends the service life of the heat preservation material significantly;
- To balance the cost of remodeling and the actual construction, the thickness of XPS insulation boards should be reasonable for optimal energy savings and remodeling costs. The most effective energy-saving retrofitting method (XPS board with 40 mm thickness) for this traditional wood-structured dwelling resulted in an annual energy-saving rate of 16.66% for the six families. This led to a direct cost saving of CNY 3771 in electricity expenses;
- Inadequate comfort is a prevalent issue encountered when reusing historic Chinese wood-structured dwellings. The analysis in this paper shows that traditional Chinese wood-structured dwelling roofs can be retrofitted to enhance energy efficiency for the purpose of energy conservation and emission reduction. This retrofitting method is cost-effective and relatively easy to implement. This retrofit technique is anticipated to be extensively used for conserving and repurposing ancient residences, given the current lack of adequate preservation and utilization of such structures in China. The study evaluates energy-saving retrofit methods for traditional wood-structure dwelling roofs in hot summer and cold winter regions of China. The research results are scientifically significant for promoting the sustainable development of historical heritage.
Author Contributions
Conceptualization, Z.M., X.R. and F.Q.; methodology, Z.M. and X.R.; software, Z.M.; validation, Z.M. and X.R.; formal analysis, Z.M., F.Q. and X.R.; investigation, Z.M.; resources, X.R.; data curation, Z.M.; writing—original draft, Z.M. and X.R.; writing—review and editing, Z.M., X.R. and F.Q.; visualization, Z.M., X.R. and F.Q.; supervision, Z.M., X.R. and F.Q.; project administration, Z.M. and X.R.; funding acquisition, Z.M. and X.R. All authors have read and agreed to the published version of the manuscript.
Funding
This research was funded by the General Soft Science Research Project of the Science and Technology Department of Zhejiang Province in 2021 (Grant No. 2021C35042), the General Science Research Project of Education of Zhejiang Province in 2020 (Grant No. Y202045045), and the Teacher Professional Development Project for domestic academic visiting scholars of the Department of Education of Zhejiang Province in 2021 (Grant No. FX2021035) and was supported by the NSFC Youth Fund, Project No. 52008301.
Institutional Review Board Statement
Not applicable.
Informed Consent Statement
Not applicable.
Data Availability Statement
The data for each analysis in the paper were acquired by field research and software simulations. The respective authors can be contacted to access the data; the required data for the residences were gathered during the fieldwork.
Conflicts of Interest
The authors declare no conflicts of interest.
References
- Li, B.; You, L.; Zheng, M.; Wang, Y.; Wang, Z. Energy consumption pattern and indoor thermal environment of residential building in rural China. Energy Built Environ. 2020, 1, 327–336. [Google Scholar] [CrossRef]
- Evans, M.; Yu, S.; Song, B.; Deng, Q.Q.; Liu, J.; Delgado, A. Building energy efficiency in rural China. Energy Policy 2014, 64, 243–251. [Google Scholar] [CrossRef]
- He, B.J.; Yang, L.; Ye, M.; Mou, B.; Zhou, Y.A. Overview of rural building energy efficiency in China. Energy Policy 2014, 69, 385–396. [Google Scholar] [CrossRef]
- Dong, G.L.; Ge, Y.B.; Cao, H.M.; Zhai, R.X. Withdrawal and Transformation of Rural Homesteads in Traditional Agricultural Areas of China Based on Supply-Demand Balance Analysis. Front. Environ. Sci. 2022, 10, 897514. [Google Scholar] [CrossRef]
- Webb, A.L. Energy retrofits in historic and traditional buildings: A review of problems and methods. Renew. Sustain. Energy Rev. 2017, 77, 748–759. [Google Scholar] [CrossRef]
- Milic, V.; Ekelöw, K.; Andersson, M.; Moshfegh, B. Evaluation of energy renovation strategies for 12 historic building types using LCC optimization. Energy Build. 2019, 197, 156–170. [Google Scholar] [CrossRef]
- Wang, P.; Ji, C.; Yu, P.; Huang, L. A procedure set to construct the optimal energy saving retrofit strategy for old residential buildings in China. J. Renew. Sustain. Energy 2023, 15, 025101. [Google Scholar] [CrossRef]
- Leskovar, V.Z.; Premrov, M. Influence of glazing size on energy efficiency of timber-frame buildings. Constr. Build. Mater. 2012, 30, 92–99. [Google Scholar] [CrossRef]
- Unuk, Z.; Lukic, I.; Leskovar, V.Z.; Premrov, M. Renovation of timber floors with structural glass: Structural and environmental performance. J. Build. Eng. 2021, 38, 102149. [Google Scholar] [CrossRef]
- Amoruso, F.M.; Schuetze, T. Life cycle assessment and costing of carbon neutral hybrid-timber building renovation systems: Three applications in the Republic of Korea. Build. Environ. 2022, 222, 109395. [Google Scholar] [CrossRef]
- Milovanovic, B.; Bagaric, M.; Gasi, M.; Stepinac, M. Energy renovation of the multi-residential historic building after the Zagreb earthquake-Case study. Case Stud. Therm. Eng. 2022, 38, 102300. [Google Scholar] [CrossRef]
- Chen, J.H.; Lu, L. Development of radiative cooling and its integration with buildings: A comprehensive review. Sol. Energy 2020, 212, 125–151. [Google Scholar] [CrossRef]
- Silvero, F.; Montelpare, S.; Rodrigues, F.; Spacone, E.; Varum, H. Energy retrofit solutions for heritage buildings located in hot-humid climates. Procedia Struct. Integr. 2018, 11, 52–59. [Google Scholar] [CrossRef]
- Gao, Y.F.; Shi, D.C.; Levinson, R.; Guo, R.; Lin, C.Q.; Ge, J. Thermal performance and energy savings of white and sedum-tray garden roof: A case study in a Chongqing office building. Energy Build. 2017, 156, 343–359. [Google Scholar] [CrossRef]
- Wang, J.; Gao, W.J.; Wang, Z.; Zhang, L.T. Analysis of Energy Performance and Integrated Optimization of Tubular Houses in Southern China Using Computational Simulation. Appl. Sci. 2021, 11, 9371. [Google Scholar] [CrossRef]
- Junaid, M.F.; ur Rehman, Z.; Ijaz, N.; Farooq, R.; Khalid, U.; Ijaz, Z. Performance evaluation of cement-based composites containing phase change materials from energy management and construction standpoints. Constr. Build. Mater. 2024, 416, 135108. [Google Scholar] [CrossRef]
- Luo, X.Y.; Lu, J.P.; Ge, J. Green and energy-saving reform technology research in traditional houses-taking Luo’s house in Hangzhou as an example. J. Asian Archit. Build. Eng. 2021, 20, 165–178. [Google Scholar] [CrossRef]
- Yuk, H.; Choi, J.Y.; Kim, Y.U.; Chang, S.J.; Kim, S. Historic building energy conservation with wooden attic using vacuum insulation panel retrofit technology. Build. Environ. 2023, 230, 110004. [Google Scholar] [CrossRef]
- Liu, S.; Liu, Y.; Bin, J. Analysis of energy efficiency retrofitting in traditional dewllings in west Hunan. Ind. Constr. 2016, 46, 50–55. [Google Scholar]
- Xiong, K. The Practical Technology Research of Indoor Thermal Environment of Traditional Residence in Chongqing Field Type Town; Chongqing University: Chongqing, China, 2017. [Google Scholar]
- Dehwah, A.H.A.; Krarti, M. Cost-benefit analysis of retrofitting attic-integrated switchable insulation systems of existing US residential buildings. Energy 2021, 221, 119840. [Google Scholar] [CrossRef]
- Chi, F.A.; Xu, L.M.; Peng, C.H. Integration of completely passive cooling and heating systems with daylighting function into courtyard building towards energy saving. Appl. Energy 2020, 266, 114865. [Google Scholar] [CrossRef]
- Chi, F.A.; Liu, Y.; Yan, J.X. Integration of Radiative-based air temperature regulating system into residential building for energy saving. Appl. Energy 2021, 301, 117426. [Google Scholar] [CrossRef]
- Lin, Y.J.; Cui, C.Y.C.; Liu, X.J.; Mao, G.; Xiong, J.W.; Zhang, Y. Green Renovation and Retrofitting of Old Buildings: A Case Study of a Concrete Brick Apartment in Chengdu. Sustainability 2023, 15, 12409. [Google Scholar] [CrossRef]
- Lucchi, E.; Tabak, M.; Troi, A. The “Cost Optimality” Approach for the Internal Insulation of Historic Buildings. Energy Procedia 2017, 133, 412–423. [Google Scholar] [CrossRef]
- Teso, L.; Carnieletto, L.; Sun, K.Y.; Zhang, W.N.; Gasparella, A.; Romagnoni, P.; Zarrella, A.; Hong, T.Z. Large scale energy analysis and renovation strategies for social housing in the historic city of Venice. Sustain. Energy Technol. Assess. 2022, 52, 102041. [Google Scholar] [CrossRef]
- Xue, Y.C.; Fan, Y.F.; Wang, Z.T.; Gao, W.J.; Sun, Z.J.; Ge, J. Facilitator of moisture accumulation in building envelopes and its influences on condensation and mould growth. Energy Build. 2022, 277, 112528. [Google Scholar] [CrossRef]
- De Ligne, L.; Van Acker, J.; Baetens, J.M.; Omar, S.; De Baets, B.; Thygesen, L.G.; van den Bulcke, J.; Thybring, E.E. Moisture Dynamics of Wood-Based Panels and Wood Fibre Insulation Materials. Front. Plant Sci. 2022, 13, 951175. [Google Scholar] [CrossRef]
- Aktas, Y.D.; Ioannou, I.; Altamirano, H.; Reeslev, M.; D’Ayala, D.; May, N.; Canales, M. Surface and passive/active air mould sampling: A testing exercise in a North London housing estate. Sci. Total Environ. 2018, 643, 1631–1643. [Google Scholar] [CrossRef]
- Coupillie, C.; Steeman, M.; Van Den Bossche, N.; Maroy, K. Evaluating the hygrothermal performance of prefabricated timber frame façade elements used in building renovation. Energy Procedia 2017, 132, 933–938. [Google Scholar] [CrossRef]
- Junaid, M.F.; Rehman, Z.U.; Cekon, M.; Curpek, J.; Farooq, R.; Cui, H.Z.; Khan, I. Inorganic phase change materials in thermal energy storage: A review on perspectives and technological advances in building applications. Energy Build. 2021, 252, 111443. [Google Scholar] [CrossRef]
- Rao, X.X.; Qi, F.; Zhang, X.X.; Mao, Z.X. Evaluation Method on Energy-Efficient Retrofitting of Wooden Walls of Chinese Traditional Dwelling-A Case Study of Rendetang in Jinhua. Buildings 2022, 12, 1017. [Google Scholar] [CrossRef]
- Galimshina, A.; Moustapha, M.; Hollberg, A.; Padey, P.; Lasvaux, S.; Sudret, B.; Habert, G. Bio-based materials as a robust solution for building renovation: A case study. Appl. Energy 2022, 316, 119102. [Google Scholar] [CrossRef]
- Lidelöw, S.; Örn, T.; Luciani, A.; Rizzo, A. Energy-efficiency measures for heritage buildings: A literature review. Sustain. Cities Soc. 2019, 45, 231–242. [Google Scholar] [CrossRef]
- Li, B.; Han, J. Conservation and regeneration of historical buildings. IOP Conf. Ser. Earth Environ. Sci. 2021, 787, 012179. [Google Scholar] [CrossRef]
- Armstrong, P.J.; Kapp, P.H. Preserving the past or past preserving: Sustaining the legacy of postmodern museum architecture. Built Herit. 2022, 6, 12. [Google Scholar] [CrossRef]
- Roberti, F.; Oberegger, U.F.; Lucchi, E.; Troi, A. Energy retrofit and conservation of a historic building using multi-objective optimization and an analytic hierarchy process. Energy Build. 2017, 138, 1–10. [Google Scholar] [CrossRef]
- Eltaweel, A.; Su, Y.H. Controlling venetian blinds based on parametric design; via implementing Grasshopper’s plugins: A case study of an office building in Cairo. Energy Build. 2017, 139, 31–43. [Google Scholar] [CrossRef]
- Shen, Y.M.; Zhang, D.M.; Wang, R.L.; Li, J.P.; Huang, Z.K. SBD-K-medoids-based long-term settlement analysis of shield tunnel. Transp. Geotech. 2023, 42, 101053. [Google Scholar] [CrossRef]
- Shah, D.U.; Bock, M.C.D.; Mulligan, H.; Ramage, M.H. Thermal conductivity of engineered bamboo composites. J. Mater. Sci. 2016, 51, 2991–3002. [Google Scholar] [CrossRef]
- Nkeuwa, W.N.; Zhang, J.L.; Semple, K.E.; Chen, M.L.; Xia, Y.L.; Dai, C.P. Bamboo-based composites: A review on fundamentals and processes of bamboo bonding. Compos. Part B-Eng. 2022, 235, 109776. [Google Scholar] [CrossRef]
- Yu, Y.L.; Zhu, R.X.; Wu, B.L.; Hu, Y.A.; Yu, W.J. Fabrication, material properties, and application of bamboo scrimber. Wood Sci. Technol. 2015, 49, 83–98. [Google Scholar] [CrossRef]
- Bunkholt, N.S.; Rüther, P.; Gullbrekken, L.; Geving, S. Effect of forced convection on the hygrothermal performance of a wood frame wall with wood fibre insulation. Build. Environ. 2021, 195, 107748. [Google Scholar] [CrossRef]
- GB 8624-2012; Classification for Burning Behavior of Building Materials and Products. General Administration of Quality Supervision, Inspection and Quarantine of the People’s Republic of China. Standardization Administration of the People’s Republic of China: Beijing, China, 2012.
- Mansour, W.; Li, W.W.; Wang, P.; Fame, C.M.; Tam, L.H.; Lu, Y.; Sobuz, M.H.R.; Elwakkad, N.Y. Improving the Flexural Response of Timber Beams Using Externally Bonded Carbon Fiber-Reinforced Polymer (CFRP) Sheets. Materials 2024, 17, 321. [Google Scholar] [CrossRef]
- Maglad, A.M.; Mansour, W.; Fayed, S.; Tayeh, B.A.; Yosri, A.M.; Hamad, M. Experimental Study of the Flexural Behaviour of RC Beams Made of Eco-friendly Sawdust Concrete and Strengthened by a Wooden Plate. Int. J. Concr. Struct. Mater. 2023, 17, 49. [Google Scholar] [CrossRef]
- Ge, J.; Lu, J.P.; Wu, J.D.; Luo, X.Y.; Shen, F.H. Suitable and energy-saving retrofit technology research in traditional wooden houses in Jiangnan, South China. J. Build. Eng. 2022, 45, 103550. [Google Scholar] [CrossRef]
- Kan, Q. Research on the design of green rural housing in Zhejiang. Zhejiang Constr. 2018, 35, 57–61. [Google Scholar]
- Li, F.; Hu, X.; Wu, N.; Wen, T. Research on style features of regional residence in Quzhou traditional settlements. Archit. Cult. 2018, 9, 222–223. [Google Scholar]
- Zhang, Y. Research on ecological experience of traditional dwellings in Zhejiang province. Adv. Mater. Res. 2013, 689, 95–99. [Google Scholar]
- GB 50176-2016; Code for Thermal Design of Civil Building. Ministry of Housing and Urban-Rural Development of the People’s Republic of China. China Architecture & Building Press: Beijing, China, 2016.
- Yoshino, H.; Zhang, Q. Energy Consumption of Residential Buildings in China. In Sustainable Houses and Living in the Hot-Humid Climates of Asia; Kubota, T., Rijal, H.B., Takaguchi, H., Eds.; Springer: Singapore, 2018; pp. 359–371. [Google Scholar]
Disclaimer/Publisher’s Note: The statements, opinions and data contained in all publications are solely those of the individual author(s) and contributor(s) and not of MDPI and/or the editor(s). MDPI and/or the editor(s) disclaim responsibility for any injury to people or property resulting from any ideas, methods, instructions or products referred to in the content. |
© 2024 by the authors. Licensee MDPI, Basel, Switzerland. This article is an open access article distributed under the terms and conditions of the Creative Commons Attribution (CC BY) license (https://creativecommons.org/licenses/by/4.0/).













